Portafolio

Page 1

Dream House

PORTAFOLIO

Profesor: Alberca Nunton Jose Miguel

Diseñadores :

Leonardo Arquiño

Josselyn Vargas

Melany Arroyo

Estefany Inocente

Daniela Huamán

Elena Marin

D E C O R A C I Ó N D E I N T E R I O R E S
02 NOSOTROS Dream House D E C O R A C Ó N D E N T E R O R E S 01 MOODBOARD 03 PRODUCTOS 04 ESTILOYCONCEPTO C O N T E N I D O C O N T E N I D O C O N T E N I D O
06 PLANIMETRIA Dream House D E C O R A C Ó N D E N T E R O R E S 05 PROPUESTA VISUAL MERCHANDISING 07 PROPUESTA DE MOBILIARIOS 08 VISTASINTERIORES, EXTERIORESYVIDEO C O N T E N I D O C O N T E N I D O C O N T E N I D O
Dream House D E C O R A C Ó N D E N T E R O R E S Propuesta de Estilo de Marca 01 MOODBOARD

PROYECTOESPACIOCOMERCIAL

PROPUESTA DE DISEÑO

Dream House

Dream house es un espacio comercial que se dedica a vender productos de decoración de interior como mobiliarios, textiles, lámparas, plantas y entre otras cosas más también ofrece lo que son exhibiciones donde los clientes podrán observar como quedarían los productos ya ordenados en un ambiente.

UBICACION:

L a empresa se encuentra ubicada en la Av. aviación 3110 y San Borja 15036, referencialmente hablando en el cruce de San borja con la Av aviación.

ÁREAS Y MEDIDAS PERIMETRICAS DEL LOTE:

Área total:171.28m2

Área Frontis : 23.40 m

Área Lateral Izq. : 9.70 m

Área Lateral Der. : 9.70 m

D E C O R A C I Ó N D E N T E R I O R E S
02

PRODUCTOS NATURALES

Nuestra marca se caracteriza por los productos naturales que vende como las lámparas, sillones y accesorios hechos de yute, entre otros productos originales que la tienda ofrece.

Nuestro personal siempre estará capacitado para resolver cualquier tipo de consulta acerca de decoración interiorista que nuestros clientes realizen en nuestros locales.

Buscamos poder ser una empresa reconocida por los productos con la mejor de las calidades y con un diseño propio.

Dream House D E C O R A C Ó N D E N T E R O R E S
03

ESTILO NATURAL

Se eligió el estilo natural dentro de nuestra tienda porque representa el concepto de la marca, este tipo de etilo se caracteriza por ser un estilo ecológico. donde su principal objetivo es la decoración natural teniendo el medio ambiente.

ELEGANTE, VINTAGE, ORIGINALIDAD

House D E C O R A C Ó N D E N T E R O R E S
Dream
PAPELTAPIZ VIDRIO MARMOL
MADERA ACERO YUTE
04

VISUAL MERCHANDISING

PROPUESTA DE DISEÑO

Luminarias suspendidas de acero inoxidable de color

negro (Propia de la marca)

Luz Neutra (h=0.90 cm)

Maceta Moderna Cemento Hydra con planta grande

Silla de Madera Pino con reposabrazos y asiento con respaldar de tela (0.72 x 0.79 c 0.76 cm)

VISUAL DESDE EL INGRESO FOCO VISUAL

PRODUCTOS PROPIOS DE LA MARCA

Muestrarios de tollas, mantas y sabanas

Mesa auxiliar de madera Pino redondo (0.50 cm x 0.42 cm)

Cojín con patrón de rayas en color azul de tela de algodón. (0.45 cm x 0.45cm)

Canastas de mimbre en color gris claro de diferentes tamaños. (0.36 cm)

Base metálica con acero en color

negro en diferentes alturas con diseño en trama de circulo. (h=0.42 a 0.72 cm)

Accesorios de decoración en Libros con Linterna de acero y macetero de cactus

Alfombra de yute natural redonda (120 cm)

Dream House D E C O R A C Ó N D E N T E R O R E S
05

Techo y pared de fondo de drywall blanco de 10 mm

VISUAL MERCHANDISING

PROPUESTA DE DISEÑO

MAYOR IMPACTO VISUAL

ATRACCIÓN

PRODUCTOS PROPIOS DE LA MARCA

Lampara colgante ratán y estructura de metal

Panel de drywall standar de 6 mm revestido en papel vinilo adhesivo pardise

Spot de metal empotrable de 12x12 luz neutra

Pared de pintura latex matte arena Eco color

Paneles de tablero de melamina de 18 mm

Puerta contraplacada opera de 4cm

Marco de madera nogal de 8mm y vidrio templado de 10 mm

Piso tarima

laminado Roble blanco 8mm (20.5 cm x 130 cm)

Sofá de madera teca y ratán tapizado en tela lino

Maceta de ceramica matte lisa color negro

Estante de estructura de metal negro y madera nogal

Mesa de apoyo de madera pino

Lampara colgante ratan y estructura de metal

Alfombra de lana

Manta de felpa de algodón

Sillón estructura de madera tema y ratán tapizado en algodon

Canastas de mimbre en color beige de 35cm

Dream House D E C O R A C Ó N D E N T E R O R E S

Dream house contara con un piso, en el cual su distribución a sido dividido por zonas comenzando con productos livianos al inicio de la tienda y pasando hasta el final para los mas pesados. La organización de los mobiliarios es en parrilla y con una separación .90 cm entre ellas.

Se contara con sala de exhibiciones, sala de exposición, y dos escaparates.

PLANIMETRIA

PLANO DE DISTRIBUCION

Dream House D E C O R A C Ó N D E N T E R O R E S
06
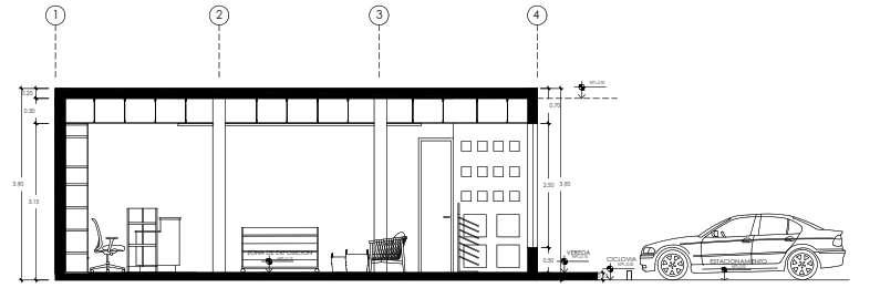
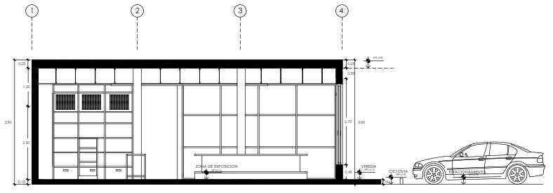
ESC1/50

CORTES B/N

CORTE A -A'

ESC1/50

En los cortes y las elevaciones se podrán visualizar el espacio interior de la tienda, y como estos interactúan con los mobiliarios para destacar la organización de una tienda comercial, y las medida antropométricas necesarias para el confort dentro de la tienda.

CORTE B -B'

ESC1/50

Dream House D E C O R A C Ó N D E N T E R O R E S

CORTES B/N

Dream House D E C O R A C Ó N D E N T E R O R E S
D -D' ESC 1/50
CORTE
C -C' ESC1/50
CORTE

CORTES A COLOR DETALLADOS

Dream House D E C O R A C Ó N D E N T E R O R E S
CORTE B -B' ESC1/50 CORTE D -D' ESC 1/50 CORTE A -A' ESC1/50 CORTE B -B' ESC 1/50

ELEVACIONES

B/NYACOLORDETALLE

Dream House D E C O R A C Ó N D E N T E R O R E S

ELEVACIONES B/NYACOLORDETALLE

Dream House D E C O R A C Ó N D E N T E R O R E S
ELEV ESC

PROPUESTA DE MOBILIARIOS

Dream House D E C O R A C Ó N D E N T E R O R E S
ESTANTERIABAJATIPOISLA 07

PROPUESTA DE MOBILIARIOS

Dream House D E C O R A C Ó N D E N T E R O R E S
GONDOLA

PROPUESTA DE MOBILIARIOS

Dream House D E C O R A C Ó N D E N T E R O R E S
ESTANTERIABAJATIPOISLA

FACHADA FRONTAL VISTAS EXTERIOR

08 Dream House D E C O R A C Ó N D E N T E R O R E S

VISTAS EXTERIOR

FACHADA

LATERAL

Dream House D E C O R A C Ó N D E N T E R O R E S

VISTAS EXTERIOR

FACHADA DE NOCHE

Dream House D E C O R A C Ó N D E N T E R O R E S
Dream House D E C O R A C Ó N D E N T E R O R E S CAJA VISTAS INTERIOR
SALA DE EXPOSICION
Dream House D E C O R A C Ó N D E N T E R O R E S
VISTAS INTERIOR
SALA DE EXHIBICION
Dream House D E C O R A C Ó N D E N T E R O R E S
VISTAS INTERIOR
Dream House D E C O R A C Ó N D E N T E R O R E S
SALA DE EXHIBICION
VISTAS INTERIOR

VISTAS INTERIOR

Dream House D E C O R A C Ó N D E N T E R O R E S
SALA DE EXHIBICION

VISTAS INTERIOR

Dream House D E C O R A C Ó N D E N T E R O R E S
SALA DE EXHIBICION

VISTAS INTERIOR

Dream House D E C O R A C Ó N D E N T E R O R E S
SALA DE EXHIBICION
ALMACEN Dream House D E C O R A C Ó N D E N T E R O R E S ALMACEN VISTAS
INTERIOR
Dream House D E C O R A C Ó N D E N T E R O R E S S.S.H.H.
VISTAS INTERIOR

VIDEO RENDER

Dream House D E C O R A C Ó N D E N T E R O R E S
D E C O R A C I Ó N D E I N T E R I O R E S
Dream House

Turn static files into dynamic content formats.

Create a flipbook
Issuu converts static files into: digital portfolios, online yearbooks, online catalogs, digital photo albums and more. Sign up and create your flipbook.