Sai Kumar Architecture Undergraduate Portfolio

Page 1

1 PORTFOLIOSK

2YoungAdvancedarchitect looking to develop and learn in the profession of architecture. I am quite inter ested in design development, as well as attention to detail and functionality. My strengths are my positive attitude, punctuality, and interpersonal skills. My weakness is my emotional nature. Sir Venkateshwara College of Architecture. Sanjay Gandhi Memorial Government Polytechnic College. Telugu +91-9063221157Architecture(Native) Cooking Hindi LotusEnglishSaikumar21157@gmail.comPhotographyRidingTravellingL.B.Nagar,Hyderabad.LapPublicSchool SKILLSAbout Education Languages: : Interest : Contact : Bachelor of Architecture Diploma of Architecture Schooling 2018 - Ongoing 2015 - 2018 2015 Madhapur, Abdullahpurmet,Hyderabad.Opp.Film City. Vanasthalipuram, Hyderabad. INTERN E.SAIARCHITECTKUMAR - Intermediate - Beginner - Intermediate - Intermediate - Intermediate - Intermediate - Advanced - Beginner

3 SiteInternshipInternshipInternshipCompetitionCollegeExperienceWorkshopWorksI.M.RSky+LineFormeaTheUrbanMaritimeHoiHospiceMediathequeTimeDesignLightRestaurantSocio-CulturalSiricillaGreenARHoiResortHeritageIGBCKindergardenWorkshopDocumentationPollioBrickWorkshop&VRWorkshopRoofDesignDocumentationCenterWorkshopFestivalWorkshopSpaceExistencePollioPhotographyWorkshopUniversityCampusDesignDesignCardinal.Architects.ArchitectsAgrovetProducts:::Jr.Architect(3rd-sem)SVCAJNFAU ALUMNISVCAIGBCIIACOA(8th-sem)(7th-sem)(5th-sem)(5th-sem)(3rd-sem)(6th-sem)(4th-sem)NASAIITSVCANASAROORKEENATCON 2020-20222021-202220212017-2018 Himayatnagar, Hyderabad. Work From Home. Work From Rangareddy.Home.

4

5 Residential01SocioCultural CenterTimeHousing0503Space Existence (Moula Ali Kaman)Media07House09 IT Office Heritage02 Documentation (Astithva)GreenHostel0604Roof Design (IGBC)Miscellaneous0810 32-3828-2916-2312-1330-3124-2714-1510-116-78-9

Residential01

8

9 IT Office 02

Housing03

Hostel04

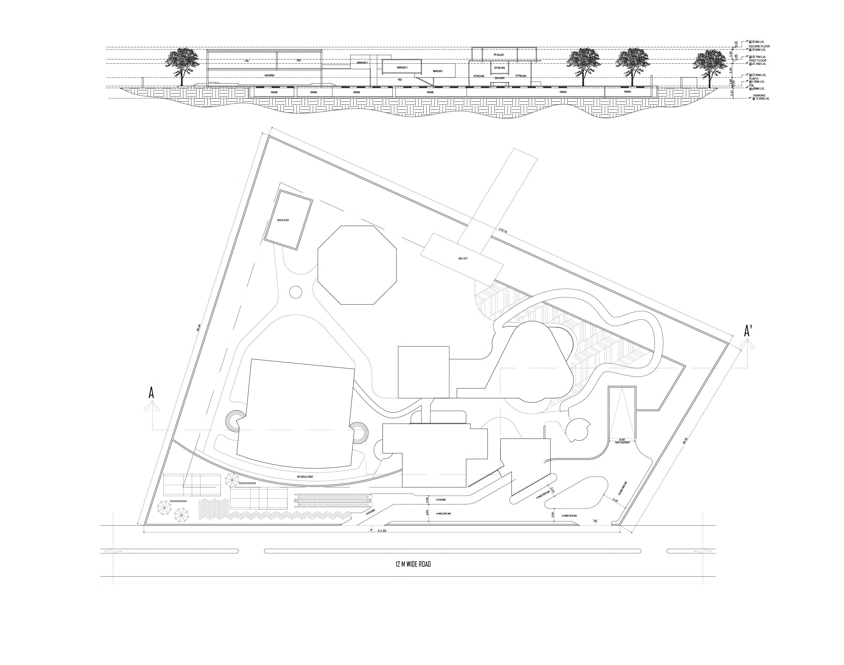
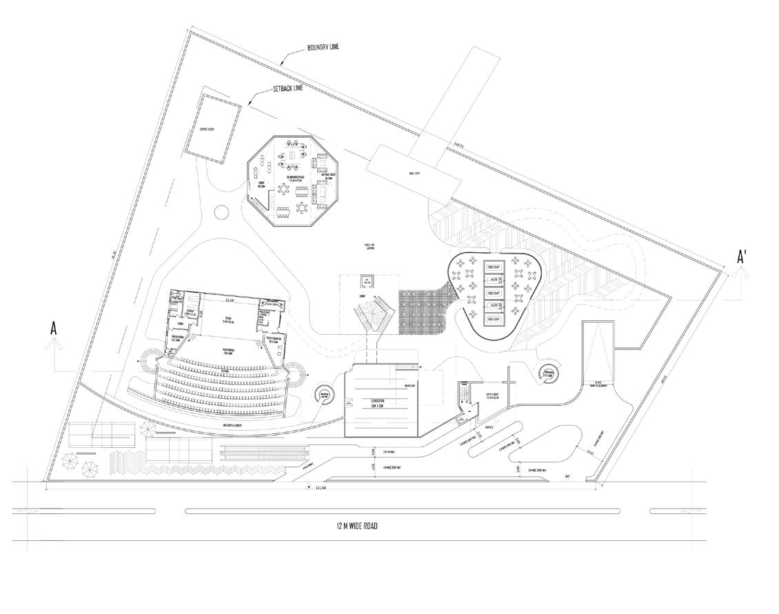
Socio culture center’s main challenging task is the location of site. It have to be accessible to everyone and also connectin with different styles.Utilizingdemographic the metro to pedestriangive access to the socio centerculturalbydesigning a foot over Connectionbridge. is mainly creating spaces that stimulate innovation through contact and sharing of ideas.The open exhibition area is a hybrid concept in direct contact with the workshops space to interaction.promote Representing them organicthroughpathways and blending it maintainedandlationgeometricalwithblocks.Circuverticallyhorizontallywillbefor

Sccio Cultural Centre05

Heritage Documentation06

m Side Elevation

more common structures

we

are

you think

m

When you think of heritage in Hyderabad, of what we often overlook the more common the Kaman (arches) that stand as a symbol of the great past.The majority of these kamans were for merly majestic gateways prominent places. The entranceKAMAN to the 250-year-old MOULA ALI DARGAH. Moula Ali Kaman is recognized as a heritage structure by the tourism department in 2010 had been under repair several times till date.

to

18.005.20mm GroundFloorPlanFirstFloorPlan Model

Concerned authorities involved in the development of the arch and its surroundings have devised a strategy to persuade two opposing parties about its demolition. While one party intended to demolish the arch to facilitate a smooth flow of traffic, the other group insisted on restoring it while keeping religious emotions in mind. In addition to the restoration work, a road widening programme to eliminate the traffic under arch has already commenced. The acquisition of property on both sides of the arch is complete; however, the actual road widening 0.60 2.15m 6.40m 1.90m 2.60m 6.78 0.95m 1.352.75mm0.70m1.15m1.60m 3.40 9.662.00m m 0.90 m 0.90 m0.76 1.20 m 3.44 m 3.54 m 1.82 Hyderabad, But what often overlook the the Kaman (arches) that stand as a symbol of the great past.The majority of these kamans were for merly majestic gateways to prominent places. The MOULA ALI KAMAN, which was erected during the Nizam era, stands as an entrance to the 250-year-old MOULA ALI DARGAH. Moula Ali Kaman is recognized as a heritage structure by the tourism department in 2010 had been under repair several times till date.

structures -

Concerned authorities involved in the development of the arch and its surroundings have devised a strategy to persuade two opposing parties about its demolition. While one party intended to demolish the arch to facilitate a smooth flow of traffic, the other group insisted on restoring it while keeping religious emotions in mind. In addition to the restoration work, a road widening programme to eliminate the traffic under arch has already commenced. The acquisition of property on both sides of the arch is complete; however, the actual road widening is still pending. Ali Kaman

Mouli

forts, palaces, and tombs. But

2 LEGEND 1. ECIL BUS DEPO 2. MOULA ALI DARGAH 3. MOULA ALI KAMAN 4. MIRYALGUDA CHERUVU 5. HERITAGE ROCKS 6. APHB COLONY 7. ZTS 3 6 5 4 7 1

you think of forts, palaces, and tombs.

2 1. ECIL BUS DEPO 2. MOULA ALI DARGAH 3. MOULA ALI KAMAN 4. MIRYALGUDA CHERUVU 5. HERITAGE ROCKS 6. APHB COLONY 1

m Front Elevation

07

are

m

m CHALLENGE CONCERN IIANSC 01 When you think of heritage in

current regime is transforming an arch into an island. Our aim is to transform it into a vibrant and bustling plaza.The design interventions propose a multipurpose public square on the island formed as a consequence of diverting the traffic. The square can be accessed by pedestrians through a pedes trian tunnel. The space can host a variety of activities such as occasional market, open discussions, and children friendly. It can accommodate stalls selling different commodities essential during various festive times, for instance, the annual urs procession, Muharram, Diwali, Sankranthi. This design purposes a prototypical solution for not just this Kaman but other such Kamans in Hyderabad that lack attention.

26

CONCEPTThe

IIANSC 01

27

28 Green Roof Design (IGBC)08

29

30 Media 09House

31

32

33 Miscellaneous10

34

35

37

38 THANKYOU Saikumar21157@gmail.com+91-9063221157

Turn static files into dynamic content formats.

Create a flipbook
Issuu converts static files into: digital portfolios, online yearbooks, online catalogs, digital photo albums and more. Sign up and create your flipbook.
Sai Kumar Architecture Undergraduate Portfolio by sai kumar - Issuu