Thesis _Semester 10 portfolio

Page 1

PROJECT JUSTIFICATION THE EMERGENCE OF CENTRAL BUSINESS DISTRICTS (CBD) INCREASED THE URBAN HEAT ISLANDEFFECT High Co2 emissions Migration and overpopulation of CBD areas Producing 1 ton of cement, emits 0.9 tonnes of CO2 Globalisation Ignorance towards context People tend to follow the same type of buildings irrespective of the geographical locations and this in turn, has created monotony in architecture and loss of rich identity of a place or city through its architecture. •Rural regions have larger evapotranspir ation rates and open space reects solar energy out to space. •High water penetration •Cities have less evapotranspi ration and the buildings trap solar radiation •Low water penetration Globalization is the process of creating a free environment across the globe where there are free and frequent movements of goods and services across the boundaries of nations (UNESCO 2010). PLACE ENVIRONMENT RESOURCES PEOPLE COMMUNITY KNOWLEDGE VALUE PRINCIPLES CULTURE HISTORY TRADITIONAL PRACTICES INDIGENOUS NARRATIVE WHAT DIVERSITY DOES MUMBAI HAS? CULTURAL DIVERSITY IN INDIA HOW IS IDENTITY LOST ? LEADING TO NO CHARACTER TECHNOLOGICAL INTERVENTION IMPROPER USE OF CONCRETE AND GLASS ASPECTS AND IMPACTS OF UHI IDENTITY AND ARCHITECTURE CONTEXTUAL NON-CONTEXTUAL •Sensorial perception •experiential perception •associational perception •locale specic perception •cultural connotations •social connections •heterogeneity •social degeneration •homogeneity Creating contextually relevant contemporary resolutionsinspire from the rich indian traditions and yet aspire for its future dreams – Yatin Pandya •What story will the structure narrate through the context and create identity? CULTURE CLIMATE EXPERIENCE NETWORK NATURE CO-EXIST MAN CIRCLE OF IDENTITY CIRCLE OF CONTEXT AROUND MAN IIT Kanpur Achyut Kanvinde Global mission school - Yatin Pandya Parliament library - Raj Rewal •Axis of movement •Elements of surprise •Thresholds induces an interactive process •Frames of visual compositions •Space hierarchies •Integration of unbuilt space - public realms •Confront same space differently 01020304 URBAN HEAT ISLAND THERMAL DISCOMFORT LOWER AIR QUALITY 05 INCREASED ENERGY USE FOR COOLING HEALTH PROBLEMS POOR COMMUNITIES MORE VULNERABLE •Where is the sense of belonging ? •Are the Modern buildings distinguishable to the place ? •Are we creating monotonous landscapes ? Skyline of Mumbai Skyline of Bangalore Skyline of Hyderabad •How does identity crisis impact architecturally ? Skyline of Delhi Sensorial perception Associational perception Cultural connotations Social connections MAJOR IDENTITY CRISIS IS OBSERVED IN THE CBD AREAS PROMINENT TYPOLOGY IN THE CBD AREAS ARE THE OFFICE BUILDINGS AND AND HUBS ANNUAL PER CAPITA ELECTRICITY CONSUMPTION Electricity consumption LAVANYA GURRAM | AR19013 | SEM 10 | DD SCALE: 1: 200 STAMP: Regenerative architecture: Reimagining ofce buildings ReGenesis circle of life PG.NO: 1 CASE STUDIES PRECEDENTS CII-SOHRABJI GODREJ BUISNESS CENTER SUZLON ONE EARTH GLOBAL CORPORATION HEADQUARTERS COLLECTOR OFFICE,PUNE 1. BUILT TO UNBUILT 9.ZONING 2. HEIRARCHY 4. VENTILATION AND LIGHT 6. SYMMETRY AND BALANCE 7. GREEN SPACES 8.CIRCULATION TO USE 3.STRUCTURE 10.UNIT TO WHOLE 5.ADDITIVE AND SUBTRACTIVE DY PATIL CENTER OF EXCELLENCE MENARA MESINIAGA TOWER WIND TOWER WITH EVAPORATIVE COOLING The hierarchy is set from the courtyard to the exterior open space Hot winds rises and get blown away towards the wind catcher tower which keeps the interiors 5 ° cooler circular columns are used in the structure The subtracted spaces act as open spaces to the structure symmetry is followed by balancing the programs green pockets are created and a central courtyard provides with the line and ventilation The accessibility is provided from the southwestern route Stack ventilation helps in the ventilation of the structure. The segregation of areas is according to private, public, semi-public and semi-private areas. The spaces are integrated accordingly and the entrance acts as a unit for the whole structure The deep stambha area with the water element is the subtractive space which creates an element of interest. Circular columns in a grid are used in the structure. The sun lounge breaks the symmetry but it creates a sense of harmony. Green spaces are emphasized and punctures are created in the structure for encroaching green spaces. The sun block becomes the unit for the whole structure and creates a closure Circulation encompasses the structure and makes it more accessible from every direction. circular columns are used in the structure circular columns are used in the structure The garden green spaces are facing towards the sunpath. There are sun shaders provided for incoming sunlight lounge Suzlon Tree lounge lounge lounge The axis of entrance is tilted in order to create a welcoming entry. The axis is oriented in 45 degree angle which is aligned with the orientation of the structure. The hardscape and softscape are balanced in the open spaces and punctures are made in between the spaces There are several entries for the structure as this is a public building. The heirarchy of the spaces are directed outwards of the building. The heirarchy of the spaces are directed inwards as well as outwards of the building. The heirarchy of the spaces are directed outwards of the building. L shaped columns in a 45 degree grid are used in the structure. This is an open planned plan so the circulation is porous. Light wells are created which encourages light and ventilation The subtractive spaces or openings are less. these subtractive spaces get bigger in the ground oor plan The central part of the structure becomes the unit for the whole building The tilted block forms the unit of the whole structure The subtractive spaces or openings are less. The hardscape and softscape are balanced in the open spaces and punctures are made in between the spaces The columns in the exterior areas are circular and the columns in the interior are squares. The ofce space in the center is the unit for the whole structure. The ofce space in the center is the unit for the whole structure. The ofce space in the center is the unit for the whole structure. The green spaces are created as pockets in the triangular spaces. -The spaces are subtractive at intervals as green terraces take over the subtractive spaces
SITE STUDIES AND ANALYSIS •The temperature rises from 34 to 38 degree celsius during February to may. •The temperature declines from 16 to 20 degree celsius during November to march. WIND ROSE DIAGRAM AVG. TEMPERATURE AND PRECIPITATION FLORA AND FAUNA EDGE CONDITION AND STREET SECTIONS SECTION AA’ SECTION BB’ 20 M 15 M 10 M 4 M 50 M100 M150 M200 M250 M300 M350 M400 M427 M KEYPLAN KEYPLAN 50 M100 M150 M200 M250 M300 M350 M400 M450 M500 M550 M600 M680 M 20 M 15 M 10 M 5 M 1 M Indian spot billed duck Purple heron Common snipe Red naped ibis Dusky crag martin Purple rumped sunbird Black winged stilt Indian paradise ycatcher Asian koel Asian koel Black kite Marsh sandpiper coconut tree Tailed jav Chocolate pansy Black rajah Red pierrot Plum judy Rain tree MAHARASHTRA urban heat index output in Mumbai, 22nd may 2019. Prepared using sentinel-3 satellite imagery Urban heat island effect in Mumbai DP PLAN Shadow analysis of the form for the whole year •March to June (summer months) The summer winds are from the west and south west •July to October (monsoon months) The wind speed increases during the monsoon and are predominant from the west •November to February (winter months) Winter winds are from the north and north east Source: Google earth SUNPATH DIAGRAM Higher angles in summer and lower angles in winter. High and direct radiations from the west and the east. SHADOW ANALYSIS ROAD NETWORK LANDUSE Site Commercial spaces Institutional public spaces GREEN SPACES AND VEGETATION WETLANDS Green pockets Open ground Chunabatti-BKC Avenue 3 Avenue 3 Junction Site FIGURE GROUND Site Site Maharashtra nature park towards the south of the site is home to a rich tapestry of ora and fauna, including an impressive roster of over 200 bird species, 40 types of butteries, and a dozenreptilespecies. METRO CONNECTIVITY (UPCOMING) •Two metro lines will serve BKC Line 2B (DN Nagar to Mandale), will have 2 to 3 stations at BKC Line 3 (Colaba to SEEPZ), will have an underground station at BKC •Direct connectivity to Airport via Line 3 Two elevated corridors at different high vehicle density: •From MTNL exchange in BKC directly towards LBS marg (upcoming) •BKC to chunabhatti Connector KEY LANDMARKS 1. National stock exchange 2. The Capital 3. ONE BKC 4. Canara Bank 5. Godrej BKC CONVENTIONAL CENTER AND FINANCIAL CENTER 1. DAICEC(Convention center) PREMIUM HOTELS 1. Sotel RETAIL 1. DAICEC Mall (upcoming) SCHOOLS 1. Arya Vidya mandir 2. Mt. Litera 3. Dhirubhai Ambani International school 4. American school LEGEND FOR LOCATIONS SITE NATURE BUILTUP UPCOMING METRO STATION MAHARASHTRA NATURE PARK MANGROVES LBS MARG BKC EASTERN EXPRESS HIGHWAY MITHIRIVER 1 1 3 2 1 1 2 2 ITO Station MCA Recreational center Chhatrapati Shivaji International Airport (10 km) from the site Towards Bandra station Towards Kurla station SITE SITE N 1 1. National stock exchange 2. The Capital 2 3. One BKC 3 4. Canara bank 5. Godrej BKC 4 5 v i e w o f m an g r o v e s a n d n a r k t u r e p a c t y e s c h a t p f e o w e i v v i e w o f t h e s u n s e t 29850 sqmt 20 M wide one way road 16Mwideroad 18 M wide road 12 m setback 6msetback 6 m setback gentle slope slope Mangroves Bus stop Towards Goregaon Towards Eastern express highway W WEAKNESS STRENGTH S OPPORTUNITIES O T THREATS •waterbody is present •presence of commercial spaces •view of the cityscape and waterbody •view of maharashtra nature park •centrally located and connected to other cbds •poor connection to the existing wetland •less optimisation of the mithi river •trafc during ofce reaching and leaving hours •presence of the waterfront •less terrain •wetlands and views can be optimized •placed at an accessible tourist place •Flooding of the waterfront •Not much activity observed on site but more vehicular movement. •The roads are majorly parked with cars, buses and trucks. •The areas are more active during the ofce hours. There are more number of high rises which contributes to urban heat island effect due to CO2 emitted in the environment. Avenue 3 road Chunnabatti-BKC Flyover Trafc island NOISE ZONE NOISE ZONE THECONNECTIONWITH MANGROVES POTENTIAL ENTRY POTENTIAL ENTRY SERVICEENTRY 140 M 217 M 119M 172 M CORNERPLOT Mumbai university A A’ Section AA’ Parking area 0 50 150 100 300 SITE IMMEDIATE CONTEXT MICRO LEVEL ANALYSIS MACRO LEVEL ANALYSIS LAVANYA GURRAM | AR19013 | SEM 10 | DD SCALE: 1: 200 STAMP: Regenerative architecture: Reimagining ofce buildings ReGenesis circle of life PG.NO: 2

The mass placed is square bulky, which opposes the wind movement as well in turn reducing the resistance towards lateral loads which is increased wind movement.

The mass is broken into two separate mass through which the axis of connection passes and it forms the ecological axis which connects withthecity.

(MICROCLIMATE)

The mass which is square is converted to cylindrical shape to encourage wind movementandreducethewindpressure.

The central core is extracted and removed to connect the ecological horizontal corridor(horizontalaxis)withtheverticalaxis. The cylinder’s curves facing towards the manmade and natural ecosystem are slanted toincreasetheviewsandlightintake.

DEGENERATIVE
MASS AXIS OF CONNECTION WIND PRESSURE REDUCTION CENTRAL ECOLOGICAL CORE SLANTING CURVES TO INCREASE VIEWS AND REDUCE WIND PRESSURE
MAHARASHTRA NATURE PARK MANGROVES SITE BKC EASTERN EXPRESS HIGHWAY MITHIRIVER MANMADE BUILT ENVIRONMENT NATURAL
MANMADE BUILT ENVIRONMENT NATURAL ECOSYSTEM CONNECTING AXIS REGENERATIVE AXIS
CONNECTION
MANMADE
ENVIRONMENT NATURAL
HUMANS LOCATION PLAN RAINY SEASON SUMMER SEASON WINTER SEASON CORES DESIGN DESCRIPTION FORM DEVELOPMENT MANMADE NATURAL AXIS OF CONNECT MANMADE BUILT ENVIRONMENT NATURAL ECOSYSTEM CIRCULATION •The context itself is giving rise to the duality of axis where it divides the site into the manmade cityscape towards the north and naturalecosystem towards the south. •This axis is a thin line where the differences in the ecosystem is evidently seen where one is degenerative which is manmade built environment and the other which is regenerative in nature. • Hence, the axis is the convergence of what is nature and what is the city where the design emerges through this idea of converging both the merits. •The seasonal experiences and creation of microclimate directs the whole project where diversity is seen throughout the elements of the design •NATUREISDIVERSEANDSOISOURCITY. Sense of ownership and interaction Experiential environment E C O L O G Y DYNAMIC ENGAGEMENT Community Engagement Diversity Placemaking in the sky Connectivity Green Infrastructure
34.9% 65.1% UNBUILT AND BUILT CORES Integration of the built and the unbuilt spaces anddirectingthecirculationaroundthose PUBLIC TO PRIVATE PROGRAM The activity and program activation increases frompublictoprivatespaces. PUBLIC SEMI PRIVATE PRIVATE NATURE CORE NATURE CORE NATURE CORE BUILT UP CORE BUILT UP CORE BUILT UP CORE AREA PROGRAM OPEN SPACES RECREATIONAL ACTIVITIES EVENTS ANCILLARY SPACES OFFICE BLOCK AMENITIES BLOCK COMMERCIAL BLOCK ADMIN BLOCK ENTRANCE OFFICE SPACES SUPPORT SPACES BREAKOUT SPACES SERVICE SPACES LIBRARY SITE AREA= 29850 SQMT B R E A K O U T S P A C E S WORKING OFFICE AREA LOBBY/ WAITING AREA CAFETERIA (ANCILLARY SPACES) ECOLOGICAL CORE SUPPORT SPACES SUPPORT SPACES B R E A K O U T S P A C E S CORE SERVICE SPACES CORE SERVICE SPACES RESTAURANT LOBBY/ WAITING AREA CORE INTERNAL MAIN ENTRANCE SERVICE SPACES RESTAURANT BACK ENTRANCE CORE SERVICE SPACES 65% 10.2% 22% 2.1% 0.7% 61.4% 25.4% 13.2% BUILT UP CORE BUILT UP CORE BUILT UP CORE Building and proposing for consuming the whole FSI, and making the project nancially feasible. Butdetailingonebuildingcorefortheproject. CONSUMING THE FSI (A) = 10 FLOOR (50 METERS) GROUND FLOOR= 1300 BUILT UP = 1300x 10= 13000 (B) = 16 FLOOR (70 METERS) GROUND FLOOR= 3300 SQMT( AREA DECREASES FOR THE ABOVE FLOORS) (C) = 16 FLOOR (70 METERS) GROUND FLOOR= 3850 SQMT BUILT UP = 3850x 16= 61600 A+ B+ C= 13000 + 45170 + 61600 = 119,770 SQMT AXONOMETRIC VIEW POS= 682 SQ MT SITE AREA= 29850 SQMT SITE AREA = 29850 SQMT FSI = 4 THEREFORE BUILT UP= 29850x 4 = 119400 SQMT PROXIMITIES OF AREA PROGRAM FLEXIBLE PUBLIC RIGID PRIVATE Breakout spaces Open ofce Meeting room formal Leisure room Pathways Lounges Cafes Social courtyards atrium Event spaces Meeting room informal focus room Storage Multimedia Reception Bike parking Car parking Green pockets Research room Private Ofce ofce suites Technical room Cafes and pantry SPATIAL HEIRARCHY TECHNICALFEASIBILITY • Easyaccess for the construction. • Localmaterials procured from the surrounding •Infrastructuralprovisions available •Potentialviews from the site • Site is an MMRDA Ground- major populated city events taking place GREEN CORE AND BREAKOUT SPACES The central green space and the breakout spaces create microclimate for the internal spaces and viewing balconies for viewing the junctions STAKEHOLDERS: Finance related banks or rms, various company owners such as facebook, Google, Netix, Amazon, etc. Various multinational companies •CLIENT:ProbablegiantclientisGodrej •CurrentOwnershipoflandisunderMMRDA •Users: Employees, trainees, company owners, Shop owners,visitors FSI MODEL LAVANYA GURRAM | AR19013 | SEM 10 | DD SCALE: 1: 200 STAMP: Regenerative architecture: Reimagining ofce buildings ReGenesis circle of life PG.NO: 3
ECOSYSTEM
OF
-ECOLOGICAL CORRIDOR SEASONS
OTHER LIVING BEINGS
BUILT
ECOSYSTEM CONTROLLED ENVIRONMENT ONLY
IDEATION AND CONCEPT
TERRACE RIDGE RIDGE LINE RIDGE STRETCHER MUMTY MUMTY LVL +70.4M MUMTY +70.4M TERRACE TERRACE +68.0M BASEMENT BASEMENT A' A Ecologicalcorridor Mid-landing Mid-landing Mid-landing Mid-landing AREA +0.15M SUMMER JUNCTION PLAZA WINTER JUNCTION PLAZA RAINY ENTRANCE PLAZA BASEMENT ENTRY +0.15M CONCERTSTAGE WATCHMAN'S CABIN +0.15M +0.15M +0.15M SITTINGAREA SITTINGAREA SITTINGAREA AMPHITHEA CONCERT AMPHITHEA SITTING AREA SITTINGAREA STANDING AREA BASEMENT UNLOADING PEDESTRIAN PEDESTRIANENTRY PEDESTRIAN PEDESTRIANENTR PEDESTRIANENTR ATCHMAN'S Ecologicalcorridor Ecologicalcorridor Ecologicalcorridor SITTINGAREA GATE 4 ENTRANCE ENTRANCE ENTRANCE GA BRIDGE ABOVE BRIDGE LINE ABOVE BRIDGE LINE ABOVE BRIDGE 12M ROAD WIDE ROAD 6M WIDE ROAD 6M WIDE ROAD 6M WIDE ROAD 6M WIDE ROAD 4.5MWIDESERVICEROAD PEDESTRIAN ENTR ANDEXIT +0.15M 4.5MWIDESERVICEROAD 6M ROAD CONNECTING SUMMER 20M WIDE ROAD 16MWIDEROAD 18M WIDE ROAD ATCHMAN'S CABIN WATCHMAN'S CABIN WA TCHMAN'S CABIN TCHMAN'S CABIN AVENUE 3 ROAD 20M WIDE ROAD AVENUE 3 ROAD 20M WIDE ROAD BKC CONNECT OR BRIDGE ONE WAY ROAD TWOWAYROAD SITE PLAN WINTER JUNCTION PUBLIC PLAZA SUMMER JUNCTION PUBLIC PLAZA RAINY ENTRANCE PUBLIC PLAZA TROPICAL EVERGREEN CENTRAL FOREST IDEA AND UNBUILT WITH THE BUILT STRATEGY TROPICAL EVERGREEN FOREST OPENING TOWARDS THE SKY ECOLOGY + HUMAN + BUILTFORM HABITAT CREATION CARBON SEQUESTRATION URBAN ARGRICULTURE ELECTRIC VEHICLES AND PEDESTRINIZATION COEXISTING WITH OTHER LIVING BEINGS RAINWATER HARVESTING REGENERATIVE DESIGN STRATEGIES BAMBOO RAIN TREE PALM TREE SEMAL TREE RAINFOREST ENTRANCE TREES SUMMER JUNCTION TREES WINTER JUNCTION TREES TROPICAL EVERGREEN FOREST TREES FLAMES OF FIRE (GULMOHAR) COPPER POD NAGKESAR FLOWER SITA ASHOKA TREE MANGO TREE GOLDEN TREE (CASSIA FISTULA) NEEM TREE INDIAN ALMOND PINK TABEBUIA ROSEA PRIDE OF INDIA LARKSPUR POT MARIGOLD ALYSSUM SHEVANTI OR CHRYSANTHEMUM WINTER JASMINE THE INDIAN CORK TREE KADAMBA TREE BAMBOO CHAMPAK TREE LAVANYA GURRAM | AR19013 | SEM 10 | DD SCALE: 1: 500 STAMP: N EDGE DETAIL SECTION 1:50 SPOT SECTION OF COMPOUND WALL SITE SECTION AA’ 1:1000 Regenerative architecture: Reimagining ofce buildings ReGenesis circle of life PG.NO: 4

AVENUE 3 ROAD 20M WIDE ROAD

16MWIDEROAD

BASEMENT BASEMENT EXIT STRETCHER 3.0MX1.6M 3.0MX1.6M STRETCHER 3.0MX1.6M OILET OILET FEMALE BASEMENT LOBBY 5.9MX7.8M BASEMENT LOBBY BASEMENT5.9MX7.8M GARBAGE COLLECTION 4.5Mx8.5M TCHMAN'S CABIN TCHMAN'S SERVICE 4.5Mx8.5M GARBAGE RECYCLCOLLECTION YING 4.5Mx8.5M M WIDE ROAD WIDEROAD ROAD WIDE M WIDE WIDEROAD WIDEROAD BIKE ARKING PARKING BIKE ARKING PARKING TRUCK SERVICE VEHICLE AREA SERVICEVEHICLE TRUCK ABOVE BUILDING ABOVE BUILDINGLINEABOVE WIDE ROAD M WIDE ROAD Regenerative architecture: Reimagining ofce buildings 13M x9.5M COMMON 5.4M x4.4M 13M x9.5M A' ENTRANCEFORRESTAURANTS INTERNAL ENTRANCE Mid-landing Mid-landing GREENPOCKET +0.6M GREENPOCKET +0.6M +1.2M +0.15M +1.2M +0.75M GREEN BELT SUMMER JUNCTION PLAZA RAINY ENTRANCE PLAZA CAR POOLING RECEPTION +1.2M RESTAURANT +0.15M +0.15M +1.2M +1.2M PLAZA DECK +0.15M BIKE POOLING RESTAURANT RECEPTION +1.2M +0.15M +0.15M +1.2M +1.2M +0.15M +0.15M +0.15M +0.15M +0.75M SUMMER GREEN BELT PEDESTRIAN ENTRY PEDESTRIANENTRY PEDESTRIANENTRY RECEPTION +1.2M LOBBYAREA +1.2M +3.0M COMMONLOBBYAREA +1.2M ATCHMAN'S CABIN KITCHEN DROP OFF Ecologicalcorridor Ecologicalcorridor GATE 3 ENTRANCEGATE ENTRANCEGATE BRIDGE LINE ABOVE BRIDGE LINE ABOVE 12M WIDE ROAD 4.5MWIDESERVICEROAD 4.5MWIDESERVICEROAD A TCHMAN'S PEDESTRIAN ENTR TCHMAN'S CABIN 6M WIDE ROAD OVERHEAD BRIDGE SUMMER BELT OVERHEAD BRIDGE CONNECTINGTHE SUMMER BELT +3.75M +1.5M BUILDING LINE ABOVE ABOVELINEBUILDING 5.8Mx 3.0M ENTRANCEFOR THERESTAURANTS +0.15M ENTRANCEFOR THERESTAURANTS
E.D F.D STRETCHER 3.0MX1.6M DOWN E.D F.D LIFTSTRETCHER FIRE 3.0MX1.6M FEMALE FEMALE OILET GROUND FLOOR PLAN ReGenesis circle of life UPPER BASEMENT PLAN AT -4.2M AND LOWER BASEMENT PLAN AT -8.4M LVL LAVANYA GURRAM | AR19013 | SEM 10 | DD SCALE: 1: 200 STAMP: PG.NO: 5 N
ONE WAY ROAD TWOWAYROAD
AVENUE 3 ROAD 20M WIDE ROAD AVENUE
ROAD 20M WIDE ROAD WINTER JUNCTION SUMMER JUNCTION BIOFILTRATION POND SECTION BASEMENTENTRY BASEMENTEXIT BIO FILTRATION WETLAND POND A BACKENTRANCE LOBBYAREA INTERNAL ENTRANCE Ecologicalcorridor +6.0M Mid-landing +3.75M Mid-landing +1.5M +1.2M +1.2M +1.2M RECEPTION +1.2M GREENPOCKET +0.6M GREENPOCKET +0.6M +0.15M +0.15M +0.15M PLAZAAREA +0.15M WINTER JUNCTION PLAZA RESTAURANT DROP OFF BASEMENT ENTRY CARENTRY CONCERTSTAGE W TCHMAN'S CABIN SHOP 1 +0.15M +0.15M +0.15M +0.15M COMMON KITCHEN 5.4Mx4.4M ENTRANCE LOBBY +1.2M RECEPTION SITTINGAREA SITTING AREA SITTING AREA AMPHITHEATRE CONCERT ST AGE AMPHITHEATRE SHADEDART/EXPO/ EVENTSEXHIBITION AREA STANDING AREA STANDINGAREA STANDINGAREA STANDINGAREA VISITOR VEHICLE CHARGING POINT WINTER GREEN WINTER GREEN BELT BELT WINTER GREEN BELT WINTER GREEN BELT ENTRANCE LOBBY SHADEDART/EXPO/ EVENTSEXHIBITION AREA CARENTR SITTING AREA SITTINGAREA STANDINGAREA AREA STANDINGAREA STANDING AREA SHOP 1 DROP OFF +0.0M BASEMENTEXIT INTERNAL DROP OFF +0.15M +0.45M +0.15M +0.15M +0.15M +0.15M +0.15M PLAZA +0.30M +0.45M +0.60M +0.75M +0.15M +0.15M LOADINGAND UNLOADING PEDESTRIANENTR PEDESTRIANENTRY PEDESTRIANENTRY GATE 1 +3.0M +3.0M +0.45M EA TERIES SHOP EATERIES SHOP 6.8Mx 6.7M 8.7Mx 6.7M SITTING AREA 17.8Mx 5.1M +0.0M EXISTING STOP STANDING AREA Ecologicalcorridor SITTING AREA SITTINGAREA GATE 2 WATCHMAN'SCABIN GATE 4 ENTRANCE ENTRANCEGATE ENTRANCE GATE BRIDGE LINE ABOVE BRIDGE LINE ABOVE 12M WIDE ROAD 6M WIDE ROAD 6M WIDE ROAD 6M WIDE ROAD 6M WIDE ROAD PEDESTRIAN ENTRY PEDESTRIAN ENTRYANDEXIT +0.15M PUBLIC TRANSPORT DROP W A TCHMAN'S CABIN W A TCHMAN'S CABIN INTERNAL DROP OFF OVERHEAD WINTER BELT UP UP PUBLIC 1.6MX1.6M PUBLIC 1.6MX1.6M PUBLIC LIFT BASEMENT 1.6MX1.6M ABOVELINEBUILDING BUILDING ABOVE CARENTRY PUBLIC 1.6MX1.6M +1.5M +1.5M +1.5M KIOSK 6.6Mx4.3M KIOSK 5.8Mx3.0M ENTRANCEFOR THERESTAURANTS INTERNAL DROP OFF ENTRANCEFOR THERESTAURANTS 18M WIDE ROAD +0.15M +0.15M +0.15M BKC
BRIDGE DOWN E.D F.D STRETCHER 3.0MX1.6M DOWN STRETCHER 3.0MX1.6M OILET OILET +1.2M VIEW OF BIOFLITRATION POND VIEW OF JUNCTION PLAZA VIEW OF AMPHITHEATRE FOR CONCERT AND EVENTS LAVANYA GURRAM | AR19013 | SEM 10 | DD SCALE: 1: 200 STAMP: PG.NO: 6 N
3
CONNECTOR
N FLOOR PLAN REFUGE FLOOR PLAN 9TH FLOOR PLAN RECEPTION LOBBY CAFETERIA LIBRAR OPEN OFFICE AREA OPEN OFFICEAREA OPENOFFICEAREA OPENOFFICEAREA OILET FEMALE OILETMALE OILET OILETFEMALE LOBBY RECEPTION CAFETERIA RECEPTION LIBRARY OPEN OFFICE AREA OPEN OFFICEAREA OPEN OFFICEAREA OPENOFFICEAREA OILETFEMALE OILET MALE TOILET FEMALE DOWN E.D .D STRETCHERLIFT FIRE 3.0MX1.6M STRETCHER 3.0MX1.6M DOWN STRETCHER 3.0MX1.6M DOWN E.D F.D LIFTSTRETCHER FIRE 3.0MX1.6M DOWN E.D F.D STRETCHERLIFT FIRE 3.0MX1.6M E.D F.D STRETCHER 3.0MX1.6M DOWN STRETCHER 3.0MX1.6M DOWN E.D F.D LIFTSTRETCHER FIRE 3.0MX1.6M LAVANYA GURRAM | AR19013 | SEM 10 | DD SCALE: 1: 200 STAMP: FIRST FLOOR PLAN THIRD FLOOR PLAN TYPICAL OFFICE FLOOR PLAN OPEN OFFICE AREA MEETING CUBICLES OPENOFFICEAREA OPEN OFFICE AREA TEAMBUILDINGROOM LOBBYAREA COMMONLOBBY AREA MEETING CUBICLES OPEN OFFICE AREA OPENOFFICEAREA OPEN OFFICE OPEN OFFICE AREA LOBBYAREA MEETING CUBICLES OILETFEMALE OILET MALE T MALE OILETFEMALE 3.4 WIDE ASSAGE MWIDEPASSAGE WIDE ASSAGE 3.4 WIDEPASSAGE COMMONLOBBY CUBICLES MEETINGCUBICLES MEETINGCUBICLES VIEWINGBRIDGE TRAININGCENTER TRAININGCENTER WORKSHOP AREA WORKSHOP GYM GYM INDOOR GAMES INDOOR GAMES E.D STRETCHER 3.0MX1.6M E.D .D STRETCHER 3.0MX1.6M E.D STRETCHER 3.0MX1.6M MEETING CUBICLES MEETING CUBICLES MEETING CUBICLES MEETINGCUBICLES CUBICLES MEETINGCUBICLES T FEMALE TOILETMALE OILET MALE TOILETFEMALE MAINTENANCESTAFF MULTIPURPOSE ROOM SERVICE AREA SERVICEAREA MULTIPURPOSEROOM MANAGER'SCABIN MAINTENANCE STAFF MANAGER'SCABIN MULTIPURPOSEROOM SER VICE AREA MULTIPURPOSE ROOM SERVICEAREA COMMONLOBBY AREA 4.0Mx4.6M 6.6Mx5.2M OWARDS TRAININGCENTER OWARDS VIEWINGBRIDGE Ecologicalcorridor +6.0M Mid-landing Mid-landing Mid-landing +3.75M Mid-landing +1.5M +3.75M +1.5M BREAKOUTSPACE BREAKOUT SPACE BREAKOUTSPACE BREAKOUT SPACE PLANS DOWN DOWN D2 DOWN DOWN DOWN DOWN Regenerative architecture: Reimagining ofce buildings ReGenesis circle of life PG.NO: 7 VIEW OF BREAKOUT SPACES CONNECTION OF THE BUILT AND THE UNBUILT INTERIOR VIEWS
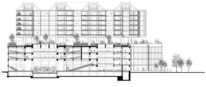
SECTION DD’ KEYPLAN SECTIONS SECTION EE’ KEYPLAN LAVANYA GURRAM | AR19013 | SEM 10 | DD SCALE: 1: 200 STAMP: CREATING MIRCRO CLIMATE HABITAT CREATION BIODIVERSITY STRATEGY SPOT SECTION OF ECOLOGICAL CORRIDOR SPOT ELEVATION OF THE STRUCTURE Regenerative architecture: Reimagining ofce buildings ReGenesis circle of life PG.NO: 8
ELEVATION
ELEVATION KEYPLAN TERRACOTTA LOUVERS AGROCRETE PARAPET LAVANYA GURRAM | AR19013 | SEM 10 | DD SCALE: 1: 200 NORTH ELEVATION KEYPLAN STAMP: AGROCRETE PARAPET WALL ECO SENSE GLAZING Regenerative architecture: Reimagining ofce buildings ReGenesis circle of life PG.NO: 9
SOUTH
STRUCTURAL SCHEME AND END WALL SECTION LAVANYA GURRAM | AR19013 | SEM 10 | DD SCALE: 1: 200 STAMP: Regenerative architecture: Reimagining ofce buildings ReGenesis circle of life PG.NO: 10 N
END WALL SECTION AND DETAILS LAVANYA GURRAM | AR19013 | SEM 10 | DD SCALE: 1: 200 STAMP: AXONOMETRIC VIEW LIGHT SHELF AND PLANTER BOX DETAIL VIEW RAFT WITH PILE FOUNDATION AXONOMETRIC VIEW AXONOMETRIC VIEW OF THE CRCP FALSE CEILING AND FLAT SLAB HARDROCK LVL Regenerative architecture: Reimagining ofce buildings ReGenesis circle of life PG.NO: 11 N

STAIRCASE DETAIL

TIMBER DETAIL LAVANYA GURRAM | AR19013 | SEM 10 | DD SCALE: 1: 200 STAMP: Regenerative architecture: Reimagining ofce buildings ReGenesis circle of life PG.NO: 12 N
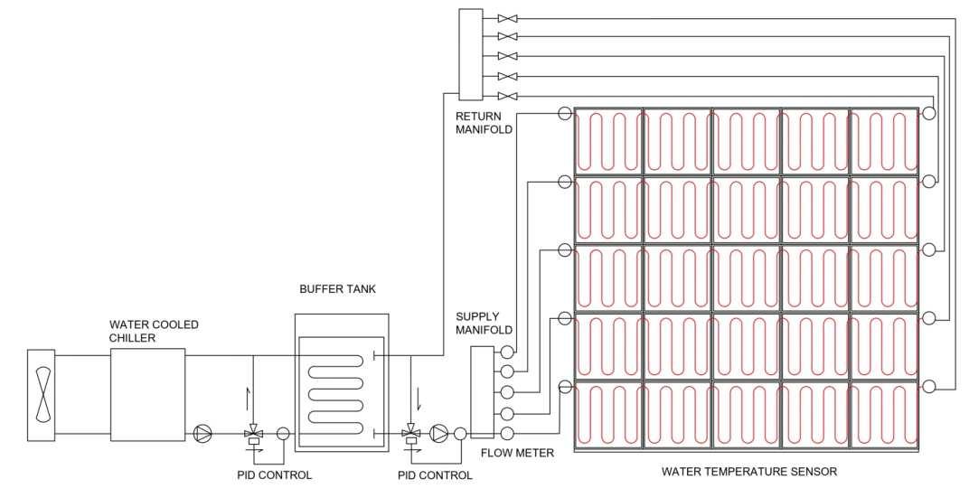
SERVICES LAVANYA GURRAM | AR19013 | SEM 10 | DD SCALE: 1: 200 STAMP: SITE SERVICES 1: 500 THIRD FLOOR PLAN ELECTRICAL AND HVAC SYSTEM 1: 500 FIRE EVACUATION PLAN 1: 200 THIRD FLOOR PLAN SPRINKLER LAYOUT 1: 500 RADIANT COOLING SYSTEM 1: 50 PLANSECTION SITE SECTION 1: 500 Regenerative architecture: Reimagining ofce buildings ReGenesis circle of life PG.NO: 13 N

Turn static files into dynamic content formats.

Create a flipbook
Issuu converts static files into: digital portfolios, online yearbooks, online catalogs, digital photo albums and more. Sign up and create your flipbook.