Greetings,
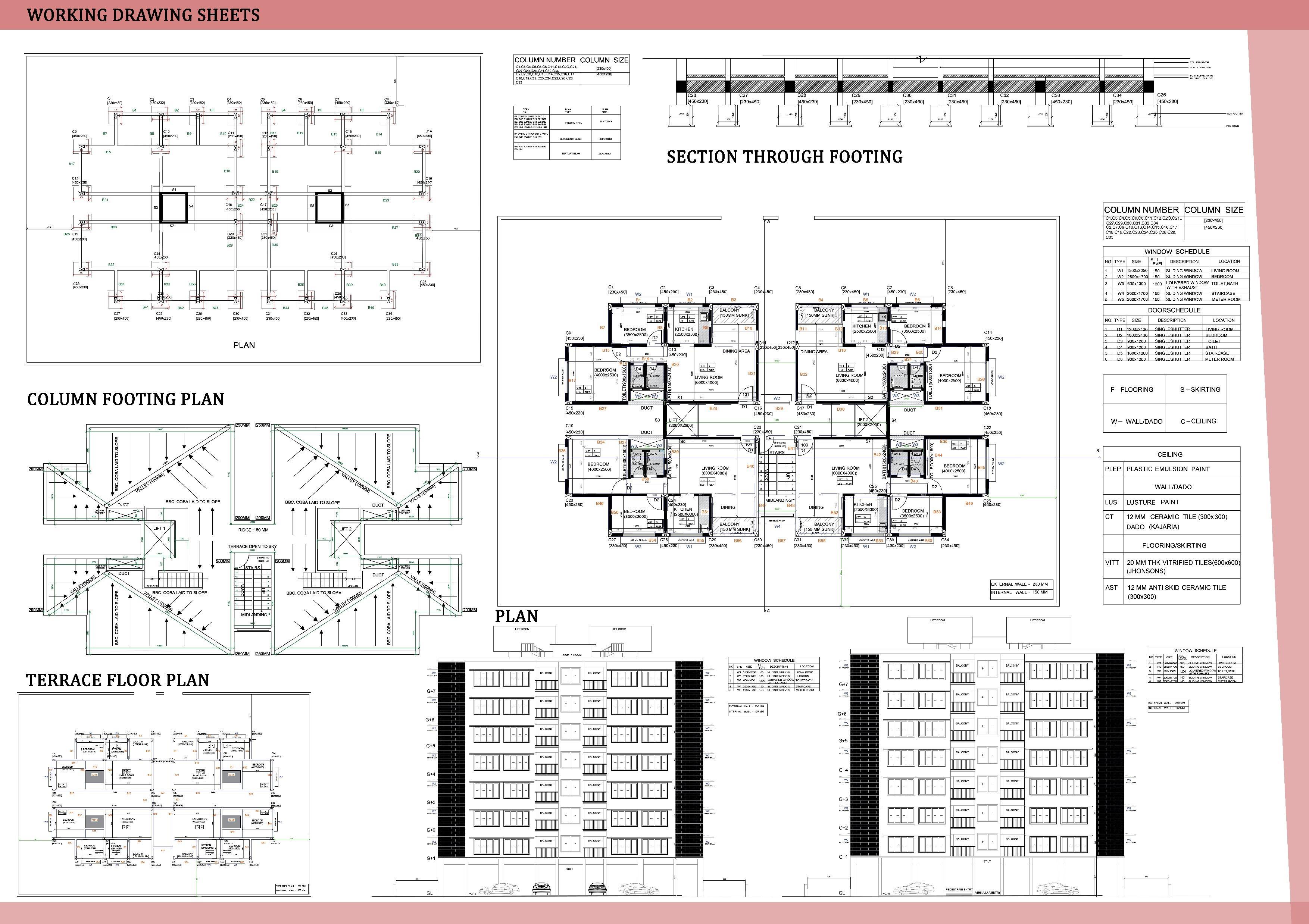
I Rhuti Naik graduated from Smt. K.L. Tiwari College Of Architecture is glad to share my Architecture portfolio with selected projects from the academic year 2018-2023, which includes architecture design projects, professional practices, Municipal and Working drawings and a thesis project.
Thank you.