Portfolio_Monika

Page 1

TABLE OF CONTENTS

CAFE RENOVATION 01 GAS STATION 02 EXHIBITION CENTRE 03 LANDSCAPE DESIGN 04 CAFE DESIGN 05 IT OFFICE 06 CHOCOLATE STORE DESIGN 07 SPORT COMPLEX 08 SITE EXECUTIONS 09

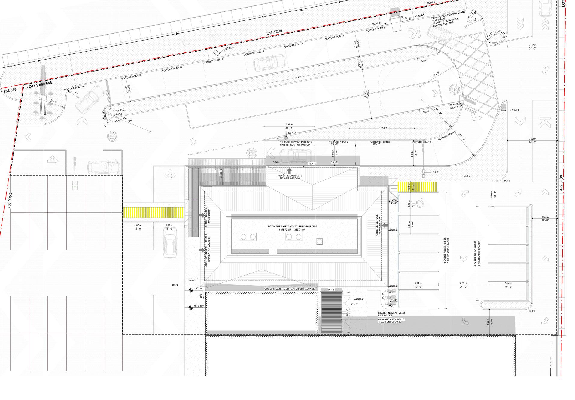
CAFE RENOVATION

PROJECT :- RENOVATIONStarbucks Cafe

SITE :- MONTREAL,QUEBEC

Software : Revit, Photoshop, Autocad, Indesign

The project consists of the redevelopment of a commercial premises and its landscaped site.

I collaborated in the sketch of the renovation of the facades, the interior design, and the development of the site, all according to Starbucks standards and regulatory requirements.Then, for the issuance of the file for permit and submission.

PROJECT 01
VIEW EXISTING SITE PLAN EXISTING SITE PLAN
3D

CONSTRUCTION DRAWING

| 01 SITE PLAN FLOOR PLAN SECTION ELEVATION ELEVATION
02 GAS
DN DN DN DN Building A Car Wash Building B Bay Area Building C Store Building D Repair Garage Scale Checked by Drawn by Date Project number 1 200 2023-04-03 12:21:44 PM Site Plan Project Number Gas Station Herzing College 15-03-2023 Monika Agarwal Sami Youssef A101 200 Site Plan C D KEY PLAN No.DescriptionDate 1 1 2 2 3 3 4 4 5 5 6 6 7 7 8 8 A A D D B B C C A106A110 A110---Grande surface WCH WCF 3 Stockage Bureau Caisse 10 Equipement auto 11 Stockage 12 Sortie Entrée Acces livraison 3953 4000 1250 2750 4000 4000 4000 4000 257 5250 18750 284 206 2558 2567 225 2650 425 206 4000 1350 2650 425 4206 4425 8631 257 2035 1965 4576 7794 950345 3749 950 1636 225 257 4000 1250 2750 4000 4000 4000 4000 225 24482 16 17 10 10 1 A108 A112 Scale Checked by Drawn by Date Project number Building C-Floor Plan Project Gas Station Herzing College 15Monika Sami A105 50 1 Building C-Floor plan BUILDING C Door Schedule Family Mark WidthHeight Level Comments Count Single-Flush 950 2100Level 1 BUILDING C 1 Single-Flush 950 2100Level 1 BUILDING C 1 Single-Flush 950 2100Level 1 BUILDING C 1 Single-Flush 950 2100Level 1 BUILDING C 1 Single-Flush 850 2100Level 1 BUILDING C 1 Single-Flush 850 2100Level 1 BUILDING C 1 M_Overhead-Rolling 16 2435 1981Level 1 BUILDING C 1 Door-Garage-CHD-303-I-Steel-Single17 2438 2438Level 1 BUILDING C 1 Window Schedule Family MarkHeightWidthCommentsCount Louver_Screen_HZ-200_Po ttorff 102000700Building C1 C KEY PLAN No.DescriptionDate UP 9 9 10 10 11 11 12 12 2 A107 E E G F F A110 Maintenance auto 8 Sanitaire 9 Stockage Stockage A109 A109 A109 A109 4500 4500 4912 13912 9553 4363 5105 5105 8334 14 15 11 13 12 WA1 A108 Level Level 2500 Level 5000 6 7 8 9 10 11 12 Parapet 5300 300 2500 2500 5300 3559 45 46 11 50 Building D-Floor Plan 1 50 Buildibg D-Section 01 BUILDING D Door Schedule Family MarkWidthHeightLevelCommentsCount Single-Flush 118502100Level 1BUILDING D1 Single-Flush 128502100Level 1BUILDING D1 Single-Flush 138502100Level 1BUILDING D1 Single-Flush 458502100Level 1BUILDING D1 Single-Flush 468502100Level 1BUILDING D1 M_Overhead-Rolling1424351981Level 1BUILDING D1 M_Overhead-Rolling1524351981Level 1BUILDING D1 Level 1 Level 2 2500 Level 3 5000 D Fondation 00 -1200 E Parapet 5300 F 15 2500 1200 1936 5620 9 10 11 12 A107 E E G F F A108 9915 4462 5674 13288 10534 527 706 3069 3268 4415 4415 3559 8.63 1 50 1 Building D-Section 02 1 50 2 Building D-Roof Plan
PLAN BUILDING C PLAN BUILDING D ROOF PLAN BUILDING D PLAN
PROJECT
STATION
SITE

No.DescriptionDate

DETAILS & CONSTRUCTION DRAWINGS | 02 Level 1 0 Level 2 2500 Level 3 5000 E Parapet 5300 F 300 2500 2500 5300 15 Level Level 1 0 Level 2500 Level 2 2500 Level 5000 Level 3 5000 Fondation 00 -1200 Fondation 00 -1200 Parapet 5300 Parapet 4 5300 300 2500 2500 1200 6500 5300 Level 1 0 Level 2 2500 Level 3 5000 E Parapet 5300 F WA1 300 2500 2500 5300 Level 1 0 Level 2 2500 9 10 11 12 WA1 10 11 Scale Checked by Drawn by Date Project number 1 50 2023-04-03 12:21:52 PM Building DElevations Project Number Gas Station Herzing College 15-03-2023 Monika Agarwal Sami Youssef A109 50 Building D-Elevation A 50 Building D-Elevation 50 Building D-Elevation C 50 Building D-Elevation B KEY PLAN No.DescriptionDate BRICK 75MM AIR GAP 25MM OSB PANEL 75MM METAL FLASHING LIGHTWEIGHT CONCRETE PANEL AIR SPACE PANEL 75MM AIR GAP MM BRICK 75MM flashing backer rod and caulk fastener alco panel Level 1 0 Level 2 2500 Level 3 5000 Fondation 00 -1200 Parapet 4 5300 Level 1 0 Level 2 2500 Fondation 00 -1200 Scale Checked by Drawn by Date Project number As indicated 2023-04-03 12:21:53 PM Wall Details Project Number Gas Station Herzing College 15-03-2023 Monika Agarwal Sami Youssef A110 1 10 2 Foundation & Brick Wall 1 : 10 4 Masonry wall & alluminium No.DescriptionDate Parapet Flashing Fiberglass Batt Insulation Metal Deck Batt Insulation Brick Metal Tie Brick 90*57*90 I beam steel structure 2 layer waterproofing membrane Rigid Insulation Fire retardant wood fibre Rain Gutter Plywood capping 15mm Brick 90*57*190 Fiberglass insulation Air Barrier Metal deck Brick Tie Batt Insulation Gypsum Board Beam steel structure Rigid Insulation Waterproofing membrane Level 1 0 Level 2 2500 Level 3 5000 A Parapet 4 5300A112 4 A Parapet Flashing Aluminium Panel Air Space Air Barrier Fibrocement Panel Rigid Isulation Fiberglass Batt Isulation Compound Ceiling Fire Retardant Water Proofing Rigid Insulation Vapour Barrier Metal Deck I Beam Structure Herzing College 1 10 1 Garage Roof with Rain gutter 1 50 2 Section 02 1 10 3 Garage Roof with Rain Gutter 1 25 4 Detail 4 No.DescriptionDate Rain Gutter Plywood capping 15mm Brick 90*57*190 Fiberglass insulation Air Barrier Metal deck Brick Tie Batt Insulation Gypsum Board Beam steel structure Rigid Insulation Waterproofing membrane Level 1 0 Level 2 2500 Level 3 5000 A Parapet 4 5300A112 4 A Parapet Flashing Aluminium Panel Air Space Air Barrier Fibrocement Panel Rigid Isulation Fiberglass Batt Isulation Compound Ceiling Fire Retardant Water Proofing Rigid Insulation Vapour Barrier Metal Deck I Beam Structure Scale Checked by Drawn by Date Project number Roof Details Gas Station Herzing College A112 1 : 10 1 Garage Roof with Rain gutter 1 : 50 2 Section 02 1 10 3 Garage Roof with Rain Gutter 1 : 25 4 Detail 4 No.DescriptionDate GYPSUM WALL BOARD 16MM PLYWOOD 16MM OSB PANEL 75MM FIBRE CEMENT 15MM WOOD STUD 2X6 @ 600C/C 150 MM BACKER ROD & CAULK 4MM ALLUMINIUM PANEL BRICK 75MM AIR GAP 25MM OSB PANEL 75MM METAL FLASHING LIGHTWEIGHT CONCRETE PANEL AIR SPACE GYPSUM WALL BOARD 16MM PLYWOOD 16MM OSB PANEL 75MM AIR GAP 25 MM BRICK 75MM WOOD STUD 2X6 @ 600C/C 150 MM flashing backer rod and caulk fastener alco panel Level 1 0 Level 2 2500 Level 3 5000 8 Fondation 00 -1200 Parapet 4 5300 A110 1A111 2 Level 1 0 Level 2 2500 Level 3 5000 8 Fondation 00 -1200 Parapet 4 5300 A110 3 Level 1 0 Level 2 2500 12 Fondation 00 -1200 A110 2 Scale Checked by Drawn by Date Project number As indicated 2023-04-03 12:21:53 PM Wall Details Project Number Gas Station Herzing College 15-03-2023 Monika Agarwal Sami Youssef A110 1 : 10 1 Alluminium panel wall 1 10 2 Foundation & Brick Wall 1 10 3 Masonry wall 1 10 4 Masonry wall & alluminium 1 50 5 alluminium section 1 100 6 brick section 1 : 100 7 Section 13 No.DescriptionDate GYPSUM WALL BOARD 16MM PLYWOOD 16MM OSB PANEL 75MM FIBRE CEMENT 15MM WOOD STUD 2X6 @ 600C/C 150 MM BACKER ROD & CAULK 4MM ALLUMINIUM PANEL BRICK 75MM AIR GAP 25MM OSB PANEL 75MM METAL FLASHING LIGHTWEIGHT CONCRETE PANEL AIR SPACE GYPSUM WALL BOARD 16MM PLYWOOD 16MM OSB PANEL 75MM AIR GAP 25 MM BRICK 75MM WOOD STUD 2X6 @ 600C/C 150 MM flashing backer rod and caulk fastener alco panel Level 1 0 Level 2 2500 Level 3 5000 8 Fondation 00 -1200 Parapet 4 5300 A110 1A111 2 Level 1 0 Level 2 2500 Level 3 5000 8 Fondation 00 -1200 Parapet 4 5300 A110 3 Level 1 0 Level 2 2500 12 Fondation 00 -1200 A110 2 1 : 10 1 Alluminium panel wall 1 : 10 2 Foundation & Brick Wall 1 10 3 Masonry wall 1 : 10 4 Masonry wall & alluminium 1 : 50 5 alluminium section 1 100 6 brick section 1 100 7 Section 13 PANEL 75MM FIBRE CEMENT 15MM BACKER ROD & CAULK 4MM ALLUMINIUM PANEL GYPSUM WALL BOARD 16MM PLYWOOD 16MM OSB PANEL 75MM AIR GAP 25 MM BRICK 75MM WOOD STUD 2X6 @ 600C/C 150 MM flashing backer rod and caulk fastener alco panel Level 1 0 Fondation 00 -1200 A110 1 Level 1 0 Level 2 2500 12 Fondation 00 -1200 A110 2 Scale Checked by Drawn by Date Project number As indicated 2023-04-03 12:21:53 PM Wall Details Project Number Gas Station Herzing College 15-03-2023 Monika Agarwal Sami Youssef A110 1 : 10 2 Foundation & Brick Wall 1 : 10 3 Masonry wall 1 : 10 4 Masonry wall & alluminium 1 : 100 6 brick section 1 : 100 7 Section 13
FOUNDATION & BRICK WALL DETAIL MASONRY WALL DETAIL ALLUMINIUM & WALL DETAIL ALLUMINIUM PANEL DETAIL GARAGE ROOF WITH RAIN GUTTER DETAIL BUILDING D ELEVTION BUILDING D ELEGREEN ROOF WITH RAIN GUTTER DETAIL ROOF WITH PARAPET 3D VIEW ROOF WITH PARAPET DETAIL WALL DETAIL

EXHIBITION CENTER

PROJECT

PROJECT :- EXHIBITION CENTER

SITE :- MONTREAL,QUEBEC,CANADA

THE TOTAL SITE AREA 5599.93 sq mt AND REQUIRED BUILTUP AREA 3230.22 sq mt.

Time Duration : 3 weeks

Software : Revit, Photoshop, Autocad,Indesign

The site is located in downtown area of city Montreal near place des arts. Analyzing from the master plan of Montreal, the area is a mixed land use type area, with many institute buildings , office buildings and also some recreation buildings. Being close to the town center, existing amenities and the famous place des arts, a historical icon and significant part of the community, the site offers a unique design opportunity to tie into the existing street front development.

03
LOCTATION
SITE
SITE PLAN N

EXHIBITION CENTER| ACADEMIC

03
| SECTION AA’
SECTION BB’
FRONT ELEVATION SIDE ELEVATION ROOF PLAN
FIRST FLOOR
3D VIEW 3D VIEW

LANDSCAPE DESIGN

PROJECT :- LANDSCAPE DESIGN

SITE :- MONTREAL, QUEBEC, CANADA

SITE AREA : 5480 SQ.MT.

Time Duration : 3 weeks

Software : Autocad, Lumion, Sketchup, Photoshop, Indesign

The project is located in Montreal, CANADA. The site is situated in Place-des-aarts sector Place des Arts is a major performing arts centre in Montreal, Quebec, Canada, andthe largest cultural and artistic complex in Canada. The core idea of design inspried by surrounding context based on “ music ”. The site is divided in five segments, each segment defines activity.

PROJECT

04
3D VIEW
SITE LOCTATION

LANDSCAPE DESIGN| ACADEMIC

Legend

01. Children’s Play Area

02. Water Fountain

03. Amphitheatre

04. Semi Covered Seating Area

05. Seating Area

06. Walking Track

SITE PLAN
|
01 04 05 06 05 03 02 02 02 02 01 The Pargola seating Pargolas are used for the semi covered seating places, it also can work as community seating too. The seating area
area
the requirement of the public space so that it can be used as amphitheatre too.
The
is designed considering
Tree seating design
3D VIEW
04 N
Small water fountain
3D VIEW

CAFE DESIGN

PROJECT :- CAFE DESIGN

SITE

:-

MONTREAL, QUEBEC, CANADA

Time Duration: 2 weeks

Software: Autocad, Sketchup, photoshop, indesign

The cafe is designed on the french theme of interior. the design focuses on the natural light , color balance and furniture is designed according to the french theme. the ceiling of the restaurant is designed using the local available materials which makes this cafe more towards the sustainable design.

PROJECT

05
FLOOR PLAN

THE CEILING OF THE CAFE IS DESIGNED WITH THE WOOD AND IT ALSO HAVE THE HANGING PLANTERS IN IT WHICH MAKES IT MORE CONNECTED TO THE NATURE.

THE CHAIRS ARE DESIGNED USING THE CANE AS MATERIAL WHICH IS EASILY AVAIALBLE AND A SUSTAINABLE MATERIAL.

THE FLOORING IS OF MOSAIC TILES AND THE TABLE TOP IS BEING CUSTOMIZED USING TERAZZO AS THE TOP MATERIAL FOR TABLE.

THE BAR STOOL IS FINISHED WITH THE BRAS MATERIAL AND THE LEATHER FABRIC.

CAFE DESIGN

| ACADEMIC | PARTITION DESIGN PARTITION DESIGN
CHAIR DESIGN
DESIGN
05
CHAIR DESIGN BAR STOOL DESIGN
CEILING
BAR TABLE TABLE DESIGN

PROJECT DETAILS:

AREA- 550 sq.ft.

LOCATION - SURAT, GUJARAT, INDIA

CONTEXT - THE LONG RECTANGULAR SPACE WHICH OFFERS A BEAUTIFUL PANORAMIC VIEW ALLOWING LINEAR DIVISION OF THE SPACE AS PER THE NATURE OF THE FUNCTION.

CLIENT BRIEF - THE REQUIREMENT WAS TO HAVE SPACES FOR DISCUSSION, CLIENT MEETINGS, VENDOR INTERACTIONS AND FEW CORNERS TO DESIGN AND THINK.

WITH AN INCLINATION TOWARDS SUSTAINABILITY, THE SITE OFFERS SOOTHING NORTH LIGHT WHICH IS BEING CAPTURED BY THE SPACE. THUS KEEPING MIND THE SUN PATH AND SITE ORIENTATION THE WORK STATIONS ARE ORIENTED ALONG THE GLASS FACADE TO UTILIZE MAXIMUM DAY LIGHT AND AVOID USING ARTIFICIAL LIGHTS.

06 IT OFFICE
PROJECT
ISOMETRIC PLAN Legend 1. Conference Room 2. Staff Working Area 3. Discussion Area 4. Toilet SUN PATH
VIEW
ISOMETRIC

Free Standing Switchboard

Necessity is the mother of all invention. The conserved old railing post is converted into a switch board at the entrance for the better accessibility.

The Partition

The partition at the entrance is made by reusing and recomposing old doors to create and interesting visual barrier, consciously conserving and experimenting.

The Rotating Unit

To add functionality, an overhead unit above the working desk facilitates accessibility and communication and also acts like storage. The work desk is a cantilevered piece of furniture designed such that it helps the team to collaborate.

The Conference table

Minimalism is deeply rooted in the firm’s design philosophy and thus the conference table is designed to reflect the same minimalism and thus the conference table is designed.

The Light Design

Extracting from the contemporary pergolas for their siagraphy, the light design is made out of simple aluminium pipes, birch ply & simple LEDs creating interesting shadow on the ceilings.

At the entrance an old authentic parsi window adds to the character & aligns to the design ideology of the studio.

SECTION BB’ SECTION AA’ ELEVTION
Indian Sotone Entrance Epoxy Flooring Color Pallete Bamboo Curtains Zinc Texture Brich PLY MATERIAL PALETTE SECTION CC’
IT OFFICE | 2015-2016 | SITE PHOTO 06

PROJECT

PROJECT DETAILS:

AREA –600 sq.ft

LOCATION– KARJAN, GUJARAT, INDIA

CLIENT BRIEF –

THE REQUIREMENT WAS TO MAKE AN EXCLUSIVE RETAIL CHOCOLATE BUYING EXPERIENCE FOR A PREMIUM  CONFECTIONARY BRAND ON HIGHWAYS THAT WILL EXTEND THEIR DISTRIBUTION CHANNELS.

COMPANY IS OPERATING UNDER TWO BRAND NAMES; SCHMITTEN AND HOPPITS WITH DISTINCT BRAND CHARACTER WHICH ARE TO BE PLACED UNDERONE ROOF WITH CONSISTENT RETAIL DESIGN FOR OTHER RETAIL OUTLETS.

THE FOCUS HAS TO BE ON CONSUMER ENGAGEMENT AND EXPERIENCE WHICH GARNERS MORE BRAND AWARENESS & VISIBILITY WITH PREMIUM LOOK & FEEL.

07 CHOCOLATE
STORE DESIGN
SUN PATH ISOMETRIC PLAN Legend 1. Cafe Area & Cash Counter 2. Hoppits Despenser 3. Merchandising 4. Schmitten Disply
SITE PHOTO CHOCOLATE STORE DESIGN | 2016-2017 | FRONT ELEVTION CONSTRUCTION DETAIL SECTION AA’ CONSTRUCTION DETAIL Cafe Window WindowSection Main Door Main Door Idea Dispenser Setion Schmitten Tray Detail Chocolate Dispenser Schmitten Tray Light Fixture Ceiling & Flooring 07

PROJECT

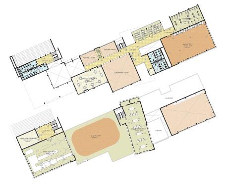
PROJECT :- INSTITUTION FOR SPORT CENTRE.

SITE :- UMARWADA, SURAT, GUJARAT, INDIA

THE TOTAL SITE AREA 19,320.00 sq.mt. AND REQUIRED BUILTUP AREA 8,900.00 sq.mt.

PROGRAM :- DESIGNING A SPORTS CENTRE ADHERLING TO THE CITY LEVEL CROWD. THE MAIN FOCUS WAS THE FOOTBALL GAME WITH ITS OWN TRAINING FACILITIES.

CONCEPT :- DESIGN SIMPLER CIRCULATION AND EASILY ACCESSIBLE SPACES.

A

08
SPORT COMPLEX
SITE PLAN
B C D
C’ D’ B’ N
HIERARCHY OF SPACES

SPORT COMPLEX | ACADEMIC

3D VIEW SECOND FLOOR PLAN SECTION DD’ SECTION AA’ SECTION BB’ SECTION CC’ FIRST FLOOR PLAN | 08

EXECUTIONS

09 SITE
PROJECT
SITE EXECUTIONS | 2014-2022 | 09

Turn static files into dynamic content formats.

Create a flipbook
Issuu converts static files into: digital portfolios, online yearbooks, online catalogs, digital photo albums and more. Sign up and create your flipbook.