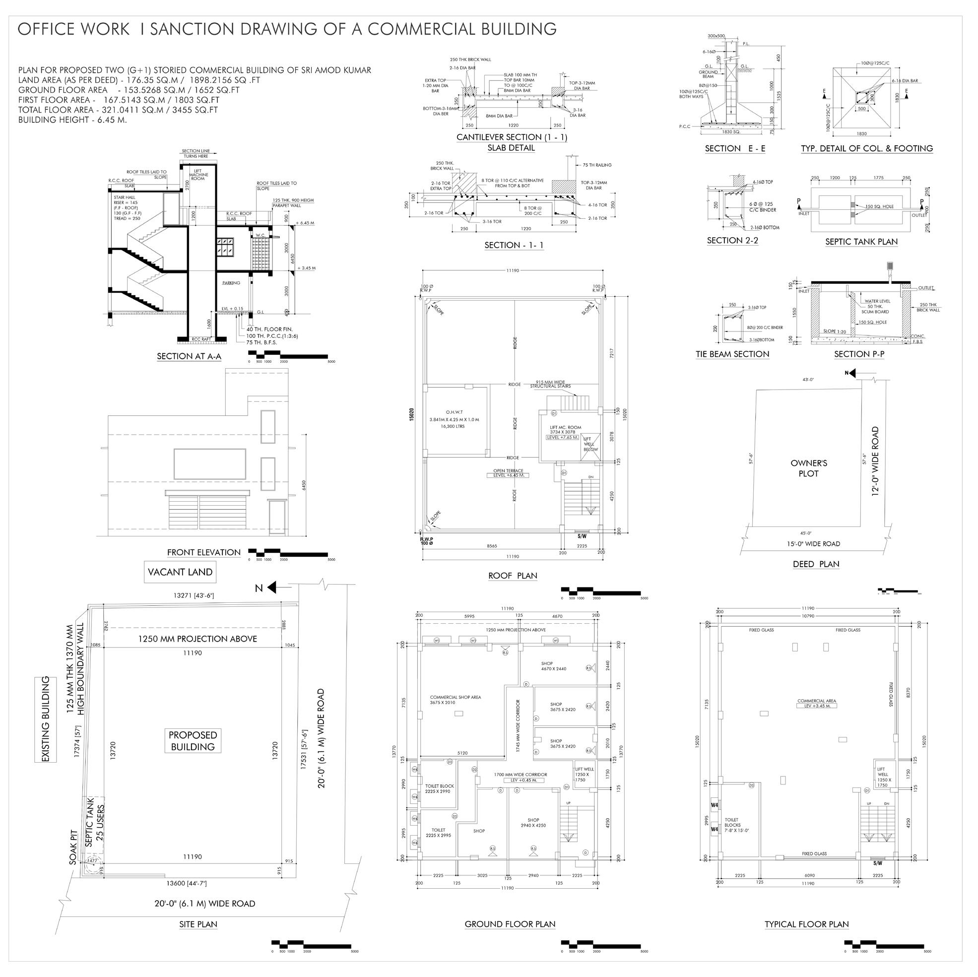
Introducing a carefully curated selection of works from an ambitious and talented architectural undergraduate. This portfolio showcases the impressive journey of growth and development over the past four years. From early concept sketches to detailed technical drawings, each project is a testament to the creativity, technical skill, and attention to detail that this student has honed over their time in school. Featuring a range of projects including residential, commercial, and institutional designs, this portfolio demonstrates a deep understanding of the role of architecture in shaping our built environment. Through a mix of digital and physical media, the student has brought their ideas to life with a keen eye for aesthetics and functionality. This collection of works is sure to impress and inspire anyone interested in the world of architecture.