Portfolio Agustina Pugliese

Page 1


- CV - trAbAjos de VisuAlizACión ArquiteCtóniCA - FormACión

Arquitecta recibida con formación complementaria en diseño de interiores y docente.

Con experiencia en desarrollo de proyectos ejecutivos, y atención al detalle.

Información personal

30 años - 5 . 10 . 1994 cel. - 096606135 aguspugliese1@gmail.com

Agustina Pugliese

Formación académica

- Arquitecta, FADU, UdelaR – 2021 - Diseñadora de interiores, ORT.

-Secundaria y bachilleratoLiceo Juan XIII y Colegio y Liceo Miguel de Cervantes Saavedra.

Herramientas

Documentación técnica y planos: AutoCAD, Revit.

Modelado 3d: Sketchup, Revit.

Renderizado y visualización: V-Ray, Lumion, Twinmotion.

Diseño gráfico y presentación: Adobe Illustrator, InDesign, Photoshop.

Experiencia Laboral

Estudios de Arquitectura

- 2023 - actual. Estudio Hassen Balut Proyecto ejecutivo y coordinación, Hotel San Rafael, Cipriani.

- 2021 - 2023 - Estudio SPRECHMANN, Dibujo técnico, proyecto ejecutivo y visualización arquitectónica. (Arquitectura hospitalaria y residencial.)

- 2020 - 2022 - Estudio VAMO, Dibujo técnico, proyecto ejecutivo, diseño de interiores y visualización arquitectónica, visitas de obra. (Arquitectura residencial, oficinas/cowork)

Docencia

- 2024, 2025 - Taller 5, Licenciatura de diseño de interiores ORT.

- 2024, 2025 - Diseño 4, Tecnicatura de diseño de interiores ORT.

- 2023 - Taller 3 y Taller 7, Licenciatura de diseño de interiores ORT.

- 2021- Ergonomía y Diseño Digital, Licenciatura y Tecnicatura de diseño de interiores ORT.

Proyectos independiete

- 2024 - Visualización arquitectónica para Edificio Niran con Arq. Florencia Manfrú.

- 2024 - Visualización arquitectónica para Casa en Pueblo mio.

- 2023 - Visualización arquitectónica para Arquitecta Carolina Del Zotto. Contacto: cadelzotto@gmail.com

- 2022 - 2023 - Profesional independiente. Reforma de cocina en Montevideo, Ampliación y reforma de vivienda en el interior. Proyecto y dirección de obra.

- 2019 - Colaboración en construcción de maqueta para el edificio Tempo. Equipo: Arq. Adolfo Seguí, Bach. Agustina Pugliese, Bach. Florencia Manfrú.

Concursos y cursos

- 2022 - curso de REVIT arquitectura en CADIT.

- 2022 - curso de Presupuestación de Obra, en Constructivas

- 2019 - Concurso de vivienda, Casa de Arquitectura Rifa. equipo: Florencia Manfrú y Agustina Pugliese

- 2018 - Concurso de vivienda, Casa de Arquitectura Rifa. equipo: Carolina Del Zotto, Florencia Manfrú y Agustina Pugliese

- 2022 - Viaje académico de Arquitectura, generación 2013.

- 2014 - IX BIAU,Bienal iberoamericana de arquitectura y urbanismo. +

- 2018 - Concurso espacio público “las pioneras”equipo: OMM arquitectura, Arq. Gastón Carcavallo, Arq. Adolfo Seguí, Arq. Ernesto Pelayo, Bach. Federico Bermudez, Bach. René Martinez, Bach. Florencia Manfrú, Bach. Agustina Pugliese, Lic. Ayelén Gandolfo.

Portfolio

https://issuu.com/apugliesec/docs/portfolio

VISUALIZACIÓN ARQUITECTÓNICA

Agustina Pugliese

2024 - Visualización Arquitectónica para Arq. Carolina del Zotto.

Florencia Manfrú - Agustina Pugliese

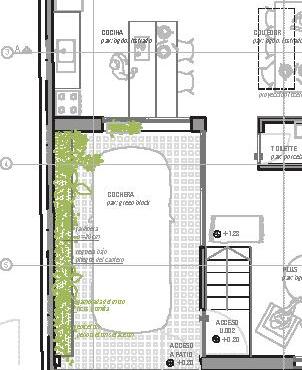
2023 - Visualización Arquitectónica para Arq. Carolina del Zotto. Agustina Pugliese

2023 - Visualización Arquitectónica para Arq. Carolina del Zotto. Agustina Pugliese

2021 - Visualización Arquitectónica, interiores de viviendas de distintos proyectos para estudio.

2021 - Visualización Arquitectónica, interiores de oficinas para estudio

Agustina Pugliese

2021

- 2020-2021 - FADU, TFC, PÚBLICO, Reactivación urbana - Taller Berio

- 2019 - FADU, Concurso de vivienda, Arquitectura Rifa.

- 2019 - ORT, Taller 5, Rehabilitación y diseño interior, mercado

- 2018 - FADU, Proyecto Edilicio Avanzado - Taller Danza

- 2018 - FADU, Concurso de vivienda, Arquitectura Rifa

2020-2021 - FADU, TFC, PÚBLICO, Reactivación urbana - Taller Berio

2019 - FADU, Concurso de vivienda, Arquitectura Rifa. Florencia Manfrú y Agustina Pugliese

FLORENCIA MANFRÚ AGUSTINA PUGLIESE

2019 -

ORT,

Taller 5, Rehabilitación y diseño interior, mercado

2018 - FADU, Proyecto Edilicio Avanzado - Taller Danza

Malla

Estructura perimetral de terraza, pilares metálicos de alma llena de (13x13cm), continúan el ritmo de pilares inferiores.

terraza +9,50 m

Viga reticulada

Paneles (corredizos y policarbonato translúcido

Viga PNC

Placa de GRC

Aislación térmica

Pilar metálico de alma llena (30x30cm)

cancha polideportiva +3,25m

Ventilación e instalaciones tèrmicas dentro de espesor de la viga

Abertura de aluminio DVH con inyección de aire para evitar condensaciones

Pavimento exterior

Muro de contención, revestido de placas de GRC

piscina -3,25m

Malla electrosoldada (protección frente a impactos)

Placa de GRC

Pavimento antideslizante

Losetas pretensadas (protección frente a impactos)

Gradas, escalones de 50 cm Gradas, escalones de 50 cm

Piscin

2018

- FADU, Concurso de vivienda, Arquitectura Rifa. Carolina Del Zotto, Florencia Manfrú y

USOS / PROGRAMA / FLEXIBLE

ter reno

grilla

sólidos

Sólidos

Privados Públicos

Expansión Patio verde Plus

Turn static files into dynamic content formats.

Create a flipbook
Issuu converts static files into: digital portfolios, online yearbooks, online catalogs, digital photo albums and more. Sign up and create your flipbook.