Annika Olson Selected Works Portfolio

Page 1

ARCHITECTURAL PORTFOLIO “NOTHING NEW “ WORKSTATIONS (1 OF 2)
A SELECTION OF DYNAMIC OBSESSIONS. ANNIKA OLSON aolson@olsonweb.com 214-930-5526 ThisTRANSPARENCY throughdiagramexploresthelinesofsight theglazing museumTheassemblyofthe dividedintocomponents.solidandtransparent
INTERIORS The Basement 04 40 AARHUS STUDY ABROAD STUDIO Thesis 03 28 ARCHITECTURE STUDIO WORK Mobile Performing Arts Center 06 20 The Organism 01 1 The Riverwalk 05 38 CONTENT ENTER Nothing New 02 12

01 LIVE AARHUS

SPRING 2022

This project explores the idea of a building that is occupied by an “organism.” This organism takes the shape of a web that crawls through the ceiling space and stretches across the light wells to be visible to those underneath. The web acts as seating during the day, and a glowing light at night. Bright orange polycarbonate panels angle to allow for views to the outside and bring some of the color and playfulness of the city of Aarhus to the site. The interior consists of a food hall with 12 stalls and seating, and a second floor patio that overlooks the city to the northeast. The paved park underneath creates a public space with more seating, and extends to a playground across the street.

/ Live Aarhus

“I want to make it uncomfortable — for the philistine, for the boring architect, for the person who wants his building to be predictable.”

Live Aarhus
/
BREATH OF AARHUS Works by Peter Cook and photography from the Aaros museum.

REINFORCED CONCRETE ROOF

ORANGE POLYCARBONATE PANELS

6 Olson Architectural Work
FOOD STALLS AND CORRIDORS / Live Aarhus
Architectural Work Olson 7 Live Aarhus /
GROUND FLOOR PLAN FIRST FLOOR PLAN
8 Olson Architectural Work
SALLING INSIDE OUT A dynamic study of the Salling Mall rooftop in Aarhus. FACADE PLAY The facades of the Vesterbro Kiosk and Vingummi store in Aahus. / Live Aarhus
Architectural Work Olson 9 Live Aarhus /
EAT/ PLAY The food hall functions as a community center as well as an eatery. The ramp and park underneath act as a beacon point of entry.

THROUGH THE WEB

The web is a shell made of recycled plastic. The same module repeats itself to make fabrication easier. LED lights on the inside of the web make it glow at night.

UNFOLDING THE INSIDE

AND UNDERNEATH

/ Live Aarhus
Architectural Work Olson 11 Live Aarhus /
STREET VIEW SECTION THROUGH LIGHTWELLS SECTION THROUGH MAIN STAIR

02 NOTHING NEW

ARCH THESIS SPRING 2024

“Nothing New” takes textile waste that is dropped off at select locations across suburban Atlanta and recycles this waste through 8 specific laboratory types. Each lab has a separate focus , from paper-making and felting to creating bricks with fabric. These laboratories are encompassed into a public experience with corresponding “Lab/bars,” where patrons are able to create samples of the products created in each laboratory. Transparency of process for consumer education decides the partition types between laboratories and public circulation. The project also explores the decline and subsequent abandonment of the suburban “big-box stores,” such as department stores and hardware stores which may now act as the shell that holds these experiences.

Precedents for the project include the OR no more fast fashion lab in Accra, Ghana, and Fab-brick, which both transform textile waste into small architectures and new creations.

/ Thesis: Nothing New

Thesis: Nothing New /

DISPOSAL. The 10 largest landfills in the world fueled by textile waste. The United States alone discards 11-15 million tons of clothing every year. Meanwhile, the fast fashion industry has moved away from a traditional twoseason year to producing 52 collections per year; one for every week to keep up with consumer demand.

COLLECTION. Clothing is collected to be recycled from bins located in suburban shopping areas across the city of Atlanta, Georgia.

ATRIUM. The atrium of Nothing New houses the vertical circulation that moves alongside garment conveyors. These conveyors move textiles between floors and represent the increasingly rapid ciculation of garments from cradle to grave. / Thesis: Nothing

New

THE BIG BOX.

The concept of the “box store” serves to integrate retail and warehouse spaces to create large-scale shopping experiences.

In recent years, many major retailers have been quietly closing hundreds of locations, leaving them to deteriorate.

What if these empty spaces could be repurposed for textile recycling? An open plan could allow for flexibility in textile sorting and product development, as well as creating material cycles where spaces can be adapted to recycle different materials accordingly. Some alterations will be necessary, such as installing industrial ventilation systems and plumbing for certain areas. Overall, these buildings seem well-suited to act as recycling warehouses that could also provide a public experience.

imagery is displayed across the city to awarenessspread for the program.

Thesis: Nothing New /
CAMPAIGN. Campaign

Recycled modular shelving for product storage.

LABORATORIES

The 8 lab types that recycle textile waste.

Screen-printing machine.

PAPER-MAKING

SCREEN-PRINTING

BOARD-MAKING

MATERIAL SAMPLES- fabric board.

Hand-made samples of multi-purpose shredded-textile based boards that are made in the board-making laboratory. These boards were made by mixing glue or concrete with shredded, low-durability fabrics, which are comprised of material blends such as polyester, viscose, nylon, or acrylic. The boards may be used for creating small architectures, such as display panels, or for creating large screen-like partitions with supports.

16 Olson Architectural Work
FABRICSHREDDING Re-rolled fabric-covered ventilation. Industial fabric shredders. Deckle and molding station.
/ Thesis: Nothing New

MATERIAL SAMPLES- fabric brick.

Hand-poured 12”x16” bricks made of two varied mixtures of concrete and shredded low-durability fabrics that are made in the brick-making laboratory. An adaptable mold allows for size variation of the brick if desired. The bricks can be used for creating small, modular furnishings or small fabric-brick partitions.

FABRIC RE-ROLLING

FELTING

WEAVING

BRICK-MAKING

Nothing New /

Architectural Work Olson 17
Small and large bolt storage. Sewing machine stations. Large industial loom. Knitting frames. Industrial rug rack for large panel storage. Needle-felting machine. Rolling machine. Industrial ovens for curing. Garage doors for large product transportation. Molding and pouring station. Thesis:

FIRST FLOOR

Private spaces are denoted by a light blue shade and separated from the rest of the experience by a varietey of partitions that allow for views into the laboratory processes. Few permanent divisions are used to allow for flexibilty as laboratory demands will change with season and supply. The architecture is meant to encourage the user to wander throughout these spaces in no particular order; a mimicry of the leisure of the typical “shopping” experience that most are used to. The first floor houses the largest laboratories, and most importantly the fabric-shredding laboratory, which is creates the base for every other lab type.

Shredded fabric is exported from to the other labs using rolling carts and garment racks which move between floors.

18 Olson Architectural Work
Re-rolling lab/bar. Paper-making lab/ bar. Long-term storage. Fabric-shredding lab extension. Fabric-shredding laboratory. Fabric-shredding lab/bar. Rotating displays. Paper-making lab. Brick-making lab.
/
Nothing New
Front desk and main entrance.
Thesis:

Felting laboratory.

Weaving laboratory. Panel-making laboratory.

Screen-printing laboratory.

Weaving lab/bar.

SECOND FLOOR

Storage and workshop.

and

Classrooms.

Workstations. Offices.

Storage.

PARTITIONS.

Each partition type is created with textile waste. They are chosen with consideration for transparencies, adjacencies, interaction, and wandering.

Brick-making lab/bar. Weaving lab/bar.

THIRD FLOOR

Classes in sewing, clothing maintenance and repair, weaving, and papermaking are offered to the community to encourage longer consumption cycles and to support the increasing interest in various types of craftsmanships.

LAB/BARS.

The lab/bars combine the familiar appearance and socialization of the bar with the unfamiliar processes of the laboratories to create an interactive experience where customers may learn how to create recycled textile products, such as fabric bricks, small weavings, and paper. Lab/bars are each associated with a laboratory type, and are chosen for their ease of fabrication or curing time.

Nothing New /

Architectural Work Olson 19
Fabric screens Recycled fabric panels Re-rolled fabric curtains Spool seating Fabric bolt bins and racks Modular fabricpanel storage Counter-tops islands Large fabric bolts
Thesis:

FIRST FLOOR Brick-making lab/bar perspective

Thesis: Nothing New

20 Olson Architectural Work
/

CONTEXT SECTION COLLAGE A visual representation of the eventual circulation of textiles from the Nike store nextdoor to Nothing New.

Thesis: Nothing New /

SECOND FLOOR Circulation and weaving lab/bar perspective view. SEWING First floor sewing lab/bar perspective view.

03 REST IN RICHNESS

This project was the culmination of the interior architecture program. This is an adaptive reuse of the Pelouze building in downtown Chicago, which currently serves as an office building, to become an extended-stay hotel. I began by returning to the basic principles of the surface and object, within the context of the interior. What is a surface? What is an object? Can some things be defined as both? I explored the concept of one unified surface that acts simply as circumstance for the objects of the space, which in turn act as a cue for the designated activity of the space. I decided the most important activity to designate in a home and hotel in particular is rest. My proposal aims to create a place of refuge within the city, where people can come to unwind after a long day. A monochromatic palette of layering creates an interior lanscape of unanimity that gains informational richness upon closer inspection. This expanse of the interior is contrasted by rich insertions of ornamental tapestries that draw the occupant to these spaces of refuge and encourage a subliminal relaxation within what the body recognizes as familiar.

22 Olson Architectural Work
in
/ Thesis: Rest
Richness

“OBJECTS OF THE LOBBY”

This diagram shows the components of the lobby that fall in the “object” category, including the original mushroom columns, arch interventions, and bar cubbies.

Thesis: Rest in Richness /

Architectural Work Olson 23

Thesis: Rest in Richness

24 Olson Architectural Work
BUILDING SECTION THROUGH LIGHTWELLS 2 BED + 1 BED
PLAN
LOBBY FLOOR PLAN
UNIT FLOOR
/

Thesis: Rest in Richness /

Architectural Work Olson 25
TYPICAL RESIDENTIAL FLOOR PLAN

EXPANSE

Light grey wash

INTERVENTION EXPANSE

Ornamental back splash

The grey wash becomes every surface

The light well interior is a white tile that reflects light down through the building

INTERVENTION

EXPANSE

The armoire is enveloped into the walls and expressed as part of the surface.

The light well has “windows” that reflect natural light into the corridor. Ancestral headboard

INTERVENTION

Ornamental day bed

“THE EXPANSE AND ITS INTERVENTIONS” section through 2 rooms and the lightwell in between.

26 Olson Architectural Work
/ Thesis: Rest in Richness

“INTERTWINED” An unfolded surface drawing showing the layering of the expanse and its ornaments from the double-height lobby to the corridor.

Thesis: Rest in Richness /

Architectural Work Olson 27

repeated“AXONOMETRICPALETTE”Thisaxonofthe interventionstwo+onebedmoduleportraysthe ofrestandtheobject,orornamentpalettefortheproject.

30 Olson Architectural Work
“FLEETING SURFACE” Model photograph of the kitchen with sun-lit projections from the light well. “SLEEPING LUMINESCENCE” Model photograph of the light well in the bedroom. “HIDDEN VIEWS” Model photograph of the ornamental detailing in the bedroom. “RENEWAL IN INCLUSION” Model photograph showing the partnership of light and pattern in the room. “SMALL WEAVINGS” An unfolded surface drawing showing original ideas of material in the rooms. “WARMTH OF SLATE” Model photograph of the living space envelopment.

04 THE BASEMENT

The Basement is an adaptive reuse of an abandoned brick-shell building in downtown Atlanta. The project began with the occupation of the shell with a construct: a wild sculpture inspired by the sights, sounds, and complexity of hip-hop. This construct breathed new life and purpose into the space- a recording studio for free use for the hip-hop loving Atlanta community.

The studio consists of seven studios as well as multi-purpose spaces. Each studio was born from a theme or aesthetic that is relevant to the genre, and serves as a portal to a strange world where anything is possible.

/ The Basement FALL 2022
Architectural Work Olson 33
The Basement /
THE PINK FANTA STUDIO

THE CONSTRUCT

The construct lives in every corner of the building- either as a scultural piece of interest, or as an integrated component such as a seat or a bookshelf.

B 1 2 3 R
/ The Basement
Architectural Work Olson 35
The Basement /
LOBBY SECONDFLOOR

The Basement

PLATINUM STUDIO / TROPHY ROOM
ASPEN STUDIO

EXTENSION: The Construct is refelcted on the exterior as an emblematic beacon.

LOOKING WITHIN : The Construct occupies the ceiling planes of the atrium, and serves as seating in some areas, The studios occupy the basement, second, and third floor for acoustic quality. The Basement /

05 THE RIVERWALK

FALL 2023

Located in downtown Columbus, Georgia on the Chattahoochee River, this mixed-use housing complex consists of “S” shaped units that piece together so that the patios and large windows face the riverwalk or the city. The units stack on top of the retail on the first floor, and include 36 units of one bed, two bed, and studio apartments. The stagnant riverwalk is activated with small, short-term retail shopping units, two restaurant and bar patios, and a dock.

38 Olson
/ The
VIEW FROM THE RIVERWALK
Riverwalk

SITE PLAN

Architectural Work Olson 39 The Riverwalk /

THE FUNDAMENTAL UNIT

creates a double height space and a patio for the unit above when stacked

The formation activates both the north/south and east/west axes. Amenities and retail fit in the remaining pockets of space below and adjacent to the units.

40 Olson Architectural Work / The Riverwalk

Stacking the studio, one bed, and two bed.

Occupiable windows extrude from the original form facing the best views and introducing a new motion to the facade.

This diagram shows the recognition of Columbus’ railroad history in the landscaping of the short-term retail modules.

Architectural Work Olson 41 The Riverwalk /

ELEVATION VIEW FROM CAMPUS

ELEVATION VIEW FROM THE STREET

NORTH-SOUTH SECTION

EAST-WEST SECTION

42 Olson Architectural Work/ The Riverwalk
Architectural Work Olson 43
RIVERWALK FIRST FLOOR: Residential and Amenities The Riverwalk /

06 MOBILE PERFORMING ARTS CENTER

SPRING 2023

Located in the heart of Mobile on Dauphin Street, this Performing Arts Center has a primary focus on dance, with a theatre for performances and two practice studios. There is an emphasis on the separation of public spaces, such as the theatre and community room, and private spaces, such as rehearsal spaces and dressing rooms, which is experienced in the curves of the glass curtain wall and the roof which serve to shrink the spaces as they become more private. The undulating screen is made of perforated aluminum and each panel twists to open to specific public spaces, such as a dance studio and community space on the third floor.

NORTH-SOUTH SECTION

Integrating structure, life safety, and environmental controls. This studio emphasized structural details and environmental controls throughout the design process, exploring how they affect the design of a building.

Mobile
Performing Arts Center /
/ Mobile Performing Arts Center

Completedstructureassemblycontainingscreenframework,steel structure,andthereinforcedconcretetheatre.

Mobile Performing Arts Center
/
Axonometricoftheglazingbehindthescreen

ACCU Variable Refrigerant Flow System

DOAS Unit (one for theatre and one for remaining spaces)

VRF 2-Way Cassette Unit ENVIRONMENTAL CONTROLS

Third Floor Occupancy- 500

Door Width Required- 70’

Second Floor Occupancy- 223

Door Width Required- 70’

First Floor Occupancy- 550

Door Width Required- 80’

/ Mobile Performing Arts Center

Metal Gravel Stop and Peripet #077100

Aluminum Screen Supporting Structure #088813

Structural Steel Framing #051200 and Applied Fire protection #078100

Argon-Insulated Glass #088813

Aluminum Mullion System #081216

Steel Decking #053100 and Exposed Concrete Flooring #321316

Structural Steel Framing #051200 Root Angles to Head of Glass Mullion #081216 Aluminum 4- Way Spider Fixing #081216 Argon- Insulated Glass #088813 Glass Fin System #088813 Restraining Box #081216 Exposed Concrete Flooring #321316
FACADE
Mobile Performing Arts Center /
Shallow Column Foundation Substructure
BREAKDOWN

NORTH ELEVATION:

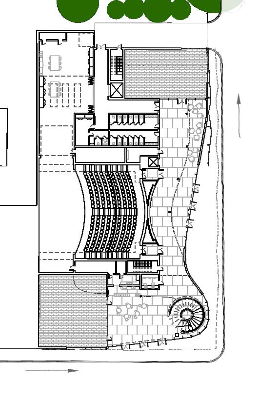
FIRST FLOOR PLAN: main volumes of the plan.

/ Mobile Performing Arts Center

THE WAVE The geometry of the floor plan is inspired by the movement of dance; the theatre entrance and balcony above curve to the main entrance where the spiral stair dances through each floor.

Mobile
LOBBY AND CAFE
Performing Arts Center /
THEATRE ENTRANCE
“NOTHING NEW “ CLASSROOMS (2 OF 2)

Turn static files into dynamic content formats.

Create a flipbook
Issuu converts static files into: digital portfolios, online yearbooks, online catalogs, digital photo albums and more. Sign up and create your flipbook.