Skip to main content

PORTAFOLIO DE TRABAJOS ARQ

Page 1

PORTAFOLIO ARCHITECTURAL DESIGN

ARQ EN FORMACIÓN: ANTONIO JOSÉ HERNÁNDEZ

EL DISEÑO ARQUITECTÓNICO ES EL INICIO DE TRANSFORMACIÓN DE LA VIDA REAL

CONTENIDO:

SEMESTRE I

Ÿ Composición abstracta positivo - negativo.

Ÿ Composición - teoría de los 9 cuadros.

Ÿ Proyecto final - composición abstracta basada en un personaje.

SEMESTRE II

Ÿ Composición abstracta del componente cultural.

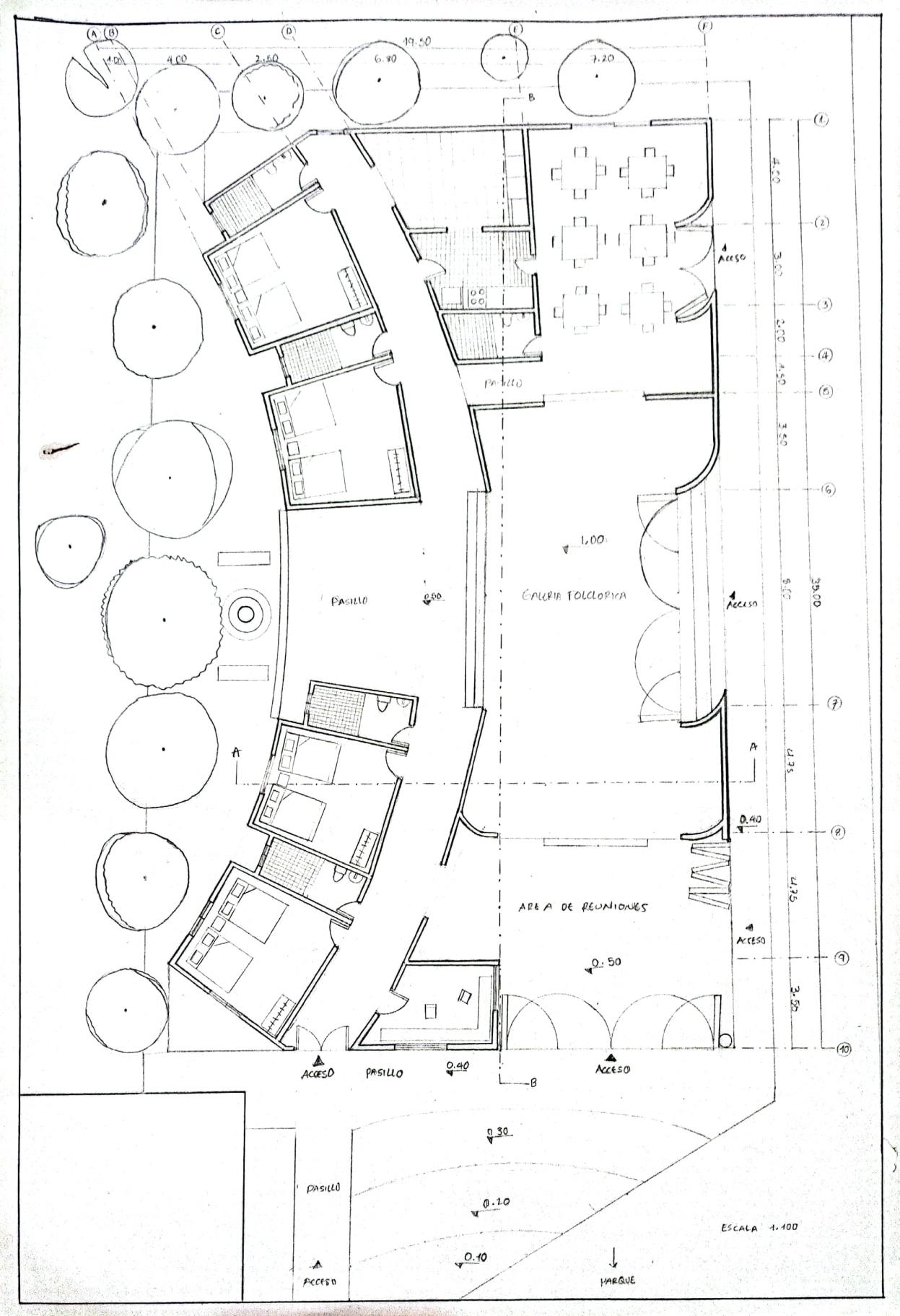
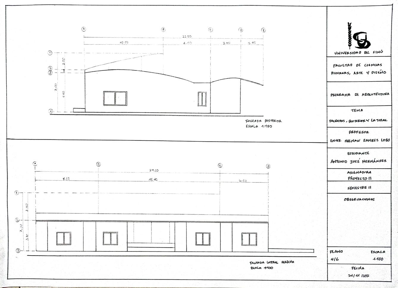
Ÿ Proyecto final - Hostal.

SEMESTRE II

Ÿ Proyecto final - complejo ecoturistico.

SEMESTRE II

Ÿ Proyecto final - Viviendas de interés social.

SEMESTRE I

COMPOSICIÓ POSITIVO - NEGATIVO

Se diseñó 3 composiciones de manera abstracta, donde se viera reflejado el concepto de positivo - negativo, se escogió una de ellas para la composición tridimensional

COMPOSICION ESCOGIDA

La composición tridimensional se compone por elementos de plano seriado, cuerdas que reflejan un poco el concepto de ejes y la relación entre volúmenes que están en la composición.Así mismo se puede apreciar una armonía entre los elementos de la composición y su forma arqueada que se compone entre ellos.

COMPOSICIÓN TRIDIMENSIONAL

COMPOSICIÓ - TEORIA DE LOS 9 CUADROS

El diseño de esta composición se basa en las formas arquitectónicas y elementos decorativos del arquitectoAntoni Gaudí.

La principal inspiración para sus obras arquitectónicas es en la naturaleza, el estudio a las formas orgánicas de la naturaleza, buscando un lenguaje para plasmarlo en la arquitectura, lo cual utilizo las superficies regladas y formas geométricas irregulares.

OBRAS REPRESENTATIVAS DEL ARQ ANTONI GAUDÍ

PARC GUELL EL PORTAL MILLARES LA VILLA QUIJANO

COMPOSICIÓN FINAL INSPIRACIÓN PARA DISEÑO

Ÿ Formas orgánicas

Ÿ Formas geométricas

Ÿ Formas regladas

Ÿ Relación de volumen

Ÿ Curvas

Ÿ Armonía de colores

Ÿ Texturas

Ÿ Lo natural

PROYECTO FINAL - COMPOSICIÓN ABSTRACTA BASADA E UN PERSONAJE

MAQUETA

SEMESTRE II

COMPOSICIÓN ABSTRACTA DEL COMPONENTE CULTURAL

Para la propuesta de diseño se realizó una composición abstracta de elemento que representan las fiestas (el fandango, las carreras de caballos y el festival del acordeón) en base a esta composición abstracta se tomaron ideas para el diseño del proyecto.

En esta composición abstracta vemos un elemento jerárquico que a partir de el se distribuyen demás elementos a su alrededor, esto representa la tarima de baile de fandango, las formas curvas representan los movimientos de las vestimentas en el baile, los elementos planos que van de forma diagonal representan las carreras de caballos y los elementos de la parte izquierda representan el acordeón

Después de todo el proceso de la evolución de diseño. finalmente se obtuvo esta composición, agregando y quitando elementos para que la propuesta de diseño fuese contundente.

el cilindro que es el elemento jerárquico se hizo mas grande para que se notara la jerarquía los elementos que representan el acordeón se le dio la forma del acordeón y se le agregaron elementos intercalados y por ultimo los elementos que representan las carreras de caballos se le agregaron elementos horizontales en representación a los caballos.

HOSTAL
PROYECTO FINAL -

SEMESTRE III

PROYECTO FINAL - COMPLEJO ECOTURISTICO

FACHADA FRONTAL. PLANTA ARQUITECTONICA.

FACHADA POSTERIOR.

CORTE TRANSVERSAL A-A

U-01 N PLANOS DEL PROYECTO. ARQUITECTURA. 01/06/2022 FACULTAD DE CIENCIAS HUMANAS, ARTE Y DISEÑO. III EXPRESIÓN III HERNADEZ ARTEAGA ANTONIO JOSE. JUAN JOSE SMITH BEDOYA 1/2

SEMESTRE IV

PROYECTO FINAL - VIVIENDAS DE INTERES SOCIAL

Turn static files into dynamic content formats.

Create a flipbook