Portfolio 2024

Page 1

2

SOMMAIRE

Curriculum Vitae

Projets de Licence 3 (2017)

Auberge de jeunesse

MédiAthèque

Projet de Master 1 (2018)

reconvertir une bAse Aérienne

Projet Final d’Etude de Master 2 (2019)

redynAMiser une université

Projet Professionnel Agence Cardin Julien (2020)

«LA PArcelle» : bibliothèque et centre coMMunAutAire

Projets Professionnels Agence AME Architecture (2021-2023)

PlAce d’ArMes

PlAteAux de bureAux

Illustrations

créAtions divers

Affiches de théâtre

dessins d’Architecture

3
p4
p6
p26
p40
p44
p48
p14

Antoine Imbert

Né le 04 Mai 1995 à VersAilles, FrAnce (29 Ans)

Adresse : 5-7 rue des Montiboeufs, 75020 Paris

MAil : imbert-antoine@outlook.fr

PortAble : +33 (0)6.61.92.95.37.

Formations :

MAster d’Architecture : 2017 - 2019

Ecole Nationale Supérieure d’Architecture de Paris Val-de-Seine, Paris

Licence d’Architecture : 2014 - 2017

Ecole Nationale Supérieure d’Architecture de Paris Val-de-Seine, Paris

ClAsse PréPArAtoire LittérAire : 2013 - 2014

Blanche de Castille, Le Chesnay

BAccAlAuréAt EconoMique et SociAl : 2013

Lycée Saint Jean Hulst, Versailles

Logiciels :

AutoCAD

Revit

SketchuP

Adobe PhotoshoP

Adobe Indesign

Langues :

EsPAgnol b1

AnglAis c1

Experiences Professionnelles :

Assistant Chef de projet : 2021 - 2023 (3 ans)

Agence AME Architecture, Paris, France

Dessinateur Projeteur : 2020 (1 an)

Agence Cardin Julien, Montréal, Canada

StAge de licence : 2017 (3 mois)

Agence Architectia, Paris

Job étudiAnt : 2016

Hôte d’accueil à la Fondation Louis Vuitton, Paris

StAge chAntier : 2015

Association Rempart, rénovation d’un château

StAge d’observAtion : 2011

Cabinet Dangy Architecte, Paris

4
5

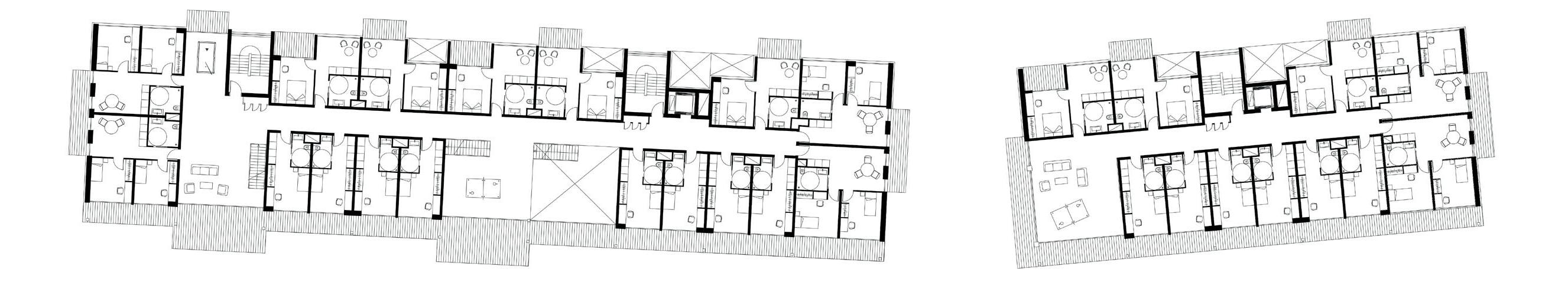
AUBERGE DE JEUNESSE

Revit, photoshop

Ce projet, ayant pour cadre le quartier de Montmartre à Paris, avait pour objet la réalisation d’une auberge de jeunesse. Ces équipements manquent dans la capitale, notamment dans ce quartier touristique très animé. Cet exercice était l’occasion de repenser l’auberge de jeunesse , en tentant de renouveler la manière de concevoir l’hotellerie bon marché.

En plus de leurs prix attractifs, les auberges de jeunesse attirent aussi car elles sont des lieux de rencontre et de partage pour

les jeunes. La contrepartie est souvent un confort moindre.

Ici la configuration des chambres offre un confort qui se rapproche du modèle d’un hotel classique. Elle ont chacune leur salle de bain particulière et accueillent six personnes au maximum.

J’ai aménagé des espaces communs généreux et ouverts sur l’extérieur. Quant aux espaces de circulation ils sont tournés vers le coeur de la parcelle et profitent de la lumière apportée par la cour intérieure.

Projet de Licence 3 ( durée : 3 Mois )

Le traitement extérieur du bâtiment est fait principalement de zinc, matériaux typique des toitures parisienne.

En plan le bâtiment est composé de deux parties : l’une donne sur la rue et constitue la façade principale de l’auberge tandis que l’autre, plus petite, se glisse le long des escaliers. Le décalage entre les deux parties de l’auberge laisse un espace libre sur le croisement et offre une ouverture visuelle sur la cour intérieure depuis le carrefour.

6
Photo de la parcelle existante

L’auberge s’ouvre sur le carrefour.

R+4 1/100

Orientation

Dynamique Plan Masse 1/250

1/100

R+1 1/100

R+1 : Les espaces communs

R+3 1/100

R+2 : Etage courant

R+4 1/100

8 Bureau 1
Cuisine
Buanderie Espace Détente
Bagage Ménage Stock Café Bureau 1 Bureau 2 Cuisine
Poubelle
Ménage 1/100

Orientation

Dynamique

9
Coupe sur la rue

MÉDIATHÈQUE

Revit, photshop

Situé dans la petite ville d’Epernon ce projet à pour objet la réalisation d’une médiathèque. La parcelle se trouve légèrement en dehors de la zone urbanisée dans un cadre très végétal. Un cours d’eau passe en contrebas du site , ce qui implique également un risque, même faible, de crue et de légère inondation.

Les principaux enjeux de mon projet furent donc de penser un bâtiment qui s’appuie sur ce contexte particulier tout en offrant

aux usagers un dialogue privilégié avec ce cadre. Le bâtiment est composé de deux ailes : l’une, totalement libre est consacrée aux usagers, l’autre, plus cloisonnée, est dédiée aux différents services et aux employés.

Dans cette parcelle étirée, les deux parties de la médiathèque se développent en longueur en glissant l’une sur l’autre et créent un décalage qui ouvre vers la végétation.

L’ entrée dans la médiathèque se fait par le centre via un cheminement qui se glisse

Projet de Licence 3 ( durée : 3 Mois )

entre les deux ailes et se poursuit vers l’autre extrémité du site

Constuit entièrement en bois de la structure au parement, le bâtiment souhaite s’intégrer au mieux à son environnement boisé. La forme simple avec un toit en double pente est une réference à l’architecture vernaculaire ,typique de la région.

Vue aérienne du site existant

10

L’arrivée à la médiathèque se fait par un ponton qui flotte au dessus des hautes herbes

Plan de la médiathèque

13
Coupe dans le foyer central

BASE AÉRIENNE

Autocad, photshop, dessin à la main

Projet de Master 1 (durée : 5 Mois ) en collAborAtion Avec l’ institut d’AMénAgeMent des territoires, d’environneMent et d’urbAnisMe de reiMs

A proximité de la ville de Reims (à environ une heure de Paris) la Base 112 est une ancienne base aérienne à l’abandon depuis 10 ans.

De conception militaire, l’ensemble des bâtiments est encore en parfait état et est adaptable à des usages variés. L‘enjeu de ce projet, réalisé en groupe, fût de réinterpréter cet ensemble en tentant d’y implanter une nouvelle commune et en se basant le plus possible sur l’existant.

La base est composée de nombreux types d’ édifices comme des hangars, des baraquements ou des locaux administratifs. Ces différents types de bâtiments ont permis différentes reconversion

Dans le but de densifier la base et de permettre l’implantation de commerces et d’une population plus conséquente, il a également fallu inventer un nouveau style d’habitat.

Master plan

14

Quatre types de voies ont été imaginées afin de réadapter le tissu viaire à la nouvelle commune. Les voies principales sont accessibles à tous les véhicules et sont bitumées. En revanche les voies secondaires sont piétonnes et uniquement ouvertes aux véhicules d’urgence. Le but est de garder autant que possible les voitures en périphérie des zones residentielles.

15
Le réseau routier

Pour ce nouveau type d’habitat, nous voulions éviter le modèle des quartiers pavillonnaires monotones et aseptisés. Nous avons donc fait le choix d’un schéma d’expansion urbaine laissant plus de place à l’aléatoire.

Par exemple l’implantation des maisons se fait en fonction de l’emplacement choisi par son voisin et non de manière arbitraire. Ainsi la forme du quartier est-elle variée et facilite-t-elle les échanges et le partage.

En ce qui concerne le logement en lui même nous sommes partis sur un exemple basique d’habitation. Nous avons imaginé un système qui permet de décliner leurs formes et de faciliter les extensions. La maison peut ainsi évoluer en fonction des besoins du foyer.

16

Vue d’ensemble des nouveaux quartiers

17
18
19 RDC R+1

Les baraquements ou «LC» sont de longs et étroits bâtiments qui accueillaient l’ensemble des militaires dans des séries de chambres accessibles depuis une circulation centrale.

Etant donnée que leur fonction d’origine est le logement il est apparu pertinent de reconvertir ces structures en habitations.

Les cages d’escaliers sont ainsi retirées afin de diviser les LC en 3 parties, chaque partie étant composés de 3 logements sur deux étages. Ainsi ces grands édifices monotones sont-ils transformés en alignements de petits pavillons.

L’espace séparant chaque LC permet d’implanter les jardins ou les potagers de chaque pavillon.

20

Vue sur les jardins des LC

21

Enfin la dernière typologie de logement s’est faite à partir d’anciens hangars préfabriqués. L’idée ici est de conserver en partie la fonction utilitaire du lieu en créant des logements pour artistes ou artisans.

Composés de deux ailes chacun, les hangars sont organisés entre une partie «habitat» et une partie «atelier». Dans chaque entité trois logements de 100 m² peuvent accueillir trois artistes et leur famille. La partie atelier est entièrement ouverte et partagée afin de favoriser les échanges.

Grâce au plan libre de ces hangars une grande liberté dans l’aménagement est possible. Ainsi de nombreuses variantes sont-elles possibles et chaque famille adaptent son espace habitat comme elle le souhaite.

22

Les ateliers sont en contact direct avec le logement

23
24

Première version Deuxième version

Coupe transversale des ateliers d’artiste

25

REDYNAMISER L’UNIVERSITÉ

Autocad, photshop, dessin à la main, lasercut

Ma dernière année d’étude s’est articulée autour d’un seul projet situé à proximité de mon domicile à Versailles.

Je souhaitais réaliser un projet qui puisse me confronter à des problématiques concrètes liées au territoire et au rapport entre le quotidien d’un quartier et son architecture.

J’ai choisi comme site d’intervention le campus de l’université des sciences de Versailles installé dans un grand parc arboré au coeur d’un quartier résidentiel.

L’établissement souffre actuellement d’un grand manque de visibilité et d’un certain enclavement. Encaissé dans son contexte urbain et naturel, il est resté en marge, comme un simple équipement , sans réelle influence sur son territoire.

Projet Final d’Etude de Master 2 ( durée : 9 Mois )

Aujourd’hui davantage lieu de passage que lieu de vie, ce pôle étudiant possède pourtant un fort potentiel. Ses 3500 etudiants peuvent devenir de vrais acteurs du quartier et le campus peut trouver un nouveau dynamisme en nouant des liens plus étroit avec son environnement proche.

Pour cela mon projet s’est orienté vers une double intervention urbaine et architecturale. Le premier volet a pour but de mieux intégrer le campus au tissu urbain en modifiant l’espace public alentour.

Le deuxième volet, plus architectural, vise principalement l’exploitation des deux espaces en friche du campus afin d’y implanter de nouveaux usages. Ces deux terrains se trouvent en limite du site et constituent donc une nouvelle image du campus et un nouveau contact avec la ville.

26

Le parking du campus

Un fort dénivelé

Des arbres remarquables

27 Plan
Un terrain de sport abandonné 4 4 3 3 2 2 1 1
de situation

Perméabilité

Visibilité Interventions

Nouvelle dynamique

Zoomsurleslogements

29
ia n t s Zoomsurlegymnase 1 1 2 2 3 3 4 4
étud

Le parking de l’université est aujourd’hui implanté dans un ancien réservoir d’eau potable, construit en 1764. La valeur patrimoniale du lieu est peu exploitée et le site se trouve séparé du reste du campus par une large avenue.

En lieu et place de ce parking je suis venu implanter un équipement sportif qui vient mettre en valeur les quatre murs en pierre de taille (ici en rouge ) et donner une nouvelle visibilité au lieu. Cette partie du site est indépendante du reste du campus et permet donc un accès libre à cet équipement.

L’ensemble de l’édifice s’organise de manière à toujours avoir une vue sur l’exterieur ou le réservoir. A tous les niveaux les anciens murs sont omniprésents. Le contact est physique au premier niveau car les murs constituent les limites des terrains de pratique. Aux niveaux superieurs le contact est visuel depuis les circulations ou les gradins.

Situé en haut d’une colline le bâtiment offre également des vues sur Versailles notamment depuis son toit où l’on trouve un bar et d’autres terrains de sport.

30
Plan RDC Gymnase
Le gymnase surplombe la rue Façade sur rue

Le toit accueil également des terrains de sport

Trois grandes salles composent l’équipement

32

Depuis les gradins, les murs du réservoir sont omniprésents

Le projet de logement étudiant se développe à proximité du terrain laissé vague au coeur du campus. Situé sur la limite ouest de l’université, ce projet vient redessiner les contours de celle-ci afin de la connecter davantage au quartier qui lui est frontalier.

Une nouvelle entrée est percée, encadrée par les deux ailes de la résidence étudiante.

Le rez de chaussée est laissé quasiment libre afin que l’on puisse deviner l’université depuis la rue. Une allée intérieure permet d’accéder aux entrées de la résidence ainsi qu’à des salles de travailconstruites dans le dénivelé du terrain.

Le rez-de-chaussée est fait de béton et le corps du bâtiment est constitué d’une struc-

ture poteau poutre en bois. La base du bâtiment inspire donc la solidité tout en étant très perméable. Les niveaux supérieurs, qui accueillent les chambres, sont conçus avec un matériau plus léger et naturel. Cet équipement est intégré à la ville tout en étant tourné vers le campus, il marque une transition entre ces deux espaces qui n’ont pas le même statut.

Le Rez de chaussée libre permet une frontalité plus douce sur la rue

34

Les salles de travail font face au rez de chaussée de la résidence.

Etage courant : La circulation centrale qui dessert les chambres est rythmée par des espaces de détente

Le bâtiment constitue une nouvelle limite

36
37
La nouvelle cafétéria domine le campus Collocation Chambre individuelle Studio / Chambre pour couple

Les espaces communs en terrasse sont tous en double hauteur

38

Les logements étudiants donnent sur un nouvel espace paysager

«LA PARCELLE»

Autocad, sketchup, photshop

En 2019 Cardin Julien a répondu à un appel d’offre de la ville de Laval pour un projet incluant une bibliothèque, un centre communautaire et un poste de police. Choisie parmi plusieurs candidats, la firme a démarré la phase de conception un mois après mon arrivée.

Au bout de quelques semaines d’échanges trois idées satisfaisantes se sont dégagées : Ecomoprhose, Assemblage et Parcelle. La dernière de ces trois idées me fût confiée avec pour but de concrétiser cette esquisse en un projet concret.

Dans la logique d’une réflexion sur le modèle des bâtiments agricole s j’ai voulu amener le projet vers une organisation très rationnelle. Le bâtiment s’est ainsi rapidement divisé en deux ailes dont les formes simples avec un toit en double pente sont des références aux hangars typiques de la ville.

Réalisation chez Cardin Julien (durée : 2 Mois )

L’une est consacrée à la bibliothèque et l’autre dédiée au centre communautaire ainsi qu’au poste de police. Cette séparation stricte du programme s’explique ici par ma volonté de développer des volumes plus réduits qui semblent plus accessibles et plus familiers depuis l’extérieur.

La cour intérieure ouverte sur le jardin amène nature et lumière au cœur du programme. Grâce à leur finesse les deux entités sont traversantes sur toute leur longueur et offrent un dialogue privilégié entre elles mais aussi avec le cadre végétal du site.

J’ai passé du temps à jouer sur les volumes et sur la manière de les creuser ou de les dimensionner. Même si la forme est simple il m’a fallu de l’abnégation pour trouver une forme harmonieuse sans que la symétrie des deux barres soit trop parfaite.

40

Vue aérienne du projet

42 Plan
du projet
shématique

L’entrée, signalée par un silot, se glisse entre les deux «rangs» qui composent le projet

PLACES D’ARMES

Autocad, sketchup, photshop

Réalisation chez AME Architecture (durée : 2 Mois )

La Brigade des Sapeurs-Pompiers de Paris (BSPP) à fait appel à nos services dans le cadre de la restructuration de la caserne de la ville de Valenton.

Ce projet conciste en la réalisation d’une place d’armes au centre du site.

Vaste étendue minérale, la place d’armes accueille les différentes cérémonies et inspections des troupes. La BSPP est l’unique brigade dont les membres ont le statut de militaire.

Ici le choix a été fait d’une surface en béton désactivé. La dalle est découpée en un cadrillage régulier pour donner un rythme et réduire l’échelle.

Le monticule central est existant et devait être conservé et mis en valeur sans rompre la rigueur du lieu. Il accueil un monument aux morts.

44

PLATEAUX DE BUREAUX

Chez AME la rénovation de plateaux de bureaux est l’un des principaux secteurs d’activités. Notre projet le plus important fût la reprise complète des 26 étages de la Tour Enedis à la défense.

Réalisation chez AME Architecture

46 CIRCULATION
AVANT APRES
47 OPENSPACE
AVANT APRES

ILLUSTRATIONS

Créations divers

48

Affiches de théâtre

49
Bartleby le scribe (2022) Premier voyage (2023) Festival Les 3 jours de Grestain (2024)

Dessins d’architecture

50
Granville (2024) Montréal (2023) Les Portes-en-Ré (2022)

Turn static files into dynamic content formats.

Create a flipbook
Issuu converts static files into: digital portfolios, online yearbooks, online catalogs, digital photo albums and more. Sign up and create your flipbook.