Architectural Project Portfolio

Page 1

Anthony Linville
Portfolio
Selected Works 2019-2022
3
02 03 Contemplative Center Academic - 2nd year The Aggieville Piazza Academic - 3rd year Museum Of Emotions Competition - 4th year 4
Projects
5
Contemplative

Contemplative Center

6

Program

The program for this project consisted of defining a set piece typology building that could primarily function as a mu seum while ultimately providing a quiet and calm place to relax and contemplate for visitors. The museum required a series of immersive exhibits to house the var ious Isamu Noguchi sculptures currently found within the Nelson Atkins Museum.

Views 7 Site Plan N N

Site

The site is located on East 48th St. in Kansas City, Missouri next to the Ewing & Muriel Kauffman Memorial Garden just shy south of the

its beautiful views from the hilltop, the prominent axis originating from the Nelson Atkins Museum to the north, and of course the directly adjacent mortuary garden. The Idea was to create a cross cantilevered structure with spaces throughout it tailored to enhance directly each Noguchi sculpture’s experience.

8
Basement Floor Plan 9 N Section A A A Office Elevator Office Office Meeting Room RR Storage Mech RR
B Ground Floor Plan 10 N B B Coat Check Elevator Desk Storage
Section

East Perspective

West Perspective

NE Perspective 11

Structural Diagram

Materials

Diamond Plate Zinc Roof

Steel Framing Encased in Aluminum Paneling

Site Cast Concrete

12
SW Perspective
13
14

View of Endless Coupling

View of Avatar

15
16
17 Aggieville

Aggieville Piazza

18

Structure Diagram

Site

This pre-existing site is a parking lot located on the intersection of Moro and 11th St. in Manhattan, Kansas. Surroundings include: commercial businesses, residential homes, and K-State’s college campus. This part of Manhattan is in a very vibrant area for the college town, making pedestrian traffic and an outdoor experience after wrapping up the adjacent bars an important consideration.

Site Plan N

Program

The program indicates a park that’s serviceable by the many food trucks in Manhattan as well as emulating the experience of an Italian piazza in the sense of a civic center. The goal was to create an atmosphere with some degree of enclosure that still responds to its surroundings while creating a welcoming environment for pedestrians.

Design

A level of Enclosure for the project was achieved through a raised plaza with thick stereotomic borders serving as fencing. The project contains a host of activities at the top of that plaza, not only food trucks but: play areas, seating for performances, and even a pavilion with covered seating spilling out of it. With help from vegetation the plaza is protected by line of sight and sound in order to provide people with an immersed sense of refuge.

20
N
Concept Enclosure Diagram
21
Floor Plan N A
Section A
22
23
24

South Elevation

West Elevation

25 East Elevation
26
27
28
29
30 Mueseum Of Emotions

The museum of emotions project is located in Downtown Manhattan, Kansas. The goal was to create a stronger sense of welcome to Manhattan than the adjacent Manhattan Discovery Center. For the Museum of emotion I was tasked to create two spaces that embody architecturally derived emotion.

31 Site & Program Pedestrian Traffic Views
Street S14th Site Plan
Houston

Design Concept

Shown in the diagrams, one of the big factors of the form of the building including the landscape was to create a response to the main road people come off when arriving in Manhattan. This was done with the negative space as that medium, while inversely on the northwest side responding to the urban environment through a strong rectilinear urban edge. Making the spaces read to the exterior through rough and sharp profiles for the negative while soft and circular for positive space allowed for an exterior response and the beginning of a story to be told through its form through function. The Positive space contained water and plenty of light due to it materializing as void to fit that experience. However the negative space materialized as a stereotomic mass that appeared to crash into the structure in hopes to use its impact crater as not only a usable outdoor amphitheater on the less noisy side of the building but to call for a creation of a moat surrounding to soften and stretch the transitional experience into a charged space with those implied emotions.

32
Pedestrian Traffic
S14th Street
VehicleTraffic
Discovery Center Mall Hotel

East Elevation

North Elevation

-North Elevation
33

West Elevation

Short Section

-
Section Perspective 34
Ground Floor Plan N
-35 N 1 1 13 14 2 2 3 4 4 5 6 7 9 10 11 8 8 Entry Reception Cafe Restrooms Janitors Closet Negative Hall Positive Hall Gallery Pedestrian Alley Parking Oudoor Auditorium Roof Garden Houston Street S14th Street Key 1 2 3 4 5 6 7 8 9 10 11 12 13 14
South Elevation
2nd Floor Plan N
36 N 1 1 13 14 3 11 6 7 9 11 12 10 10 10 2 9 Entry Reception Cafe Restrooms Janitors Closet Negative Hall Positive Hall Gallery Lunch Room Office Mechanical Roof Garden Houston Street S14th Street 1 2 3 4 5 6 7 8 9 10 11 12 13 14 Key
Long Section

Office Spaces

Cafe
37
Cross Laminate Timber
Polished Concrete
Timber
Aluminum Panels Steel Framing Construction Phase 1-3 Diagram
38
Structural Span Diagram
39
40

Service Spaces

41

Parking Approach

42
View of Alley

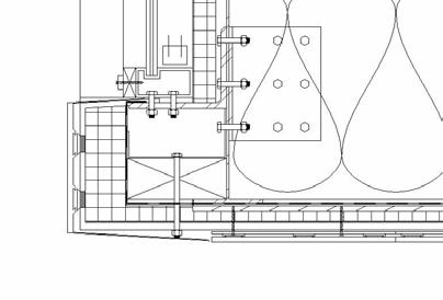
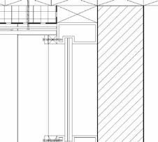
Roof Detail

Detail

Inquiry
2nd Floor
Area of
43
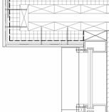
44Roofing Membrane Waterproofing Flashing Batten Panel Mounting System 5in Fasner CLT Ridgide Isulation Alumninum Panel Wood Blocking Steel Open Web Truss Steel Cables Aluminum Window Mullion Timber Battens Leuver Brackets Timber Vertical Leuvers Double Pane Glass Timber Backing Timber Dropped Ceiling Steel Wide Flange Column Hardwood Finshed Flooring CLT Timber Blocking Sheating Steel Wide Flange Girder Steel Wide Flange Ridge Beam Rigid Insulation Batt Isulation Bracket Plate Heater Bolted Connections Steel Curtain Wall L Plate Flashing Extruded aluminim Casing Waterproofing Steel C Channel Aluminum Panel System Concrete Slab (Sidewalk) Foundation Waterproofing 3’ Concrete Stem Wall Foundation Rigid Insulation Rebar Soil Finished hardwood flooring Rigid Insulation Plywood Subfloor Waterproofing Concrete Slab Floor J Bolt Ankers Foundation Detailed Window Mullion Casing Wall Section Detail
45

In between planes

46

Positive Space

47

Negative Space

48
Anthony Linvilleanthonylinville1@gmail.com

Turn static files into dynamic content formats.

Create a flipbook
Issuu converts static files into: digital portfolios, online yearbooks, online catalogs, digital photo albums and more. Sign up and create your flipbook.