ADP Final Design Report

Page 1

ARCHITECTURAL DESIGN PROJECT

Terminal 01 | Final Report | Dec 2022

Ong Kah

Content 01

Project Background

1.1 Site Introduction 1.2 Project Brief 02 Site Investigation & Contextual Studies 2.1 Macro Site Analysis 03

Design Strategy & Exploration

3.1 Micro Site Analysis 3.2 Precedent Study 3.3 Project 1A Panels 3.4 Design Narrative 3.5 Site Planning Strategies 3.6 Spatial Planning & Organisation

[3] [6] [10] [13] [24] [31] [32] [33] [38]

04

Environmental & Technological Strategies

4.1 BOMBA (Fire Safety Plan) 4.2 Architectural Detailing 4.3 Green Strategies & Features 05

Final Design Portfolio

5.1 Orthographic Drawings 5.2 Perspective Renderings 5.3 Final Panel Layout 06

Reflective Journal 07 References

[41] [47] [49] [50] [60] [67] [68] [69]

Terminal 01: Final Report Architectural Design Project Anson Ong Kah Kit
of
Bachelor
Science (Honours) in Architecture
[2]

Designer’s Profile

Education

2011-2016 SPM atHengEeHighSchool

Foundation in Natural & Built Environment at Taylor’s College Lakeside Campus 2019

Bachelor Of Science (Hons) In Architecture at Taylor’s University Lakeside Campus 2020-2022

Achievement

2020 Speaker

Taylor’s SABD Future Thinkers VIII

2021

Juries Selection

PAM The Virtual Student’s Work Exhibition Arc. Climation PAASWE 2021

Organizing Committee Taylor’s SABD Future Thinkers XII 2022

Anson Ong Kah Kit

Architecture should be fun, not just for the architect, but also for the end-user. Taking multiple designable elements that may not seemingly fit together and merging them together to create a new creation or genre.

Phone +6012-4803590

Email ansonongkk99@gmail.com ansonongkahkit@sd.taylors.edu.my

Locate Selangor, Malaysia Penang, Malaysia

Social Media Instagram: @anson_ong

Experience

Jun – Dec 2018 Indesign Engineerings Sdn. Bhd. (Internship) Assistant Site Manager

Dean’s List Award Awarded to CGPA above 3.5 2020-2022 Workshop & Exhibition

2022 33rd Architectural Student Workshop “MAKARA” Taylor’s University Delegate

Anson Ong Kah Kit

Bachelor of Science (Honours) in Architecture

Terminal
Final Report Architectural
01:
Design Project
Skills & Abilities Ability to Work In A Team Ability to Work Under Pressure Ability to Multitask Effective Time Management Communication Skills Leadership Skills Presentation Skills Revit Lumion Photoshop Sketchup Enscape AutoCAD Rhino Chinese English Malay
ISSU WIX [3]

01 Project Background

1.1 Site Introduction

IPOH

PERAK, MALAYSIA

Project 1A: Pre-Design Studies & Analysis ARCHITECTURAL DESIGN PROJECT [PRJ60408/ARC60108]

Terminal 01: Final Report Architectural Design Project Anson Ong Kah Kit Bachelor of Science (Honours) in Architecture
[4]

01 Project Background

1.1 Site Introduction

KAMPUNG JAWA, IPOH

1910 1945 1961 2022

Early settlement due to tin mining

Establishment of Ipoh Municipal Council. Formation of old and new town Ipoh City Council was formed Tourism

Anson Ong Kah Kit Bachelor of Science (Honours) in Architecture

Project 1A: Pre-Design Studies & Analysis ARCHITECTURAL DESIGN PROJECT [PRJ60408/ARC60108]

Terminal 01: Final Report Architectural Design Project
[5]

01 Project Background

1.2 Project Brief

Every city is dependent on mobility. Mobility enables people, goods, and ideas to move in, out and within our cities, whether on its roads or in the air. As size of urban centres continue to increase in span and density, mobility and accessibility is becoming a more pressing issue for a city’s residents. In today’s cities, journey times are increasing, and transport infrastructure is under greater pressure than ever.

Transit hubs are no longer simply a place where the traveller arrives or departs. The facilities in and around the hub make the area a destination itself and can provide a ripple effect that encourages investment in the area, generates new revenue streams and boosts wider prosperity.

The project is conceived to incorporate the fast flow of the travellers, as well as the slow flow of the visitors, providing accessibility for everyone at the area of immediate contact between two main streets in Kampung Jawa. The site has a significant location sit at the crossroads of Jalan Lim Bo Seng and Jalan Horley, with a bridge at the end of Jalan Lim Bo Seng, connecting the old town and new town of Ipoh.

The project is in a central plot, which was left undeveloped from the beginning and was a real break in the urban fabric of the city. Due to insufficient supply of social welfare and diversity of services (such as healthcare, house of authorities, tourist spots, institutions, residential area, food streets, entertainment hub and commercial area.), highlighting how the hub act as urban connector, a place not only of transport connection, but also of social interaction, bridging them together. Urban

Terminal 01: Final Report Architectural Design Project
Anson Ong Kah Kit Bachelor of Science (Honours) in Architecture
Project 1A: Pre-Design Studies & Analysis ARCHITECTURAL DESIGN PROJECT [PRJ60408/ARC60108] [6]
Grid

01 Project Background

1.2 Project Brief nodes

The Story Eatery - Marketplace

Terminal 01: Final Report Architectural Design Project
Anson Ong Kah Kit Bachelor of Science (Honours) in Architecture
Restoran Nasi Briyani Bukhara Pasar Karat (Sunday)
[PRJ60408/ARC60108] [7]
Miker Food D R Seenivasagam Recreational Park Beauty Garden Florist Restoran Chun Lai KFC Cockman corner Ming Court Hong Kong Dim Sum Tong Sui Kai
Project 1A: Pre-Design Studies & Analysis ARCHITECTURAL DESIGN PROJECT

Terminal 01: Final Report Architectural Design Project

01 Project Background

1.2 Project Brief

Trishaw food stall

Florist

Taxi pick-up

Bus stations

Tailor Kopitiam

Tailor

public transport significant cultural inheritance

Project 1A: Pre-Design Studies & Analysis ARCHITECTURAL DESIGN PROJECT

Anson Ong Kah Kit Bachelor of Science (Honours)
in Architecture
[8]
[PRJ60408/ARC60108]

01 Project Background

1.2 Project Brief

urban grid

topographical factor was insignificant in influencing the early layout

emphasised segregation of land based on their functions such as administration, commercial,residential

Diminishing of urban void as for social gathering

Street void as third place or social activities

Project 1A: Pre-Design Studies & Analysis ARCHITECTURAL DESIGN PROJECT

Anson Ong Kah Kit Bachelor of Science (Honours)
Terminal 01: Final Report Architectural Design Project
in Architecture
[PRJ60408/ARC60108] [9]

02 Site Investigation & Contextual Studies

2.1 Macro Site Analysis

path districts

Site as an activator to rejuvenate Kampung Jawa interlink the communities across both sides of the Kinta River

Utilising the potential of the interlinking bridge

Project 1A: Pre-Design Studies & Analysis ARCHITECTURAL DESIGN PROJECT

Terminal
Architectural
01: Final Report
Design Project Anson Ong Kah Kit Bachelor of Science (Honours) in Architecture
[PRJ60408/ARC60108] [10]

02 Site Investigation & Contextual Studies

2.1 Macro Site Analysis

Versatility of Trishaw sustain the past Jalan Lim Bo Seng.

Economy Transportation Social

similarities differences Project 1A: Pre-Design Studies & Analysis ARCHITECTURAL DESIGN PROJECT [11]

Not the form, But The Versatility functions of trishaw

Terminal
Final Report Architectural Design
01:
Project Anson Ong Kah Kit Bachelor of Science (Honours) in Architecture
1988
1962
Every Sunday
temporal versatility [PRJ60408/ARC60108]

02 Site Investigation & Contextual Studies

2.1 Macro Site Analysis

traces of trishaw as economy and transportation

Extension

Inner Space

Revitalise the sustainability of Kampung Jawa, reclaim its own pace with the rest of the Ipoh, through creating a versatile extension of inner space with better quality as third place.

with better environment Project 1A: Pre-Design Studies & Analysis ARCHITECTURAL DESIGN PROJECT

Terminal
Architectural
01: Final Report
Design Project Anson Ong Kah Kit Bachelor of Science (Honours) in Architecture
[PRJ60408/ARC60108] [12]

03 Design Strategy & Exploration

3.1 Micro Site Analysis

Architectural
Terminal 01: Final Report
Design Project Anson Ong Kah Kit Bachelor of Science (Honours) in Architecture
ARCHITECTURAL
PROJECT [PRJ60408/ARC60108] [13]
ad hoc culture extended kitchen area residents dry their cloths Project 1A: Pre-Design Studies & Analysis
DESIGN

Terminal

01:

Final

03 Design Strategy & Exploration

3.1 Micro Site Analysis

Report Architectural Design Project Anson Ong Kah Kit Bachelor of Science (Honours) in Architecture

long section study road shops drive way Inner court park school shops

SITE A

site

Project 1A: Pre-Design Studies & Analysis ARCHITECTURAL DESIGN PROJECT [PRJ60408/ARC60108]

[14]

03 Design Strategy & Exploration

3.1 Micro Site Analysis

Extension of inner space

relationship with the site

pasar karat road walkway

shops driveway walkway

inner court walkway

park Grand view hotel

Inner space as core, shaded human scale void as connection of interiority and exteriority, road as larger void to connect larger scale of exterior as temporal extension of inner space

Anson Ong Kah Kit Bachelor of Science (Honours) in Architecture

Project 1A: Pre-Design Studies & Analysis ARCHITECTURAL DESIGN PROJECT

Terminal
Architectural
01: Final Report
Design Project
[PRJ60408/ARC60108] [15]

Terminal

Final Report

03 Design Strategy & Exploration

3.1 Micro Site Analysis short section study

shops

SITE A shops shops shophouses road shophouses walkway walkway

Project 1A: Pre-Design Studies & Analysis ARCHITECTURAL DESIGN PROJECT [PRJ60408/ARC60108]

01:
Architectural Design Project Anson Ong Kah Kit Bachelor of Science (Honours) in Architecture
[16]

03 Design Strategy & Exploration

3.1 Micro Site Analysis

pasar karat pasar karat walkway

short section study

food court shops walkway

road shophouses walkway walkway

The higher the adaptability of the inner space, higher versatility of functions, the higher longevity of the space.

road shops alley walkway

Project 1A: Pre-Design Studies & Analysis ARCHITECTURAL DESIGN PROJECT

Terminal 01: Final Report Architectural Design Project
Anson Ong Kah Kit Bachelor of Science (Honours) in Architecture
[PRJ60408/ARC60108] [17]

03 Design Strategy & Exploration

Micro Site Analysis

serial vision

compartmentalization

Terminal 01: Final Report Architectural Design Project
Anson Ong Kah Kit Bachelor of Science (Honours) in Architecture
From Waller court To Jalan Idris Shah via Jalan Horley
[PRJ60408/ARC60108] [18]
3.1
Project 1A: Pre-Design Studies & Analysis ARCHITECTURAL DESIGN PROJECT

03 Design Strategy & Exploration

3.1 Micro Site Analysis

Cease to participate

What is the relationship of all the people, place and time?

Project 1A: Pre-Design Studies & Analysis ARCHITECTURAL DESIGN PROJECT [PRJ60408/ARC60108]

Terminal 01: Final Report Architectural Design Project Anson Ong Kah Kit Bachelor of Science (Honours) in Architecture
[19]
Social Dimension Morphology Dimension Functional Dimension Temporal Dimension PEOPLE Social behaviour TIME Diurnal Rhythm PLACE Functionality Social Dimension Morphology Dimension Functional Dimension Temporal Dimension Primitive Fixed Variables Change of Time Manipulated Variables Adaptable Responding Variables
ATILE Terminal 01: Final Report Architectural Design Project
Ong Kah Kit Bachelor of Science (Honours) in Architecture 03 Design Strategy & Exploration 3.1 Micro Site Analysis Project 1A: Pre-Design Studies & Analysis ARCHITECTURAL DESIGN PROJECT [PRJ60408/ARC60108] [20]
VERS
Anson

03 Design Strategy & Exploration 3.1 Micro

strategic location and green parts of Ipoh, beside two main road (Jalan Lim Bo Seng, Jalan Horley) 01

02 03 04

Morphology as Strength Functional Dimension

adaptability of waller court

path connection (from one point to one point) primitive lifestyle of the site

Social Dimension

DK Park more tourists than local

01 02 03 04

demographic less youngster site condition delayed

Functional as Opportunities high proximity to education and healthcare

01 02 03 04

hidden inner space of waller court pasar karat as cultural significance visibility to the site

03

04 Morphology Dimension

Lack of Urban void and public spaces Terminal 01: Final Report Architectural Design Project Anson Ong Kah Kit Bachelor of Science (Honours) in Architecture

Site Analysis Project 1A: Pre-Design Studies & Analysis ARCHITECTURAL DESIGN PROJECT

Temporal Dimension
Temporal as Weakness lack of public transportation
Social as Threats
Aging of population demographic less youngster drug addicts delayed [PRJ60408/ARC60108]
01 02 [21]

03 Design Strategy & Exploration

3.1 Micro Site Analysis

ENVIRONMENTAL IMPACT

SOCIAL IMPACT

v MakerSpace

reclaim & increase the exposure of culture and symbolic events that can continue in a community

CULTURAL IMPACT Identity significant cultural inheritance v TransitHub several transit routes converge, designed to permit transfer between transit routes.

Anson Ong Kah Kit

Bachelor of Science (Honours) in Architecture

Connection engage connection between local community and outsider, sustain economy

Nodes social connection in between people and linkages

v CommonGround activities address themes of communicating across difference, social identities

Project 1A: Pre-Design Studies & Analysis ARCHITECTURAL DESIGN PROJECT

Terminal 01: Final Report Architectural Design Project
[22]
[PRJ60408/ARC60108]
Terminal 01: Final Report Architectural Design Project
Design Strategy & Exploration IN -TER - LINK Inner Space Terminal Linkage Extensionforexclusive Locals Sustainability Hub
Micro Site Analysis
[23]
Anson Ong Kah Kit Bachelor of Science (Honours) in Architecture 03
3.1
Project 1A: Pre-Design Studies & Analysis ARCHITECTURAL DESIGN PROJECT [PRJ60408/ARC60108]

03 Design Strategy & Exploration

Precedent Study

precedentstudy The George Town World Heritage Site (GTWHS)

Trishaw represents a role in the transport system that is well designed to transport people and goods in small, congested markets over a relatively short distance In some urban areas, there could be two or three trishaw stations in a neighbourhood where operators are queuing to shuttle people and goods around the area or to surrounding stops or stations

Building Heritage Category

Definition

Buildings, monuments, objects, and sites are important in that they reflect the authenticity of the cultural landscape and therefore the OUV of the GTWHS, and formerly under the National Heritage Act (2005)

Buildings, sites, and objects of special interest that warrant every effort being made to preserve them

The routes of beca and the existing stations

Stakeholders who responsible for shaping and conserving George Town to its World Heritage value

Local council (Plan Malaysia Pulau Pinang)

State Government of Penang (George Town World Heritage Incorporated (GTWHI));

city-making organisation expert in urban regeneration (Think City Sdn Bhd).

Modern buildings, other buildings than Category I and Category II buildings

Category I Category II Others
Terminal 01: Final Report Architectural Design Project Anson Ong Kah Kit Bachelor of Science (Honours) in Architecture
[PRJ60408/ARC60108] [24]
3.2
Project 1A: Pre-Design Studies & Analysis ARCHITECTURAL DESIGN PROJECT

03 Design Strategy & Exploration

3.2 Precedent Study

precedentstudy The George Town World Heritage Site (GTWHS)

Category II buildings

Category I buildings

Using beca allows for having the flexibility in terms of fare and routes, which depends on how respondents negotiate with the beca pullers Respondents also enjoy their journey because the beca pullers are good narrators, telling them some stories about the places they passed through, and delivers information that makes users understand and feel interested with the place, supporting the argument by Salim et al. (2011). Khalifah (2007), Hall and MacArthur, 1998, and Cheng (2005), who eagerly emphasise about the important role of informal tour guide served by beca pullers.

Project 1A: Pre-Design Studies & Analysis ARCHITECTURAL DESIGN PROJECT [PRJ60408/ARC60108]

Terminal 01: Final Report Architectural Design Project Anson Ong Kah Kit Bachelor of Science (Honours) in Architecture
[25]

Strategy & Exploration

3.2 Precedent Study

precedentstudy The George Town World Heritage Site (GTWHS)

the provision of wider space for pedestrians, bicycle and beca, at the city centre, public realm

Respondents preferred beca because of not only the experience of riding beca itself but also because of its informality.

The Penang State Structure Plan 2020

importance of integrating the land use planning with traffic planning including the pedestrian walkway, bicycle and beca lane at the city centres and high-density residential areas.

to create the holistic network regionally to enhance the level of accessibility within the area.

This proposal in line with Cervero (2000) statement about several Asian’s cities that implemented designated lane concept for informal transport

Project 1A: Pre-Design Studies & Analysis ARCHITECTURAL DESIGN PROJECT [PRJ60408/ARC60108]

Terminal 01: Final Report Architectural Design Project
Kah Kit
of
Anson Ong
Bachelor
Science (Honours) in Architecture 03 Design
[26]

03 Design Strategy & Exploration 3.2 Precedent Study

To the west by the Old City and to the east by the New City

study 1 CAF Headquarters/LAPS Arquitectos

In the historic city center of Montevideo – the “Old City”- a sector full of history and strong urban symbols, next to the limit with the “New Expanded City”.

To the east by the New City

Area: 47243.82 m³

Year: 2018

Architect: LAPS Arquitectos

To the west by the Old City

EXISTING NEW

Fun FunBar Cinema Complex Bank Headquarter Courtyard Cinema Complex

Programmes: CAF Headquarters, Cinema complex, FunFun bar, Public parking, Nearby urban environment conditioning.

Location: Ciudadela 1229, Montevideo, Uruguay

Project 1A: Pre-Design Studies & Analysis ARCHITECTURAL DESIGN PROJECT

Section A – A’
West Elevation
precedent
Terminal 01: Final Report Architectural Design Project Anson Ong Kah Kit Bachelor of Science (Honours) in Architecture
[PRJ60408/ARC60108] [27]

03 Design Strategy & Exploration

3.2 Precedent Study

Original Building

• A Central Market which is in a clear state of abandonment and deterioration

• The Old Market was completely demolished, leaving the New Market in an isolated and distant way from the Solís Theater

precedent study 1 CAF Headquarters/LAPS Arquitectos

Aim/Objective- Recovery

• The conditioning and recovery of the immediate urban environment are key requirements of the entire proposal

• To achieve coexistence within a single building and urban space, such diverse functional requirements

Inner Space - Courtyard

CAF offices are located in the existing structure, while the cinema complex and the “FunFun” Bar are located in a new built volume next to Reconquista Street Both buildings form an internal public “Urban Courtyard”

• The void is conceived as an articulation between the existing and the new

• A public space configuration that feeds on the surrounding activities, proposing continuity in the ground floor level

• Continuous platform of public and semi-public spaces:

• At sidewalks and roads level a public platform activities is set up containing the Cinema Complex, the Fun Fun Bar and CAF`s public activities Incorporating in its extension the “Teatro Solís” and the “Barrio de las Artes”.

Connection
Architectural Design
Terminal 01: Final Report
Project Anson Ong Kah Kit Bachelor of Science (Honours) in Architecture
Project
ARCHITECTURAL
[PRJ60408/ARC60108] [28]
1A: Pre-Design Studies & Analysis
DESIGN PROJECT

Terminal

03 Design Strategy & Exploration

precedent study 2 The Provider Productive Center / Natura Futura Arquitectura

:920 m³

: 2020 : Natura Futura Arquitectura : Mixed use architecture, housing : Montalvo, Ecuador

Aim/Objective - Multipurpose

Building code in height of up to a maximum of 6 floors, organize the multi-program as requested

The objective of diversifying the center; in contrast to the next-door residential low-density buildings.

The Provider reflects and sets strategies of compactness and diversification; highlighting the local techniques.

A lecture of the context aims to contain a multi-program that responds with artisan materials, sustainable urban scales and dynamic ways of living.

Site Intro

Habitable and productive systems in urban centers for the low- /middleincomes.

An intermediate city with approximately 16 thousand inhabitants; this city-based its economic development on trade and agriculture

1A: Pre-Design Studies & Analysis

Area: Year: Architect: Programmes: Location:
Site Intro 01: Final Report
Architectural Design Project
Anson Ong Kah Kit Bachelor of Science (Honours) in Architecture
Project
ARCHITECTURAL DESIGN PROJECT [PRJ60408/ARC60108] [29]
3.2 Precedent Study

Terminal 01: Final Report

Architectural Design Project

03 Design Strategy & Exploration

3.2 Precedent Study

precedent study 2 The Provider Productive Center / Natura Futura Arquitectura

The project is configured using a rectangular prism as basic geometry, in a lot of 12x20 that is located next to the local street market.

3& 4F

The balconies and terraces unified by a double permeable envelope in its entirety, formed by vegetation, glass windows, and local hand made exposed bricks; giving sieved lighting, purified natural ventilation

1& 2F

Above the commercial story, which is the multi-program with event hall, storage areas, residential area, leisure rooms, terraces and a viewpoint for the mountains contemplation that surrounds the city

The volume sets back on the ground floor in order to generate the traditional arcade, which receives and provides social interactions with the local market;

Project 1A: Pre-Design Studies & Analysis ARCHITECTURAL DESIGN PROJECT

GF
Anson Ong Kah Kit Bachelor of Science (Honours) in Architecture
[PRJ60408/ARC60108] [30]

03 Design Strategy & Exploration

3.3 Project 1A Boards

Project 1A: Pre-Design Studies & Analysis ARCHITECTURAL DESIGN PROJECT [PRJ60408/ARC60108]

Terminal 01: Final Report Architectural Design Project Anson Ong Kah Kit Bachelor of Science (Honours) in Architecture
[31]

Terminal 01: Final Report Architectural Design Project

03 Design Strategy & Exploration

3.4 Design Narrative

PAUSE & PLAY

'Pause and Play' stands for the two essential fragments of life Having two target users, which the elderlies connect to the recreation and spiritual experiences and the youths bring vitality to the more dynamic endeavours of daily life

Terminal 01 is a transmodal hub providing a transport system with many inbound and outbound connections in the city The hub is in a central plot, which was left undeveloped from the beginning and was a real break in the urban fabric of the city Due to insufficient supply of social welfare and diversity of services, highlighting how the hub act as urban connector, a place not only of transport connection, but also of social interaction, bridging them together

Front View Project 1B Design Exploration

With the relocation of adolescents in urban, the issue of population ageing in Kampung Jawa getting serious regularly The ability to move or walk freely and easily to destination is critical for them if the destination getting further as the increase in span of urban development As people age, people may experience changes to our mobility There are many reasons for these changes, including changes in gait, balance, and physical strength The stagnant city which relies on wheels to manoeuvre around transitions on streets, have fun, hang out with their families and neighbours in their common ground after dusk and leisure time, had buried in their past as time goes by

Stressing the hub’s role as the point of intersection in the city, it outlines the significance of this transitional space The hub strives to provide solutions for both through spaces and give life an essence Explore on what are the common needs and aspirations they do as interests, unwind or be with friends

With the transit-oriented development concept in creating a vibrant, liveable community, The project encourages community engagement and foster diversity of cross-programming and frees up the ground level for activity generators, bring in vitality within the community and vibrancy to the streets. The design is inspired by static, dynamic, compartmentalized, and versatility as depicted by Kampung Jawa, Ipoh.

Anson Ong Kah Kit Bachelor of Science (Honours) in Architecture

Back View

Project 1B Design Exploration

Project 1B: Design Strategies and Exploration

ARCHITECTURAL DESIGN PROJECT

[32]
[PRJ60408/ARC60108]

03 Design Strategy & Exploration

3.5 Site Planning Strategies

school communities

hospital communities school communities

Anson Ong Kah Kit Bachelor of Science (Honours) in Architecture

waller court communities Waller Court community as primary user people > activities > people

Horizontal Relationship

Project 1B: Design Strategies and Exploration ARCHITECTURAL DESIGN PROJECT [PRJ60408/ARC60108]

Terminal 01: Final Report Architectural Design Project
[33]

03 Design Strategy & Exploration

3.5 Site Planning Strategies

Proposed Trishaw Services Route

school communities

hospital communities school communities waller court communities

Anson Ong Kah Kit Bachelor of Science (Honours) in Architecture

Project 1B: Design Strategies and Exploration

ARCHITECTURAL DESIGN PROJECT [PRJ60408/ARC60108]

Terminal 01: Final Report Architectural Design Project
[34]

Terminal 01: Final Report Architectural Design Project

03 Design Strategy & Exploration

3.5 Site Planning Strategies

Site Location Jalan Lim Bo Seng, Kampung Jawa, 30300 Ipoh, Perak

Site Area 3700sqm

Site Set Back Side : 6.10m Back Alley : 3.05m

Built-Up Area 60% or less of site area (free standing building)

Maximum Built Area No less than 1800sqm, no more than 2000sqm (Exclude basement parking) Site Classification Mixed Commercial Zone

Project Objectives

• To bring an impact for the youths and elderlies' community of Kampung Jawa with the building.

• To promote the economic value of the site by having the building as a node.

• To create a people -centered design which appeals to users of all social status & ethnicity.

• Highlighting how the hub act as urban connector, a place not only of transport connection, but also of social interaction, bridging them together.

Anson Ong Kah Kit

Bachelor of Science (Honours) in Architecture

Project 1A: Pre-Design Studies & Analysis ARCHITECTURAL DESIGN PROJECT

[PRJ60408/ARC60108]
SitePlotRatio 3700sqm [35]

Site Planning Strategies

Pocket Park Trishaw Hub

The Trishaw Hub is conceived to incorporate the fast flow of the travellers, as well as the slow flow of the visitors, providing accessibility for everyone The building will serve as the central station for people while providing a bridge between the old town and new town of Ipoh with a single transit and social platform within different zoning/districts

Laneway Market

The idea of Laneway Market was generated through existing macro and micro market typologies around Kampung Jawa or Ipoh The behavioural aspect of how a market operates, act as spines to generate activities in Ipoh is used to generate the architectural programme. The goal is reappropriated in the development to create a familiar atmosphere for the locals and at the same time the modern form of the bubbles with material qualities which are contextual to Ipoh, brings forth a new and refreshing outlook on what a street market could be.

Urban Pocket Parks are small parks designed for use in the public realm around urban areas As the name suggests, they are usually found in built-up urban spaces where other outdoor space may be limited or non-existent. Relatively easy to set-up and comparatively inexpensive to build, they are an effective way for urban areas to create inviting, outside spaces for residents

Terminal 01: Final Report Architectural Design Project
Anson Ong Kah Kit Bachelor of Science (Honours) in Architecture 03 Design Strategy & Exploration
Project
[PRJ60408/ARC60108] 3.5
[36]
1B: Design Strategies and Exploration ARCHITECTURAL DESIGN PROJECT

03 Design Strategy & Exploration

Circulation before Formation Project 1B: Design Strategies and Exploration ARCHITECTURAL DESIGN PROJECT

Terminal
01: Final Report Architectural Design Project Anson Ong Kah Kit Bachelor of Science (Honours) in Architecture
[PRJ60408/ARC60108]
[37]
3.5 Site Planning Strategies

03 Design Strategy & Exploration

Design exploration

Terminal
Architectural
01: Final Report
Design Project Anson Ong Kah Kit Bachelor of Science (Honours) in Architecture
[PRJ60408/ARC60108] [38]
3.6 Spatial Planning & Organisation
Project 1B: Design Strategies and Exploration ARCHITECTURAL DESIGN PROJECT

03 Design Strategy & Exploration

3.6 Spatial Planning & Organisation

B1

Basement Car Park Security Office Fan Room M&E Room

Rainwater Harvesting Tank Genset Storage

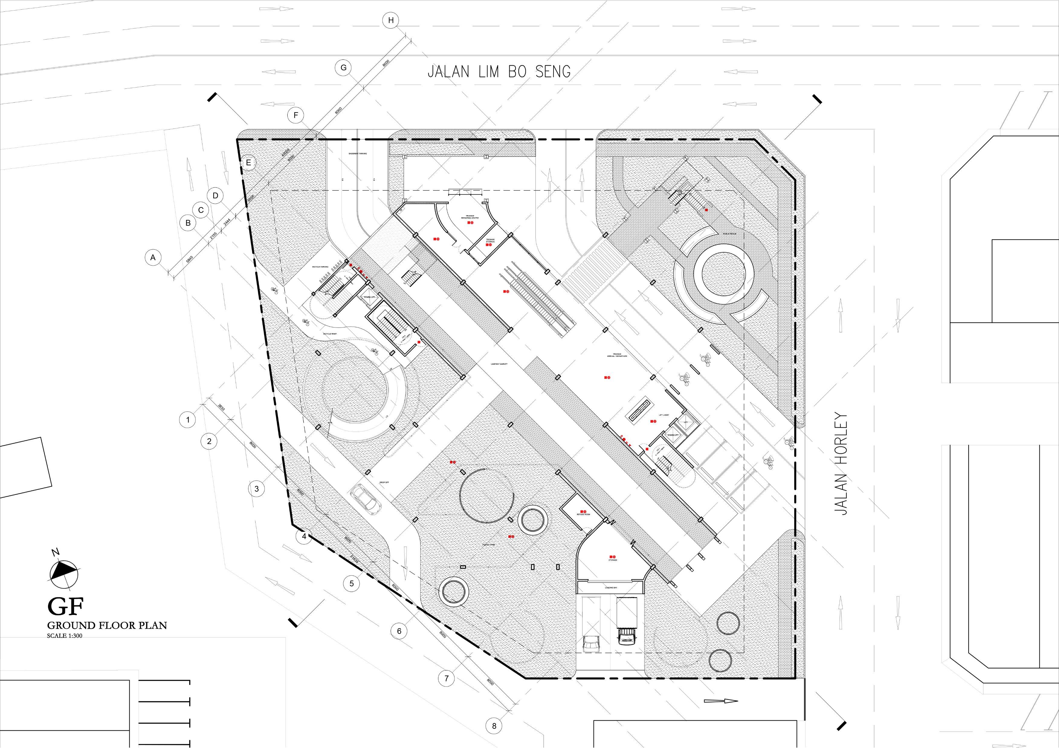
GF

Trishaw Hub Trishaw Storage

Trishaw Repairing Centre Urban Pockets Laneway Market Bicycle Ramp Bicycle Parking Loading Bay Refuse Room

L1

Health Service Centre Convenient Store Urban Playground

L2 Bicycle Parking Al Fresco Soup Kitchen Farming Garden

L3

Recreational Activity Room Administrative Office Meeting Room

Public Library/Digital Library L4

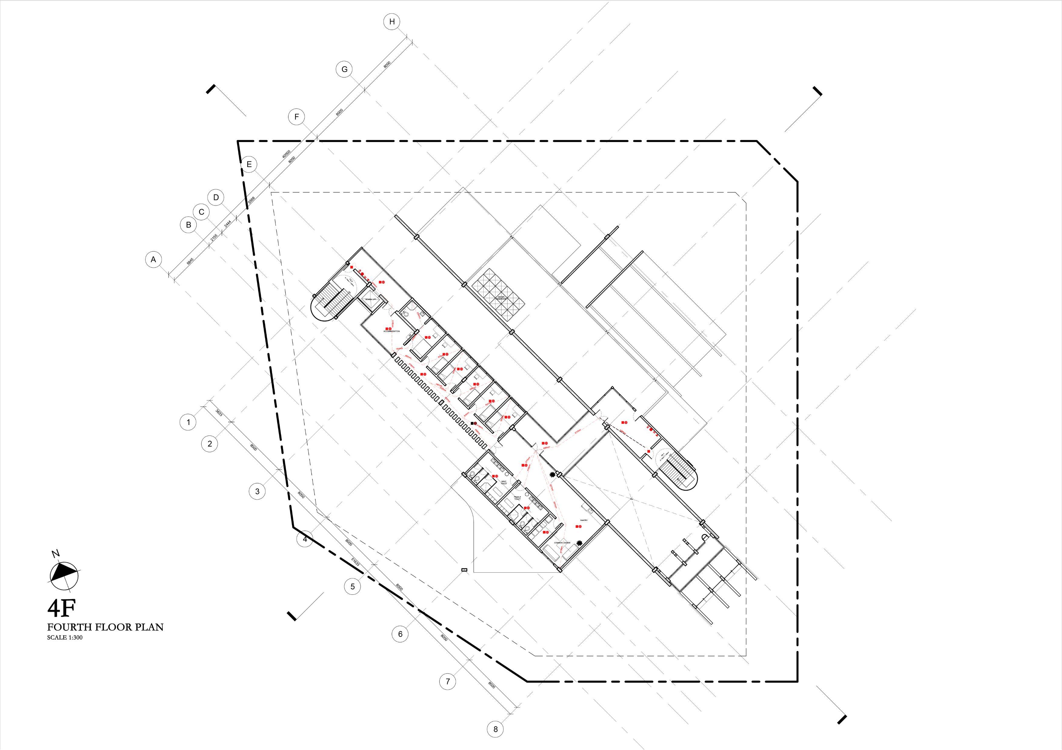
Accommodation Laundry Common Lounge

Anson Ong Kah Kit

Bachelor of Science (Honours) in Architecture

Floor Plans Development

B1 GF 1F 2F 3F 4F

Project 1B: Design Strategies and Exploration

ARCHITECTURAL DESIGN PROJECT [PRJ60408/ARC60108]

Terminal 01: Final Report Architectural Design Project
[39]
Architectural
Terminal 01: Final Report
Design Project
Project 1C: Final Design Presentation & Report ARCHITECTURAL DESIGN PROJECT [PRJ60408/ARC60108]
Spatial Planning
Organisation [40]
Anson Ong Kah Kit Bachelor of Science (Honours) in Architecture
03 Design Strategy & Exploration 3.6
&

01:

Final Report

04 Environment and Technological Strategies

4.1 BOMBA (Fire Safety Plan)

Architectural Design Project Anson Ong Kah Kit Bachelor of Science (Honours) in Architecture

Project 1C: Final Design Presentation & Report

ARCHITECTURAL DESIGN PROJECT [PRJ60408/ARC60108]

Terminal
[41]

04 Environment and Technological Strategies

4.1 BOMBA (Fire Safety Plan)

Project 1C: Final Design Presentation & Report

ARCHITECTURAL DESIGN PROJECT [PRJ60408/ARC60108]

Terminal 01: Final Report Architectural Design Project Anson Ong Kah Kit Bachelor of Science (Honours) in Architecture
[42]

01:

Final Report

04 Environment and Technological Strategies

4.1 BOMBA (Fire Safety Plan)

Architectural Design Project Anson Ong Kah Kit Bachelor of Science (Honours) in Architecture

Project 1C: Final Design Presentation & Report

ARCHITECTURAL DESIGN PROJECT [PRJ60408/ARC60108]

Terminal
[43]

01:

Final Report

04 Environment and Technological Strategies

4.1 BOMBA (Fire Safety Plan)

Architectural Design Project Anson Ong Kah Kit Bachelor of Science (Honours) in Architecture

Project 1C: Final Design Presentation & Report

ARCHITECTURAL DESIGN PROJECT [PRJ60408/ARC60108]

Terminal
[44]

04 Environment and Technological Strategies

4.1 BOMBA (Fire Safety Plan)

Project 1C: Final Design Presentation & Report

ARCHITECTURAL DESIGN PROJECT [PRJ60408/ARC60108]

Terminal 01: Final Report Architectural Design Project Anson Ong Kah Kit Bachelor of Science (Honours) in Architecture
[45]

04 Environment and Technological Strategies

4.1 BOMBA (Fire Safety Plan)

Project 1C: Final Design Presentation & Report

ARCHITECTURAL DESIGN PROJECT [PRJ60408/ARC60108]

Terminal 01: Final Report Architectural Design Project Anson Ong Kah Kit Bachelor of Science (Honours) in Architecture
[46]

04 Environment and Technological Strategies

4.2 Architectural Detailing

Terminal
Architectural
Ong Kah Kit Bachelor of
01: Final Report
Design Project Anson
Science (Honours) in Architecture
Project 1C: Final Design Presentation & Report ARCHITECTURAL DESIGN PROJECT [PRJ60408/ARC60108] [47]

04 Environment and Technological Strategies

4.2 Architectural Detailing

Project 1C: Final Design Presentation & Report

ARCHITECTURAL DESIGN PROJECT [PRJ60408/ARC60108]

Terminal 01: Final Report Architectural Design Project Anson Ong Kah Kit Bachelor of Science (Honours) in Architecture
[48]

04 Environment and Technological Strategies

4.3 Green Strategies

Terminal 01:
Architectural
Final Report
Design Project
Anson Ong Kah Kit Bachelor of Science (Honours) in Architecture
Project 1C: Final Design Presentation & Report ARCHITECTURAL DESIGN PROJECT [PRJ60408/ARC60108] [49]
Terminal 01: Final Report Architectural Design Project Anson Ong Kah Kit Bachelor of Science (Honours) in Architecture
[50] Project
Design Presentation & Report ARCHITECTURAL DESIGN PROJECT [PRJ60408/ARC60108]
05 Final Design 5.1 Orthographic Drawings
1C: Final
[51]
[52]
[53]
[54]
[55]
[56]
[57]
[58]
[59]
Architectural
Terminal 01: Final Report
Design Project Anson Ong Kah Kit Bachelor of Science (Honours) in Architecture 05 Final Design 5.2 Perspective Renderings
Trishaw Entrance
[60]
Trishaw Exit
Project 1C: Final Design Presentation & Report ARCHITECTURAL DESIGN PROJECT [PRJ60408/ARC60108]
Arrival Drop Off Area [61]
Terminal 01: Final Report Architectural Design Project Anson Ong Kah Kit Bachelor of Science (Honours) in Architecture 05 Final Design 5.2 Perspective Renderings Trishaw
Project 1C: Final Design Presentation & Report ARCHITECTURAL DESIGN PROJECT [PRJ60408/ARC60108]
Architectural
Terminal 01: Final Report
Design Project Anson Ong Kah Kit Bachelor of Science (Honours) in Architecture 05 Final Design 5.2 Perspective Renderings
[62] Project 1C: Final Design Presentation & Report ARCHITECTURAL DESIGN PROJECT [PRJ60408/ARC60108]
Laneway Market
[63]
& Report
[PRJ60408/ARC60108]
Terminal 01: Final Report Architectural Design Project Anson Ong Kah Kit Bachelor of Science (Honours) in Architecture 05 Final Design 5.2 Perspective Renderings Urban Playground
Project 1C: Final Design Presentation
ARCHITECTURAL DESIGN PROJECT
Terminal 01: Final Report Architectural Design Project
Ong Kah Kit Bachelor of Science (Honours) in Architecture
[64] Project 1C: Final Design Presentation & Report ARCHITECTURAL DESIGN PROJECT [PRJ60408/ARC60108]
Anson
05 Final Design 5.2 Perspective Renderings Soup Kitchen Farming Garden
Architectural
Kit
[65]
[PRJ60408/ARC60108]
Terminal 01: Final Report
Design Project Anson Ong Kah
Bachelor of Science (Honours) in Architecture 05 Final Design 5.2 Perspective Renderings Recreational Activity Room Public Library
Project 1C: Final Design Presentation & Report ARCHITECTURAL DESIGN PROJECT
Terminal 01: Final Report Architectural Design Project
Ong Kah Kit Bachelor
[66] Project 1C: Final Design Presentation & Report ARCHITECTURAL DESIGN PROJECT [PRJ60408/ARC60108]
Anson
of Science (Honours) in Architecture 05 Final Design 5.2 Perspective Renderings
Terminal 01: Final Report Architectural Design Project Anson Ong Kah Kit Bachelor of Science (Honours) in Architecture
Final Panel Layout [67] Project 1C: Final Design Presentation & Report ARCHITECTURAL DESIGN PROJECT [PRJ60408/ARC60108]
05 Final Design 5.3

Terminal 01: Final Report Architectural Design Project

06 Reflective Journal

The Architectural Design Project has been a memorable journey as it is the last semester of my Bachelor of Science (Honours) in Architecture. It has also been fun and interactive as we were the first Covid-19 pandemic batch which conducted online learning in our semester 1. Appreciate that we had the opportunities to meet each other physically in studio for our final year studies but wished that we had more times together.

This module themed architecture with social impact and the resolution and integration of technology, environment and cultural contexts in architectural design has broadened my perspective on the issue of the urban environment and how architecture can significantlyplayaroleincreatingimpactintheurbanfabric.

As my final year project, the Terminal 01 comprises of all the knowledge I have learned since FNBE journey, Degree semester 1 till now. I started developing a strong interest and passion for urban studies since Semester 5, and this project truly ignites the fire and open up my perspective in me to design a building from listening, observing, analysing the needs and voices of the locals of Kampung Jawa, Ipoh, creating not only impactful, useful and of course a third space for them. I am very thankful to be under Ar. Nani for my final year studies (Semester 5 & 6), as during times when I need advice or ideas, she was the one always give me motivations and affirmations.

It’s our one last design studio for our 3 year degree studies, everyone wanted to get their designandoutcometobeperfect.Thus,everyoneinthissemesterarestrivingtheirbest of the best to achieve their envisions of the project. I believe that architecture not only present on our work, but also a strong connection with the community will always be meaningful and remembered.

The design process of the Terminal 01 allowed to me to embrace that principle by exploring ideas from multiple angles and possibilities, to respond to the community of the site and its immediate context, such as Waller Court community, Kinta River and the Pasar Karat community. Thus, from this experience, I am grateful that I was able to challenge myself to reflect the empowerment of people, place and time through their cultural, environmental and social being.

Hence,Iwishmypeers,tutorsandlecturersallthebestofluckandtillwemeetagain!

Anson Ong Kah Kit Bachelor of Science (Honours) in Architecture
[68] Project 1C: Final Design Presentation & Report ARCHITECTURAL DESIGN PROJECT [PRJ60408/ARC60108]

07 References

1. Florian, M. (2022, December 22). Atkins Unveils Design for the New Nairobi Central Station in Kenya ArchDaily https://www.archdaily.com/986550/atkins-unveils-design-for-the-new-nairobi-centralstation-in-kenya?ad_source=search

2. Pejić, L. (2022, September 1). Glowing Bicycle Station in Bergamo / Studio Capitanio Architetti ArchDaily https://www.archdaily.com/988237/glowing-bicycle-station-in-bergamo-studio-capitanioarchitetti?ad_source=search

3. Aguilar, C. (2022, August 24). Urban Link / VAUMM ArchDaily. https://www.archdaily.com/557144/urban-link-vaumm?ad_source=search

4. Pintos, P. (2022, October 7). CapitaSpring / BIG + Carlo Ratti Associati ArchDaily. https://www.archdaily.com/989946/capitaspring-big-plus-carlo-ratti-associati?ad_source=search

5. Jambatan Harapan Spiral Bicycle & Pedestrian Bridge. (n.d.). Penang Travel Tips. https://www.penang-traveltips.com/jambatan-harapan-spiral-bicycle-bridge.htm

6. Loh, I. (2020, April 29). Ensuring no one goes hungry. The Star. https://www.thestar.com.my/metro/metro-news/2020/04/29/ensuring-no-one goes-hungry

7. Improving Interchanges: Introducing Best Practices on Multimodal. (2020, July 22). Asian Development Bank. https://www.adb.org/publications/improving-interchanges-multimodal-interchange-hubdevelopment-prc

8. Harvard University Graduate School of Design. (2016, July 5). Itinerant Architecture. Harvard Graduate School of Design. https://www.gsd.harvard.edu/project/itinerant-architecture/

9. Gateways and Hubs | The Geography of Transport Systems. (2021, October 26). The Geography of Transport Systems | the Spatial Organization of Transportation and Mobility. https://transportgeography.org/contents/chapter2/transport-and-spatial-organization/gateways-hubs/

10. PROJECTS - Plan B @ Kong Heng, Ipoh :: STUDIO BIKIN | Interior Designer Kuala Lumpur, Malaysia. (n.d.). https://www.studiobikin.com/plan-b.php

11. Hall, M. (2019, March 19). Are You Disconnecting or Compartmentalizing? Insights Therapeutic Services LLC. https://www.insightsts.com/blog/are-you-disconnecting-or-compartmentalizing

12. Yuekang, 舒 -.S. (2021, October 6). Vanke Community A1-B2 and Bus Station / UV Architecture /Huayi Design ArchDaily. https://www.archdaily.com/930361/vanke-community-a1-b2-and-bus-stationuv-architecture-huayi-design?ad_source=search

13. Sharma, Y. (2022, January 19). 10 Best Multi-model transit hubs around the world. RTF | Rethinking the Future. https://www.re-thinkingthefuture.com/designing-for-typologies/a2977-10-best-multimodel-transit-hubs-around-the-world/

Terminal 01: Final Report Architectural Design Project
[69]
Anson Ong Kah Kit Bachelor of Science (Honours) in Architecture
Project 1C: Final Design Presentation & Report ARCHITECTURAL DESIGN PROJECT [PRJ60408/ARC60108]

ARCHITECTURAL DESIGN PROJECT

Terminal 01 | Final Report | Dec 2022

Ong Kah

in

Turn static files into dynamic content formats.

Create a flipbook
Issuu converts static files into: digital portfolios, online yearbooks, online catalogs, digital photo albums and more. Sign up and create your flipbook.