Anoud Almoathen | Interior Architecture Portfolio

Page 1

INTERIOR ARCHITECTURE

SELECTED PROJECTS

FROM 2018 TO 2022

COVER 00 PAGE 2022
anoud.interiors@gmail.com
“IF YOU DON’T LOVE WHAT YOU DO, YOU WON’T DO IT WITH MUCH CONVICTION OR PASSION.”
ANOUD ALMOATHEN PORTFOLIO INTRODUCTION
“A MIND THAT IS STRETCHED BY NEW EXPERIENCES CAN NEVER GO BACK TO ITS OLD DIMENSIONS.”

“The essence of interior design will always be about people and how they live. It is about the realities of what makes for an attractive, civilized, meaningful environment, not about fashion or what’s in or what’s out.”

2
CONJECTURE 00 INTRODUCTION RESUME
3 INTERIOR ARCHITECT 9 6 6 5 3 1 9 2 3 7 7 2 a n o u d i n t e r i o r s @ g m a i l c o m J e d d a h , S a u d i A r a b i a n l n e
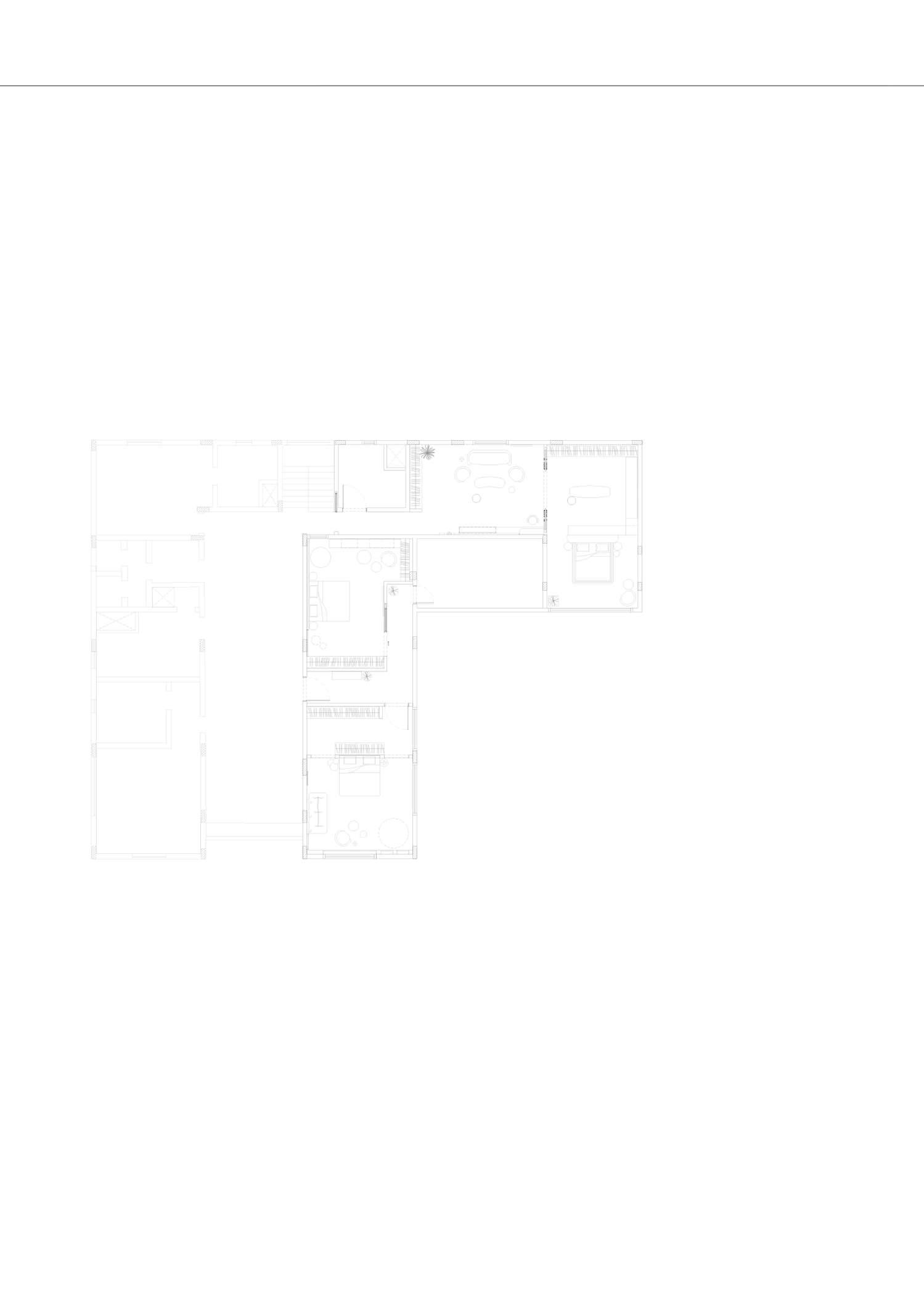
PROFESSIONAL INTERIOR RESIDENTIAL VILLA 01 6
2022 PROJECT STATUS : Under construction
7
Light space Heavy space
0.40 3.97 4.67 0.30 0.30 4.35 4.88 3.32 2.32 3.91 0.20 4.33 0.150.20 0.88 2.20 1.02 3.97 0.83 4.67 1.06 1.09 0.30 0.70 0.99 0.85 0.60 0.54 0.60 0.40 3.97 4.67 0.30 0.30 1.15 2.82 1.12 1.00 3.32 4.88 3.91 0.20 4.33 0.200.15 0.30 0.69 3.68 0.35 0.10 3.97 F.F.L +4.35 0.83 0.17 0.70 1.19 0.08 0.07 0.90 2.70 2.91 1.07 1.00 0.33 F.F.L +4.35 4.67 0.83 0.60 ROOF FLOOR ELEVATOR ELEVATION SCALE 1 : 50 44 AI231 ROOF FLOOR OUTDOOR AREA ELEVATION SCALE 1 : 50 43 AI231 F.F.L +4.35 F.F.L +7.55 F.F.L +7.85 0.40 3.97 1.31 0.05 2.61 3.50 1.17 0.85 1.57 0.85 1.12 0.60 0.75 2.30 1.58 1.59 0.60 1.00 0.29 F.F.L +7.55 0.40 3.97 3.50 0.47 0.35 0.83 0.83 0.57 0.35 0.40 1.60 0.60 2.90 1.35 2.95 0.50 1.50 8.05 12.57 ROOF FLOOR RECEPTION ELEVATION SCALE 1 : 50 48 AI232 ROOF FLOOR RECEPTION ELEVATION SCALE 1 : 50 47 AI232 96 AI451 97 AI451 96 AI451 99 AI452 F.F.L +4.35 F.F.L +7.55 F.F.L +7.85 1.31 0.05 2.61 3.50 1.17 0.85 1.57 0.85 1.12 0.60 0.75 2.30 1.58 1.59 0.60 1.00 0.29 F.F.L +4.35 F.F.L +7.55 F.F.L +7.85 0.40 3.97 3.50 0.47 0.35 0.83 0.83 0.57 0.35 0.40 1.60 0.60 2.90 1.35 2.95 0.50 1.50 8.05 12.57 ROOF FLOOR RECEPTION ELEVATION SCALE 1 50 48 AI232 ROOF FLOOR RECEPTION ELEVATION SCALE 1 : 50 47 AI232 96 AI451 97 AI451 96 AI451 99 AI452 Reception Elevation Outdoor Area Elevation 01 8
9
AI456 AI456 AI456 AI456 AI456 AI456 0.40 0.47 3.50 10
06 | 08 11

Boy Bedroom Elevation

01
0.40
0.70 0.25
4.37 0.15 0.53 0.20 4.25 0.25 0.38
3.02 1.00 FIRST FLOOR GIRL ROOM SEATING ELEVATION SCALE 1 50 39 AI230 92
0.40 3.97 3.40 0.50 3.00 0.90 2.01 0.42 0.20 0.12 0.23 1.00 1.83 5.23 2.00 0.20 1.20 0.20 0.23 1.20 0.20 1.88 3.14 1.88 2.40 F.F.L +4.35
+7.55 0.40 3.97 0.50 1.00 2.35 0.50 0.50 1.98 0.42 2.00 0.70 3.40 0.60 0.60 0.84 0.20 1.70 2.01 0.15 0.02 1.20 0.97 3.40 0.19 0.03 0.15 1.87 0.64
4.37 F.F.L +7.85 1.83 2.35 0.60
0.60 0.50 FIRST FLOOR BOY ROOM 01 ELEVATION SCALE 1 50 27 AI227 FIRST FLOOR BOY ROOM
ELEVATION SCALE
F.F.L +4.35 F.F.L +7.55 F.F.L +7.85 0.40 3.97 0.88 1.50 1.59 0.53 6.64 0.25 1.00 0.30 0.80 2.18 0.27 0.76 1.74 0.25 0.63 1.59 0.60 4.37 1.00 F.F.L +4.35 F.F.L +7.55 F.F.L +7.85
3.97
0.79 0.79 0.79 0.79
0.90 3.17 1.28
AI449 F.F.L +4.35 F.F.L +7.55 F.F.L +7.85
F.F.L
1.45
1.20
01
1 50 28 AI227 85 AI447 84 AI447 F.F.L +4.35 F.F.L +7.55 F.F.L +7.85 0.40 3.97 0.50 0.90 2.57 0.50 1.00 4.53 0.01 3.47 0.60 4.49 0.26 0.04 0.42 0.04 0.42 0.04 0.07 2.05 0.71 1.40 1.84 3.02 4.37 0.38 0.41 0.45 0.40 1.47 0.04 0.04 F.F.L +7.85 0.50 0.45 1.00 4.53 1.25 0.60 0.15 0.15 1.89 1.65 31 AI228 FIRST FLOOR BOY 02 ELEVATION SCALE 1 : 50
FIRST FLOOR GIRL BEDROOM ELEVATION SCALE
FIRST FLOOR GIRL BEDROOM ELEVATION SCALE
90
91 AI449
AI449
01 | 03 12
Girl Bedroom | Seating Elevation F.F.L +4.35 F.F.L +7.55 F.F.L +7.85 F.F.L +4.35 F.F.L +7.55 F.F.L +7.85 0.40 3.97 0.50 3.47 0.18 2.58 0.60 2.84 1.04 1.21 0.50 0.97 0.67 0.66 0.01 0.65 0.02 0.64 0.02 0.64 0.02 0.64 0.01 0.66 F.F.L +4.35 F.F.L +7.55 F.F.L +7.85 0.40 3.97 2.40 0.45 0.77 0.50 3.47 0.98 1.54 1.23 1.00 0.67 0.46 0.65 0.65 0.65 0.65 0.36 0.60 0.60 0.60 0.60 0.60 0.60 0.35 0.66 0.01 0.65 0.01 0.65 0.01 0.65 0.01 0.65 0.01 0.66 4.37 3.60 4.45
1 : 50 38 AI229
1 : 50 36 AI229
AI449
90
03 04 02 01
02 | 04 13

ELEVATION

07. Master bedroom 08. Living room 09. Dining room 10. boy’s bedroom 11. Girl’s bedroom 12. Master bedroom

SPIRAL STAIRS ISO
FLOOR FINISH LEVEL ARCHITECTURAL DIMENSIONS SYMBOLS 00 FIRST FLOOR ARCHITECTURAL PLAN SCALE 1 : 100 01 A101 SCALE 1 : 100 0 5 10 15 20 PORTABLE/FLOOR LIGHT WALL-MOUNTED LIGHT WALL/FURNITURE LED HIDDEN LIGHT GROUND FLOOR PLAN FIRST FLOOR PLAN
PROJECT STATUS : Under construction
WEST
3.32 6.23 4.51 4.48 7.31 5.23 11.28

Kafe khana, a coffee shop that serve different kind of espresso drinks but specilaizes in turkish sand coffee. a simple, delicate yet textured method. thus it is reflected in a clean, complex interior that offers different textures to have a dialouge with each type of coffee servied.

Using materials such as rough black metal cutting through the overall textured concrete,stone and walls juxtaposed with the softness of leather and natural greens to welcome you customers.

0.21 1.00 4.00 FACADE SIGN SCALE TO FIT 09 AI309 1.00 3.55 0.15 3.57 9.35 0.95 2.20 0.17 2.20 4.00 0.15 ELEVATION SCALE TO FIT FACADE ELEVATION SCALE TO FIT 1.00 3.36 0.85 1.20 2.90 0.15 1.00 0.70 0.70 0.70 0.70 4.20 1.20 0.21 0.15 16 PROFESSIONAL INTERIOR F&B PROJECT 03 LOCATION | RIYADH, KSA. AREA | 70 m2
Authentic | Mature | Warmhearted Confident | Open-Minded
| Social . PERSONALITY . VOICE . TONE COLLAGES FACADE DESIGN SAND OVEN REAL RENDER REAL ISOMETRIC VIEW TOP VIEW
Sincere
01. Indoor seating 02. Cashier | display 03. Bar | sand oven 04. Outdoor seating 05. Toilet 19 AI419 COFFEE BAR BACK DETAILS SCALE TO FIT 20 AI419 COFFEE BAR SIDE ELEVATION SCALE TO FIT 21 AI419 COFFEE BAR FRONT DETAILS 22 COFFEE BAR SIDE DETAILS SCALE TO FIT 23 AI419 0.60 0.75 0.45 0.70 1.00 0.05 0.85 0.10 0.30 0.20 0.30 0.60 2.51 0.75 0.60 1.68 0.91 0.78 4.00 0.60 0.87 0.60 0.85 1.05 1.20 1.00 1.14 0.60 0.40 0.80 0.77 0.40 1.83 3.50 0.50 0.69 0.05 0.69 0.05 0.05 0.35 1.00 0.05 0.97 0.05 0.97 0.05 0.03 0.40 0.07 0.50 1.00 0.050.85 0.10 0.69 1.00 0.40 0.77 0.40 0.19 0.91 0.62 19 AI419 COFFEE BAR BACK DETAILS SCALE TO FIT COFFEE BAR SIDE ELEVATION SCALE TO FIT 21 AI419 COFFEE BAR SIDE DETAILS SCALE TO FIT 23 AI419 0.60 0.75 0.45 0.70 1.00 0.05 0.85 0.10 0.30 0.20 0.30 0.60 2.51 0.75 0.60 0.60 1.47 0.98 1.35 4.00 0.26 1.83 1.68 0.91 0.78 4.00 0.60 0.87 0.60 0.85 1.05 1.20 3.50 1.83 1.00 1.14 1.72 0.60 0.40 0.80 0.77 0.40 0.50 0.69 0.97 0.05 0.03 0.40 0.07 0.50 1.00 0.80 1.00 2.23 0.340.65 1.24 0.10 0.10 0.40 0.05 COFFEE BAR BACK DETAILS SCALE TO FIT 20 AI419 COFFEE BAR SIDE ELEVATION SCALE TO FIT 21 AI419 COFFEE BAR FRONT DETAILS 22 COFFEE BAR SIDE DETAILS 23 AI419 0.60 0.75 0.45 0.70 1.00 0.05 0.85 0.10 0.30 0.20 0.30 0.60 2.51 0.75 0.60 0.65 1.24 1.68 0.60 0.91 0.55 1.00 0.69 1.15 0.60 0.77 0.40 1.83 0.03 0.35 0.69 0.05 0.69 0.05 0.05 0.05 0.85 0.10 0.50 1.00 0.050.85 0.10 0.69 1.00 0.15 3.50 0.50 0.07 0.40 0.03 0.40 0.05 0.60 0.05 0.87 0.05 0.60 0.05 0.78 0.05 0.14 0.77 0.40 0.19 0.19 0.91 0.62 COFFEE BAR BACK DETAILS SCALE TO FIT 20 AI419 COFFEE BAR SIDE ELEVATION SCALE TO FIT 21 AI419 COFFEE BAR FRONT DETAILS 23 AI419 0.26 1.83 0.34 0.65 1.24 1.68 0.60 0.91 1.83 0.55 1.00 0.69 0.22 1.72 1.15 0.60 0.77 0.40 1.83 3.50 0.50 0.03 0.35 0.69 0.05 0.69 0.05 0.05 0.35 1.00 0.05 0.97 0.05 0.97 0.05 0.03 0.40 0.07 0.50 0.05 0.85 0.10 1.00 0.80 1.00 2.23
17
COFFEE BAR SCALE TO FIT 19 AI419 COFFEE BAR BACK DETAILS SCALE TO FIT 20 AI419 COFFEE BAR SIDE ELEVATION SCALE TO FIT 21 AI419 0.75 0.60 0.60 1.47 0.98 1.35 4.00 0.26 1.83 0.34 0.65 1.24 1.68 0.60 0.91 0.78 4.00 0.60 0.87 0.60 0.85 1.05 1.20 3.50 1.83 0.55 1.00 1.14 0.69 0.22 1.72 1.15 0.60 0.40 0.80 0.77 0.40 1.83 3.50 0.50 0.03 0.35 0.69 0.05 0.69 0.05 0.05 0.35 1.00 0.05 0.97 0.05 0.97 0.05 0.03 0.40 0.07 0.50 0.05 0.85 0.10 1.00 0.80 1.00 2.23 0.340.65 1.24 0.10 0.10 OVEN DETAILS BAR DETAILS INTERIOR PLAN RENDER RENDER REAL FRONT VIEW BACK VIEW TOP VIEW EXTERIOR SIDE VIEW INTERIOR SIDE VIEW BACK VIEW FRONT VIEW 01 03 02 05 . MATERIAL BOARD SCALE 1 : 100 0 5 10 15 20 PROJECT STATUS : Built 2021
0.340.65 1.24 0.10 0.10 2.40 1.10 0.90 2.70 0.34 0.65 0.69 1.90 1.19 0.15 4.00 2.49 0.75 0.50 0.70 2.90 1.00 0.73 0.73 0.50 0.50 1.65 1.00 0.33 0.73 0.73 0.25 0.26 1.00 1.00 1.00 1.00 1.00 1.00 1.00 1.00 0.70 0.70 0.70 0.70 0.50 1.00 0.30 0.93 0.93 1.00 3.50 1.20 2.23 5.04 0.50
04

COSMETIC STORE

Aqua reflections | water is the most used ingredient in cosmetics This project inspired by the term of aqua which is frequency used in make-up and beauty products to notify the usage of clean water in a recipe.

The minimal style, the absence of decoration and the geometric space dominate this space.

The application of Aqua reflections concept has been applied in the interior by the glass displays, acrylic sheets and lighting.

18 RETAIL STORE
2.
3. Shelving
4. Countertop
5. End
6.
7.
3 1 5 7 4 6 2
1. Experimentation countertop
Immersive product displays
displays
display
cap displays
Touch, feel, test displays
Wash area
2021 PROJECT STATUS : Conceptual phase

ALDERAYA VALLEY

The concept is a transformation of the public area into a vital public space identifying the improvement of the region.

Deraya valley comprises natural, coexistence values and a continuous multiplicity of activities in the place while preserving its strengthening the sense of community as a basic preference of the public space.

Deraya valley is a culture and leisure urban diffuser, a mixture of local activities, a place which visitors can always leave to rediscover the city, a place for everyone, open, accessible, a unique experience that revitalizes the Deraya valley essence and its beat inside Riyadh City.

20
EXTERIOR VITAL PUBLIC SPACE 05
PROFESSIONAL
21 PROJECT STATUS : Under construction 1 2021 FLOOR FINISH LEVEL ARCHITECTURAL DIMENSIONS SYMBOLS 00 SCALE 1 : 100 0 5 10 15 20 PORTABLE/FLOOR LIGHT WALL-MOUNTED LIGHT WALL/FURNITURE LED HIDDEN LIGHT 2 3 5 5 8 5 5 6 5 5 5 9 5 4 1. Main entrance + Side entrance 2. Reception 3. Waiting area 4. Stage 5. Pop up store 6. Operating room 7. Photobooth 8. Storage + tol. 9. Parking 7

Opt. 1 Elevation

Opt. 4 Elevation

Commercial building 3D view

22 COMMERCIAL | RESIDENTIAL
Opt. 2 Elevation
Opt. 1 Elevation Opt. 2 Elevation Opt. 3 Elevation Residential building 3D view

LOCATION: SELANGOR, MALAYSIA.

AREA: 8000 sqft

CLIENT: UMNO KAPAR

NORTH ELEVATION

21030 1022,2 2191,9 1762,4 4979,1 1948,8 2732,2 1060,4 1880,6

HEADWAY

TRAINING AND DEVELOPMENT CENTER

BB

2954,2 2145,8 1293,7 1998,2 7306,5 EAST ELEVATION

1455,7 988,8 2185,3 1092,6 5898,8 3001,1 4659,6 GF INTERIOR PLAN FF INTERIOR PLAN

1718,5 3920

19050 GF CEILING PLAN FF CEILING PLAN

AA 3.32 6.23 4.51 4.48 8.05 11.28

3920

24 ACADEMIC ARCHITECTURAL INSTITUTIONAL | AUDITORIUM 07
PROJECT INFO: ADAPTIVE REUSE, RENOVATING AN EXISTING BUILDING FOR A PURPOSE WHICH DESIGNED FOR, CONSIDERING ARCHITECTURAL, COMMUNITY AND ENVIRONMENTAL CONTEXT. PROVIDING SOLUTIONS TO A CONTEMPORARY DESIGN PROBLEM. 3920
3920

According to headway aim which meant to be the first destination for all SME industry and individuals, To achieve that; N arrow have been chosen as a concept , considering the following key words as the design approach:

25
GF user circulation FF user circulation 30% Public | 70% Private AUDITORIUM 02 RECEPTION | WORKING AREA | PANTRY MANAGEMENT OFFICE LOUNGE MEETING ROOM TRAINING ROOM 01 TRAINING ROOM 02

Gesco office design is not categorically space divided, but loosely connected and discon nected using gestalt principles of design.

ACADEMIC INTERIOR OFFICE DESIGN 08 GESCO 0 1 FLOOR FINISH LEVEL ARCHITECTURAL DIMENSIONS SYMBOLS 00 SCALE 1 : 100 10 15 20
PROXIMITY FIGURE
CONTINUANCE CLOSURE SIMILARITY SOUTH ELEVATION INTERIOR PLAN
AND GROUND
27 PROJECT STATUS : S3P 2018 PRIVATE OFFICE BRAINSTORMING AREA PRIVATE OFFICE MEETING ROOM | ARCHIVE AREA BREAK AREA | PANTRY MEETING ROOM GUEST WAITING AREA CEO PRIVATE ROOM OPEN OFFICE OPEN OFFICE 0 2 0 6 SIMILARITY

Designed and produced a functional outdoor bench using recycled materials which is sourced locally to raise awareness about climate change and as a way to challenge myself as a designer in being sustainable.

BENCH

Inspired by a broken neck x-ray, this chair is a reminder that life is resilient, and ever-changing. Each slat is removable so you can design your perfect fit to contour to your shape.

28 FURNITURE DESIGN 09 FURNITURE
ACADEMIC
01. DIY BENCH 02. RIB
Plan 03. Section A-A 04. 01.. 02.
29 PROJECT STATUS : Built
05.
06. 07. 08. 2018 2019
Front Elevation
Technical Drawing

“Learning to draw is really a matter of learning to see – to see correctly – and that means a good deal more than merely looking with the eye.” - Kimon Nicolaides

30 MISCELLANEOUS SELF-SKILL 10
SKETCHES
31 2015 2019

THANK YOU ANOUD ALMOATHEN anoud.interiors@gmail.com 0531923772

THE END 11 2022
32

Turn static files into dynamic content formats.

Create a flipbook
Issuu converts static files into: digital portfolios, online yearbooks, online catalogs, digital photo albums and more. Sign up and create your flipbook.