

PERANCANGAN ARSITEKTUR 4


PERANCANGAN ARSITEKTUR 5 PERANCANGAN ARSITEKTUR 6 TUGAS AKHIR





IDEAS CONCEPT
Pada konsep bangunan ini tidak hanya berfungsi untuk sebagai bangunan perbelanjaan, namun pengunjung pun bisa merasakan sesansi atau
experience berada di dalam mau pun diluar ruangan konsep bangunan ini bisa disebut dengan INDUSTRIAL MODERN dimana konsep tersebung munggunakan material kontemporer atau bisa disebut era medern, dan kaca lebar untuk memanfaatkan sinar matahari masuk kedalam bangunan . Area bangunan/ site bangunan pun memiliki vegetasi yang cukup , dapat merasakan kesejukan berada disekitar bangunan.




lalu massa kedua dilakukan substraksi pada bag an gubahan massa disesuaikan dengan kebutuhan ruang


Lalu setelah tu dilakukan substraksi pada bagian gubahna massa disesuaikan dengan perlanta nya yang disesuaikan dengan area yang d inginkan

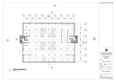
REGULASI
GSB: 10 m
Luas Lahan : 8,584 m²
KDH : 30%
KDB : 50%
KLB: 2



















































































