ELEMENTAL HEALTH Outpatient Chemotherapy Center

Page 1

ELEMENTAL HEALTH

Outpatient Chemotherapy Center

CAPSTONE PROJECT | CIAR 6500 | Studio 5 | Anna Helsel

Reason why...

“This place is making me sicker,” is what my dad used to say when I tookhimtogethischemotherapytreatment.AlthoughIdidn’tknow anything about interior design at that time, I understood what he meant because the facility was depressing. It had no natural light and the clinical blue chairs gave a cold and unwelcoming feeling. The space was designed with only delivery of medical service and treatmentinmind;nothowthespacewouldimpactpatients.

Fortunately, I now know that design can affect how people feel and that nature-inspired design can positively impact a patient’s outcome. With this knowledge in mind, I want to create an outpatient chemotherapy infusion center where all patients feel comfortableandcalm.

Reason why...

Lifetime Chance of Getting Cancer in America: Cancer Treatment Options & Chemotherapy:

1 in 2 for men

Hormone Therapy Bone Marrow Transplantation Radiation

Targeted Immunotherapy Surgery

39.9% in US

1 in 5 people before 75

CHEMOTHERAPY

Most common and most well-known type of cancer treatment

Uses drugs to kill cancer by targeting any rapid growing cells

Medication is delivered through IV, injection (shots), or as pills

Kills both cancerous and healthy cells

Data from American Cancer Society

3
1 in
for women

STATEMENT OF INQUIRY

Elemental Health

Outpatient Chemotherapy Center

In healthcare, it is especially important to create an environment that feels safe, protected, and fosters comfort and calmness. The proposed Elemental Health Outpatient Chemotherapy Center will incorporate clean, soothing colors, and flexible design with WELL Certification standards that emphasize human health to create a comfortable and relaxing environment forallusersofthespace.

RESULT + CONCLUSION

IMPROVEPATIENTOUTCOMESWITHDESIGNbycreatingasoothingenvironmentforpatientsandcaregiverstolowerstressanddiscomfort!

Biophilic Design

Maximizedtheuseofbuildingcurtainwallandwindowstoaccessnaturallight

Createdandviewtonature(greenroof&healinggarden)

Usedbiophilicandnatureinspiredmaterialsandfinishes

Human-Centered

Provided control of space (controlled lights, adjustable furniture, and privacy)

Created diverse range of space

Created intuitive space with an effective way-finding and easy of circulation

*Postive distraction space

Evidence Based

Built environment can influence people's feeling and health

Positively affect patient outcomes with evidence-based design and research

Integrating biophilic elements can lower stress, promote patient wellness and increase caregiver's productivity

Utilized WELL Standards into desing

SITE ANALYSIS 9905 Medical Center Dr. Rockville, MD 20850

MedicalCenterDr.Office Children'sNationalHealthSystem Maryland Rockville Population Health Health Care Spending Montgomery County
MODEL
on Adventist Healthcare's Rockville Campus,
to Adventist Healthcare Shady Grove Medical Center
Montgomery County, Maryland. Site(AquilinoCancerCenter) CenterforAdvancedWoundHealing andHyperbaricMedicine AdventistHealthcare Rehabilitation AdventistHealthcareShadyGrove MedicalCenter Emergency AdvancedPathology Associations,Inc ParkingGarage Adventist HealthCare Campus Map N 68,155 $8,602/ capita Patient to clinician: 723 to 1:
SITE
Located
adjacent
in

THE BUILDING

CURRENTUSE: AQUILINOCANCERCENTER PROPOSEDUSE: ELEMENTALHEALTHOutpatientChemotherpyCenter Radiation Oncology Medical Oncology Oncology Clinic & Support 20,800 SF 14,500 SF 16,200 SF 1st FLOOR 2nd FLOOR 3rd FLOOR
View from Entrance (Reception)
Meditation Room Therapy Room Oncology Lab & Support Chemotherapy TOTAL 35,300 SF
Infusion Area 20,800 SF 14,500 SF 1st FLOOR 2nd FLOOR SUN STUDY The building is facing SW with glass partition walls on the right corner. During the Summer Solstice, the building will receive the most natural light from 12:40 - 5:00 PM During the Winter Solstice, the building will receive the most natural light from 10:20 AM to sunset at 4:49 PM
N
Location Map SITE ELEVATION PROPOSED SITE ELEVATION Vicinity Map Site Location Plan
SITE MAP SITE ELEVATION

BUILDING PHOTOS

1 2 5 3 6 6 4 3 4 5 2 1
Paronamic view of the building View from the right side of the building Back side of the building Glass curtain wall (right corner) Left side of the building with attached radiation room View from the right corner of the building

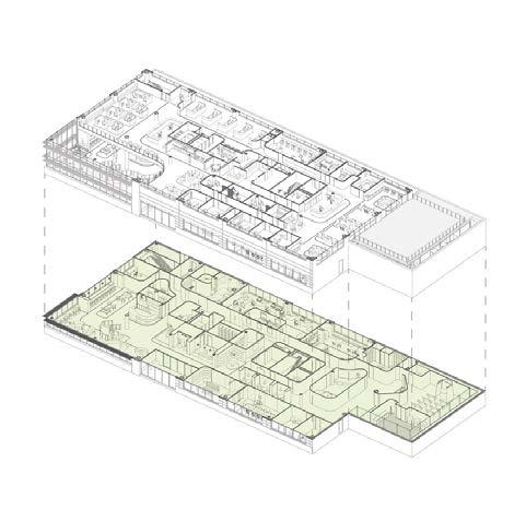
MODELS

Site Model Site Model with Topology Building Front Original Building_Level 1

PATIENT JOURNEY MAP

POSITIVE DISTRACTION

Enters the building Cafe Pharmacy Boutique Lounge Check-in Waiting Area Phlebotomy Waiting Area *Positive Distraction (Avg. wait time 1 hr.) Discharge Sent to Infusion *Positive Distraction (30 min. to 8 hours) Sent Home Positive Lab Result Negative Lab Result *Positive Distraction Space Ideas: Cafe Library Lounge Pharmacy Enclaves Business Center Quiet Corner Boutique shop Chapel Meditation Room Multi-purpose Nourishment

CONCEPT DEVELOPMENT

PROBLEM:

Chemotherapy isn’t something that excites or makes people happy. How can interiors of the space help people feel comfortable? Protected? Give them control?

CONCEPT ITERATIONS:

Nested Enclaves:

Connection

Thresholds

SOLUTION:

Nested enclaves will accommodate a patient’s privacy preference and make each patient feel at home based on that individual preference and give them the control in their enclosed space.

Plan Elevation Section NESTED ENCLAVES

FINAL CONCEPT DEVELOPMENT

PROTECTION THROUGH ENCLAVES

Architectural Photo Collage

CONCEPT

ENCLAVE

"aseparatespaceorgroupwithinalargerone"

Empathizedbyemotionaldistressandvulnerabilityofpatientsandtheir families,enclavespaceswillprovideasenseofprotectionandacontrol.

Enclaveswillalsoaccommodateusers'privacyandofferadiverserange ofspaceforitsusers.

Corner Enclaves Corridor Enclaves (carved) Enclave with materials and ceiling

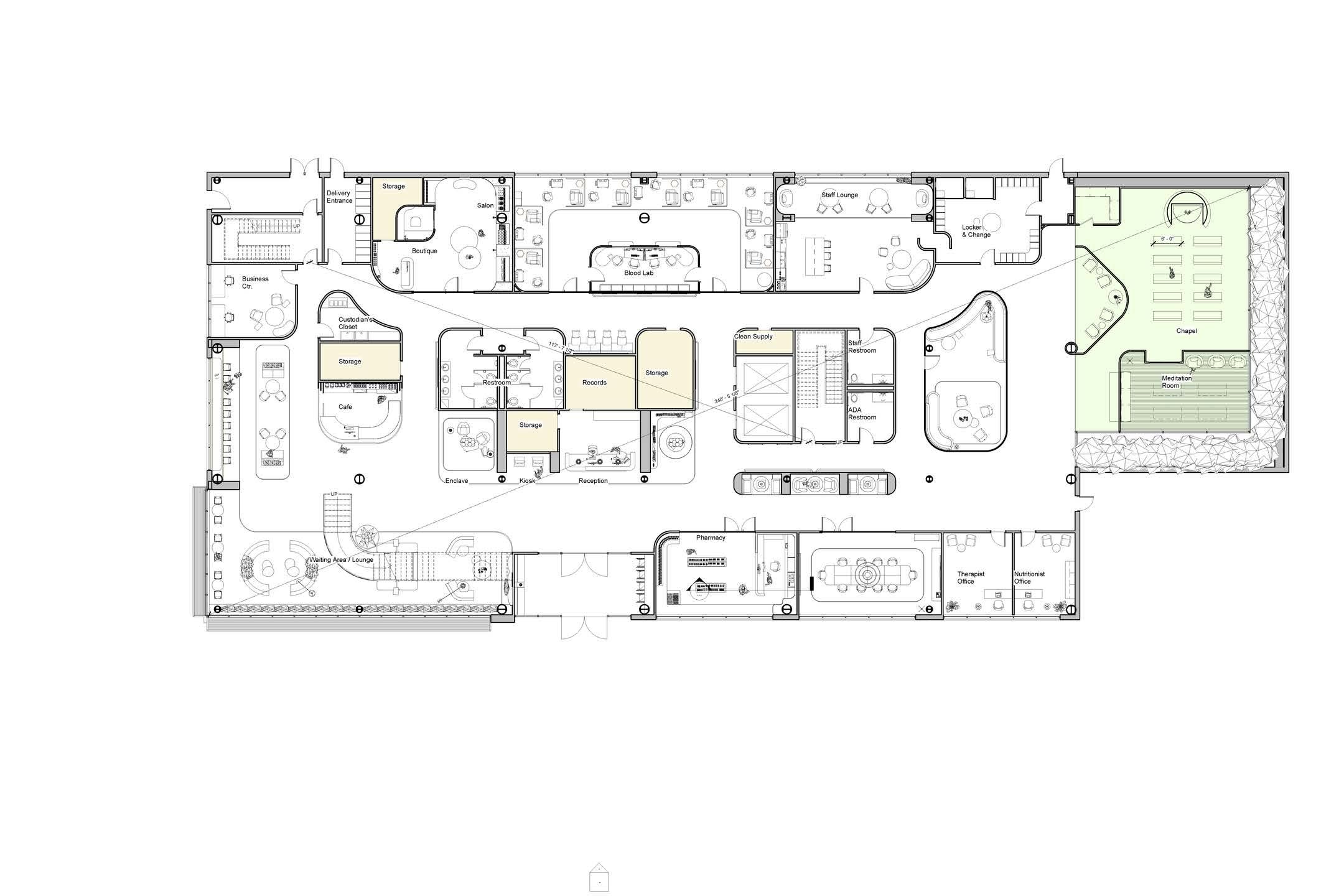
RENDERED FLOOR PLAN_Level 1

Level 1 KEY: 1 2 3 4 5 6 7 Lobby Cafe Seating Business Center Delivery Entrance Custodian's Closet Storage Cafe Corner Enclave Restrooms Boutique Self Check-in Reception Records Waiting Area Lab Blood Lab Storage Books Pharmacy Elevators Corridor Enclaves Conference ADA Restroom Staff Restroom Staff Lounge Locker Room Quiet Area Therapist Office Nutritionist Office Chapel Seating Chapel Storage Chapel Meditation 8 9 10 11 12 13 14 15 16 17 18 19 20 21 22 23 24 25 26 27 28 29 30 31 32 33 ENTRANCE 12 18 17 20 16 15 10 4 5 6 7 3 2 1 8 9 11 19 13 14 22 28 29 21 23 24 25 26 31 30 33 32 27 N 0 10 20 30

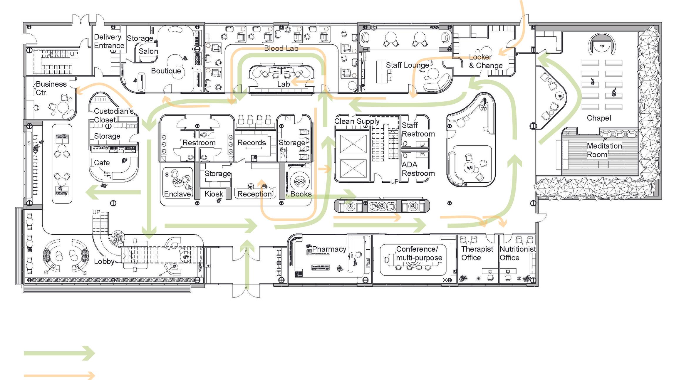
LEVEL 1 CIRCULATION

Patient Staff 0 10 20 30 50 FT N
N
0 10 20 30 50 FT
RCP_Level 1 Level 1 Reflective Ceiling Plan
MarsetIlluminacion Discoco Pendant Lumenwerx RIM Multiple Pendant 4"&6"RecessedLED FritzHansen Concert Pendant Moooi Valentine Pendant

RENDERED FLOOR PLANS_Level 2

N
OPEN TO BELOW Level 2 KEY: 1 2 3 4 5 6 7 Semi-Private (Single) Library Hybrid Nurse Nurse Station Semi-Private Restrooms Nourishment Bar seating Table seating Medication Prep. Enclave Seatings Medical Storage Reception Waiting Area Exam Room Doctor's Office Elevator Lobby Soil Linen Staff Lounge Infusion (Bed) Infusion (Lounge) Wheelchair Parking Staff Restroom ADA Restroom Storage ADA Infusion Family Lounge Hand wash & Lounge Open Bay Infusion Green Roof 8 9 10 11 12 13 14 15 16 17 18 19 20 21 22 23 24 25 26 27 28 29 30 31 17 1 2 4 6 10 12 13 9 8 7 5 3 14 15 15 15 16 16 16 26 28 27 27 29 30 31 3 24 25 29 22 22 23 21 20 11 18 19 0 10 20 30
Patient 80 120 100 CLEAR FLOOR SPACE (FT) Open Bay Semi-Private_Small FGI Required: 70SF FGI Required: 80 FGI Required: 80 Semi-Private_Large Staff 0 10 20 30 50 FT N
LEVEL 2 CIRCULATION

RCP_Level 2

OPEN TO BELOW

0 10 20 30 50 FT
Level 2 Reflective Ceiling Plan Lumenwerx RIM Rounded Pendant FaroBarceelona LED Ceiling Lamp FritzHansen Concert Pendant FritzHansen Concert Pendant 4"&6"RecessedLED Bulbsquare Modern Atom Mickey Head Bubble Glass Ball
1
1 Long Section (Main corridor Enclaves
2 SECTIONS 3
2 Long Section (Lab & Infusion Areas)
SECTIONS
2 Short Section (Curtain Wall & Cafe) 1 Section Callout (1 Fl & 2Fl Waiting enclaves)
3 2
3 Short Section (Quiet Space & Nurse Station)

ENTRANCE

RENDERED PERSPECTIVE (Patient Journey)

GRAB - A - BOOK *Positive Distraction

AXON_Blood Lab

Entrance Exit

BLOOD LAB

One-way circulation

SERENDIPITY BOUTIQUE

*Positive Distraction

Boutique Entrance Try-on Room
View to Parfait-You Cafe
LOBBY
*Bird's Eye View to see the space as a whole
LOBBY
Flos IC Pendant Lights

WAITING AREA & CAFE

Blu Dot Circula Side Table & Bolia Saga Arm Chair View from Corner Enclave View from main corridor Abstracta Holly Acoustic Pendant
*Positive Distraction
PHARMACY

CORRIDOR ENCLAVES

Provides privacy and control

CONFERENCE & MULTI-PURPOSE ROOM

Adaptable space with adjustable furniture

Steelcase

Solo Adjustable Standing Desk & Think Chair

QUIET ROOM

*Positive Distraction

Abstracta Holly Acoustic Lighting

CHAPEL Multi-Faith Chapel

STAFF LOUNGE

2FL RENDERED PERSPECTIVES (Patient Experience)

ELEVATOR CORRIDOR

View to west side of the building

VIEW FROM STAIRCASE

Stairs in public area to encourage movement (WELL)

2nd FL WAITING AREA

View to main corridor and downstaris

NURSE STATION & SEMI-PRIVATE CUBICALS

Steelcase Empath Medical Recliner Chair

SEMI-PRIVATE CUBICALS

From hybrid-nurse stand 2nd FL Corridor Waiting Enclaves Axon_ Semi-Private Cubicals Vibia COSMOS 2510

PRIVATE ROOMS

Requirement for Private Room Area: 100 SF

Lounge Chair Private Room: 150 SF ADA Lounge Chair Private Room: 180 SF *FGI

PRIVATE ROOM WITH BED

Total Square Footage: 246 SF

OPEN BAY & NURSE STATION

Axon & Rendered Perspective

2nd FL STAFF LOUNGE

80 120 100
FLOOR SPACE (FT) Open Bay Semi-Private_Small FGI Required: 70SF FGI Required: 80 FGI Required: 80 Semi-Private_Large
CLEAR

CODES

OSHA REGULATION FOR MEANS OF EGRESS

In every building or structure exits shall be so arranged and maintained as to provide free and unobstructed egress from all parts of the building or structure at all times when it is occupied.

BUILDING CODE ANALYSIS

EXISTING BUILDING TYPE

2017 District of Columbia Building Code Type II - Non Combustible Construction

2013 District of Columbia Fire Code Sprinkled

OCCUPANCY INFORMATION

LEVEL 1 LEVEL 2

Business: 18105.65 SF / 100

Storage: 760.35 SF / 300

Assembly: 1935 SF Bench Type_1 person/ 18"

TOTAL: 20,800 SF O.L: 194

Business: 13981.15SF / 100

Storage: 518.85 SF / 300

TOTAL: 14,500 SF O.L: 142

LEVEL 2

Building Diagonal: 199' 2 21/32"

Exit Separation: 113' 7 1/2"

Means of Egress (Building Diagonal x 1/3): 66.41 FT

*Complies with Code

LEVEL 1

Building Diagonal: 240' 5 1/8"

Exit Separation: 113' 7 1/2"

Means of Egress (Building Diagonal x 1/3): 80.14 FT

*Complies with Code

2
1 0 10 20 30 50FT N
CODES LEVEL
LEVEL

THANKYOU!

ANNAHELSEL
Semi-Private Lobby Open Bay

Turn static files into dynamic content formats.

Create a flipbook
Issuu converts static files into: digital portfolios, online yearbooks, online catalogs, digital photo albums and more. Sign up and create your flipbook.