P O R T F Ó L I O
Anna Clara Fonseca Cesar
P E R F I L
Olá, meu nome é Anna Clara Fonseca Cesar e estou no 8° semestre do curso noturno de Arquitetura e Urbanismo na Faculdade Belas Artes Tenho uma grande paixão pela área e estou sempre em busca de aprendizado, explorando diversas vertentes da arquitetura. Embora ainda não tenha domínio completo de todos os softwares, estou comprometida em expandir constantemente minhas habilidades e conhecimentos
Estou animada com a oportunidade de contribuir e aprender em um ambiente profissional, onde posso colocar em prática minha criatividade e dedicação
H A B I L I D A D E S
H O B B I E S
F O R M A Ç Ã O
2017 - English School Of Canada , SummerJunior Programs, University of Toronto (1 Mês)
2018 - Conclusão do Ensino Médio, no Colégio Novo Tempo (Santos- SP)
2019 - Inicio na Faculdade Belas Artes Arquitetura e Urbanismo
2020 - Curso de AutoCad Básico (20h)
2021 - Estágio de Arquitetura na empresa GC Arquitetura & Engenharia LTDA (duração de 6 meses )
2022 - Curso de SketchUP Básico (20h)
2023 - Estágio de Arquitetura na empresa ALPL ARQUITETURA LTDA (duração de 6 meses )
C O N T A T O S
Telefone: (11) 99639-1303
E-mail: Annaclara fonseca@outlook com Instagram: @annaclarafc
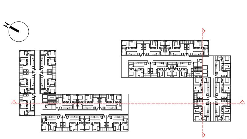
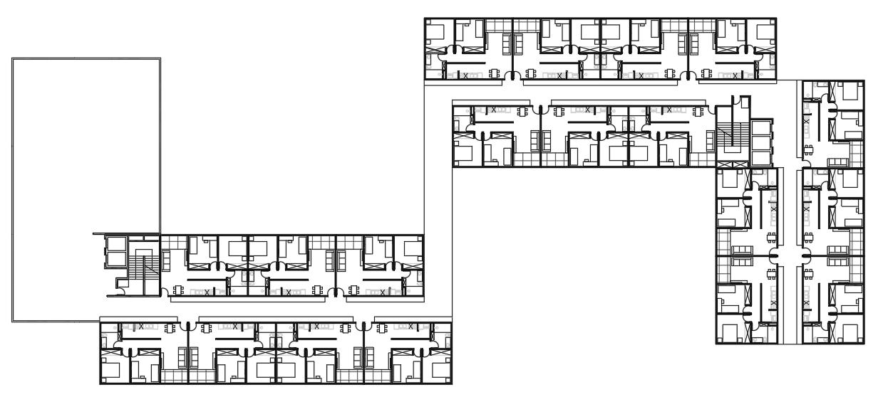
PLANTADOTÉRREO-COMIMPLANTAÇÃODOCOMERCIO
PLANTADOPAVIMENTO10°
PLANTADOPAVIMENTO11°
PLANTADOPAVIMENTO12° 13°
SESCATIBAIA
OproetodoSESCAtibaabuscacriarumespaçodnâmcoeacolhedor promovendolazereentretenimentoemharmoniaco redor LocaizadopróxmoaoLagodoMajor oterrenorcoemáreaverdeecomo agocortandoparcalmenteoterrenoins A arqutetura foi concebida com sustentabiidade em mente, ncorporando placas soares na cobertura, captação de á iluminaçãonaturalemtodooedfco comclaraboasnotetoquegarantemluznaturalabundante Aémdisso amargemdo paraproporconarmaiorvisibiidade comtrêsdeckspermtndoatravessia eumapistadecorridacontornatodooperímet O bloco principal abriga as áreas de serviços de saúde administrativas e operaconas otmzando a eficiência do a experênca dos usuários enquanto o bloco anexo destina-se às atvidades esportivas, ncluindo quadras po esportv pscinas promovendo saúde e bem-estar A proposta arqutetônica favorece ampas áreas de circuação garantindo ven iluminação comsaasorganizadasemtrêsgruposintercaadosporcirculaçõesinternas Para ntegrarosbocos foramprojetadasduaspassarelassobreorio proporcionandovistasprvlegadaseincentvandoo entreasatvdades Opasagismoéoutrodestaque comáreasverdesquediaogamcomoentornonatural crandoespaços eventosculturaiserecreação Emsuma oSESCAtbaiaofereceumambentemultifunconalquevalorzaainteraçãosocia vida reafirmandoaarquteturacomoferramentaparapromoverobem-estardacomundade

IMPLANTAÇÃOCOBERTURA
ÁREADOTERRENO 16.000m²
ÀREACONSTRUIDA
3765m²(BlocoPrincipal)+ 1.560m²(BlocoAnexo)=5.325m²=34%
TAXADEPERMEABILIDADE 10675M²=67%