Anna Peterson - Architectural Portfolio (2025)

Page 1


awpeter@umich.edu

+1 614 441 2269 linkedin.com/in/anna-peterson-2025

2025 Guilford Road Columbus, Ohio 43221

United States

Collectives Studio (2025) - Group Work

PROFESSIONAL EXPERIENCE

COURT ATKINS GROUP |

ARCHITECTURAL INTERN

Summer 2025, Summer 2024, and Summer 2023 | Bluffton, South Carolina

Contributed to custom residential design projects across South Carolina, Florida, Georgia, and California

Managed multiple concurrent projects, maintaining clear client communication and actively participating in client meetings

Collaborated with Project Managers to develop BIM models and drawings from early conceptual sketches to final permit review

KIRSTEN REITE ARCHITECTURE |

ARCHITECTURAL INTERN

Fall 2022 | Vancouver, British Columbia, Canada

Supported the redevelopment and renovation of hospitals, medical offices, and other healthcare centers across Canada

Reviewed local and provincial codes and generated site analysis diagrams during the conceptual design phase

Produced exterior renderings for client review and developed field reports documenting observations from construction site visits

MA DESIGN |

ARCHITECTURAL INTERN

Spring 2022 | Columbus, Ohio

Assisted with schematic design, prepared presentations, and developed contract documents for retail, workplace, senior living, multi-family, and single-family residential projects

Coordinated and communicated effectively with clients, consultants, and in-house team members

ADDITIONAL EXPERIENCE

UNIVERSITY OF MICHIGAN | GRADUATE RESEARCH ASSISTANT

Spring 2025 | Ann Arbor, Michigan

Contributed to research led by Architecture Design Fellow Tess Clancy producing detailed visualizations and models of Detroit residences slated for demolition for a research exhibition

EDUCATION

UNIVERSITY OF MICHIGAN

Taubman College of Architecture and Urban Planning | Ann Arbor, Michigan

Master of Architecture (M.Arch) with Advanced Standing

Class of 2026 | GPA: 3.95/4.0

UNIVERSITY OF CINCINNATI

College of Design, Architecture, Art, and Planning | Cincinnati, Ohio

Bachelor of Science in Architecture, Certificate in Urban Planning

Class of 2024 | GPA: 3.90/4.0

UPPER ARLINGTON HIGH SCHOOL

Columbus, Ohio

Class of 2019 | GPA: 3.80/4.0

01

On Broadway

The Unplugged Studio

Project details

Course Professor Tools

Institutions Design Studio, Fall 2024

Ana Morcillo Pallarés

Rhinoceros 8, Illustrator, and Photoshop

Situated on a post-industrial site along the Huron River in Ann Arbor, Michigan, the historic Argo Substation has been carefully reimagined through adaptive reuse as the city’s newest neighborhood cinema. Our studio investigated successful precedents of adaptive reuse within the movie theater typology, translating key spatial and material strategies into our own interpretation of the Argo Substation site.

Inspired by the substation’s heavy brick facade, I aim to explore the relationship between the existing stereotomic structure and the addition of a new, lighter tectonic framework. The intervention preserves the building’s industrial character while introducing spatial flexibility and transparency to support a contemporary cinematic experience. Ann Arbor has two notable fixed-seating cinemas, the Michigan Theater and the State Theater. With the evolving media trends of today, the On Broadway theater offers flexible seating to accommodate various viewing types, such as immersive screenings and dynamic event spaces.

This project was selected for the Taubman College 2025 Student Show, representing our studio under the guidance of Ana Morcillo Pallarés.

Mixed-Use

Overground Rail System

NEW CONSTRUCTION

PRECEDENT STUDY / URBAN ADJACENCIES

CAMDEN TOWN, UNITED KINGDOM

Regent’s Canal
CURZON CAMDEN CINEMA

Existing Railway Catenaries

PRECEDENT STUDY / STRUCTURAL ANALYSIS

CAMDEN TOWN, UNITED KINGDOM

Exterior Walls:

+ Wood Construction

+ Fiber Cement Board

+ Drywall

+ Natural Stone

Existing Metal Railings

Existing Brick Bridge

+ Glass Curtain Wall
+ Stucco Wall
CURZON CAMDEN CINEMA

ADAPTIVE REUSE + COMPACTNESS

Preserving the historical framework of the existing substation building reduces demolition waste and carbon emissions during construction.

NEW CONSTRUCTION

LIGHTWEIGHT CONSTRUCTION

Building with lightweight materials and promoting modularity increases energy efficiency and decreases costs of overall construction of the building. These systems served as a precedent for the flexibility and adaptability of the cinema layouts and plans.

EXISTING: NEW:

STEREOTOMIC ARCHITECTURE

TECTONIC CONSTRUCTION

FLEXIBLE CINEMAS

NATURAL LIGHTING

Both of these systems expose the structure to natural lighting, decreasing the use of artificial lighting. This not only reduces energy consumption but also creates visually stunning, naturally-lit spaces that enhance the overall quality of life.

EVENING SUN

RETRACTABLE ROOF

SKYLIGHT FOR CINEMA 1 FOR SECOND FLOOR

MORNING SUN

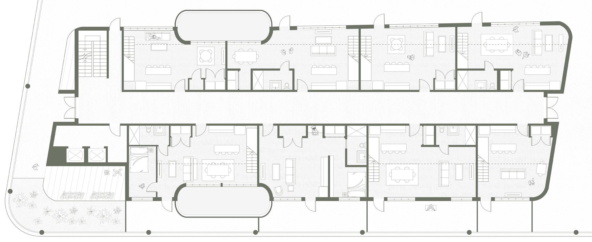
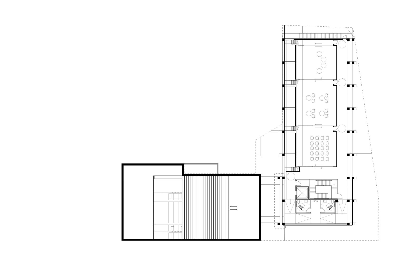
PLAN KEY

GROUND LEVEL

Cinema 1

Ticketing

Concessions

Restrooms

LEVEL ONE Main Entry

Cinema 2

Ticketing + Concessions Restrooms

MEZZANINE Bar

LEVEL TWO

Cinema 3

Restrooms

02

BRAY’S ISLAND RESIDENCE

SINGLE-FAMILY HOME

Project details

Placement Court Atkins Group, Summer 2023

Location Software

Bray’s Island, South Carolina

Autodesk Revit, Illustrator, and Photoshop

Site Analysis

This residence is an artful take on the classic Low-country-style home. A wide entry porch, tall windows, and a hip roof tie the exterior together, while inside, an open floor plan encourages a seamless flow between spaces. Privacy is never an issue with the primary suite and guest rooms located at opposite ends of the house, and additional space in the guest house for hosting.

Main and Guest House Floor Plans

03

DOCUMENTING DEMOLITION:

EXPERIMENTAL PRESERVATION + MEMORIALIZATION

Project details

Professor Tess Clancy

Location

Tools

Detroit, Michigan

Rhinoceros 8, Illustrator, and Photoshop

Documenting Demolition: Experimental Preservation & Memorialization of Demolition in Detroit, led by Tess Clancy, Taubman College Muschenheim Design Fellow, explores new methods of preserving and memorializing demolition within Detroit’s rapidly changing urban landscape. Through research and representation, I assisted in the preparation for the Taubman College Fellowship Exhibition: Rough Cuts in March 2025.

Detroit has witnessed the demolition of more than 30,000 residential homes as part of the city’s ongoing demolition program since 2014. Each home serves as a vessel of memory, family, and history, which narratives are now at risk of erasure. Selecting neighborhood blocks and individual homes, we explored experimental documentation techniques, which seeks to reanimate these lost histories, translating traces of the demolished homes into new forms of architectural representation that both honor and critique the city’s evolving urban fabric.

11794 Whithorn Avenue
2363 Leslie Street 3247 Sturtevant Street

Memory through layers

Scaled models of homes proposed for demolition by the City of Detroit are positioned beside material fragments from the original structures.

Each model was fabricated using contour outlines of the home, with layers precisely cut by a Zünd machine and assembled to reconstruct these forms.

04

THE JAZZ STUDIO

MUSICAL INSTITUTE

Project details

Course Architecture Studio IV, Fall 2023

Professor Tools

Bennett Neiman

Rhinoceros 7, Illustrator, Photoshop, and Hand Modeling

This studio presented a series of architectonic experiments that transpose, manipulate, and articulate the forms, spaces, movements, connections, pauses, and transitions in jazz improvisation. Understanding the differences between the abstract and the literal in architectural design was an essential component of the studio. The ideas developed through this semester translated to a physical site: a jazz institute and campus situated along the Ohio River.

01

Iteration
Iteration 02

In the beginning, our class listened and analyzed selected pieces from the jazz original: Court Basie and Lester Young’s “Lester Leaps In”. Each iteration maps an analysis of a specific chorus from the composition.

For this project, I was assigned the double bass, a large stringed instrument. We explored sections, elevations, and details derived from historic jazz patents. Below are three collages of my “invented instruments,” each celebrating the selected instrument’s architectonic forms.

After we physically modeled the first three 10”x10” architectonic reliefs, we were asked to digitally reconstruct and reconfigure our photographs into well composed super reliefs (see selected iteration above). Each enhancement required improvisational moves such as adding, subtracting, compressing and expanding.

Additionally, we created a series of figure-ground drawings which were used as precedents to our next exercise, the physical models of the site interventions.

SIDE A

Site Strategy Grids

Longitude and Latitude Walnut Hills

Downtown Cincinnati Dayton, Kentucky

Proposed Program

1. Public Entrance

2. Performance Hall

3. Galleries

4. Monk’s Dream - Speakeasy

5. Research Library and Archives

6. Administration

7. Riverfront Access

8. Outdoor Performance Pavilion

9. Improvisational Garden

10. Dormitory and Dining Hall

11. Lecture Halls

12. Rehearsal Halls

13. Recording Studios

14. Practice Cells

02 - Dormitory and Lecture Halls Section
01 - Performance Hall Section
Final Four 20” x 20” Architectonic Reliefs

05 THE

COLLECTIVE MULTI-FAMILY HOUSING

Project details

Course Architecture Studio III, Spring 2023

Professor

Tools

Joss Kiely

Rhinoceros 7, Illustrator, and Photoshop

The concept is centered around a 100 unit intervention with a host of shared amenities aimed at both the project’s residents and the greater urban context in which it is situated. Located along the banks of the Ohio River in Bellevue, Kentucky, the precedent for the proposed design is inspired by the mat-building typology concept. With such a large program, including recreational amenities, outdoor courtyards, and parking, the mat typology design offered a intriguing solution which answers questions of collective and dense urban living.

Developing typical units was necessary, just as each level adapted slightly to maximize views and circulation, each of the units are slightly unique on each floor plan. One of the main drivers which shaped the geometry of the design was around the idea of exterior circulation. Instead of long and monotonous building corridors, the project was proposed with more social possibility. Each of the exterior walkways can be filled with lush vines, gardening areas, and places to sit and chat with neighbors. These open corridors wrap around the building’s exterior, while windows to private units along the walkway create visual connections between private and semi-public spaces. The design allows each unit’s to feel personalized, yet still connected to the collective whole.

Double-Height 1 Bed

Double-Height 2 Bed

Double-Height 3 Bed

Double-Height 1 Bed Perspective Vignette

Exterior Perspective Vignette

Typical Unit Plans

SHERIDAN DENTAL HEALTHCARE OFFICE

Placement

Location

Software

MA Design, Spring 2022

Grove City, Ohio

Autodesk Revit, Illustrator, InDesign

Project details

During my Co-op at MA Design, I had the opportunity to take part in a newbuild family-owned Dental Office project. I contributed to the schematic design by preparing presentations and rendering spaces for client review. I attended various City Planning and Zoning Commission meetings with our team and clients.

awpeter@umich.edu

+1 614 441 2269

linkedin.com/in/anna-peterson-2025

2025 Guilford Road Columbus, Ohio 43221 United States

Turn static files into dynamic content formats.

Create a flipbook
Issuu converts static files into: digital portfolios, online yearbooks, online catalogs, digital photo albums and more. Sign up and create your flipbook.
Anna Peterson - Architectural Portfolio (2025) by anna_peterson2025 - Issuu