Portfolio 2024

Page 1

selected works 2024
portfolio anna serysheva

aserysheva@gmail.com +31644725755

Rotterdam

2
ANNA SERYSHEVA

EDUCATION

Aug 2021 - present

Aug 2018 - Aug 2021

MSc. of Architecture

Delft University of Technology, NL

BSc. of Architecture, Urbanism and Building Science

Technical University of Eindhoven, NL

PROFESSIONAL EXPERIENCE

Aug 2022- Dec 2022

June 2020 - Aug 2020

Architectural Intern

INBO, NL

Architectural Intern

CHYBIK + KRISTOF Architects & Urban designers, CZ

EXTRACURRICULAR ACTIVITY

Aug 2021- Jun 2022

Sep 2019 - Mar 2021

SKILLS / LANGUAGES

Skills

Student Team SUM - Solar Decathlon

Delft University of Technology, NL

Student Team CASA

Technical University of Eindhoven, NL

Languages

Modeling: ArchiCAD (intermediate), AutoCAD (intermediate), Revit (proficient), Rhino (advanced), Grasshopper (intermediate), Rhino.Inside.Revit (intermediate), Sketchup (advanced)

Visualization: AdobeCC (advanced) , D5 Render (proficient), Enscape (advanced), Lumion (advanced), Twinmotion (advanced), VRay (proficient)

Technical: Python (beginner)

Russian (native), Czech (native), English (fluent), German (B1), Dutch (A2)

3
4
CONTENTS 6 20
KOMPOSITION KONSTEPIDEMIN
LOCAL-INNO
5 32 40 LIGHTBOX ADDITIONAL WORK

Exterior impression

6

Location: Gothenburg, Sweden

Type: Transformation; Eduaction & Creative space

Studio: Transformation projects

Term: 2023, 14 weeks

Group work (3 members)

KOMPOSITION KONSTEPIDEMIN

Transformation of an artist collective

Historically an epidemic hospital, the art collective Konstepidemin is facing challenges due to the lack of diversity among its resident artists and declining relevance within central Gothenburg. The project views Konstepidemin as a Palimpsest, aiming to preserve its historical layers and introverted identity while introducing a new layer with complementary extroverted qualities to enhance collaboration and relevance. To promote diversity, art students are welcomed to communal workshops established to encourage collaboration. Vertical extensions facilitate co-working and educational workshops, while outdoor structures include flexible studios and outdoor workshops, catering to diverse stakeholder interests. The lightweight timber structure of the extensions respects existing historical buildings, while the foldable facades enhance connectivity between interior and exterior spaces, promoting communication and vitality.

Our group collaboration was marked by committed involvement from all members, with each contributing equally to the design process. Every decision was carefully discussed and argued, resulting in an thorough thought-through design. The responsibilities were separated in the final stage of visual production.

In the team, my main role was developing a highly detailed 3D model in Rhino, serving as the basis for most of the drawings. I also handled render model setup (Enscape), production and post-production of renders.

If a drawing presented in this portfolio is not mine, it’s explicitly stated for clarity.

7

Adaptive reuse strategies

Partially Erasing

Writing Over

Underlining

8 existing
new
existing historic new new

Context axonometry

9

Interrior impression: first floor

Interrior impression: second floor

10

Combination drawing

Collaborative effort with Jessica Börjesson

The delicate balance between preserving the historic identity of the site and addressing the necessity for expansion and reconfiguration to ensure the community‘s vitality was tackled by introducing a series of vertical and horizontal extensions tactfully integraded with the existing structures

12
13
Courtecy of Jessica Börjesson

Urban section

14

The elevated upper boundaries of the buildings amplify the enclosure of the square between them, effectively framing the redefined extraverted space. The design establishes a dynamic interplay of levels, fostering diverse forms and degrees of inter-

15

roof

second floor: supporting structure (wood)

second floor: slab & walls

second floor: outer facade layer (mesh)

second floor: insulating facade layer (wood)

first floor: supporting structure (wood)

first floor: existing buidling structure (brick)

ground floor: existing buidling structure (brick)

entrance (mesh)

16
17

Exterior impression - Summer & Winter

18
19
20
AI (PromeAI) based on Rhino model export + PS Post production

Location: Azraq, Jordan

Type: Education, community center; Climate design focus

Studio: Architectiural engineering

Term: 2022, 10 weeks

Individual work

Local-inno

School and community center in a refuge camp

Located within Jordan’s Azraq refugee camp, Local-inno seamlessly blends local practices with engineering advances to improve the challenging lives of displaced communities. The deployable school concept combines easily assembled modules crafted from both local and innovative materials, integrating vernacular thermal control methods like windcatchers and thermal mass utilization for climate adaptability.

Beyond educational spaces, the design prioritizes the wellbeing of the users of the space with leisure areas and community hubs, including a community center and spaces for additional employment. To address privacy concerns, an arched arcade around hygiene areas fosters safety for women while enabling-eyes on the street effect and community oversight.

From a structural perspective, H-shaped loadbearing walls are constructed by unskilled workers using local rammed earth. Slats are mounted onto reinforced fiber frames provide ventilation. This assembly ensures maximum climate comfort with phase changing material, aerogel, and trombe wall membrane aiding regulating temperatures day and night.

21
22
23
Maquette render
24
25
26
27
28
AI (PromeAI) based on Rhino model export + PS Post production
29
AI (PromeAI) based on Rhino model export + PS Post production

Summer day and night climate scheme

30

The climate system of the design combines vernacular practices, such as the thermal mass principle of rammed earth walls and windcatcher systems, with innovative materials and systems available from regions known for their advancements in research and technology, showcasing progress in sustainable design principles. This includes utilizing phase-changing materials, light weight aerogel insulation, and Trombe wall principles achieved through a unrolling membrane. The lamellas within the system are manually turnable, allowing adaptability to specific scenarios. Teh system is deployed in disassembled state and easily assembled on site by unskilled workers

During hot summer days, the rammed earth walls and windcatchers facilitate ventilation by guiding air inside alongside the draft created by opened lamellas, while phase-changing materials absorb excess heat. In cooler summer nights, these materials release stored heat to the outside.

During colder winter days, the membrane acts as a Trombe wall facade system, absorbing solar radiation to heat the air inside using principles of air pressure physics. The windcatcher is equipped with a heat exchange system that warms incoming air using the energy from outgoing warmer air.

Winter day and night climate scheme

31

Exterior impression

32

Location: Maastricht, The Netherlands

Type: Public building, Cultural venue

Studio: Bachelor end project

Term: 2021, 20 weeks

Individual project

LIGHTBOX

The new philharmonic in Sphinxkvartier

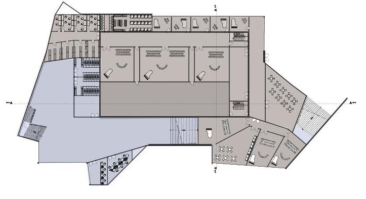
The objective of the Bachelor-end-project was to design a complex philharmonic in Maastricht, specifically in the part called Sphinxkwartier, north of city center. The brief included additional design of urban open air theatre on the same site. The proposal follows the design concept of a rectangular box inside a box with organic geode-like polygonal extensions emerging form it. The geometry creates diversity of spaces inside the building and allows separation of routing for visitors of the philharmonic and its performers, while maintaining of balanced level of experience for both. As part of my research question I investigated extending user experience of architecture through kinetic elements. As a result, the facade of the building is equipped with light installation that reflects the performance that is happening on the inside through changing colors and patterns, thus allowing users of the public space around to enjoy the performance as well. Additionally, the inside of the concert hall is equipped with kinetic walls that move with the rhythm of the performed music, accentuating the experience of listeners.

33
36
Ground floor (brown: performers area, bue: public area) First floor (brown: performers area, blue: public area)
37
Second floor (brown: performers area, blue: public area) Third floor (brown: performers area, blue: public area)

impression

38
Exterior
39
40
MICROLAB Axonometric section

ADDITIONAL WORK

assemblage of additional work and projects showing digital skills and design abilities

41
42

Location: World

Type: Experimental research

Studio: MVRDV Why Factory

Term: 2021, 10 weeks

Group project

PIXEL PLANET

Experimental research on modularity of units, clusters, scapes

During the experimental studio The Why Factory led by one of the founders of MVRDV Winy Maas . The research on the possibilities of prefabricated design was conducted by uniform efforts of 30 students, separated into smaller research groups based on scale - units, cluster and scape.

I was part of the scapes research where we researched how can we turn landscape three-dimensional voxels. As part of the research we tried to broaden our imagination horizon and bring ideas such as scripted forest made of flying voxels into measurable by quantity and quality models which can be analyzed based on data and evaluated based on performance. As conclusion, a program proposal was scripted for each of the scenarios and evaluated. All the scenarios were compiled into a User interface The Pixel Maker which allowed creation and evaluation of all the scenarios.

43

Exterrior impression

44

Location: Eindhoven, The Netherlands

Type: Trnsformation; Complex project

Studio: Multidisciplinary projects

Term: 2020, 10 weeks

Group project

MICROLAB TRANSFORMATION

Redesign of an outdated structure into a multi-functional complex

Axonometric section

45
46

Location: Maastricht, The Netherlands

Type: Urban design

Studio: Bachelor end project

Term: 2021, 4 weeks

Individual project

OPEN AIR THEATRE

Complimentary urban design in proximity of Philharmonic

47

Turn static files into dynamic content formats.

Create a flipbook
Issuu converts static files into: digital portfolios, online yearbooks, online catalogs, digital photo albums and more. Sign up and create your flipbook.