Indians believe that the knowledge or medicinal plants is older that history
itself, gifted hundreds of thousands of years ago to the original inhabitants of
India by Brahma, the divine creator. thus when the Ayurveda sought to heal
human suffering they were able to draw on knowledge that had already been
evolving for millennia in the forests of India. Traditional healing in India
greatly relied upon reconnecting man and nature. But if we see condition of
outdoor spaces in most of the Indian Hospitals, a different picture is
observed which is contradictory of above statement. Indian Hospitals are ill-equipped in utilizing their open spaces.
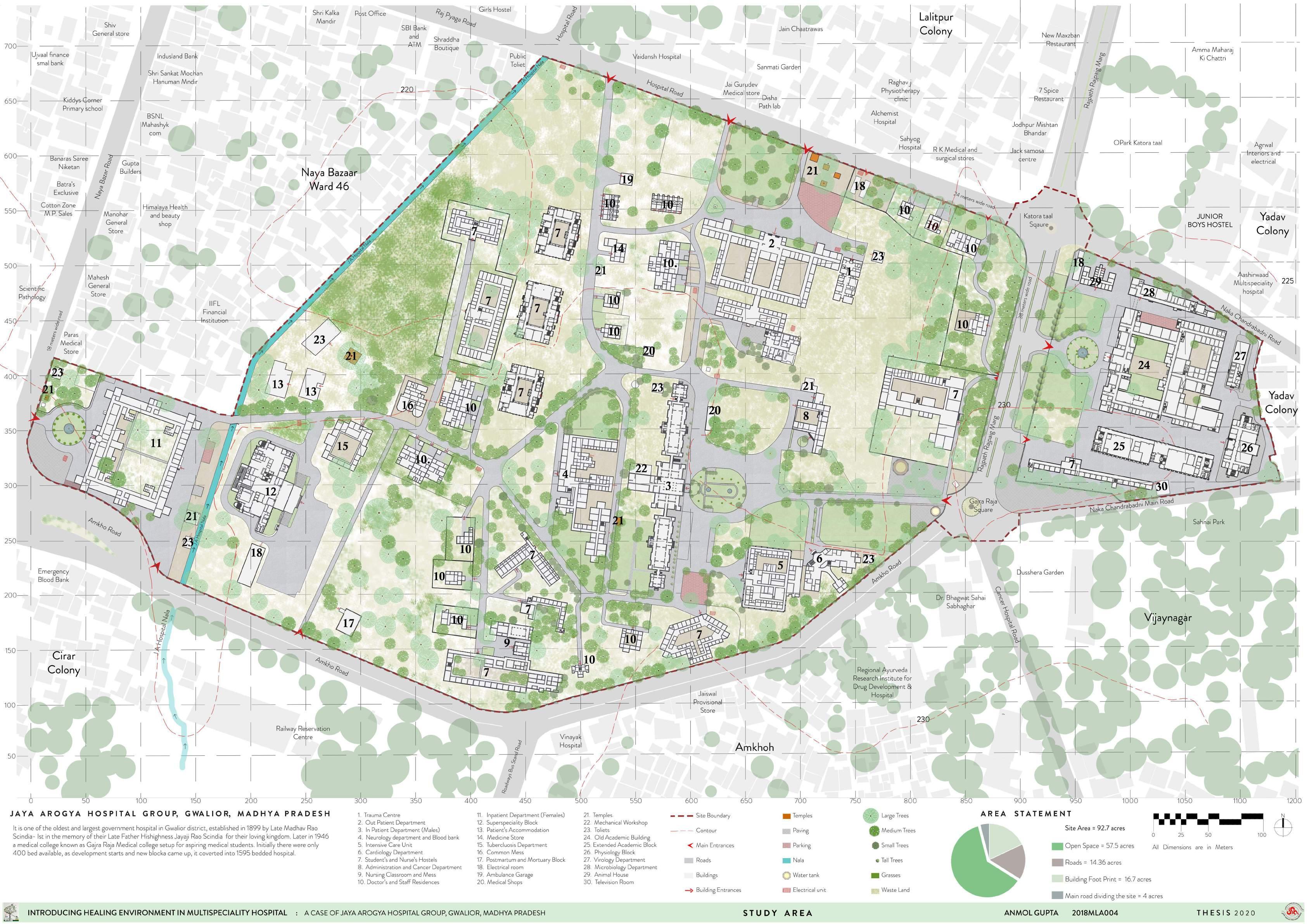
This thesis summarizes the concept and process of healing,
significance of natural environment in healthcare facilities. Later on these
theories, concepts and processes are converted into practicality in the form of
design in Jaya Arogya Hospital, Gwalior, Madhya Pradesh that is chosen for
the study purpose.