Skip to main content

Architecture portfolio

Page 1

(Manipal School of Architecture and Planning, Manipal)

9361313384 ankuswamy231@gmail.com

PROFILE CONTACT MAIL

Architecture Portfolio.

Darsini Durai
SELECTED WORKS 2019 / 23
B.ARCH

I am pleased to be applying for the intern architect position at your firm. I hope that my qualification and my qualities would make me a perfect fit for the role. I believe that working under you would be the opportunity of a lifetime for me to learn new things, further develop my expertise and grow both personally and professionally.

I am a fourth year Architecture student at Manipal University. During my academics I’ve worked on multiple individual and group projects. These assignments allowed me to become a great team player and taught me how to function well in fast paced and deadline driven environment.

Apart from my academics, I was part of AIESEC (a global platform for young people to develop their leadership potential) MAHE and was also a campus ambassador at Viral fission. I also have certifications in programming languages like C++ and python. Since my elective subject is Interior Design, I have a brief idea in that field as well.

I hereby assure that all the information given by me is true to the best of my knowledge and I hope that my portfolio will reflect me and my qualities.

CURRICULUM VITAE

CONTENTS 01 CANEPOLIS WELLNESS RESORT 02 LITTLE
KINDERGARTEN 03 MEADOWS IN THE SKY 04 WORKING DRAWING (AUTOCAD) 05 ADDITIONAL WORKS
HEARTS

CANEPOLIS WELLNESS RESORT 01

Mergingwithnaturehasbeenattheforefrontinthe approachtothedesignofthisresort.Thealternative buildingmaterialsmakesit sustainable,aesthetic andfunctional.

inspirationfordesignwassoughtfromnature.Leavesdepicthope, renewaland revival.Theroof actsasabig leafwithsignificantslopethat protectsbuildingfromharshclimates.Thefreeformofleafisutilizedto transformitintointerestingcurvestocreatebaseforthedesignofthe

CONCEPT & FORM DEVELOPMENT Standard room Parking Reception & Restaurant Villas Pool Spa Yoga dome Staff accommodation Parking Lotus pond
SITE PLAN AND SECTION N
The
roof

CONCEPT

ROLLINGOFFOURDICE THEPOSITIONOFDICEISALIGNED ACCORDINGLYANDTHERESTOFLAND AREAISCARVEDTOFORMISLAND GARDENS.

THECONCEPTOFISLANDGARDENS

VIEW SPATIALCONCEPT

PATHWAYS

MAXIMUMINTERACTIONWITH INTERIOR ANDEXTERIORSPACES

WINTERWIND

GREENROOF

THEKEYCONCEPTIS CONNECTIVITYCREATINGSPACES THATSTIMULATEINNOVATION

ALLSEPARATEVOLUMESWILLBE RECONNECTEDTOENABLESOCIAL INTERACTIONWITHINTHEBUILDING

GIVESMAXIMUMTRANSPARENCY

ROOF CONCEPT

FRONTELEVATION

PLANS
GROUNDFLOORPLAN FIRSTFLOORPLAN
AND ELEVATION
N
1 2 3 4 1.FACULTYCHAMBERANDCRECHE 2.ACADEMICBLOCK1 3.ACADEMICBLOCK2 4.MULTIPURPOSEHALL

03HIGH RISE APARTMENT

CONCEPT & CLUSTER RELATION

BIOMIMICRY

Concretetowerlinedwithsteel frames.Varietiesofplantspecies aretwinedascreepers

Justlikehowthetrunkofthe treeactsasacentralmediumfortransportation ofnutritionupanddown,inthedesignthecentralcorestructureactsa mediumfortransportationandinteraction.

Actsascentraltrunkofsupertree

Allthewingsattachedtoitactslikethebranchesofatree providingqualityliving.

Block3

Waterbody

Block4

SITE SECTION
REVIT MODE L

WORKING DRAWING

04
(AUTOCAD)

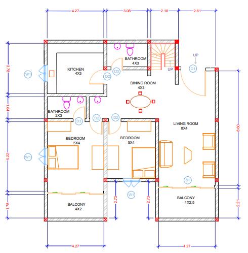
GROUNDFLOORPLAN

CENTRELINEPLAN

FRONTELEVATION

FIRSTFLOORPLAN
FOOTINGPLAN
HORIZONTALSECTION

ADDITIONAL WORKS 05

01 AUDITORIUM DESIGN

Mini kitchen

Bunk beds (3)

Washroom

Foldable steps

Hollow windows sealed with openable glass

SINGLE DWELLING CAPSULE

Bunk beds (3)

Mini kitchen

Bunk beds (3)

Foldable steps

Hollow windows sealed with openable glass

• Eachdwellingcapsulesarevery compactthattheyare approximatelyaround11.14sq.m

• Thefamilydwellingcapsulecan accommodatearound3-4people

• Thesingledwellingcapsulecan accommodatearound6 7people

Thedesignwasmadeinsuchawaythatitshouldbean efficient,compact,transportableandcomfortableatthe sametime.Thedesigninspirationwasfromacapsule.

Thewholemoduleisdesignedtobeamovableliving.

Polishedmildsteelandaluminumforthesuperstructure

Whitejutamembraneasaninteriorcoatingthroughoutto regulateweatherandtoactasatemperaturemoderator

FAMILY DWELLING CAPSULE
POD LIVING 02
03HISTORY SKETCHES
BCM SHEET WOR K 04

Thank you.

If given the opportunity I shall deliver excellence with passion and curiosity. Thank you for your time and consideration. I look forward to speaking with you in the near future.

Turn static files into dynamic content formats.

Create a flipbook