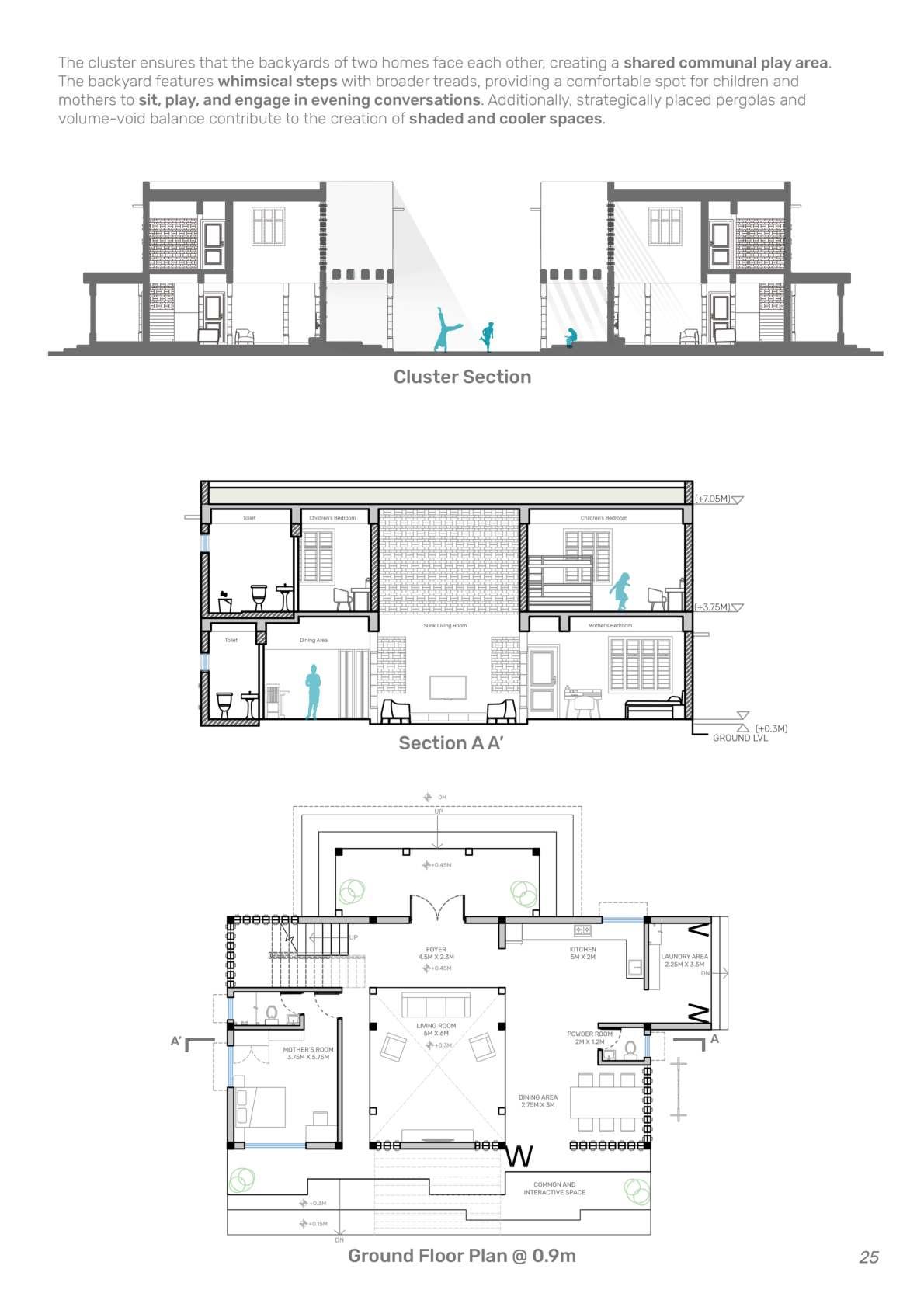
Skip to main content

Architecture Portfolio

Page 1

Turn static files into dynamic content formats.

Create a flipbook