UNDERGRADUATE ARCHITECHTURE PORTFOLIO

Page 1

ANKIT RAJ

4th Year Undergrad Architecture Student QUALIFICATIONS

B.ARCH National Institute Of Technology Patna

2019- Present Department of Architecture and Planning, NIT Patna

INTERMEDIATE B.D Public School | Patna

2019 C.B.S.E Board

MATRICULATION R.P.S Residential School | Patna

2017 C.B.S.E Board

EXPERIENCE

ARCHITECTURAL Space Design l Patna

INTERNSHIP 3D Visualization of Projects include Hostel Block of AB Eye Institute, Parsa; July 2022 Facade Design of Residence; Planning of Bank and School classroom.

ARCHITECTURAL JPDS l Faridabad

INTERNSHIP Preparation of Working Drawing of the Riyadh City North May 2022 - June 2022 Landscape projects.

PERSONAL INFO

Name Ankit Raj

D.O.B 24/08/2002

Nationality Indian

Languages Hindi & English

Address:

Hajipur, Vaishali, Bihar

Phone: +91 7004989714

Mail: ankitrajchoudhary8000@gmail.com

LinkedIn: https://www.linkedin.com/in/ ankit-raj-950387154/

NASA INDIA Annual Nasa Design Competition

December 2021 Member in ANDC and we work on designing and modelling of pre fab housing for construction site workers.

PHOTOGRAPHY VISTA | NIT Patna

Aug 2019 - July2021 Team member of VISTA Photography club of NIT Patna.

Aug 2021 - Dec 2022 Served as a President of the VISTA Photography Club of NIT Patna. Guiding the team members with different types of photography skills and organized various photography events.

PUBLICATION Stanchion | NIT Patna

Aug 2019 - Aug 2020 Worked on Architecture related topics for the magazine articles.

Hello, I’m ANKIT

Detail-oriented and hard-working 4th Year Architecture student of NIT Patna with good skills of designing commercial/residential projects, providing functional concept solutions, and conducting reports on the progress of the projects. Offers strong attention to accuracy, extensive knowledge of multiple architecture software programs, and great teamwork abilities. I want to make the world a better place than as we know it by further improving my skills and by learning new things.

TECHNICAL SKILLS

AUTODESK AUTOCAD

AUTODESK REVIT SKETCHUP

ADOBE PHOTOSHOP

LUMION

TWINMOTION

ADOBE INDESIGN MS OFFICE

INTERESTS SOFT SKILLS

CREATIVITY TEAMWORK

COMMUNICATION

HARDWORK

INTERIOR DESIGN ARCHITECTURAL DESIGN DRAFTING PHOTOGRAPHY RENDERING TRAVELING GAMING

1 2 ANKIT RAJ | UNDERGRADUATE PORTFOLIO SELECTED WORKS

SELF DECLARTION

This portfolio contains a collection of both academic and nonacademic projects. These projects have been completed during the last eight semesters and have complied together for this portfolio. All work displayed in this portfolio are authentic and genuine to the best of my knowledge.

3 ANKIT RAJ | UNDERGRADUATE PORTFOLIO
C O N T E N T S 0 1 R E S I D E N C E 0 2 G R O U P H O U S I N G 0 3 S H O P P I N G M A L L 0 4 S T R E E T S C A P E L A N D S C A P E P R O J E C T 0 5 R I Y A D H C I T Y N O R T H L A N D S C A P I N G 0 6 H O S T E L B L O C K 0 7 A R C H I T E C T U R E D E T A I L I N G 0 8 W O R K I N G D R A W I N G 0 9 M I S C E L L A N E O U S
- ANKIT RAJ

01. SUNAND NIVAS RESIDENCE

AUTOCAD+SKETCHUP+LUMION

PROJECT DETAIL

TYPE: ACADEMIC

SEMESTER: IV

LOCATION: HYDERABAD, TELANGANA

SITE AREA: 3720 sq.m

SITE VIEW

INTRODUCING A STUNNING LUXURY RESIDENCE NESTLED IN THE HEART OF AN EXCLUSIVE NEIGHBOURHOOD. THIS ELEGANT HOME BOASTS 3720 SQ.M OF LIVING SPACE AND FEATURES A UNIQUE ARCHITECTURAL DESIGN THAT SEAMLESSLY BLENDS MODERN AND CLASSIC ELEMENTS. THIS RESIDENCE CONSISTS OF VARIOUS SPACES LIKE MUSIC STUDIO, GYM, OFFICE, SWIMMING POOL ETC. DESIGNING A LUXURY RESIDENCE WITH MUSIC FACILITIES REQUIRES CAREFUL CONSIDERATION OF BOTH THE MUSICAL REQUIREMENTS AND THE OVERALL AESTHETIC AND FUNCTIONALITY OF THE HOME.

8 SELECTED WORKS
04 02 03 05 01
1. ENTRANCE 2. RESIDENCE AREA 3. PARKING AREA 4. SITOUT SPACE 5. POOL AREA
N

GROUND FLOOR PLAN FRONT ELEVATION

THE FRONT ENTRANCE MARKS WITH FOYER ABOVE MAKING IT LOOK GRAND. THE FORMAL SPACING IN THE FIRST FLOOR HAS A DETAIL IN FACADE WITH LOUVERS TO ENHANCE IT IN THE FRONT ELEVATION. THE FIRST FLOOR ALSO HAS AN OUTDOOR SEATING SPACE. WIDE STRETCH OF WINDOWS ARE PLACED FOR PROMOTING CROSS VENTILATION THROUGHOUT THE STRUCTURE. THE CHAJJA ABOVE THE WINDOWS ARE MODIFIED WITH A BLEND OF MODERN AND TRADITIONAL. DESIGN.

FIRST FLOOR PLAN SIDE ELEVATION

THE STAIRCASE TOWER HAS A DESIGN ELEMENT OF JAALI THROUGHOUT ITS VERTICAL LENGTH. IT ALLOWS TO HAVE VISUAL TRANSPARENCY TO THE OUTER SPACE ALONG WITH A PLAY WITH THE LIGHT IN THE INTERIOR SPACE. THE WIDE WINDOWS ARE RUNNING ALONG THE LENGTH IN THE SIMILAR WAY AS THE FRONT ELEVATION PROMOTING CROSS VENTILATION. THE CHAJJA DESIGN ALSO REMAINS THE SAME HERE.

9 10 ANKIT RAJ | UNDERGRADUATE PORTFOLIO SELECTED WORKS UP FAMILY LOUNGE DINING AREA KITCHEN STORE ROOM W.C MASTER W.C MASTER BEDROOM CHILDREN BEDROOM GUEST BEDROOM W.C OFFICE MUSIC ROOM DRAWING ROOM AREA SITOUT SPACE (COVERED) (6 5) M (6 5) M (6 X 5) M (6 X 5) M (4 X 3.5) M (3 2) M (3 X 2) M (3 2) M (3 X 2) M (3 X 2) M (6 X 5) M (5.83 X 4.75) M (7.89 X 5.84) M (3 X 2) M (6 X 4) M (6 X 4) M ENTRY GUEST BEDROOM (6 X 5) M CHILDREN BEDROOM (6 X 5) M W.C MASTER BEDROOM MASTER BEDROOM UP GYM MEETING ROOM OFFICE RECREATIONAL SPACE (COVERED) TERRACE GARDEN OPEN TERRACE AREA BALCONY W.C BALCONY (6.5 X 5.6) M (6.5 5.6) M (3.5 X 2) M (10 X 5) M (11 X 6) M (7.3 9.8) M (10.5 6) M GAME ZONE
N N

VIEWS

11 12 ANKIT RAJ | UNDERGRADUATE PORTFOLIO SELECTED WORKS

02. FOUR FLAMINGO

GROUP HOUSING AUTOCAD+SKETCHUP+LUMION

PROJECT DETAIL

TYPE: ACADEMIC

SEMESTER: VI

LOCATION: PATNA, BIHAR

02

SITE VIEW 08 08 05 06 07

03 09 09

11

11 11

1. ENTRANCE

2. VISITOR’S PARKING

16 SELECTED WORKS
SITE AREA: 6.62 ACRES 01 04 10 10
3. APARTMENTS’ PARKING 4. POND 5. CONVENIENT SHOP 6. PARK 7. SWIMMING POOL 8. EWS APARTMENTS 9. LIG APARTMENTS 10. MIG APARTMENTS 11. HIG APARTMENTS N THE AIM OF THE PROJECT WAS TO DEVELOP APARTMENTS HOUSING SOCIETY WHICH OFFERS VARIED UNIT TYPES OF APARTMENTS. THE HOUSING SOCIETY SUPPORTS VARIOUS ECONOMIC GROUPS WHICH ARE EWS (ECONOMICALLY WEAKER SECTION), LIG (LOWER INCOME GROUP), MIG (MIDDLE INCOME GROUP), AND HIG (HIGHER INCOME GROUP). ADDITIONALLY, THE PROJECT OFFERS ITS RESIDENTS A RANGE OF AMENITIES, INCLUDING A HANDY STORE, PLAYGROUNDS, JOGGING TRAILS, PARKS, A SWIMMING POOL, A COMMUNITY CENTRE, AND MORE. THE SITE IS WELL CONNECTED WITH PUBLIC TRANSPORT FACILITIES LIKE BUS STAND AND RAJENDRA NAGAR RAILWAY STATION NEARBY AND ALSO HAVING A MARKET.

1BHK FOR EWS (Economically Weaker Section)

2BHK FOR LIG (Lower Income Group)

17 18 ANKIT RAJ | UNDERGRADUATE PORTFOLIO SELECTED WORKS BEDROOM DRAWING + DINING KITCHEN BALCONY (2 3) (2 X 2) (3.5 X 4) (2 X 1.2) (3.5 X 5) W.C ENTRY KITCHEN HALL ROOM DINING W.C 5.5) (2X1.8) (2X1.8) (3.5X4) (3 X 1.2) (2X3) (3.5X3.2) ENTRANCE
ENTRANCE (3.5 (3.5 (3.5 1.2) W.C (3.5 1.2) W.C (3.5 1.2) W.C (3.5 1.2) W.C X X X X UNIT PLAN UNIT PLAN FRONT ELEVATION FRONT ELEVATION SECTION XX SECTION XX CLUSTER PLAN CLUSTER PLAN

2.5BHK FOR MIG (Middle Income Group)

3BHK FOR HIG (Higher Income Group)

19 20 ANKIT RAJ | UNDERGRADUATE PORTFOLIO SELECTED WORKS BALCONY (3.8X4) (2.8X1.8) (2X1.8) (3X3.2) 1.2) (5X3.5) HALL ROOM KITCHEN BEDROOM STUDY ROOM HALL ROOM W.C MASTER BEDROOM BALCONY (2.5X3) (3.8X3.5) (1.85X3.8) DINING (2.5X3.2) (3.6X3.5) (2X1.8) (2.2X1.8) (3.5 1.5) (3.5X4) ENTRANCE W.C
X X X X UNIT PLAN UNIT PLAN FRONT ELEVATION FRONT ELEVATION SECTION XX SECTION XX CLUSTER PLAN CLUSTER PLAN

VIEWS

HOUSING PRODUCT MIXTURE

21 22 ANKIT RAJ | UNDERGRADUATE PORTFOLIO SELECTED WORKS

APARTMENTS VIEWS

23 24 ANKIT RAJ | UNDERGRADUATE PORTFOLIO SELECTED WORKS
HIG APARTMENT FRONT VIEW

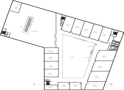
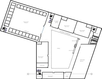
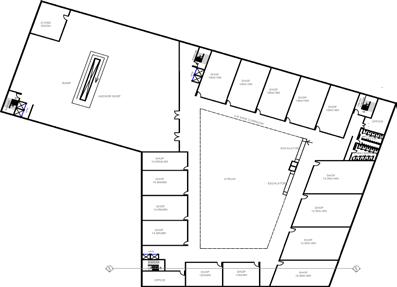
03. ASTRO MALL SHOPPING MALL AUTOCAD+REVIT+LUMION

PROJECT DETAIL

PATNA, BIHAR

A SHOPPING MALL IS A LARGE, INDOOR SHOPPING COMPLEX THAT CONTAINS A VARIETY OF STORES, RESTAURANTS, AND OTHER AMENITIES. THE CONCEPT OF A SHOPPING MALL EMERGED IN THE MID-20TH CENTURY, AS A RESPONSE TO THE GROWING SUBURBANIZATION OF AMERICAN CITIES AND THE RISE OF CAR CULTURE. SHOPPING MALLS TYPICALLY FEATURE A RANGE OF STORES AND SERVICES, FROM DEPARTMENT STORES AND SPECIALTY RETAILERS TO FOOD COURTS AND MOVIE THEATERS. THEY MAY ALSO INCLUDE ENTERTAINMENT VENUES SUCH AS ARCADES, BOWLING ALLEYS, AND ICE SKATING RINKS.

28 SELECTED WORKS
LOCATION:
SITE
SITE VIEW 01 05 03 02 06 07 04
TYPE: ACADEMIC SEMESTER: V
AREA: 16563 sq m
1. ENTRANCE 2. MALL ENTRANCE 3. MALL PARKING 4. BUILDING 5. SOLAR PANEL 6. SERVICES 7. SERVICES ENTRY/EXIT
N

FLOOR PLANS

29 30 ANKIT RAJ | UNDERGRADUATE PORTFOLIO SELECTED WORKS
GROUND FLOOR PLAN FIRST FLOOR PLAN SECOND FLOOR PLAN SIXTH FLOOR PLAN THIRD FLOOR PLAN FOURTH FLOOR PLAN FIFTH FLOOR PLAN N N

FRONT ELEVATION VIEWS

SECTION XX

31 32 ANKIT RAJ | UNDERGRADUATE PORTFOLIO SELECTED WORKS

PROJECT DETAIL

TYPE: ACADEMIC

LOCATION: PATNA, BIHAR

SEMESTER: VIII

STREETSCAPE SPACES ARE MARKERS OF A CROWDED CITY. THEY REPRESENT PUBLIC LIFE WITHIN A CITY, SAY MUCH ABOUT ITS CULTURAL DISPENSATIONS, AND PLAY A VISUAL AND FUNCTIONAL ROLE AS SHARED PUBLIC SPACES.

I HAVE REDESIGNED THE STRETCH IN SCOPE OF BARRIER FREE PEDESTERIAN, CYCLIST AND MAIN ROAD IN WHICH DIFFERENT ROUTES FOR EACH HAS BEEN PROVIDED.

33 34 ANKIT RAJ | UNDERGRADUATE PORTFOLIO SELECTED WORKS
04. STREETSCAPE AUTOCAD+SKETCHUP+LUMION
TRAFFIC CIRCLE Mh Mh Mh Mh Mh Mh Mh Pp Pp Pp Pp Pp Pp Rr Rr Rr Cr Cr Cr Cr Cr Cr Cr Cr Cr Cr Cr Cr Cr Cr Cr Cr Cr Cr Cr Cr Cr Cr Cr Cr Mh Mh Cr Cr Cr Cf Cf Cf Cf Cf Cf Cf Cf Cf Cf Cf Cf Cf Cf Cf Cf Cf PROPERTY LINE PEDESTRAIN 2400mm wide GREEN BUFFER SPACE 600mm wide CYCLE TRACK 1800mm wide CYCLE STAND 800mm wide KIOSK 3x2 m SEATING FURNITURE LANDSCAPING Rr BOLLARDS ZEBRA CROSSING BRIDGE COLUMN 2500X2500mm ISLAND TRAFFIC LIGHT MEDIAN 3000mm wide 7 7 MAIN ROAD 7000mm MAIN ROAD 7000mm Cr Cr Cr Cr Cr Cr Cr Cr CAR PARKING ZONE 2200 mm WIDE CAR PARKING ZONE 2200 mm WIDE N A A' ASHIYANA-DIGHAROAD PATNA TO JN. PATNA JN. SAGUNA TO MORE SAGUNA MORE SAGUNA MORE TO PATNA TO TO SAGUNA SAGUNA MORE N Bermuda grass carpet effect Golden duranta boxy effect 0.45 m Bogainvillea Paspalum grass carpet effect Hibiscus 0.6 m 0.6 m Pandanus gold SHRUB PLANTING LEGEND SPREAD Rr Roystenia regia 4 m Pp Peltophorum pterocarpum 5m Cassia fistula 4m Mh Milingtonia hortensis 5m Cr Cycas revoluta 1.5m TREE PLANTING LEGEND SPREAD Cf MATERIALS TYPE AREA 195 Sqm GRAVEL BED (60 MM THK BED) 687 Sqm VDF FLOORING- PARKING PARKING DROPOFF INTER LOCKING PAVER- 80 MM THK) 225 Sqm N
35 36 ANKIT RAJ | UNDERGRADUATE PORTFOLIO SELECTED WORKS 1100 8000 3000 8000 1100 1800 3000 PEDESTRIAN AND KIOSK CYCLE TRACK LANDSCAPING MAIN ROAD MEDIAN MAIN ROAD LANDSCAPING CYCLE TRACK PEDESTRIAN AND KIOSK 1800 3000 VIEWS
SECTION AA’

05. RIYADH CITY NORTH LANDSCAPE (AUTOCAD)

PROJECT DETAIL

TYPE: INTERNSHIP

LOCATION: RIYADH, SAUDI ARABIA

IN THIS PROJECT, RIYADH CITY NORTH’S NEIGHBOURHOOD WAS DESIGNED BY PREPARING WORKING DRAWINGS. SPACES FOR LANDSCAPING, PARKINGS, PLANTER BOXES, SITTING SPACES, ETC. WERE PROVIDED IN THIS PROJECT.

37 38 ANKIT RAJ | UNDERGRADUATE PORTFOLIO SELECTED WORKS

06. HOSTEL BLOCK

AB EYE INSTITUTE, PARSA, BIHAR AUTOCAD+SKETCHUP+LUMION

PROJECT DETAIL

TYPE: INTERNSHIP LOCATION: PARSA, BIHAR SITE AREA: 425sq m

IN THIS PROJECT, PREPARATION OF FLOOR PLANS, 3D MODELLING AND FACADE WERE DONE OF GIRLS’ HOSTEL BLOCK OF AB EYE INSTITUTE, PARSA, BIHAR.

TYPICAL FLOOR PLAN FOR FIRST, SECOND & THIRD FLOOR

39 40 ANKIT RAJ | UNDERGRADUATE PORTFOLIO SELECTED WORKS
D1 ROOM 3975X3600 BALCONY 1075X1800 D1 ROOM 3975X3600 BALCONY 1075X1800 D3 D1 ROOM 3975X3600 BALCONY 1075X1800 D3 D1 ROOM 3975X3600 BALCONY 1075X1800 D1 ROOM 3975X3600 BALCONY 1075X1800 D1 ROOM 3975X3600 BALCONY 1075X1800 D3 D1 ROOM 3975X3600 BALCONY 1075X1800 D3 D1 ROOM 3975X3600 BALCONY 1075X1800 D3 D1 ROOM 3975X3600 BALCONY 1075X1800 D3 D1 ROOM 3975X3600 BALCONY 1075X1800 D3 D1 ROOM 3975X3600 TOI 2100X1675 BALCONY 1075X1800 D1 ROOM 3975X3600 BALCONY 1075X1800 D3 D3 D1 ROOM 3975X3600 TOI 2100X1675 BALCONY 1075X1800 D3 D1 ROOM 3975X3600 BALCONY 1075X1800 D3 BALCONY 1075X1500 D1 ROOM 3975X3125 1800MM WIDE CORRIDOR 1800 WIDE CORRIDOR D3 D1 ROOM 3975X3600 BALCONY 1075X1800 A 1 5000 2050 5000 C D E 2 3 7 8 9 10 11 6 5 4 3665 3725 3790 2050 1675 3250 3665 3725 3725 3665 34975 12050 B 2050 2950 12 2050 W3 W2 W2 W2 W2 W2 W2 W2 W2 W1 W2 D3 TOI 2100X1675 D3 TOI 2100X1675 TOI 2100X1675 TOI 2100X1675 V1 V1 V1 V1 V1 D3 TOI 2100X1675 D3 TOI 2100X1675 TOI 2100X1675 D3 TOI 2100X1675 D3 TOI 2100X1675 D3 TOI 2100X1675 TOI 2100X1675 D3 TOI 2100X1675 D3 TOI 2100X1675 D3 TOI 2100X1675 UP FIRE STAIRCASE 6925X1800 W1 STAIRCASE 5000X3000 UP DN LIFT 1800X1800 LIFT 1800X1800 SD SD F.W=1500 T=300 R=125 F.W=900 T=300 R=125 V1 V1 V1 V1 V1 V1 V1 V1 V1 1400 300 SG 125 125 125 125 125 125 125 125 125 125 125 125 125 125 125 450 MM HT WALL WATER COOLAR STAIRCASE 6925X3000 UP LIFT LOBBY 5125X1550 DN A 1 5000 2050 5000 C D E 2 3 7 8 9 1 11 6 5 4 3665 3725 3790 2050 1675 3250 3665 3725 3725 3665 34975 12050 B 2050 2950 12 2050 D1 D1 TERRACE TERRACE SLOPSLOP SLOP SLOPSLOP SLOP SLOPSLOP SLOP SLOPSLOP SLOP UP DN FIRE STAIRCASE 6925X1800 W1 LIFT 1800X1800 LIFT 1800X1800 775X1800 SD SD F.W=1500 T=300 R=125 F.W=900 T=300 R=125 1400 300 SG D3 TOI 2100X1675 V1 GROUND FLOOR PLAN D3 D1 ROOM 3225X3600 D3 D1 ROOM 3225X3600 D3 ROOM 3225X3600 6' WIDE CORRIDOR 1800MM WIDE CORRIDOR D1 ROOM 3225X3600 MAIN ENTRY CG ENTRANCE LOBBY 3450X3125 UP VERANDAH 1500X3125 D3 D1 ROOM 3225X3600 TOI 1650X1675 D3 D1 ROOM 3225X3600 TOI 1650X1675 D3 D1 ROOM 3225X3600 TOI 1650X1675 LOBBY 1775X1800 D3 D1 D3 D1 TOI 1650X1675 D3 D1 ROOM 3225X3600 D3 D1 ROOM 3225X3600 D3 ROOM 3225X3600 D1 D3 D1 ROOM 3225X3600 TOI 1650X1675 LIFT LOBBY 5125X800 D1 A 5000 2050 5000 C D E 0 11 3665 3725 3790 2050 1675 3250 3665 3725 3725 3665 34975 12050 B 2050 2950 12 2050 W1 UP FIRE STAIRCASE 6925X1800 W1 STAIRCASE 5000X3000 DN TOI 1650X1675 TOI 1650X1675 TOI 1650X1675 ROOM 3225X3600 ROOM 3225X3600 ROOM 3225X3600 TOI 1650X1675 ROOM 3225X3600 TOI 1650X1675 TOI 1650X1675 TOI 1650X1675 TOI 1650X1675 TOI 1650X1675 TOI 1650X1675 LIFT 1800X1800 LIFT 1800X1800 SD SD F.W=1500 T=300 R=125 F.W=900 T=300 R=125 V2 1400 300 W1 W1 W1 W1 W1 LOBBY 1775X1800 LOBBY 1775X1800 LOBBY 1775X1800 LOBBY 1775X1800 LOBBY 1775X1800 LOBBY 1775X1800 LOBBY 1775X1800 LOBBY 1775X1800 LOBBY 1775X1800 LOBBY 1775X1800 LOBBY 1775X1800 LOBBY 1775X1800 LOBBY 1775X1800 W1 W1 W1 W1 W1 W1 V2 V2 V2 V2 V2 V2 V2 C/C C/C C/C C/C C/C C/C C/C C/C C/C C/C C/C C/C 400 125 400 125 400 125 400 1200 1200 1200 1200 1200 1200 125 125 125 400 125 125 125 125 125 125 125 125 125 125 125 125 125 125 125 125 C/C C/C C/C C/C WATER COOLAR CG GROUND FLOOR PLAN TERRACE FLOOR PLAN
FRONT VIEW SITE VIEW SOUTH SIDE VIEW BACK VIEW BIRD EYE VIEW FRONT ELEVATION
FRONT ELEVATION PLINTH LVL±00 FINISHED GROUND LEV. LVL-600 FIRST FLOOR SILL LVL+4050 FIRST FLOOR LVL+3300 MUMTY LVL+16500 FIRST FLOOR LINTEL LVL+5400 TOP FLOOR LVL+13200 PARAPET LVL+13950 GROUND FLOOR SILL LVL+750 GROUND FLOOR LINTEL LVL+2100 SECOND FLOOR SILL LVL+7350 SECOND FLOOR LVL+6600 SECOND FLOOR LINTEL LVL+8700 THIRD FLOOR SILL LVL+10650 THIRD FLOOR LVL+9900 THIRD FLOOR LINTEL LVL+12000 MUMTY PARAPET LVL+17350
N

ACADEMIC WORKS AUTOCAD

KITCHEN DETAILING

41 42 ANKIT RAJ | UNDERGRADUATE PORTFOLIO SELECTED WORKS
07. ARCHITECTURE DETAILING
KITCHEN PLAN SECTION A SECTION B SECTION C SECTION D KITCHEN UPPER CABINET PLAN KITCHEN LOWER CABINET PLAN A C D B WALL UPPER CABINET CHIMNEY GAS STOVE MICROWAVE WINDOW REFRIGERATOR TAP DOOR KITCHEN SLAB SINK 3000 3200 900 850 600 2600 2400 900 850 600 A C D B WALL CHIMNEY UPPER CABINET GAS STOVE REFRIGERATOR WINDOW DOOR TILES (600X600mm) 3200 900 3000 450 400 400 850 A C D B WALL LOWER CABINET GAS CYLINDER DOOR REFRIGERATOR DUSTBIN TILES (600X600mm) 3000 3200 870 600 850 1350 WALL WINDOW GAS STOVE LOWER CABINET UPPER CABINET CHIMNEY BEAM ROOF SLAB MICROWAVE 2900 3000 250 300 800 900 850 600 900 450 400 750 DOOR REFRIGERATOR ROOF SLAB BEAM WALL UPPER CABINET CHIMNEY GAS STOVE LOWER CABINET 2900 3200 2100 1800 900 1050 600 800 750 400 ROOF SLAB BEAM WALL UPPER CABINET GAS STOVE MICROWAVE WINDOW CHIMNEY LOWER CABINET EXHAUST FAN 3200 2900 1250 750 900 600 300 300 600 800 ROOF SLAB BEAM WALL UPPER CABINET REFRIGERATOR TAP LOWER CABINET DOOR SINK 850 2100 1800 2900 3000 800 600 400 750

HOLLOW GLASS BLOCK PARTITION WALL

HOLLOW GLASS BLOCK

43 44 ANKIT RAJ | UNDERGRADUATE PORTFOLIO SELECTED WORKS
ACADEMIC WORKS AUTOCAD 95 10 2190 10 95 95 10 2400 2400 2600 95 80 10 10 90 80 95 10 190 10 80 95 10 10 190 190 190 190 90 90 95 80 10 BUILDING CONSTRUCTION-IV
PARTITION WALL SCALE DATE 2 ANKIT RAJ 1905009 B.ARCH. DEPARTMENT OF PLANNING & ARCH. NIT PATNA SEM. (VI)ELEVATION SCALE- 1:20 HEAD 8mm DIA REINFORCEMENT EXPANSION MATERIAL MORTAR CORNER POST SILL D-1 (ALL DIMENSIONS ARE IN MM) REMARKS SHEET D-2 SECTION A-2 SCALE- 1:20 SECTION A-1 SCALE- 1:20 CORNER POST EXPANSION MATERIAL MORTAR 8mm DIA REINFORCEMENT HOLLOW GLASS BLOCK D-4 D-5 SECTION B-1 SCALE- 1:20 D-6 D-7
OF HOLLOW GLASS BLOCK PARTITION WALL DETAIL D-1 SCALE- 1:20 DETAIL D-2 SCALE- 1:20 DETAIL D-4 SCALE- 1:5 DETAIL D-7 SCALE- 1:5 8mm DIA REINFORCEMENT @400mm c/c 2# 8mm DIA REINFORCEMENT @400mm c/c DETAIL D-5 SCALE- 1:5 DETAIL D-6 SCALE- 1:5 EXPANSION MATERIAL MORTAR
VIEW OF HOLLOW GLASS BLOCK PARTITION WALL
POSITION
3D

08. WORKING DRAWING

ACADEMIC WORKS AUTOCAD

45 46 ANKIT RAJ | UNDERGRADUATE PORTFOLIO SELECTED WORKS
LIFT DRINKING WATER AREA STAIRCASE ENTRANCE 4 M WIDE PORTICO MALE W.C STAFF ROOM UP FEMALE W.C CLASSROOM DEPT. OFFICE CONFERENCE ROOM PANTRY H.O.D OFFICE RAMP (1:20) FACULTY ROOM CLASSROOM CLASSROOM FACULTY ROOM 7683 X 5000 7683 X 5388 3260 X 5388 2847 X 5388 2847 X 5000 3250 X 2450 3250 X 2450 7681 5000 7681 X 5388 7681 X 5676 4200 X 5070 6851 3400 4211 X 5300 CORRIDOR 2.4 M WIDE 2200 1500 CORRIDOR 2.4 M WIDE 10 11 12 13 14 15 16 17 18 19 20 21 22 23 T=300MM R=150MM D1 D1 D1 D1 D1 D1 D1 D1 D1 D2 D2 D2 D2 D3 D3 D3 D3 D3 D3 W1 W1 W1 W1 W1 W1 W1 W1 W1 W1 W1 W1 W1 W1 W2 W2 V V V V W2 W2 W2 LEVEL: +600 V V LEVEL: +600 LEVEL: +600 LEVEL: +600 LEVEL: +600 LEVEL: +600 LEVEL: +600 LEVEL: +600 LEVEL: +600 LEVEL: +600 LEVEL: +600 LEVEL: +600 LEVEL: +00 230 4197 230 3254 230 2400 230 2847 230 3260 230 2400 230 3726 230 3726 230 230 4840 230 5906 230 5388 230 5000 230 230 5388 230 5000 230 230 4197 230 837 150 5872 230 4220 230 1791 1763 1453 1900 4197 230 1504 230 4197 230 560 600 600 690 1020 690 377 377 1000 1100 189 1000 1100 189 1000 1000 1000 1135 2093 896 1185 2043 896 D2 690 1020 690 600 1033 230 1033 1900 600 1338 2093 1648 2093 1647 3738 230 1300 1300 1300 1112 1112 1004 1004 1004 1300 1300 1300 1300 800 1900 1900 1900 1900 1900 1900 1900 1100 251 LEVEL: +2400 1905 40001 2 3 4 5 6 7 8 9 10 11 A B C D E F 4427 3484 2630 967 2110 2341 1149 2630 3956 3956 3632 1668 5906 5618 5230 X X DOWN 1 2 3 4 5 6 7 8 9 10 11 A B C D E F 4427 3484 2630 967 2110 2341 1149 2630 3956 3956 3632 1668 5906 5618 5230 TERRACE LIFT STAIRCASE 4211 5300 2200 X 1500 10 11 12 13 14 15 16 17 18 19 20 21 22 23 T=300MM R=150MM SLOPSLOP SLOP SLOPSLOP SLOP SLOPSLOP SLOP SLOPSLOP SLOP SLOPSLOP SLOP SLOPSLOP SLOP X X LEVEL: +7600 1 2 3 4 5 6 7 8 9 10 11 A B C D E F 4427 3484 2630 967 2110 2341 1149 2630 3956 3956 3632 1668 5906 5618 5230 C1 C1 C1 C1 C1 C1 C2 C2 C2 C2 C2 C2 C2 C2 C2 C2 C2 C2 C2 C2 C2 C2 C2 C2 C2 C2 C2 C2 C2 C2 C2 C2 C2 C2 C2 C2 C2 C2 2300 2000 2000 2000 885 885 920 2000 3668 1438 C2 LIFT DRINKING WATER AREA STAIRCASE MALE W.C UP FEMALE W.C CLASSROOM STAFF ROOM FACULTY ROOM CLASSROOM CLASSROOM FACULTY ROOM 2847 X 5000 3250 X 2450 3250 2450 7681 X 5000 7681 5388 7681 5676 4200 X 5070 6851 X 3400 4211 X 5300 CORRIDOR 2.4 M WIDE 2200 X 1500 CORRIDOR 2.4 M WIDE 1 2 3 4 5 6 7 8 9 10 11 12 13 14 15 16 17 18 19 20 21 22 23 T=300MM R=150MM D1 D1 D1 D1 D1 D1 D1 D1 D1 D2 D2 D2 D2 D3 D3 D3 D3 D3 D3 W1 W1 W1 W1 W1 W1 W1 W1 W1 W1 W1 W1 W1 W1 W2 W2 V V V V W2 W2 W2 V V LEVEL: +4100 LEVEL: +600 230 4197 230 3254 230 2400 230 2847 230 3260 230 2400 230 3726 230 3726 230 230 4840 230 5906 230 5388 230 5000 230 230 5158 460 5000 230 230 4197 230 837 150 5872 230 4220 230 1791 1763 1453 1900 4197 230 1504 230 4197 230 560 600 600 690 1020 690 377 377 1000 1100 189 1000 1100 189 1000 1000 1000 1135 2093 896 1185 2043 896 D2 690 1020 690 600 1033 230 1033 1900 600 1338 2093 1648 2093 1418 3738 230 1300 1300 1112 1112 1004 1004 1004 1300 1300 1300 1300 800 1900 1900 1900 1900 1900 1900 1900 1100 251 LEVEL: +5900 UG LAB 6337 5388 LIBRARY 7685 X 10618 230 3738 230 3726 1907 2093 1676 230 230 880 230 3340 1300 3901 230 3511 LEVEL: +4100 LEVEL: +4100 LEVEL: +4100 LEVEL: +4100 LEVEL: +4100 LEVEL: +4100 LEVEL: +4100 LEVEL: +4100 1668 2400 2400 1 2 3 4 5 6 7 8 9 10 11 A B C D E F 4427 3484 2630 967 2110 2341 1149 2630 3956 3956 3632 1668 5906 5618 5230 X X GROUND FLOOR PLAN TERRACE FLOOR PLAN EXCAVATION LAYOUT FIRST FLOOR PLAN

COLUMN LAYOUT

ELEVATION A

SECTION XX

SECTION (XX)

47 48 ANKIT RAJ | UNDERGRADUATE PORTFOLIO SELECTED WORKS 1 2 3 4 5 6 7 8 9 10 11 A B C D E F 4427 3484 2630 967 2110 2341 1149 2630 3956 3956 3632 1668 5906 5618 5230 F1 F1 F1 F1 F1 F1 F2 F2 F2 F2 F2 F2 F2 F2 F2 F2 F2 F2 F2 F2 F2 F2 F2 F2 F2 F2 F2 F2 F2 F2 F2 F2 F2 F2 F2 F2 F2 F1 C1 C1 C1 C1 C1 C1 C2 C2 C2 C2 C2 C2 C2 C2 C2 C2 C2 C2 C2 C2 C2 C2 C2 C2 C2 C2 C2 C2 C2 C2 C2 C2 C2 C2 C2 C2 C2 C2 230 230 1200 1200 150 100 230 460 100 150 1500 1200 F2 700 700 700 700 700 700 700 700 700 700 700 700 700 700 700 700 700 700 700 700 700 700 700 700 700 700 700 700 700 700 700 700 700 700 700 700 700 700 700 700 700 700 700 700 700 700 700 700 700 700 700 700 700 700 700 700 700 700 700 700 700 700 735 965 700 700 735 965 700 735 965 700 735 965 700 735 965 1 2 3 4 5 6 7 8 9 10 11 A B C D E F 4427 3484 2630 967 2110 2341 1149 2630 3956 3956 3632 1668 5906 5618 5230 C2 C2 C2 C2 C2 C2 C2 C2 C2 C2 C2 C2 C2 C2 C2 C2 C2 C2 C2 C2 C2 C2 C2 C2 C2 C1 C2 C2 C2 C2 C2 C2 C1 C1 C1 C1 C1 C1 230 460 230 230 C2 115 115 115 115 115 115 115 115 115 115 115 115 115 115 115 115 115 115 115 115 115 115 115 115 115 115 115 115 115 115 115 115 115 115 115 115 115 115 115 115 115 115 115 115 115 115 115 115 115 115 115 115 115 115 115 115 115 115 115 115 115 115 115 345 115 115 345 115 115 345 115 115 345 115 115 115 115 345 345 115 230 GROUND LEVEL -600MM PLINTH LEVEL 00MM FIRST FLOOR SILL LEVEL 750MM FIRST FLOOR LINTEL LEVEL 2100MM SECOND FLOOR LEVEL 3500MM SECOND FLOOR SILL LEVEL 4250MM SECOND FLOOR LINTEL LEVEL 5600MM TERRACE FLOOR LEVEL 7000MM PARAPET LEVEL 7750MM MUMTY TERRACE LEVEL 10000MM PARAPET LEVEL 10750MM
FEMALE W.C FEMALE W.C MALE W.C MALE W.C STAIRCASE MUMTY MID LANDING MID LANDING 750 1400 1350 750 1400 1350 750 600 2250 750 GROUND LEVEL -600MM PLINTH LEVEL 00MM FIRST FLOOR SILL LEVEL 750MM FIRST FLOOR LINTEL LEVEL 2100MM SECOND FLOOR LEVEL 3500MM SECOND FLOOR SILL LEVEL 4250MM SECOND FLOOR LINTEL LEVEL 5600MM TERRACE FLOOR LEVEL 7000MM PARAPET LEVEL 7750MM MUMTY TERRACE LEVEL 10000MM PARAPET LEVEL 10750MM 1 2 3 4 5 6 7 8 9 10 11 A B C D E F 4427 3484 2630 967 2110 2341 1149 2630 3956 3956 3632 1668 5906 5618 5230 PB1 PB1 PB1 PB1 PB1 PB1 PB1 PB1 PB1 PB1 PB1 PB1 PB3 PB1 PB1 PB3 PB3 PB3 PB2 PB2 PB2 PB2 PB2 PB2 PB2 PB2 PB2 PB2 PB2 PB2 PB2 PB2 PB2 PB2 PB2 PB2 PB2 PB2 PB2 PB2 PB4 PB4 PB4 C2 C2 C2 C2 C2 C2 C2 C2 C2 C2 C2 C2 C2 C2 C2 C2 C2 C2 C2 C2 C2 C2 C2 C2 C2 C1 C2 C2 C2 C2 C2 C2 C1 C1 C1 C1 C1 C1 230 460 230 230 C2 115 115 115 115 115 115 115 115 115 115 115 115 115 115 115 115 115 115 115 115 115 115 115 115 115 115 115 115 115 115 115 115 115 115 115 115 115 115 115 115 115 115 115 115 115 115 115 115 115 115 115 115 115 115 115 115 115 115 115 115 115 115 115 345 115 115 345 115 115 345 115 115 345 115 115 115 115 345 345 115 230
FOOTING LAYOUT PLINTH BEAM LAYOUT
49 50 ANKIT RAJ | UNDERGRADUATE PORTFOLIO SELECTED WORKS 09. MISCELLANEOUS PHOTOGRAPHY
COONOOR, TAMIL NADU AGRA, UTTAR PRADESH OOTY, TAMIL NADU
51 52 ANKIT RAJ | UNDERGRADUATE PORTFOLIO SELECTED WORKS
PATNA, BIHAR PATNA, BIHAR HAJIPUR, BIHAR PATNA, BIHAR

Turn static files into dynamic content formats.

Create a flipbook
Issuu converts static files into: digital portfolios, online yearbooks, online catalogs, digital photo albums and more. Sign up and create your flipbook.
UNDERGRADUATE ARCHITECHTURE PORTFOLIO by Ankit Raj - Issuu