Anjali Vardani | Architectural Portfolio 2023

Page 1

portfolio.

Selected works 2019-23.
Anjali Vardani.

CURRICULUM VITAE

EDUCATION

Nagpur, Maharashtra

July 2019- May

2024

ANJALI VARDANI

Nagpur, MH

July 17- Feb 19

Visvesvaraya National Institute of Technology, Nagpur (VNIT)

Department of Architecture and Planning

Bachelor of Architecture

CGPA: 9.70 (as of 7th Semester)

awarded Academic Excellence award for the year 2021-22

M.K.H. Sancheti Public School & Junior College

Higher Secondary Certificate (HSC)

Percentage: 90.60%

WORKSHOPS

Parametric Tools and Computational Design in Architecture

Council of Architecture, TRC Bhopal

Bamboo Joinery Workshop

Maharashtra Bamboo Assosciation + VNIT

Earthquake Resistant Design Practices

National Information Centre of Earthquake Engineering, IIT Kanpur

Introducing International Sustainability Program

Contact

Email

Others Languages

Interests

+91 9921441422

anjalivardani@gmail.com

https://www.linkedin.com/in/ anjali-vardani-781b96238

Nagpur, MH

July 16- Mar 17

Mount Carmel Girls’ High School

Secondary Secondary Certificate (SSC)

Percentage: 96.40%

COMPETITIONS

Solar Decathlon India Challenge 2022-23

Finalist, Office Building Division

Net-zero Police Station Design for Nagpur Smart City

NASA GRIHA Trophy

English, Hindi, Sindhi, Marathi

Reading

3D Visualization

Graphic Design Photography

Runner Up, Special Mention

Sustainable Griha Compliant GST building design in Ghaziabad

NASA HUDCO Trophy

Jurors’ Choice Award

Affordable Housing module design for EWS in the state of Kerala

Lock-Unlock Design Competition

Prison Design

Nasa Laurie Baker Trophy

Low-cost PHC Design in Gujarat per Laurie Baker principles

Nasa ANDC Trophy

Bus Terminal Design in Bangalore

Nasa Reubens Trophy

Handwork trophy- Pen Hatching

Trailblazer at GBRI

Introduction to UI-UX Design

Karwaan India

SKILLS

Softwares

Drafting

AutoCAD | Autodesk Revit

Autodesk Revit | Sketchup | Rhinoceros | Grasshopper

Ladybug | Grasshopper | Climate Consultant

Lumion Pro | Enscape 3D | Photoshop

Adobe Suite (Ps + Ai + Id)

Blender | Microsoft Office Suite

Anjali Vardani | Selected Works | 2019-23 2 2
Digital Modelling Energy+ Climate Analysis
Visualization Post Production Miscellaneous
Ongoing 2022 2022 2021 2020-21 2020 2019
2023 2023 2022 2022 2022
Anjali Vardani | Selected Works | 2019-23 3 3

Urban Insert.

Academic/ Individual 2023, Sem VIII

Location: Nagpur, Maharastra, IN

Roles: research, case study, urban study, detail design, 3D visualization, graphics.

An Urban Insert is all about responding to the unique characteristics of the urban context in which it is located. The design is focused on creating a public realm that promotes sustainable transportation options, such as pedestrian precincts and transit-oriented development (TOD). Additionally, the project seeks to incorporate a range of activities into the space, including retail, recreational, hotel and office spaces, to create a diverse and engaging environment.

Also exploring the possibility of including public markets and local markets/stalls to provide opportunities for community engagement and economic development. Moreover, as the site has a metro exit within, this has been incorporated into the design, so that there is direct pedestrian access to the site through the exit, and by creating pedestrain bridges that connect that connect the metro to the buildings and amongst themselves.

Anjali Vardani | Selected Works | 2019-23 4 4
01

form evolution.

THE SITE.

SEPERATING THE ENTRIES.

Restricitng the vehicular circulation towards the ends of the site, providing majority of the site for pedestrian movement.

PEDESTRIAN MOVEMENT.

Majority of the site has pedestrian circulation along with a Public market, green areas and landscaping making it a Public Precinct.

GROUND LEVEL CONNECTIVITY.

Public centered acitivities like the public market, retail stores and food courts have been placed at the ground levels for easy access.

MID-LEVEL CONNECTIVITY.

Connecting the buildings in line with the adjacent building heights, along with pedestrain bridges connecting buildings and the metro.

CREATING A LANDMARK.

Raising the height of the office block to higher levels to create a landmark in the middle of the city, promoting the TOD.

Anjali Vardani | Selected Works | 2019-23 5 5
Site. Pedestrianzone The site is located adjacent to Yashwanth Stadium, close to the Sitabuldi metro station in Nagpur.

site plans.

the public market.

The People who come to Sitabuldi are used to street shopping, giving an opportunity for creating a public pedestrian precinct, on the ground and first levels. This market will house the local shops, flower market, seasonal cloth markets and much more.

Anjali Vardani | Selected Works | 2019-23 6 6 Legend 1. Sunken Court 2. Recreational Block 3. Commercial Block 4. O ces 5. Hotel 6. Public Market 7. Overhead Metro 8. Connecting Footbridge 9. Pedestrian Pathway 10. Vehicular Entry 11. Pedestrian Main Entry 2 6 3 4 5 10 11 10 1 9 7 8
site plan g.f. plan on site 0 0 10 10 20 20 50 50 30 30
Anjali Vardani | Selected Works | 2019-23 7 7 OFFICE LOBBY ANCHOR SHOP ANCHOR SHOP ANCHOR SHOP ANCHOR SHOP ANCHOR SHOP ANCHOR SHOP ANCHOR SHOP ANCHOR SHOP ANCHOR SHOP GROUND FLOOR PLAN OFFICE LOBBY SECOND FLOOR PLAN 2800 SQ M. 2560 SQ M. SUPERMARKET 1010 SQ OFFICE LOBBY 2184 SQ M. OFFICE LOBBY 11-13TH FLOOR PLAN 1430 SQ M. OFFICE LOBBY 930 SQ M. 7-10th FLOOR PLAN 14-16TH FLOOR PLANS 31950 SQ M. TOTAL COMMERCIAL + OFFICE OFFICE LOBBY ANCHOR SHOP DEPARTMENTAL STORE FOURTH FLOOR PLAN 1010 SQ 2560 SQ M. RETAIL RETAIL RETAIL RETAIL RETAIL DOUBLE HEIGHT LOBBY RETAIL RETAIL RETAIL RETAIL RETAIL RETAIL RETAIL OFFICE LOBBY SIXTH FLOOR PLAN FOOD COURT AREA 2010 SQ M. 1 2 3 4 5 6 7 8 9 1 B D E G H F C A 2 3 4 5 6 7 8 9 B D E G H F C A 1 2 3 4 5 6 7 8 9 1 B D E G H F C A 2 3 4 5 6 7 8 9 B D E G H F C A 1 2 3 4 5 6 7 8 9 1 B D E G H F C A 2 3 4 5 6 7 8 9 B D E G H F C A 1 2 3 4 5 6 7 8 9 1 B D E G H F C A 2 3 4 5 6 7 8 9 B D E G H F C A 1 2 3 5 6 8 9 1 B D E G H F C A 2 3 5 6 8 9 B D E G H F C A I J 1 2 4 5 6 7 8 9 K K E G H F E G H F E G H F E G H F B D C A B D C A 1 2 4 5 6 7 8 9 1 2 4 5 6 7 8 9 1 2 4 5 6 7 8 9 Offices Service core Commercial Hotel rooms Banquet & Dining
plans for commercial complex
Anjali Vardani | Selected Works | 2019-23 8 8
section through the commercial block View through the Podium in the morning hours. View through the Podium in the late afternoon hours. section through the recretaional block
Anjali Vardani | Selected Works | 2019-23 9 9
section showing the facade details view of the office block plan of the external facade details

Bank Interiors. 02

Academic/ Individual 2023, Sem VIII

Location: Nagpur, Maharastra, IN

Roles: research, live case study, material study, interior design, 3D visualization

The Interior Design project is looking to create a corporate banking environment that defies expectations. With a focus on breaking away from the typical feel and image of a bank, the design is exploring a range of possibilities to create a space that feels fresh and inviting. By incorporating elements of rustic and natural styles with modern design, the goal is to create a fusion style that is both unique and functional. The design is also focused on improving the legibility of the space, making it easy for users to navigate and complete routine bank activities. This includes considerations such as the placement of signage, the layout of the space, and the design of transactional areas.

Anjali Vardani | Selected Works | 2019-23 10 10

colour palette.

Considering the bank’s brand has the colours red and black as the main colours, a palette has been created with shades of white and browns.

These colours compliment the exiting ones and are also prominent in the natural material palettes.

Planning

The floor plan and its facilitation has been created keeping in mind the multiple users that are going to use it i.e. managers, employees, common public of different age groups and user needs.

Universal design

The needs oof specially abled people like people using wheelchairs, visually impaired, old people, etc have been considered and design features such as ramps, low height and accessible furniture, levelled flooring, proper signages, and easy-to-use and understand equipment have been provided.

Anjali Vardani | Selected Works | 2019-23 11 11
Anjali Vardani | Selected Works | 2019-23 12 12
Anjali Vardani | Selected Works | 2019-23 13 13
Anjali Vardani | Selected Works | 2019-23 14 14
Exposed Brickwork Luxurious Vinyl Tile Chestnut Veneer White Jute Fabric White Laminate Fluted Glass material palette.

03

Punapur Police Station

Competition/ Group

Ongoing (2022-23)

Location: Nagpur, Maharastra, IN

Roles: in-depth research, site visits, resilience analyst, affordability, graphics.

The Punapur Police Station project is a collaborative effort between the Nagpur Smart City initiative and aims to create a sustainable and resilient police station that aligns with Smart City principles. The building’s design is focused on achieving net-zero energy and water usage, as well as ensuring resilience to urban water and energy vulnerabilities. Additionally, the design prioritizes maintaining thermal comfort during heatwaves and utilizes low-energy systems, such as passive downdraft evaporative cooling towers, to reduce the cooling load from refrigerant-based systems. To further enhance sustainability, the design incorporates the use of locally sourced materials, including bamboo, as an external skin and shading device. The shading device has undergone prototyping and optimization to ensure scalability and market potential.

15
Solar Decathlon India 2022-23

Architectural Design

Concept And Design Development

Law enforcement through a new lens.

A new police station for the people of Pardi that responds to the complex operational needs of keeping law enforcement at work while standing as a symbol to how architecture can inspire a more sustainable future for police stations around India through deep connections with its place, culture and community.

AB - 83.6m

BC -117.3m

CD -115.5m

DA -135m

Total plot area is 12152 sqm.

Site zoned with the building footprint dividing public and private uses on the site.

Building plane is extruded to 9.6m height.

Inorder to form a self-shading structure whilst creating a dynamic and visually engaging exterior.

The different activity areas are stacked over one another with respect to the nature of activities.

Two staircases are provided accompanied with the lift core by one side.

Site Plan

The site has been organized to have sepration between secure functions such as suspect’s entry and emergency parking and public areas such as the park.

Integration of PDEC system to cool the office spaces via the false ceiling.

Insertion of two courtyards, with one for public-centric usage and the second is surrounded by private activities.

Provide shading and ventilation, which helps regulate the temperature inside the building, at the same time, create a more comfortable and inviting environment for its occupants.

Addition of PV panels on the roof top to meet the energy requirements of the building.

Anjali Vardani | Selected Works | 2019-23 16 16
Team V0 | Final Design Report N 22.5
00. SITE 01. SITE ZONING
02. BUILDING ORIENTATION 03. BUILDING MASS 05. PROGRAMS 06. CIRCULATION CORES 07. PDEC 08. COURTYARD 09. BAMBOO LOUVERS 10. PV PANEL Building oriented with longer side facing 22.5 deg from the north. 04. STAGGERING OF FORM
Public Private High security A B C D
Building footprint Area for future expansion Confiscated vehicle parking Pocket park and public art installation Team V0 Final Design Report 28 Punapur Police Station Area for future expansion Confiscated Vehical Parking Confiscated Vehical Parking Art Installations Pocket Park Visitor’s Parking Emergency Vehical Parking

The floor plan is zoned as per security requirements. Most of the public functions are located near the entrance to restrict public access to sensitive areas. These areas are organized using a public courtyard.

A second courtyard is private to police officers and wraps all official working spaces around it. It ensures natural light in all spaces while also maintaining the required level of security, being separated from the public courtyard.

The PDEC tower works in conjuction with the two courtyard to ensure a free flow of breeze. The tower has micronizers which dampen and cool the outdoor air, which comes down, absorbs heat and excapes from courtyard through stack effect.

Daylight and Illuminance

How effective is the operable shading device?

How effective is the operable shading device?

Suggested mode of operation for maximum window shading, thermal comfort and energy performance:

Eastern windows closed during summers from 8-10AM.

West windows closed in the afternoons all year round atleast from 3:30PM till sunset.

Northern and Southern windows can be kept open or closed as per user requirement.

Summer months are shaded.

The wall to window ratios (WWR) have been optimized (average 18%) to have spatial daylight autonomy in 47.4% of the floor area. The sunlight exposure (>1000 lux) have been limited to 6.9% of the area, mostly near the courtyards.

The average illuminance in the building is 658 lux, above the minimum requirement of 200-500 lux recommened by BIS.

Anjali Vardani | Selected Works | 2019-23 17 17 Team V0 | Final Design Report 29 Punapur Police Station 01 02 03 04 05 06 07 08 09 10 11 12 13 14 15 16 17 18 19 19 19 20 21 23 24 25 26 27 28 22 19 Ground Floor Plan 6000 3000 4500 3000 3000 3500 3000 6000 3000 6000 6000 3000 6000 3000 2750 3000 2750 3000 3000 4000 5000 3000 3000 3000 3000 6000 GROUND FLOOR PLAN 10 5 ENQUIRY COUNTER ENTRANCE FOYER WAITING AREA COMMUNITY SEMINAR ROOM STATION DIARY VERIFICATION SECTION BARRACKS BOOKING AND STORAGE DETENTION 01 DETENTION 03 DETENTION 04 WOMEN'S HELP DESK GUARD ROOM PDEC WIND SHAFT PDEC WIND SHAFT lvl +0.65 ROUTINE WRITER WIRELESS SECTION PI CHAMBER (WELFARE) CHAMBER (CRIME) CHAMBER (WIRELESS) API CHAMBER STORAGE AND PDEC SERVICING CONSTABLE ROOM FD ED AREA FOR KITCHEN ROOT ZONE TREATMENT AREA +2.75 STORE lvl +0.00 +1.10 WOMEN'S WASHROOM MEN'S WASHROOM N 6000 3000 4500 3000 3000 3500 3000 6000 3000 6000 6000 3000 6000 3000 2750 3000 2750 3000 3000 4000 5000 3000 3000 3000 3000 6000 GROUND FLOOR PLAN 10 0 ENQUIRY COUNTER ENTRANCE FOYER WAITING AREA +0.80 COMMUNITY SEMINAR ROOM lvl +1.10 +0.00 VERIFICATION SECTION BARRACKS BOOKING AND STORAGE DETENTION DETENTION WOMEN'S HELP DESK PDEC WIND SHAFT PDEC WIND SHAFT +0.65 ROUTINE WRITER WIRELESS SECTION WITNESS INTERROGATION ROOM CHAMBER (WELFARE) CHAMBER (CRIME) CHAMBER (WIRELESS) UTILITY AND OFFICE API CHAMBER STORAGE AND PDEC SERVICING CONSTABLE ROOM FD AREA FOR ROOT ZONE TREATMENT AREA lvl +2.75 STORE lvl +0.00 lvl +1.10 WOMEN'S WASHROOM MEN'S WASHROOM N 08 01 02 03 04 05 06 07 08 09 10 15 11 16 12 17 13 18 14 19 20 21 22 23 24 25 26 27 28 Entrance Foyer Reception Enquiry Counter Waiting Area Community Room Cafeteria + Kitchen Public Courtyard Station Diary Verification Section Women’s Help Desk Washrooms Routine Writer Barracks Records Booking and Storage Constable Room Guard Room Training Room Detention Storage and Services Witness Interrogation API Chamber Private Courtyard Utility and Office PI Chamber (Welfare) PI Chamber (Crime) PI Chamber (Wireless) Wireless Section LEGEND FD ED PDEC SHAFT PDEC SHAFT CUTOUT ABOVE lvl 0.00M +1.10M lvl +1.10M lvl 0.00M lvl +0.80M A A lvl +2.75M lvl +2.75M Equinox 63.51 deg Winter Solstice 42.22 deg Summer Solstice 72.31 deg lvl +6.60M lvl +9.90M lvl +16.60M lvl +3.30M lvl +1.10M
Team V0 Final Design Report Fig. : Percentage of window exposed to direct sunlight when shading device is closed vs open. Fig. : Elevation and Section of Bamboo Shading Device
Team V0 Final Design Report Punapur Police Station Daylight 6 1 credit 47.4% sDA 6.9%* ASE 658 avg luxblinds open No Binds Floorplan
Fig. : Built-it-yourself Toolkit
Fig.
Incident Solar Radiation
Fig. : Daylight Autonomy and Illuminance Graphs
: Form Interations based on
Initial Iteration Final Iteration
Team V0 Final Design Report 31
Fig. Percentage of window exposed to direct sunlight when shading device is closed vs open. Fig. Elevation and Section of Bamboo Shading Device Fig. Built-it-yourself Toolkit
Punapur Police Station
CLOSED OPEN EAST WEST SOUTH NORTH

Resilience

Resilience against heatwaves

The city faces the threat of heat waves (especially in May), and to ensure comfort during such events is important.

Strategies such as Passive downdraft evaporative cooling (PDEC), building orientation optimization, self-shading of the structure and the mass using bamboo skin and shading devices, stack effect in courtyards, and using wall and roof assemblies with higher U-values than conventional configurations have been used for maximizing thermal comfort.

Thermal comfort during heatwaves

Simulations with values of thermal comfort acheived during Heat vawes have been shown here. Heatwave period in Nagpur: 148th to 155th day of the year (28th May to 4th June - “Navtapa”)

IMAC acceptability range during May : Achieved maximum RT:

NV Zone: 28.5 deg to 33.2 deg

PDEC Zone: 23.7 deg to 30.6 deg

VRF Zone: 24.3 deg to 27.3 deg

NV Zone: 32.9 deg

PDEC Zone: 28.8 deg

VRF Zone: 28.2 deg

Fire Safety

Energy:

The presence of ammunition and increased consumption of electrical equipment in the Police station leads to increased chances of fire.

• 20% reduction in lighting power density and 10.8% lower electrical consumption with optimized daylighting design.

• Annual revenue of Rs. 17,3,065 generated from excess energy produced by PV panels, reducing OPEX by 41% and recovering excess capex in 5.5 years.

Fire safety norms are adopted based on the NBC-Part 4 to make the building resilient during fire emergencies.

• Dimmed lighting fixture linked to sensors saves up to 30% of lighting cost and complete shutting down of appliances saves up to 50% energy and cost.

• Use of Lithium Ion Batteries reduces OPEX by 20% compared to the base case.

Cooling Systems:

• Reduction in OPEX cost by 34% annually.

• Sensors control the lighting and temperature of the utilizing area based on the system operating, saving 35% in OPEX annually.

Water Performance:

• Cost-cutting of Rs. 2,73,967.5 on water bills annually due to rainwater harvesting and greywater treatment.

Resilience against power outages

• 43% water saved due to the use of low-flow faucets and fixtures, saving Rs. 1,17,806.025.

Thermal comfort was achieved in all 3 zones during the critical heatwave period successfully.

Flood Resilience

With Nagpur experiencing an increase in extreme heavy rainfall-triggered floods and the site being located in a depressed area, the building needs to be resistant to localized flooding.

Elevated Plinth: The plinth of the buildings is raised to 1.1 m which prevents entry of water into the interiors. Fly-ash brick with cement plaster was selected as the primary material for the walls, as their characteristics such as drying time, durability, porosity, and amount of water absorbed, ensure a better Post-flood resistance strategy.

Bioretention swales: They are designed to capture and filter runoff from the parking areas, while also enhancing the aesthetics of the site by incorporating a variety of vegetation. The swales not only improve air quality, but also act as a cost-effective alternative to traditional stormwater management methods.

Life Cycle Cost and Benefit Comparision

The site in Pardi, being in the outskirts of the city, is susceptible to frequent power cuts, particularly during summers. Therefore, it is crucial for the police station to have a backup power source in case of emergencies.

The upfront cost being reduced, gives a direct picture that how green systems are helping to achieve net zero structure and saving cost at the same instance. Also, LCCA makes the decision making easier. The LCCA for various green building systems was done for a period of 25yrs and 60yrs, in comparison to the base case. There was an increase of 9% in CAPEX i.e. from 10.64 Cr to 11.70 Cr , due to the strategies and the systems used which in turn makes a reduction of 15.7% in OPEX compared to Base case

Variable Refrigerant Flow (VRF)

To address this issue, we propose the use of a lithium-ion solar battery that stores electricity generated from the rooftop solar panels. During blackouts, the stored energy can be used to power essential services such as server rooms, wireless and communication systems, life safety systems, including egress lighting, smoke evacuation, fire alarm systems, elevators, etc. Moreover, the radio systems will be on standby power, enabling the station to manage operations during emergencies.

Sufficiency and Autonomy for critical functions

Water facility:

Total water storage capacity (critical storage + main storage) at a given point is 1,50,000 L and daily water demand is 7346 L.

Total water storage capacity / Daily water demand = Days of Autonomy

i.e. 1.50,000/7346= 20.4 days of autonomy

Solar Photovoltaics

Energy Efficiency:

Annual energy consumption is 2,43,478 kWh which includes lighting, cooling, and equipment.

The total annual energy generated using solar PV (both rooftop and parking panels) is 2,43,750 kWh

In all the months (except May, June, July, August), excess energy is generated out of which energy to power essential services for 24 hrs is stored in lithium-ion batteries on site, and the remaining is utilized in the energy sharing mechanism. In the months where energy generated is insufficient, it is taken from the local mini grid or the city grid and stored in the batteries for emergency uses.

Anjali Vardani | Selected Works | 2019-23 18 18
Team V0 | Final Design Report 22 Punapur Police Station
Days 20 10 15 Apr May Aug Sep 20 100 10 15 35 T-Operative Relative Humidity NV Days Relative Humidity [%] Apr May Aug Sep 100 T-Operative Relative Humidity PDEC Days 15 18 Temperature [°C] Apr May Aug Sep 100 15 18 30 T-Operative Relative Humidity VRF
Fig. :VRF zone temperature graph during heatwaves Fig. : Building orientation to minimize heat gain. Fig. : Bioretention swales around the site perimeter. Fig. PDEC tower working with courtyard. Fig. : Plinth elevated to 1100MM. Fig. :NV zone temperature graph during heatwaves Fig. :PDEC zone temperature graph during heatwaves
FIRE ALARM SYSTEMS SMOKE DETECTION PASSIVE DOWNDRAFT EVAPORATIVE COOLING (PDEC) BUILDING ORIENTATION LITHIUM-ION BATTERIES ENERGYOPTMSATION Energy ciency Energy Procurement Energy Geneeration FIRE ALARM SYSTEMS SMOKE DETECTION PASSIVE DOWNDRAFT EVAPORATIVE COOLING (PDEC) ELEVATED PLINTH ENERGY OPTIMISATION LITHIUM-ION BATTERIES WIRELESS & COMMUNICATIONS SERVER ROOMS ENERGYOPTIMISATION Energy E ciency Energy Procurement Energy Geneeration FIRE ALARM SYSTEMS SMOKE DETECTION PASSIVE DOWNDRAFT EVAPORATIVE COOLING (PDEC) BUILDING ORIENTATION ELEVATED PLINTH ENERGY OPTIMISATION LITHIUM-ION BATTERIES WIRELESS & COMMUNICATIONS SERVER ROOMS ENERGYOPTMSATON Energy ciency Energy Procurement Energy Geneeration FIRE ALARM SYSTEMS SMOKE DETECTION PASSIVE DOWNDRAFT EVAPORATIVE COOLING (PDEC) BUILDING ORIENTATION ELEVATED PLINTH LITHIUM-ION BATTERIES WIRELESS & COMMUNICATIONS SERVER ROOMS Team V0 Final Design Report 23 Punapur Police Station
PASSIVE DOWNDRAFT EVAPORATIVE COOLING (PDEC) LITHIUM-ION BATTERIES WIRELESS & COMMUNICATIONS
Fig. Critical functions continue using lithium-ion batteries during power cuts. Fig. Fire escape plan Table 08 : Fire safety building specifications
Fig. Annual Energy Generation Vs Consumption Emergency Exit Emergency Exit Emergency Exit Emergency Exit Main Exit LIFT LIFT Legend Escape route Way towards exit Fire extinguisher Fire Alarm DO NOT use Lift in case of fire Team V0 Final Design Report 33 Punapur Police Station
PV in 25
Fig.
Solar PV in 60 Years Fig. : Economic Feasility of VRF in 60 Years 4 5 6
Fig.
: Economic Feasility of VRF in 25 Years Fig. : Economic Feasility of Solar
Years
: Economic Feasility of

GST Building. 04

Competition/ Group

Runner Up (Special Mention)

Location: Ghaziabad, UP, IN

Roles: research, live case study, material study, conceptual planning, LCC calculation.

When it comes to green buildings in India, the proportion of government buildings is radical. The aim was to design a sustainable and green GST building which is Griha compliant, for the industrial city of Ghaziabad, which could be a paridgm for future designs of government buildings.

Central atrium with circulation passages which increases transparency of the entire building. Open office areas with work desks which increase visibilty, offer flexible use deviating from cell like layout. Use of radiant cooled slabs for thermal comfort, air curtains for better Indoor air quality and innovative personal comfort systems are some of the additional design features.

Occupancy sensors in bathrooms, meeting rooms, and cabins.

Green Parking lots with swales and water storing pavements.

Light Shelves on S and fins on E & W facades help minimize glare.

Use of gunny bags and curing compounds.

Thin plans (16.8M) to optimize daylighting.

Living Machines for blackwater treatment upto BOD 10 level.

Overdeck earthen pot insulation above roof RCC slab.

All service areas placed along West and East.

Radiant Cooling coupled with BLDC fans and DOAS.

Smart meters for monitoring water and energy consumption.

Energy Performance Index = 36.29

Rice Husk Insulation

Payback period calculation for RWH, radiant cooling and PV.

Smoke room with no smoking signages.

Embodied Energy = 1283 MJ/m2.

Computer screensavers showing real time IAQ and energy data.

Sustainable Site Planning

Construction Management

Energy Optimization

Occupant Comfort

Water Management

Solid Waste Management

Sustainable Building Materials

LCC Costing

Socio Economic Strategies

Performance Metering and Monitoring

Innovation

GRIHA Criterias and Strategies

Construction site plan showing barricading, restrooms, toilets etc .

RWH with gravity based sand filter.

Dedicated waste storage space before treatment / recycling.

Personal Thermal Comfort Systems.

RCC Slab with 30% pulverised fly ash (PFA).

Topsoil preservation use for landscaping in other areas. Energy & water management; and building materials LCC study.

Fire extinguishers with condensed aerosol forming solid compound.

IAQ monitoring systems: One sensor for each space >30 m2.

fixtures.

Multicoloured waste bins and compost bins in canteen.

Massing of the building done in a manner to reduce heat gain.

Air Curtains at doorways with particle kickback prevention.

C&D Waste Blocks masonry with fly ash mortar.

Ramps, Tactile paving, wheelchair accessible toilets and parking. Xeriscaping

Anjali Vardani | Selected Works | 2019-23
10 64GRI-62
the
with living
GRIHA Trophy 2021-2022
GRIHA Trophy 2021-2022 View of
atrium and lobby
machine
(W/C: 4/2 LFF, Urinal 1 LFF, Lavatory Faucet 4.5 LFF)
Low flow
NASA Griha Trophy 2021-22

Climate Analysis

Form Development

all oriented at 12 degrees to the North to optimize daylighting.

wind. 100% of the service areas are added on the East and West.

roof is added over the central block for enhancing daylighting. Xeriscaping is done in the niches.

Concept

Changing the imageability of government buildings from opaque, rigid and unsustainable to public accessible indoor spaces and office layouts.

Radiation Analysis: 1 January - 31 December

Massing of the building is done in a manner to reduce heat gain and achieve mutual shading.

2 Low Impact Design

Anjali Vardani | Selected Works | 2019-23 20 GRIHA Trophy 2021-2022 2
Location: Ghaziabad, UP, India Climate Type: Local Steppe Climate Annual Precipitation: 764mm Air Quality Index: Very Dangerous to Hazardous Solar Generation Potential: High as incident radiation is 4.997 kWh/sqm/day. Wind Generation Potential: Low due to low wind speeds. O ce O ce Admin Lift Toilets Ancillary Rooms Fire Staircase Annual
Incident
Months Cold Comfortable Hot Strategies December, January 10:30AM 12PM 4PM -5:30PM 12PM 4PMPlant trees at not less than 45 deg from solar shaded windows. • 10 percent solar windows within 15 deg of true south. Organize the floor plan so that the sun penetrates into daytime spaces. No sun shading required. February March April, May, June July, Aug Sept, Oct Nov ANNUAL CLIMATIC STRATEGIES Months Acceptability Range Mix Mode Buildings (Temperature Range in deg C) January 90% 25.27 18.35 February 25.67 18.35 March 26.92 20.00 April 28.73 21.81 May 30.24 23.32 June 30.54 23.62 July 30.13 23.21 August 29.87 22.95 September 29.75 22.83 October 29.26 22.34 November 28.06 21.14 December 20.30 19.52 The acceptability range of IMAC model was used to determine temperature setpoints of water cooling chillers. Mixed mode of ventilation was chosen in order to control air quality of the interiors when the outdoor air quality is poor. Design using 90% acceptability range takes care of the subjective component of thermal comfort. 27.8% of the hours can be made comfortable by sun shading while cooling is required for 47.1% hours. Monthly design strategies were derived from the psychometric chart. DBT time table plot shows a large part of the occupancy hours are uncomfortable (according to IMAC) February and November have the most comfortable hours. For all months except for December and January, sun shading is required. Windows are shaded from 10:30AM 5:30PM from March to October. Prevalent wind direction from January to December for 10AM - 6PM is North West. Summer winds are also from North West. IMAC: Monthly Comfort Range Sun Shading Hours Dry Bulb Temperature Plot Psychometric Chart with strategies Wind Rose Diagram Open office areas with work desks which increase use deviating from cell like layout. Permeable made of recycled polyethylene reservoir reservoir surface runoff it into the with gravel used for tender path, parking. 5 Metre wide internal road for Fire Tender. Swales on the perimeter for stormwater. The two site were additional proposed. Tactile Paving in all accessible areas. 1 Green 24 Universal 2 1 3 4 5 6 7 8 9 2 Xeriscaping 3 4 1 Legend 1 2 3 4 5 6 7 8 9 10 5 M Wide Road Tactile Paving Xeriscaping Bioretention Swale Shaded Outdoor Seating Car Parking 2 Wheeler Parking Bicycle Parking Anaerobic Baffled Reactor Segregated Garbage Collection Area with wheelchair assesibilty with wheelchair assesibilty 21 Alternative External Accessibility GRIHA Trophy 2021-2022 5 Elevation facing West Longitudinal Section Elevation facing South Exploded View 1 2 3 4 5 6 Material Pallete 1. C&D Blocks 2. FRP with rice husk and mineral oil 3. Clay Pots 4. Lime Plaster 5. RCC with 30% PFA 6. Polycarbonate GRIHA Trophy 2021-2022 5 64GRI-62 GRIHA Trophy 2021-2022 Front Facade View Elevation facing West Longitudinal Section Elevation facing South Exploded View 3 4 5 6 Material Pallete 1. C&D Blocks 2. FRP with rice husk and mineral oil 3. Clay Pots 4. Lime Plaster 5. RCC with 30% PFA 6. Polycarbonate

Construction Management

3 m high continuous barricading along the site boundary.

12 Air and Soil Pollution Control

25% site is undisturbed during and post construction.

2 Low Impact Design

Topsoil shall be stripped to a depth of 200 mm from areas proposed for the building, roads, and paved areas. It shall be stockpiled to a height of 400 mm in designated areas and shall be re-applied to site during plantation of the proposed vegetation on the site and in green roofs.

5 Top Soil Preservation

Gunny bags shall be used for curing along with biobased curing agents which reduce water usage during construction. Constructed areas shall be covered with jute or tarpaulin to reduce evaporation rates.

6 Construction Management Practices

Solar Power Generation

Average daily solar irradiance: 4.997 kWh/sqm/day which promises a positive solar potential.

Solar PV panels 2m x 1m in size have been used to meet the energy demand of the building. Each panel generates 422 Kwh per year.

Panels have an anti-reflective coating that reduces the glare and improves the light transmittance, thus increasing the efficiency of the PV module.

Foam based dust supressents shall be used instead of water spray to reduce water consumption during construction.

13 Water Demand Reduction

PV panels are installed directly facing south, with operation angles of 45 deg in winter, 75 deg in summer, and 65 deg for the remaining part of the year for optimum irradiance.

Construction Site Plan showing areas for material and construction waste storage, restrooms with toilets, smoke room, drinking water facility etc.

Living Machines

root based wastewater treatment technology is used, as a cost effective, natural and sustainable treatment system for wastewater. The root based treatment is a combination of the physical, chemical and biological processes and works without electricity, minimum maintenance, less manpower and

Roof Assembly

A variety of strategies have been employed which leads to a Net-Positive Water design. Potable water demand is reduced by 30% from baseline 45 lpd, by the use of low flow fixtures. Landscape water demand is reduced by 50% by the use of Drip irrigation, Native species plantation with a plant factor of 0.15 and Xeriscaping.

Low ODP and GWP Materials

▶ An effective water cycle restricts municipal water demand to 5 months of the year.

Solid Waste Management

Water use in radiant cooling system has optimized according to monthly requirement. blackwater is recycled by Living Machines (root based water treatment).

▶ The lower resistance and conductivity values of C&D blocks are justified by the presence of aggregate with a lower density and lower thermal conductivity than the natural aggregate.

The system uses natural vegetation and the plant specific associated microbiota,

▶ Fly Ash Mortar is used to reduce cement consumption.

The subsurface flow treatment is totally free of mosquitoes and unpleasant odour. The treated water is used for irrigation, gardening and toilet flushing.

▶ Recycled aggregates are used in RCC elements.

The treated water also achieves the permissible limit for sewage discharge in the

16 MM Reflective China

The living machine is proposed near the entrance lobby and is exposed to increase and sustainability.

The plants get diffused light through the polycarbonate roof and since the system is

Organic paint containing soya bean, whey protein, neem oil and casein are used for interior wall and ceiling finishes, as it has low VOC content and is lead free.

12 Maintaining Good IAQ

Rice Husk Insulation is used for internal walls which is CFC and HCFC free.

▶ Anaerobic baffled reactor treatment recycles greywater which is used for toilet flushing.

▶ Blackwater from toilets is treated by root zone treatment to BOD 10 level and part of it is used for irrigation.

Multicoloured waste bins to store e-waste, organic waste, plastic waste, paper waste, and other inorganic solid waste have been provided for building occupants to ensure segregation of waste at the source.

The insulation is in the form of board made from rice husk or rice husk ash bonded by resin under the application of pressure and temperature. U

▶ Sustainable filters (gravity based sand filters) are used in RWH system.

= 0.0418 – 0.0746 W/(m.K)

Dedicated, segregated, and hygienic storage space has been provided near the site exit for storage before pickup by municipal garbage trucks for treatment/recycling.

Refrigerants used in recirculating chillers of radiant slabs are free from CFC and HCFC. Use of refrigerants is restricted to only 1 room i.e chiller room on ground floor.

17 Waste Management-Post Occupancy

100% organic waste generated is used as manure for landscaping, therefore diverting organic waste from landfill sites.

Fire extinguishers installed in the project contain condensed aerosol forming solid compound FPC, which is non-pyrotechnic and is based on eco-friendly naturally occurring potassium salts and halon free.

Composting bins have been provided in the canteen.

18 Organic Waste Treatment On-Site

GRIHA Trophy 2021-2022

GRIHA Trophy 2021-2022

64GRI-62

64GRI-62

Anjali Vardani | Selected Works | 2019-23 21 GRIHA Trophy 2021-2022 4
Legend
Ground Floor Plan
First Floor Plan
Legend Legend Waiting Area Toilets Toilets Toilets Living Machine Cafeteria Auditorium Open Office Open Office Open Office Assistant Commisioner’s Cabin Assistant Commisioner’s Cabin Assistant Commisioner’s Cabin Deputy Commisioner’s Cabin Deputy Commisioner’s Cabin Deputy Commisioner’s Cabin Office of the Additional Commisioner of Tax Adjunct Additional Commisioner’s Cabin Meeting Room Meeting Room Meeting Room Green Terrace Green Terrace Attorney’s Office Storage Room Record Room Server Room Chiller Room 1 2 4 5 6 6 2 2 2 2 2 6 2 2 9 5 5 10 3 3 14 13 12 11 10 4 4 6 6 2 2 2 7 6 6 6 7 7 6 7 7 3 3 3 3 3 3 3 3 7 7 7 4 4 4 4 4 4 4 4 4 4 7 7 8 8 4 4 4 4 4 4 4 4 4 4 8 8 8 8 8 3 3 3 3 3 3 3 8 8 8 2 1 1 2 2 2 3 3 3 4 4 4 5 5 5 6 6 6 7 7 7 8 9 10 11 12 13 14 N N N
Second Floor Plan
1. Anoxic Reactor 2. Closed Aerobic Reactor 3. Open Aerobic Reactor 4. Open Aerobic Reactor 5. Clarifier
GRIHA Trophy 2021-2022 8
CONSUMPTION WATER SOURCES Cooling Use % Cooling Use (L) Irrigation Use % Irrigation Use (L) Total Consumption Municipal Water (L) Rainwater Greywater (L) 0% 5% 1,279 629,029 1062551 288,765 50% 12,788 5% 1,279 641,816 957792 288,765 50% 12,375 50% 12,375 632,250 598620 279,450 50% 12,788 30% 7,673 648,210 44897 288,765 0% 90% 22,275 629,775 0 279,450 0% 90% 23,018 650,768 14966 288,765 0% 90% 23,018 650,768 94782 288,765 0% 90% 20,976 593,038 20,000 164621 263,149 30% 7,673 90% 23,018 658,440 20,000 84805 288,765 90% 22,275 90% 22,275 652,050 20,000 59862 279,450 100% 25,575 90% 23,018 676,343 20,000 74828 288,765 90% 22,275 90% 22,275 652,050 10,000 354184 279,450 90,000 Rainwater Management Water Quality and Self Sufficiency 16 Water Quality and Self Sufficiency Wastewater Treatment Water Demand Reduction Water Supply and Consumption Water Cycle Domestic Use Use LPD/Head 45 Number of people 450 Total LPD 20250 Cooling Use 5.5 Tr per Day (peak) 150 Max LPD 825 Irrigation Use 1 Area m 1300 Percent use Use in LPD Greywater in LPD Blackwater in LPD 30% 6075 6,075 15% 3038 3,038 2% 405 203 203 20% 4050 4,050 3% 608 608 Toilet Flushing 30% 6075 6,075 20250 9,315 10,935 Greywater 34,00,340 Treated Water Blackwater 22,17,373 Treated Water 2,02,479 L Municipal Sewage 12,71,419 L Gravity Sand Filter Treatment Annual Consumption 38,82,688 L RWH 8,33,080 L Municipal Supply 90,000 L Irrigation 2,02,479 L Root Zone Treatment Drinking + Cooking (23%) 12,01,150 L Washing + Cleaning (45%) 33,28,340 L Anaerobic Other Uses (2%) 1,47,926 Toilet Flushing (30%) 22,17,373 L End Uses 4/2 LPF 4.5 LPM 1 LPF 4 LPM CFD Analysis Shadow Analysis Water Net Positive + GRIHA Trophy 2021-2022 6
External Wall Assembly
Renewable Energy Utilization
Utilization of Alternative Materials in Building 19 Utilization of Alternative Materials in Building 23 Safety and Sanitation for Construction Workers 9 Low ODP AND GWP Materials
8
19
Operation angles of PV panels
N
Mosaic
12
Internal Finish U-Value
U-Value
0.4 kWh/m2-K
Tile Finish 80 MM Overdeck Earthen Pot Insulation 150 MM RCC Slab with 30% PFA and Water Cooled PEX Pipes
MM Cement Plaster
= 0.263 kWh/m2-K
=
Internal Finish (Organic Paint) 12 MM Lime Plaster (0.73 W/m-k) 15 MM Lime Plaster (0.73 W/m-k) VLT = 59% SHGC = 0.25 6 MM Therm Glass + 12 MM Air Gap + 6 MM Clear Glass in UPVC Window Frame with 15 MM Cement Fibre Board Vertical Louvers (east) 200 MM C&D Waste Blocks (0.6 W/m-k)
Value

Radiant Cooling in Slabs and underfloor DOAS

This has a huge impact on design of the building, because this air-and-water system removes the need for large plenum space required by all-air systems, saving considerable height on each floor.

2 Low Impact Design

Maximizing Views while Minimizing Glare

Thermal Comfort

Sensible Loads: Radiant Cooled Slabs

The radiant cooling system inherently provides a healthier indoor air quality as there is no recirculation of air in the system. Reduced chiller capacity as compared to conventional forced air conditioning. About 35% reduction in annual energy consumption.

Latent Loads: DOAS

Indoor Air Quality

Air Curtains: Air curtains are installed at doorways to ensure limited air mixturing when the doors are opened.

View plays an important role in an occupant’s appraisal of the interior environment and to establish contact with the exterior environment. The WWR were decided in a way that views are maximized and visual discomfort due to glare is minimized.

Reduces indoor pollution because contaminants are not transferred readily between rooms, as is the case with centralized HVAC. Avoids condensation in highly humid conditions, while using radiant cooling.

This has a huge impact on design of the building, because this air-and-water system removes the need for large plenum space required by all-air systems, saving considerable height on each floor.

Indoor Air Quality

Percentage of area with good view and minimal sun: 84%

Particle kickback from the ground is avoided by adding a suction duct at the bottom.

Percentage of area with >3% view: 81%

Light Shelves on southern facades and fins on east and west facades help minimize glare.

One sensor is

1 digital display showing monitored values for CO, CO2 , temperature, and

Screensavers of computers show real time energy consumption of the building along with air quality parameters. This gives the users control over their own environment and a sense of responsibilty towards energy saving.

12 Maintaining Good IAQ

30 Innovation

Air Curtains: Air curtains are installed at doorways to ensure limited air mixturing when the doors are opened.

Particle kickback from the ground is avoided by adding a suction duct at the bottom.

The sill level is kept at 1.1m given the requirements of the work desks. It also reduces area to be glazed and helps achive a lower WWR.

Air Curtains

Personal Comfort System

Fans and low-wattage devices are embedded into desks to warm or cool an empolyee on demand. The system focuses on the most thermally sensitive parts of the body, such as the head and feet.

IAQ monitoring systems: One sensor is installed for each space ≥30 m2.

1 digital display showing monitored values for CO, CO2 , temperature, and RH is installed at each floor level.

Computer Screensaver

The depth of floor has been restricted to 16.3M which ensures 90% of the space is lit by useful daylight (200-1000 lux) for most of the daylit time of the day.

GRIHA Trophy 2021-2022

64GRI-62

This flexibility on the part of the occupants can translate into less energy spent maintaining a fixed temperature set-point.

It also cools down the equipments which increases their efficiency.

Screensavers of computers show real time energy consumption of the building along with air quality parameters. This gives the users control over their own environment and a sense of responsibilty towards energy saving.

GRIHA Trophy 2021-2022 7
healthier in to reduction not with humid
BLDC Fans Radiant Slab DOAS
7 64GRI-62 GRIHA Trophy 2021-2022
GRIHA Trophy 2021-2022
Glare Analysis Annual Study Open Office Space on Ground Floor 60 deg Cone of Vision Analysis Radiant Cooling in Slabs and underfloor DOAS Air Curtains Computer Screensaver Reduces Cooling Loads BLDC Fans Keeps Insects and Pollutants Out Increases Quality Control Facade WWR North 32% South 20% East 15% West 13% 10 Visual Comfort 7 Energy Optimization 11 Thermal and Accoustic Comfort 7 Energy Optimization 12 Maintaining Good IAQ 12 Maintaining Good IAQ 30 Innovation 2 Low Impact Design 2 Low Impact Design 7 Energy Optimization 1. Daylight Window with U= 1.04 W/m2 2a. Highly Reflective Deep Solar Shade 2b. Reflective Internal Light Shelf 3. Vision Window with U= 1.04 W/m2 4. Vertical Fins 5. Sill 6. C&D Blocks Wall 7. External Finish Work surface at 900mm height Depth of floor plate to ensure 90% daylight 6.8 m 6.8 m 4.2 m 3.6 m 1.1 m 16.3 m
BLDC Fans Radiant Slab DOAS
Radiant cooling is coupled with BLDC Fans (Reversible Direction) which can increase heat removal capacity of ceiling by upto 2 times.

Convention Centre 05

Academic/ Individual 2022, Sem VI

Location: Nagpur, Maharastra, IN

Roles: research, detail design, vernacular study, graphics, 3D visualization

The Convention Centre proposed in the city of Jaipur, Rajasthan, is located on a site context with rich cultural history. the design respects this by speaking the same vernacular vocabulary, using locally sourced materials such as sandstone that makes it blend in with the surrounding historical buildings.

A space designed for the public incorporates features like cultural activity spaces, exhibition areas, auditorium, banquet halls, etc. special care has been given to providing pedestrianization on site that is not hindered by any vehicular movement. Use of Arches as a prominent facade feature, socio-cultural spaces and climate responsiveness are some of the features of the design.

Anjali Vardani | Selected Works | 2019-23 23 23
Anjali Vardani | Selected Works | 2019-23 24 24

Concept Development

Anjali Vardani | Selected Works | 2019-23 25 25
Anjali Vardani | Selected Works | 2019-23 26 26
Anjali Vardani | Selected Works | 2019-23 27 27

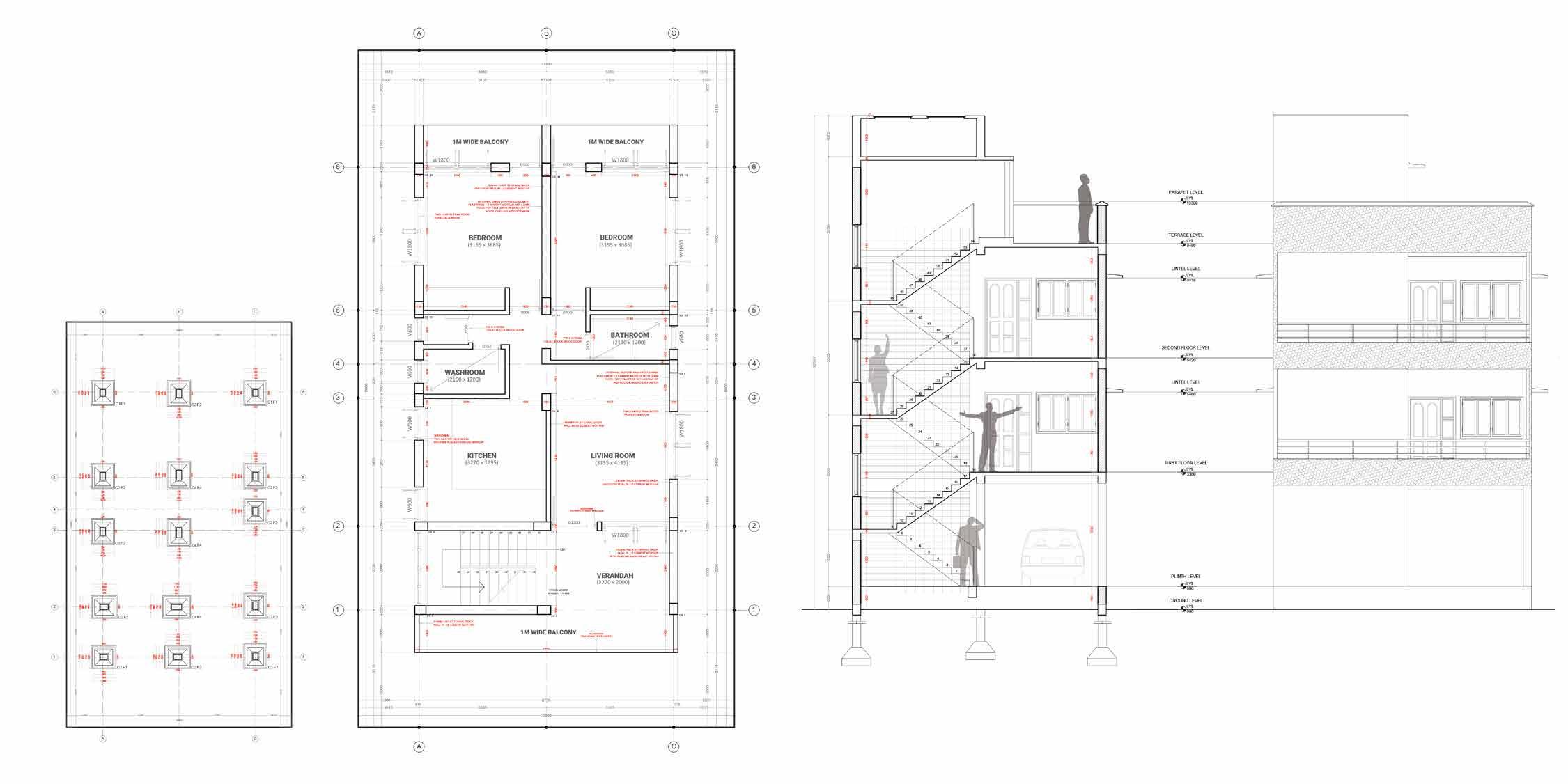
Working Drawings. 06

Academic/ Individual 2021, Sem V

Location: Nagpur, Maharastra, IN

Roles: Drafting, writing specifications, detailing, making layouts, graphics.

The need for precise communication in the preparation of a functional document distinguishes working/technical drawings from the expressive drawing of the visual arts. Artistic drawings are subjectively interpreted; their meanings are multiply determined. Technical drawings are understood to have one intended meaning.

The project was to create working drawings for a residence situated in Nagpur. The house with the Built up area of around 200sqm. with every details from toilet to stairs. Also included writing specifications for every material and construction details.

Anjali Vardani | Selected Works | 2019-23 28 28

AREA STATEMENT

BALCONY AREA

29 29
TYPICAL FLOOR PLAN FOOTING LAYOUT
Total plot area (10x18m) Permissible FSI Proposed ground floor B/U area Proposed first floor B/U area Proposed second floor B/U area 15% OF B/U 14msq 14msq Nil 14sqm Taken in FSI Balance B/U area (180-178.8msq) AT FIRST FLOOR Permissible Provided Open Enclosed Total Excess 180msq. 1 Nil 89.4msq 89.4msq 1.2msq 15% OF B/U 14msq 14msq Nil 14sqm Taken in FSI AT SECOND FLOOR Permissible Provided Open Enclosed Total Excess SECTION
Anjali Vardani | Selected Works | 2019-23 30 30 TOILET DETAILS PLAN SECTION KITCHEN DETAILS SECTION A PLAN
Anjali Vardani | Selected Works | 2019-23 31 31
Patwon ki Haweli, Jaisalmer
photography
Jaswant Thada, Jodhpur
Other works. 07
Selected works 2019-23.
Anjali Vardani. thank you. anjalivardani@gmail.com

Turn static files into dynamic content formats.

Create a flipbook
Issuu converts static files into: digital portfolios, online yearbooks, online catalogs, digital photo albums and more. Sign up and create your flipbook.