Portfolio_Anindeeta Ushashi

Page 1


ARCHITECTURE PORTFOLIO

+61480455694 email: aushashi28@gmail.com

Education and Work Experience

2023-Present Swinburne University of Technology

Masters in Architecture and Urban design 2019-2021 Dreesh Architects, Dhaka Architect

2012-2018 Khulna University, Bangladesh Bachelor of Architecture

Recognition

Received Swinburne Academic Excellence Scholarship (2023) Received certificate of Head’s List of Architecture Discipline in the academic session 2015-2016

Recieved Higher secondary certificate scholarship,2011 (General) Recieved Secondary school certificate scholarship,2009 (General)

Software Proficiency

MS Office Word | Power point | Excel Adobe Photoshop | Illustrator | Indesign Autodesk Autocad | Revit | Sketchup | Enscape

Anindeeta Ushashi

1. The Revolve House 2. Mixcity 3. The Nest

4. Collaborative Research Institute for the Living Culture of Folk Dance of Bangladesh

5. Designing Identity for Educators Vertical Living

6. Riverfront Development of Khulna City

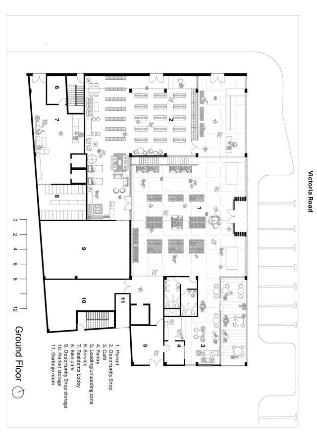
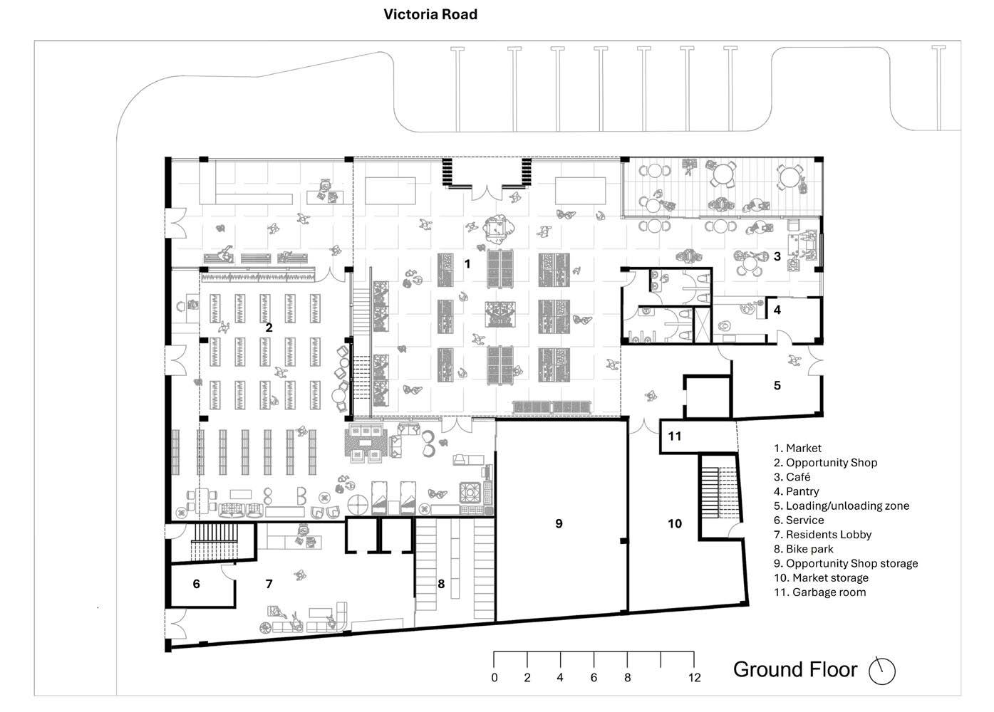
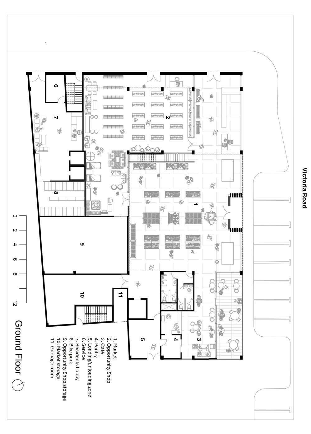
THE REVOLVE HOUSE

Typology: Student Housing

Course: Masters of Architecture & Urban Design

Term: 2.1

Revolve House is a student housing project that seamlessly integrates an opportunity shop into its entire framework, fostering a circular economy centered on reuse, repair, and shared responsibility. More than just a designated retail space, the opportunity shop enables students to save 30–50% on essential expenses annually while promoting sustainability by reducing waste and conserving resources. Inspired by initiatives like Buy Nothing, the project encourages residents to donate goods and exchange them for equivalent-value items, with donations either going directly back into circulation or being repaired by students in an on-site workshop before reintroduction. This hands-on approach not only minimizes environmental impact but also provides students with practical experience in sustainability and resource management, creating a dynamic, self-sustaining community that redefines urban student living.

The design considers the existing heritage wall, integrating it thoughtfully to ensure its preservation while complementing the surrounding context.

Integrating the opportunity shop as a hybrid program within student housing.

Opportunity shops help students save 30%–50% annually on clothing, furniture, and household expenses.

The opportunity shop extends beyond the lower floors, with designated zones throughout the building for student participation.

Residents donate goods for exchange, with items sent to the shop or a student-run repair section. Students refurbish products, cycling them back into use, fostering hands-on involvement and a circular economy.

Market view from first floor

View of the library which works as a swap shelf.

Maintaining a careful distance from the heritage wall preserves its historical significance while creating a small light well. Foldable windows transform into balconies, allowing the façade to alternate between open and closed states, creating a dynamic look.

Mixcity

Typology: Mixed-Use Urban Development

Course: Masters of Architecture & Urban Design

Term: 1.2

MixCity is a visionary mixed-use development that integrates residential, commercial, and community spaces. Designed to enhance urban vitality, the project introduces diverse housing options, including affordable residences, alongside retail, office, and public gathering areas. The site has been strategically divided into two sections, each with a distinct focus. The southern portion has been reimagined as a residential hub, where the existing VicRoads office building is transformed into housing alongside essential public facilities. The design prioritizes livability, incorporating diverse housing options—including affordable units—alongside shared spaces that encourage social interaction and community engagement. Adaptable public areas, such as green courtyards, pedestrian-friendly pathways, and multifunctional spaces, create an environment that supports a variety of activities, from markets to cultural events.

The site features two existing buildings, with the focus directed toward the southern portion.

Approx 1100 Residents 20 SQM P

Existing Building

New core for improved accessibility

Relocating existing cores

Zoning as public & residential

Creating access ‘central spine’ through the building

Creating access ‘in the residential zone

Inserting communal zone in the pockets Introducing varying communal spaces

Three Bedroom Unit
118.3 m2
Two Bedroom Unit 80.6 m2
Five bedroom Unit
236.6 m2

The Nest

Typology: Transformation of social housing

Course: Masters of Architecture & Urban Design

Term: 1.1

Group Project

Located in Richmond, The Nest reimagines existing social housing to create a safer, more secure, and nurturing environment for residents. Investigative research identified key site challenges, including poor circulation, limited bystander surveillance, and a lack of resident identity within the apartments. Our design intervention focuses on opening enclosed elements to improve circulation, encourage passive ventilation, and foster neighborly interaction through the addition of new balcony floors on each level. The façade will be revitalized with a retrofitted shutter system, providing sun protection while adding vibrant color to the previously dull exterior. Community-focused amenities on the lower levels will further integrate the site into the broader Richmond community, transforming it into a welcoming and inclusive space for both residents and neighbors.

The site location is close to Victoria St and Bridge road, two major arterial roads. And it situated in Melbourn’s inner north.

To create a secure, connected, and community-based space.

The housing is in a prominent street junction. The design focus is on the single southern housing apartment.

Existing housing section with issues.

Proposed areas for transformation

- Adding podium with ramp & jogging track

- Designated market space to ensure community attachment

- Extended the corridors with vertical connection

- Adding shutter system with some colors on the facade

Existing two bedroom unit splits into two separate unit Before After

Before

After

Apartment transformation

Collaborative Research Institute for the Living Culture of Folk Dance of Bangladesh

Typology: Cultural Institute

Course: Bachelor of Architecture

Term: Thesis

The aim of this project is to create a dedicated space for dancers, serving as a hub, studio, and interaction area. To achieve this, it was essential to study and understand the experience of dancing, the spatial needs for movement, and the site's climate, all while considering its connection to nature. The project focuses on the folk dance traditions of Bangladesh, exploring their built environment in relation to various dance forms. Folk dances in Bangladesh are deeply connected to social, cultural, and religious beliefs, as well as rituals. This rich folk genre not only reflects one's identity but also preserves ethnic culture and cultural heritage. The primary goal is to capture the inherent qualities of dance, provide a space for practice, and foster the development of traditional folk dance, ensuring its proper cultural, emotional, and environmental context for the future cultural growth of Bangladesh.

The site is in Sector 19, Purbachal, Dhaka, located away from the city's traffic and noise pollution.

Knowledge & Tradition

Movement vocabulary & choreography, dance traditions

LIVING CULTURE

Rules & resources

Production & performance

CREATING A TRADITIONAL AMBIENCE OF DANCE CULTURE

-Original built environment analysis of speci c dance forms

-Bringing the space organization

FACILITATING THE PERFORMANCE TECHNIQUE & PATTERNS IN DIFFERENT SCALE

-Providing required facilities

-De ning physical con guration of dance studios according to techniqal and contextual requirement

Contextual

Techniques

Individuals, allocative resources as artefacts

Dancers, choreographers, audiences & Dance artefacts

(props, costume, documentation)

HARNESSING THE PHYSICAL AND PSYCHOLOGICAL POTENTIAL OF THE EXPERTS

-Ensuring traditional ambience in built environment for both practice and performance

-Prominence of natural environment.

Model of relation between living culture and collaborative

Expert

COLLABORATIVE RESEARCH

From the conceptual sections the idea for types of studios has been generated. Observing the culture of folk dance of Bangladesh, the classroom includes outdoor and semi outdoor studios along with indoor studios considering the climate.

To create the traditional ambience of folk dance of Bangladesh, there needs to be a visual connection among spaces and to bring the space organization from built environment.

Including various types of studios is to provide the diversity of studios according to type of dances.

Studio-1

Root of the tribals

Jumoor & Santhali are both tribal dance forms where they wear string of bells round the ankles. Which is performed sometimes as the worship of gods/goddesses. This dance form takes place in an open field or tea garden.Both men & women dance on the occasion of harvesting & the spring festival.

Built analysis of Jumoor & Santhali dance form

Studio-2

Delightness of battle

Both raybenshe and Lathi is a warlike dance.It is a half dance & half sport.Drums & brass cymbals are used to maintain the rhythm & tempo. The dancers carry poles of strong baboo.The clashes of the sticks create a battle scene. These performances usually held on courtyard or cross section of roads.

Built analysis of Raybeshe & Lathi dance form

Jumoor & Santhali

OUTDOOR DANCE STUDIO (SANTHALI/ JHUMOOR)

SEMI-OUTDOOR AUDIENCE SEATING

INDOOR DANCE STUDIO (SANTHALI/ JHUMOOR)

Melody from the inner court

Mask/Puppet Dance

The studio portrays the regular village fair scenario, where mask or puppet dance is common.

The dances from this studio take place in inner courts of homes & the idea for the studio is to create a homely ambience.

Root of the tribals

The outdoor class requires the environment of forest and tea garden thus the outdoor studio is surrounded by trees.

Delightness of battle

This warlike dance studio has an open platform surrounded by sitting area which is a resemblance of the historic dance.

Amphitheatre

Most interactive space to create the traditional ambience of our folk dance culture,facing the water body.

Auditorium

Indoor auditorium is designed by creating an ambience of our folk dance performance area & sitting arrangement.

Designing Identity for Educators Vertical Living

Typology: Teachers quarter

Course: Bachelor of Architecture

Term: 5.1

The location of this project is in Chittagong University of Engeneering and Technology, Chittagong. It is a project for the teachers of this university. One problem of the site is lack of gathering space and playground for children. Also, the present constructions in the area do not respect the contour which seems to be imposed. Surveying the current apartments the necessity to create a better home for the educators was emerged which included enough interraction with neighbours with sufficient privacy.Thus, the main idea came to create a better home, which was reffered as ‘Towards Home.’

Vertical housing has become as the most obiquotous mode of contemporary living,preferred equally by developers, planners. Academic campuses in Bangladesh are now opted for more vertical solutions to fulfilling their spatial requirements.

Safety Privacy Comfort Connection with surroundings

> Visual connection from terrace to terrace ensures safety

>Engagement with nature

>Cross ventilation and orientation confirm comfort Issue

• Lack of territoriality because of scattered spaces

No common gathering space

No specific parking Zone

To enhance belongingness

To increase connectivity

To engage with nature

Plenty of natural resources but not in a situation to relish

Not respecting the contour

Scattered bungalows create isolation and no common space for residents.

Secured space

Secluded private space

Connection with surroundings

Physical and visual comfort

Visually connected community spaces

Climatic consideration

Defined semi public space

Creating visual connection builds safety among people. While ensuring security, seperate units originate privacy. By respecting contour and making common Section

Section B-B’

Riverfront Development of Khulna City

Typology: Urban Regeneration & Revitalization

Course: Bachelor of Architecture

Term: 4.2

Group Project

The Rupsha River is a vital part of Khulna city, yet its riverbank remains underutilized, with certain areas lacking activity and posing security concerns. This project focuses on revitalizing the riverfront through the placemaking concept, transforming it into a vibrant, functional, and accessible space that strengthens the connection between the city and the river. By identifying objectives for each specific area, the development ensures that every spot is thoughtfully designed to enhance usability, engagement, and safety. The project aims to integrate cultural, social, and ecological elements to create a dynamic environment that encourages community interaction, economic opportunities, and recreational activities while preserving the natural and cultural significance of the Rupsha River. Through strategic interventions, the riverfront will become a lively, inclusive, and sustainable public space that enhances the urban fabric of Khulna.

The riverfront development follows the placemaking concept, with objectives identified for each specific area. Each spot is worked on individually, ensuring the goals for each location are carefully considered.

Public spaces exist but not very lively yet insufficient

Poor ghat condition

Huge area accupied by abandoned industry

Cultural diversity

Lack of accessibility,in-sufficient pedestrian

Lots of informal settlement

Pollution free development

Considering cultural diversity & community relationship

Rethinking about abandoned property

Providing sufficient accessibility to the river front

To make ghat more accessible & functional

To make public spaces active & lively

Considering the living conditions of informal settlement

Reducing the pollution from waste disposal Giving exposure to the diverse culture

To create public space focusing natural environment & abundant spaces

Connection to city road network with pleasant experience

-Multiple use of ghat

-Sufficient parking facility

- Developing the bank with a sense of belonging of Khulna people

- To bring the river back to the front of city landscape

- Water based recreational facilities

Developing informal living condition in terms of economy & health

- Treatment plant

- Event ground

- Amusement park

- Green-belt along river side

- River side walk way

- Embankment & road along rupsha

- River network

- Ghat as recreational navigation

-Parking zone

-Terminal

- Floating recreational facilities

- Library

- River side walk way

- Green-belt along river side

- Shops

- Health development related facility

Inter & intra-community strong relationship

Chain of command

Public spaces exist

Public activity ensures security

Good number of heritage building

Availability of local material

Variety of structural use

Ability of adaption of the labors

Poor maintenance

Fertile land

Public spaces exist

Public activity ensures security

Huge area accupied by abandoned industry

Contradictory land ownership

Lack of preservation

Availibility of local material

Waterway transportation

Development of Padma bridge

Vehicular employment

Lack of accessibility

Poor road condition

Poor ghat condition

Chain of command

Inter-community & intra-community strong relation-

ship

Political relation between politicians & people

Community participation does not exist in some place

Self interest first priority

Lots of informal settlement

Existing public spaces are not very lively yet

Public awareness about historical buildings

Boro
Abandoned industry
Green-belt along river side River side walk way
Abandoned industry
Green-belt along river side River side walk way River network Shops
Doulatpur Bazaar
Riverside walkway River network Multiple use of ghat
Rupsha Ghat
Zilla School
Boro Bazaar
Dada match factory

Turn static files into dynamic content formats.

Create a flipbook
Issuu converts static files into: digital portfolios, online yearbooks, online catalogs, digital photo albums and more. Sign up and create your flipbook.
Portfolio_Anindeeta Ushashi by Anindeeta Ushashi - Issuu