Skip to main content

Design Portfolio

Page 1

DESIGN PORTFOLIO

ANDREWJDEARIE

WOODGROVE BANK
2DESIGN PORTFOLIO 4-5 6-7 8-9 10 11-13
CONTENTS

StudyingComputerAided ArchitecturalDesignand TechnologyatNewLanarkshire Collegetopursuemypassion. With18yearsinretail management,Iaimtotransition intoarchitecturaltechnology, sparkedbymyfascinationwith technology-drivencreativity sincehighschool.

HNC-23/24 HND-August2024

WOODGROVE BANK3
DESIGN PORTFOLIO •Onrequest
www.linkedin
"Ithinkyouneverstoplearning.”
•andrewjdearie@gmail.com
.com/in/andrewjdearie
NormanFoster

RESIDENTIALPROJECT

“Thefamilyrequiresa2storey ‘eco-friendly’housethatwill allowthefamilytogrowand providespaceforthemto socialisetogetherbutalso spacefortheirownactivities.”

WOODGROVE BANK
4DESIGN PORTFOLIO

Tailoredforafamilyoffive,thisresidentialdesignfeaturestwolivingareas,fourbedrooms,utilityarea,office,andspaciouskitchen-livingdining. DesignedinRevitwithTwinmotionrenderings,itblendsfunctionalitywithmodernaestheticsforaharmoniousfamilyhome.

DESIGN PORTFOLIO

WOODGROVE BANK5

PLANNINGAPPLICATION

WOODGROVE BANK
6DESIGN PORTFOLIO
in
WOODGROVE
BANK7DESIGN PORTFOLIO Produced
AutoCAD

CONSTRUCTIONDETAILING

WINDOWSILLSTAIRS

WOODGROVE BANK8
DESIGN PORTFOLIO

CONSTRUCTIONDETAILING

WOODGROVE BANK9
DESIGN PORTFOLIO COLDROOF3DDETAILSTRIPFOUNDATION3DDETAIL

RESIDENTIALPROJECT

DesignedasaforeverhomeinDunoon,Myfirsteverprojectsuitsaretiringcouplewholoveentertainingandanticipatehostinggrandchildren.It offersasizablekitchen-livingspacewithfull-heightcurtainglazing,alongwithaseparateutilityarea,downstairsWC,andaflexiblestudyto accommodatepotentialmobilityneeds.

WOODGROVE BANK
10
DESIGN PORTFOLIO

GRADEDUNIT

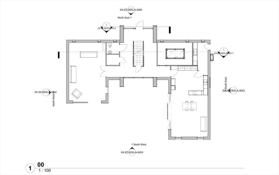
SebastianHughes,a35-year-oldsurgeon,andhispartnerRodgerJenson,a28-year-oldmotorbikemechanic,seeka2-storeyeco-friendlyhometo accommodatetheirhobbiesandlifestyle.Withabudgetof£650K,thedesignemphasisessocialspacesforentertainingalongsideaprivatewing.

IncorporatingDDAstandards,thedesignmaximisestheplotforgardeningandpotentialoff-gridliving,reflectingthecouple'spassionsandaspirations.

WOODGROVE BANK

11DESIGN PORTFOLIO

GRADEDUNIT

WOODGROVE BANK
12
DESIGN PORTFOLIO

GRADEDUNIT

WOODGROVE BANK
13DESIGN PORTFOLIO FLOORPLAN00AREAPLAN01 Produced
2024
inRevit

Turn static files into dynamic content formats.

Create a flipbook
Design Portfolio by Andrew Dearie - Issuu