Andrew Halpin Grad School Portfolio Compressed

Page 1


ANDREW HALPIN

ARCHITECTURE PORTFOLIO

My journey through architecture and landscape architecture has been a dance between two worlds—each informing and enriching the other. I’ve spent years crafting an understanding of architectural principles while weaving the natural world into every design decision. This balance of functionality, aesthetics, and environmental harmony is the heartbeat of my work.

With a foundation in landscape design and a graduate focus on architecture, I see the world not in silos, but in fluid connections—where indoor, outdoor, and transitional spaces exist in seamless conversation. My professional experiences have fueled my passion for the seamless integration of landscape and architecture, inspiring me to design spaces where the boundaries between the built environment and the natural world dissolve. I draw inspiration from architects like Malcolm Wells, whose approach to creating architecture that honors and works with the landscape rather than imposing on it has deeply influenced my own design philosophy. His emphasis on ecological sensitivity and the thoughtful merging of the two disciplines aligns with my desire to create environments where people can experience a sense of belonging in both the built and natural worlds.

When I’m not designing, you’ll find me staying active and embracing the outdoors. While age has slightly lessened my ability to play ultimate frisbee, even professionally, I’ve found new joy

22 Total Design Projects and Counting

in coaching middle school ultimate frisbee. This has been an enriching experience, allowing me to channel my competitive edge while passing on knowledge I wish I had learned at an earlier age. I also enjoy bouldering, rock climbing, and carving fresh tracks on the ski slopes— always seeking new ways to challenge myself. Additionally, I love capturing the world around me in paint and sketch. As a passionate traveler, I draw inspiration from diverse cultures and the stories they tell through their environments—reminding me that every place is a canvas, and every design, an opportunity to create something new and lasting.

In 2016, I moved back to Eugene, Oregon, hoping to find a job while being closer to my family. While I encountered the challenges of finding work in a smaller city, I embraced the opportunity to develop my social skills by bar tending and working as a beer tender. Although my resume may lack professional work experience during this time, I learned invaluable lessons in the fastpaced food industry—from managing pressure to insights in designing functional and inviting restaurant spaces. I also took this period to study for the GRE, apply to grad school, take online Revit classes, and learn V-Ray—all while working two jobs. I’m incredibly proud of the hard work it took to get back into grad school, and I am thoroughly enjoying every moment of being a student again.

Internship

Associated Students of the University of Oregon (ASUO): May 2012-September 2012

• Developed a research design proposal on the U of O r iverfront property for the ASUO The research consisted of site history, current conditions, student work, best practices, and the next steps for a desolate riverfront landscape.

• (Extensive use of: InDesign, and watercolor renderings)

Internship

Sustainable Cities Initiative (SCI): January 2012-August 2012

• Preformed a summary report of work completed for the SCI 2012 winter term Booth K elly studio. Work consisted of writing the history, context, site analysis, precedent studies, and student proposals or the studio (my design included pages 1-6 of my undergrad portfolio).

• (Extensive use of: InDesign and MS Word)

Part Time

Stangeland and Associates: December 2013

• Spent 4 weeks working with Stageland and Associates We took one of my studio design to create a constructing document set and a SketchUp model to be used for the 2014 winter tech studio at the University of Oregon.

• (Extensive use of AutoCAD and SketchUp)

Part Time

Shapiro Didway: May-June 2015

• Spent 2 Months working with Shapiro Didway I got hands on experience visiting sites under construction and working on design proposals.

• (Extensive use of AutoCAD and SketchUp)

Draftsperson 1

Verde Design: July 2015- June 2016

• Spent a year as a draftsperson at Verde Design Inc. Work involved assisting in construction document sets for high school track and field stadiums and developing illustrative graphics for urban design proposals

• (Extensive use of AutoCAD, SketchUp Lumion and Photoshop)

Ultimate Frisbee Coach

Emerald Valley Ultimate: September 2017 - June 2023

• I volunteered as a head coach for Spencer’s Butte Middle School teaching ultimate frisbee. I lead practices twice a week and couch in weekend tournaments during the fall and spring season.

Bachelor of Landscape Architecture

University of Oregon, Eugene, Oregon

Graduation: June 2014

Study abroad: Kyoto, Japan (Summer 2013)

• Four years of landscape architecture design studios

• Plants (Fall, Winter, Spring)

• Landscape Technology (I & II)

• Resilient utopia

• Watercolor plant design in Kyoto, Japan

• Principals of applied ecology

Master of Architecture

University of Oregon, Eugene, Oregon

Expected Graduation: June 2026

Study abroad: Barcelona, Spain (Spring 2024)

• Five terms of architecture design studios

• Global modernism in architecture

• Spatial composition

• Building Construction

• Environmental control systems

• Fine grain urbanism in Barcelona, Spain

Software Skills, Proficiency, & Years of Experience

SYMPHONIC SANCTUARY

TYPOLOGY

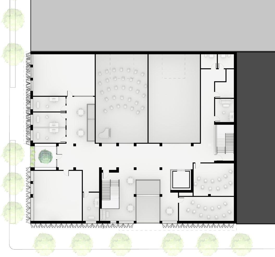
Music & Dance School DESIGN Andrew Halpin

LOCATION Portland, Oregon

draws inspiration from

The design
the nearby influence of China Town and the Suzuki method taught to the violinist students. Origami sound panels in the concert hall expand outward as a kinetic facade

The School of Music and Dance in downtown Portland will become a defining element of the city that aims to celebrate the hours of arduous work put forth by hundreds of students. The recital hall is at the heart of the building, celebrating the art of performance. The heart of the building felt best situated on the ground floor, a public celebration of what it means to explore the arts. A 5 story atrium is a threshold to the most essential room of the building. The atrium celebrates and acts as a sunlight spine that connects the building vertically, creating a gathering space on every floor. To extend the atrium, on the ground floor, a cafe and reception

hall will envelop the atrium, acting as arms to the public space. The stairs and elevator expand the verticality of the atrium; by situating these near the atrium, the comings and goings in the building will attach to the atrium. On the 3rd-5th floors, the heart of the school will provide a more private sanctuary to study one’s craft. The crescendo of this building will be a roof terrace that looks out to the west, connecting the north park blocks, extending the green necklace onto the building, and celebrating a defining park system unique to Portland.

PARTI

The site’s context exhibits a unique blend of old and new. The brick facades scattered across the area remnants of industry beg for a connection to the past. At the same time, new buildings respond to and ignore the historical masonry that built Portland’s foundation. The school of music and dance must inhibit a feeling of contemporary design while paying attention to the material and style that unites the city.

School Circulation

Recital Hall at the heart of the public realm

Atrium as a threshold

Vertical elements connect the Atrium

Public amenities extends the Atrium

School of Music & Dance in the private realm

Light Well provides daylight

Outdoor Space connects to the North Park Blocks

Recital Hall
andrew halpin

MIDTERM MODEL

SOUTH ELEVATION

andrew halpin
andrew halpin

3F GATHERING SPACE AT THE HEART OF

MUSIC & DANCE

RINCONES FAMILIARES

TYPOLOGY

Market, Housing, & Plaza
DESIGN
Ashley Carr, Andrew Halpin, Antonia Washington, & Madi Young
LOCATION Barcelona, Spain

The district of Marina Del Prat Vermell (MPV) stands as a neighborhood in the midst of transformation. Barcelona envisions turning MPV from a forgotten industrial zone into a vibrant mixed-use community. While examining the character of Barcelona’s neighborhoods and what could shape MPV’s success, our group recognized that families—a vital user group—are currently overlooked. In this evolving district, there is a distinct absence of playgrounds, schools, and safe outdoor spaces. These observations guided us to focus our new Superilla design on families. The site was zoned to include a market, social housing, and public outdoor spaces. Our group

sought to weave these three elements into a unified public realm—an integration of a sheltered market, elevated public housing that extends the market beneath, and an open-air plaza. By merging these spaces, we envisioned a vibrant synergy where three separate zones could become one harmonious public space. With families at the heart of our design, we explored how these areas could serve them, envisioning safe pathways to schools, connections to public transportation, and inviting places to play.

A FRACTURED ECOLOGY CONNECTED HABITAT GRADIENT

andrew halpin

ACCESS TO PLAYGROUNDS & SCHOOLS

ACCESS TO PUBLIC TRANSPORTATION

My r ole in t his c ollaborative pr oject was t o de sign t he ou tdoor public s pace t hat w ould seamlessly c onnect t he m arket, public hou sing, and a pl aza. O n a br oader s cale, I c onsidered the c ity’s e cological l andmarks and ho w t hey migh t b e link ed t hrough gr een c orridors. We im agined a gradient o f h abitats s tretching f rom t he El L lobregat R iver t o M ontjuïc, with our si te ne stled a t t he f oot o f t he moun tain—historically a me eting p oint o f f orest and grasslands. By c onnecting t o t hese e cological pa thways, our op en s pace b ecame a h aven where h umans, pl ants, and anim als migh t in tertwine; f ostering a s ense o f b iodiversity. Focusing on e cological signi ficance, our gr oup de veloped a f ramework o f de sign s trategies tailored t o t he h uman s cale o f our si te. E nvironmental e quity was addr essed b y cr eating h abitats that s erve b oth w ildlife and p eople, and o ffering s hade t o r educe ur ban hea t. S ocial e quity s haped our v ision o f a f amily-friendly, c ommunity-centered s pace—emphasizing s afety, pl ay, c ultural representation, balc onies, s ocial s eating, and a gr ound f loor t hat enc ourages in teraction. H ere, t he built en vironment and n atural w orld blend , cr eating a s pace t hat n urtures b oth li fe and c onnection.

Low Albedo Material
Shaded Balconies
Mercat Prat Vermell
andrew halpin
Lanes of Tra ic

DETAIL SECTION

andrew halpin

WHISPERS OF THE FOREST

TYPOLOGY

Open Air Pavilion

DESIGN Andrew Halpin

LOCATION Eugene, Oregon

Drawing inspiration from Isamu Noguchi and the somberness of the forest enveloping the site; the pavilion creates a introspective space for students to unwind.

PERSPECTIVES

In the second half of my introductory studio, we continued what we had learned from midterms, given a new site on campus to house artwork from a selected artist, and showcase it in an open air pavilion. After site analysis, I had found a profound juxtaposition between the forest’s graveyard and the tumult of the campus. I felt like a communication between the forest and campus was needed to create a harmonious quiet space that could be created for students to relax in order to pay respect to the graveyard.

I selected Isamu Noguchi as my artist in order to celebrate the introspective space I had been envisioning. Noguchi felt like a perfect fit with his simple and contemplative sculptures.

The topography of the site sloped downward towards important views of the campus. Instead of cutting off these views I chose to ramp the open air pavilion upward in order to accentuate these important views, creating a veranda over the campus.

Warmth of the Wood structure beckoning users with an open invitation to explore the inner belly of this sunlit shelter.
Creaking of the wood floor with each step harmonizes with the steady babbling of running water found in the central courtyard.
Circling the structure, you find yourself enveloped in an open vista of campus and all the visual riches it beholds.
The prattle of water cascading over basalt columns draws you closer. It begins to drizzle, you choose to ensconce yourself in a seat, and become mesmerized by the solemnity of the space.

SKY CANVAS COMMUNITY ART CENTER

The building Invites users off the street to explore the creative endeavor of the artist. The project beacons users off the street to explore the building that leads one to a circular roof garden, lush with vegetation and outdoor classrooms for art.

The Whiteaker neighborhood stands out as an eclectic community, boasting numerous quaint outdoor spaces scattered across its expanse. The design primarily caters to the vibrant art community while also integrating an inviting outdoor porch that extends its hospitality to the entire Whiteaker neighborhood. Amidst the restaurant cluster in the area, passersby on Blair Boulevard or Van Buren Street might cast a curious glance at the building, pondering about the secrets it holds within.

Upon crossing the threshold, visitors are greeted with an enticing view extending either to the open hearth or a staircase leading to the rooftop garden. The hearth, a luminous and expansive atrium, allows light to permeate through the exposed

wooden structure above. An enchanting interplay of light and shadow creates a captivating crossing pattern, with a central fireplace serving as a focal point. Here, one can rendezvous with friends over coffee, indulge in a meal, or peruse the art gallery adorning the walls—a showcase of masterpieces crafted by the resident artists.

Ascending the staircase unveils a lush rooftop garden, a meandering path connecting the first-story roof to the second. Atop the building, panoramic vistas of Skinners Butte, Spencer’s Butte, and, on clear days, Mt. Hood unfold.

UNITY ATHENEUM

Atheneum

DESIGN

Andrew Halpin

LOCATION

Seattle, Washington

The building takes advantage of views to Lake Union, with its curved form, and orienting away from unsightly buildings. The form connects to other cultural buildings looking to continue the historic tale of the Pacific Northwest.

The design looks to create a sanctuary for architects to further explore the field push the bounds of sustainable design. To study, experiment, share, learn and lead what architecture in the Pacific Northwest means. While the primary user is architects from all walks of life, the people who have never experienced the field of architecture, the building looks to create a symbol for where architecture should go.

Open, inviting pathways link the structure to its outdoor environment. Expansive windows and nooks provide uninterrupted views of Lake Union, reinforcing the sense of place and grounding visitors in the natural beauty of the area. Natural materials like terra-cotta evoke a tactile warmth, while sustainable features echo the region’s commitment to environmental stewardship. The building’s design celebrates water as both a visual and conceptual element, incorporating rainwater harvesting systems, creating a space where architecture and nature converge.

ARTWORK

thank you

Turn static files into dynamic content formats.

Create a flipbook
Issuu converts static files into: digital portfolios, online yearbooks, online catalogs, digital photo albums and more. Sign up and create your flipbook.
Andrew Halpin Grad School Portfolio Compressed by Andrew Halpin - Issuu