Andres Troncoso Portfolio 2025

Page 1


Troncoso Architecture Portfolio 2024

Andres

Table of Contents

Vetical Apertures 4-17

Advanced Architecture1 - Studio

The Eatery 18-23

Construction Tech I

Curvatures & Convergence 24-25

Media Modeling II

Spatial Dynamics 26-27

Media Modeling II

Liminality Through Reflection 28-29

Design Studio

Eat, Drink, Share Stories 30-41

Design Studio

Cross-Fit Theater 42-55

Design Studio

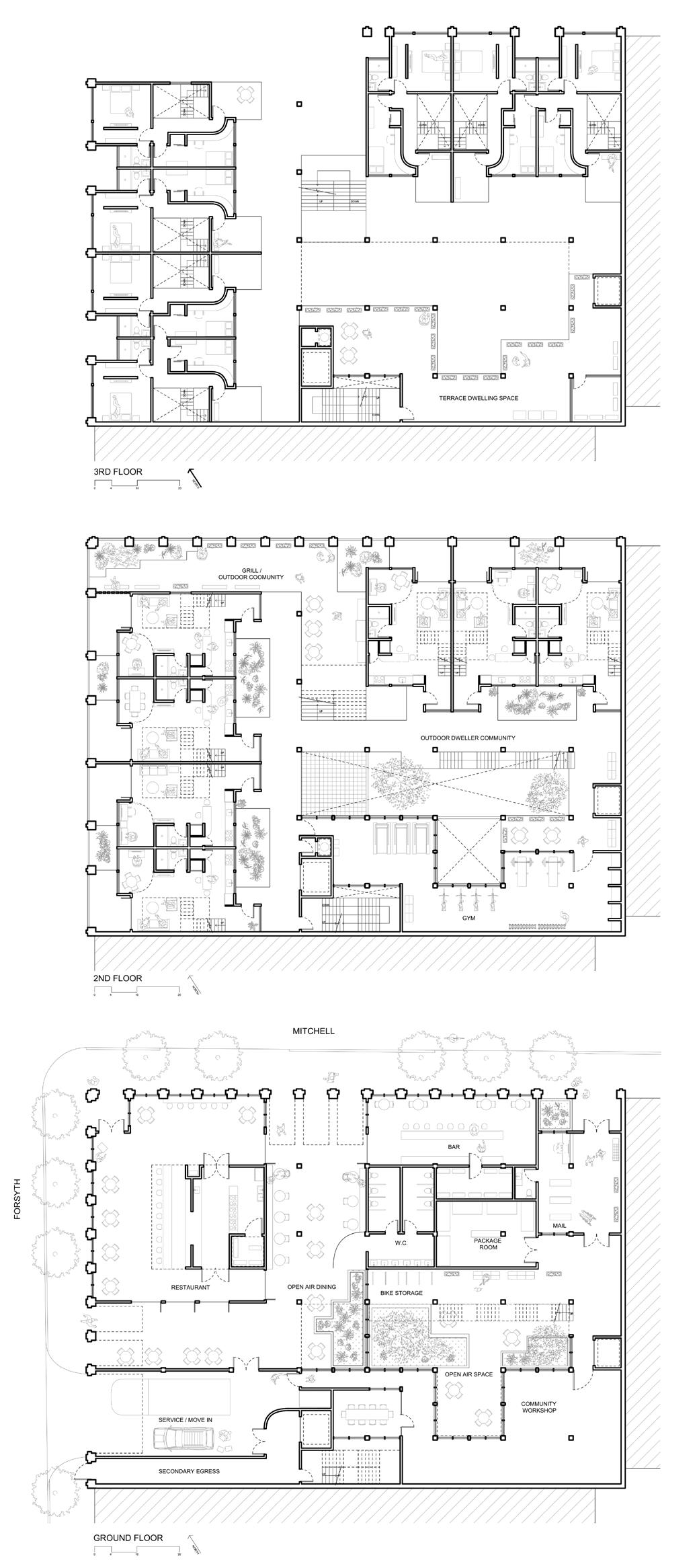
ForsythStreet

Vertical Apertures

190 Mitchell St SW Atlanta, GA

This design envisions a revitalization of South Downtown Atlanta, creating a vibrant community that attracts families to the area. Central to the concept are vertical apertures that penetrate the structure, infusing natural light into circulation areas and communal hubs, fostering a sense of connectivity between the apartments and the city.

MitchellStreet
Instructor - David Yocum
Mitchell Street - residential and commercial entrance

Mass and Void - exploration using pen and marker

Physical models and hand drawing helped the process of diagraming. these physcial diagrams act as proofs of key elemnts like program organization, mass-void, public -privtae, dwelling organization, and building massing.

Model Materials: paper, museum board, corrugated carboard and 3D printing.

Physical Model Diagramming

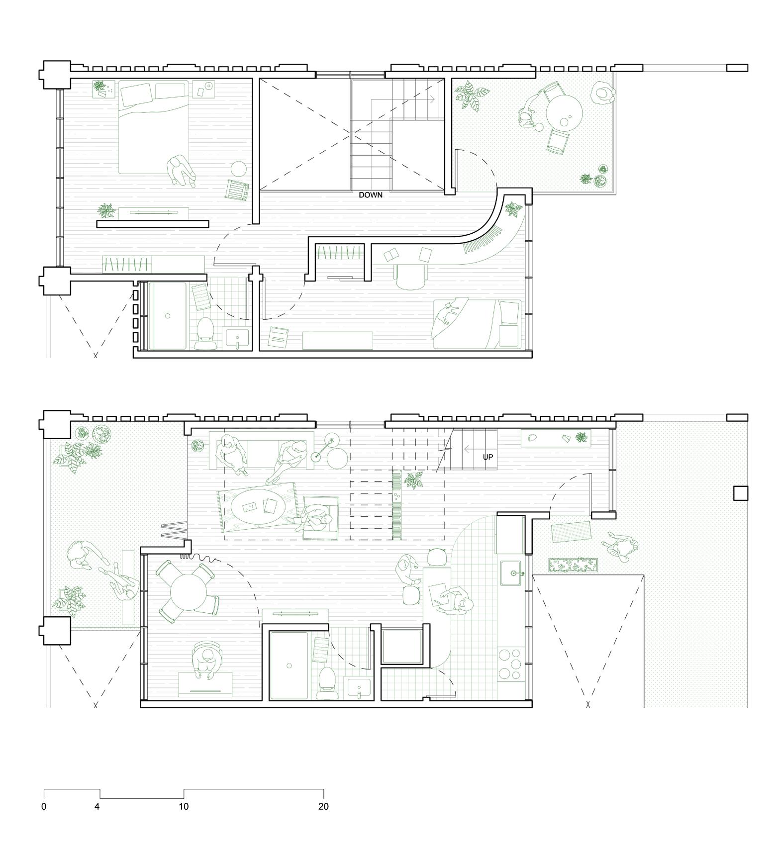
The building organization is startegized to harness sunlight into the southern couryard, while allowing northern light to reach all the units on the street front.

These conditions drove the decision to make each unit have interior courtyard and street facing conditions.

and Unit Organization

Physical Model Diagramming

Community Interlocked - community space & two level unit

Paintings informed the spatial organization of the dwellings bringing art as one of the main driving factors of the mass and void seen through the project.

“life imitates art” - Oscar Wilde

VERTICAL CONNECTION

Dwellings Interlocking - north west aggregation

TYPE
TYPE
TYPE

Floor Plans - 1-3

The facade features an amber-colored brick, which pays homage to the region’s architectural heritage while ensuring durability and aesthetic warmth. Sustainable strategies are paramount, utilizing Cross-Laminated Timber (CLT) for construction, which reduces the carbon footprint and enhances thermal performance.

Mitchell Street Elevation
Forsyth Street Elevation

Plans - 4 -5

Hand sketches explore the private and public, mass and void, and spatial relations.

“architecture turns its gaze to the recent past and is capable of constructing a privacy in which materiality still preserves its full svocative power” - Javier Mozas , a+t

Dwellings Typical Unit Lower Level Upper Level

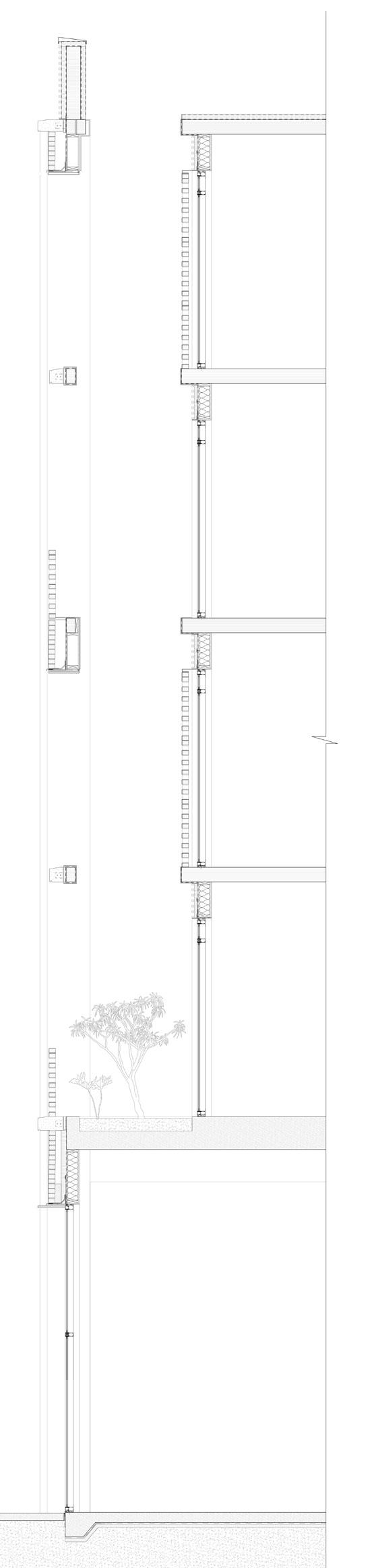
Detail Sections at Exterior Rooms (A) & Vertical Apertures (B)

The Eatery

261 4th St NW Atlanta, GA

The pavillion sits at the heart of campus, it responds to the adjacent bustling food truck area where students gather daily.

The Eatery utilizes wood joinery to limit the use of steel to the foundation. Each wooden element miters and interlocks to showcase the simplicity of the joinery, eliminating the need for metal brackets altogether.

Parti Diagrams

Instructor - Charles Rudolf

Perspective - step up and table arrangement

Physical Model - 3D Print

Isometric Drawing

Column Base & Floor Joist Connection

Curvatures & Convergence

Exploration shape making through curve subdivisions and the connections formed between the subdivision points. By dividing curves into smaller segments and linking the resulting points, a complex, interconnected pattern emerges. The resulting structure plays with spatial relationships, creating a dynamic interplay of geometry and form that evolves as the subdivisions and connections are manipulated.

Instructor - Botao Li

Isometric Perspectives

Spatial Dynamics

Combination of mathematics and digital design by mapping a 2D pattern onto a mathematical surface, influenced by attractor fields. Using geometric elements like polygons, circles, and curves, the pattern deforms as it interacts with the surface’s curvature, enhancing its three-dimensional form. The result is a dynamic exploration of how geometry and attractors shape digital design.

Fuction X(u,v)
Fuction Y(u,v)
Fuction Z(u,v)
Instructor - Botao Li

cos(u)*cos(v)/(-2.*sqrt(0.965/3.-0.935/3.*((cos(u )^4+sin(u)^4)*cos(v)^4+sin(v)^4))*cos((acos(-(0.941/6.+0.374*((cos(u)^4+sin(u)^4)*cos(v)^4+sin (v)^4)-1.309/6.*((cos(u)^6+sin(u)^6)*cos(v)^6+sin(v)^6)1.221*cos(u)^2*cos(v)^4*sin(u)^2*sin(v)^2)/sqrt(0.965/3.0.935/3.*((cos(u)^4+sin(u)^4)*cos(v)^4+sin(v)^4))^3)pi)/3.)+0.8)

sin(v)/(-2.*sqrt(0.965/3.-0.935/3.*((cos(u)^4 +sin(u)^4)*cos(v)^4+sin(v)^4))*cos((acos(-(0.941/6.+0.374*((cos(u)^4+sin(u)^4)*cos(v)^4+sin (v)^4)-1.309/6.*((cos(u)^6+sin(u)^6)*cos(v)^6+sin(v)^6)1.221*cos(u)^2*cos(v)^4*sin(u)^2*sin(v)^2)/sqrt(0.965/3.0.935/3.*((cos(u)^4+sin(u)^4)*cos(v)^4+sin(v)^4))^3)pi)/3.)+0.8)

sin(u)*cos(v)/(-2.*sqrt(0.965/3.-0.935/3.*((cos(u )^4+sin(u)^4)*cos(v)^4+sin(v)^4))*cos((acos(-(0.941/6.+0.374*((cos(u)^4+sin(u)^4)*cos(v)^4+sin (v)^4)-1.309/6.*((cos(u)^6+sin(u)^6)*cos(v)^6+sin(v)^6)1.221*cos(u)^2*cos(v)^4*sin(u)^2*sin(v)^2)/sqrt(0.965/3.0.935/3.*((cos(u)^4+sin(u)^4)*cos(v)^4+sin(v)^4))^3)pi)/3.)+0.8)

Mathematical Surface & Attractor Variations

Liminality Through Reflection

After exploring the physical properties of light and shadow of the three sites when untouched, the solar path became a driver through which I define liminality as a transition between states where one does not overcome the other. This transition finds a reciprocity where the outcome becomes a reflection of both states at once. This then translates into the architecture and phenomena that use reflection as the motivation for the experience on each site.

Shadow as Reflection
Light Reflection

Eat, Drink, Share Stories

1525 Ellsworth Industrial Blvd NW Atlanta, GA

The project responds to partnership of Cafe Reconcile and The Moth, creating a community hub that includes a theater, restaurants, offices, and teaching spaces. The farm to table approach is emphasized by putting the vertical farming component at the forefront of the building.

Project Partnetships

Atlanta

For more than 20 years, our nonprofit Cafe Reconcile has nurtured the professional and personal growth of young people as they explore career or educational opportunities and develop job readiness skills to stand out in the marketplace. Interns earn industry credentials, explore career and educational pathways that suit their individual abilities, and experience realworld, on the job training in the training restaurant.

The Moth is an acclaimed not-for-profit organization dedicated to the art & craft of storytelling. It has presented true & first person stories worldwide.

Food as Face

Giuseppe Arcimboldo painted his royal patron, the Holy Roman Emperor Rudolf II, as a heap of fruits and vegetables. the idea gets translated into the project as the farming spaces act a greenhouse revealing their production and explicit function at multiple points within the building.

Parti Lines Food as Facade

Ingrained on the initial Parti, lies the motivation to develop the project upon a 50’ square units, and 30 feet spanned CLT construction. The two Restaurants sit under the three level atrium giving light to the vertical farming on the upper floors.

The lower underground space works as two restaurants, able to look up into the farming enforces the farm to table notion. The two extremes of the building grow using hydroponics also harnessing the daylight. the middle area grows with artificial light.

Tomato Farming

Farm to table structure allows for differet fruits and vegetables to grow and be used for the restaurants and farmers market.

The Moth creates spaces for the community of Altlanta to cherish stories, one of humanities oldest forms of gathering. The vertical farming is separated into the greenhouse courtyards, artificial light farming, and a flower / herbs planting. The restaurant and Cafe Reconcile rest underground, with great views to the farming avobe. Vertical Farm to table.

Front Facade from Permeable Parking

1. Concrete

2. CLT Wall

3. Wooden Frame

4. Theater Frame

5. South Facade

6. Farming

7. Flower Planting

8. Back (front) Stage

9. Envelope

Systems at Play - Exploded Iso

Level 3 Passage

Structural clarity was maintained by using mass timber as the building kit of parts.

The sections through building revealsthe multiple visual connections made between circulation, work, and gathering spaces. the linear back of house hides away the sotorage and circulation for the farming facilities.

Lateral Sections
Enlarged Section at Facade

Table & Chair Assembly

Flowers, Herbs, Spices

The courtyards are decorated by a fuctional vertical garden for flowers, herbs and spices

Cross Fit Theater

142 Auburn Ave Atlanta, GA

The project responds to partnership of Cafe Reconcile and The Moth, creating a community hub that includes a theater, restaurants, offices, and teaching spaces. The farm to table approach is emphasized by putting the vertical farming component at the forefront of the building.

Athlete as Performer

The gymnasium will be developed as an extension of CrossFit that deploys the architectural roots of athleticism as an act of theatre.

Parti Lines Systems at Play the performers, the audience, and the greater context of auburn ave all interact through the series of balconies that look over the workout stage, being illuminated by light baffles that capture light into the workout areas.

The large ramps allow for a circulatory connection to the sidewalk adjacent. While the historical and natural context of the site will order the body-building theater into systems of wind and water that allow for the back outdoor space to act as a connection to the deep-rooted history of auburn ave.

Corten Steel Facade

Building Section - Terraces

Building Section - Workouts

Ground Level Bleachers

The ground level offset is mediated by bleachers and accesible ramps

The terraces allow for view of the performers on the main stage.

Level Two Terrace

1. Steel Frame System 2. Vierendeel Space Frame 3. Baffles

4. Edge Lighting A/B

East Facade

South

7. Contemplation space

Facade

Sun Baffles on Vierendeel Space Frame

Use Based Positioning

The light baffles channel sunlight to highlight the main stage, creating a theater like experience for the performers.

/ Wind / Water

Following the sun path the Angled Corten Steel Panelsprotect from southern light throughout the year.

Angled Corten Steel Panels

Spring 7:00 AM Sesonal Reposition

The skylights highlight the cardio room surrounding the space, the offices get naural sunlight through the day.

Bifold

will be closed on the summer months, and open up as the colder months roll in.

The
Corten Steel Panels

Bifold Corten Steel Panels Spring 1:00 PM Seasonal Repositioning

Acknowledgements

Instructors

David Yocum

Botao Li

Russel Gentry

Charles Rudolf

Jude Leblanc

Fred Pearsall

Portfolio Review

Katherine Wright

Turn static files into dynamic content formats.

Create a flipbook
Issuu converts static files into: digital portfolios, online yearbooks, online catalogs, digital photo albums and more. Sign up and create your flipbook.