ANDRES RECALDE ARQUITECTOS

Page 1

g

g

g ) (- LZ D

g ) (, 4 d 3WLYNL

Z h AWLcL 4STNL DLY CLQLPW "5:D6i

g ) (, AWLdL 6OTQTNTZ HTYO Z B T Z h L 2XLdZYL "5:D6i g ) ( FYTaP TOLO OP WL 2 P 5T PlZ OP WL CP TOPYNTL FYTaP T L TL AWLdL c A PY P 8 LcL TW h 4PY Z OP 8 LcL TW

g ) ( AZWTNTL LNTZYLW 2OPN LNTmY c CPOT PlZ OPW 4ZXPOZ OP 4LOP P PY WL 6 N PWL D P TZ OP AZWTNkL g ) ( 4L L OPW LRZ DLY ALMWZ OPW LRZ h LaLWZ

g ) ( 6OTQTNTZ L 7WZ P L B

2 6IA6C:6 4:2 AC 76D: 2 g ) (0 ) ) A ZQP Z OP WL FYTaP TOLO :Y P YLNTZYLW OPW 6N LOZ g ) (0 ) ) A ZQP Z OP WL FYTaP TOLO 6 L LW OP 8 LcL TW "2CBF:E64EFC2 J 5:D6i 56 : E6C: C6D g ) (0 4ZYN Z 4PY Z 4ZXP NTLW 4ZZ P L TaZ d OPW GLWWP "5:D6i g ) (0 CPSLMTWT LNTmY ZQTNTYL 2R T LN TWLR Z c LNSLWL "5:D6i g ) (0 QTNTYL 5TYP 4W M F OP L 8 LcL TW g ) (0 4ZYN Z TN ZNPY LWTOLO L J PYNTmY Z L P OPW : AF PY PW NZYN Z :4C 46 EC2 :525 2 JfNZY PW ZcPN Z J e5P a PW L OP LW ML TZf c MWTNLOZ PY PW WTM Z eB T Z ) NZYN Z OP TOPL f: AF g ) ( :D 24 :Y T Z EoNYTNZ D P TZ :D 24 B T Z E XMLNZ 5T PlZ c AWLYTQTNLNTmY OPW Y PaZ NLX YTaP L TZ "5:D6i
) (. 4L L OZlPd ZUL 5T PlZ c AWLYTQTNLNTmY "5:D6i
) (- 3PP 8 Z QTNTYL c LWWP "5:D6i J 4 DECF44:
Z 4PY P WZNLW 4ZYOLOZ DSZ TYR "5:D6i J 4 DECF44: g ) (, 6OTQTNTZ DLWLdL B T Z h 4L NPWoY "5:D6i
B T
T Z h L 7WZ P L "5:D6i g ) ( 6OTQTNTZ F :AC B T Z h L 7L LWTL "5:D6i g ) ( 6OTQTNTZ A T XL 9ZRL QTNTYL c ZNLW 4ZXP NTLW B T Z h AWLcL 4STNL DLY CLQLPW "5:D6i J 4 DECF4 4: g ) ( 6OTQTNTZ 6 PWWL B T Z h 4 XMLcj ML TZ L A TXLaP L "5:D6i g ) ( 6OTQTNTZ Z Pd B T Z D h L LROLWPYL "5:D6i g ) () 7LM TNL c QTNTYL A T XL 9ZRL B T Z h 6W XLcZ T L dZYL B T Z "5:D6i J 4 DECF44: g ) () 6OTQTNTZ 5TWWZY JP ZaT B T Z h KjXMTdL "5:D6i g ) (( LZ 5ZZ B T Z "5:D6i J 4 DECF44: g ) (( LZ D Z AWLdL 2Y L L B T Z 4 XMLcL "5:D6i J 4 DECF44: g ) (( 6 N PWL OP 4L LNTOLOP 6 PNTLWP LYLMk "5:D6i g ) (( 6 N PWL 6W TWPYTZ LRZ 2R TZ NLY mY 7L QjY "4 DF E C:2 5: D6 g ) (( 8P Z : 4 QTNTYL c LWWP P B T Z "5:D6i

L 3 MLYZ

L

Z OP )

Z WL P PY WL Y PaL dZYL OP Pb LY TmY ELNSTYL

TOLO :Y P YLNTZYLW DPV

3 g ) (( 4L L PYL B T Z 4LWTQZ YTL 2W L "5:D6i J 4 DECF44: g ) (( 4L L CPTYZ Z B T Z 4 XMLcL "5:D6i J 4 DECF44: g ) ( 4L L OP WL U aPY OP ZcPN Z c LWWP L TNT L TaZ :6D c YTNT TZ OP DLY Z 5ZXTYRZ "6 A 625 AF3 :4 g ) ( AL P :Y P RPYP LNTZYLW ZcPN Z c LWWP L TNT L TaZ :6D c YTNT TZ OP DLY Z 5ZXTYRZ "6 A 625 AF3 :4 g ) ( 4PY Z 8P Tj TNZ ZcPN Z c LWWP L TNT L TaZ :6D "6 A 625 AF3 :4 g ) ( 4L L 6 NZML DLY Z 5ZXTYRZ "5:D6i g ) ( 6OQ 3ZYVZ Z DLY Z 5ZXTYRZ "5:D6i g ) ( 4ZYU Y Z CP TOPYNTLW 6W ALWXL "( YTOLOP OP aTaTPYOL DLY Z 5ZXTYRZ "5:D6 i g ) ( AL P OPW 2R L B T Z MTNLNTmY 3L TZ L CZWOm "5:D6i g ) 0 5P L ZWWZ OPW AWLY OP OPYLXTPY Z EP T Z TLW OP 6 XP LWOL L L WL Y PaL dZ YL OP Pb LY TmY ELNSTYL PY NZZ P LNTmY NZY FY 9jMT L c WL FYTaP TOLO :Y P YLNTZYLW DPV g ) 0 5T PlZ c WLYTQTNLNTmY OPW LWPNmY L L WL Y PaL dZYL OP Pb LY TmY ELNSTYL PY NZZ P LNTmY NZY FY 9jMT L c WL FYTaP TOLO :Y P YLNTZYLW DPV g ) 0 A ZcPN Z OP CP
PY LXTPY
aTaTPYOL
PY NZZ P LNTmY NZY FY 9jMT L c WL FYTaP
g ) 0 4L
5T PlZ L T PN mYTNZ FMTNLNTmY Z 2 LcLYP g ) 0 QTNTYL 5T PN a 5T PlZ L T PN mYTNZ B T Z L PY L c Z Z "5:D6i g ) 6OTQTN:Z OP aTaTPYOL 2 WL 5T PlZ L T PN mYTNZ " ( YTOLOP SLMT LNTZYLWP FMTNLOZ PY NLWWP Q :lL T Z 2W Z g ) 6OTQTN:Z OP aTaTPYOL A LRL 5T PlZ L T PN mYTNZ FMTNLOZ PY NLWWP Q :lL T Z 3L UZ g ) :YaP TRLNTmY OP OPYLXTPY Z c EP T Z TZ :XLRPY F MLYL ET ZWZRkL OP GTaTPY OL c WL N W L 6 XP LWOPlL PY NZZ P LNTmY NZY FY 9jMT L c WL FYTaP TOLO :Y P YLNTZYLW DPV g ) - 4ZYU Y Z CP TOPYNTLW GLWWP 3WLYNZ 5T PlZ L T PN mYTNZ " YTOLOP OP aTaTPY OL MTNLNTmY 4 Y cLN g ) , ELWWP 6b P TXPY LW eFY 9jMT L 4ZWPN TaZ F MLYZf "AC6 : 652 2 56 C ) - J 6 4: 56 9 C 6 2 3:6 2 2E: 2 6C:42 2 56 5:D6i FC32 4 672 ) , 4 4: :6 E D 6DA64:7:4 D 2C49:425 ) 3: 2 286C 46CE:7:425 A C 8C2A9:D 7E A9 E D9 A EH: E: "A ZR LXL PYOP TdLOZ OP TXjRPYP c aTOPZ

AC6 : D J 5:DE: 4: 6D1 g ) (0 ZcPN Z NZY XPYNTmY Z L P OPW : AF PY PW NZYN Z :4C 46 EC2 :525 2 JfNZY PW ZcPN Z J e5P a PW L OP LW ML TZf c MWTNLOZ PY PW WTM Z eB T Z ) NZYN Z OP TOPL f: AF g PYNTmY OP 9ZYZ PY WL :: 3TPYLW L TYZLXP TNLYL OP 6 OTLY P OP 2 T PN L "II: 4WPQL ) , NZY PW PXL 5T PlZ OP Y SjMT L NZWPN TaZ F MLYZ g POLWWL OP Z PY WL IG 3TPYLW ALYLXP TNLYL OP 2 T PN L OP B T Z ) - PY WL NL PRZ kL E LMLUZ CPLWTdLOZ PY WZ OZ nW TXZ LlZ PY OT PlZ L T PN mYTNZ NZY WL ZM L e Z PaZ ALT LUP OPW 9jMT L f g 3PNL TZ OP WL LNTZYP FYTOL "F 923:E2E c PW YTNT TZ OP 6

Z c Z TNTmY L L PW P Z 5T PlZ 2 T PN mYTNZ c 7T NLWTdLNTmY OP M L L L PW :6D PY PW LlZ ) ( 4 76C6 4:2D D6 : 2C: D J E2 6C6D 5:4E25 D

g RLYTdLOZ P OP WL A TXP L DPXLYL OP WL 2 T PN L F:D6 PYP Z ) ) g RLYTdLOZ P OPW PaPY Z 2 T PN L 2 P c 6 o TNL F:D6 XL dZ ) , g RLYTdLOZ P OPW ELWWP 6b P TXPY LW eFY SjMT L NZWPN TaZ MLYZf PYP

XP LWOL L L PW OP L ZWWZ OP WL P T OP R LOZ e CPL PY LXTPY Z OP ( QLXTWTL OP WL CTaP L OPW CTZ 6 XP LWOL L WL Y PaL dZYL OP Pb LY TmY ELNSTYL e TYaP TRLNTmY OP GTaTPYOL 6 XP LWOPlL :XLRPY F MLYL c 6 N L F MLYL OP WL NT OLO OP 6 XP LWOL ) :YaP TRLNTmY OP OPYLXTPY Z c EP T Z TZ :XLRPY F MLYL ET ZWZRkL OP GTaTPYOL c WL N W L 6 XP LWOPlL PY NZZ P LNTmY NZY FY 9jMT L c WL FYTaP TOLO :Y P YLNTZYLW DPV g CP P PY LY P OPW 6N LOZ PY PW 6YN PY Z L TYZLXP TNLYZ OP 6 N PWL OP 2 T PN L "6 62 8 L PXLWL N M P ) g PYNTmY OP 9ZYZ PY PW ELWWP MLYZ ZMTWTL TZ MLYZ L L 2Y TR L 8 L PXLWL 6YN PY Z L TYZ LXP TNLYZ OP 6 N PWL OP 2 T PN L "6 62 N M P ) g AZYPY P c Pb Z T Z P 6YN PY Z L TYZLXP TNLYZ OP 6 N PWL OP 2 T PN L 8 L PXLWL N M P ) NZY WL ZYPYNTL 2 4:F525 6 E:6 A J 6 F68 56 : G:D:3: :5256D g 8LYLOZ OPW TXP P Z PY PW NZYN Z YLNTZYLW OP o T
Z ) , F:D6 g 4ZYQP PYNT L NZY PW PXL e9jMT L NZWPN TaZ MLYZf 4ZYQP PYNTL 6YP Z ) , 7LN W LO OP 2 T PN L c F MLYT XZ F:D6 g 4ZYQP PYNT L NZY PW PXL eA PXTZ 4 672 ) ,f 4ZYQP PYNTL 7PM P Z ) , A TXP L UZ YLOL OP WL 2 T PN L FYTaP TOLO :Y P YLNTZYLW OPW 6N LOZ 4ZWPRTZ OP 2 T PN Z OPW 6N LOZ B T Z g 4ZYQP PYNT L NZY PW PXL e L NT OLO PW TPX Z c PW U PRZ OP TYaT TMTWTOLOP f "PY LcZ N k TNZ N M P ) 6aZW NTmY OP WL 2 T PN L L TYZLXP TNLYL 6YN PY Z L TYZLXP TNLYZ OP 6 N PWL OP 2 T PN L 8 L PXLWL ) g ELWWP MLYZ ZMTWTL TZ MLYZ L L 2Y TR L 8 L PXLWL 6YN PY Z L TYZLXP TNLYZ OP 6 N PWL OP 2 T PN L N M P ) g 4ZYQP PYNT L NZY PW PXL eELNSTYL c WL PaL TY P aPYNTmY PY PW P T Z TZf 4ZYQP PYNTL ) :W P YTNT TZ OP 6 XP LWOL g RLYTdLOZ P OPW ELWWP 6b P TXPY LW e923:E2E 4 2BF6f LM TW ) (- 8 2CBF:E64E D g4ZYQP PYNT L NZY PW PXL e923:E2E 4 2BF6f 4ZYQP PYNTL 2M TW ) (- Z YLOL OP WL 2 T PN L FYT aP TOLO :Y P YLNTZYLW OPW 6N LOZ

DISEÑO ARQUITECTÓNICO Y CONSTRUCCIÓN

“Un edificio es un sistema equilibrado que soporta la vida , es un contenedor de la misma.” Andrés Recalde

6 K A O S P O R T C E N T E R Q u i t o - C o n d a d o DISEÑO ARQUITECTÓNICO Y CONSTRUCCION: LOCAL COMERCIAL Y BODEGAS KAO SPORT CENTER CONDADO SHOPPING AREA DE CONSTRUCCIÓN: 500 M2 MONTO DE CONTRATO: $450.000
7
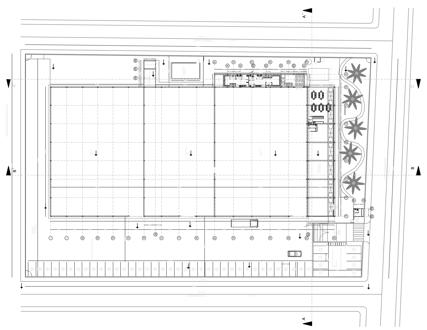
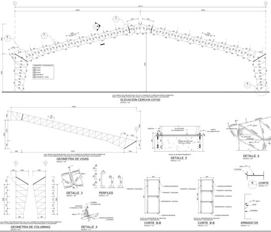
P R I S M A H O G A R Q u i t o - S u r DISEÑO ARQUITECTÓNICO Y CONSTRUCCION: OFICINAS Y GALPONES INDUSTRIALES PRISMA HOGAR. AREA DE CONSTRUCCIÓN: 4309 M2 MONTO DE CONTRATO: $845.000
11
12

Q u

t o - C u m b a y a

E D I F IC I O E S T R E L L A
i
13 DISEÑO ARQUITECTÓNICO: EDIFICIO DE VIVIENDA Y COMERCIO AREA DE DISEÑO : 2000 M2 MONTO DE CONTRATO: $8.000
, C -- ,
, -
-
, - ,
-
- -, ,- - -
-
- , - - -
-
- - - ,-- - , , -
-
-
15
16
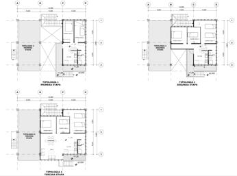
17 C A S A O R D O Ñ E Z L o j a - E c u a d o r d i s e ñ o DISEÑO ARQUITECTÓNICO: CASA ORDOÑEZ AREA DE CONSTRUCCIÓN: 193 M2 MONTO DE CONTRATO: $4.500
18
19
20
21 CONSTRUIDA
22
23 C A S A R E I N O S O Q u i t o - C u m b a y a d i s e ñ o y c o n s t r u c c i ó n DISEÑO ARQUITECTÓNICO Y CONSTRUCCION: CASA REINOSO AREA DE CONSTRUCCIÓN: 246 M2 MONTO DE CONTRATO: $236.000
Ideas que toman forma
25 , - - - - , -- - -
,
-
- - , ,
,- -
- - - - - ,- -
- -
-
-
- - - , - ,
- -
- - , - - - ,- - - ,-, , , - - - - - , - ,- -
26
27
28 E D I F I C I O S A L A Z A R 2015 Q u i t o - C a r c e l é n d i s e ñ o DISEÑO ARQUITECTÓNICO: EDIFICIO DE VIVIENDA AREA DE CONSTRUCCIÓN: 300 M2 MONTO DE CONTRATO: $4.500
29
30 A EN PROCESO 2018
31 E D I F I C I O M E N A 2 0 1 1 Q u i t o - C a l i f o r n i a A l t a d i s e ñ o y c o n s t r u c c i ó n DISEÑO ARQUITECTÓNICO Y CONSTRUCCION: LOCAL COMERCIAL Y BODEGAS KAO SPORT CENTER CONDADO SHOPPING AREA DE CONSTRUCCIÓN: 320 M2 MONTO DE CONTRATO: $90.000
32
33 O F I C I N A S B E E G R O U P 2016 Q u i t o - L a F a r s a l i d i s e ñ o y c o n s t r u c c i ó n DISEÑO ARQUITECTÓNICO Y CONSTRUCCION: OFICINAS, LOCAL COMERCIAL, TALLER ARTESANAL Y SALA DE CONFERENCIAS. AREA DE CONSTRUCCIÓN: 500 M2 MONTO DE CONTRATO: $430.000
34
38 L O C A L C O M E R C I A L P R I S M A 2013 Q u i t o - S a n R a f a e l d i s e ñ o y c o n s t r u c c i ó n DISEÑO ARQUITECTÓNICO Y CONSTRUCCION: EDIFICIO COMERCIAL, OFICINAS Y BODEGAS “PRISMA HO GAR SAN RAFAEL, PLAYA CHICA” AREA DE CONSTRUCCIÓN: 500 M2 MONTO DE CONTRATO: $450.000
ESTADO INICIAL
40
41
42
43
44
45

Lago Agrio - Cantón Farfán

DISEÑO ARQUITECTÓNICO Y COORDINACION CON INGENIERIAS: CONSULTORIA DE DISEÑO PARA EL DINSE

AREA DE DISEÑO:

MONTO DE CONTRATO:

46 E S C U E L A D E L M I L E N I O 2010
12.500 M2
$32.000
47
48
51

DISEÑO ARQUITECTÓNICO:

AREA

MONTO

NUEVO CAMPUS DEL INSTITUTO TECNOLÓGICO ISMAC

52 I N S T I T U T O S U P E R I O R I S M A C 2018 Tumbaco - Quito
ANTEPROYECTO
DE CONSTRUCCIÓN: 4000 M2
DE CONTRATO: $16.000
53
54
57

DISEÑO URBANO

PLAN MAESTRO PARA EDIFICIO PORTUARIO Y BORDE COSTERO MAGALLANES CHILE

La dinámica que existe entre la sociedad, el entorno natural y el entorno construido, convierten a un espacio en ciudad ; el tiempo y la vida la van dotando de identidad y carácter; nuestra labor es entender a este sistema vivo llamado Ciudad y atender a sus necesidades .

En el arte y oficio del diseño y planificación urbana existen múltiples campos de acción , la rehabilita ción , el proyecto nuevo , el ordenamiento territorial , etc.; cada una de estas poseen sus respectivas escalas , actores y condiciones por ende nuestro trabajo es captar sintetizar y actuar.

60

L A N M A E S T R O

O R T U A R I O Y B O M A G A L L A N E S

61 P
P

A R A E D

F

C I O

O R D E C O S T E R O

C H I L E

P
I
I
-
63
65
66

Guayaquil -Palacio de las Telecomunicaciones

67
U N I V E R S I D A D DE L A S A R T E S

EL ESPACIO PUBLICO COMO ESCENARIO DE VIDA

68 LA UNIVERSIDAD DE LAS ARTES EN GUAYAQUIL REQUIERE CONECTAR LA RESIDENCIA UNIVERSITARIA CON UN ESPACIO RESIDUAL DE LA CIUDAD , POR LO QUE SE PROPONE UNA PLAZA QUE SE DESPLIEGA HACIA EL EDIFICIO CON UN PUENTE QUE CUMPLE LAS VECES DE INGRESO Y DE BASE COMO ESCENARIO PARA ACTIVIDADES CULTURALES.
69
70
71
72

C A S A DE L A S J U V E N T U D E S

Santo Domingo de los Tsachilas - Parque Intergeneracional Taller Urbano con la Juventud local y Diseño Participativo

73
74

E L A R Q U I T E C T O Y S U O B R A

E l B a r r a n c o C u e n c a

Taller de diseño con Javier Garcia Solera

77
78
81

C R O C E N T R A L I D A D L A Y

Distrito Metropolitano de Quito -

Concurso, Equipo de trabajo:

Mario Recalde, Sebastián Motenegro,

María José Iturralde, Angelo Bermeo,

Mateo Torres, Ricardo Escobar,

Jorge Luis Garcia Zea, Kenny Espinoza

83 M I
84
85
86
94

DISEÑO INTERIORES

"Todo es diseño, y la calidad del diseño afecta la calidad de nuestras vidas." Norman Foster.
98
Sala Comedor Casa Ordoñez

Tradicionalmente el diseño de interiores ha sido un arte espacial que diseña am bientes, sin embargo, la arquitectura de interiores es un proceso que con conoci miento y creatividad muestra que el interior de los edificios debe resolver todos los aspectos necesarios para que el ser humano habite un espacio con salud ,belleza y armonía.

LA COCINA COMO PIEZA DE DISEÑO

99

CONSTRUCCIÓN

LA DIMENSION DE LO REAL

Una construcción conjuga múltiples elementos , algunos de estos son fundamentales ; qui zás el primero de este proceso es el proyecto , y es en el que se han previsto todos los pa rámetros necesarios para que la construcción sea una empresa venturosa , el segundo ele mento es el recursos ,económico ,materiales y humanos con los que se construirá el objeto , los mismo que deben ser administrados planificados y programados de tal manera que funcionen eficientemente para producir en el tiempo necesario el producto requerido. El ter cer elemento fundamental para la construcción es la técnica o manera de hacer ya que con la experiencia y conocimientos de obreros , técnicos profesionales de la construc ción, administradores es posible edificar eficientemente , y para hacerlo posible nuestra empresa aúna a todos estos actores, planifica ,coordina y ejecuta

RECONSTRUCCIÓN

La edificación y el paso del tiempo , las catástrofes naturales pueden afectar estructuralmente o superficialmente al edificio , peros solo después de un correcto análisis y diagnóstico se sabe si se debe demoler o reconstruir ; es por eso que nuestro equipo de profesionales brindan el servicio de análisis estructural y constructivo para saber como, cuanto y cuando se debe reconstruir.

REMODELACIÓN

, ,- - - - . -- - ,-
,
-
- - , ,
.
- -
. . -
- , , ,- - - - - - - -
-
- - - - - , --, -, , - ,- ,- - - - -

PLANIFICACIÓN

El arte de prever o de planificar nos permite entender lo que vendrá con el tiempo , lo que necesitaremos, lo que queremos hacer , por lo que poder responder a las preguntas básicas como :

¿Como va a ser? , ¿Cuanto va a costar? , ¿Cuanto va a durar?, ¿Como se va a hacer?

FORMA Y LUGAR ECONOMÍA TIEMPO MÉTODO

Nuestra labor es programar las actividades y los recursos en un tiempo adecuado para que la construcción o fabricación de un objeto , casa , edificio , ciudadela o espacio publico sean eficientes y de calidad.

INVESTIGACION

“Investigar es ver lo que todo el mundo ha visto, y pensar lo que nadie más ha pensado”. Albert Szent-Györgyi

Proceso de Reflexión sobre los procesos de los desechos sólidos en la Ciudad de Quito

UN MURO CANASTA

LA TECNOLOGÍA DESARROLLADA PARA EL PROYECTO ES DE FÁCIL Y RÁPIDO ENSAMBLE , CONFORMADA POR MÓDULOS, QUE INICIAN CON LA COLOCACIÓN DE PUNTALES DE MADERA (DESECHOS DE CONSTRUCCION)

LAS DOS GUIAS CON UNA SEPARACION DE 6 BOTELLAS ENTRE CADA UNA , ASI LA COLOCACION SIGUE UN ORDEN DETERMINADO Y SU UNION TAMBIEN.

LAS BOTELLAS PLÁSTICAS RELLENAS Y COMPACTADAS CON TIERRA SON COLOCADAS DE MANERA VERTICAL ENTRE LOS MADEROS Y SE LAS SUJETAS CON HIERROS A CADA UNO DE LOS COSTADOS.

AL NIVEL DE LAS UNIONES DE LAS BOTELLAS SE CONFINARA CON UN ENCOFRADO DE MADERA PREVIAMENTE REA LIZADO Y SE FUNDIRAN CINTAS DE HORMIGON A MANERA DE RIOSTRAS HORIZONTALES ENTRE LOS RECIPIENTES CON FORMANDO ASÍ EL MURO CANASTA.

109 HABITACULO XXI (TECNOLOGIA CON DESPERDICIOS)
Experimentación de la tecnología propuesta con basura 110
112
118

TALLER EXPERIMENTAL

119
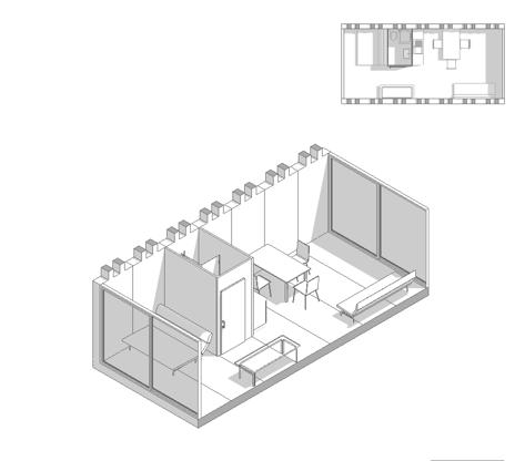
VIVIENDA TRANSITORIA En colaboración con Estudio 685
121

VIVIENDA

EXTREMA POPULAR

ESMERALDAS ECUADOR EN COOPERCION CON UNHABITAT ONU
123
125
126

IMAGEN URBANA MALECON TACHINA

131
132
134

2 EDIFICIOS MODERNOS

135
MANIZALES - COLOMBIA REPORTAJE GRAFICO DESDE STREET VIEW
136
137
138
139

CASA TRES PATIOS

MIES

140
CASA
TRES PATIOS
VANDERROHE
142

EL DETALLE CONSTRUCTIVO COMO INTENSIFICADOR DE FORMA

145
146
147
148

LA UNIDAD CONSTRUCTIVA COMO ESTRATEGIA PROYECTUAL

EDIFICIO ALTAMIRA RAFAEL EGLESIA
150

CASA PENTIMENTO JOSE MARIA SAEZ

151
152

CASA JAPON

153
154
155 TELETON SOLANO BENITEZ
156
158

Turn static files into dynamic content formats.

Create a flipbook
Issuu converts static files into: digital portfolios, online yearbooks, online catalogs, digital photo albums and more. Sign up and create your flipbook.