Entrega María Carrillo

Page 1


Departamento María Carrillo Entrega

Andrés Cedano

Arquitecto amante de la ciencia, tecnología, música y fotografía. Mi objetivo es fusionar estos elementos en el campo de la arquitectura y el uso en el diseño, con la visión de promover un impacto visual y educativo a los usuarios, además; Interpreto mis proyectos a partir de una selección de fenómenos científicos.

Andrés Cedano

Anteproyecto

Dirección: María Antonieta Carrillo

Av. República de Chile 699 Colonia Cuauhtémoc Nte 21200.

Mexicali, Baja California. 14 de marzo del 2025.

Atención al cliente:

Mexicali, Baja California. Email: arqandrescedano@gmail.com

Tel: (686)242-96-95.

María Carrillo

1 Introducción Anteproyecto

Bienvenida y explicación del proyecto a realizar.

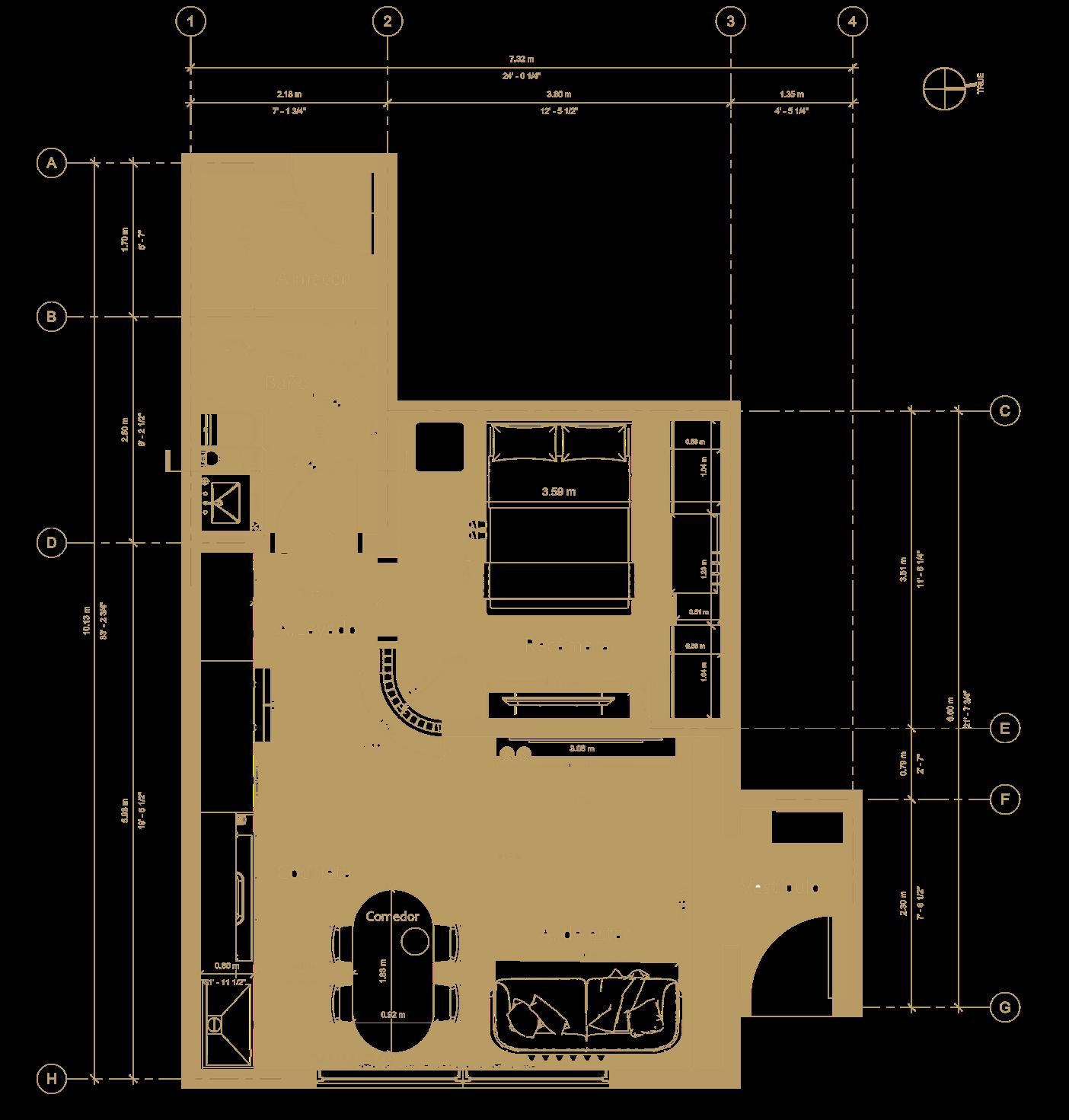
Planos Arquitectónicos

Representación de planos arquitectónicos propuestos.

Mobiliario 3

Representación de planos de mobiliario propuestos.

Luminaria 4

Tabla de contenido 2 5

Representación de luminaria propuesta.

Renders

Imágenes en perspectivas

María Carrillo

Introducción - Departamento

Temática: Distribución de espacios

El proyecto consiste en el diseño de un departamento temporal en la colonia Cuauhtémoc

Nte en Mexicali, Baja California, con un estilo que combina lo vintage, industrial y contemporáneo. La propuesta busca optimizar la funcionalidad del espacio, incorporando un baño completo, una recámara, sala de estar, cocineta, comedor y área de lavado.

El diseño integra elementos curvos en muros y puertas, manteniendo coherencia con los arcos originales del inmueble. Se seleccionaron materiales y acabados que resaltan la estética industrial y vintage, mientras que la iluminación tenue y cálida refuerza la atmósfera acogedora del espacio.

María Carrillo
María Carrillo
Andrés Roberto Cedano Avendaño Escala Dibujó Fecha Cliente
María Antonieta Carrillo
Proyecto
Ninguna observación
Mueble Cocina
Mueble Cocina
Mueble Recámara

Mobiliario Baño l Departamento

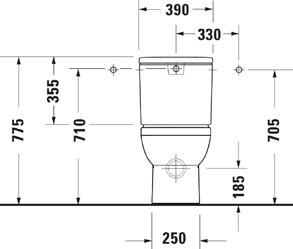
Duravit No.1 Toilet close-coupled # 218209..002 / 218209..68 / 218209..002 / 218209..68

Toilet close-coupled close-coupled

Flush water quantity: 6/3 l, Washdown model, Flushing rim:

Rimless, Outlet drain: horizontal, Incl. cistern: No, Flush

principle: washdown model, For bowl mounted cistern, Incl

mounting material, Unified Water Label (UWL) Class: 2

HEWI Waste bin

477.05B300

Similar picture

Properties

Range 477 Waste bin

cylindrical container with hinged lid

removable waste container

Dimensions in mm

lid is opened by applying slight pressure to container with the knee or hand integrated compartment for standard hygienic bags with self-adhesive label with instructions for knee operation only suitable for wall mounting capacity approx. 6 litres

340 mm high and 210 mm deep and 180 mm in diameter made of high-quality matt polyamide in HEWI colours 99 (pure white), 98 (signal white), 97 (light grey), 95 (stone grey) and 92 (anthracite grey)

María Carrillo

Features

• Coordinates with other products in the Rill collection

Material

• Premium metal construction for durability and reliability

• KOHLER® finishes resist corrosion and tarnishing

Installation

• Easy installation – no special tools required

Recommended Products/Accessories

K-23723 Faucet cleaner

Codes/Standards

None Applicable

KOHLER® Faucet Lifetime Limited

Warranty

See website for detailed warranty information.

Available Colors/Finishes

Color tiles intended for reference only.

Color Code Description

BN Vibrant® Brushed Nickel

2MB Vibrant® Brushed Moderne Brass

Features

• Coordinates with other products in the Kumin® collection.

• Pivoting holder makes changing toilet tissue quick and simple.

Material

• Premium metal construction for durability and reliability.

• KOHLER finishes resist corrosion and tarnishing.

Installation

• Mounting hardware and installation template included.

Recommended Products/Accessories

K-23723 Faucet cleaner

Toilet paper holder

K-24546

Codes/Standards

None Applicable

KOHLER® Faucet Lifetime Limited

Warranty

See website for detailed warranty information.

Available Colors/Finishes

Color tiles intended for reference only.

Description Code Color

Polished Chrome CP

Vibrant® Brushed Nickel BN

Matte Black BL

Features

• Frameless design emphasizes glass and creates a sleek, minimalist look

• Dual sliding barn door style

• Innovative roller design with stainless steel bearings simplifies installation and provides out-of-plumb adjustability while glass is installed

• Cushioned center guide provides smooth, quiet sliding action

• Smooth, easy-to-clean wall jambs

• Vertical handles accentuate the contemporary style

• CleanCoat®+ glass coating creates a hydrophobic barrier that repels water, soap scum, and residue, saving time and protecting shower doors 10 times longer than original CleanCoat. (Based on 2021 internal wear/abrasion testing using a microfiber cloth.)

• Tempered glass ensures enhanced safety and durability

Material

• Frameless, heavy 5/16" (8 mm) thick Crystal Clear tempered glass

• Anodized aluminum prevents rust and corrosion

Installation

• Fits opening widths 56-5/8" – 59-5/8" (1438 –1514 mm)

• 77-9/16" (1970 mm) high, with 71-9/16" (1818 mm) minimum head clearance

• Out-of-plumb adjustability simplifies installation

• Door can be installed to open to the left or right to suit your bathroom layout

• Not for use in hospitality

• For residential use only

Tellin®

Frameless sliding shower door K-RC701582-L

Codes/Standards

ANSI Z97.1

CAN/CGSB-12.1

CPSC 16CFR 1201

KOHLER® Bath and Shower Doors

Ten-Year Limited Warranty

See website for detailed warranty information.

Available Colors/Finishes

Color tiles intended for reference only.

Color Code Description

BNK Anodized Brushed Nickel

Available Glass Options

Code Description

L Crystal Clear

María Carrillo

This classic towel rail with its refined, fluid lines, embodies the essence of the collection's unique forms. An essential component in any bathroom space, it fits seamlessly with any Baia bathroom suite

Available in three finishes:

Greige, a balance between grey and beige, is a leitmotif in Giorgio Armani’s creations and is considered by many to be the ideal shade in interior design. Brushed Steel adds a discreet, sophisticated feel in an elegant twist on an industrial ambience

Chrome finish enhances the fresh, classic look in any bathroom space, and each piece has been treated with Roca's exclusive Ever shine® to ensure permanent shine.

The Greige and Brushed Steel finishes have been hand-crafted to enhance the bespoke feel of the piece and add a discreet, contemporary quality to the bathroom suite

400 mm towel rail Ref A817272

Asola

Specchio ovale | Oval mirror

Descrizione prodotto | Product description

Specchio Asola con cornice in metallo verniciato in Nero. Installazione orizzontale o verticale, senza illuminazione.

en. Asola mirror with a Nero painted metal frame. Can be hung horizontally or vertically. Without lighting.

Dimensioni | Dimensions

| Finishes

Malin™ by Studio McGee

24" bathroom vanity cabinet with sink and quartz top K-35018

Features

• Designed in collaboration with Studio McGee

• Set includes cabinet, precut quartz vanity top, backsplash, sink, cabinet hardware

• Full-extension 17" (432 mm) drawers with soft-close undermount slides

• Removable dividers in top drawers to personalize drawer organization

• Three-way adjustable slow-close door hinges for easy cabinet access

• 20-7/16" (519 mm) cabinet interior provides ample storage space

• Finish-matched cabinet interior offers generous clearance for plumbing

• Vanity top has single faucet hole; requires deck-mount faucet (sold separately)

• Vibrant® Brushed Moderne Brass hardware is included on White Oak vanities and Vibrant Polished Nickel hardware on White vanities. Additional hardware finishes are available (sold separately)

Material

• Quartz vanity top adds beauty and long-lasting durability

• Vitreous china sink

• Solid and composite wood

• Wood is a living material, and its beauty is enhanced by natural variations in grain, color, and pattern. No two pieces of wood are exactly the same, and the color will change with age, temperature, and exposure to light

Installation

• Easy installation – no special tools required

• Sink preinstalled on vanity top to simplify installation

Codes/Standards

ASME A112.19.2/CSA B45.1

KOHLER® One-Year Limited Warranty

See website for detailed warranty information.

Available Colors/Finishes

Color tiles intended for reference only.

Color Code Description

0 White

SWK White Oak

24-5/8" (625 mm)

12-1/2" (318 mm)

100° 25" (635 mm)

Malin™ by Studio McGee

24" bathroom vanity cabinet with sink and quartz top K-35018

2-1/2" (64 mm)

20-9/16" (522 mm)

8-11/16" (221 mm) 4" (102 mm)

General Rough-In Area

17-3/4" (451 mm)

11-9/16" (294 mm)

22-7/16" (570 mm)

1-3/16" (30 mm)

8-11/16" (221 mm)

39-11/16" (1008 mm) 5" (127 mm)

22-5/16" (567 mm)

Technical Information

All product dimensions are nominal.

19-7/16" (494 mm)

Notes

Install this product according to the installation instructions.

Select the type of fastener based upon the wall material. Two 250 lb (113.4 kg) minimum load bearing fasteners are recommended with a lag bolt of length to clear obstacles in the wall and 5/16" washers. Calculate the proper lag bolt length by adding the 1-1/2" (38 mm) backing material, plus the wallboard thickness, plus the back rail thickness.

María Carrillo
María Carrillo
María Carrillo
María Carrillo
María Carrillo
María Carrillo
María Carrillo
¡Gracias!
Andrés Cedano

Turn static files into dynamic content formats.

Create a flipbook
Issuu converts static files into: digital portfolios, online yearbooks, online catalogs, digital photo albums and more. Sign up and create your flipbook.