Rumah Anara Ohara

Page 1

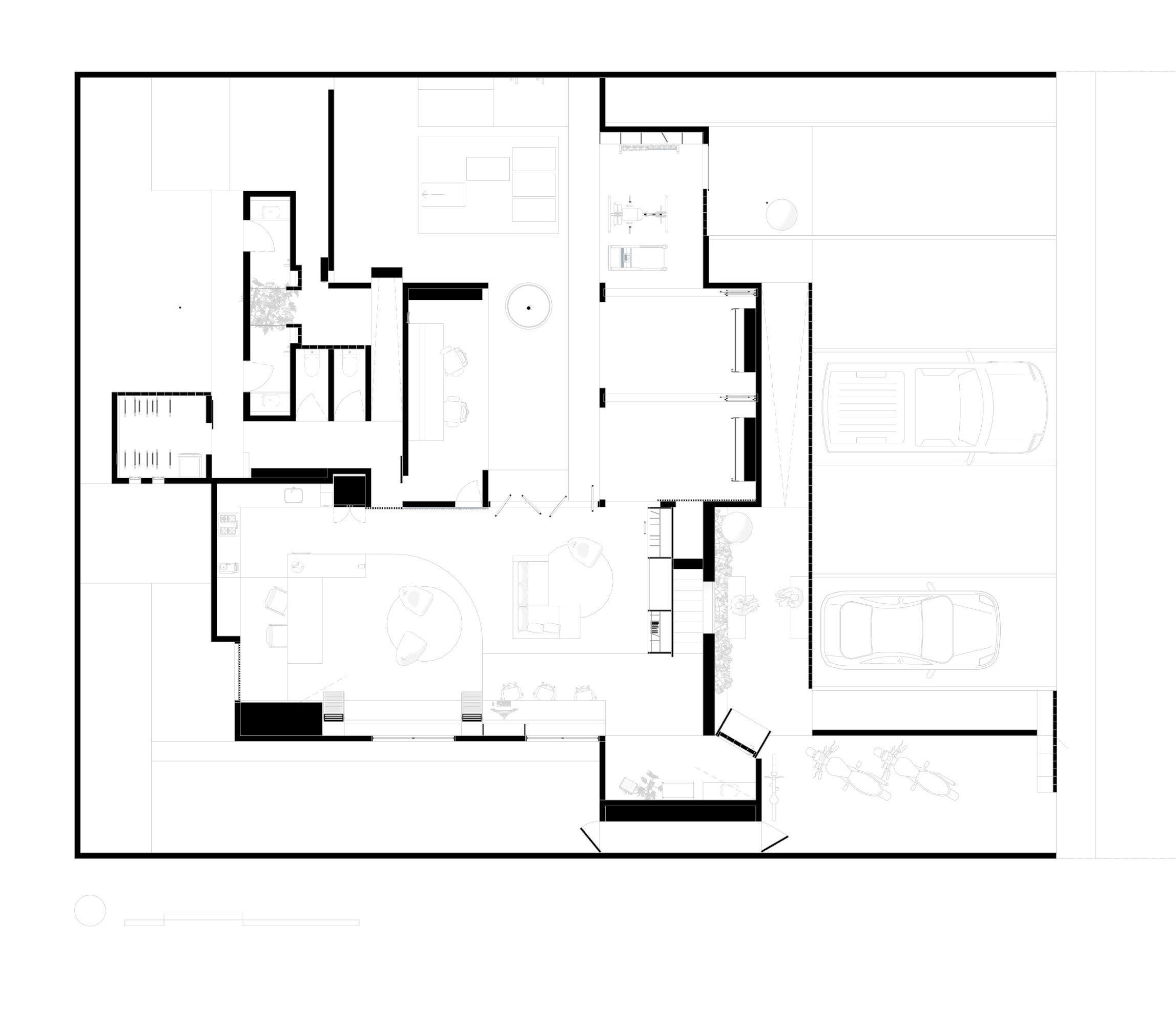
0 1st FLOOR PLAN 1 3 6m
Rumah Anara by LUMO+da Ohara
Special for you,
Nisa Rosafina Amitasari

Apa itu “RUMAH”?

Apakah suatu tempat bergengsi tuk dipamer-pamerkan ke manusia lain?

Apakah suatu kemewahan yang tak semua orang bisa memilikinya?

atau sekadar ruangan beratap yang bisa melindungi manusia dari hujan?

Bagiku,

Rumah itu sederhana

Kiblatku pulang setelah menjemput rezeki

Tempatku “10 menit” ke pulau kapuk

dan

Tempat dimana semua memori bahagia tersimpan di dalamnya

Ya, dan semua hal penting itu terjadi jika ada kamu di rumah itu

Makanya namanya “Rumah (ndre aufal zmi + isa osafina mitasari)

AAAA N RA”RA NN

Karena kamu itu rumahku, dan ANARA itu rumah kita.

—AN, 2024

Sebuah rumah yang hanya bisa tercipta karena ada kamu dan aku
*funfact: ini halaman yg jd favoritku soalnya ngeliatin foto-foto dari pdkt sampe sekarang, suka ketawa tawa sendiri liatnya
Sebuah tujuan tuk kita pulang

harus ramah anak dan orang tua

ingin ada ruang bersama untuk menghabiskan waktu ingin masterbedroom yang nyaman untuk quality time, home workout, dan ngobrol serius

1st Edition

klo bisa masterbedroomnya gede juga jadi bisa tak pake jungkir balik

masterbedroomnya di lantai 2 dan bener-bener privat

pengen ada area walk in closet

dapur bagian cuci-cuci kotor, jauhin dari area main anak anak di library

kamar anak minimal queen bed

toilet sama shower-nya masing-masing 2 aja

musalanya yang gede

pengen ada gaming area

Ohara Edition

A

BRIEF

1st Edition

ingin punya rumah yang sepaket dengan studio LUMO dengan experience zone ingin punya perpustakaan besar yang jadi tempat berkumpul keluarga apapun kegiatannya

ingin kamar tamu gacuma sebagai ruang tamu, tetapi ada value yang bisa dia tawarkan

ingin akses ke pintu utama dibuat intimidatif

ingin ada akses langsung ke studio dari masterbedroom

ingin ada area pingpong di studio area semipublik dan private harus terpisah aksesnya dari awal

pengen area library ramah anak asumsi studio LUMO+da di tanah yang berbeda tapi dekat

pengen ada ruang baca+belajar menghadap taman pendekatan dari kenyamanan ruang kamar anak dekat dengan library dan terbuka dari library rak library sekalian buat meletakkan lego/mainan ada speaker di beberapa spot untuk azan, murottal, dan bettersleep

musalanya super nyaman dengan view kolam + fogging

pengen ada working area view kolam pengen ada taman di area shower (satin glass) library bisa jadi bioskop mini

Ohara Edition

dari aku

Rumah yang akan tercipta dari sebuah cita-cita dan proses yang begitu panjang.

Melanjutkan cerita dari rumahmu versi pertama, ini adalah cerita dari rumahmu versiOhara.

Walau belum sempurna, tapi ide-idenya akan terus hidup di versi rumah Anara setelahnya.

—Rumah Anara Ohara, 2024/04/25

Mengapa

dinamakan versi Ohara? Karena dari Ohara lah yang menciptakan manusia-manusia “kepo” yang ingin tahu segala ilmu pengetahuan dan sejarah yang ada di dunia. Tempat yang melahirkan manusia yang berani dan berpikir, serta semangatnya yang akan terus dibawa oleh keluarga yang ada di Rumah Anara.

Ohara

Ohara merupakan salah satu pulau yang ada di anime One Piece. Sebuah karya dari Eichiro Oda

yang aku dan kamu sama-sama suka. Pulau ini

merupakan pulau tempat Nico Robin lahir. Pulau ini

memiliki sebuah pohon besar yang di dalamnya

terdapat perpustakaan yang berisi buku-buku

tulisan para ilmuwan yang berkeliling dunia untuk

mencari jawaban dari pertanyaan-pertanyaan

yang terlintas di benak mereka

Di tempat ini, para peneliti dan arkeolog berkumpul untuk mempelajari dan mencari tahu sejarah dunia yang hilang dan dirahasiakan oleh Pemerintah

Dunia. Karena keingintahuan para peneliti dan arkeolog inilah yang menyebabkan Pemerintah

Dunia memerintahkan untuk menghancurkan pulau ini dan membunuh seluruh penduduknya. Pada saat

Nico Robin berumur 8 tahun, pulau ini dihancurkan Buster Call.

Buster Call, sebuah armada kapal perang yang ditugaskan untuk menghacurkan sebuah pulau. Setelah sinyal diterima, lima Laksamana Madya terdekat akan dihubungi untuk memimpin 10 kapal perang dengan 200 Kapten dan Letnan.

1 2 3 4 6 7 8
Salah satu mukjizat terbesar Rasullullah Muhammad SAW adalah Al Qur’an. Fakta bahwa rasul sekaligus manusia yang memiliki “follower” terbanyak di muka bumi ini diberikan Allah “buku” sebagai mukjizatnya. Bukanlah mukjizat untuk menghidupkan orang mati, atau tongkat yang dapat membelah lautan, melainkan buku yang menjadi pedoman hidup semua umat muslim di dunia.

Tidak heran bila di Rumah Anara sangat memuliakan buku. Terdapat 13 spot rak buku yang berisi berbagai genre

pengetahuan yang bebas dimiliki oleh anggota keluarga rumah ini. Dengan harapan keluarga yang bertumbuh di rumah

pengetahuan yang luas akan dunia.

ini dapat memiliki rasa ingin tahu yang luas, memiliki growth mindset untuk terus meng-upgrade skill yang dimilikinya serta

9 10 11 12 13
0 1st FLOOR PLAN 1 3 6m

4

14

7

6

12

5

1

13

11

2

8

1

9

10

servicepathmotor&bicyclepath guestpath CAR GARAGE RUANG TAMU KAMAR TAMU MOTOR GARAGE GENKAN GYM LIBRARY LAUNDRY MUSALA TOILET SHOWER AREA MEMBACA DAPUR + DINING WORKING/GAMING ROOM 3 GUDANG Reflective pool covered with andesit stone Taman cross-ventilation Taman greenery Taman greenery
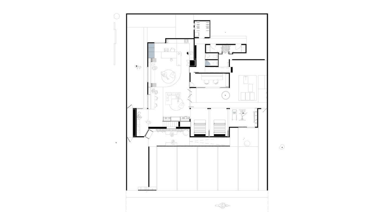
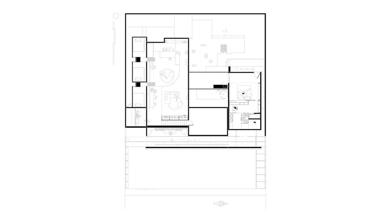
0 2nd FLOOR PLAN 1 3 6m
17 MASTER BEDROOM 21 MBR GARDEN 18 WALK IN CLOSET 15 KAMAR SAFKA 15 KAMAR ARA 19 TOILET 16 ROOFTOP 20 MASTER BATHROOM 15 KAMAR SHAKA Satin glass Hidden door Hidden door
cross ventilation
Exhaust fan

heart of home.

5 LIBRARY AREA MEMBACA

Menurut Teori Gott ried Semper, an unan memiliki 4 komponen, yaitu:

ada mound/lanta

ada enclosure/seka

ada roo /ata

dan yan palin pentin dari

kesemuanya adalah nomor 4. Hea th.

Hearth merupakan perapian.

Ceritanya, pada zaman dulu, rumah

elum seperti sekaran . Ke iatan

manusia itu sehari-hari ada di dekat

api. Mulai dari masak, tidur, n o rol,

semuanya dilakukan di sini.

Seirin erjalannya waktu, konteks

kehidupan manusia semakin maju.

Rumah yan tadinya sederhana, isa

menjadi san at kompleks. Misalnya saja di saat TV muncul. Dulu TV isa

menjadi ma net yan mem uat satu

keluar a n umpul di satu ruan .

men ha iskan waktu ersama-sama.

Di zaman itu, hearth dalam entuk

perapian sudah tidak relevan. TV

men antikan posisi api se a ai heart o home.

Nah, di zaman sekaran , oran yan doyan nonton TV sudah tidak se anyak dulu. Banyak yan le ih doyan mainan hp, scroll tiktok, whatsapp, dan youtu e sam il tiduran seharian di kamar. TV di ruan keluar a lam at laun hanya menjadi ormalitas elaka.

I aratkan manusia, ketika jantun nya a er un si, rumah itu ju a pasti akan mati. Semua oran cuma di kamar terus, apernah ketemuan, a pernah n o rol. Rasa ondin di keluar a a terasa sama sekali. Ga ada edanya antara rumah den an kos-kosan yan isinya cuma kamar dan kamar mandi.

Itulah se a nya, ketika ditanya “Ba aimana sih rumah yan a us itu?” jawa annya bukan tentan tampilan, uku an, atau fisik, ha ga, dan wujudnya.

Rumah yan aik adalah yan isa mem erikan experience ter aik untuk menikmati etapa dekat dan aku nya keluar a.

6 AREA MEMBACA

Terdapat

View ke taman samping

5 LIBRARY 6 AREA MEMBACA 7 DAPUR + DINING Akses tangga ke kamar anak Area lesehan Hidden door ke working room layar proyektor untuk bioskop mini Hidden door ke area toilet

Rak buku sekaligus penghalau

sinar matahari langsung dari luar

Rak buku/ display

mainan/maket

Akses tangga ke

kamar anak

6 AREA MEMBACA 5 LIBRARY 15 KAMAR SAFKA 15 KAMAR ARA 15 KAMAR SHAKA

Exhaust

5 LIBRARY 6 AREA MEMBACA
Akses tangga ke kamar anak
fan sebagai cross ventilation 6 AREA MEMBACA 15 KAMAR SAFKA 15 KAMAR ARA 15 KAMAR SHAKA 7 DAPUR + DINING
DAPUR + DINING
7
Hidden door akses ke area toilet Rak buku/ display mainan/maket Lesehan 7 DAPUR + DINING 11 WORKING/GAMING ROOM 4 GENKAN Genkan merupakan istilah dari jepang yang digunakan sebagai ruang peralihan dari tempat kotor (luar rumah) ke tempat yang bersih (dalam rumah).

Genkan terdapat tempat untuk meletakkan outer yang sering dipakai, wastafel untuk cuci muka/tangan, rak sepatu, rak payung, dan standing mirror untuk melihat diri sebelum/sesudah keluar rumah.

4 GENKAN 15 KAMAR SHAKA Queen size bed View taman samping Lemari baju Jendela nako

Exhaust fan cross ventilation

15 KAMAR SHAKA
8 KAMAR TAMU
5 LIBRARY 10 MUSALA
+ DINING
7 DAPUR
11 WORKING/GAMING ROOM
room
pivot
Hidden door ke working
Pintu
Hidden door ke area toilet

View kolam

Folding Queen size bed

Kamar tamu menjadi challenge karena biasanya jika tidak ada tamu, maka kamar tamu akan kosong begitu saja. Kita tidak ingin itu terjadi, sehingga kita menyiasatinya dengan menggunakan Folding bed. Bila tidak ada tamu, ruangannya bisa menjadi perlebaran dari Gym yang dapat digunakan untuk senam ataupun yoga bersama, dan bila ada tamu maka bed bisa diturunkan dan ada sekat antar kamar nya.

Ilustrasi folding bed saat diturunkan 9 GYM 8 KAMAR TAMU 8 KAMAR TAMU 9 GYM

9

11

8 KAMAR TAMU GYM 5 LIBRARY 10 MUSALA WORKING/GAMING ROOM

Tempat menggantungkan mukena, sarung, baju koko

Akses keluar untuk ke masjid setelah wudu

9 GYM 10 MUSALA 11 WORKING/GAMING ROOM 11 WORKING/GAMING ROOM 12 TOILET Akses ramp ke masterbedroom

14

12

TOILET LAUNDRY Lemari untuk meletakkan peralatan kebersihan: sapu, pel, vacuum cleaner, detergen, stok sabun, shampoo, pasta gigi, dll 13 SHOWER 14 LAUNDRY

Satin glass

15 KAMAR SAFKA 17 MASTER BEDROOM 18 WALK IN CLOSET 19 TOILET Hidden door Lemari buku/display
mainan/maket Pantry Rak buku/display mainan/maket View kolam
21 MBR GARDEN 20 MASTER BATHROOM 18 WALK IN CLOSET 19 TOILET 20 MASTER BATHROOM 18 WALK IN CLOSET
Rain shower dari plafon

Embracing greenery to bring memory of honeymoon experience everyday

Potongan A Potongan A’ Tandon air
Potongan B
Potongan B’ Glass block Masterbedroom Pantry Mezzanine

Turn static files into dynamic content formats.

Create a flipbook
Issuu converts static files into: digital portfolios, online yearbooks, online catalogs, digital photo albums and more. Sign up and create your flipbook.