Architecture Portfolio

Page 1

Andreas Lind Eegholm

PORTFOLIO
work 2024 Architecture
Selected

Andreas Lind Eegholm

ARCHITECT

ABOUT ME

NATIONALITY

Young Danish architect, with Masters degree from Aarhus School of Architecture, with 3 years of experience, from a swiss competition studio and from an award winning comptetition studio who works with concepts, and a studio with focus on the art of detail, and maximum architectural value, with minimal changes. All the studios gave me experience with handling projects across scales, communication across interests and the art of drawing unique solutions to every project.

DATE OF BIRTH

I aim to create architecture that works for everyday life, from which life can emerge, whilst creating aesthetics that incorporate in its context, with focus on history, culture and materials.

I have professionally worked with the importance of typology, an office shall reflect an office as well as a home should look(and feel) like a home. This approach has received positive feedback, and been awarded(see quote on page 20). INTERESTS

PERSONAL TRAITS

• Passionated in all phases and branches of architecture

• Flexible as a colleague with strong collaboration abilities

• Hardworking with ability to take initiative

• Contributes to a good atmosphere and takes part in the studio community

• Adaptive and sees opportunities instead of problems

• Able to keep high spirit and head cold in stressful situations

• Capable of handling mulitple tasks

• Curious

• Teamplayer

PROFESSIONAL SKILLS

• Great communication skills in graphics, oral and written language, with experience from two studios

• Skillful in sketching, both analog and digital

• Talented in creating architecture that is well incorporated in its context, with a modern touch. As recognized by a jury (See Adelgade apartments page 20)

• Focus on quality assurance

• Well thought doing all phases to ensure quality and client satisfaction

• Independent, but with flair for collaboration. Which I have great experience in, across professions and interests

• Ability to work Independently, in a dynamic environment

“ “

He has a strong architectural capacity and manages to find great and qualitative solutions taking into consideration context, typology, customer’s wishes.

- Jan Høriis Frandsen

Studio manager and partner

Pålsson Arkitekter

-Rhinoceros -Revit -InDesign -Illustrator -Photoshop SOFTWARE -AutoCAD -Vectorworks -SketchUp -Enscape -Qgis NAME +41 78 318 04 35 Andreaseegholm@gmail.com Cand.Arch and RIBA part II Andreas Lind Eegholm LANGUAGE
Danish
24th of august 1994
-Danish -English -Swedish -Norwegian -German Mother tongue Fluent Good Good Basic

EDUCATION

HTX Roskilde(Higher Technical Exam)

- Construction and enviorment A-level

- Technology A-level College

Bachelor of arts in architecture

Aarhus School of Architecture

- Transformation

- Unfinished architecture

- Tradition and renewal

- Landscape and tourism

Revit course 2020

EXPERIENCE

GPP Arkitekter(intern)

Sketching 2D and 3D

3D modeling

Concept development

Render and illustrations

Graphic layout

Final exterior design

Final plan solution

BBP Arkitekter

Sketching 2D and 3D

3D modeling

Concept development

Render and illustrations

Graphic layout

Collaboration and communication with extern studios

Contact with engineers

Final plan solution

Final exterior design

University of Strathclyde

- Urban design

- Typology of a building

- Pocket city Study abroad

Pålsson arkitekter

Communication(developer, residents and multipality)

Sketching 2D and 3D

3D modeling

Render and illustrations

Graphic layout

Interior design

Collaboration and communication with extern studios

Master of arts in architecture

Aarhus School of Architecture

- Transformation 2017-2020

ASP Architekten AG(Switzerland)

Sketching 2D

Concept development

Competition poster layout

Graphics

SIA Documents

Final Situationplans, Section and elevtion graphics

Sketching digital and in hand

YOU?

+ +
+
2016 +
2014-2017 2010-2013
+ +
+
2017 2021-2023 +
2021
+
2024
Modular Housing 6 Østerbrogade Office 12 30 Home of music 34 Tranbjerg Daycare 16 Rømø Sandflugt 38
Århus Katedralskole
Roskilde Boiler Central 22 Adelgade Apartments 20 Neighbourhood for Generations 42 Recommendation & Diploma 46 PROJECTS Transformation New Concept Completed Office Daycare Appartment School Houses Attraction Inteiordesign Urban

Modular housing

Pålsson arkitekter In progress

Concept

The concept was to create a modular row house that could easily go from a 2 room to a 4 room rowhouse, and vice versa, (without creating a visual hierarchy) depending on your situation/wishes, so you were able to stay in your neighborhood. You could just tear a couple of non bearing walls down, and now you have a well functioning new home. The design reflects a modern take on the traditional Danish rowhouse architecture. Where the master plans were designed with a focus on activities, niches, nature and small community atmosphere.

My role

I was lead architect in this project, where I developed the concept of flexible housing that would be adaptable in every context with a typology of home. I drew the plan drawings, elevation drawings, site drawings and renders. The finished design was in cooperation with a fellow employee. The project is waiting to get approved by the municipality.

On each location, the residents could vote for design option one or two, while the plandrawnings remains the same. You are also able to choose between the two materials, as long as all agree.

+
1 2 3

2+3 1+3

petanque field Bonfire
Logs
space Parking Parking bike parking bike parking bike parking Parking
Pana pitch Fleamarked Two options Rowhouse
Small environments

Østerbrogade Office

Pålsson arkitekter In progress
Concept

The transformation project of Østerbrogade, was both interior and exterior. The new concept was that the facade and interior should reflect the high class office typology and have design references to the original building. The interior design displays the story from industrial building to office, with its material contrasts: raw concrete in columns and sealing, against warm elegant mahogany on conference rooms, in between desks and on some surfaces. The facade material is tombak that is partly pre patinated, which ensures that it is resistant to the Danish weather, but also continues to have a warm glow.

My role

I was researching the historical background(story and design) for the original building, to create design references to the original building. I was therefore also part of the future design process, interior design and selection of facade materials and inventory.

Tranbjerg Daycare center

Internship GPP Arkitekter

2. Price - Aarhus

The transformation project of Østerbrogade, was both interior and exterior. The new concept was that the facade and interior should reflect the high class office typology and have design references to the original building. The interior design displays the story from industrial building to office, with its material contrasts: raw concrete in columns and sealing, against warm elegant mahogany on conference rooms, in between desks and on some surfaces. The facade material is tombak that is partly pre patinated, which ensures that it is resistant to the Danish weather, but also continues to have a warm glow.

My role

I was researching the historical background(story and design) for the original building, to create design references to the original building. I was therefore also part of the future design process, interior design and selection of facade materials and inventory.

Concept

Funktioner placering

Indgang-udgang til legeplads

Funktioner placering VS/BH

Indgang-udgang til legeplads

Funktioner placering

Indgang-udgang til legeplads

G G G G G G G F F
B V G G G
Musikrum hjerte
VS/BH
B V G G
Musikrum hjerte
B V

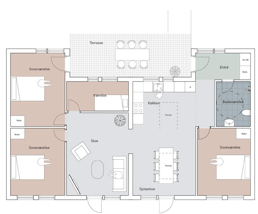
Adelgade apartments

Internship GPP Arkitekter

Concept completed 2018 - Skanderborg

The 23 apartment building is located in the heart of Skanderborg, with a rich architectural history of small urban housing. It was important that the project naturally participated in the visual environment of the area but with a modern take. To decrease the scale, and become part of its context, we designed the building with visual vertical division, by using different nuances of bricks(nuances that were used in the area) and detail lining. This creates an intimate interaction with its context, whilst combining with the different details, harmonizes with its environment and becomes part of the vibrant city.

My role

I participated in developing elevation plans and design of facades. It was my idea of using different colored bricks and this specific detail lining in brickwork, where you can see areas with a different pattern. The purpose of this was to decrease the scale and keep the intimate small city vibe, with a modern take.

The project rechived honors at “Architecture day” in 2020. one of the reasons was that it “respects the enviorments scale and the rythm you see in the sorroundings as well as its detailwork.”

- Skanderborg Museeumassociasion council for building and culture.

+

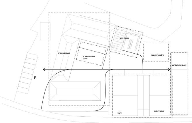
Kedelcentralen

The transformation of The Boiler Central, emphasizes the characteristics of industrialism and how these can be part of a 21 st century architecture and micro society – from industry to housing. The architecture has design references to the main building (the boiler central), but with some clear contrast elements, to create a visual timeline. The project aims to show how architecture can be used as a tool to decrease/prevent loneliness, whilst inspiring new ways of living. The masterplan was design to create an open area with different zones – from private to public, while the plan and its flows were designed to create opportunities for informal meetings, which research has shown, is the optimal way to decrease loneliness and create relations.

// Site plan Roskilde

// Roof formation

// Direction

// Recess areas

+ + + + + +
// Karakteristika
// Facade hierarchy
// Elevation
// second floor // first floor
// Housing // Café // Kitchen // Eventspace // Workshop space
//
//
//
Green pocket
Café
Greenhouse

Århus Katedralskole

Group work

The transformation of Århus Katedralskole was a competition project assignment, running for 3 weeks. We did interviews to understand the everyday life at Århus Katedralskole to find out what kind of challenges and inconveniences they faced doing a school week. The interviews and studying of the school made it clear that the students lacked an indoor common area, as well as a 3rd level connection between the two main buildings, since students often had to travel from 3rd level in building one, to 3rd level in building 2. We then made a project of a hall that connected building one and building two, which also accommodated the need for a common area - a connecting hall in which you could hang out, and be active , instead of just being a connection between two buildings. The design is an accomplishment of the architectural history of the school. The contrast in design marks a new era of the school; from which great architects have designed different departments for school; from Mørup to Kampmann to C.F. Møller.

Home of Music

“The Home for Music” is a micro-society for musicians and music enthusiasts, where everyone is invited to observe, learn and make music. Music in Aarhus has shown to have a huge impact in decreasing crime committed by youth and is an opportunity to express yourself. The shape and plans create many public yards and niches, and the opportunity for encounters which can evolve into relations between musicians or visitors and musicians and gives visitors an opportunity to experience music and be inspired.

The Home of Music facilitates venues, cafes, rehearsal rooms, common rooms, outdoor areas and accommodation. The form is a modern take on the traditional Danish architecture of the gable roof, organic materials to give some warm colors, and a yard that reflects suburban home. the entrances in each end, creates a passage that connects two streets, by which The Home of Music becomes an integrated part of the local area. The lamellas are not only a vertical reference to the nearby greenery, but also creates shadows and privacy for users, but still gives visitors a glimpse of the vibrant life in rehearsal rooms.

+ + + + + + + +

Rømø sandflugt

Group work

The assignment was to create tourist architecture. We chose to frame the phenomenon of “sandflugt”(Sand escape) which is visually a unique experience as well as what was(and is) shaping the ever changing landscape of the island Rømø. At site, you can see how wind in-between dunes create vessels for new dunes. Due to the landscape’s different colored sand, it is very visual, how the landscape has changed and continues to change. We therefore emphasized one of the existing vessels, by creating an open vessel in concrete, which has a color contrast to the warm sand, and a path for the visitors that follows the natural shape of the existing vessel, with an integrated bench and a glass railing. The attraction/installation is an authentic live visual experience of the unusual nature on Rømø.

Siteplan Topographic map Dunes Dunes Artificial vessel Path with look to vessel

Neighbourhood For Generations

concept competition Concept

The international competition called “neighborhood for generations” was about making a concept that could decrease a sense of loneliness, and create a community for all, across barriers such as age, ethnicity etc. and would be adaptable in multiple locations.

My concept called “Where We (Might) Meet” based on research about anthropology, sociology, interviews and urban architecture, is focusing on what makes us meet, create relations, socialize, and create a sense of small community

The concept about unintentional interactions, in an everyday timeline, creates a diverse range of visual and physical connections, established between different functions. The spatial typology of this flow and strategy creates fertile ground for (un)intentional interaction, stimulating links between people who would not otherwise connect. Sometimes, architecture’s potential of bringing people together relies more on the programming than the building’s spatial form itself. In this case, the existing form is a shell for housing, and needs to suit functions for the collective to become a community – a neighborhood. Careful assemblage of functions and activities is, in this respect, a vital component for social interaction.

International

Hobbies

Everyday duties

Relax/freetime

When a building or space adapts to the users’ needs, they are inclined to not only use it, but to stay. The anthropological field contributes, stating that freedom and independence is what creates room for unplanned encounters and a tendency for longer stays. And psychology has shown that we are more likely to interact if we have something in common, even if it’s just emptying your mailbox: We connect in the places of shared interests and activities. A place where mutual grounds meet.

The research backs the idea of gathering different spaces of functions for social interaction and necessity, making it possible to just do chores or to stay, as long as you desire. Inspired by urban planning, the concept gathers activities and chores along a simple path, so you pass both vibrant life and inviting niches, towards your chores. By implementing subtle connections and creating inviting areas, various opportunities for people to relate to one another are established, increasing the chance for interaction. The solution is based on the individual resident, regardless of age, gender, background etc. By devising the spatial relationships and programmatic layout to accommodate all ages, based on perception, surprising connections between functions and crossing points, the chance for unplanned encounters increases, and sparks opportunities for interaction and informal meetings/relationships across all differences.

Workout space Workshop Playground
room
Greenhouse Living room/lounge Kitchen Activity space
Study
Laundrymat

It is important to create an environment for not only social seeking residences, but a community for all.

A general problem in ghettos is the lack of common areas and inviting spaces. We see detachment of functions from the main building and missing connections between functions both physically and visually. Architecture and programmatic layout should leave room for unplanned and spontaneous activities and encounters, where you get a sense of community. Another problem is the physical appearance of many of the 1950’s-70’s buildings – heavy constructions closing around themselves. By changing the building’s physical appearance, providing distinctive character to it, the residents’ pride increases. This is seen working with success in projects such as Parkland in Holland.

gather functions

combine functions Visible connection/Distinctive character Alternative placement

Contributed ont only with his architectural skills, but also his communication skills “

Andreas is a highly valued employee, who works independently and dedicated

He has a strong architectural capacity and manages to find great and qualitative solutions taking into consideration context, typology, customer’s wishes.

+ + + +
+ + + + GRADUATE
RECOMMENDATION
DIPLOMA

Contact person for recommendation

Studio owner and architect

Jan Højriis Franden

+45 24 21 36 84

jhf@paalsson.dk

THANK YOU FOR READING MY PORTFOLIO

Contact person for recommendation

Senior architect and colleage

Mette-Louise Jepsen

+45 24 21 36 86

mje@paalsson.dk

Turn static files into dynamic content formats.

Create a flipbook
Issuu converts static files into: digital portfolios, online yearbooks, online catalogs, digital photo albums and more. Sign up and create your flipbook.