PORTAFOLIO

Page 1

PORTAFOLIO

ARQUITECTURA DE INTERIORES

ANDREA RODEZNO

Índice

01 02 03 PROYECTO RESIDENCIAL 04 RETÍCULAS RENDERS PROPUESTA DE LUMINARIA

PROYECTO RESIDENCIAL

VIVIENDA FAMILIAR

01

PLANTA ARQUITECTÓNICA

PRIMER NIVEL

PLANTA ARQUITECTÓNICA SEGUNDO NIVEL

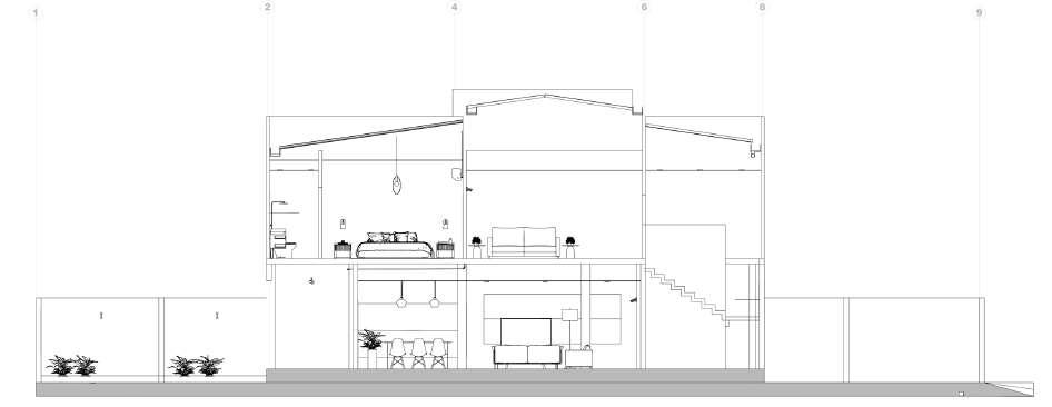
CORTE TRANSVERSAL CORTE LONG TUDINAL FACHADAPRINCIPAL FACHADAPOSTER OR

RENDERS

02

AMBIENTACIÓN

Contraste entre tonalidades frías y cálidas

PALETA CRÓMATICA

TAO

”El Tao es un recipiente vacío que no se puede l enar Es insondable “

PROPUESTA DE LUMINARIA CONCEPTUALIZACIÓN TAO

“Es como la fuente de todas las cosas.Redondear sus filos cortantes, desenreda sus nudos, modera su luz ”

03

RETÍCULAS

HORIZONTALES

04

RETÍCULAS VERTICALES

04
ANDREA RODEZNO

Turn static files into dynamic content formats.

Create a flipbook
Issuu converts static files into: digital portfolios, online yearbooks, online catalogs, digital photo albums and more. Sign up and create your flipbook.
PORTAFOLIO by ANDREA MICHELLE RODEZNO LOPEZ - Issuu