






![]()








Étudiant en Architecture & Design à LISAA
Paris (section internationale), je me distingue par ma curiosité, ma créativité et mon engagement.
Au fil de mes études et expériences, j’ai développé un esprit d’initiative, des compétences analytiques solides, ainsi qu ’ une grande capacité à travailler en équipe, notamment sur des projets pluridisciplinaires Concerné par le développement urbain durable, j’intègre dans mes conceptions des solutions éco-responsables, low-tech et adaptées aux défis environnementaux et sociaux contemporains
Mon ambition : me spécialiser en urbanisme après l’obtention de mon diplôme, afin de contribuer activement à la transformation des villes en modèles plus résilients, inclusifs et respectueux de l’environnement
- 2026
LISAA Architecture & Design
Paris
Programme de 5 ans en anglais avec spéc al sation en développement durab e Or entation vers 'urban sme, l écoconcept on et les so utions ow-tech
Lycée Saint Joseph La Salle Auxerre
Baccalauréat Général, Mention Bien Sections UE : H sto re, Géographie, Géopolitique, Sciences politiques et Sciences économ ques et sociales
FORMATION SUPPLÉMENTAIRE
Cadre de ville, Chambre de l’industrie de Paris
Atelier d'une journée sur l'adaptation des villes au changement c imat que
Logiciels de design :
Adobe llustrator
Adobe Photoshop, Canva, 3ds Max, AutoCAD, V-Ray
Bureautique :
Suite Microsoft Office
Langues : Français (langue maternel e) Angla s (niveau C1) Espagno (niveau A2) Perm s de conduire : Permis B
URBANISME
ECOLOGIE
ARCHITECTURE
POLITIQUE
CULTURE
HISTOIRE
ART DÉCORS DE THÉÂTRE, MUSIQUE
VOYAGE,
ASSEMBLÉE NATIONALE — PARIS
MARS 2025
Stagiaire
Découverte du fonctionnement institutionnel de l'Assemblée nationale
Observation des processus législatifs et des travaux parlementaires
Immersion dans l’élaboration des lois et les débats politiques
VILLE DE PARIS – DÉPARTEMENT DE L’URBANISME
2024
Stagiaire – Département Urbanisme
Étude des typologies d’urbanisme temporaire et de leurs enjeux.
Préparation d’un séminaire : coordination, création de contenus, échanges avec les chefs de projet.
Réalisation graphique : infographies, présentations visuelles normalisées, supports de communication
EPA MARNE — CHAMPS-SUR-MARNE
FÉVRIER – MARS 2024
Stagiaire – Urbanisme et Aménagement chez un aménageur
Suivi des procédures d’aménagement urbain.
Participation aux visites de site pour identifier les enjeux opérationnels.
Production de plans et contribution à un projet d’urbanisme transitoire
& CO LOS ANGELES / LAS VEGAS
2020 – 2024
PCA Cigar Show – Las Vegas (2021–2024)
Création de vidéos promotionnelles pour JC Newman Cigar Company.
Prises de vue sur site pendant l’événement
Scénographie et gestion du stand.
Participation à la conception du futur site web de l’entreprise.

ASSOCIATION “GRAINE D’ÉTOILE” — AUXERRE
2021 – 2025
Responsable Scénographie
Conception d’un programme de 20 pages pour un spectacle annuel.
Réalisation de visuels pour supports imprimés et communication digitale
EUROPEAN CLIMATE FOUNDATION — PARIS
2017
Stage d’observation
Découverte du fonctionnement quotidien d’une organisation professionnelle. Immersion dans un environnement engagé et apprentissage aux côtés de professionnels du climat

24BRIZARD & CO
Visual & Booth Design, Content Creation LOS ANGELES, CA - 2020/2024
Architecture of a house Los Angeles
LISAA Paris - 2024

14LOW-TECHWorkshop PARIS - 2024
10URBANISME TRANSITOIRE
Reinventing the workshop of a architecture school
Stage de 4 mois à la Direction de l urbanisme
Mairie de Paris - 2024
20SPACEWITHINASPACE
Transition space at Paris Saclay University
LISAA Paris x FORBO - 2024
20SCENOGRAPHY
creation and manufacturing of sets for Musical AUXERRE - 2022/2024
26CEEBIOSxEIFFAGE PARIS- 2024 Module immersif Btp Nature
Projet final d’architecture - LISAA - 2023/2024

1COHABITATION & HABITAT FLEXIBLE
PROJET DE LOGEMENT ÉTUDIANT
QUARTIER DU CANAL – VENISE, LOS ANGELES
SURFACE TOTALE : 65 m²
La conception dun espace de vie partagé interroge les notions de cohabitation et d'intimité. Ce projet vise à créer une solution d’habitat flexible, capable d’évoluer en fonction des besoins de ses occupants, en alliant modularité et efficacité spatiale. Il s’inspire à la fois de l’architecture vernaculaire africaine et des maisons en bois de Bourgogne, offrant un équilibre harmonieux entre espaces intérieurs et extérieurs.




Los Angeles, Californie
Venice District
Venice Canal



Le projet est situé dans le quartier des canaux de Venice à Los Angeles, une zone reconnue pour son mélange unique de densité urbaine, de réseaux de voies navigables et d’une forte interaction entre espaces publics et privés Conçu à l'origine au début des années 1900 pour rappeler les canaux de Venise, en Italie, ce quartier se caractérise par des chemins piétons étroits, de petits ponts et une divers té de typologies d’habitat, formant un tissu urbain dynamique et intimiste
Les abords immédiats du site sont composés de bâtiments résidentiels de faible hauteur, de maisons en bord de canal et de petits espaces commerciaux, favorisant un cadre de vie axé sur la communauté
Toutefois, la forte demande en logement à Los Angeles a engendré une pression foncière croissante et des défis en matière d’accessibilité financière, faisant de ce quartier un contexte idéal pour repenser les solutions d’habitat compactes et flexibles
D’un point de vue climatique, Venice bénéficie d’un climat méditerranéen, avec des hivers doux et humides et des étés chauds et secs La présence des canaux procure un effet de rafraîchissement, mais le site reste exposé aux îlots de chaleur et à un fort ensoleillement, nécessitant une conception qui optimise le rafraîchissement pass f, la ventilation naturelle et l’ombrage des espaces extérieurs

Habitat collectif durable et compact à Los Angeles
Année : 2024
Client : LISAA Paris Architecture & Design
Programme : Habitat partagé
Situation : Venice Los Angeles
Ma mission : conception architecturale, modélisation 3D, plans et approche bioclimatique

Living Together explore un mode de vie collectif dans un climat chaud et tempéré comme celui de Los Angeles L’enjeu est de proposer une architecture à la fois compacte, low-tech et adaptée au contexte local, favorisant le vivreensemble tout en respectant l’intimité de chacun
La volumétrie s ’organise autour d’un espace central de vie partagé, avec des chambres individuelles de 11-12 m² compactes mais fonctionnelles Le projet mise sur une gradation des espaces, de l’intime au collectif, avec un patio et des circulations semi-ouvertes en lien direct avec l’extérieur
Vivre Dedans & Dehors
Adapté au climat californien : grandes ouvertures, terrasses ombragées, ventilation naturelle
→ Une continuité intérieur / extérieur pour plus de confort thermique et de bien-être
Équilibre entre espaces privés et partagés
→ Chambres minimales mais confortables, associées à un espace commun central
→ Espaces de convivialité : patio, cuisine, terrasse partagée






Projet final d’architecture / AD3 Inter / LISAA - 2023/2024

DURABLE & LOW-TECH
CONCEPTION ÉCOLOGIQUE - AUTONOMIE ÉNERGÉTIQUE
RÉCUPÉRATION DES RESSOURCES
SURFACE TOTALE : 160 m²
La conception d'un espace de vie partagé interroge les notions de cohabitation et d'intimité. Ce projet vise à créer une solution d’habitat flexible, capable d’évoluer en fonction des besoins de ses occupants, en alliant modularité et efficacité spatiale. Il s’inspire à la fois de l’architecture vernaculaire africaine et des maisons en bois de Bourgogne, offrant un équilibre harmonieux entre espaces intérieurs et extérieurs.

Un projet de réinvention d’un espace de production durable et résilient
Face à l’urgence environnementale, notre projet imagine un atelier pédagogique fonctionnant sans électricité, basé sur des principes low-tech, de récupération et de production responsable
En réinterprétant les espaces de travail actuels de LISAA, nous avons conçu un lieu qui valorise les gestes artisanaux, les matériaux recyclés, les savoirs manuels et l’intelligence collective Cet atelier intègre des machines à énergie humaine, une bibliothèque de matériaux, des sanitaires secs, une gestion passive de la lumière et de l’air, et un espace d’observation pédagogique
Ce projet interroge :
Comment produire autrement, avec moins ?
Comment enseigner la sobriété dans un monde aux ressources limitées ?
Nous y répondons par une vision concrète, sobre et adaptable à un futur plus résilient







Cette scie à ruban est une version simplifiée et écologique, alimentée par l’énergie humaine En pédalant, l’utilisateur active un mécanisme qui entraîne les roues et fait fonctionner la scie. Une seconde personne peut alors couper des matériaux comme du bois ou du plastique, sans électricité
Fonctionnement :
Pédalage : une personne pédale pour activer le mécanisme.
Transmission : le mouvement fait tourner les roues.
Découpe : une autre personne peut utiliser la scie pour couper les matériaux
Avantages :
Écologique : aucun besoin d’électricité, donc réduction de l’empreinte carbone
Autonome : utilisable hors réseau, idéal pour les ateliers low-tech
Réparable : fabriquée à partir de matériaux recyclés, elle est facile à entretenir et durable



Cette machine à pédales propose une alternative ingénieuse, économique et respectueuse de l’environnement


Projet final d’architecture / LISAA - 2024
RÉACTIVATION DES ESPACES DE CIRCULATION – MOBILIER INTÉGRÉ
LIEN SOCIAL – AMBIANCES CHROMATIQUES – ESPACE DE PAUSE
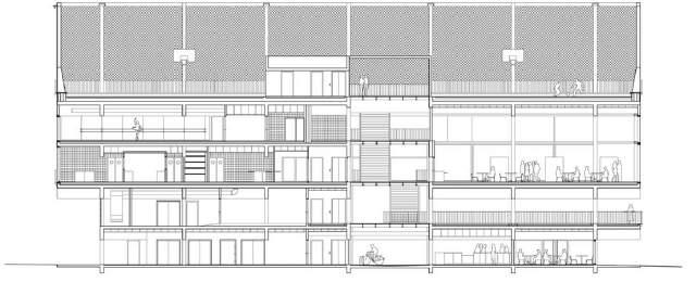
INTERVENTION SUR L’ESCALIER CENTRAL – BÂTIMENT MUOTO
SURFACE CONCERNÉE : ENVIRON 90 m²

Ce projet propose la réactivation d’un escalier central comme espace de transition et de pause, en jouant sur la couleur, les textures et l’intégration de mobilier. Pensé comme un lieu de rencontre et de respiration dans un bâtiment dense, il invite à ralentir et à créer du lien. Les revêtements Forbo structurent l’ambiance et renforcent l’identité sensorielle du lieu.






Programme :
Restauration collective, café, bureaux, salles de sport, espace fitness, accueil, zones de détente et de loisirs, espace de livraison, espace public
Maître d’ouvrage :
Établissement Public d’Aménagement Paris-Saclay (EPAPS)
Architectes : Muoto (mandataire)
Avec Bollinger & Grohmann (ingénierie structure)
Années de conception et de réalisation : 2011 –2016

Réinventer un escalier comme lieu de pause, de rencontre et de transition
Année : 2024
Client : LISAA & FORBO
Programme : é
Situation : Campus Paris Saclay
Ma mission : conception architecturale, modélisation 3D, plans, et approche bioclimatique

Objectif principal
Transformer un espace de circulation rapide en un lieu d’interaction sociale, sans gêner les flux
Le concept du ruban
Un mobilier continu, en forme de ruban qui émerge du sol et se déploie en formes tridimensionnelles (assises, plateformes, appuis), intégrées dans l’architecture existante Il invite à s ’arrêter, discuter, observer, s ’asseoir, sans interrompre le passage
Matérialité & Partenariat
Le mobilier est conçu en partenariat avec Forbo, en utilisant des revêtements biosourcés, souples et durables Le bois clair, les teintes chaleureuses et les textures contrastent avec l’environnement bétonné, apportant chaleur et confort
Une ambiance colorée et cohérente
Trois zones du bâtiment sont habillées par une palette de couleurs vives, pour créer des ambiances d fférenciées mais harmonieuses : Jaune (entrée) : chaleur, accueil, optimisme Rouge (cafétéria) : énergie, discussions, convivialité Orange (accès salle de sport) : dynamisme, mouvement, lien social
Un espace pour faire communauté
Ce projet vise à renforcer les l ens humains dans un lieu de passage souvent négligé Il propose une nouvelle manière d’habiter les circulations, en valorisant les moments de pause, es rencontres spontanées et les connexions entre usagers






Projet d’architecture pour EIFFAGE avec CEEBIOS / LISAA - 2025

RECONNEXION SENSORIELLE À LA NATURE –AMBIANCE BIOMIMÉTIQUE – MODULE IMMERGEANT
INTERVENTION TEMPORAIRE EN PIED D’IMMEUBLE – SIÈGE EIFFAGE
FORET – BIOMIMÉTISME – CONFORT ACOUSTIQUE ET LUMINEUX
Inspiré du fonctionnement des écosystèmes forestiers, ce pavillon temporaire propose une immersion
sensorielle au cœur d’une canopée artificielle. Il recrée le confort acoustique et lumineux des sous-bois grâce à une structure biomimétique composée de troncs texturés et de voiles suspendus. Pensé comme une respiration dans le quotidien urbain, il invite à ralentir, ressentir et se reconnecter à la nature.





Brief : Concevoir un module immersif et temporaire qui reconnecte les usagers à la nature au sein du siège d’Eiffage Le projet explore le lien entre BTP et vivant à travers une approche biomimétique
Partenaire : En collaboration avec Ceebios, centre de référence du biomimétisme en France, apportant son expertise en innovation bioinspirée
Inspiration : La forêt, écosystème régulateur, apaisant et collaboratif. La lumière filtrée par la canopée, l’absorption sonore naturelle et la richesse sensorielle guident la conception du pavillon


Un module immersif et temporaire, inspiré de la forêt
Ce pavillon recrée l’atmosphère d’un sous-bois à travers trois éléments sensoriels
La canopée, formée de voiles textiles superposés, filtre la lumière et génère des jeux d’ombres apaisants.
Les troncs, en matériaux texturés et absorbants, diffusent les sons et dessinent des espaces d’intimité.


Le sol, stratifié et légèrement vallonné, atténue les bruits de pas et invite à ralentir, comme sur un tapis de feuilles.





SCÉNOGRAPHIE – IDENTITÉ VISUELLE – ÉVÉNEMENTIEL
VIDÉO – PHOTOGRAPHIE – DESIGN PRODUIT
Scénographie de stand durant le PCA Cigar Show à Las Vegas.
Création de contenus visuels : photos, vidéos, identité graphique.
Participation au design produit et au développement du site internet.











Brizard & Co est une maison américaine spécialisée dans les accessoires haut de gamme pour cigares et lifestyle.
Fondée par Cyril Brizard, elle conçoit ses produits en Californie du Sud, alliant artisanat, matériaux nobles et design raffiné
La marque propose étuis à cigares, humidors, coupe-cigares et objets en cuir, souvent réalisés en éditions limitées.
Elle est reconnue pour ses collaborations avec des marques prestigieuses comme J C Newman ou ST Dupont
J’ai eu la chance de designer un nouvel humidor spécialement pour le salon international du PCA à Las Vegas.


Dans le cadre de ma participation au salon, j’ai
été impliqué en amont dans la conception de l’agencement du stand.
J’ai travaillé sur une proposition d’organisation spatiale en distinguant clairement trois zones : un espace lounge convivial sous tente pour accueillir les visiteurs dans un cadre chaleureux, un espace central de vente et d’échange avec une grande table, et enfin un espace d’exposition produit, équipé de mange-debout et de vitrines
J’ai également contribué à l’agencement des produits dans les vitrines, en veillant à leur lisibilité, leur mise en valeur et à la cohérence globale de la scénographie du stand























Lors de mon stage à la Mairie de Paris, j’ai travaillé sur l’urbanisme transitoire en contribuant à l’organisation d’un séminaire dédié aux pratiques temporaires dans l’aménagement.
J’ai également réalisé un document de synthèse complet, mêlant typologies, études de cas et enjeux, destiné à outiller les agents et chefs de projet.
Ce travail s ’est appuyé sur l’analyse de différents sites parisiens, avec des visites de terrain pour comprendre les usages, les contraintes et le potentiel de transformation de ces espaces.

« L’architecture, le design et l’urbanisme ne sont pas là pour façonner des objets, mais pour créer des conditions de vie. » Jan Gehl, architecte-urbaniste danois

