ANDREA BERLANGA-Portafolio Academico

Page 1

A R Q U I T E C T U R A Y U R B A N I S M O PORTAFOLIO ACADÉMICO 2020 2021 Λndrea Berlanga Marín

Título Original Portafolio Académico de Arquitectura y Urbanismo Ilustraciones Andrea Berlanga Marín Fotografías y Renders Andrea Berlanga Marín Textos y Diagramación Andrea Berlanga Marín Copyright Andrea Berlanga Marín Reservados todos los derechos Queda riguradamente prohibida, sin autorización escrita de los titulares del "Copyright", bajos las sanciones establecidas en las leyes de reproducción parcial o total de esta obra/trabajo por cualquier medio o procedimiento, incluidos en la reprografía y el tratamiento infográfico, así como la distribución de ejemplares mediante alquiler o prestamos públicos

P E R F I L Español Inglés Lengua de señas IDIOMAS Canva Lightroom Photoshop AutoCad SketchUp Twinmotion PROGRAMAS Código UPC 202020818 Correo institucional u202020818@upc edu pe Correo personal andreaberlanga2002@gmail com Celular +51 960 753 558 PERSONAL Primaria Colegio "Santa Maria Eufrasia" Secundaria Colegio "San José de Nazaret" Superior UPC Facultad de Arquitectura EDUCACIÓN HOBBIES Λndrea Berlanga Marín Soy una persona respondable y persistente con mis objetivos Me gusta estar en constante aprendizaje, no soy conformista y siempre busco superarme, 03

C O N T E N I D O 06 Refugio "Nine" 08 Anohana TI - INTRODUCCIÓN AL DISEÑO ARQUITECTÓNICO TII ARQUITECTURA Y ARTE TIV - ARQUITECTURA Y FUNCIONALIDAD TV - ARQUITECTURA Y MEDIO AMBIENTE TVI - ARQUITECTURA Y CONSTRUCCIÓN TVII – TALLER DE INTEGRACIÓN TVIII – ARQUITECTURA Y CIUDAD TIX - TALLER DE EJERCICIO PROFESIONAL TX - TALLER DE TESIS 40 EAE ANEXOS 12 Refugio "Vsión" 14 Cuando nos conocimos TIII ARQUITECTURA Y ENTORNO 20 Prototipo 22 Quinta "La Arboleda" 26 Edificio Hibrido 04 32 Galeria Serpentine 34 Edificio de Oficinas 36 Edificio Educativo

CICLO 2020 02 DOCENTES Oue Karina Ludowieg - TIPOPlanos continuos Este ciclo se basó principalmente en la creación de espacios con ayuda de planos continuos Para ello se exploró la composición en corte, las relaciones visuales y el tratamiento de luz y sombra. Ademas, se busco una secuencia y diseño para los recorridos con escaleras del proyecto. I N T R O D U C C I Ó N A L D I S E Ñ O A R Q U I T E C T Ó N I C O TI 05

T R A B A J O P A R C I A L REFUGIO "NINE" Video 06

Creación de espacios públicos y privados por medio de una composición de cajas de fósforo y con circulaciones de varas de madera Tiene por objetivo la estabilidad estructural, pero a la vez que rete la gravedad; mayor suspensión posible de módulos, con un ensamblaje dinámico.

ETAPA

cerrado abierto cerrado aberto ESQUEMA Frontal Posterior Frontal Izquierdo

ETAPA

Se propuso un Refugio para los personajes con espacios modulares flexibles, en donde el ensamblaje debía ser suspendido, asimétríco y sin apilamiento homogéneo De manera horizontal y vertical 1 “Esqueleto” 2 “Planos

continuos”

T R A B A J O F I N A L ANOHANA Video 08

En base el Anime visto, se propuso hacer un espacio público abierto para los personajes, además de tener solo un apoyo, en donde se accede por medio de rampas y un plano continuo transparene los unirá espacialmente ESPACIO PÚBLICO ABIERTO “Espacio de encuentro entre estapa 1 y 2” 09 ETAPA 1 “Infancia” ETAPA 2 “Adolescencia” ETAPA 3 “Musubi Menma”

10

- CICLO2021 01 - DOCENTESMaria Luisa Pineda Andrea Rivera - TIPORepresentación 2D 3D 4D Este ciclo se basó principalmente en convertir representaciones basadas en obras de artes, caracteristicas de personajes y fotografias 2D a espacion en 3D. Por lo que se exploró la secuencia espacial, generando movimientos que recorren el silencio. Ademas, se busco aprovechar la geometria oculta A R Q U I T E C T U R A Y A R T E TII 11

T R A B A J O P A R C I A L REFUGIO "VISIÓN" ENCUENTROS AFICHE 12

L linea “Androide” L plano “Fluidez” L volumen “Racional” 13 En base el afiche realizado, se escogieron tres conceptos caracteristicos del personaje, con el fin de elaborar piezas en forma de L que luego se convierta en uno solo.

T R A B A J O F I N A L EL SILENCIO CONTENIDO Video RECORRIDO Piso Superior Piso Inferior 14

15 JUNTOS VINCULADOS SOLO CONTENIDO INTERSECADO Elproyectorepresentaelconceptode"transición", quesurgedelcollagerealizadoenbaselapelícula Cuandonosconocimos .Pormediolaselevaciones 2Dseformóel3Dendiferentesescalashasta conseguirlacomposicióndeespacios. TIPOLOGÍAS DE ESPACIO ELEVACIONES

Frontal V. PEATONAL 16

Trasera Izquierda Derecha 17

18

- CICLO2021 02 - DOCENTESPatricia Rozas Luis Orna - TIPOIntegrar con el entorno Este taller se destaco más el ámbito arquitectónico, en la distribución de los espacios de acuerdo a su función y forma Se tubo en cuenta la importancia del entorno inmediato, por lo que se hizo uso de elementos como las geometrías y ejes, para así poder integrar el proyecto en el lugar TIII A R Q U I T E C T U R A Y E N T O R N O 19

T R A B A J O P R E P A R C I A L PROTOTIPO 20

21

Corte A Corte B Corte C Corte D NIVEL 1 NIVEL 2

Vivienda unifamiliar de dos pisos, en donde se juega con las alturas de los espacios y se trata de aprovechar la mayor iluminación natural posible, incluye una iluminación cenital

T R A B A J O P A R C I A L QUINTA "LA ARBOLEDA" PROTOTIPO 1 PROTOTIPO 2 FOTOMONTAJE 22

23

Las viviendas están organizadas por medio de un análisis geométrico, en donde se consigue áreas comunes por los diferentes ejes

N.P.T.+/ 0.00 N.P.T.+0.70 N.P.T 24

.T.+1.40 N.P.T.+2.60 25

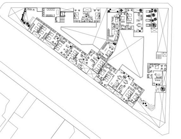
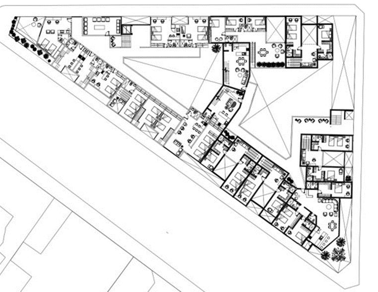
T R A B A J O F I N A L EDIFICIO HIBRIDO 26

Proyecto que abarca dos cuadras que son conectadas por la calle peatonal de Cajamarca. El programa arquitectónico varía desde la implementación de módulos comerciales en los primeros niveles, hasta la distribución de viviendas multifamiliares y residencias estudiantiles en los niveles superiores.

PRIMER PISO SEGUNDO PISO CUARTO PISO QUINTO PISO TERCER PISO

concección con la manzana vecina crea un vínculo entre la

su

28

La calle comercial, el centro cultural y la que se a entorno.

residencia estudiantil. Por lo

integra

29

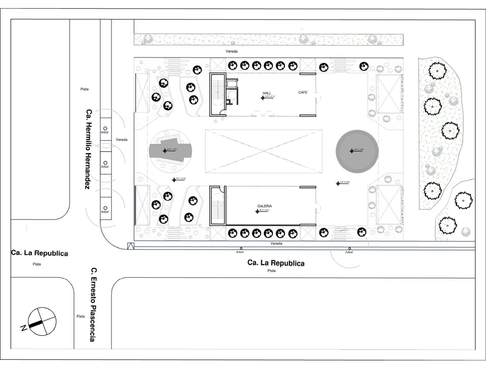
- CICLO2022 01 - DOCENTESJorge Cheng Cesar Tarazona - TIPOFuncionalidad en los espacios Este taller se destaco más el ámbito funcional de los ambientes públicos y privados En donde no se dió mucha importancia a la fachada pero si al uso de espacios, y el como se conectan entre si. TIV A R Q U I T E C T U R A Y F U N C I O N A L I D A D 30

T R A B A J O P R E P A R C I A L GALERIA SERPENTINE 31

Ingreso e cio nes eres 32 DIAGRAMA NIVEL 1 NIVEL TECHO

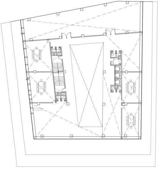
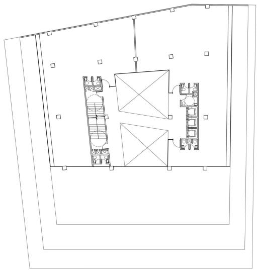
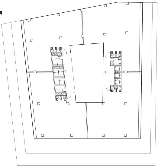
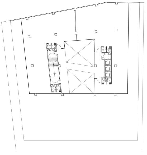
T R A B A J O P A R C I A L EDIFICIO DE OFICINAS 33

El proyecto tiene por idea el núcleo central en el que se podrá apreciar en todas las oficinas. Además que desde el retranque exterior se puede apreciar el vacio del interior que se conecta del exterior al interior.

SÓTANO ÁREAS COMUNES NIVEL 1 2 NIVEL 3 NIVEL 4 5 NIVEL 6 NIVEL 7 18

34

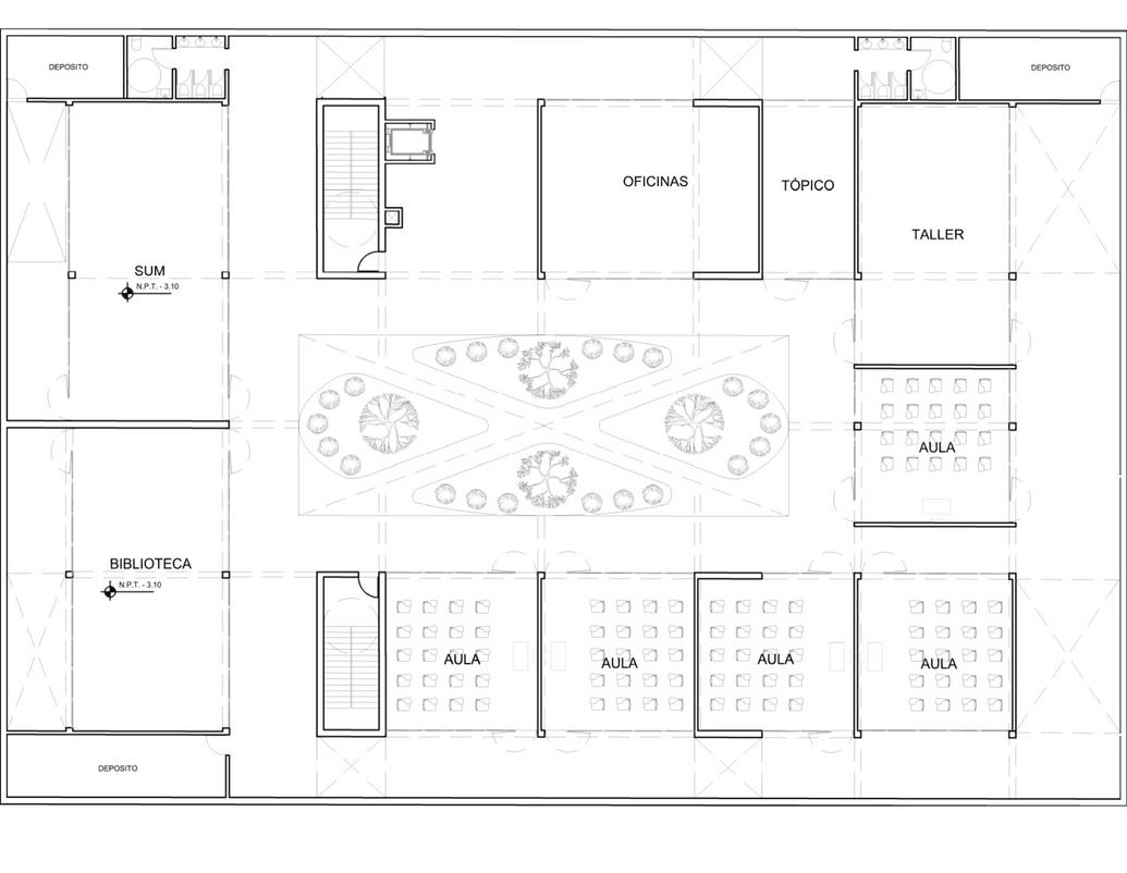
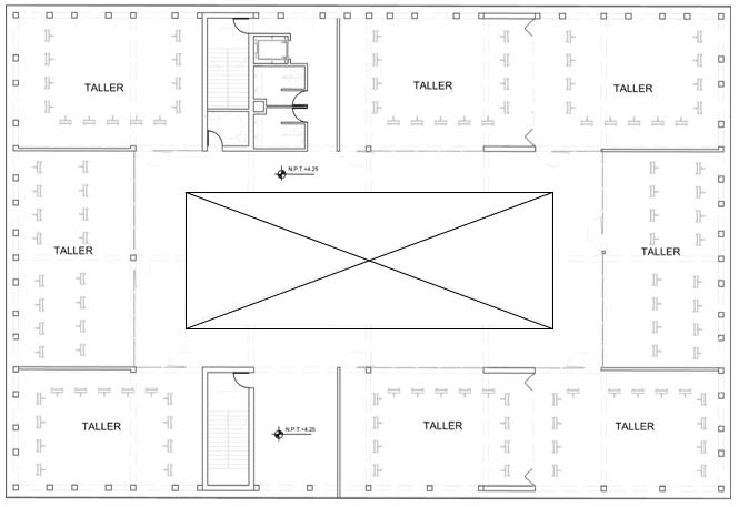
T R A B A J O F I N A L EDIFICIO EDUCATIVO 35

El proyecto flota para que deje lo más libre posible el nivel 1, por lo que se eleva el edificio ya que se busca que los talleres disfruten de la vista del parque y se deja en el sótano los programas que no son tan creativos

36 NIVEL 1 NIVEL 2 NIVEL SÓTANO

37 ELEVACIÓN LATERAL

38 ELEVACIÓN FRONTAL

E A E ANEXOS 39

40

E A E ANEXOS 41

42

https://issuu.com/andrea berlanga marin/docs/ u202020818 berlanga andrea ar308 portafolio

Turn static files into dynamic content formats.

Create a flipbook
Issuu converts static files into: digital portfolios, online yearbooks, online catalogs, digital photo albums and more. Sign up and create your flipbook.