






![]()




























DISEÑO MÓDULO ESTRUCTURAL

EJ2 | MÓDULO ESTRUCTURAL

EJ5 | PABELLÓN HISTÓRICO: ANTEPROYECTO ARQUITECTÓNICO


T1 - T2 - T3 - T4 - T5 | ODS 3-5-9-10-11-13-15
OBJETIVO
Diferenciar entre distintos enfoques para leer e interpretar un lugar diferenciando entre los distintos niveles de complejidad pertinentes para cada escala de lugar.
Fase 1: Diseño del módulo estructural En esta primera fase, el enfoque será plantear el módulo estructural.
Análisis y planteamiento estructural del módulo (maqueta + panel.
Fase
2: Diseño del módulo de cobertura En esta fase, se diseñará el techo.
Análisis y planteamiento del módulo de la cobertura (maqueta + panel).
Fase 3: Diseño del módulo de cerramiento
Análisis y planteamiento del módulo del cerramiento (maqueta + panel)

GRUPO 15
característica fácilmente perceptible que hace que un edificio o estructura sea reconocible y memorable, como su visibilidad, diseño distintivo, integración con el entorno o su significado cultural.
En este encargo tuvimos que clasificar en 3 subtemas las imagenes adquiridas creando nuevas caracteristicas desde una vista descriptiva y arquitectónica
Nuestro grupo las clasificó en 3:
Ocupable: Espacios o edificios que marcan un punto de referencia para el peatón y que están diseñados para ser utilizados por personas
Observable: Estructura o edificio que debido a su visibilidad, diseño distintivo o significado cultural hacen que un lugar sea reconocible o memorable, están diseñados solo para la apreciación visual del peatón.
Influenciable: escultura o estructura que tiene la capacidad de integrarse en su entorno, y se ubican en un lugar que está preparado previamente para su colocación.
Esta parte nos fue un tanto difícil como grupo ya que tuvimos que pensar en palabras muy abstractas convirtiéndose en definiciones que caracterizaban otra palabra, para así crear una descripción más arquitectónica

Proceso de reconstrucción de los 3 subtemas
FORMA DE LA MAQUETA:
Se realizó una maqueta vertical abstracta que estaba conectada con la idea de Hitos verticales en Lima. Llegamos a esta idea debido a que Lima es una cuidad horizontal y los hitos para resaltar más son verticales, especialmente en la ciudad.



En cada lado de la maqueta se encuentran las subcategorías encontradas con su explicación correspondiente

El orden en el que se encontraban las fotos contaban que tanto influían los hitos en los espacios
Comentario: Este primer trabajo fue muy dinámico, se hicieron grupos con personas de distintos niveles, cosa muy ventajosa al momento de compartir información permitiendo ampliar nuestros conocimientos previos, de igual manera fue interesante explorar lima y analizar cada cosa que se podía observar.

T1 - T2 - T3 - T4 - T5 | ODS 3-5-9-10-11-13-15
REFERENTE ARQUITECTÓNICO | MÓDULOS
OBJETIVO
Objetivo
Se propone elegir y analizar un referente arquitectónico que incorpore un sistema estructural no convencional. Este sistema estará compuesto por tres módulos interdependientes: (1) un módulo estructural que sirva de soporte para la edificación, (2) un segundo módulo de cobertura y (3) un tercer módulo de cerramiento, el cual definirá los límites y el diseño del espacio
Fase 1: Diseño del módulo estructural En esta primera fase, el enfoque será plantear el módulo estructural
Análisis y planteamiento estructural del módulo (maqueta + panel.
Fase
2: Diseño del módulo de cobertura En esta fase, se diseñará el techo.
Análisis y planteamiento del módulo de la cobertura (maqueta + panel).
Fase 3: Diseño del módulo de cerramiento
Análisis y planteamiento del módulo del cerramiento (maqueta + panel)
1
PUNTO DE INFORMACIÓN EN GLORIAS
Área: 300m²
Arquitectos: Peris+Toral.arquitectes




En esta fase se realizó una investigación de pabellones desmontables que tuvieran 3 características, una estructura, un cerramiento y una cobertura, de las cuales se hizo en punto de información en glorias

La condición efímera del edificio provisional, desmontable y reutilizable, determina la elección del sistema estructural: un andamio capaz de minimizar su huella en el territorio y una materialidad acorde con el contexto de las obras.
Se colocó madera de pavimentos y lumbrales para darle un entorno cálido y de confort al espacio
De día, según la posición del sol, las transparencias, sombras y reflejos logran tanto desde el interior como desde el exterior una percepción cambiante del edificio.
De noche, al colocar la fuente de luz artificial, a ras de suelo, entre la envolvente de policarbonato y la malla de sombreo, se logra iluminar el espacio de manera que nunca se ve la fuente de luz.

Los materiales actúan como difusores, iluminando el espacio interior del edificio Desde el exterior, la superposición de envolventes genera una aureola de luz que difumina los límites del edificio











Rosetas metálicas para unión
Cuña de metal aplicada con fuerza
Unión para las d agonales de arriostramiento



COBERTURA
ESTRUCTURAL


CERRAMIENTO
El módulo de cerramiento está sostenida por una gran cantidad de vigas horizontales que se conectan por una gran cantidad de columnas
La estructura del cómo está colocada la estructura es unida por tornillos a las vigas y co umnas de madera




El referente está conformado por módulos de 2x3m
t ene una estructura metá ica conocida como andamios unidas entre sí teniendo la posibilidad de poder restructurarse, usando rosetas para unir todas las unidades

T ene una cobertura de malla metálica como protección que envuelve todo el proyecto
Lo curioso de este diseño es que está conformado por dos capas de cerramiento que es la malla metálica y una malla de sombreo que filtra la radiación solar






Comentario:
Esta entrega fue muy productiva y enriquecedora debido a que exploramos la estructura de nuestro referente, logrando as comprender el funcionamiento de este y el cómo se podría aplicar para distintas construcciones, cosa que nos sirvió para la siguiente entrega
FASE 2 - PRE ENTREGA






En esta entrega del análisis creamos nuestro propio módulo en el que aplicamos conocimientos anteriores como las estructuras de nuestro referente y las aplicamos modificando y cambiando algunas cosas, en mi caso tuve que mejorar la estructura ya que la analizada del referente no era en su totalidad estable, se hicieron vigas más gruesas y mejores agarres. En las siguientes láminas se especificarán los cambios





Vertical de 10cm



P ancha metá ica sujeta a pernos 2cm


Horizonta es 5mm

De acuerdo al nuevo diseño de los arriostres se pueden crear nuevo diseños de modulaciones exteriores trayendo consigo posibilidades de formar triangulaciones en base a a estructura principal que es el andamio
Se colocaron ciertos marcos de forma triangular para que haya mejor agarre y un mejor reforzamiento, este marco permite mayor resistencia y equilibrio en la cobertura, sin dejar de lado la percepción del movimiento y la altura










Se realizó un nuevo diseño en la ubicación de os arriostres mejorando así la resistencia y estabilidad Se diseñaron los arriostres con modulaciones especificas fuerzas superiores, pensadas aplicadas para controlar y direccionar as cuando hayan más niveles consiguiendo estabilidad





Comentario: Esta primera entrega después del análisis de nuestro referente se pudo comprobar si nuestros diseños estructurales funcionaron, en mi caso fue que no del todo y tuve que volver a diseñar volviendo a analizar mi referente para así conseguir una mejor estructura.





COMPRES ÓN
TRACC ÓN


Para esta entrega se hicieron var os cambios significativos en el módu o y sus componentes, en las siguientes láminas se explicará cada uno de ellos que fueron presentados en la entrega fina
DISEÑOFINALDECERRAMIENTO
En el referente no se muestran que tipo de policarbonato se usa
Para la elección en este proyecto se toman en cuenta a reacción de estas y la eficiencia frente a temperaturas a tas y bajas.
En este caso se seleccionó para una mayor reducción de la ganancia solar, los pane es de tratamiento Heatbloc que forma una superfic e exterior que b oquea hasta el 60% de los rayos infrarrojos y evita el calentam ento interior por el efecto nvernadero estos paneles t enen protección UV, resiste temperaturas de entre los -40°C y los 115°C
También es estético, permitiendo crear fachadas d námicas y fluidas depend endo del color de la plancha se puede formar una iluminación y contraste d ferente





Para esta entrega se hicieron las triangulaciones pero con menos luz de distancia y pensadas de cierta manera para distribuir las fuerzas y lograr un mejor funcionamiento
Se decidió solo usar solo una malla que sería la metálica en vez de dos como muestra el referente ya que el tipo de policarbonato a usar en el cerramiento cumple con la función de la malla para sombra.








Se realizó un nuevo diseño en la ubicación de los arriostres mejorando así la resistencia y estabilidad
Se diseñaron los arriostres con modulaciones especificas pensadas para controlar y direccionar las fuerzas aplicadas cuando hayan más niveles superiores, consiguiendo estabilidad
COMPONENTES
CONEXIÓN DE NUDO - S STEMA R NGLOCK


Rosetas metá icas para unión

Cuña de metal aplicada con fuerza
Unión para las diagona es de arr ostramiento
Comentario: En esta entrega final se tuvo que presentar nuestros diseños estructurales finales, el cuál se estuvo comprobando desde la entrega pasada, fue un proceso desafiante enfrentando desafíos como el hecho de que la estructura funcione, lograr el equilibrio de esta, ver las uniones, etc Aprendí mucho más acerca las estructuras de distintas obras arquitectónicas y cómo con un sistema correcto algo pequeño puede aguantar algo tan grande





T1 - T2 - T3 - T4 - T5 | ODS 3-5-9-10-11-13-15
MAQUETA ESC 1/10
OBJETIVO
Diseñar en base al estudio del referente arquitectónico del ejercicio E02, un sistema estructural no convencional que integre tres módulos interdependientes: (1) un módulo estructural que sirva de soporte para la edificación, (2) un segundo módulo de cobertura y (3) un tercer módulo de cerramiento, el cual definirá los límites y el diseño del espacio.
Fase 1: Diseño del módulo estructural En esta primera fase, el enfoque será plantear el módulo estructural
Análisis y planteamiento estructural del módulo (maqueta + panel.
Fase
2: Diseño del módulo de cobertura En esta fase, se diseñará el techo.
Análisis y planteamiento del módulo de la cobertura (maqueta + panel).
Fase 3: Diseño del módulo de cerramiento
Análisis y planteamiento del módulo del cerramiento (maqueta + panel)
REFERENTE:
PUNTO DE INFORMACIÓN DE GLORIAS

E referente está conformado por módulos de 2x3m
tiene una estructura metálica conocida como andamios unidas entre sí teniendo la posibilidad de poder restructurarse

COMPONENTES

CONEXÓN DE NUDO - SSTEMA RNGLOCK
Rosetas metál cas para unión
Cuña de meta ap icada con f
Unión para las d agonales de

La conex ón entre la roseta y a cuña es a que transm te las fuerzas a toda a estructura de andamio
Columnas verticales
Vigas Horizonta es 0 10m
00m
Arriostres diagonales

Se hizo un nuevo módulo con distancia de 0.80cm para que tenga una mayor resistencia y mejor funcionamiento.
El módu o tuvo la final dad de representar a estructura de pabe lón desarmab e







REFERENTE:
PUNTO DE INFORMACIÓN DE GLORIAS

Columna vertical metálica



Lámina de policarbonato
Viga horizontal

Conector de ensamb e T con las planchas de po icarbonato

Vertical

e ensamblar los e policarbonato a estructura

Unión a la estructura por pernos
0 04m
Conector de ensamble T


Pernos que unen los ensambles T a co umnas que se unirán a la estructura metálica
Ensamb e T

Opción de ensamblar los paneles de policarbonato por fuera de la estructura
Se implementó el sistema de conector de ensamble T para una mejor resistencia y agarre entre los paneles de policarbonato en vez de solo estar entornillados como lo estaban en el referente y con anterioridad.

Unión entre el cerramiento y la estructura





REFERENTE:
PUNTO DE INFORMA


Tiene una cobertura de ma la metálica com protección que envuelve todo e proyecto Lo curioso de este diseño es que es conformado por dos capas de cerramien que es la mal a metálica y una malla sombreo que filtra a radiación solar

ESTRUCTURALES
En este proyecto se observa la intención de co ocar las esquinas como triángulos en los que se note la caída de a mal a dándole cierto movimiento y percepción de mayor altura

REPRESENTACIÓN DE LA UNIÓN DE DOS MÓDULOS Y LA UN ÓN DE ESTOS A LA ESTRUCTURA

Unión con pernos
Muy aparte de la resistencia por las rosetas, también están creadas para soportar su propio peso por la ubicación de cada triangulación que re dirige la carga a la estructura

Uniones soldadas para presentarse como módulos triangulares
Marcos metálicos de 0.08m

Marcos de triangulaciones con uniones de la estructura tálic



RIO
o nos sirvió para pulir más nuestras estructuras para el pabellón, corregir si necesitaba en mi caso sí ya que se pudo resolver la de a estructura y del envo vente, que fue el Una vez realizado esto pudimos pasar al l lugar
3-5-9-10-11-13-15
MAQUETA ESC 1/100
OBJETIVO
Diseñar en base al estudio del ejercicio E03 (módulo estructural, módulo de cobertura y módulo de cerramiento), la sala interactiva de exposiciones del Pabellón Histórico Tener en cuenta que esta propuesta deberá contemplar que el sistema será susceptible de ser armado y desarmado las veces que sean necesarias para poder transportar la sala a otras locaciones.
Enunciado Fase 1: Visita al Parque de la exposición En esta primera fase, el enfoque será estudiar el Parque de la Exposición y su evolución a lo largo del tiempo.
Análisis de lugar
Fase 2: Emplazamiento En esta fase, cada alumno planteará el emplazamiento de la sala interactiva de exposiciones del Pabellón
Histórico
En base al estudio previo, cada alumno sustentará el lugar de emplazamiento elegido.
Fase 3: Diseño de la sala interactiva de exposiciones del Pabellón
Histórico
Desarrollo de la sala interactiva de exposiciones del Pabellón
Histórico (maqueta + planimetría).

1850 Lima, Perú Gracias a los ingresos que se producían por la explotación del guano que empezó en esta época, se pudo empezar a “embellecer y modernizar la ciudad mediante la construcción de obra pública” Pacheco (2016)
Gracias a los ingresos que se producían por la explotación del guano que empezó en esta época, se pudo empezar a “embellecer y modernizar la ciudad mediante la construcción de obra pública” Pacheco (2016)
PREPARATIVOS....
La construcción del Parque de la Exposición tuvo muchos retrasos como la demora de la llegada de los materiales solicitados desde París, la insuficiencia del presupuesto y entrega de honorarios hasta después de la inaguración.
Figura 1: Co umnas dentro de palacio de a expos c ón Fuen e: ArchDai y

El 18 de diciembre de 1883
Sociedad Administradora de la Exposición el gobierno autorizó mediante un decreto supremo la constitución de la Sociedad Administradora de la Exposición que se encargaría de arreglar, conservar y administrar este parque por un plazo de cinco años desde el 1 de enero de 1884
La Sociedad Administradora trabajó arduamente durante un año en la reparación del palacio y algunos ambientes del Parque de la Exposición
(1881-1883)
Ocupación de Chile en Lima
El 2 de agosto de 1869
Se dio la apertura de la “Exposición Nacional de productos naturales, agrícolas y manufacturados; de plantas y animales de todas clases nacidos en la República o exportados del extranjero y aclimatados en ella; así como un concurso público de modelos, máquinas, plantas y animales” En este decreto se ordenó la construcción de un edificio para acoger la exposición.
El parque fue una novedad muy esperada por los habitantes ya que en el país solo existían las alamedas y los jardines privados


El ejercito Chileno capturó la ciudad de Lima y se apropió el palacio de la Exposición ya que ahí se había instalado el hospital de sangre de la Sociedad de la Cruz Roja de Lima para atender a los heridos.
Jorge Basadre menciona que las tropas chilenas “se llevaron a su país, animales raros, máquinas y obras de arte” Se llevaron muchas cosas como estatuas, animales, mobiliarios, etc. También destruyeron gran parte del parque dejando solo escombros.
PARQUE DE LA EXPOSICIÓN - EXTERIOR
Los visitantes eran recibidos por una hilera de astas de banderas. En el centro del jardín se ubicaba una fuente de agua rodeaba de montículos de rocas. Allí se encontraba la escultura de bronce del dios Neptuno. De noche 68 faroles de gas alumbraban este jardín. A los lados de la fuente de Neptuno se ubicaban dos pequeños edificios Uno, con columnas de hierro que era utilizado para la venta de bebidas y alimentos.
El otro edificio era un teatro, que con el tiempo se convirtió en lugar favorito de niños y jóvenes

donde se presentaban espectáculos de acrobacia, magia y títeres. El teatro tenía capacidad para 250 personas.
Al lado izquierdo del Palacio de la Exposición se construyó un pabellón alargado
Al lado izquierdo del Palacio de la Exposición se construyó un pabellón alargado que se conoció como el “salón de máquinas”
El 5 de Julio de 1870
Se publicó el reglamento de la Exposición Nacional

Figura 2: An igua ent ada del pa que de la exposición Fuen e: Mun c pal dad de L ma
Diseñado por el arquitecto Antonio Leonardi
Abarcaba 80 metros de largo y 54 metros de ancho con dos niveles de altura. La fachada del primer nivel decorada con pilastras de estilo jónico y el segundo de estilo corintio
Tenía 72 columnas de hierro fundido traídas desde Francia
influencias de: frisos de yeso con decoraciones relacionadas a las artes y las industrias, que fueron diseñadas por los señores Deulofeu y Bernard.
dos fachadas decoradas con esculturas de mármol que representaban los continentes del mundo

1872
El palacio y el parque fueron inaugurados oficialmente con la apertura de la Exposición Nacional de 1872
Según la historia - dora Leticia Quiñones Tinoco en este evento se presentaron 801 expositores: 603 peruanos y 173 extranjeros, en su mayoría de Chile, Inglaterra e Italia
La exposición se dividió en 80 categorías que reunían el arte y las industrias mineras, mecánicas, textiles y alimentarias, entre otras.
Se realizó el objetivo de construir un jardín zoológico para exhibir animales del Perú y de todo el mundo
PARQUE DE LA EXPOSICIÓN - INTERIOR
Detrás del Palacio de la Exposición se ubicaba el área más extensa del parque donde había varios pabellones de los cuales ya fueron nombrados con anterioridad.

Figura 4: Visa a pabe ón Góico Fuente: L ma a única
1 de Julio 1872
se realizó la inauguración oficial del Parque de la Exposición.
“importantísima escuela para la enseñanza y estímulo de la agricultura, comercio y naciente industria del país”
Señaló en la ceremonia el expresidente Mariano Ignacio de Vivanco
Manuel Atanasio Fuentes resaltó la importancia de este lugar no solo para el recreo y esparcimiento de sus visitantes, sino como un monumento al trabajo y a la industria, que permitiría colocar al Perú al nivel de los países europeos

A finales de 1871
El palacio estaba casi terminado y se construyeron varios pabellones
El Pabellón Bizantino edificio de planta octagonal y piso de mosaico de madera
El edificio está rodeado de barandas y columnas de fierro fundido y en su entrada hubo esculturas de leones de mármol, de estilo renacentista.
Pabellón Gótico
El primer nivel es un espacio abierto y en el segundo hay un salón a donde se accede a través de escaleras curvadas.
El Kiosco Chino
La laguna grande tiene 1000 metros cuadrados y tiene peces y plantas acuáticas.
En el centro de la laguna grande había una pequeña isla artificial a la que se podía llegar a través de un puente de madera

Los lugares más concurridos del Parque de la Exposición siemp F gu a 5 Vis a a a ant
Cerca de la laguna principal existía una laguna más pequeña poblada de aves acuáticas.

pabellón alargado de 200 metros cuadrados que tenía dormitorios con camas, cocina, retrete y lavatorio. Su fachada estaba decorada con pinturas de escenas de las dinastías del imperio chino. Este pabellón era utilizado por los empleados chinos.
10 de junio de 1884
la reapertura del Parque de la Exposición tuvo un significado importante para la regeneración del Perú.
La Sociedad Administradora de la Exposición continuó con las mejoras en el parque hasta 1889, ejecutando el arreglo de los jardines, los caminos y alamedas
En el Palacio de la Exposición se realizaron fiestas, banquetes y bailes a donde asistieron las familias más distinguidas de la sociedad limeña
Por las noches el parque lucía todo su esplendor iluminado con faroles de gas y luz eléctrica 1898
El parque sufrió recortes en sus terrenos y en este año fue e dividido debido a la construcción de la avenida 9 de Diciembre o Paseo Colón y con esta división el jardín exterior se separó del Parque de la Exposición
La avenida 9 de Diciembre fue construida como un paseo peatonal con pistas para coches y carruajes. A partir de 1905 comenzaron a circular por esta vía los primeros automóviles.
La construcción de la avenida 9 de Diciembre tuvo efectos negativos para el parque. Según los informes del administrador, los ingresos recaudados por la venta de boletos disminuyeron de forma considerable

Conclusiones
Este parque es un lugar emblemático y reresenta una parte fundamental en la historia peruana y su evolución urbana. Es resultado del esfuerzo por modernizar Lima buscando ofrecer un espacio cultural y recreativo para los ciudadanos.
Este espacio también es testigo de las transformaciones urbanas que han ocurrido en Lima y ha evolucionado junto con la ciudad, adaptándose a las necesidades cambiantes de los limeños y preservando su rol como lugar de encuentro y de expresión cultural
La ciudad recibió además monumentos como obsequios para ser colocados en los nuevos espacios públicos, a partir de ahí el parque dejó de cobrar boleto de entradada y abrió sus puertas al público de manera gratuita
La avenida 9 de Diciembre fue construida como un paseo peatonal con pistas para coches y carruajes. A partir de 1905 comenzaron a circular por esta vía los primeros automóviles.

15 de octubre de 1959.

1929
El crecimiento del tránsito automotriz obligó al gobierno a transformar la antigua alameda de los ficus en la prolongación de la avenida Petit Thouars
La construcción de una avenida en medio del Parque de la Exposición inició la decadencia de este espacio público
A partir de acá se usaron varios lugares del parque para estudios, ministerios, tranvía, museos, nuevos monumentos, etc. actualmente algunos se conservan y otros no.
MONUMENTO A JUANA ALARCO DE DAMMERT
EL MUSEO DE ARTE ITALIANO
LA FUENTE CHINA
EL EDIFICIO DEL MINISTERIO DE FOMENTO
MONUMENTO A MANUEL CANDAMO
EL RESTAURANTE LA CABAÑA
LA FUENTE DE LAS TRADICIONES
1950
se demolió el arco principal del parque ya que por las noches se había convertido en un lugar peligroso y el arco lucía muy descuidado y amenazaba con derrumbarse por sí solo
En esta nueva época se instalaron nuevos monumentos
MONUMENTO A MATEO PAZ SOLDÁN
MONUMENTO A VÍCTOR LARCO HERRERA
MONUMENTO A ELISA RODRÍGUEZ PARRA
MONUMENTO AL GENERAL TOMÁS HERRERA
MONUMENTO AL ALGUACIL MAYOR DIEGO MEXÍA


Se celebró la inauguración del Museo de Arte exhibiendo 200 piezas artísticas entre objetos arqueológicos, pinturas y esculturas. A la ceremonia asistió el presidente Manuel Prado Ugarteche, su esposa, ministros de Estado, embajadores, el alcalde de Lima y los miembros del Patronato de las Artes.
A lo largo de su existencia continúa incrementando sus colecciones de arte prehispánico, colonial, republicano y contemporáneo a través de adquisiciones.

En la actualidad el MAL posee más de 17 mil obras artísticas.
El análisis de la cronología del parque de la exposición fue informativa y en lo personal trae mucha curiosidad acerca de los planos y las construcciones de los pabellones y el impacto e influencias que tuvieron estos en la ciudad y de los propios arquitectos, también el mantenimiento que toda construcción arquitectónica necesita y los riesgos que se enfrentan a lo largo de los años.
1957
Se realizó en el Palacio de la Exposición la primera exhibición de arte francés con el apoyo de la Embajada de Francia


1955
La Municipalidad de Lima ocupó el palacio de la Exposición hasta el terremoto del 24 de mayo de 1940 dejándolo vacío hasta que en 1955 entregó su uso para fundar allí el Museo de Arte de Lima




25 de marzo de 1974
JAPONÉS
Una parte de parque fue convertida en el Jardín Japonés. Esta obra fue promovida por la Sociedad Central Japonesa y se inauguró el 25 de marzo de 1974 para conmemorar los 100 años de relaciones diplomáticas entre Perú y Japón Abarcaba un área de 12,687 metros cuadrados




Se buscó mediante análisis un lugar dentro del parque de la exposición que favorezca al proyecto (tomando en cuenta que no se puede intervenir dentro del parque)
Para escoger e lugar del emp azamiento se tuvo que cumplir con el requ sito de no talar muchos árboles ni a terar mobi iar os suelo ni ub cac ón de infraestructuras.
La idea es colocar el pabe lón y poder retirar o s n afectar os a rededores
En a f gura N°1 se observa por medio de un mapa de ca or la dens dad de árboles en el parque de la Expos ción para poder analizar las zonas sin muchos árboles en as que se puede intervenir con mayor facil dad cumpliendo también los requis tos LEYENDA
Alta densidad
Mediana dens dad
Menos dens dad
Entradas a parque
Accesibil dad:
Tiene acceso directo desde a puerta N°3 y cerca de sa idas de emergencias, también el ugar es céntr co y tiene veredas para que las personas con si las de ruedas puedan acceder fác lmente.
También está cerca de paradero de autobuses, s endo de fácil acceso

Puerta N°3
FACTORES:
Sonido:
Esta ubicación no cuenta con una gran contaminación sonora a pesar de estar cerca de os puntos más sonoros, debido a que se encuentra un poco apartado de as avenidas no tan alejado pero tampoco tan cerca. G abacón omada en


Esta zona se encuentra en un punto de parque en a que no es tan densa por lo que no hay necesidad de intervenir el área alterando y talando los árboles que se encuentran alrededor
Tamaño:
Toda esta área t ene unos 2425 33m2 de os cua es so o se usaran 200m2 para el pabe lón de expos ción planteada
Nivelación del suelo:
Esta área se encuentra nivela a comparac ón de otras áreas que necesitan nivelación para una mayor estab lidad









Se presenta la explicación de la maqueta del porqué de las formas y las estrategias tomadas
PARQUEDELAEXPOSCIÓN

LUGAR ESCOG DO PARA EL EMPLAZAM ENTO
UBCACIÓN
Dado que e proyecto se encuentra en e punto A por o que cuenta con múltples accesos saldas de eme gencia y veredas amplas para e tránsito peatona se fac ita su accesb idad además de ser un espaco nclusvo

El proyecto debe ser desmontable po lo que se ub ca en ta zo de a expos ción garant zando que no se cause una a te ac ecos stema ni a entorno existente
Además se ubica en esta área po que la contaminac ón sonor terreno está n ve ado, lo que reduce a neces dad de s gnif cativas para desarro lar cua qu er proyecto en el lugar
LO QUE SE BUSCA EXPONER EN LA SALA DE EXPOS C ÓN
A o argo de toda a histor a de parque de la exposic ón, esta se v o nfluenc ada po arqu tectura, moda mov m entos Amer canos y Europeos siendo esta a más nf uyente En esta sala de expos ción t ene a ntenc ón de mostrar todas as obras e inf uencias que han eca do sobre e parque y sus cons rucciones
Es e proyecto iene uego de niveles, en e ado A es de una a tura m entras que el ado B es de dob e para mayor vent ac ón y entrada de uz


Entrada de uz y venti ación por a tura de a cobertu a

Doble a tura en andamios

Módulos de cobertura
Triangulaciones metá icas una sola pieza
Algunas triangulaciones crecen hasta tocar e piso funcionando como una co umna ayudando a soportar a cobertura junto con los andamios (módu o estructural)

P so me á co para andam os de 3m x 0 50cm
Se presenta la explicación de la maqueta del porqué de las formas y las estrategias tomadas
Se pensó dejar una doble altura y un techo vacío para dar a sensación de vacío y profundidad en el área de descanso que se pensaba un espacio como un living. El recorrido es el siguiente sa a de exposic ón 1 - living - sa a de exposición 2 - 3 - 4 Todo es un espacio de exposición en forma de L debido a del espacio, en e recorr do se empieza con las sa as de e gran espacio de iving donde los usuarios pueden interactu


El verdadero reto fue abstraer columnas de tal forma para que se siga manteniendo en pie y se formen espacios, esto se soluc onó con los arriostres de los costados, por debajo y arriba. Sobre estas se apoyan las triangulaciones que se encuentran sobre los ejes de la estructura de andamios.
COMENTAR O
En esta entrega se tuvo que hacer la maqueta y pensar en una estructura que sea influenciada por a historia que va a contar y e referente ya ana izado Lo que se esperaba contar era cómo las personas, países y movim entos influenciaban en a construcción de todos los elementos del parque de la exposición.















OBJETIVO
Diseñar el Pabellón Histórico de manera integral entre la edificación y su entorno. Considerar que el diseño contemplará el sistema modular, previamente Diseñar el Pabellón Histórico de manera integral entre la edificación y su entorno. Considerar que el diseño contemplará el sistema modular, previamente
El pabellón se ubicará en la locación elegida por el alumno dentro de la Ruta del Pabellón Histórico El área techada será de 900m2 El listado de ambientes y programa se definirá a nivel taller
1. Análisis del lugar:
Entorno y perfiles aledaños
Historia
Uso
Accesibilidad
Paisaje natural y urbano
Etc.
2 El habitante:
Caracterización del habitante
3. Toma partido:
Emplazamiento
Estratégias proyectuales
Contenido: historia que van a contar
4. Diseño:
Primera imagen: planimetría, 3D, etc. Esc. 1/200
Maqueta 1/200
Para esta entrega tuvimos que situarnos en uno de los puntos de análisis dados por la cátedra y nos tocó la huaca Mateo Salar.
En las siguientes láminas se analizan los análisis del sitio con la mayoría de los factores y cumpliendo los temas de requisitos.
DATOS
IMPORTANTES
Ubicación: Distrito de Lima, en el límite de Breña y Pueblo Libre
Extensión: 16.4 hectáreas
Tipo: Complejo arqueológico monumental
Uso original: Administrativo y ceremonial
Cultura: construido por los Ichma (1100 – 1450 d.C.) y reocupado por los Incas (1450 – 1532 d.C.).
Construcción: 1100 - 1532 d.c
Propietario: Estado Peruano
Pirámides: 5
Año de recuperación: 2007 encargado por el Ministerio de Cultura


1100 - 1450 d.C
El francés Matheus Salade llegó desde Europa y residió como un ermitaño en el complejo arqueológico siglo XVI 1573
Fue un centro administrativoceremonial construido por los Ichma quienes fueron una cultura autónoma (900-1450 d.C)
Matheus Salade fue acusado de hereje luterano por la Santa Inquisición, siendo condenado a muerte y ejecutado en la hoguera

declarado Patrimonio Cultural de la Nación
Con ello se ha logrado poner en valor un 35% de área total del complejo arqueológico. La restauración ha buscado dar al visitante una lectura del sitio que resulte comprensible, disfrutable y científicamentefundamentada;
2007-2013
El Ministerio de Cultura comenzó la recuperación del complejo arqueológico Mateo Salado en 2007. Entre ese año y 2013, se trabajó en tres de sus cinco pirámides, realizando labores de investigación, conservación-restauración y habilitación para visitas.
Desde el año 2010 se realiza un programa de gestión hacia la comunidad que ofrece constantemente actividades artísticas, culturales y educativas de ingreso libre, con el apoyo de distintos promotores y asociaciones culturales de Lima. 2010 - actualidad
Se busca así incentivar la apropiación social del monumento por parte de la población, e impulsar valores y experiencias que fortalezcan la ciudadanía como condición para lograr un desarrollolocalsostenible.


Zona de agricultura sin usar, es un gran espacio con tierra arada E N T O R N O Y P E R F I L E S A L D A Ñ O S P A I S A J E N A T U R A L Y U R B A N O





En la primera mitad siglo XX se asentaron aquí ladrilleras que se dedicaron a demoler parcialmente las pirámides para utilizar la tierra en la fabricación de ladrillos.


Parada de autobuses

Zonas de interacción (descanso - parques)



En esos sectores se encuentran casas en gran número donde se encuentran personas viviendo dentro de la huaca desde hace más de una década, carecen de servicios básicos y desarrollan actividades que ponen en riesgo a la huaca como por ejemplo almacenar materiales reciclables y tener un taller mecánico.



Fuera del complejo se encuentran dos paradas de autobuses y a los alrededores 14
También en los alrededores se observan gran cantidad de áreas verdes como parques y zonas de descanso

Instituciones educativas (colegios - universidades)

Zonas de interacción (descanso - parques)
Se observa que hay gran número de instituciones educativas al rededor como universidades y colegios
En el siguiente gráfico se muestran las ubicaciones de las torres dentro de la huaca Mateo Salar así como sus dimensiones, funciones principales y algunos datos importantes.


El entorno arquitectónico de la huaca ha sido afectada. En el año 2013 una inmobiliaria edificó un proyecto de vivienda de 56 metros de altura que no solo puso en peligro a la pirámide E (la más pequeña y alejada del complejo), sino que también cortó la conexión visual que esta mantenía con la pirámide A; algo que debió ser importante en su momento.











Ubicación de torres
TORRE D
Sector de arado e invación












Mide 92mt de largo x 80mt de ancho Tiene 7 metros de alto No se sabe su función debido a que no ha sido intervenida en excavaciones Orientada hacia el mar
Ubicación de puertas existentes
MURALLA
Avenidas principales y referente
Esta muralla está dividida por el crecimiento urbano y está cercada debido a la apropiación del sector por los vecinos como basurero, fue recuperado y tratado
TORRE C Cuenta con una planta cuadrangular de 90mt x 90mt en los lados
Tiene 9 metros de altura
No se sabe la función
Sector de arado e invación
TORRE B
Segunda en tamaño, se dice que fue el palacio principal. Mide 138mr de largo x 146mt de ancho Tiene 12 metros de alto
Tiene una gran escalinata monumental, una plaza con una suerte de trono y un recinto con un pozo
TORRE A
Pirámide mayor del complejo. Mide 15mt de largo x 182mt de ancho
Tiene 18 metros de altura
Cuenta con grandes patios caracterizadas por tener escalinatas que descendían de los dos lados a plataformas
Sector de arado e invación
TORRE E Planta cuadrangular de 50mt x 50mt
Llega a los 7 metros de alto
Direccionada al mar

PARADAS DE AUTOBUSES
AVENIDAS
PRINCIPALES
ANÁLISIS DE LOS ALREDEDORES, AVENIDAS PRINCIPALES Y CONECTORES HACIA LUGARES MÁS CERCANOS DE REFERENCIA
Se buscó analizar los alrededores para poder saber el nivel de circulación de la zona, los puntos de acceso del lugar y lugares de referencia cercanos a la huaca Mateo Salado
AV. MARIANO H CORNEJO AV.ALEJANDROBERTELLO
ZONAS EDUCATIVAS

La huaca Mateo Salar es de fácil acceso, tiene un acceso directo desde la avenida universitaria, una avenida muy concurrida y conocida, también por la avenida Simón Bolívar y la avenida Venezuela como paralelas, estas conectadas directamente por las avenidas Mariano Cornejo y la avenida Tingo María que son entradas directas al recinto arqueológico
AVENIDAS COLINDANTES

AV. MARIANO H CORNEJO


En el análisis de flujo de personas vemos como estas frecuentan más la avenida Mariano H. Cornejo y la avenida Tingo María, esto se debe a que conectan ambas con avenidas principales como la Avenida Simón Bolívar y la Avenida Universitaria.
En el análisis del flujo de los automóviles es similar ya que estas avenidas conectan con las avenidas principales y con las paradas de autobuses.
CONCLUSION
Según lo analizado vemos que hacen falta más entradas al complejo ya que solo cuenta con una para el uso del público, ya hay una en la Av. Mariano Cornejo pero se podría facilitar otra entrada por la Av. Tingo María.
También según el análisis las alturas para la propuesta arquitectónica no deben pasar los 18mt en general o dependiendo de donde se de el emplazamiento para que no compita el protagonismo con lo que es la huaca.
GRAFICOS DE ANÁLISIS DE EL COMPORTAMIENTO DE LOS HABITANTES ANTE MONUMENTOS ARQUEOLÓGICOS
Se realizó un análisis de usuario con gráficos y datos recuperados donde muestran los porcentajes de los ingresos a la huaca en cuestión y al país por los turistas y usuarios nacionales para un mayor enfoque y analizar la problemática en cuanto a visitas sobre el lugar.
POBLACIÓN A NIVEL NACIONAL QUE VISITÓ ALGÚN MONUMENTO ARQUEOLÓGICO ENERO 2016 - DICIEMBRE 2019


Fuente:InstitutoNacionaldeEstadísticaeInformática
El análisis nos menciona que en el año 2016 la población mayor a 14 años visitó mayormente los monumentos arqueológicos pero también notamos una creciente mejora en los años posteriores.
FRECUENCIA DE VISITA A NIVEL NACIONAL MONUMENTOS ARQUEOLÓGICOS

Fuente:InstitutoNacionaldeEstadísticaeInformática
Se observa que en en el año 2019 la población peruana visita mayormente los monumentos arqueológicos anualmente mientras que un 3.7% mensualmente.
RAZONES POR LAS QUE NO FRECUENTAN MONUMENTOS ARQUEOLÓGICOS 2019

Fuente:InstitutoNacionaldeEstadísticaeInformática
Se observa que
los monumentos arqueológicos son la falta de tiempo y falta de interés.
CARACTERÍSTICAS DE LA POBLACIÓN ENERO 2016 - DICIEMBRE 2019

Fuente:InstitutoNacionaldeEstadísticaeInformática
Según el gráfico van más a los monumentos arqueológicos las personas que tienen entre 14 y 29 años y según el nivel educativo 22.3% los que se encuentran en superior universitaria.
LLEGADA DE VISITANTES EXTRANJEROS AL PERÚ ENERO 2019 - DICIEMBRE 2023

Fuente:SuperintendenciaNacionaldeMigraciones
Según el gráfico el 2018 se recibieron más extranjeros pero en el año 2020 y 2021 son los puntos más bajos debido a la pandemia mundial del Coronavirus, vemos cómo desde el 2022 van aumentando las visitas y recuperando la cantidad de visitas anteriores.
CONCLUSIÓN GENERAL DEL ANÁLISIS AL HABITANTE
Según el análisis de el habitante, a pesar de tener una gran llegada de personas extranjeras, estas no son principales de la visita a la huaca Mateo Salar, teniendo como visitantes predominantes a los propios peruanos. Normalmente las personas visitan los monumentos arqueológicos anualmente y no frecuentan con mayor frecuencia según las estadísticas por falta de tiempo con un 43.4% teniendo como segundo motivo la falta de interés con 32.5%.
También se concluye que las personas entre 14 y 29 años son las que visitan más con un 16% y según el nivel educativo, los universitarios.

GRAFICOS DE ANÁLISIS DE LOS VISITANTES EN EL COMPLEJO ARQUEOLÓGICO MATEO SALADO 2019-2023
Se buscó estadísticas para poder analizar la cantidad de personas visitan el complejo para poder aplicar en la propuesta arquitectónica más adelante.
LLEGADA DE VISITANTES AL COMPLEJO ARQUEOLÓGICO MATEO SALADO ENERO 2019 - DICIEMBRE 2023


Gráficoelaboraciónpropia datossacadosdeDirecciónGeneraldeinvestigaciónyestudiossobreturismoyartesanía.
Se puede observar que el año menos concurrido fue en el año 2021 debido a las medidas preventivas ante la pandemia del COVID-19 también podemos ver cómo en el año 2019 tenemos el mayor número de visitantes con 12 491 visitantes nacionales y del extranjero. Concluyendo que para la propuesta se espera contar con 20 000 visitantes tratando de atraer más personas al complejo.
LLEGADA DE VISITANTES AL COMPLEJO ARQUEOLÓGICO MATEO SALADO ENERO 2019 - DICIEMBRE 2023

Gráficoelaboraciónpropia datossacadosdeDirecciónGeneraldeinvestigaciónyestudiossobreturismoyartesanía.
De este gráfico concluimos que las visitas son más de personas nacionales que extranjeros, por lo que la idea es atraer público extranjero pero a la vez centrarnos en el público fijo que son nacionales.
ANÁLISIS DEL SECTOR Y DECISIÓN
En la siguiente lámina se buscó mediante análisis un lugar dentro de la huaca que favorezca al proyecto dentro de la huaca (tomando en cuenta que no se puede intervenir dentro de esta o alterando alguna torre de la huaca)
ocupadas por las torres

Para realizar este diagrama se tomó en cuenta uno de los principios que destacaba la torre B del complejo, donde los espacios se concentran en un centro (en este caso sería la Sala principal teniendo cierta jerarquía) conectándose con las otras salas y espacios.
El diseño del cerramiento tiene la peculiaridad de estar abierto por el centro destacando así un espacio y dándole jerarquía por tamaño (las triangulaciones son más altas rematando en punta sobre un espacio de doble altura hasta de triple)


ÁREA DESPEJADA

ÁREA DE INVASIÓN
ÁREA DE TIERRA ÁRIDA
A - B - C Entradas existentes y propuestas de nuevas entradas al complejo
Se pensó ahí ya que podría jugar con las alturas del diseño del envolvente del proyecto (alturas de las torres)
Está cerca de la entrada B por lo que podría reabrirse para el público, de igual manera sigue cerca de la entrada principal y se podría pensar en agregar otra entrada en el punto C
HISTORIA QUE VA A CONTAR EL PABELLÓN
SaaP ncpa
HISTORIA DE LA HUACA MATEO SALADO Y SU DESCUBRIMIENTO
Introducción a la Huaca Mateo Salado: Explicar la importancia del sitio dentro de la cultura Ichma y su función como centro ceremonial y político.
El proceso de excavación arqueológica: Mostrar cómo fue descubierto el sitio, datos. Fotografías antiguas, herramientas de excavación, y planos pueden ayudar a visualizar este proceso.
Hallazgos clave en la Huaca
Saae po2
ARQUITECTURA Y CONSTRUCCIÓN DE LA HUACA
Estructura arquitectónica de la Huaca:
Describir la arquitectura de la huaca, el uso de adobe como material principal, y cómo se construían estas estructuras monumentales en capas sucesivas. (principal)
Función de la Huaca Explicar cómo probablemente funcionó como un centro religioso y político, con áreas dedicadas a la celebración de ceremonias, sacrificios, y actividades administrativas (más detallado)
Saaexpo
EL TRABAJO ARQUEOLÓGICO Y LA CONSERVACIÓN ACTUAL
Explicar los trabajos actuales de conservación y restauración que se están realizando en la huaca, para preservar su estructura y evitar el deterioro por factores ambientales o humanos.
Futuras investigaciones: Hablar sobre los planes de investigación futuros y cómo los avances tecnológicos pueden ayudar a descubrir más en la Huaca Mateo Salazar.
Bach (2020). “La arquitectura ychsma es del tipo pirámide trunca escalonada; consta de escaleras de acceso, plazas en los niveles bajo y alto de la pirámide, recintos cerrados anexos a esos espacios, pasadizos cortos y plataformas. Ceremonias que congregaban a numerosas personas debieron realizarse en las plazas públicas, mientras que los recintos altos eran espacios más restringidos. La función de estos recintos altos era predominantemente ceremonial y administrativa”
En este caso no se tiene segundo piso pero se distribuyó de manera lineal las zonas más importantes con mayor predominio mientras que las zonas semi públicas están en ambos lados. Este flutxograma no cuenta con baños ya que el lugar cuenta con estos.
COMO SE VA A CONTAR LA HISTORIA EN EL PABELLÓN
En la sala principal se pensaba hacer una sala con paneles y mesas de exposiciones para exhibir algunos de los hallazgos más importantes y trascendentales


En las salas de exposiciones secundarias como son más privadas que la principal, algo moderno y llamativo al momento de contar las historias sería mediante salas de proyecciones aprovechando que el establecimiento cuenta con electricidad


En la sala de Sum variaría la organización ya que se cambiaría las exposiciones de acuerdo a las distintas actividades.
ÉSTRATEGIAS DE ACUERDO AL ANÁLISIS DEL LUGAR
Se sacan estrategias de acuerdo a lo analizado con anterioridad para ver puntos importantes que se aplicarán en el diseño y desarrollo del proyecto

Según el análisis anterior este recinto solo tiene una entrada principal, por lo que se pensó agregar otra cerca del lugar de emplazamiento

Uno de los problemas principales fue que la huaca perdió protagonismo en la zona si hablamos de alturas debido a las alturas de los nuevos edificios de la zona. Por ello se tiene pensado hacer el proyecto de un piso de 3mt de alto y triangulaciones hasta 4mt hacia arriba, se piensa no hacer todo el proyecto no tan alto ya que se tiene pensado emplazar entre las torres y tiene que ser de la misma o menos en altura
Y ZONIFICACIÓN

Se piensa utilizar las zonas de tierra árida y convertir en espacios donde se planten árboles y se cree espacios de estar
Zonas funcionales: Dividir el edificio en zonas claras según su uso (privado, público, de servicios), para garantizar una mayor funcionalidad y flujo de circulación.
Si es que colocamos la propuesta orientada al norte y al sur los lados más largos. podemos permitirnos abrir los vanos necesarios sin tener un impacto directo del sol.
El sonido está más concentrado y con mayor intensidad por las avenidas Mariano Cornejo y Tingo María, por ello el emplazamiento está pensado en el sector A donde no hay mucha contaminación sonora, ya que se busca la tranquilidad y conexión con la historia que se cuenta dentro del pabellón histórico.

El terreno prácticamente no tiene pendiente, los planos topográficos de Lima revelan que en esta zona e nivel del suelo sube cinco metros cada 320m aprox. Esto da una pendiente de 0.015%, sin embargo, la tierra acumulada cerca de las pirámides a lo largo de miles de años genera un pequeño desnivel de .50m aprox. Bach (2020)




Propuesta de nueva entrada

Otros puntos que se tomarán en cuenta es la forma, en la huaca resaltan sus zonas escalonadas que fueron implementadas para ganar altura y estas estaban empuje serán

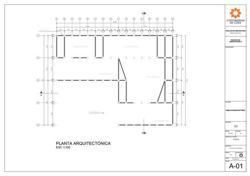
PLANOS EN CORTES Y PLANTA PARA MEJOR COMPRENSIÓN DEL PROYECTO
El diagrama de flujos se resuelve de la siguiente manera: La sala principal jerárquica, se jerarquizó por el tamaño (ancho x alto x altura). El proyecto tenía descubierta en el techo y en este lugar sería donde estaría ubicado. Las demás públicas que serían la tienda de regalos, tópico, almacén y oficinas están cerca jerárquico y la salida por cualquier emergencia, la cafetería está cerca a la sala oficinas, tiene acceso fácil y directo para otras zonas.
Al diseñar por ejemplo el techo, se tomaron en cuenta varios factores como las tendría alrededor el proyecto para que este no compita con los demás. Se tomó en cuenta la forma de construcción de los Ichma por ejemplo resaltan escalonadas que fueron implementadas para ganar altura y estas estaban inclinadas, que eran para controlar el empuje exterior de las plataformas. Estos criterios serán momento de diseñar el proyecto.

Esta faceta del proyecto fue la que más costó ya que se tuvo que volverse a analizar sector de Lima y usar el lugar para colocar el nuevo pabellón, con nueva forma planificación. Estuvo más compleja que el anterior ya que en esta huaca hubo arquitectónico y solo quedan restos, se tuvo que analizar a este para poder construir pabellón.






















