CV-arquitectura-Anavaleriahc

Page 1

A | H

“El reto arquitectónico que entraña la intervención no es otro que perfilar una forma de relación con lo antiguo, tomando trozos de su memoria, Memoria que no es cerrada ni está finalizada, pues cada edificio es un vínculo de acontecimiento y nuestra intervención es uno más”. (Ruiz, 2011).

Educación

ARQUITECTURA

Facultad de arquitectura / UNAM / en proceso de Titulación

Tesis Restauración Casona

Amado Nervo 46, SMR.

Tutor: Mtro. José de Arimatea Moyao.

1er lugar Concurso Herman Miller diseño de interiores. abril 2019.

Exposición en Bellas Artes

CUPA Julio 2017

DIPLOMADO CEELA

Facultad de arquitectura / UNAM

Diplomado Digital Internacional Edificación con eficiencia energética y confort adaptativo CEELA. febreromayo 2022.

Habilidades

Autocad 2D

ANA VALERIA HERNÁNDEZ CARRERA

Tlalpan, CDMX 5510480993 annahernadez1876@gmail.com

Experiencia Laboral

Consultoría en Calificación de Inmuebles y Negocios,S.C.

oct. 2021 - oct. 2022

VALUACIÓN DE PROYECTOS

Obtención de datos de mercado. Investigación y levantamiento de campo. Elaboración de avalúos mediante el enfoque de negocio para bienes intangibles. Generación de dictámenes.

Humanitarian Architecture Competitions

nov. 2022 - feb.

2023

Proyecto sobre Campamento de refugiados Mayukwayukwa, Zambia, África.

Proyección de un Centro de desarrollo sostenible en Zambia, tomando en cuenta al habitante, su accesibilidad a recursos para la construcción de éste. Entrega de propuesta visual (renders), sistema constructivo, planos arquitectónicos, detalles, cortes.

Proyecto Independiente

sep. 2020 - dic.

2020

Supervisión de obra.

Supervisión de la construcción de departamento en Calle 8, Isidro Fabela, Tlalpan, CDMX.

Photoshop

Sketchup

Vray

Autocad 3D

Alcaldía Xochimilco CDMX dic. 2019 - marzo 2020

Voluntariado Xochimilco

Área de Dirección General de Servicios Urbanos con Arq. Maday Nieva Torres, diseño de tres propuestas. Parque lineal “Tepepan - La Noria”, recuperación de espacio. Diseño para la repavimentación de banquetas y calles. Conservación y Restauración de mobiliario urbano infantil.

Paquetería Office

Brigadas FAQ oct. 2020 - abril 2021.

Regeneración de Imagen en San Bernabé Ocotepec.

Levantamiento fotográfico y propuesta de fachada para el mejoramiento de Imagen Urbana en la colonia perteneciente a la alcaldía Magdalena Contreras.

A | H

Idioma

Inglés comprensión lectora

Brigadas Sismo

2017

sep. 2017 - oct.

2017

Inglés gramática

Inglés oratoria

Voluntariado

21 sept. 2019

Identificación y registro de inmuebles dañados

Levantamiento fotográfico de inmuebles dañados, registro de daños y evaluación de grietas localizadas, daños estructurales.

07 nov. 2022

Voluntariado Presa Capulín por parte de tienda Decathlon, limpieza en interior de presa, levantando basura en ella y guardandola en bolsas de basura.

Voluntariado en terreno perteneciente a Ectongo (Consultora especializada en desarrollo sostenible corporativo) junto con Organización FUNO (Fideicomiso de Inversión de Bienes Raíces en México). Se realizó la eliminación de plantas nocivas para el cultivo existente y fertilización de la tierra.

Cursos

Seminario Net Zero Latitud 0° CEES. 12 y 13 mayo 2022 7mo CoRe Foro Urbano 2022: “La ciudad que queremos”. 07 nov. 2022

Oratoria y Argumentación por Lic. Juan Carlos Martínez González. FCPyS UNAM. 2019.

Coloquio “Los Escenarios de la Teoría, Crítica y Difusión de la Arquitectura de 1969 a 2015”. Marzo 2017.

Congreso en Desarrollo Sustentable en Arquitectura. FAC UNAM. 2016.

Programa Lectura Integral Rápida Comprensión Lectora 2013.

Concurso Campo de Refugiados Mayukwayukwa, África

Proyecto que busca recibir a refugiados y voluntarios, así como la creación de espacios de recreación, educación y producción de alimentos para el crecimiento personal de los refugiados, tanto en conocimiento como económicamente.

Mayukwayukwa, lugar de bajos recursos indispensable el uso de materiales de la zona, fácil construcción y preservación de árboles. Resultados del concurso 15 MARZO 2023.

RENDER PROPUESTA DE DISEÑO CONCURSO / SKETCHUP, REVIT, PS

El proyecto toma como guía de diseño la ubicación de los árboles, buscando concientizar la importancia de ellos.

Para la zonificación investigamos sobre sus costumbres, comida y artesanías en Mayukwaykwa y refugiados. A partir de ello decidimos volver la cocina nuestro elemento principal, su diseño respeta la manera de cocinar, permite la creación de talleres y el comercio de productos alimenticios. Volviéndose un punto de inflexión para las áreas creadas.

RENDER PROPUESTA DE DISEÑO CONCURSO / SKETCHUP, REVIT, PS

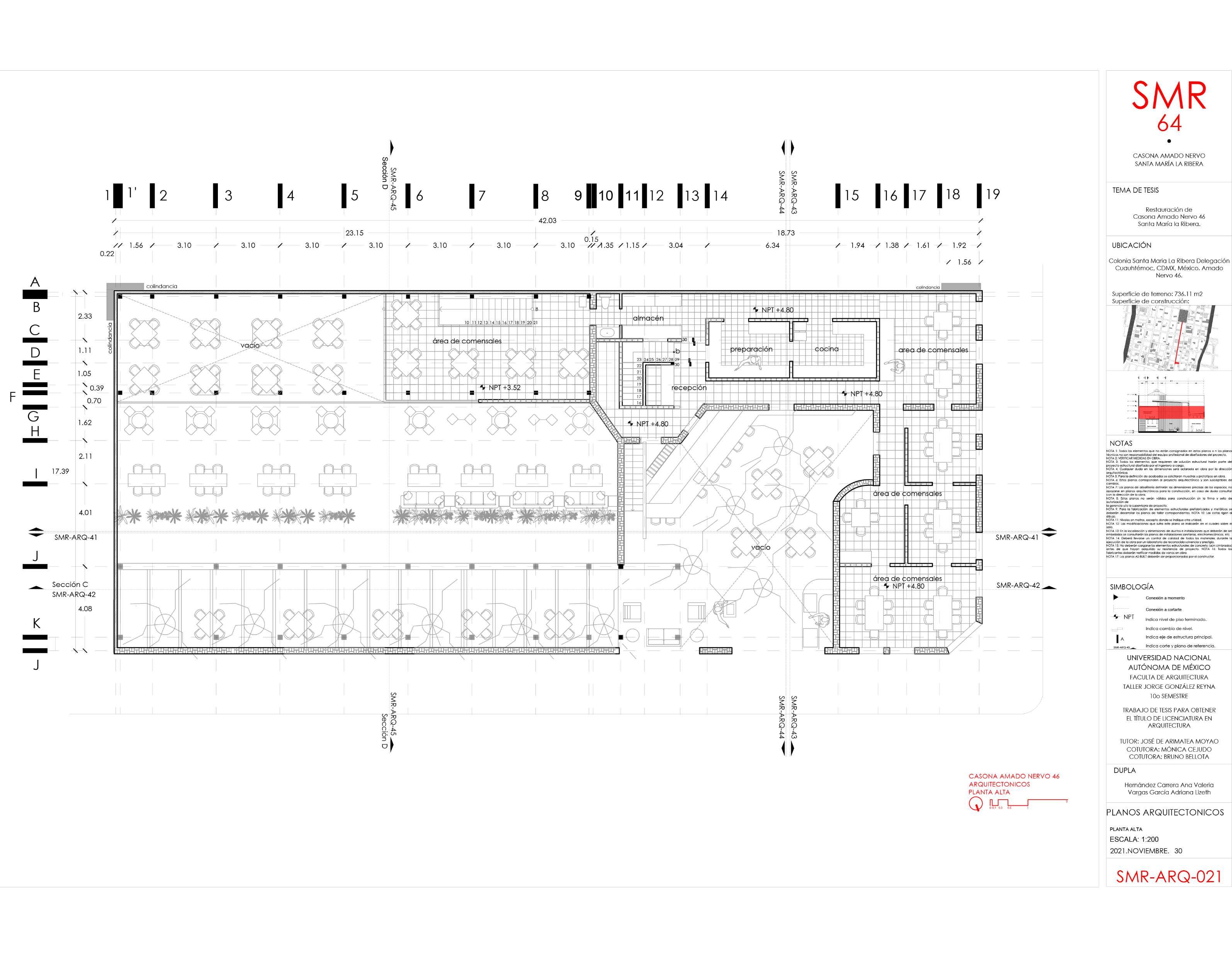
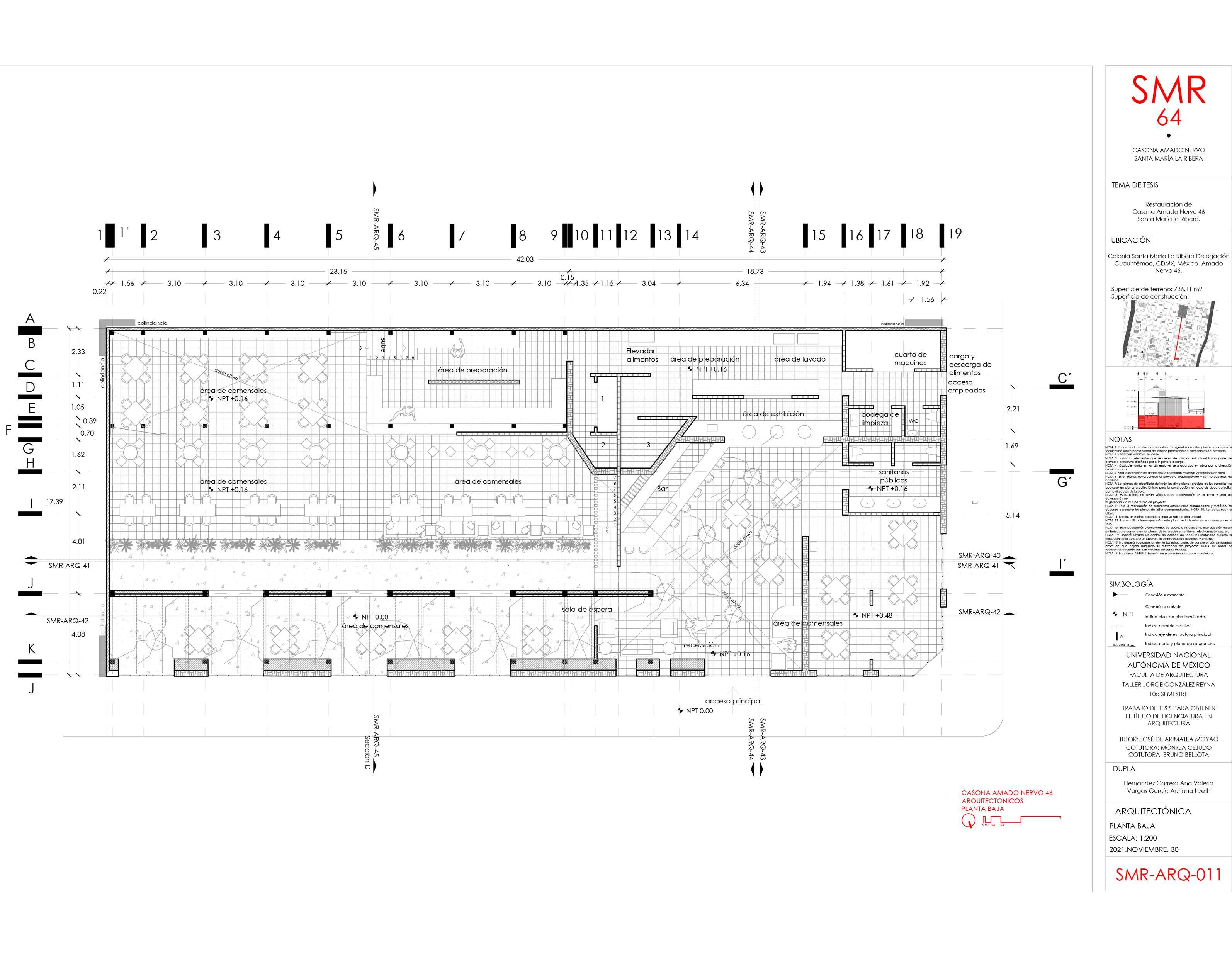
Tesis Restauración

Casona Amado Nervo SMR

A través de una investigación en Santa María La Ribera se identificó diversidad de inmuebles abandonados, de éste se eligió uno, antiguamente Casa de Amado Nervo, a través de un estudio de la zona se decidió proyectar un restaurante, preservando casi en su totalidad el inmueble.

Inmuebles patrimoniales abandonados

1. 48 Calle Amado Nervo

2. 43 calle Amado Nervo

3. 38 Calle Dr. Enrique González Martínez

4. 86 calle sabino

5. 109 Dr. Alt

6. 233 Salvador Diaz Miron

7. Díaz Mirón entre Cedro y Nogal

8. Eligio Ancona, 107

9. Mariano Azuela 232

10. Calle Cedro 162-152

11. Santa Maria la Ribera no. 68

12. 41 calle cedro

13. 40 Cedro, Santa María la Ribera.

14. 21 Manuel María Contreras, San Rafael

15. Manuel Carpio 137

16. 175 Manuel Carpio

TERRENO SELECCIONADO.

MAPA 1. Estudio de inmuebles abandonados, se visitó cada uno, se realizó encuesta, levantamiento fotográfico, investigación.

5 2 3 4 6 7 8 9 10 16 15 12 13 14 11
Estado actual Casona Amado Nervo 46, interior / Fotografía tomada en visita de sitio

IMÁGEN1,2y3. Sanitario, actualmente es un espacio abierto, con vegetación, dibujos a los largo de los muros y honestidad en el material desusmuros.

IMÁGEN 4. Losa deteriorada a través de los años, por la falta de mantenimiento. Patio doble altura con gran cantidad de cascajo.

Levantamiento fotográfico y croquis de planta alta.

Usar lápiz y papel al inicio de cada proyecto te permite conectar con el espacio, fluir las ideas más que en un espacio digital.

1, 2, 3 4 6 IMÁGEN5
IMÁGEN8 5 7 8
IMÁGEN6 IMÁGEN7
Predio
/ CREADO EN
GOOGLE DRIVE
Mapa análisis de vialidades
PS y

Vista, Modelo realizado en Sketchup, editada en PS

Modelo realizado en Sketchup, Planta arquitectónica en autocad, editada en PS

Tesis Restauración Casona Corte arquitectónico / PROGRAMA USADO AUTOCAD, PS.

PLANO 26. Planta arquitectónica / PROGRAMA USADO AUTOCAD

Parte importante del estudio del inmueble es identificar la construcción original, ya que a lo largo de los años se agregaron muros para limitar accesos y adaptar lo que hoy en día es lamentablemente un estacionamiento público.

Una vez identificadas, recuperar los espacios y alterar lo menos posible el diseño original. La imagen de arriba es la unión de lo nuevo con lo antiguo, respondiendo al respeto que se le tiene al inmueble, El restaurante busca generar conciencia de lo que llegó a ser CASA DE AMADO NERVO.

Corte arquitectónico / AUTOCAD y PS
Fachada principal Casona
A | H

Turn static files into dynamic content formats.

Create a flipbook
Issuu converts static files into: digital portfolios, online yearbooks, online catalogs, digital photo albums and more. Sign up and create your flipbook.