RIBA Part 1 Architecture Portfolio by Anas Javid

Page 1

Portfolio ba+practice
LSBU_ School of the Built Environment and Architecture

THE DOMESTIC PROJECT

CLIENT AND THE CITY

PRACTICE

SKETCHES

PHOTOGRAPHY

A community-led scenario where the relation-ships, thresholds, negotiations between a set of households and their urban and natural environment are tested. This project will contextualise within a specific site and collective client.

This project includes a domestic urban installation. This installation addresses architectural and urban space, as well as ways of public interaction, encouraging speculation on events and possible alternative uses. The installation applies the formal and architectural ideas from the research and the cosmographs to the design of an interactive urban experience.

I have been able to Study and Work as a Part 1 Architectural Assistant where I have gained a substantial amount of “real world” experience; here are some examples of projects.

A collection of sketches done in my own free time; as a hobby which I thoroughly enjoy and try develop.

A Gallery of Photographs taken by myself during holiday,traveltourism etc.
1 2 3 4 5

THE DOMES TIC PROJECT

A community-led scenario where the relation-ships, thresholds, negotiations between a set of households and their urban and natural environment are tested. This project will contextualise within a specific site and collective client. Among the set of drawings, one key parallel exploded bird eye projection will capture the ecology of relationships within the project, its interior and exterior materiality, key spatial concepts. This key drawing aims to show the enmeshments of thresholds, structures, architectural elements and natural ecologies that an architectural proposal can provoke.

Program: Academic

Date: 2022

Location: London, UK

Site

The DOMESTIC PROJECT Old Kent Road

OLD KENT ROAD

Old Kent Road is a major road in southeast London,Going through the London borough of Southwark,Originally Part of an Ancient track paved by the Romans. Now, part of the A2;A major road to Dover from London.

The road was significant in Roman times;connecting London to the coast at Richborough and Dover via Canterbury paving a route for pilgrims in the middle ages , when it was known as Kent Street, The route was also used by soldiers returning from the battle of Agincourt.

Program: Academic

Date: 2022

Location: London, UK

Analysis: Site Pallete,Client study,Precedents & Transport/Pollution Map.

Client Atlas

Precedents and Site analysis

Traffic and Transport

Pollution Study

THE DOMESTIC PROJECT Old Kent Road
--

Program: Academic

Date: 2022

Location: London, UK

Research: Interview Precedents,Collages and Precedent studies.

Case Studies and Research

Client & Precedents

Social Interaction

Interior Apartment Elevation

Precedent Studies

-
----57%
GAS STATION GAS STATION
THE DOMESTIC PROJECT Old Kent Road
----

Program: Academic

Date: 2022

Location: London, UK

--
Massing Models THE DOMESTIC PROJECT Old Kent Road

Program: Academic

Date: 2022

Location: London, UK

Massing Models

THE DOMESTIC PROJECT Old Kent Road

Single Parent Maisonette

General Single Parent General Teaching/ Counselling Retail Shop Nursery/ School Nursery/ School Maisonette Gymnasium Gymnasium

Program: Academic

Date: 2022

Location: London, UK

Softwares: Revit and Phtoshop

Scale 1:100@A1

:c 0 C CJ) 0 0 z G) ;o m < m (f) -I ;o m m -I MASSINGER STREET 0 r 0 ;,:;; m z -I ;o 0 )> 0 ,{----------■ ■ ■ (!) Green space General Gym Elderly Nursery Retail Key Spaces Proposed GF Plan THE DOMESTIC PROJECT Old Kent Road 1:100@A1

Program: Academic

Date: 2022

Location: London, UK

Softwares: Revit and Phtoshop

Scale 1:100@A1

Proposed FF Plan

Old Kent Road Green space General Gym Nursery Library Social Zone Key Spaces Single Parent 1:100@A1
THE DOMESTIC PROJECT

Program: Academic

Date: 2022

Location: London, UK

Softwares: Revit and Phtoshop

Scale 1:100@A1

Proposed SF Plan

THE DOMESTIC PROJECT Old Kent Road

1:100@A1

Single Parent General Gym Nursery Social Zones Library Key Spaces

Program: Academic

Date: 2022

Location: London, UK

Softwares: Revit and Phtoshop

Scale 1:100@A1

Proposed TF Plan

THE DOMESTIC PROJECT Old Kent Road General Gym Nursery Social Zone Key Spaces Single Parent Library 1:100@A1

Program: Academic

Date: 2022

Location: London, UK

Layouts THE DOMESTIC PROJECT Old Kent Road

Program: Academic

Date: 2022

Location: London, UK

Softwares: Revit and Phtoshop

Pro Elevations, Sec & ISO

THE DOMESTIC PROJECT Old Kent Road

Proposed Front and Rear Eleations

Proposed Section aa

Isometric Drawing
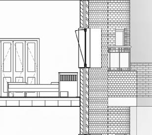
Brick Insulation Block Insulation Joists Timber Floor Board Sand/Cement Mi Insulated Plaster Board Flashing Over cill Compressable filler Timber Cladding Breathable Membrane Vapour Contact Layer Vapour Barrier 12.5mm Plaster Board Rigid Insulation with Sarking Membrane Vapour Control Layer Upstand Screed Waterproof Membrane Vapour Control Barrier Insulation Upstand Screed Steel Beam Solar Panel Timber Floor Board Sand/Cement Mix Insulation Joists Steel Beam Detail 1 1 20 Detail 2 1 20 Detail 4 1 20 Detail 3 1 20 CUT AWAY SECTION Detailed Cut Away Section with Details Brick Insulation Block Insulation Joists Timber Floor Board Sand/Cement Mix Insulated Plaster Board Flashing Over cill Compressable filler Timber Cladding Breathable Membrane Vapour Contact Layer Vapour Barrier 12.5mm Plaster Board Rigid Insulation with Sarkin Membrane WaterProof Membrane Insulation Vapour Control Layer Concrete Deck Upstand Screed Waterproof Membrane Vapour Control Barrier Insulation Upstand Screed Steel Beam Solar Panel Timber Floor Board Sand/Cement Mix Insulation Joists Steel Beam Detail 1 20 Detail 2 20 Detail 4 1 20 Detail 3 20 Drawings : Section Details Program: Academic Date: 2022 Location: London, UK Cut Away Section
Printed Model 3D Printed Model Details For various having roof nance they A green plants, of rainwater plants. systems Being research user areas dalism. green the of solar
3D
PROJECT
Details and Models THE DOMESTIC
Old Kent Road
3D Revit Model

This project includes a domestic urban installation. This installation addresses architectural and urban space, as well as ways of public interaction, encouraging speculation on events and possible alternative uses. The installation applies the formal and architectural ideas from the research and the cosmographs to the design of an interactive urban experience.

This allows us to focus on one domestic action and explore its urban relevance. Temporary or permanent, the installation can occupy the site as well as other areas of the neighbourhood. This offers the opportunity to speculate on the role of the architect in the use of public space and local urban experience. The design can be represented with different mediums, depending on the project, including images, collages, models or videos.

CLIENT AND THE CITY

Program: Academic

Date: 2022

Location: London, UK

Softwares: Revit/Phtoshop

1:100@A2

Proposed

Urban Installation

330 m² GYM 16 m² LOCKERS 10 m² WC/SHOWERS 18 m² LOCKERS 13 m² W/C 21 m² LOBBY 247 m² NURSERY 23 m² WC 18 m² KITCHEN 16 m² TOILETS 57 m² TECHING/LEARNING SPACE 39 m² SELF DEVELOPMENT ROOM 36 m² RELAXATION SPACE 13 m² LIBRARY 310 1 A103 2 A103 123 m² SWIMMING POOL/JACUZZI 1 : 1000
Scale: 1:100 @ A2 GF Plan
Old Kent Road

Program: Academic

Date: 2022

Location: London, UK

Softwares: Revit/Phtoshop

Scale 1:100@A2

Proposed ElevationsSections & renders

Urban Installation

I have been able to Study and Work as a Part 1 Architectural Assistant where I have gained a substantial amount of “real world” experience.I managed to work on a variety of projects from New Dwellings,Large home Extensions,Flat Schemes,Housing Schemes aswell as gaining on-Site experience and understanding how design becomes a reality through construction and its varying phases.

Being able to also learn and progress quickly, I was able to do Technical and building Reg drawings on a variety of projects independently; which I thoroughly enjoyed.

PRACTICE

Program: Residential

Date: 2023

Location: London, UK

Status: Proposal

Description: Construction of a top floor extension involving construction of 2 x luxury flats

Softwares: Sketchup/Lumion/Enscape

Top Floor Extension

Cheswick,London

Program: Residential

Date: 2023

Location: London, UK

Status: Proposal

Description: Construction of a top floor extension involving construction of 2 x luxury flats

Softwares: Sketchup/Lumion/Enscape

Top Floor Extension

Cheswick,London

Program: Residential Date: 2023

Location: London, UK Status: Proposal

Description: Construction of a top floor extension involving construction of 2 x luxury flats

Softwares: AutoCAD

Top Floor Extension Cheswick,London

FFL +4.000 FFL 0.000 FFL +5.540 ENTRANCE LVL FFL +6.170 FFL +8.850 FFL +9.000 FFL +11.700 FFL +11.870 FFL +14.550 FFL +14.790 FFL +16.110 SECTION B-B SCALE 1:50 1 2 [m] PROPOSED FLAT 7 FLAT 1 FLAT 10 FLAT 10 FLAT 4 FLAT 4 FLAT 3 COMMON STAIRWELL COMMON STAIRWELL COMMON STAIRWELL COMMON STAIRWELL COMMON STAIRWELL COMMON STAIRWELL FLAT 9 FLAT 11 FLAT 2 FLAT 14 FLAT 12 FLAT 6 FLAT 5 FLAT 12 FLAT 6 2500 KITCHEN RM 1.02 COMMON STAIRCASE RM 1.01 BEDROOM RM 1.08 BEDROOM RM 1.09 KITCHEN RM 1.15 LIVING/DINING RM 1.13 COMMON STAIRCASE RM 1.16 FLAT 16 FLAT 17 FLAT 17 GRP ROOFING MEMBRANE INSTALLED IN ACCORDANCE WITH MANUFACTURER'S RECOMENDATIONS 12MM WBP PLYWOOD 50MM RECTICEL POWERDECK (OR EQUAL AND APPROVED) PIR INSULATION VAPOUR CONTROL MEMBRANE NAILED TO BS8217 OR BITUMEN BONDED 18 mm WBP PLYWOOD TREATED SAWN TIMBER FIRRINGS TO FALL 1:60 253MM OPEN WEB POSI-JOISTS PS-10 TO S.E & MANUFACTURER'S SPECIFICATION 16MM RESILIENT BAR VCL LAYER X 15MM FIRELINE PLASTERBOARD TIGHTLY PACKED COMPRESSIBLE MINERAL WOOL CAVITY BARIEER TIGHTLY PACKED COMPRESSIBLE MINERAL WOOL CAVITY BARIEER TIGHTLY PACKED COMPRESSIBLE MINERAL WOOL CAVITY BARIEER 20MM FLOOR FINISHES TO CLIENT'S CHOICE 20MM CELECTA SCREEDBOARD 20 22MM T&G "BASE ™ UNDERFLOOR HEATING PANEL WITH UFH 18MM WBP PLYWOOD 253MM OPEN WEB POSI-JOISTS PS-10 TO MANUFACTURER'S & S.E. SPECIFICATION 250MM KNAUFF OMNIFIT MINERAL WOLL INSULATION INSULATION SUPPORT NETTING 60MIN ENVIROGRAF UNDEFLOOR FIRE BARRIER BETWEEN AND UNDER JOISTS W3 W3 W2 W2 W2 W4 400MM X 400MM X 32MM TOBERMORE STANDARD FLAG CONCRETE PAVING SLABS - NATURAL GREY 38MM RYNO PSG-1 PAVING SUPPORT GRATE BESPOKE SCREWLESS GALVANIZED STEEL FRAME FROM GLASS 360.CO.UK OR SIMILAR APPROVED 1800 125 125 125 125 125 2500 2500 1800 150 140MM THERMALITE SHIELD STANDARD BLOCK TO S.E. SPEC. ON DPC 140MM THERMALITE SHIELD STANDARD BLOCK TO S.E. SPEC. ON DPC 140MM THERMALITE SHIELD STANDARD BLOCK TO S.E. SPEC. ON DPC 140MM THERMALITE SHIELD STANDARD BLOCK TO S.E. SPEC. ON DPC 140MM THERMALITE SHIELD STANDARD BLOCK TO S.E. SPEC. ON DPC 400MM X 400MM X 32MM TOBERMORE STANDARD FLAG CONCRETE PAVING SLABS - NATURAL GREY 38MM RYNO PSG-1 PAVING SUPPORT GRATE BESPOKE SCREWLESS GALVANIZED STEEL FRAME FROM GLASS 360.CO.UK OR SIMILAR APPROVED STAINLESS STEEL HANDRAIL & POSTS WITH TOUGHENNED GLAZING FIXED T GALVANIZED FRAME BELOW. NOTE: USE APPROPRIATE PRIMER FOR CONNECTION BETWEEN GALVANIZED AND STAINLESS STEEL. STRUCTURE TO S.E. SPEC. 1.8M HIGH LAMINATED, OPAQUE PRIVACY BALUSTRADE TO ALL SIDE ELEVATIONS TO PREVENT FROM OVERLOOKING STAINLESS STEEL HANDRAIL & POSTS WITH TOUGHENNED GLAZING FIXED T GALVANIZED FRAME BELOW. NOTE: USE APPROPRIATE PRIMER FOR CONNECTION BETWEEN GALVANIZED AND STAINLESS STEEL. STRUCTURE TO S.E. SPEC. 1.8M HIGH LAMINATED, OPAQUE PRIVACY BALUSTRADE TO ALL SIDE ELEVATIONS TO PREVENT FROM OVERLOOKING W1 W1 W1 W1
& ALL
AND STRUCTURAL ELEMENTS ONLY ASSUMED AND ARE TO BE CHECKED ON SITE DUE TO LIMITED ACCESS DURING SURVEY GRP ROOFING MEMBRANE INSTALLED IN ACCORDANCE WITH MANUFACTURER'S RECOMMENDATIONS EXISTING FLOOR SUBSTRATE TO BE RETAINED. CODE 4 LEAD FLASHING CODE LEAD FLASHING CODE 4 LEAD FLASHING CODE LEAD FLASHING 150 20MM ENGINEERING BRICK SLIPS "BLUE-BROWN FORGE BRICK SLIPS MODA Collection" STAINLESS STEEL RENDER STOP STAINLESS STEEL RENDER STOP 150 150 20MM ENGINEERING BRICK SLIPS "BLUE-BROWN FORGE BRICK SLIPS MODA Collection" STAINLESS STEEL RENDER STOP WHITE TIMBER FACIA POWEDER COATED WHITE ALUMINIUM ROOF TRIM EXISTING ROOFING FELT TO BE REMOVED EXISTING ROOFING FELT TO BE REMOVED GRP ROOFING MEMBRANE INSTALLED IN ACCORDANCE WITH MANUFACTURER'S RECOMMENDATIONS EXISTING FLOOR SUBSTRATE TO BE RETAINED. WHITE FLOPLAST OGEE GUTTER AND DOWNPIPES "DALES" OR SIMILAR APPROVED ANODIZED BRISE SOLEIL MOUNTED WITH THERMALLY BROKEN FIXINGS FFL +15.248 MB PROJECT CLIENT DRAWING TITLE SCALE DRAWN DATE REVISION JOB NO. STAGE DWG NO. CHECKED SIZE REVISION DATE A3 NO. DR. INFO A1 THIS DRAWING IS THE SUBJECT OF COPYRIGHT AND DESIGN RIGHTS AND SHALL NOT BE REPRODUCED, LOANED, COPIED OR SUBMITTED TO ANY OTHER PARTY WITHOUT CONSENT. NOTES 1:25 PROPOSED SECTION B-B 1:50 MB BR 202337.BR.1204 202337 20 JUNE 202 KELVIN COURT, SPENCER ROAD, CHISWICK, W4 3SX PARTY WALL NOTICES TO BE SERVED WHERE APPROPRIATE DO NOT SCALE DRAWING ALL DIMENSION MUST BE CHECKED ON SITE PRIOR COMMENCING THE WORKS DRAWINGS TO BE READ IN CONJUCTION WITH APPROPRIATE STRUCTURAL ENGINEER /SPECIALIST DRAWING DRAWINGS TO BE APPROVED BY BUILDING CONTROL BEFORE COMMENCEMENT OF CONSTRUCTION WORKS SERVICE UNDERTAKERS TO BE NOTIFIED EXISTING CONNECTIONS TO BE CHECKED BEFORE DEVELOPMENT COMMENCES ALL WORKS TO BE CARRIED OUT IN ACCORDANCE WITH HEALTH AND SAFETY REGULATIONS ALL STEELWORK TO BE GALVANIZED AND PAINTED WITH "NULLIFIRE" OR SIMILAR APPROVED 60MIN INTUMESCENT PAINT ALL INTERRUPTED AREAS TO BE MADE GOOD TO MATCH EXISTING STRUCTURE TO STRUCTURAL ENGINEER'S DESIGN AND SPECIFICATION
NOTE: INTERNAL LAYOUT
LOADBEARING WALLS

Program: Residential Date: 2023

Location: London, UK

Status: Proposal

Description: Construction of a top floor extension involving construction of 2 x luxury flats

Softwares: AutoCAD

Top Floor Extension Cheswick,London

ROOF PLAN - GENERAL ARRANGEMENT SCALE 1:50 0 [m] PROPOSED OVERLAY POINT AOV (SMOKE VENT) TO MANUFACTURERS DESIGN 1.0 SQ.M VENT AREA AOV (SMOKE VENT) TO MANUFACTURERS DESIGN 1.0 SQ.M VENT AREA SVP WP WP WP WP SVP WP WP WP WP WP WP WP WP SVP SVP WP WP WP WP WP SVP A DWG NO: 202 A DWG NO: 202 B DWG NO: 201 B DWG NO: 201 1:60 FALL 1:60 FALL 1:60 FALL 1:60 FALL "DALES" OR SIMILAR APPROVED ANODIZED BRISE SOLEIL MOUNTED WITH THERMALLY BROKEN FIXINGS "DALES" OR SIMILAR APPROVED ANODIZED BRISE SOLEIL MOUNTED WITH THERMALLY BROKEN FIXINGS "DALES" OR SIMILAR APPROVED ANODIZED BRISE SOLEIL MOUNTED WITH THERMALLY BROKEN FIXINGS "DALES" OR SIMILAR APPROVED ANODIZED BRISE SOLEIL MOUNTED WITH THERMALLY BROKEN FIXINGS GRP ROOFING MEMBRANE INSTALLED IN ACCORDANCE WITH MANUFACTURER'S RECOMENDATIONS 12MM WBP PLYWOOD 150MM RECTICEL POWERDECK F (OR EQUAL AND APPROVED) PIR INSULATION VAPOUR CONTROL MEMBRANE NAILED TO BS8217 OR BITUMEN BONDED 18 mm WBP PLYWOOD TREATED SAWN TIMBER FIRRINGS TO FALL 1:60 253MM OPEN WEB POSI-JOISTS PS-10 TO S.E & MANUFACTURER'S SPECIFICATION 16MM RESILIENT BAR VCL LAYER 2 X 15MM FIRELINE PLASTERBOARD MB PROJECT CLIENT DRAWING TITLE SCALE DRAWN DATE REVISION JOB NO. STAGE DWG NO. CHECKED SIZE REVISION DATE A3 NO. DR. INFO A1 THIS DRAWING IS THE SUBJECT OF COPYRIGHT AND DESIGN RIGHTS AND SHALL NOT BE REPRODUCED, LOANED, COPIED OR SUBMITTED TO ANY OTHER PARTY WITHOUT CONSENT. NOTES 1:25 PROPOSED ROOF PLAN 1:50 MB BR 202337.BR.110 202337 20 JUNE 202 KELVIN COURT, SPENCER ROAD, CHISWICK, W4 3SX PARTY WALL NOTICES TO BE SERVED WHERE APPROPRIATE DO NOT SCALE DRAWING ALL DIMENSION MUST BE CHECKED ON SITE PRIOR COMMENCING THE WORKS DRAWINGS TO BE READ IN CONJUCTION WITH APPROPRIATE STRUCTURAL ENGINEER /SPECIALIST DRAWING DRAWINGS TO BE APPROVED BY BUILDING CONTROL BEFORE COMMENCEMENT OF CONSTRUCTION WORKS SERVICE UNDERTAKERS TO BE NOTIFIED EXISTING CONNECTIONS TO BE CHECKED BEFORE DEVELOPMENT COMMENCES ALL WORKS TO BE CARRIED OUT IN ACCORDANCE WITH HEALTH AND SAFETY REGULATIONS ALL STEELWORK TO BE GALVANIZED AND PAINTED WITH "NULLIFIRE" OR SIMILAR APPROVED 60MIN INTUMESCENT PAINT ALL INTERRUPTED AREAS TO BE MADE GOOD TO MATCH EXISTING STRUCTURE TO STRUCTURAL ENGINEER'S DESIGN AND SPECIFICATION

Program: Residential

Date: 2023

Location: London, UK

Status: Proposal

Description: Construction of a top floor extension involving construction of 2 x luxury flats

Softwares: AutoCAD

Top Floor Extension Cheswick,London

75MM SW TIMBER STUD COMPARTMENT WALL WITH 15MM FIRELINE PLASTERBOARD AND 15MM SOUNDBLOC TO EACH SIDE OF TIMBER STUDS AT 600MM CENTRES, GYPFRAME RB1 RESILIENT BARS FIXED HORIZONTALLY TO ONE SIDE AT 600MM CENTRES. 75MM ISOVER APR 1200 IN THE CAVITY.

TO ACHIEVE 60MIN FIRE RESISTANCE

SKIM, 62.5MM KOOLTHERM K118 WITH 12.5MM INTEGRATED PLASTERBOARD,150MM TIMBER STUDS TO S.E. SPEC.,100MM KOOLTHERM K112 50MM TIMBER STUD CAVITY

EXT. GRADE WBP,KINGSPAN NILVENT BREATHABLE MEMBRANE,

PWL16.12 PWL16.11 PWL16.09 PWL16.09 CH16.27 +14.76 +13.24 +14.78 PWL16.10 PWL16.10 PWL16.10 PWL16.10 TANK CH16.25 CH16.29 +14.81 +14.77 +14.78 DOWN +14.78 DOWN PIPE BELOW PIPES PIPES PIPES PIPES +13.43 +11.92 +11.94 OVERLAY POINT RDO RDO RDO RDO RDO RDO RDO +14.80 +14.80 +14.80 +14.80 +14.80 +14.80 WALKWAY THIRD FLOOR PLAN - GENERAL ARRANGEMENT SCALE 1:50 1 0 2 [m] PROPOSED KITCHEN RM 1.02 CORRDIROR RM 1.03 LIVING DINING RM 1.04 EN-SUITE RM 1.05 BATHROOM RM 1.06 COMMON STAIRCASE RM 1.01 EN-SUITE RM 1.12 MASTER BEDROOM RM 1.07 BEDROOM RM 1.08 MASTER BEDROOM RM 1.10 BATHROOM RM 1.11 BEDROOM RM 1.09 KITCHEN RM 1.15 CORRDIROR RM 1.14 FLAT 16 FLAT 17 LIVING DINING RM 1.13 991 991 991 991 991 991 125 125 1973 1972 1115 1108 DECK PIPE BELOW DECK TERRACE 15.9 SQ.M TERRACE 8.1 SQ.M TERRACE 8.57 SQ.M TERRACE 7.0 SQ.M WATER TANK TO BE RELOCATED AND TO MATCH EXISTING ENCLOSURE TO BE LINED WITH TRATED HORIZONTAL TIMBER SLATS TANK ENCLOSURE TO BEON TREATED TIMBER POSTS TO ALLOW FOR DRAINAGE UNDERNEATH WATER TANK TO BE RELOCATED AND TO MATCH EXISTING ENCLOSURE TO BE LINED WITH TRATED HORIZONTAL TIMBER SLATS GRP ROOFING MEMBRANE INSTALLED IN ACCORDANCE WITH MANUFACTURER'S RECOMENDATIONS 12MM EXTERNAL GRADE PLASTERBOARD 50MM XTRATHERM FR BGM (OR EQUAL AND APPROVED) VAPOUR CONTROL MEMBRANE NAILED TO BS8217 OR BITUMEN BONDED 19 mm PLYWOOD TREATED SAWN TIMBER FIRRING ON DPC TO FALL 1:60 EXISTING FLOOR SLAB TO BE RETAINED GRP ROOFING MEMBRANE INSTALLED IN ACCORDANCE WITH MANUFACTURER'S RECOMMENDATIONS EXISTING FLOOR SUBSTRATE TO BE RETAINED. GRP ROOFING MEMBRANE INSTALLED IN ACCORDANCE WITH MANUFACTURER'S RECOMMENDATIONS EXISTING FLOOR SUBSTRATE TO BE RETAINED. GRP ROOFING MEMBRANE INSTALLED IN ACCORDANCE WITH MANUFACTURER'S RECOMMENDATIONS EXISTING FLOOR SUBSTRATE TO BE RETAINED. 400MM X 400MM X 32MM TOBERMORE STANDARD FLAG CONCRETE PAVING SLABS - NATURAL GREY ON BESPOKE GALVANIZED FRAME. REFER TO SECTIONS FOR DETAILS. 1100MM HIGH STAINLESS STEEL BALUSTRADE WITH LAMINATED GLAZING 400MM X 400MM X 32MM TOBERMORE STANDARD FLAG CONCRETE PAVING SLABS - NATURAL GREY ON BESPOKE GALVANIZED FRAME. REFER TO SECTIONS FOR DETAILS. 1100MM HIGH STAINLESS STEEL BALUSTRADE WITH LAMINATED GLAZING 400MM X 400MM X 32MM TOBERMORE STANDARD FLAG CONCRETE PAVING SLABS - NATURAL GREY ON BESPOKE GALVANIZED FRAME. REFER TO SECTIONS FOR DETAILS. 1100MM HIGH STAINLESS STEEL BALUSTRADE WITH LAMINATED GLAZING TANK EXISTING SECRETE GUTTER TO BE LINED WITH GRP MEMBRANE AND 300MM UP THE EXISTING WALL. CODE 4 LEAD FLASHING TO BE INSTALLED OVER VERTICAL PART OF GRP MEMBRANE 400MM X 400MM X 32MM TOBERMORE STANDARD FLAG CONCRETE PAVING SLABS - NATURAL GREY ON BESPOKE GALVANIZED FRAME. REFER TO SECTIONS FOR DETAILS. 1100MM HIGH STAINLESS STEEL BALUSTRADE WITH LAMINATED GLAZING EXISTING SECRET GUTTER TO BE LINED WITH GRP MEMBRANE AND 300MM UP THE EXISTING WALL. CODE 4 LEAD FLASHING TO BE INSTALLED OVER VERTICAL PART OF GRP MEMBRANE EXISTING SECRETE GUTTER TO BE LINED WITH GRP MEMBRANE AND 300MM UP THE EXISTING WALL. CODE LEAD FLASHING TO BE INSTALLED OVER VERTICAL PART OF GRP MEMBRANE EXISTING SECRETE GUTTER TO BE LINED WITH GRP MEMBRANE AND 300MM UP THE EXISTING WALL. CODE 4 LEAD FLASHING TO BE INSTALLED OVER VERTICAL PART OF GRP MEMBRANE FD 30 S & SEL F CLOSER (PAS24) FD 30 FD 30 FD 20 FD 30 FD 30 FD 20 FD 30 S & SEL F CLOSER (PAS 24) FD 30 FD 30 FD 30 FD 30 FD 20 FD 20 4664 2064 2600 1110 1290 1530 1900 910 2000 1246 1600 910 1913 910 1600 1265 2150 910 1900 1530 1290 1110 27073 2600 2064 4336 3651 685 1370 480 1855 480 1370 1850 4286 2725 685 748 17884 441 910 350 910 2024 910 1824 910 1500 910 1824 910 1857 910 350 910 434 748 1030 685 1030 2745 4664 469 487 1092 4584 2X 15MM SKIMMED PLASTERBOARD BOXING TO ACHIEVE 60MIN FIRE RESISTANCE. 50MM MINERAL WOOL FOR SOUND INSULATION 7619 4043 2695 777 1415 1412 1360 737 1150 5934 1150 2310 100 920 1290 920 115 1575 150 920 1819 100 920 3480 3066 3266 600 3066 2466 1557 2842 1772 920 150 4500 4464 3066 5772 115 920 115 1150 1565 1565 2310 920 3571 4491 3030 4186 2107 777 940 940 920 3571 4491 3030 3066 4400 3380 920 100 1290 920 100 2310 2310 1550 1550 750 1360 1238 1407 864 311 310 1370 170 1850 4043 7473 3266 4754 4924 2991 2107 W1 W1 W1 W1 W1 W1 W1 W1 W 2 W 2 W2 W2 W3 W W3 W3 W 3 W 3 W 3 W 3 W 4 W 5 W 5 W 5 W 5 W5 W 1195 COMMON STAIRCASE RM 1.16 SD SD SD SD SD SD 3830 4534 1094 4605 261 3001 3146 275 1511 1797 1694 2203 2099 4161 4319 1703 HD HD CAVITY BARRIER CAVITY BARRIER 250 NEW SW TIMBER STAIRS WITH HANDRAIL TO BE COMPLIANT WITH CURRENT PART OF BUILDING REGULATIONS TO STAIRS MANUFACTURER'S DESIGN NEW SW TIMBER STAIRS WITH HANDRAIL TO BE COMPLIANT WITH CURRENT PART K OF BUILDING REGULATIONS TO STAIRS MANUFACTURER'S DESIGN WM DW F/F WM DW F/F SVP WP WP WP WP SVP WP WP WP WP WP WP WP WP SVP SVP WP WP WP WP WP SVP A DWG NO: 202 A DWG NO: 202 B DWG NO: 201 B DWG NO: 201 PIPE BELOW PIPE BELOW 1800MM HIGH LAMINATED,OPAQUE GLAZED PRIVACY SCREEN WITH STAINLESS STEEL POSTS AND FIXINGS 800MM HIGH LAMINATED,OPAQUE GLAZED PRIVACY SCREEN WITH STAINLESS STEEL POSTS AND FIXINGS 1800MM HIGH LAMINATED,OPAQUE GLAZED PRIVACY SCREEN WITH STAINLESS STEEL POSTS AND FIXINGS 1800MM HIGH LAMINATED,OPAQUE GLAZED PRIVACY SCREEN WITH STAINLESS STEEL POSTS AND FIXINGS EXISTING MASONRY WALLS (CONTRACTOR TO CHECK ALL LOADBEARING WALLS ON SITE) LEGEND: NEW 48mm GYPFRAME "C" STUD WALL WITH 50MM MINERAL WOOL INSULATION LINED WITH 1X 12.5MM BRITISH GYPSUM WALLBOARD EACH SIDE. BUILDUP TO ACHIEVE 30MIN FIRE RESISTANCE BOLTED DOUBLE JOISTS ABOVE TO S.E. SPECIFICATION 50 75 SPAN OF NEW FLOOR JOISTS FORMING COMPARTMENT FLOOR ABOVE TO S.E. DESIGN AND SPEC. STEEL BEAM ABOVE TO S.E. SPECIFICATION
BUILDUP
PLASTER
50MM BATTENS, KNAUFF AQUAPANEL OUTDOOR CEMENT BOARD 10MM K-REND SILICONE RENDER WALL TYPE 1 W1 WALL TYPE 3 W2 W3 WALL TYPE 3 PLASTER SKIM TO BOTH SIDES 2X15MM BRITISH GYPSUM FIRELINE BOARD (TOTAL NOMINAL MASS PER UNIT AREA 22 KG/M2) TO BOTH SIDES 2X 100MM TIMBER STUDS TO S.E. SPEC. 2X 100MM MINERAL WOOL BATTS OR QUILT (DENSITY 10-60KG/M2) BOTH SIDES. BUILDUP TO ACHIEVE 60MIN FIRE RESISTANCE W4 WALL TYPE 4 W5 WALL TYPE 5 NEW 48mm GYPFRAME "C" STUD WALL WITH 50MM MINERAL WOOL INSULATION LINED WITH 1X 12.5MM BRITISH GYPSUM WALLBOARD EACH SIDE. 18MM AQUA PANEL TILE BACKER BOARD TO BATHROOM SIDE & BEHIND PLASTERBOARD. BUILDUP TO ACHIEVE 30MIN FIRE RESISTANCE EMERGENCY ESCAPE LIGHTING TO BS:5499: PART 4:2013 (TO SPECIALIST'S SPEC) EXIT SIGNAGE IN ACCORDANCE WITH BS 5499: PART 4:2013 (TO SPECIALIST'S SPEC) SD HD HEAT DETECTOR (TBC. WITH SPECIALIST) AUTOMATIC FIRE DETECTION AND ALARM SYSTEM (TYPE LD2 MINIMUM GRADE D1) TO BS 5839:PART 6:2019 I.E. MAINS POWERED, INTERLINKED DETECTION IN KITCHEN AND PROTECTED ENTRANCE HALLWAY. (TBC. WITH SPECIALIST) SPAN OF NEW FLAT ROOF JOISTS ABOVE TO S.E. DESIGN AND SPEC. STEEL POST TO S.E. SPECIFICATION TIMBER POST TO S.E. SPECIFICATION PARTY WALL NOTICES TO BE SERVED WHERE APPROPRIATE DO NOT SCALE DRAWING ALL DIMENSION MUST BE CHECKED ON SITE PRIOR COMMENCING THE WORKS DRAWINGS TO BE READ IN CONJUCTION WITH APPROPRIATE STRUCTURAL ENGINEER /SPECIALIST DRAWING DRAWINGS TO BE APPROVED BY BUILDING CONTROL BEFORE COMMENCEMENT OF CONSTRUCTION WORKS SERVICE UNDERTAKERS TO BE NOTIFIED EXISTING CONNECTIONS TO BE CHECKED BEFORE DEVELOPMENT COMMENCES ALL WORKS TO BE CARRIED OUT IN ACCORDANCE WITH HEALTH AND SAFETY REGULATIONS MB PROJECT CLIENT DRAWING TITLE SCALE DRAWN DATE REVISION JOB NO. STAGE DWG NO. CHECKED SIZE REVISION DATE A3 NO. DR. INFO A1 THIS DRAWING IS THE SUBJECT OF COPYRIGHT AND DESIGN RIGHTS AND SHALL NOT BE REPRODUCED, LOANED, COPIED OR SUBMITTED TO ANY OTHER PARTY WITHOUT CONSENT. NOTES 1:25 PROPOSED THIRD FLOOR PLAN 1:50 MB BR 202337.BR.1108 202337 20 JUNE 202 KELVIN COURT, SPENCER ROAD, CHISWICK, W4 3SX ALL STEELWORK TO BE GALVANIZED AND PAINTED WITH "NULLIFIRE" OR SIMILAR APPROVED 60MIN INTUMESCENT PAINT ALL INTERRUPTED AREAS TO BE MADE GOOD TO MATCH EXISTING
NEW
18MM

Program: Residential

Date: 2023

Location: West London, UK

Status: Planning

Description: Proposed Side extension and internal alterations

Softwares: Autocad

Side Extension

Bushey, Hertfordshire

HALL DINING UTILITY ROOM 1 PROPOSED GROUND FLOOR PLAN 0 [m] 1 2 PROPOSED ROOF PLAN SCALE 1:50 @ A1 & 1:100 @ A3 [m] 0 2 SCALE 1:50 @ A1 & 1:100 @ A3 TIMBER DECKING TIMBER DECKING LIVING KITCHEN WC MB PROJECT CLIENT DRAWING TITLE SCALE DRAWN DATE REVISION JOB NO. STAGE DWG NO. CHECKED SIZE REVISION DATE A3 NO. DR. INFO A1 THIS DRAWING IS THE SUBJECT OF COPYRIGHT AND DESIGN RIGHTS AND SHALL NOT BE REPRODUCED, LOANED, COPIED OR SUBMITTED TO ANY OTHER PARTY WITHOUT CONSENT. NOTES 1:50 PROPOSED FLOOR PLANS 1:100 MB P 202221.P.102 202221 MAY 2022 8. AVENUE RISE, BUSHEY, WD23 3AS

Program: Residential

Date: 2023

Location: West London, UK

Status: Planning

Description: Proposed Side extension and internal alterations

Softwares: Autocad

Side Extension

Bushey, Hertfordshire

[m] PROPOSED REAR ELEVATION 2 1 SCALE 1:50 @ A1 & 1:100 @ A3 2817 3075 3059 C:\Users\BOA1\Dropbox\Atelier Architect's shared workspace\Projects\2022\(A.41.202224)127A Hamilton Terrace\48_ivy hedge ture-seamless_hr.jpg 1 PROPOSED SIDE ELEVATION SCALE 1:50 @ A1 & 1:100 @ A3 [m] 6 AVENUE RISE 2 2700 MB PROJECT CLIENT DRAWING TITLE SCALE DRAWN DATE REVISION JOB NO. STAGE DWG NO. CHECKED SIZE REVISION DATE A3 NO. DR. INFO A1 THIS DRAWING IS THE SUBJECT OF COPYRIGHT AND DESIGN RIGHTS AND SHALL NOT BE REPRODUCED, LOANED, COPIED OR SUBMITTED TO ANY OTHER PARTY WITHOUT CONSENT. NOTES 1:50 PROPOSED REAR & SIDE ELEVATIONS 1:100 MB P 202221.P.303 202221 MAY 2022 8. AVENUE RISE, BUSHEY, WD23 3AS

Program: Residential

Date: 2020

Location: London, UK Status: Built

Description: One 1 x bedroom bungalow with associated cycle / car parking, refuse and amenity space.

Softwares: Autocad

Redbridge

AMENITY 59.5 SQ M AMENITY 171.10 SQ M AMENITY 11.7 SQ M BED BINS STR BATH KIT LIVING/DINING
BATH KIT LIVING/DINING BED STR D.1.01 D.1.02 D.1.03 D.1.04 D.1.05 D.1.06 AMENITY 59.5 SQ M MJ AMENITY 11.7 SQ M MJ LEVELLED ACCESS BOLLARD 12.5mm plasterboard dry-lining 100mm blockwork 100mm cavity, fully filled with solid insulation to achieve current U-Value. 102mm facing brickwork EXTERNAL RENDER CAVITY WALL SEPARATING WALL BETWEEN DWELLINGS INTERNAL WALL LOAD BEARING 100mm blockwork 12.5mm plasterboard and set (moisture resistant in bathrooms) 12.5mm plasterboard and set (moisture resistant in bathrooms) 38 89mm SW studs at 600mm c/c with 25mm mineral wool batts (min. 10 kg/m3) between studs) INTERNAL PARTITION 'U' value = 0.30 W/m2K 8mm cement/sand render with scratched finish 12.5mm plasterboard dry-lining DWELLING SIDE 8mm cement/sand render with scratched finish 12.5mm plasterboard dry-lining DWELLING SIDE FOR BUILDING REGULATIOS
NEW DWELLING
PROPOSED SECTION

Sketches

Description: A collection of Photographs which have been taken during trips,visits,holiday,tourism etc.

London,England

Photography

Madinah,Saudi Arabia

London,England Islamabad,Pakistan

AJK,Pakistan AJK,Pakistan AJK,Pakistan AJK,Pakistan Malam
Jabba,Pakistan
Bucharest, Romania
ba+practice LSBU_ School of the Built Environment and Architecture

Turn static files into dynamic content formats.

Create a flipbook
Issuu converts static files into: digital portfolios, online yearbooks, online catalogs, digital photo albums and more. Sign up and create your flipbook.