CASA AM

Page 1

AM
VIVIENDA UNIFAMILIAR
Arquitectura | Diseño Interior | Paisajismo

En la localidad de Curuzú Cuatiá, en Corrientes, se encuentra una vivienda unifamiliar que destaca por su belleza y singularidad. En este breve recorrido, exploraremos los rasgos distintivos de esta casa, su relación con el entorno y la atmósfera que la hace única en el contexto del encantador litoral argentino

AM
Introducción CASA

Tabla de contenido

Sobre nosotros ...................................................................

El quincho ............................................................................

Cocina....................................................................................

Arquitectura integral.......................................................

Dormitorios ........................................................................

Vivienda......................................................... .....................

Espacios - organizacion - zonas....................................

SOBRE NOSOTROS...

Nuestro estudio se enorgullece de presentar una vivienda unifamiliar excepcional ubicada en Curuzú Cuatiá, Corrientes. En esta breve presentación, destacaremos los aspectos más destacados de este proyecto arquitectónico, así como nuestra visión y enfoque en la creación de espacios que armonicen con el entorno natural y reflejen la identidad cultural del litoral argentino.

Como estudio, en este proyecto brindamos:

Diseño Integrado: Desarrollamos un diseño integral que optimiza el espacio en un terreno angosto, maximizando la funcionalidad y el confort tanto en el quincho como en la casa.

Planificación Eficiente: Ejecutamos el proyecto en dos etapas para adaptarnos a las necesidades del cliente y al terreno disponible, comenzando con la construcción del quincho y luego la de la casa principal.

Creatividad en Espacios Limitados: Demostramos nuestra capacidad para trabajar con terrenos de dimensiones reducidas, aprovechando cada metro cuadrado de manera inteligente y creativa.

Armonía Estética y Funcional: Logramos una armonía estética entre el quincho y la casa, manteniendo coherencia en el diseño y asegurando una transición fluida entre ambos espacios.

Soluciones Adaptadas al Entorno: Consideramos el entorno natural y las características del litoral argentino en el diseño, utilizando materiales y elementos que se integran armónicamente con el paisaje circundante.

El quincho y sus espacios...

El quincho representa un espacio multifuncional diseñado para reuniones y eventos, con un amplio comedor que se extiende hacia el exterior, permitiendo una conexión fluida con el exterior. Además, cuenta con dos dormitorios que inicialmente sirven como residencia temporal para los habitantes hasta la finalización de la casa principal, pero posteriormente se convierten en cómodos dormitorios para huéspedes, equipados con un baño principal para mayor comodidad.

El diseño interior del living-comedor se caracteriza por su ambiente acogedor, que incluye un patio interno para proporcionar ventilación e iluminación natural.

El quincho también cuenta con su propio lavadero y cocina, además de una parrilla al aire libre que invita a disfrutar de asados y comidas al aire libre en compañía de familiares y amigos.

INTERIOR

El espacio de comedor y living está diseñado para ofrecer un ambiente acogedor y funcional.

El área del comedor cuenta con suficiente espacio para acomodar a los invitados cómodamente durante las comidas, mientras que el living ofrece un entorno relajado para socializar y disfrutar de momentos de ocio. La decoración se centra en crear una atmósfera cálida y acogedora, con muebles confortables y detalles cuidadosamente seleccionados.

En conjunto, ofrecen un lugar ideal para compartir momentos especiales con familiares y amigos.

COCINA

La cocina diseñada con un mueble completo que ofrece todos los espacios de almacenamiento necesarios para organizar utensilios, electrodomésticos y alimentos de manera eficiente. Los gabinetes superiores e inferiores brindan un amplio espacio para guardar platos, ollas, sartenes y otros elementos de cocina, mientras que los cajones permiten mantener ordenados utensilios más pequeños.

INTERIOR

Además, la cocina cuenta con una despensa incorporada para almacenar alimentos no perecederos y otros suministros. La distribución de los muebles está pensada para facilitar el flujo de trabajo en la cocina, con una disposición estratégica que optimiza el espacio y mejora la funcionalidad.

LAVADERO

Cuenta con un completo conjunto de muebles de lavandería que incluye un lavabo, espacio de almacenamiento para productos de limpieza, así como una zona de trabajo para lavado a mano.

ARQUITECTURA INTEGRAL |

Cada espacio ha sido cuidadosamente diseñado con muebles integrados para maximizar la funcionalidad y el confort.

DORMITORIOS

Es un espacio cuidadosamente diseñado para brindar el máximo confort y comodidad a sus ocupantes.

Con una distribución pensada para optimizar el espacio disponible, el dormitorio cuenta con una cama matrimonial de tamaño generoso, acompañada de mesitas de noche a cada lado.

Los muebles de almacenamiento integrados, como armarios empotrados y cajoneras, ofrecen espacio más que suficiente para guardar la ropa y los objetos personales de manera organizada. Cuenta tambien con vestidor |

La decoración del dormitorio se centra en crear una atmósfera relajante y acogedora, con tonos neutros y detalles cuidadosamente seleccionados. Además, el dormitorio cuenta con iluminación regulable para adaptarse a diferentes necesidades y preferencias, así como con cortinas opacas para garantizar el confort.

VIVIENDA

La vivienda se destaca por su exterior elegante y sobrio, caracterizado por detalles en colores neutros y predominio del blanco. | La fachada presenta líneas limpias y modernas, con un diseño que refleja un estilo contemporáneo y minimalista.

Los colores neutros, especialmente el blanco, aportan luminosidad y amplitud al exterior de la casa, creando una sensación de serenidad y equilibrio visual.

Además, los detalles sobrios realzan la arquitectura de la vivienda, resaltando su belleza y su integración armoniosa con el entorno natural.

ESPACIOS - ORGANIZACION - ZONAS

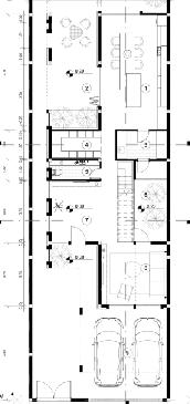
La planta baja de la vivienda ofrece una distribución funcional y fluida que maximiza el confort y la comodidad de sus habitantes. Al ingresar, nos recibe un amplio espacio de recibimiento que da la bienvenida con calidez y amplitud. Este espacio se conecta con un patio interior, que actúa como el corazón de la casa, proporcionando luz natural y ventilación a los distintos ambientes y sirviendo como punto de encuentro junto a la escalera que articula ambos niveles. A un lado del patio se encuentra el área de cocina, que integra el lavadero y un depósito adicional, ofreciendo una zona completa para las tareas domésticas, mientras que en el otro lado del patio se sitúa el área social de living estar, diseñada para relacion y entretenimiento.

PRIMER PISO

PLANTA BAJA

LIVING - ESPACIO DE ESTAR INTERIOR

ESPACIO DE RECIBIMIENTO INTERIOR

AREA DE COCINA - COMPLETA INTERIOR

PLANTA ALTA

La planta alta de la vivienda ofrece un área de llegada que se abre a un espacioso playroom o estudio, ideal para actividades recreativas o momentos de concentración. Este espacio también puede funcionar como una zona de lectura, proporcionando un ambiente tranquilo y propicio para sumergirse en un buen libro. Desde ahi, se va a distribuir a tres dormitorios bien distribuidos: uno principal y dos secundarios. El dormitorio principal destaca por su amplitud y comodidades, ofreciendo un lugar privado para sus ocupantes con todas las comodidades necesarias para el descanso. Los dormitorios secundarios, por su parte, brindan confort y privacidad a sus ocupantes, garantizando un ambiente propicio para el descanso y la intimidad.

En conjunto, la planta alta de la vivienda ofrece un equilibrio perfecto entre funcionalidad, comodi-

INTERIOR

DORMITORIO EN SUITE

DORMITORIO INTERIOR DORMITORIO

SANITARIO DEL DORMITORIO PRINCIPAL

CUENTA CON DOS DORMITORIOS SEC.

con sus respectivos espacios de guardado | espacio flexible | sector de estudio

EXTERIOR

Turn static files into dynamic content formats.

Create a flipbook
Issuu converts static files into: digital portfolios, online yearbooks, online catalogs, digital photo albums and more. Sign up and create your flipbook.
CASA AM by Ana Piasentini - Issuu