4th Sem- Museum

Page 1

DESIGN PORTFOLIO

SUBMITTED BYANANYA 2B

AP-

● SITE ANALYSIS

● CONCEPT ● AREA PROGRAMMING

● SITE PLAN ● FLOOR PLANS ● ELEVATIONS ● SECTIONS ● MODEL

INDEX ● INTRODUCTION

INTRODUCTION

Overview

An institution that cares for (conserves) a collection of artefacts and other objects of artistic, cultural, historical, or scientific importance. Museum design exercise needs to take into consideration the type of museum which will indicate the types of ancillary functions one might need. Understanding the types of exhibition space one might need to design. Circulation is the crux of successful design for museum which should be given utmost importance.

Aim: To create a space unilaterally critical to the local area and the general public to create a space on the theme “Museum of Natural History” for the community and society.

Objective:To incorporate design thinking, that is a derivation of three main objectives. To work on a context based design problem considering site surrounding, cultural and social context. Focus on Form and evolution Architects style or philosophy, or you can come up with your philosophy inspired by some other architects style. Create contemporary interventions and additions where appropriate which are visually stunning.

9m

Tentative Area Programme (can be included)

1. Entrance area with Reception, security check, Ticket and baggage room, help centre etc

2. Administration area Staff office, Director and deputy director office. Curator Office. Meeting Room, Visitor Support Office, File Room, Audio Guide, Conference Room, Print Room, Server Room. Store. Pantry, Toilet etc

3. Workshops like Carpentry and paint unit, Wood workshop, Terracotta workshop, Metal workshop, Art workshop. Also include ancillary spaces like Artist office, Purchase office. Photocopier, artefact processing and holding room, storage area etc.

4. Exhibition galleries (open and closed areas) like Photography, Manuscript, AV rooms, Tribal, Geology, Zoology, Botany, Mineralogy, Coins vault, Miniature paintings, Children's Museum, aquarium. Also include Exhibition support staff, Office etc.

5. Library

6. Auditorium (capacity 150-200 people)

7. Amenities like Restaurant, Museum shop, OAT, Convention centre, amphitheatre, Seminar hall. Also include Toilets, storage space etc.

8. Services like Maintenance, Janitor room, Housekeeping, Store etc.

9. Parking in Basement, for VIP, Staff parking

Concept

AIM- TO DESIGN A MUSEUM WHILE CREATING A CLIMATE RESPONSIVE BUILDING AND AN ENVIRONMENT THAT RADIATES ROOTS OF NATURE.

OBJECTIVE: - PROVIDING THERMAL COMFORT.PROVIDING MAXIMUM AMOUNT OF NATURAL LIGHT TO ENTER THE BUILDING.

- AESTHETICALLY PLEASING DESIGN . - PROVIDE OPEN SPACES

AUDITORIUM

BUBBLE DIAGRAMGALLERIES

RESTRICTED ZONE

CONCEPT: THE MAIN THEME OF THE MUSEUM IS SHAPPES IN NATURE AND NATURAL MATERIALS. THE SHAPES DERIVED FROM NATURE SHOWS HARMONY BETWEEN ARCHITECTURE AND NATURE.

SITEZONING

THE SWAN POSSESS SOME VERY INTERSTING SHAPES IN ITS FORM.

RECEPTION AND ADMIN AREA RESTRICTED ZONE GALLERIES AUDITORIUM CAFETERIA VEHICULAR MOVEMENT PADESTRIAN MOVEMENT S GREEN AREAS
CAFE
RECEPTION
AREA ADMIN
AND PUBLIC

AREA PROGRAMMING

PLOT- 24,157

GROUND COVERAGE= 35% OF PLOT =8455 SQ.M

GROUND COVERAGE ACHIEVED=4899 SQ. M

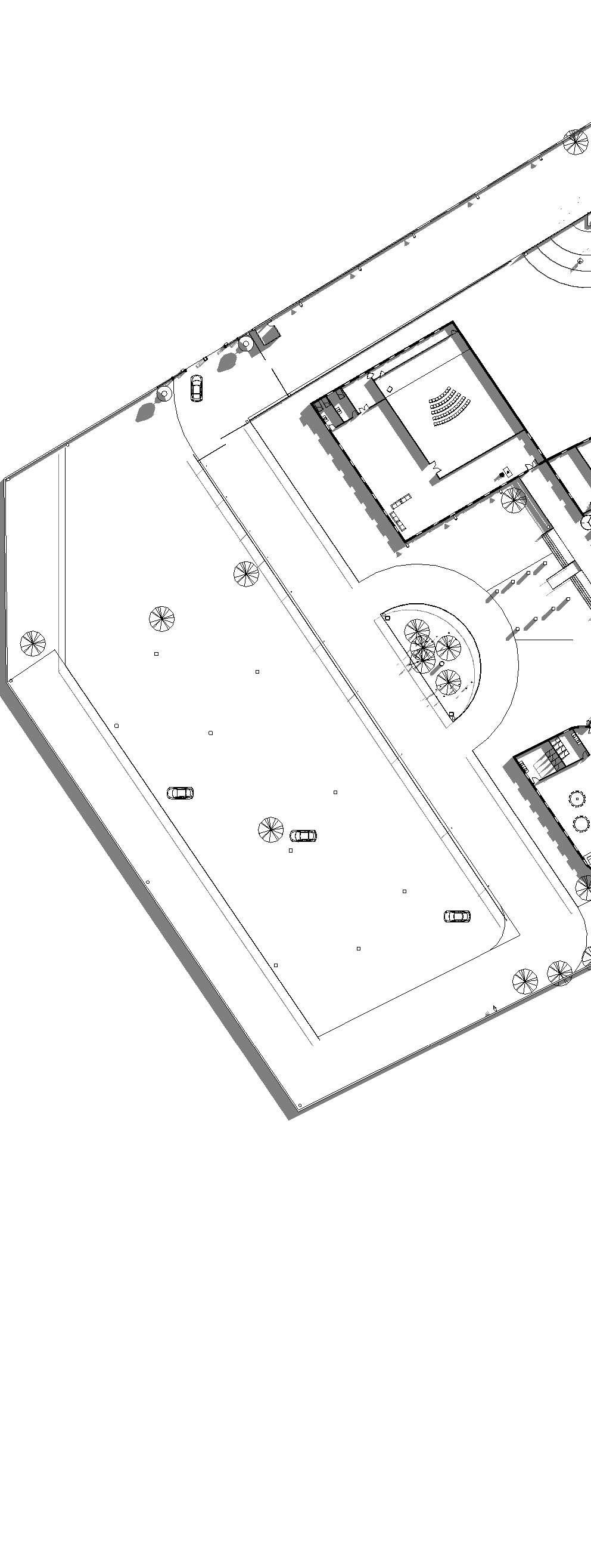
SHEETTITLE PROJECT REMARKS SCALE ANANYASINGH 2B MUSEUMOF NATURALHISTORY SITE
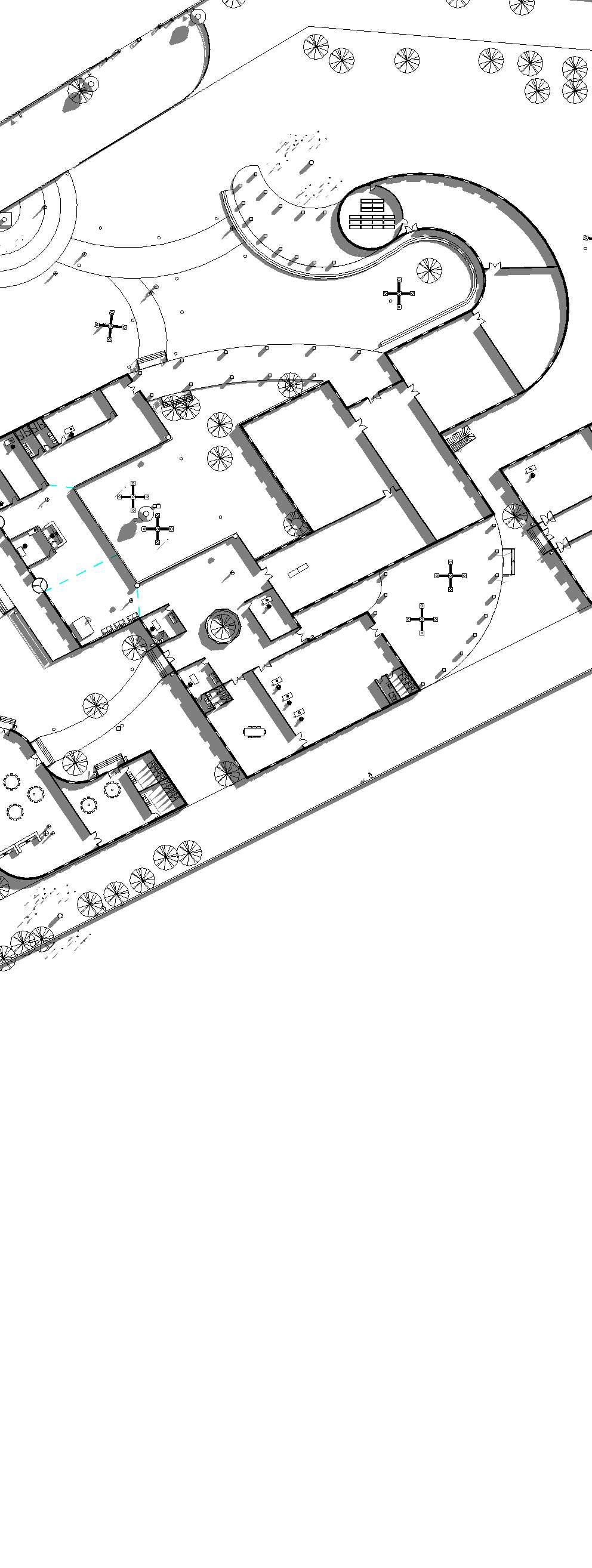
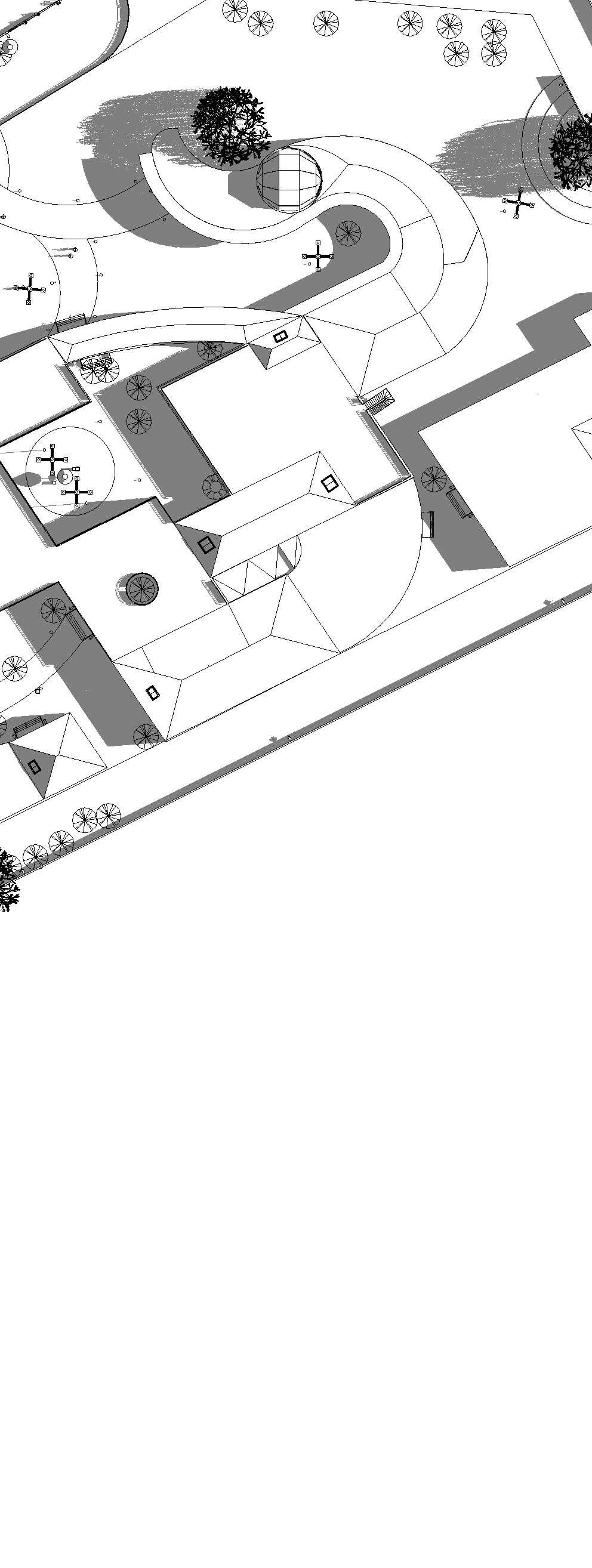
A100 2 A100 1 A100 3 A100 4 1 A101 A101 North 4507 4507 4507 4507 4507 4507 4507 SHEETTITLE PROJECT REMARKS SCALE ANANYASINGH 2B 1500 MUSEUMOF NATURALHISTORY SITEPLAN 1500 1SITEPLAN
A100 2 A100 1 A100 3 A100 4 1 A101 2 A101 123m² WAITINGAREA 157m² RECEPTION 159m² LOBBY 277m² FOYER 47m² BAGGAGE48m² SECURITY 11m² TOILETS 11m² TOILETS 48m² GIFTSHOP 24m² TICKETS 20m² CURATOROFFICE m² Room 24m² DIRECTOROFFICE m² TOILET m² TOILETS m² Room m² Room 1m² Room 35m² HVACAND RECORDSROOM 129m² MEETINGROOM 264m² LIBRARY 247m² TRIBALGALLERY 300m² ANTHROPOLOGY 239m² BOTANY 217m² MINERALOGY 193m² AQUARIUM NotEnclosed SPACEGALLERY 247m² FOYER 146m² LAB 149m² WORKSHOP3 146m² WORKSHOP2 145m² WORKSHOP3 46m² CURATIONROOM 11m² PANTRY 48m² STORAGE m² TOILETS m² TOILETS m² Room 1m² Room m² Room m² Room 2m² Room 2m² Room 304m² CAFETERIA 101m² STAFFROOM 23m² TOILETS 24m² TOILETS 19m² TOILET 28m² TOILET 290m² AUDITORIUM WAITINGAREA 280m² AUDITORIUMHALL 23m² GREENROOM 12m² TOILET 11m² TOILET 22m² BACKSTAGE 450 450 450 450 450 600 76m² PLANETERIUM DOME PARKING DROP OFF SHEETTITLE PROJECT REMARKS SCALE ANANYASINGH 2B 1500 MUSEUMOF NATURALHISTORY GROUNDFLOOR PLAN 1:500 1GROUNDFLOORPLAN North
GROUNDLINE 0 Level1 4450 PLINTH 450 Level2 7578 GROUNDLINE 0 Level1 4450 PLINTH 450 Level2 7578GROUNDLINE 0 Level1 4450 PLINTH 450 Level2 7578 GROUNDLINE 0 Level1 4450 PLINTH 450 Level2 7578 A100 2 A100 1 A100 3 A100 4 N E S W 03:54 20:14 08:30 30 June North SHEETTITLE PROJECT REMARKS SCALE ANANYASINGH 2B Asindicated MUSEUMOF NATURALHISTORY ELEVATIONS 1:500 1East 1:500 2North 1:500 3South 1:500 4West 1:50005Site
GROUNDLINE 0 Level1 4450PLINTH 450 Level2 7578 3128 GROUNDLINE 0 Level1 4450PLINTH 450 Level2 7578 GROUNDLINE 0 Level1 4450 PLINTH 450 Level2 7578 GROUNDLINE 0 Level1 4450 PLINTH 450 Level2 7578 A100 2 A100 1 A100 3 A100 4 N E S W 03:54 20:14 08:30 30 June SHEETTITLE PROJECT REMARKS SCALE ANANYASINGH 2B Asindicated
NATURALHISTORY
1500 1Section1 1500 2Section2 1500 3Section3 1500 4Section4 1:50005SITE
MUSEUMOF
SECTIONS

EXTERIORVIEWOFCAFETERIA

INTERIORVIEWOFCAFETERIA

SHEETTITLE PROJECT REMARKS SCALE ANANYASINGH 2B MUSEUMOF NATURALHISTORY CAFETRIA

RECEPTIONDESK

MUSEUMOF NATURALHISTORY

RECEPTIONAND ADMIN

ADMINAREAANDWAITINGAREA

SHEETTITLE PROJECT REMARKS SCALE ANANYASINGH 2B

VIEWFROMPARKINGLOT

DROPOFFVIEWFROMROADENTRY

VIEWOF

SITTING AREA

MUSEUMOF NATURALHISTORY

VIEWS(EXTERIOR)

VIEWOFSITTINGAREA

VIEWOFGARDENAREA

PROJECT REMARKS SCALE
2B
SHEETTITLE
ANANYASINGH
SHEETTITLE PROJECT REMARKS SCALE ANANYASINGH 2B MUSEUMOF NATURALHISTORY EXTERIORVIEWOF MUSEUM

Thanks!

Turn static files into dynamic content formats.

Create a flipbook
Issuu converts static files into: digital portfolios, online yearbooks, online catalogs, digital photo albums and more. Sign up and create your flipbook.