Portfolio-1

Page 1


L-RESIDENCE

PUBLIC-TOILET

WORK

• I was involved in different stages of design. My main contribution was Concept –Designs, Designdevelopment and preparation of working drawings.

• I had worked on Residences,Commerical & Public Buildings and gained knowledge through work

Works carried out at K.P. Padmanabha Architects

WORK

• I had worked on three METRO-STATION Buildings of Bangalore-Metro.

• The Station design is carried out after Analysis of existing Site & it’s surrounding, and it’s context .

• I was involved in different stages of Concept-Design, Detail Designdevelopment, preparation of working drawings and Design Discussion with Consultants & Authority.

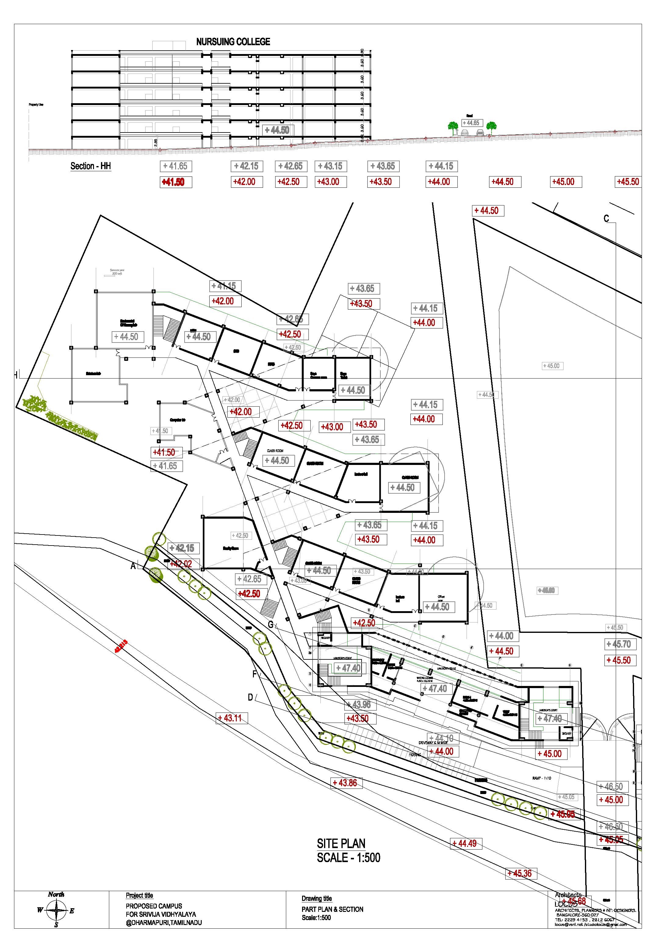
DNC CAMPUS – NURSUING COLLEGE BLOCK

• It involves creating a Master plan for Existing Arts College and new blocks, to accommodate growing demands in near future.

• The Campus is designed on the principles of SUSATAINABILITY & LEGIBILTY. While planning the Campus, the Topography is also considered and Bunds are planned to prevent Soil Erosion & to increase water retention.

PART PLAN & SECTION

DETAIL PLAN & SECTION

DNC CAMPUS – ENTRANCE BLOCK

• The new blocks are planned after detail study of Topography, Climate ,Design –Programme and Stakeholder discussion.

• Entrance Block consist of three different blocks of similar module having different function. It take cares of Entrance ,Admin .,Clininc and Canteen related functions.

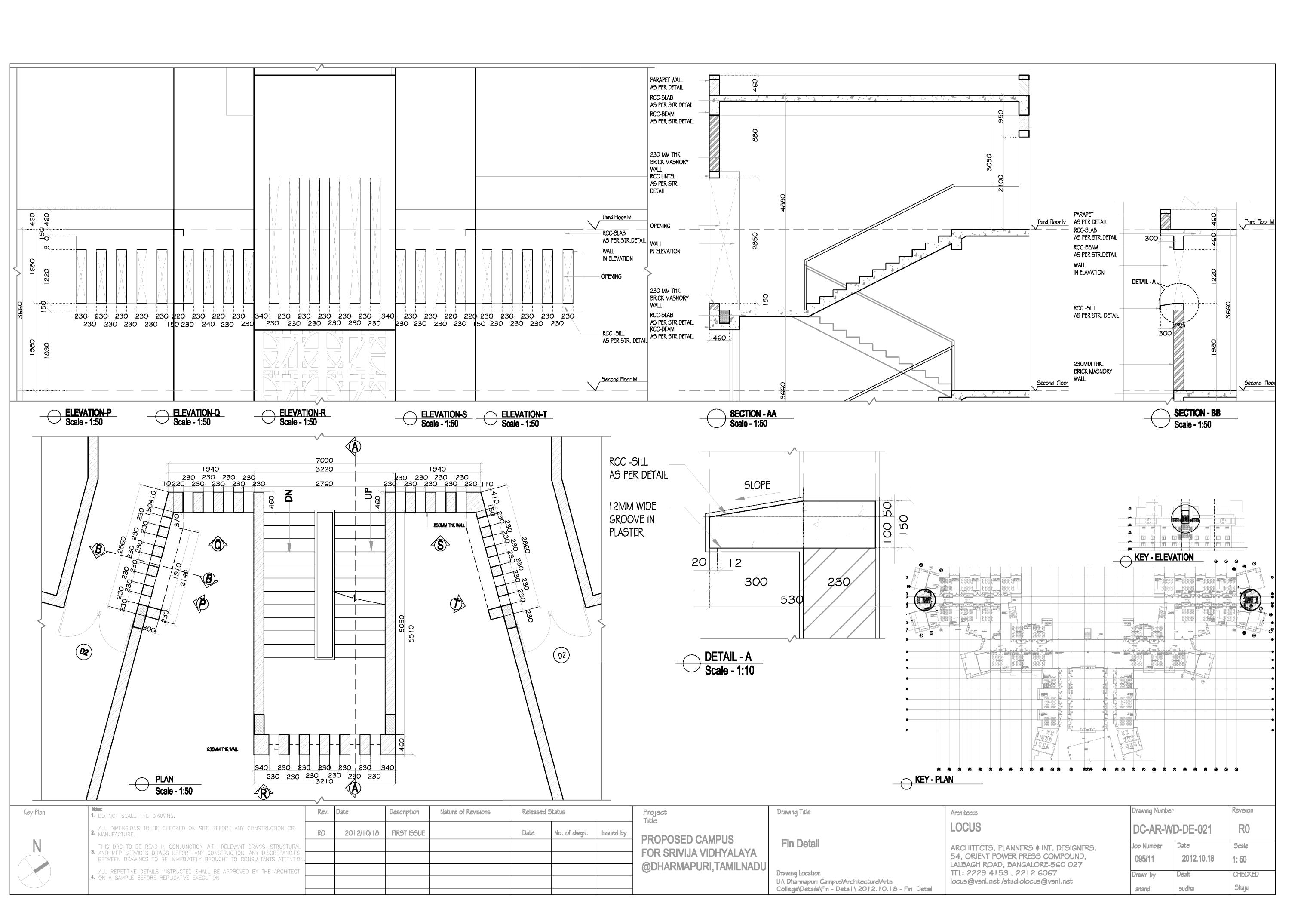
TOILET DETAIL

DNC CAMPUS – Details

• I was involved in Conceptual Master Plan for this campus. Also I have designed the Nursing College and Entrance Block in this campus after the Programme formulation and discussion with all Stakeholder.

• Also, responsible for Details of Arts-College Block which are necessary for the execution of project

IIM CAMPUS at RAIPUR

• The Campus is designed after careful analysis of Topography, Site & Surroundings, Culture, Context and Climate Data.etc.

• The campus is designed on the basis of LIVE & WORK and SUSTAINABILITY.

• I was involved in a Team which is responsible for preparation of Conceptual Master Plan for this campus. Also I have designed the Academic ,Faculty , Admin & Entrance Block in this campus after the Programme formulation, DataCollection and necessary research required for it.

• Office won National-Level Design Competition

IISc CAMPUS

• The Campus is designed after careful analysis of Topography, Site & Surroundings, Culture, Context and Climate Data.etc.

• The campus is designed on the basis of CONNECTED –LOOP Concept.

• I was involved in a Team which is responsible for preparation of Conceptual Master Plan, Data-Collection and necessary Research required for the design of this campus.

EAC COLONY REDEVELOPMENT at RAIPUR

• The Complex is designed after careful analysis of Topography, Site & Surroundings, Culture, Context and Climate Data.etc.

• The campus is designed on the basis of MINIMAL BUILDING FOOT PRINT & TO CREATE MEANINGFUL PUBLIC PLAZZA.

• Thus it is planned to achieve maximum impact with minimum intervention in an complex urban setting.

• I was involved in a Team which is responsible for preparation of Conceptual Master Plan for this campus. Also I have designed the Govt.Office,Residential-Apartment,CommercialComplex & Cultural blocks in this complex after the Programme formulation, Data-Collection and necessary research required for it.

• Office won Design Competition of it.

OFFICE-COMPLEX for NRDA at Naya Raipur

• It‘s a Office-Complex for NRDA.The office-Complex is designed around Central Court & Service-Cores kept outside office-space.

• I was involved in Conceptual Design & Detail design of this project

• Office won National-Level Design Competition –2nd RUNNER UP

–ROOM DETAIL

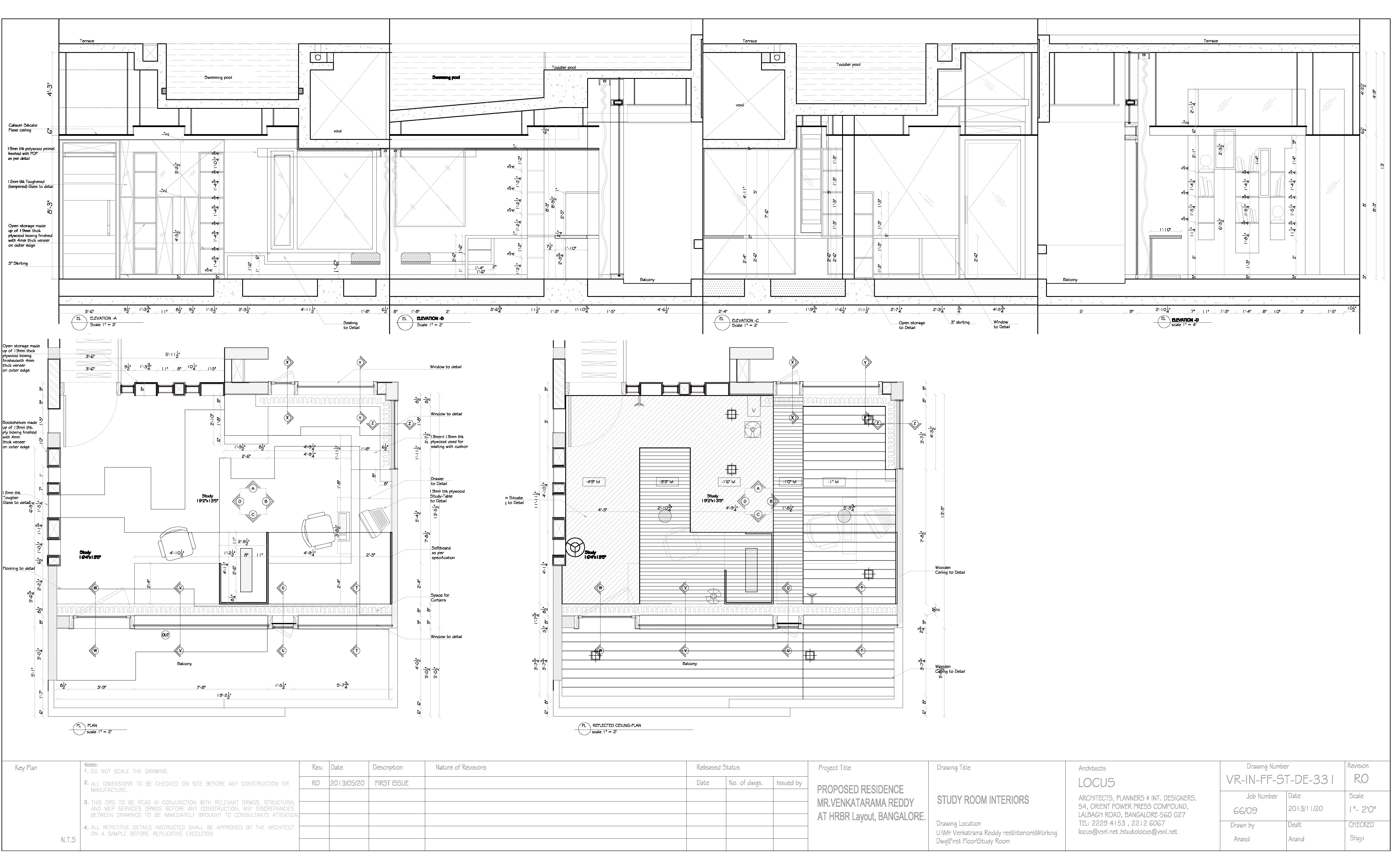
Residential Project

• It‘s a Interior-Design for a Residence.

• I was involved in Conceptual Design & Detail design of this project

3D - VIEW STUDY

Residential Project

• It‘s a Residential-Apartemnt project.

• I was involved in Conceptual Design & Detail design of this project

•Housingproject(Area=1MillionSq.Ft.)

•ResponsibleforConcept-DesigntoDetail DesignLevelStage.

•CoordinationwithSiteandvarious Consultantstomakesuretimely DeliverablesandCross-Checkingthe Services-Drawing

HousingProject2–inMysore

•Housingproject(Area=0.75MillionSq.Ft.)

•ResponsibleforConcept-DesigntoDetailDesignLevelStage.

•CoordinationwithSiteandvariousConsultantstomakesuretimelyDeliverablesandCrossCheckingtheServices-Drawing

Turn static files into dynamic content formats.

Create a flipbook
Issuu converts static files into: digital portfolios, online yearbooks, online catalogs, digital photo albums and more. Sign up and create your flipbook.