Portfólio- Arquitetura

Page 1

PORTFOLIO ANA JULIA

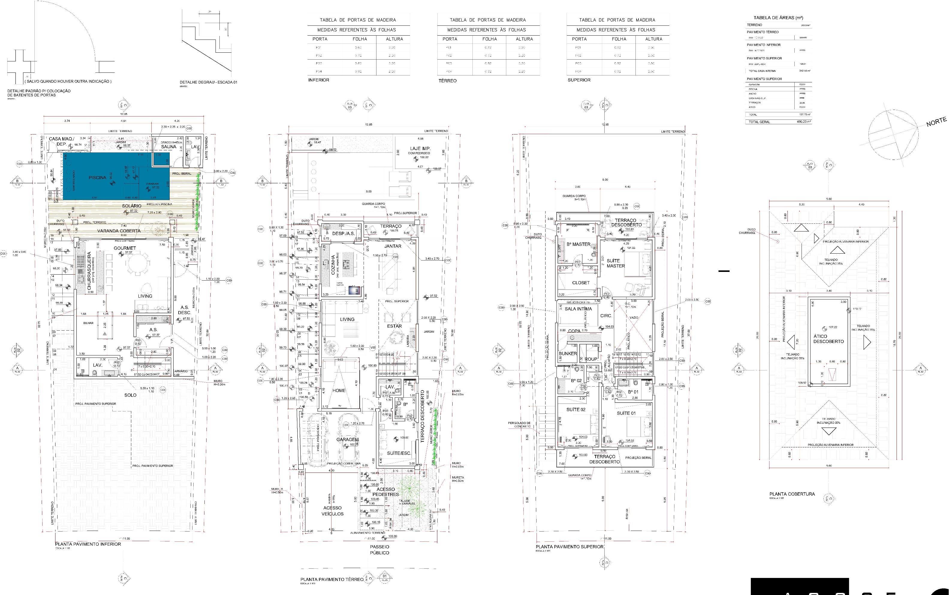
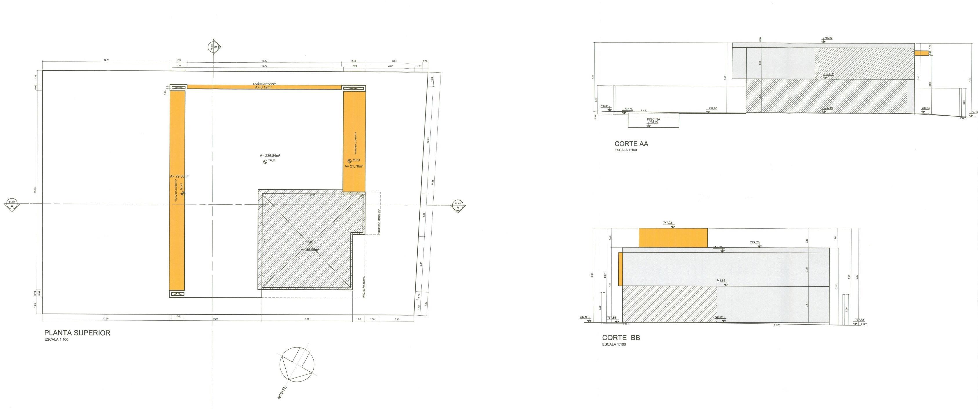
PROJETO EXECUTIVO RESIDENCIAL, ITUPEVA – SP. PROGRAMA UTILIZADO: AUTOCAD

FREELANCER

I.

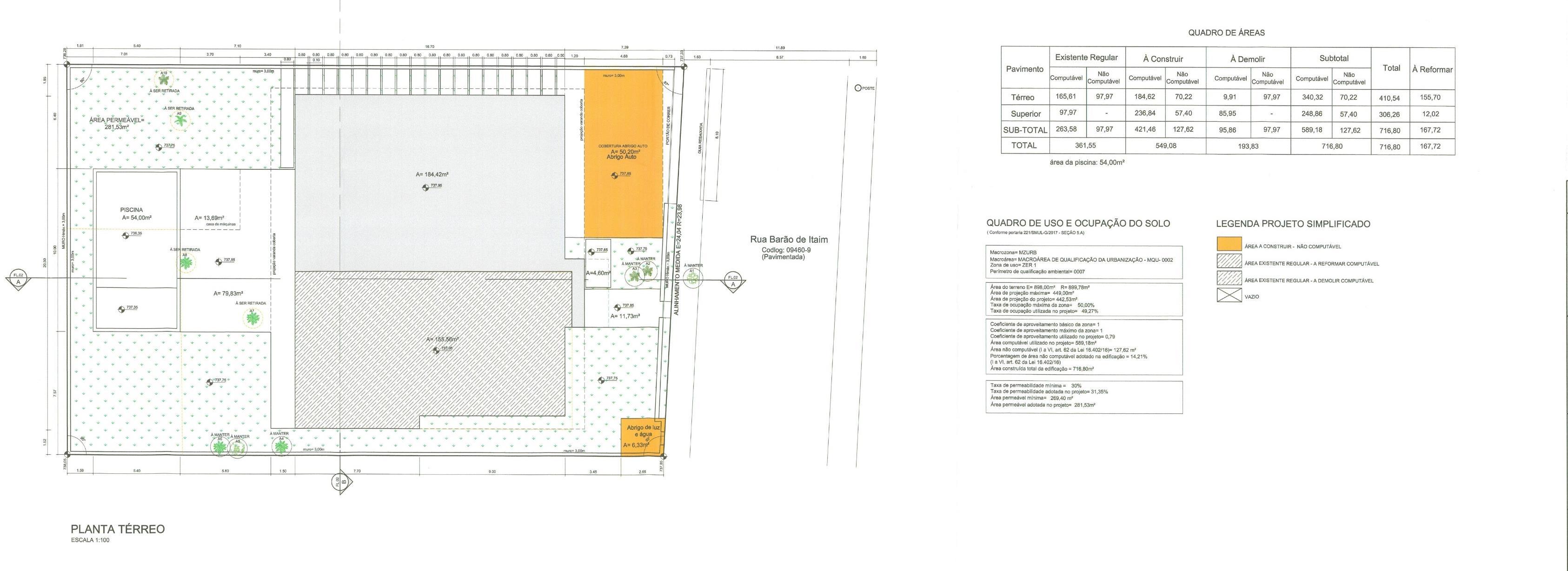
PROJETO SIMPLIFICADO- PREFEITURA DE SÃO PAULO-SP

I.

PROJETO TFG: CENTRO DE APOIO E MORADIA PARA TERCEIRA IDADE

Projeto final de graduação elaborado para promover a tranquilidade e bem estar da terceira idade. A proposta foi elaborada em dois edifícios, sendo um destinado a moradia e outro a serviços e apoio na cidade de Poços de Caldas, MG. Esquemas elaborados no ArchiCAD.

I.

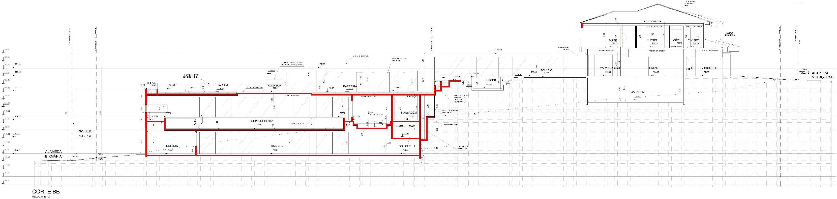
CORTE II- PROJETO AMPLIAÇÃO DE RESIDÊNCIA UNIFAMILIAR DE ALTO PADRÃO PARA O ESCRITÓRIO ROGERIO PEREZ.

II.
CORTES DIVERSOS
CORTE I-TRABALHO FREELANCER: PROJETO EXECUTIVO RESIDENCIAL, ITUPEVA – SP, PROGRAMA UTILIZADO: AUTOCAD

3D REFORMA DE COZINHA

III.
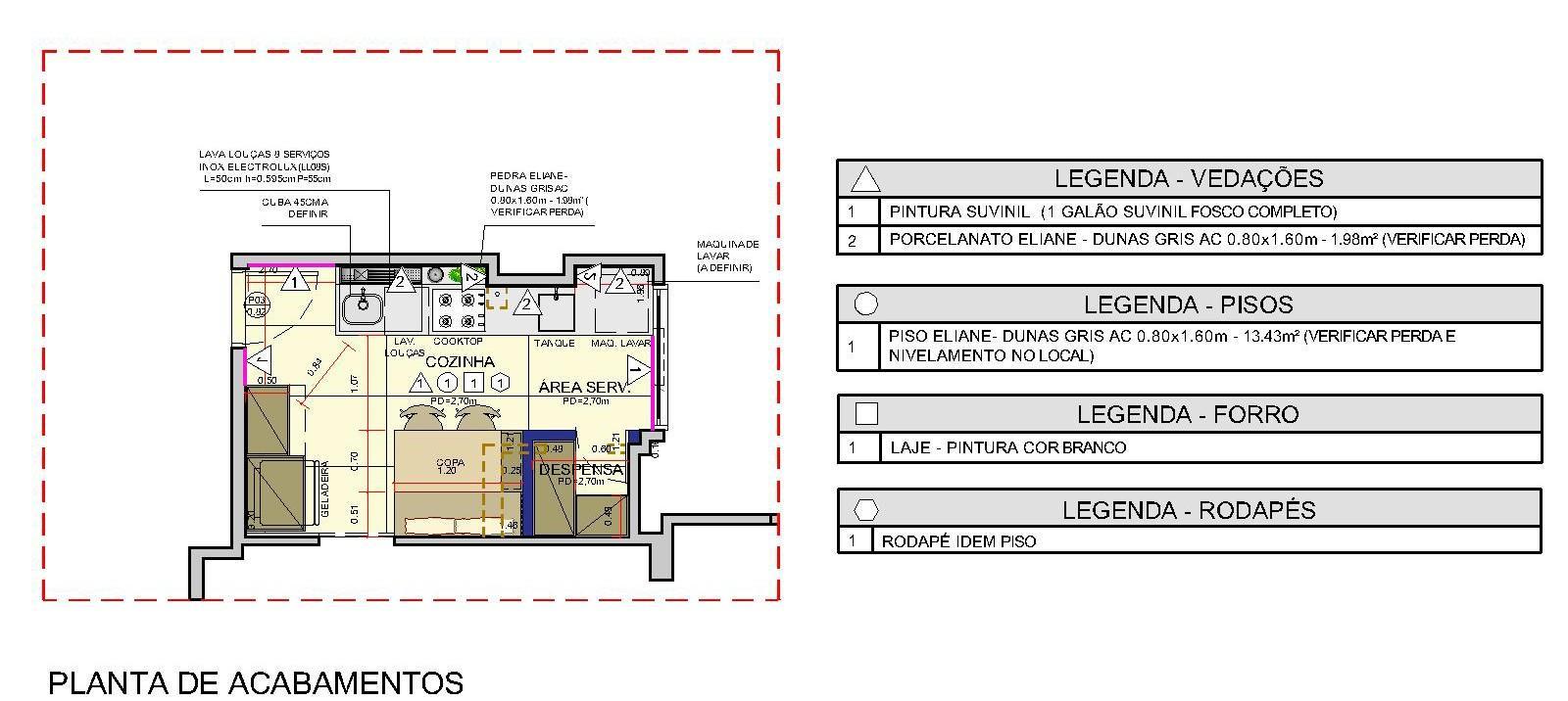
PLANTA DE ACABAMENTOS
DETALHAMENTO

ESTUDO DE VOLUMETRIA OPÇÃO 01 ESTUDO DE VOLUMETRIA OPÇÃO 02

IV.
MODELAGEM 3D – SKETHCHUP

MODELAGEM 3D

IV.
ESCRITÓRIO/IMOBILIÁRIA EM MINAS GERAIS– PROJETO AUTORAL

PROJETO AP.G. – FREELANCER

Elaboração de modelagem 3d e imagens renderizadas Criação de projeto não autoral

IV.
MODELAGEM 3D

MODELAGEM 3D

PROJETO AP.G. – FREELANCER

Elaboração de modelagem 3d e imagens renderizadas Criação de projeto não autoral

EXPECTATIVA- IMAGEM RENDERIZADA REALIDADE NA OBRA

Imagem fornecida pela arquiteta responsável.

IV.

REFORMA VARANDA GOURMET, SP – PROJETO AUTORAL

Proposta do projeto para área gourmet com vegetação e novos mobiliários afim de trazer um novo espaço para aproveitar com família e amigos.

v.
LOGO PARA MARCA NO INSTAGRAM POSTAGEM PARA INSTAGRAM DE TRICOT. POSTAGEM PARA INTAGRAM PARTICULAR vi. CRIAÇÕES INSTAGRAM PÚBLICO: @aj_arquitetura_arte

Turn static files into dynamic content formats.

Create a flipbook
Issuu converts static files into: digital portfolios, online yearbooks, online catalogs, digital photo albums and more. Sign up and create your flipbook.