Porfolio

Page 1

ANA IRISARRI VÁZQUEZ

Arquitecta

Currículum Vitae y Porfolio

INFORMACIÓN PERSONAL

Ana Irisarri Vázquez

680 17 86 61

ana.irisarri.vaz@gmail.com

Fecha de nacimiento: 25 / 12 / 1991

FORMACIÓN

Arquitecta por la ETSAC (Escuela Técnica Superior de Arquitectura de A Coruña). Septiembre de 2016.

Curso online de infografías para espacios interiores con Lumion. Domestika (2023)

Curso online de Collage Digital con Corona rendering. Domestika (2022)

Curso online de Revit: Orientado a la Arquitectura. Udemy (2018)

Curso presencial de Fotografía Nocturna. MTPLUS (2018)

Programa online de desarrollo de Competencias Profesionales. Fundación de la Universidad de A Coruña (2017).

Curso presencial de Fotografía de Arquitectura. ETSAC (2016)

Curso presencial de infografías arquitectónicas: modelado en AutoCAD 3D + renderización en 3dstudio MAX + VRay + posproducción en Adobe Photoshop Kelformando, A Coruña (2014)

Workshops y talleres sobre arquitectura y urbanismo.

IDIOMAS

Castellano: Lengua materna

Gallego: Lengua materna

Inglés: Nivel alto. First Certificate of Cambridge. Experiencia de 6 años de trabajo en proyectos y con equipo exclusivamente en inglés.

Alemán: Nociones básicas. Cuatro de años de estudio en Educación Secundaria.

Portugués: Nociones básicas.

Catalán: Nociones básicas.

SOFTWARE

AutoCAD 2D

AutoCAD 3D

REVIT

Adobe Photoshop

3d Studio MAX + CORONA

3d Studio MAX + VRay

SketchUp

Adobe InDesign

Adobe Acrobat

Adobe Illustrator

Plataformas Facility Management (Dalux, Bimsync)

Programas ofimáticos (Word, Writer, PowerPoint, Excel, etc. y similares)

Plataformas de Administración y comunicación de equipo (Trello, Slack, MIRO)

LUMION

PUBLICACIONES

Colegio de Arquitectos de Galicia - Concurso para el Centro Termal de Bande, 2022

un día | una arquitecta · Minerva Parker Nichols, Junio 2019

un día | una arquitecta · Olive Tjaden, Abril 2019

un día | una arquitecta · Anne Bordeleau, Marzo 2019

un día | una arquitecta · Mercedes Miras, Marzo 2019

HIC arquitectura · Reactivación de A Punta da Insua (Proyecto de Fin de Carrera), Diciembre 2016

CONOCIMIENTOS E INTERESES

Carrera con especialidad en diseño y estructuras a través de asignaturas optativas específicas en 5º curso ETSAC

Fotografía

Informática: modelado 3D, retoque fotográfico y alto nivel de usuario

Interés en paisajismo y hábitat social

Aprendizaje rápido, eficiencia y facilidad de trabajo en equipo

Cursos de interpretación teatral: iniciación y básico

Cursos de danza contemporánea

Intereses: música, cine, literatura y ciencia

EXPERIENCIA PROFESIONAL

PROYECTOS PROPIOS

Rehabilitación y Reforma de la Sede de Aguas Municipalizadas de Alicante. Enero 2022.

• Primer premio en concurso internacional

• Redacción de proyecto básico.

• Desarrollo del proyecto en Sistema BIM (Revit): proyecto en modelo colaborativo, modelado 3D, realización de familias, generación de planos y vistas, coordinación interdisciplinar entre modelos, revisión de errores, control de plantillas, etc.

• Coordinación interdisciplinar con ingeniería de instalaciones, de envolvente térmica, de estructuras, etc.

• Redacción de memorias.

• Redacción de proyecto de ejecución (en proceso).

• Trato directo con el cliente

• Gestión de presupuestos

Casa Mundo. Rehabilitación de Vivienda unfamiliar en Vedra (A Coruña). Abril 2022.

• Redacción de proyecto básico

• Redacción de proyecto de ejecución

• Redacción de memorias

• Trato directo con el cliente

• Gestión de presupuestos

Casa Abalde. Rehabilitación de Vivienda unfamiliar en Castrelos (Vigo). Octubre 2021.

• Redacción de proyecto básico

• Redacción de proyecto de ejecución

• Redacción de memorias

• Trato directo con el cliente

• Gestión de presupuestos

Concurso para la reforma de la Herriko Plaza de Gautegiz Arteaga (Vizcaya). Julio 2021.

• Segundo premio en concurso internacional

• Desarrollo de la idea de proyecto y estudios volumétricos.

• Redacción de planos e infografías y presentación del proyecto.

Concurso para el Centro Termal de Bande (Ourense). Octubre 2022.

• Segundo premio en concurso internacional

• Desarrollo de la idea de proyecto y estudios volumétricos.

• Redacción de planos e infografías y presentación del proyecto.

Reforma de restaurante en Santiago de Compostela. Junio 2023.

• Redacción de proyecto técnico

• Trato directo con el cliente

• Gestión de presupuestos

Clínica dental en A Coruña. Junio 2022

• Redacción de proyecto técnico

Enero 2022 - Actualidad

OTROS TRABAJOS

Concursos de arquitectura

• Espai Dones de Valencia

• Viviendas dotacionales y centro comunitario en Mataró

• Rehabilitación de la Casa de Parga para Museo de la Agricultura en Meis

Realización de trámites

• Certificados energéticos

• Tramitación de licencias y visados

Valoración inmobiliaria

Asesoramiento y consultoría técnica

Colaboraciones profesionales

Redacción de artículos especializados

• Redactora en el blog un día | una arquitecta. Abril 2018 - Agosto 2019 Investigación y documentación sobre arquitectura y autoras.

Redacción de artículos biográficos.

Retoque y preparación de imágenes para web.

Diseño de mobiliario

• Colaboración para AReforma (A Coruña)

Diseño de diversos prototipos de cómoda

Enero 2022 - Actualidad

EXPERIENCIA PROFESIONAL

BAX STUDIO (Barcelona)

Arquitecta colaboradora

• Realización de concursos internacionales abiertos y por invitación: idea y desarrollo.

• Redacción de anteproyectos, proyectos básicos y de ejecución.

• Coordinación y modelado BIM (Revit)

• Coordinación de equipo interno en concursos y proyectos.

2017 - 2023

• Coordinación interdisciplinar internacional con empresas constructoras, ingenieros de estructuras, acústicos, térmicos, de instalaciones, eléctricos, etc.

• Coordinación interdisciplinar con empresas proveedoras e ingenieros industriales.

• Coordinación con organismos públicos y arquitectos municipales.

• Levantamientos, delineado y modelado 3D.

• Realización de memorias.

• Realización de presentaciones digitales de proyectos y maquetación de publicaciones.

Proyectos destacados

• Kunstsilo Art Museum en Kristiansand (Noruega).

Proyecto básico y de ejecución. 8500 m2

Desarrollo del proyecto en Sistema BIM (Revit): proyecto en modelo colaborativo, modelado 3D, realización de familias, generación de planos y vistas, coordinación interdisciplinar entre modelos, revisión de errores, control de plantillas, etc.

Coordinación interdisciplinar con ingenierías

Coordinación con empresa constructora y jefe de obra.

Coordinación con ingenieros industriales

• Dimnikcobau Business Park en Ljiubliana (Eslovenia).

Primer premio en concurso restringido

Proyecto básico y de ejecución. 20500 m2

Desarrollo del proyecto en Sistema BIM (Revit): proyecto en modelo colaborativo, modelado 3D, realización de familias, generación de planos y vistas, coordinación interdisciplinar entre modelos, revisión de errores, control de plantillas, etc.

Coordinación interdisciplinar con ingenierías

Coordinación con empresa constructora y jefe de obra.

Coordinación con ingenieros industriales

• Sauna en Mänttä (Finlandia).

Anteproyecto y Proyecto básico. 310 m2

• Dimnik Estate Winery (Croacia)

Anteproyecto y proyecto de ejecución. 740 m2

Coordinación interdisciplinar con ingenierías

• Vivienda unifamiliar en Begues (Barcelona).

Proyecto básico y de ejecución. 210 m2

Desarrollo del proyecto en Sistema BIM (Revit): proyecto en modelo colaborativo, modelado 3D, realización de familias, generación de planos y vistas, coordinación interdisciplinar entre modelos, revisión de errores, control de plantillas, etc.

Coordinación interdisciplinar con ingenierías

• Escuela de Música en Kristiansand (Noruega).

Anteproyecto. 210 m2

• Ampliación del Auditorio de Lucena (Córdoba)

Modificación puntual del proyecto de ejecución. 500 m2

• Urbanización de la calle Koroska en Maribor (Eslovenia)

Modificación puntual del proyecto de ejecución. 5000 m2

• Piscina y complejo deportivo en Brdo (Eslovenia)

Primer premio en concurso internacional.

IRISARRI+PIÑERA (Vigo)

Arquitecta colaboradora

• Realización de concursos nacionales abiertos y por invitación: idea y desarrollo.

• Redacción de anteproyectos, proyectos básicos y de ejecución.

• Levantamientos, delineado y modelado 3D.

• Realización de memorias y mediciones.

• Realización de presentaciones digitales de proyectos y maquetación de publicaciones.

Proyectos destacados

Rehabilitación y Ampliación de Edificio de Viviendas y locales comerciales, Vigo (Pontevedra).

Primer premio en concurso restringido

Proyecto básico y de ejecución. 10150 m2

Mediciones.

Rehabilitación de Vivienda Unifamiliar en Ramallosa, Nigrán (Pontevedra).

Proyecto básico y de ejecución. 120 m2

Estudio y levantamiento del estado previo.

Estudio volumétrico. Realización de 3D, renderización y fotomontaje.

Redacción de planos de arquitectura: distribución.

Redacción de planos constructivos y de estructura. Mediciones.

Institutos de educación secundaria en Zorgho y Dijbo (Burkina Faso).

Anteproyecto. 2000-3000 m2

Rehabilitación de local comercial para aparcamiento. Vigo, (Pontevedra).

Anteproyecto. 100 m2 Mediciones y levantamientos.

Estudio para la Mejora del Entorno del Estadio de Riazor, A Coruña. Estudio y levantamiento del estado previo. Estudio volumétrico.

Esquematización y presentación del proyecto

Plan de movilidad para O Porriño (Pontevedra)

Redacción de planos de urbanismo: estudios de caso y levantamientos. Realización de inforgrafías.

Concurso para la Rehabilitación de la Fábrica Panificadora de Vigo.

Estudio y levantamiento del entorno. Desarrollo de la idea de proyecto y estudios volumétricos. Redacción de planos y presentación del proyecto.

Concurso para la Rehabilitación del edificio Faraday como equipamiento científico-docente para la Universidade de Vigo. Segundo premio

Estudio y levantamiento del entorno. Desarrollo de la idea de proyecto y estudios volumétricos.

Redacción de planos y presentación del proyecto.

2016 - 2017
PORFOLIO selección de proyectos destacados

REHABILITACIÓN DE LA SEDE DE AGUAS

Alicante 3000 m2

Primer premio en concurso internacional Proyecto básico y proyecto de ejecución (en proceso). Realizado con J. Esturao, J.M. Usabiaga Y B. Monjardín (arquitectos).

La propuesta busca optimizar espacios, aumentar el confort interior y mejorar la eficiencia energética, respetando la identidad pública y abriéndose al entorno urbano. Partimos de un pasado desordenado con intervenciones parciales que aislaron las edificaciones del entorno urbano. Mediante demoliciones puntuales y un nuevo sistema de fachadas común -SATE y celosía cerámica-, buscamos devolver la coherencia al conjunto.

La parcela se cerraba con un muro que alcanzaba una altura de prácticamente dos plantas. Generaba un fuerte aislamiento negando completamente la dimensión urbana.

La intervención se sustancia en la creación de dos patios de acceso, uno público y otro semiprivado, conectados entre sí y que modulan la relación entre las partes.

Trabajos desarrollados - Arquitecta autora

Redacción de proyecto básico y de ejecución con metodología BIM (Revit). Coordinación interdisciplinar con ingenierías externas e ingenieros industriales. Coordinación de equipo interno y trato directo con el cliente.

ESQUEMA DE DEMOLICIONES

Elminación de elementos discordantes y apertura hacia el espacio público.

ESTRATEGIA VOLUMÉTRICA

Ordenación y unificación del conjunto en 3 volúmenes diferenciados.

ORGANIGRAMA GENERAL

Zonificación de usos públicos y privados para generar espacios comunes.

CICRCULACIONES Y ESPACIOS EXTERIORES Regularización de accesos a través de patios en fachada.

0.M 7.A 8.A 9.A 0.I 0.H 0.J 0.K 0.L 9.B 9.C 8.B 0.K 0.N acceso público clientes acceso personal 0.00 +1.26 +3.30 -2.86 1.A 1.B 1.C 1.D 1.E 1.F 1.G 1.H 1.L 2.C 2.B 1.R 3.A 2.L 4.F 4.E 2.O 5.A 0.C 0.A 0.B 2.D 2.E 1.J 1.K 1.I 2.A 1.M 1.N 1.P 1.Q 1.O 2.F 2.K 2.K 2.I 4.D 4.B 2.G 2.H 2.J 3.B 3.C 3.D 4.A 4.C 5.B 0.D 0.E 0.F 0.D 0.G 0.00 acceso salas/eventos acceso parking acceso semi externos acceso servicio acceso ágora 0.00 0.00 +1.30 +1.45 +1.45 +1.40 pte 6% pte 6% pte 6% +3.30 +3.30 0.00 +6.15 15.A 15.B 15.C 15.D 16.A 16.B 16.C 16.D 16.E 16.F 16.H RAMPA 0.AM 0.AL 0.AN 16.G Demoliciones apertura hacia la calle Separación diferenciación de Eliminación de anexos conexión interna + relación con la calle Supresión de elementos discordantes histórico Eliminación de anexos cubierta Generación de patios para potenciar la relación urbana Usos privados Usos semiprivados Usos semiprivados Usos públicos Patios semiprivados (eventos, reuniones) público (clientes) Unificación de volumen central Recuperación de patio apertura la calle protección climática Huecos abiertos luz relación con entorno cohesión volumétrica + privacidad Generación de 3 volúmenes a través de los dos patios interconectados semiprivadas (eventos, reuniones) Patiodeacceso(accesopúblico) Patioderelación (accesosemprivado) (accesoPatiodeeventos semprivado)

CASA MUNDO

Vedra (A Coruña) 220 m2 Cliente privado. Proyecto básico y proyecto de ejecución. Realizado con J. Esturao.

Trabajos desarrollados - Arquitecta autora Redacción de proyecto básico y de ejecución. Coordinación interdisciplinar. Trato directo con el cliente.

El proyecto parte de la rehabilitación de los antiguos muros de la vivienda preexistente, manteniendo su tipología en 3 naves. La banda central funciona como espacio vertebrador a doble altura, y a sus lados se disponen los dormitorios y espacios servidores. Esta banda continua hacia el exterior difuminando los límites entre el salón y el jardín.

Se refuerza la estructura con pantallas y vigas de hormigón, marcando los antiguos muros con nuevos muros de bloque velado. Los materiales de fachada -una combinación de enfoscado blanco y lamas de madera- y las cubiertas a dos aguas se inspiran en la vivienda tradicional preexistente.

CASA ABALDE

Vigo. 120 m2

Cliente privado.

Proyecto básico y proyecto de ejecución. Realizado con J. Esturao.

Trabajos desarrollados - Arquitecta autora Redacción de proyecto básico y de ejecución con metodología BIM (Revit). Coordinación interdisciplinar con ingenierías externas e ingenieros industriales. Coordinación de equipo interno y trato directo con el cliente.

El proyecto parte de una reforma integral de la vivienda preexistente, generando dos nuevas bandas diferenciadas: noche y día. En la zona de día se potencia el eje nortesur, incorporando una galería y juntando las aperturas del muro sur, aumentando la relación del espacio interior con el jardín.

Se gana superficie acondicionando el semisótano como zona vividera, y añadiendo una mansarda en cubierta, para incrementar la altura libre. Un nuevo cascarón -formado por un panel sándwich con acabado de chapa ondulada-, proporciona coherencia material y garantiza el confort interior.

BANDEARIUM

Centro Termal de Bande Ourense. 500 m2

Segundo premio en concurso internacional Realizado con B. Monjardín.

Se propone un edificio longitudinal que sigue la geometría de la pendiente de la parcela, articulado a través del vestíbulo que atraviesa transversalmente el edificio; permitiendo la separación del área más pública y la más privada, facilitando usos independientes. Se potencia la relación interior-exterior a través de un cerramiento vidriado, separando las áreas con la vegetación de la propia parcela.

Los sistemas constructivos facilitan la flexibilidad en la distribución. Se propone una construcción modular de pórticos de madera, con cajas ligeras donde se sitúan los espacios servidores.

KUNSTSILO ART MUSEUM

Kristiansand (Noruega) 8500 m2

Colaboración en BAX Studio.

Proyecto básico, proyecto de ejecución y seguimiento de obra (en proceso).

BAX Studio + MendozaPartida + MestresWage

El museo nace de la necesidad de rehabilitar un antiguo complejo de silos en el puerto de Kristiansand, como detonante de un nuevo barrio residencial y cultural, y para acoger gran parte de una colección privada de arte. La propuesta aprovecha la potente expresividad arquitectónica del propio silo para generar un espacio público diverso y complejo.

El proyecto alcanza un balance entre el respeto por el silo preexistente como patrimonio arquitectónico, y la intervención en el mismo, que busca potenciar las experiencias escultóricas y espaciales que ofrece. A través de unos cortes estratégicos propuestos en el interior, el silo se abre creando una gran sala pública.

Trabajos desarrollados - Arquitecta colaboradora

Redacción de proyecto básico y de ejecución con metodología BIM (Revit). Coordinación interdisciplinar con ingenierías externas e ingenieros industriales. Coordinación con la empresa constructora y el jefe de obra. Seguimiento a distancia.

Se diseña una fachada para los nuevos volúmenes isnpirada en el antiguo anexo, de ladrillo blanco a modo de fachada ventilada.

La distribución interior en salas de arte obliga a unas características técnicas muy exigentes y la unificación final de todas las instalaciones vistas (luminarias, accesorios, climatización, etc.).

1 YVG 1.3 C.01.01 I.03.06 J.04.01 I.03.03 I.04.04 A.01.01 I.03.05 I.04.06 70 20 300 150 25 120 150 J.07.01 D.04.01 I.04.09 t: 2 mm A.06 M.09 M.10 2.00 1 C.12 YVG 1.3 D.17.01 85 50 50 9 200 50 168 40 16 463 205 668 I.03.05 I.03.04 B.01.02 I.03.03 I.03.05 E.02.04 5039 150 30x30x3 mm E.03.02 t: 10 mm painted as ceiling color E.01.01 I.03.01 D.04.01 t: 2 mm 6050 5050 170 50 30 30 Wienerberger/RIB: brackets for brick façade to be determined 1 5 / 0 6 / 2 0 2 1 6 4 4 5 4 01 A 000 52 1E 01 -cafe sliding door bottom 01 A 000 52 1E 02 -cafe sliding door top Detail Legend CodeDescription A.01.01Reinforced concrete wall, dimensions according A.06 Existing concrete foundation B.01.02Steel beam dimensions according to structural C.01.01Concrete screed C.12 Facade brick D.04.01Aluminium sheet, thickness according to plans. D.17.01Bracket made up of steel profile E.01.01Solid wood profile for frame, dimensions according E.02.0416 mm white perforated gypsum board with aco E.03.02MD board, thickness according to plans. I.03.01Waterproof membrane I.03.03Vapour barrier I.03.04Wind barrier I.03.05Mineral wool insulation, thickness according to I.03.06PVC barrier I.04.04Extruded polystyrene insulation, thickness according I.04.06Foamglas insulation I.04.09Wood profile or high dense insulation (red air or J.04.01Radiant floor heating tubes J.07.01stainless steel exterior grille for drainage M.09 Gravel M.10 Exterior concrete slab
D D D.13.05 153415 63 4065 105 73 20 E.02.01 D7 min 20 M.01 C.01.01 min 20 100 40 E.02.01 L.04 E.10 min 20 I.03.05 I.03.03 E.01.01 min 20 150 140 20 20 6 / 0 0 4 0 00 A 000 57 E1 01 -deploye ceiling Detail Legend CodeDescription A.01.01Reinforced concrete A.02.01Composite metal C.01.01Concrete screed C.15 Continous polished D.01.18Painted steel L profile. D.13.05Stainless steel round E.01.01Solid wood profile E.02.01Plywood board E.10 Plaster board, 12,5mm I.03.03Vapour barrier I.03.05Mineral wool insulation, I.03.06PVC barrier I.03.11Fire projection of J.02 Steel hook, removable, J.08.01Light fixture J.09.01Lighting track with L.04 Hanged strecth painted RAL 9010. structure L.08.02Acoustic absorption L.09 Durlum omega profile L.13 Durlum column M.01 Solid oak wood 00 A 000 57 F1 -Art wall Flexible joint profile sanded and painted in RAL Visible face of the profile sanded and painted in RAL 7038 00 A 000 57 6E1 Silo wall-ceiling meeting

El nuevo parque empresarial de la compañía Dimnikcobau quiere ser un nuevo hito urbano en la ciudad. La construcción del edificio principal de oficinas será el primer paso para crear un nuevo distrito industrial dinámico e innovador. Para modernizar la zona en la que se emplazará el proyecto, se creará un gran jardín-corredor abierto de entrada a modo de espacio público, que conectará los tres edificios de la compañía

El proyecto del edificio principal es reconocible gracias a dos grandes aperturas en las fachadas sur y oeste que se comunican con un atrio interior, que a su vez funciona como columna vertebral del proyecto, conectando todas las áreas de oficinas y descanso. La actividad social del edificio se genera entre el atrio y las terrazas, con vistas panorámicas a la ciudad y el jardín.

Trabajos desarrollados - Arquitecta colaboradora

Redacción de proyecto básico y de ejecución con metodología BIM (Revit). Coordinación interdisciplinar con ingenierías externas e ingenieros industriales. Coordinación de equipo interno durante el proyecto de ejecución.

La fachada exterior busca la protección solar y la eficiencia energética sin renunciar a un confor interior visual y de apertura hacia la ciudad. Para ello, se disponen sistemas industrializados de lamas verticales de aluminio tras una fachada de vidrio, que se giran según la orientación de cada fachada, como principal medida pasiva.

valjanice v plošči FeZn 25x4 mm Vijačni spojni element 58x58 mm Hermi KON02 za spajanje Rf Ø8 mm in FeZn 25x4 mm Strelovodni odvod Rf fi 8 mm vodnik v izolacijii se vstavi v samougasno zaščitno cev Krožni horizontalni vod Rf Ø8 mm nad in pod teraso Vijačni spojni element 58x58 mm Hermi KON07 za spajanje Rf Ø8 mm in FeZn 25x4 mm 2 10 18 X83 X23.5 X22.1, povezava dveh kosov lamel X22.4 priključitev na horizontalne nosilce fasade stekleni sendvič panel 0,5 X60.2 X22.1, deb=2mm, kot parna zapora (vsi stiki zalepljeni z tesnilnim trakom) 10 12,5 9 X22.1, zaključek Hibond AB plošče X40 X90 med aluminijem in jeklom vedno folija X21.7, deb. 2mm X40 X70 10 2 X21.7, deb. 2mm X23 PVC profil X85 30 5 9 X21.7, deb. 2mm 12,5 10 X80.3, trak butil X83 Rob nosilca (strop) 5 26,6 10,9 9,3 kratka kljuka, v horizontalni položju je okno zaprto 5 D07 - Façade by concrete structure + E1 floor type (15 cm) D08 - Façade by concrete structure + E1/A floor type (20 cm) D09 - Façade by steel structure + E1 floor type (15 cm) D01 D02 D04 D05 D06

SAUNA EN MÄNTTA

Mänta (Finlandia). 310 m2 Cliente privado. (Colaboración) Proyecto básico y proyecto de ejecución. BAX Studio + MendozaPartida

El proyecto de la sauna es una continuación de la experiencia iniciada con el museo Gösta Serlachius, un proyecto que se une a una preexistencia situada en medio de un gran bosque finlandés. El recorrido paisajístico que lo acompaña consiste en una suma de espacios y momentos siempre abrazados por el paisaje y la naturaleza.

La sauna extiende la experiencia arquitectónica a una escala menor y más delicada. A través de la estrategia de fundir este nuevo proyecto con el terreno más próximo al lago, la sauna se integra convirtiéndose en parte del paisaje gracias a su geometría orgánica y su materialidad pétrea.

Trabajos desarrollados - Arquitecta colaboradora Redacción de proyecto básico y de ejecución.

acercamiento histórialteraciones hechas en potencia y rotundirestituyendo más rotundo precisamente los huecos, aumentar el atracsiendo fincas diferactuación trabajo sutil en éstos, y con de modo que perciba una recoge el vuelo relevancia al situación de es-

REHABILITACIÓN Y AMPLIACIÓN DE EDIFICIO DE VIVIENDAS

Vigo 10150 m2

Primer premio en concurso restringido. (Colaboración)

Proyecto básico.

IRISARRI+PIÑERA

La propuesta apuesta por viviendas altamente flexibles, articuladas entorno a un gran jardín central donde se encuentran las comunicaciones; tratando de conseguir el aprovechamiento del tradicional patio de luces como un espacio de recreo común que se vuelve amplio y permite respirar al edificio.

Cada unidad residencial nace del deseo de una vivienda desjerarquizada, con flexibilidad de superficie (ampliación y reducción), y de uso (redistribución de la misma gracias a un sólo núcleo húmedo). Además, las piezas habitacionales no tienen una función específica, sino que buscan ser habitadas según las necesidades.

Vista
jardín
patio

Trabajos desarrollados - Arquitecta colaboradora Concurso y redacción de proyecto básico.

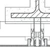
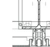
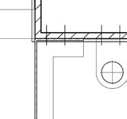
La fachada ventilada de la ampliación se resuelve con prefabricados cerámicos con dos geometrías distintas. La subestructura se ancla a los forjados, genrando continuidad de planta a planta, con una solución final de tresbolillo.

Vivienda tipo 1 Vivienda tipo 2 Vivienda tipo 3 Vivienda tipo 4 Vivienda tipo 7 Vivienda tipo 6 Vivienda tipo 5

Turn static files into dynamic content formats.

Create a flipbook
Issuu converts static files into: digital portfolios, online yearbooks, online catalogs, digital photo albums and more. Sign up and create your flipbook.
Porfolio by Ana Irisarri - Issuu