TCC arqurbuvv NEUROCIÊNCIA APLICADA À ARQUITETURA: A INFLUÊNCIA NA REPRESENTAÇÃO DE PROJETOS ARQ

Page 1

N E U R O C I Ê N C I A

a influência na representação de projetos arquitetônicos

A P L I C A D A À A R Q U I T E T U R A :

UNIVERSIDADE VILA VELHA ARQUITETURA E URBANISMO

ANA CLARA MUNIZ PEREIRA

N E U R O C I Ê N C I A A P L I C A D A À A R Q U I T E T U R A : a i n f l u ê n c i a n a r e p r e s e n t a ç ã o d e p r o j e t o s a r q u i t e t ô n i c o s

Traba ho de Conclusão de Curso apresentado à Universidade Vila Velha, como pré-requisito para a obtenção do título de Bacharel em Arquitetura e Urbanismo. Orientadora: Dra Melissa Ramos da Si va Oliveira. VILA VELHA 2022

agradecimentos

Agradeço a minha mãe, por ser meu maior exemplo de força e determinação. Minha fonte de inspiração e perseverança E por toda sua dedicação para que eu me tornasse quem eu sou Ao meu pai, por seu amor que me fortalece mesmo longe

Aos meus melhores amigos, meu irmão Mazzo Winicius e meu namorado Guilherme por serem meus grandes incentivadores, por confiarem em mim e serem meus maiores companheiros dessa vida

Agradeço aos meus familiares pelo apoio incondicional

Agradeço as amizades que eu fiz durante esse ciclo, em especial minha amiga Sofia por ter sido minha companheira durante todos esses anos

Agradeço a minha orientadora prof ª Dr ª Melissa Ramos da Silva Oliveira, por acreditar no meu tema e me incentivar a perseverar nele Por suas palavras e suas orientações que me inspiraram durante essa jornada

Agradeço a minha equipe de trabalho, Pri e Gabi, por toda a escuta e incentivo

Agradeço as arquitetas Maria Augusta e Bruna Sardinha pela disponibilidade e atenção e por cederem seus projetos que enriqueceram meu trabalho

Agradeço a todos as pessoas que paticiparam voluntariamente dos testes realizados para a finalização desse trabalho Serei eternamente grata

Por fim, agradeço a Deus e todos os meus guias por iluminarem meu caminho, me protegerem e me fortalecerem até aqui

Resumo

O presente trabalho busca analisar a influência das representações gráficas na compreensão e legibilidade dos projetos arquitetônicos por parte dos clientes fundamentando-se nos estudos da neurociência aplicada à arquitetura Apresenta conceitos norteadores e normas técnicas e analisa elementos projetuais apresentando os métodos utilizados por variados escritórios afim de levantar dados sobre a importância da representação gráfica para a comercialização do produto arquitetônico A metodologia adotada, permitiu conhecer o comportamento ocular dos voluntários frente a variadas representações gráficas com o objetivo de entender e mapear elementos importantes e indispensáveis para a legibilidade dos projetos e apresentar novas tecnologias que contribuem com esse processo Os resultados permitiram uma análise detalhada sobre o valor das representações gráficas para a legibilidade de projetos e uma síntese sobre diretrizes a serem seguidas por arquitetos e urbanistas neurociência, arquitetura, representação gráfica, legibilidade, projeto arquitetônico

P A L A V R A S C H A V E S :

Abstract Abstract

The present work seeks to analyze the influence of graphic representations on the understanding and readability of architectural projects by clients, based on studies of neuroscience applied to architecture It presents guiding concepts and technical standards and analyzes design elements, presenting the methods used by various offices in order to collect data on the importance of graphic representation for the commercialization of the architectural product

The adopted methodology allowed knowing the ocular behavior of the volunteers in front of different graphic representations with the objective of understanding and mapping important and indispensable elements for the readability of the projects and presenting new technologies that contribute to this process The results allowed a detailed analysis of the value of graphic representations for the readability of projects and a synthesis of guidelines to be followed by architects and urban planners

neuroscience, architecture, graphic representation, readability, architectural design

"Arquitetura é o espaço mental construído." Keijo

sumário

i n t r o d u ç ã o c o n s i d e r a ç õ e s t e ó r i c a s

1 .

1.1. NEUROCIÊNCIA APLICADA À ARQUITETURA

1.2. ASPECTOS COGNITIVOS

1 2 1 EMOÇÕES

14

2.1. PROJETO ARQUITETÔNICO E REPRESENTAÇÃO GRÁFICA

2.2 ANALISE DE ESCRITÓRIOS DE ARQUITETURA

2 2 1 BIG - BJARKE INGELS GROUP

2.2.1.1 ANÁLISE GERAL DAS REPRESENTAÇÕES DO ESCRITÓRIO

2.2.2 RIGI DESIG

2 2 2 1 ANÁLISE GERAL DAS REPRESENTAÇÕES DO ESCRITÓRIO

2.2.3 METRO ARQUITETOS ASSOCIADOS

2.2.3.1 ANÁLISE GERAL DAS REPRESENTAÇÕES DO ESCRITÓRIO 2.2.4 UNA BARBARA E VALENTIM ARQUITETOS ASSOCIADOS

. 27 30 30 39 39 42 43 45 46 51 51 26

17

3

18 19 19 21 22 2

3.2. SISTEMA VISUAL E VISÃO 3.3 REPRESENTAÇÕES GRÁFICAS DOS RESULTADOS

DO RASTREAMENTO OCULAR

3.3.1. MAPAS DE CALOR 3.3.2. CAMINHO DE VARREDURA / GAZE PLOT 3.3.3. ÁREA DE INTERESSE (AOI).

3 4 DISPOSITIVOS 3.5. APLICAÇÃO NA ARQUITETURA

56 57 57

1.2.2 SENTIMENTOS 1.2.3 MEMÓRIAS
p r o j e t o a r q u i t e t ô n i c o e r e p r e s e n t a ç ã o g r á f i c a
58 58 60 61
2.2.4.1 ANÁLISE GERAL DAS REPRESENTAÇÕES DO ESCRITÓRIO 2.3 SÍNTESE GERAL
.
r a s t r e a m e n t o o c u l a r 55
54
3 1 EYE TRACKING

4 1 ESCRITÓRIO 01

4.1.1 REPRESENTAÇÃO E LEGIBILIDADE DE PROJETOS

4.1.2. PERFIL DO CLIENTE

4.1.3 MÉTODOS REPRESENTATIVOS DO ESCRITÓRIO 01 4.2. ESCRITÓRIO 02

4.2.1 REPRESENTAÇÃO E LEGIBILIDADE DE PROJETOS

4.2.2. PERFIL DO CLIENTE 4 2 3 MÉTODOS REPRESENTATIVOS DO ESCRITÓRIO 01 4.3 AVALIAÇÃO GERAL

4 . e s t u d o d e c a s o 65 66 67 68 69 70 71 72 73

m é t o d o s , p r o p o s t a s e o b j e t i v o s

64

r e s u l t a d o s e a n á l i s e s

6.1 RESULTADOS - ETAPA 01: RASTREAMENTO OCULAR COM EYE TRACKER

6.1.1 PROJETO 01 6 1 1 1 IMAGEM 01 6.1.1.2 IMAGEM 02 6.1.1.3 IMAGEM 03 6.1.2 PROJETO 02 6.1.2.1 IMAGEM 01 6.1.2.2 IMAGEM 02 6 2 RESULTADOS - ETAPA 02: TOUR VIRTUAL

5 1 CARACTERIZAÇÃO DOS PARTICIPANTES

5.2 AMBIENTAÇÃO DO TESTE

5.3 ETAPA 01 - RASTREAMENTO OCULAR COM EYE TRACKER

5.4 . ETAPA 02 - TOUR VIRTUAL

5 4 1 PRODUÇÃO DO TOUR VIRTUAL

5.4.2 TESTE COM TOUR VIRTUAL

5.5 ETAPA 03 - ENTREVISTAS

5 5 1 ESTRUTURAÇÃO DAS ENTREVISTAS

5.5.2 SEGUNDA ETAPA DAS ENTREVISTAS

5.5.3 TERCEIRA ETAPA DAS ENTREVISTAS

5 . 76 77 78 80 80 82 83 83 84 85

6.2.1 PERCURSOS PREDOMINANTES - PROJETO 01 6.2.2 PROJETO 01: MAPAS DE CALOR - PONTOS DE MAIOR E MENOR PERMANÊNCIA

75

6.2.3 ANÁLISE GERAL - PROJETO 01 6 2 4 PERCURSOS PREDOMINANTES - PROJETO 02 6 2 5 PROJETO 02: MAPAS DE CALOR - PONTOS DE MAIOR E MENOR PERMANÊNCIA

6.2.6 ANÁLISE GERAL - PROJETO 02

6.3 RESULTADOS - ETAPA 03: ENTREVISTAS

6.3.1 PROJETO 01 - ENTREVISTAS 6 3 1 1 ANÁLISE GERAL - PROJETO 01

6.3.2 PROJETO 02 - ENTREVISTAS 6.3.2.1 ANÁLISE GERAL - PROJETO 02 6.4. TOUR VIRTUAL - ENTREVISTA 6.5 SÍNTESE GERAL DOS RESULTADOS

. 87 88 89 89 91 93 95 95 97 98 100 100 102 106 106 107 111 111 112 112 119 127 127 131

6

c o n s i d e r a ç õ e s f i n a i s 133

r e f e r ê n c i a s b i b l i o g r á f i c a s 136

a p ê n d i c e s 138

de figuras

FIGURA 01 - TIPOS DE EMOÇÕES

FIGURA 02 - CICLO EMOÇÃO – SENTIMENTO

FIGURA 03 - TIPOS DE MEMÓRIAS

FIGURA 04 - PARTES DO CÉREBRO RESPONSÁVEIS PELAS MEMÓRIAS DE TRABALHO

FIGURA 05 - PRINCIPAIS REGIÕES RESPONSÁVEIS PELAS MEMÓRIAS DECLARATIVAS

FIGURA 06 - PRINCIPAIS REGIÕES RESPONSÁVEIS PELAS MEMÓRIAS PROCEDURAIS

FIGURA 07 - INFORMAÇÕES TÉCNICAS MÍNIMAS CONSTANTES DO PROJETO ARQUITETÔNICO

FIGURA 08 - REPRESENTAÇÃO DE PROJETOS DE ARQUITETURA

FIGURA 09 – SITE BIG - BJARKE INGELS GROUP

FIGURA 10 - FOTOMONTAGEM VASTERAS NEW TRAVELCENTER

FIGURA 11 - IMPLANTAÇÃO ISOMÉTRICA

FIGURA 12 - DIAGRAMAS SEQUENCIAIS

FIGURA 13 - DIAGRAMA DE MATERIALIDADE

FIGURA 14 - IMAGENS 3D - VASTERAS NEW TRAVELCENTER

FIGURA 15 - FOTOMONTAGEM JOINT RESEARCH CENTRE

FIGURA 16 - DIAGRAMAS INICIAIS

FIGURA 17 - VISTAS ISOMÉTRICAS

FIGURA 18 - IMPLANTAÇÃO EM PERSPECTIVA

FIGURA 19 - IMAGENS 3D - JOINT RESEARCH CENTRE

FIGURA 20 - EVOLUÇÃO DA VOLUMETRIA EM VISTA

FIGURA 21 - EVOLUÇÃO DA VOLUMETRIA EM PERSPECTIVA

FIGURA 22 - ESQUEMAS GRÁFICOS

FIGURA 23 - CORTES ESQUEMÁTICOS HUMANIZADOS

FIGURA 24 – MAQUETES

FIGURA 25 - IMAGENS 3D – BIST

FIGURA 26 - ESQUEMA SÍNTESE: TIPOS DE REPRESENTAÇÃO UTILIZADAS 01

FIGURA 27 - IMPLANTAÇÃO WARM CLINIC

FIGURA 28 - PLANTA EM PERSPECTIVA COM INDICAÇÃO DE DETALHES

FIGURA 29 - PLANOS DE VISUALIZAÇÃO: PLANTA BAIXA E VISTA EM PERSPECTIVA

FIGURA 30 - ESQUEMAS CONCEITUAIS

FIGURA 31 - IMAGENS 3D - FIRSTCRY FILM OFFICE

FIGURA 32 - ESQUEMA SÍNTESE: TIPOS DE REPRESENTAÇÃO UTILIZADAS 02

FIGURA 33 - PLANTA CORTES E ELEVAÇÕES - REFETTORIO GASTROMOTIVA

FIGURA 34 - CROQUI INICIAL

20 21 23 24 24 28 29 30 31 31 32 32 33 33 34 34 35 35 36 36 37 37 38 38 39 40 40 41 41 42 42 43 44

FIGURA 35 - DIAGRAMAS SEQUENCIAIS 02

FIGURA 36 - FOTOMONTAGENS – PROJETO MIRIM FIGURA 37 - ESQUEMA SÍNTESE: TIPOS DE REPRESENTAÇÃO UTILIZADAS 03

FIGURA 38 - PLANTA BAIXA SEQUENCIAL FIGURA 39 - DIAGRAMAS SEQUENCIAIS 03 FIGURA 40 - CORTES HUMANIZADOS

FIGURA 41 - FOTOMONTAGENS E IMAGENS 3D – SESC DOM PEDRO II FIGURA 42 - VISTAS ISOMÉTRICAS ESQUEMÁTICAS FIGURA 43 - VISTAS ISOMÉTRICAS ESQUEMÁTICAS SETORIZADAS

FIGURA 44 - MAPA GERAL DA PROPOSTA DE INTERVENÇÃO FIGURA 45 - CORTES COMPARATIVOS FIGURA 46 - FOTOMONTAGENS E IMAGENS 3D – RENOVA SP FIGURA 47 - ESQUEMA SÍNTESE: TIPOS DE REPRESENTAÇÃO UTILIZADAS 04

FIGURA 48 - SISTEMA VISUAL FIGURA 49 - MAPAS DE CALOR

FIGURA 50 - CAMINHO DE VARREDURA / GAZE PLOT

FIGURA 51 - AOI: ÁREA DE INTERESSE

FIGURA 52 - PRINCIPAIS MEDIDAS PARA ANÁLISE DE ÁREAS DE INTERESSE – AOI

FIGURA 53 - EYE TRACKER ESTACIONÁRIO FIGURA 54 - EYE TRACKER MÓVEL

FIGURA 55 - RASTREAMENTO OCULAR COM DISPOSITIVO INTEGRADO À VR FIGURA 56 - TESTE DE APROXIMAÇÃO E AFASTAMENTO

FIGURA 57 - FACHADAS SIMPÁTICAS

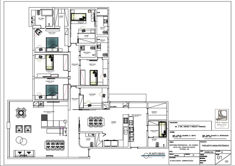
FIGURA 58- PLANTA BAIXA DE AMBIENTAÇÃO – APARTAMENTO 1001

FIGURA 59 - IMAGENS 3D – APARTAMENTO 1001

FIGURA 60 - PLANTA BAIXA PITSTOP

FIGURA 61 – IMAGENS 3D PITSTOP

FIGURA 62 - AMBIENTE DA TESTAGEM FIGURA 63 - VOLUNTÁRIOS DURANTE A PRIMEIRA ETAPA DO TESTE

FIGURA 64 - APRESENTAÇÃO: SLIDES INICIAIS

FIGURA 65 - APRESENTAÇÃO: PROJETOS 01 E 02

FIGURA 66 - IMAGENS 360º: PROJETOS 01 E 02

FIGURA 67 - INTERFACE SITE TOUR VIRTUAL FIGURA 68 - SEÇÕES ENTREVISTA

44 45 45 46 47 47 48 48 49 49 50 50 51 56 57 58 59 59 60 60 61 61 62 68 69 72 73 78 79 79 80 81 82 83

indíce

FIGURA 69 - PERGUNTAS ILUSTRADAS - PROJETO 01 E 02

FIGURA 70 - PERGUNTA FINAL

FIGURA 71 - PROJETO 01: MAPAS DE CALOR - IMAGEM 01 - GRUPO A

FIGURA 72 - PROJETO 01: MAPAS DE CALOR - IMAGEM 01 - GRUPO B

FIGURA 73 - PROJETO 01: MAPAS DE CALOR - IMAGEM 02 - GRUPO A

FIGURA 74 - PROJETO 01: MAPAS DE CALOR - IMAGEM 02 - GRUPO B

FIGURA 75 -PROJETO 01: MAPAS DE CALOR - IMAGEM 03 - GRUPO A

FIGURA 76 - PROJETO 01: MAPAS DE CALOR- IMAGEM 03 - GRUPO B

FIGURA 77 - PROJETO 02: MAPAS DE CALOR- IMAGEM 01 - GRUPO A

FIGURA 78 - PROJETO 02: MAPAS DE CALOR- IMAGEM 01 - GRUPO B

FIGURA 79 - PROJETO 02: MAPAS DE CALOR- IMAGEM 02 - GRUPO A

FIGURA 80 - PROJETO 02: MAPAS DE CALOR- IMAGEM 02 - GRUPO B

FIGURA 81 - PROJETO 02: MAPAS DE CALOR- IMAGEM 03 - GRUPO A

FIGURA 82 - PROJETO 02: MAPAS DE CALOR- IMAGEM 03 - GRUPO B

FIGURA 83 - PROJETO 01: PERCURSO SÍNTESE - GRUPO A

FIGURA 84 - PROJETO 01: PERCURSO SINTESE - GRUPO B

FIGURA 85 - PROJETO 01: AMBIENTE DE MAIOR PERMANÊNCIA - GRUPO A

FIGURA 86 - PROJETO 01: AMBIENTE DE MENOR PERMANÊNCIA - GRUPO A

FIGURA 87 - PROJETO 01: AMBIENTE DE MAIOR PERMANÊNCIA - GRUPO B

FIGURA 88 - PROJETO 01: AMBIENTE DE MENOR PERMANÊNCIA - GRUPO B

FIGURA 89 - PROJETO 02: PERCURSO SÍNTESE - GRUPO A E B

FIGURA 90 - PROJETO 02: AMBIENTE DE MAIOR PERMANÊNCIA - GRUPO A

FIGURA 91 - PROJETO 02: AMBIENTE DE MAIOR PERMANÊNCIA - GRUPO B

FIGURA 92 - PROJETO 02: AMBIENTE DE MAIOR PERMANÊNCIA - GRUPO A

FIGURA 93 - PROJETO 02: AMBIENTE DE MAIOR PERMANÊNCIA - GRUPO B

85 86 89 90 91 92 93 94 95 96 97 98 98 99 100 101 102 103 104 105 107 108 108 109 110

indíce de gráficos

GRÁFICO 01 - TIPOS DE REPRESENTAÇÃO X NÚMERO DE ESCRITÓRIOS AVALIADOS

GRÁFICO 02 – COMPARAÇÃO GERAL

GRÁFICO 03 - CARACTERIZAÇÃO DO GRUPO A

GRÁFICO 04 - CARACTERIZAÇÃO DO GRUPO B

GRÁFICO 05 - O QUE MAIS GOSTOU - PROJETO 01

GRÁFICO 06 - O QUE MAIS CHAMOU ATENÇÃO - PROJETO 01

GRÁFICO 07 - PONTOS DE MAIOR ATENÇÃO - IMAGEM 01- PROJETO 01

GRÁFICO 08 - SENSAÇÕES EVOCADAS - IMAGEM 01- PROJETO 01

GRÁFICO 09 - SENSAÇÕES EVOCADAS - IMAGEM 01- PROJETO 01

GRÁFICO 10 - SENSAÇÕES EVOCADAS - IMAGEM 02 - PROJETO 01

GRÁFICO 11 - COMPREENSÃO DA PLANTA BAIXA- PROJETO 01

GRÁFICO 12 - MÉTODOS DE REPRESENTAÇÃO - PROJETO 01

GRÁFICO 13 - LEGIBILIDADE DA REPRESENTAÇÃO GRÁFICA - PROJETO 01

GRÁFICO 14 - O QUE MAIS GOSTOU - PROJETO 02

GRÁFICO 15 - O QUE MAIS CHAMOU ATENÇÃO - PROJETO 02

GRÁFICO 16 - PONTOS DE MAIOR ATENÇÃO - IMAGEM 01- PROJETO 02 GRÁFICO 17 - SENSAÇÕES EVOCADAS - IMAGEM 01 - PROJETO 02

GRÁFICO 18 - PONTOS DE MAIOR ATENÇÃO - IMAGEM 02- PROJETO 02 GRÁFICO 19 - SENSAÇÕES EVOCADAS - IMAGEM 02 - PROJETO 02

GRÁFICO 20 - COMPREENSÃO DA PLANTA BAIXA- PROJETO 02 GRÁFICO 21 - MÉTODOS DE REPRESENTAÇÃO - PROJETO 02 GRÁFICO 22 - LEGIBILIDADE DA REPRESENTAÇÃO GRÁFICA - PROJETO 02

GRÁFICO 23 - COMPREENSÃO DOS PROJETOS - TOUR VIRTUAL GRÁFICO 24 - REPRESENTAÇÃO GRÁFICA MAIS EFICIENTE - TOUR VIRTUAL

52 52 76 77 112 113 114 115 116 117 118 119 119 120 121 122 123 124 124 125 126 129 130

TABELA 01 – PONTOS RELEVANTES DOS ESCRITÓRIOS ANALISADOS

TABELA 02 - TEMPO MÉDIO TOUR

indíce de tabelas 73 111

AOI

NBR

ABNT BIG BIST UNA PDF SP

ÁREAS DE INTERESSE

NORMA BRASILEIRA

ASSOCIAÇÃO BRASILEIRA DE NORMAS TÉCNICAS

BJARKE INGELS GROUP

BARCELONA INSTITUTE OF SCIENCE AND TECHNOLOGY

UNA BARBARA E VALENTIM ARQUITETOS ASSOCIADOS

PDF PORTABLE DOCUMENT FORMAT

SÃO PAULO

lista de siglas

i n t r o d u ç ã o

O pilar que sustenta todos os enclaves da Arquitetura são as pessoas A arquitetura é feita por elas e para elas A neuroarquitetura acredita que a incorporação da compreensão das questões biológicas e racionais que fazem com que um ambiente ou projeto impacte no cérebro e na percepção espacial das pessoas, é o ponto primordial para arquitetos e urbanistas projetarem Quando se compreende a importância das emoções, sentimentos e outros aspectos cognitivos na materialização de espaços construídos, se tem ambientes mais confortáveis e saudáveis para os usuários

Para além do espaço construído de fato, o estudo da neurociência aplicada à arquitetura pode permear por várias aplicações No caso do presente trabalho, a discussão será em torno da legibilidade das representações gráficas em projetos arquitetônicos

O projeto arquitetônico é dividido em várias etapas de desenvolvimento, mas a principal para que o cliente entenda a ideia do projetista, é o estudo preliminar Nele o conceito, partido, materiais e formas são definidos para que o usuário visualize suas necessidades e sonhos naquele ambiente materializado No estudo preliminar, pode ser apresentado para o cliente plantas baixas, cortes e imagens para que a compreensão seja facilitada Mas até que ponto as representações gráficas feitas por escritórios de Arquitetura transmitem aquilo que é desejado por seus clientes?

Como está sendo o entendimento e a legibilidade desses projetos para as mais diversas pessoas? Será que boas propostas são recusadas por representações gráficas confusas? Como a neurociência aplicada à arquitetura pode influenciar nesses processos?

Sabe-se através dos estudos da neurociência que o cérebro é capaz de receber estímulos diferentes em um mesmo ambiente Trazendo essa informação para a representação gráfica arquitetônica, temos cores, tamanhos de letra e desenhos, formas que podem causar múltiplos estímulos sendo eles positivos ou não, dependendo da percepção pessoal de cada pessoa É missão do arquiteto, como profissional, fazer um levantamento prévio de informações que gerem um documento norteador para produção e execução do projeto, conhecido como briefing No briefing, é primordial traçar o perfil do cliente, deve se considerar aspectos da vida pessoal, desejos, expectativas, o que é ou não negociável dentro do projeto entre outros fatores

O ponto levantado nesse estudo é como expandir essa análise do perfil do cliente para que o projeto arquitetônico seja criado alinhado com as percepções pessoais do cliente e trazendo estímulos positivos Detalhes como nível de entendimento técnico, cores que agradam ou desagradam, emoções que são desejadas e que são descartadas, são aspectos importantes a serem considerados nesse processo

Ainda podemos considerar que o modo que é apresentado o projeto ao cliente é o produto Fazendo analogia a um item qualquer de mercado, para que as pessoas sintam vontade de obter esse item ele precisa passar uma imagem clara e atraente para despertar o interesse do possível comprador Com projetos arquitetônicos, não é diferente A mensagem a ser passada, nesse caso as ideias projetuais, devem ser claras e atrair os receptores, os clientes Sendo assim, a linguagem do desenho deve ser clara a quem o recebe Se para arquitetos o produto é o projeto, como tornamos nossos projetos mais atrativos? Quais aspectos devemos considerar para passar uma mensagem clara? Como novas tecnologias podem influenciar nesse processo?

I N T R O D U Ç Ã O .
1 5

O profissional de Arquitetura utiliza de representações gráficas tais como plantas, cortes, perspectivas para materializar a ideia do projeto concebido Na prática, é observado que os clientes não conseguem compreender esses produtos gráficos de forma clara Nesse sentido, esse trabalho tem como objetivo avaliar como os clientes compreendem a leitura do projeto arquitetônico recebidos pelos arquitetos considerando aspectos da neurociência aplicada à arquitetura

O B J E T I V O S E S P E C Í F I C O S

Avaliar diversas formas de representação de projetos utilizada por arquitetos hoje; Avaliar a forma que os projetos são apresentados ao cliente; Explorar questões de visão, sentidos do corpo humano e aspectos cognitivos na compreensão e legibilidade de projetos arquitetônicos; Considerar o impacto de representações gráficas no estudo preliminar, revisando a importância desses itens para arquiteto e cliente através de testes específicos;

J U S T I F I C A T I V A

Nos últimos anos, pesquisadores e cientistas da neurociência já comprovaram que nossas emoções, sentimentos e outros aspectos cognitivos influenciam na forma como percebemos os ambientes arquitetônicos em geral Apesar da recente crescente de estudos na área da neurociência aplicada à arquitetura , ainda há uma lacuna no estudo dessas influências na fase que antecede o espaço construído em si Desse modo, esse trabalho tem a intenção não só de explicar como a forma que arquitetos fazem a representação gráfica de seus projetos influência na forma como esse projeto é entendido por seu usuário, mas também de desenvolver maneiras para que esse processo seja facilitado considerando os conceitos que envolvem a neurociência aplicada à arquitetura

M E T O D O L O G I A

A metodologia do presente trabalho se divide entre coleta e análise de dados através de estudos de casos com escritórios de arquitetura e o levantamento de dados sobre a percepção neurocientífica dos participantes quanto à representação gráfica apresentada através de testes com a utilização do equipamento de rastreamento ocular Eye Tracker

1 6 o B J E T I
V O S

c o n s i d e r a ç õ e s t e ó r i c a s

1 .

O capítulo a seguir tem como finalidade explicar conceitos de na neurociência aplicada à arquitetura, além de apresentar explicações mais profundas sobre aspectos cognitivos importantes para a compreensão desses novos estudos

Os pontos apresentados nesse capítulo, funcionarão como embasamento teórico para o restante do trabalho e demais capítulos1 . 1 N e u r o c i ê n c i a a p l i c a d a à A r q u i t e t u r a

Segundo o arquiteto Keijo Petäjä “Arquitetura é o espaço mental construído " Quando olhamos a arquitetura a partir desse princípio, conseguimos compreender sua relação com a neurociência

Na definição do neurocientista Fred H Gage, no livro Brain Landscape The Coexistence of Neuroscience and Architecture, a neurociência nada mais é que o estudo do cérebro humano e esse órgão é responsável pelo controle do comportamento O sistema nervoso em geral é composto por áreas que controlam nossas experiências motoras e sensoriais, a visão e muitos outros postos que nos ajudam no dia a dia

De forma resumida, a neurociência é o estudo de várias disciplinas que tratam do sistema nervoso com o principal objetivo de entender o funcionamento da mente humana Como as diferentes partes do cérebro interagem diante de várias tarefas distintas e o que cada uma faz e como nossas emoções podem afetar nesse sistema

A arquitetura, tem como premissa básica projetar espaços confortáveis e adequados à necessidade humana A tarefa da arquitetura vai além de suas particularidades materiais, funcionais e estética, ela também estende sua face para esfera mental e existencial da vida (PALLASMAA, 2010) Através dela, pode-se materializar ambientes com grande impactos na vida dos usuários, que causam as mais diversas sensações e percepções e que se diferem de pessoa para pessoa

Através da estruturação e articulação do espaço existencial vivido e das situações da vida, a arquitetura constitui nosso sistema mais importante de ordem, hierarquia e memória externalizadas Conhecemos e lembramos quem somos como seres históricos por meio de nossos cenários construídos A arquitetura é uma expressão materializada do espaço mental, e nosso próprio espaço mental é estruturado pela arquitetura (PALLASMA, 2010, p 8)

Os espaços materializados pela arquitetura não fornecem apenas abrigo ou são facilitadores de atividades do dia a dia Eles abrigam nossos desejos, expectativas, memórias e sonhos Os cenários construídos são partes de nós, podem ser definidos como nossa paisagem mental “A arquitetura é uma expressão materializada do espaço mental, e nosso próprio espaço mental é estruturado pela arquitetura” (PALLASMA, 2010,ARCHITECTURE AND NEUROSCIENCE) A relação da arquitetura com a neurociência se dá nesse ponto, compreendo que nossa mente, nossas emoções, sonhos e memórias fazem parte da materialização da arquitetura em espaços construídos e que nosso comportamento é moldado e influenciado por esses ambientes, mas também os influência de forma direta

A neurociência aplicada à arquitetura é a aplicação do estudo da neurociência para os espaços construídos Através dela, conseguimos entender o impacto de projetos arquitetônicos no comportamento humano (PAIVA,2017) O estudo dessa variante nos permite criar ambientes mais profundos, nos tornando seres humanos mais sensíveis e melhores A interação dessas duas vertentes do conhecimento oferece um grande potencial para melhorar a qualidade dos ambientes (PALLASMA, 2010 )

Através da união da arquitetura com a neurociência, surgem novas tendências que são incorporadas em projetos, através de estudos científicos e outros meios de testagem Entretanto, é importante ressaltar que não existe um padrão Cada pessoa recebe e entende o projeto arquitetônico e os espaços construídos através dele de uma forma singular

1 8 C O N S I D E
Ç Õ
R A
E S T E Ó R I C A S

O ambiente é uma variável que pode influenciar nossa ação, nossa percepção nosso estado mental Isto é, nós podemos apresentar diferentes comportamentos e percepções dependendo das características físicas do lugar onde nos encontramos, nós reagimos de maneiras diferentes em ambientes diferentes mas nem todos responderão de forma semelhante ao mesmo espaço (PAIVA, 2020)

É função dos arquitetos empenhados em projetar com auxílio da neurociência aplicada à arquitetura, considerar os mais diversos fatores dentro da produção de um projeto Aspectos considerados positivos para um projeto, podem ser negativos para outros O ponto principal é conhecer o usuário Fatores como faixa etária, por exemplo, afetam diretamente a percepção espacial do indivíduo, pois o funcionamento dos seus órgãos sensoriais e até mesmo o funcionamento de seu cérebro é diferente de acordo com a fase da vida que ele se encontra

Outro ponto nessa mesma fundamentação, é explorar os sentidos humanos para criar projetos mais legíveis a qualquer perfil de usuário E compreender como esses sentidos são recebidos através da neurociência é primordial para execução de projetos mais corretos

Entender como os sentidos captam informações sobre o mundo exterior ao corpo, como imagens, sons, cheiros, texturas, temperaturas, sabores e como o cérebro interpreta tudo isso contribui para que arquitetos e designers tomem decisões mais acertadas em seus projetos (PAIVA, 2020)

Nessa perspectiva, entender a neurociência como indispensável aliado para projetar ambientes que consigam afetar positivamente no comportamento humano é levar em conta não só fatores estéticos e funcionais, mas também fatores sensoriais como cores, texturas, sons, iluminação, cheiros, para que seja criada nos usuários uma experiência única e completa

1 . 2 A s p e c t o s C o n i g t i v o s 1 . 2 A s p e c t o s C o n i g t i v o s

1 . 2 . 1 E m o ç õ e s 1 . 2 . 1 E m o ç õ e s

Emoções são conjuntos complexos de reações químicas e neurais, formando um padrão; todas as emoções têm algum tipo de papel regulador a desempenhar, levando, de um modo ou de outro, à criação de circunstâncias vantajosas para o organismo em que o fenômeno se manifesta; as emoções estão ligadas à vida de um organismo, ao seu corpo, para ser exato, e seu papel é auxiliar o organismo a conservar a vida (DAMASIO 2000, p 103)

As emoções são respostas corporais a estímulos internos e externos inconscientes e determinam nossa qualidade de vida Elas afetam nossas expressões corporais externas, como mudanças faciais e posturais e até mesmo internas, nas vísceras e outras partes do corpo Elas estão ligadas aos sentidos multissensoriais e são desencadeadas por situações que estão acontecendo no momento, pelo ambiente que nos encontramos e até mesmo através de lembranças do que já vivemos (DAMASIO, 2011)

O autor Antônio R Damásio divide as emoções em três principais grupos, sendo eles: emoções primárias, emoções secundárias e emoções de fundo As emoções primárias podem ser exemplificadas através de emoções universais como alegria, tristeza, medo ou raiva São comuns a todos os seres humanos, independente das influências internas e externas, ambientes que estão inseridos ou sua cultura

1 9

Figura 01 – Tipos de Emoções

As emoções secundárias, já levam em consideração fatores sociais e culturais, podem surgir através de experimentação social e contexto que o indivíduo está inserido São respostas a situações já vivenciadas que causam um estado emocional no corpo Causam mudanças no funcionamento das vísceras, musculaturas esqueléticas e glândulas endócrinas, gerando taquicardia em alguns casos, por exemplo Ciúme, culpa e orgulho estão neste grupo (DAMASIO, 2005)

Por fim, as emoções de fundo, são aquelas que percebemos através de detalhes sutis, como a postura do corpo, movimentos corporais e oculares e grau de concentração dos músculos faciais São exemplos desse tipo de emoção, o bem estar ou o mal estar, tensão e calma Os indutores dessas emoções normalmente são internos Vivências e processos da vida do indivíduo podem causar esse tipo de emoção, mas elas também surgem a partir de gatilhos de conflito mental ativos ou inativos, que podem inibir ou satisfazer as suas motivações pessoais (DAMASIO, 2011)

As emoções também apresentam função biológica, moldada através de ajustes evolutivos Elas funcionam na regulação biológica dos nossos corpos, auxiliando na adaptação do organismo para nos manter vivos nas mais diversas situações As mudanças que acontecem no nosso estado interno e até mesmo mudanças no ambiente são captadas pelo cérebro que gera reações específicas para cada situação adaptando o corpo para as novas condições Por exemplo, o corpo fornece fluxo sanguíneo mais intenso às artérias das pernas para que os músculos funcionem melhor em uma situação de fuga e pode alterar os batimentos cardíacos e respiratórios em casos onde há imobilização As emoções atuam nesses casos como um estímulo para que o cérebro altere o estado físico e mental do corpo (DAMASIO,2000)

Para certos tipos de estímulos claramente perigosos ou valiosos no meio interno ou no externo, a evolução reservou uma reação condizente, na forma de emoção É por esse motivo que apesar das infinitas variações encontradas nas diferentes culturas, entre os indivíduos e no decorrer de uma vida, podemos predizer com algum êxito que certos estímulos produzirão certas emoções (DAMASIO, 2000, p 9)

A arquitetura também serve como estímulo para as emoções Os espaços construídos e suas particularidades geram as mais diversas reações em um indivíduo Elementos como cores, texturas, sons, cheiros, materiais diversos servem como gatilho para que nosso cérebro comece a trabalhar e essas mudanças muitas vezes acontecem de forma inconsciente Através da materialização de projetos arquitetônicos, a arquitetura tem o poder de mudar comportamentos As estruturas do ambiente afetam o cérebro e o cérebro afeta o comportamento Ou seja, quando o arquiteto projeta um espaço, intrinsecamente está afetando nossos cérebros, gerando reações que explicitam nossas emoções (EBERHARD, 2008)

2 0

Os sentimentos são as percepções compostas do que ocorre no nosso corpo e na nossa mente quando uma emoção está acontecendo Eles são imagens de ação que acontecem através de percepções executadas em mapas cerebrais (DAMÁSIO, 2011 )

Um sentimento é uma percepção de um certo estado do corpo, acompanhado pela percepção de pensamentos com certos temas e pela percepção de um certo modo de pensar Todo esse conjunto perceptivo se refere à causa que lhe deu origem Os sentimentos emergem quando a acumulação dos detalhes mapeados no cérebro atinge um determinado nível (DAMÁSIO, 2009, p 66)

A essência dos sentimentos se constitui em percepções sobre como o corpo reage a certos objetos e situações Essas percepções são formadas por mapas cerebrais que são continuamente formados pelo corpo através de estruturas cerebrais Os mapas cerebrais são a forma que o cérebro encontra de registrar tudo que vivemos (DAMÁSIO, 2009)

Esses mapas cerebrais possuem a função de representar os estados do nosso corpo e são essenciais para regulação cerebral da vida Isso significa que os sentimentos não dependem apenas das percepções acionadas pela presença de um corpo e da existência de um cérebro que o represente, mas também dependem da existências de dispositivos prévios - como os mapas mentais - de regulação vital que incluem os mecanismos de emoções e apetite (DAMÁSIO, 2011)

Os sentimentos são tão mentais como qualquer outra percepção mas os objetos imediatos que lhes servem de conteúdo fazem parte do organismo vivo do qual os sentimentos emergem (DÁMASIO, 2011, p 71)

De forma geral, os sentimentos possuem funções emocionais, ligadas a criação de memórias e são percebidos através dos nossos sentidos São processos internos engatilhados pelas emoções ou por nossas percepções de objetos, lugares, coisas ou pessoas Também possuem função biológica, pois funcionam como um regulador do corpo humano, mantendo nossas funções vitais e homeostática

Figura 02 – Ciclo Emoção – Sentimento

ccoemocona ccoemocona RGM NT O S TM TO estmuos estmuos processamento processamento

reaçãoemocona reaçãoemocona

SENTMENTO SENTIMENTO

estadoemoca estadoemoca percepção

Fonte: Autora, 2022

Fonte: Autora, 2022

2 1
1 . 2 . 2 S e n t i m e n t o s

O ciclo emoção - sentimento é importante para compreendermos, por exemplo, o motivo pelo qual duas pessoas em um mesmo ambiente podem possuir percepções diferentes Esse ciclo neural começa com o cérebro recebendo e avaliando estímulos sensoriais do ambiente, gerando mudanças em nossas posturas, expressões faciais e sensações musculares resultando em um estado emocional Após isso, através da percepção desse estado emocional, é gerado o sentimento

Visto de uma perspectiva neural, o ciclo emoção –sentimento começa no cérebro com a percepção e avaliação de um estímulo potencialmente capaz de gerar uma emoção O processo dissemina-se então para outra parte do cérebro e pelo corpo propriamente dito, desenvolvendo o estado emocional Na conclusão, o processo retorna ao cérebro para a parte do ciclo correspondente ao sentimento, embora o retorno envolve regiões cerebrais diferentes daquelas onde tudo começou (DÁMASIO 2011,pág 144)

As percepções que geram o ciclo emoção - sentimento são diferentes nos indivíduos Isso acontece porque essas percepções são influenciadas por fatores como cultura, valores e até mesmo idade Por isso, um ambiente pode causar medo e tranquilidade ao mesmo tempo a usuários diferentes, por exemplo Essa relação depende das memórias que são engatilhadas pelo espaço, das emoções sentidas e dos sentimentos que são gerados por elas A experiência arquitetônica está ligada, nesse caso, a uma interação entre mente e espaço físico, sendo pessoal e mutável

1 . 2 . 3 M e m ó r i a s

Segundo Izquierdo (2011), as memórias possuem o significado de aquisição, formação, conservação e evocação de informações As memórias vêm a partir das experiências, aprendizados e lembranças Só temos memórias daquilo que efetivamente aprendemos ou vivenciamos O acervo de memórias de cada indivíduo indica sua singularidade além de determinar sua forma de ser e sua personalidade

Damásio (2011) define o processo de criação de memórias como recall ou evocação O cérebro realiza registros de memórias dos mapas sensoriais formados por nossas experiências e reproduz uma versão para ficar armazenada Esse processo pode ser definido por uma palavra: recordação Quando nos recordamos de situações vividas, pessoas e objetos que interagimos e acontecimentos que percebemos à nossa volta, estamos iniciando o processo de criação da memória

Além de criar representações mapeadas que resultem em imagens perceptuais, o cérebro realiza outra proeza igualmente notável: cria registros de memória dos mapas sensoriais e reproduz uma aproximação de seu conteúdo original Esse processo é conhecido como recall, ou evocação Lembrar uma pessoa ou evento ou contar uma história requer a evocação; reconhecer objetos e situações à nossa volta também, e o mesmo vale para pensar em objetos com os quais interagimos e acontecimentos que percebemos, e para todo o processo imaginativo com o qual planejamos para o futuro (DAMÁSIO, 2011,pág 144)

As memórias são compostas por atividades sensitivas e motoras relacionadas à interação entre o indivíduo e o meio durante um período de tempo O conjunto dessas atividades varia conforme as circunstâncias e nossa recordação dessas atividades Nossas memórias podem ser guiadas por conhecimento prévio de situações parecidas que já vivemos e são influenciadas pela nossa história e crenças O cérebro retém memórias do que aconteceu durante essas interações e essas interações incluem nosso passado e até mesmo o passado de nossa cultura e de nossa espécie (DAMÁSIO, 2011)

É possível identificar e classificar os tipos de memória através de sua função, de acordo com o tempo que duram ou de acordo com o seu conteúdo As memórias variam seu grau de complexidade através do nível de atividades sensitivas e motoras em relação ao momento que está sendo vivenciado Quanto maior é essa relação, mais complexa é a memória (DAMÁSIO, 2011)

2 2

O cientista argentino Ivan Izquierdo (2011) divide os tipos de memórias em dois grupos O primeiro, representa as memórias segundo sua função, essas são conhecidas como memórias de trabalho O segundo grupo considera aspectos como o conteúdo da memória, sendo então englobadas as memórias declarativas e as procedurais

Figura 03 – Tipos de Memórias

segundosua segundosua função

memórias memórias memórias

segundoseu segundoseu conteúdo

Uma falha em nossa memória de trabalho dificultaria nosso julgamento sobre a relevância de um episódio que ocorre corriqueiramente e prejudicaria nossa percepção da realidade Memória de trabalho também pode ser conhecida como memória imediata, porque diferentemente de outros tipos, não produz “arquivos” de longo prazo Um exemplo de um momento em que nossa memória de trabalho está ativa é quando gravamos durante alguns segundos o número de telefone de alguém e após discá-lo esquecemos (IZQUIERDO, 2011)

A memória de trabalho é processada fundamentalmente pelo córtex pré-frontal –– a porção mais anterior do lobo frontal – suas porções anterolateral e órbito-frontal e suas conexões com a amígdala basolateral e o hipocampo através do córtex entorrinal (IZQUIERDO, 2011,pág 29)

Figura 04 – Partes do cérebro responsáveis pelas memórias de trabalho

Fonte: Autora, 2022.

As memórias de trabalho são chamadas assim por serem breves e possuírem a função de gerenciar a realidade dos indivíduos Elas determinam o contexto em que ocorrem acontecimentos, fatos e informações cotidianas e definem se já possuímos memórias existentes sobre o que está acontecendo ou se vamos ou não criá-las Atuam na nossa mente mantendo informações que estão sendo processadas no momento por poucos segundos ou minutos e nos lembram a todo momento sobre o que estamos fazendo no presente e o que fizemos em momentos anteriores, dando continuidade aos nossos atos

Fonte: Ann L Myers Adaptado pela autora

2 3
T POS DE MEMÓRIAS MEMÓR AS AS DECLARAT VAS
MEMÓRIAS DE MEMÓR AS DE TRABALHO TRABALHO
cas
MEMÓR AS MEMÓRIAS PROCEDURA S PROCEDURA S
semânt cas
ep sód cas ep sód cas

As memórias declarativas são memórias que registram acontecimentos, fatos, eventos e o conhecimento São chamadas dessa forma pois podemos declarar como as adquirimos Esse grupo de memória possui inserido nele outros subtipos de memória, cada uma responsável por guardar um tipo diferente de conteúdo As semânticas são as nossas memórias relacionadas a conhecimentos gerais, por exemplo história e português São memórias que podem ser geradas implícita ou explicitamente a nossa percepção Já as episódicas ou autobiográficas, são memórias que conhecemos a origem, estão relacionadas a eventos que vivenciamos, lembranças de algum episódio marcante, algum ambiente ou alguma informação que foi compartilhada conosco (IZQUIERDO, 2011)

As principais regiões moduladoras da formação de memórias declarativas são a área basolateral do núcleo amigdalino ou amígdala localizada também no lobo temporal (nas suas fases iniciais) e as grandes regiões reguladoras dos estados de ânimo e de alerta, da ansiedade e das emoções localizadas à distância: a substância negra, o locus ceruleus, os núcleos da rafe e o núcleo basal de Meynert (IZQUIERDO, 2011, pág 36)

Figu 05 P i i i iõ á i l ó i d l ti

Para finalizar o grupo de memórias definidas por seu conteúdo, temos as memórias procedurais ou de procedimentos São as memórias que armazenam nossas capacidades e habilidades motoras e sensoriais, nossos hábitos Como por exemplo, andar de bicicleta Não são memórias que podemos declarar que possuímos como as declarativas, precisamos de fato realizar a ação que prediz a memória (IZQUIERDO, 2011)

Os circuitos responsáveis pelas memórias de procedimentos envolvem o núcleo caudato (inervado pela substância nigra ou negra) e o cerebelo Algumas delas também utilizam circuitos do lobo temporal (hipocampo córtex entorrinal) nos primeiros dias depois de sua aquisição (IZQUIERDO, 2011 pág 37)

Figura 06 – Principais regiões responsáveis pelas memórias procedurais

Fonte: The institutional amygdala How is your organisation s amygdala | by Lorenn

Ruster | SingularityU | Medium Acesso em: 30 maio 2022 Adaptado pela autora

Fonte: Sarà Possibile bloccare il Parkinson, lo dimostrano nuovi test sui neuroniPositizie Acesso em: 30 maio 2022 Adaptado pela autora

2 4

As memórias se relacionam com a arquitetura de forma intrínseca Quando percebemos um ambiente de maneira inicial estamos utilizando nossas memórias de trabalho, se esse ambiente nos despertar alguma emoção e gerar algum sentimento criamos lembranças que são armazenadas nas memórias episódicas De forma geral, é possível concluir que a arquitetura pode ser grande aliada no processo de formação de memórias, pois os espaços em que vivenciamos situações cotidianas, aprendemos algo novo ou vivemos momentos marcantes se bem pensados e projetados podem agregar valor a esse processo

2 5

p r o j e t o a r q u i t e t ô n i c o e r e p r e s e n t a ç ã o g r á f i c a

2 .

R E P R E S E N T A Ç Ã O G R Á F I C A

É de conhecimento geral que os arquitetos expressam seus projetos por meio de variados tipos de representação gráfica Como o intuito de elucidar e apresentar alguns dos métodos de representação arquitetônica existentes, nesse capítulo, serão aprofundadas questões sobre o processo de desenvolvimento de um projeto arquitetônico e exposição de normas técnicas nacionais e a relevância dessas normas para a produção arquitetônica

Também será analisado os tipos de representação gráfica que os arquitetos estão usando em seus projetos pelo mundo Quatro escritórios, sendo dois deles nacionais e dois internacionais terão seus projetos analisados com o objetivo de avaliar sua legibilidade e compreensão por parte do receptor final, o cliente Além disso, serão apontadas as diferenças representativas existentes que variam de acordo com a cultura do país e outros aspectos que serão expostos

2 . 1 p r o j e t o a r q u i t e t ô n i c o e r e p r e s e n t a ç ã o 2 . 1 p r o j e t o a r q u i t e t ô n i c o e r e p r e s e n t a ç ã o g r á f i c a g r á f i c a

Na arquitetura, os desenhos funcionam como a forma de arquitetos se comunicarem Possuem objetivo central de transferir as ideias do projetista ao cliente final e podem ser de diversos tipos e formas É através da concepção do projeto que os desenhos surgem e comunicam seus propósitos

Um desenho de arquitetura – uma planta, um corte, elevação perspectiva – de modo geral, tem como objeto de representação a obra de arquitetura de modo integral e, de acordo com o receptor-alvo segundo padrões que correspondem a repertórios estabelecidos: o desenho entre arquitetos, o desenho para o leigo, o desenho para a construção (SPERLING,2003, p 178)

O processo de criação de projetos pode acontecer de múltiplas formas e varia de acordo com profissional O espaço onde surge o projeto arquitetônico é interdisciplinar e apresenta diversas abordagens Cada arquiteto possui sua forma pessoal de projetar e representar seus projetos para seus clientes e essa pluralidade pode ser observada nos inúmeros métodos representativos existentes

O campo projetivo arquitetônico situa-se numa área intermediária entre ciência e arte, tendo que responder a questões não perfeitamente definidas e permitindo múltiplas abordagens (KOWALTOWSKI et al , 2006, p 8)

Apesar de toda liberdade que os arquitetos possuem em seu processo de criação, no Brasil existem as Normas Brasileiras conhecidas como NBRs As NBRs são desenvolvidas pela Associação Brasileira de Normas Técnicas (ABNT) possuem a função de padronizar processos e apresentam caráter técnico, como o próprio nome indica Essas normas definem pontos primordiais a serem seguidos em projetos arquitetônicos e representações gráficas no caso da Arquitetura, além de considerações sobre os mais diversos temas e produtos

O projeto arquitetônico é abrangido pela NBR 16636-2 Essa norma é a segunda parte da NBR 16636 e especifica as atividades técnicas que devem ser desenvolvidas durante o desenvolvimento de um projeto arquitetônico Entre outros aspectos, a NBR lista as fases do projeto arquitetônico, sua programação, requisitos e seus objetos

2 7 P R O J E T O A R Q U I T E T Ô N I C O E

O projeto arquitetônico é parte do projeto completo de edificação, conjunto de projetos das diversas especialidades necessárias para a execução de uma edificação Estes projetos são desenvolvidos por meio de uma abordagem evolutiva, caracterizada por etapas e fases, e também considerando-se tempos simultâneos para atividades complementares de diversas especialidades que têm que ser coordenadas e integradas (ASSOCIAÇÃO BRASILEIRA DE NORMAS TÉCNICAS, 2017, p v)

Dentre seus requisitos gerais, cita informações técnicas que devem estar presentes em projeto, dentre elas exemplifica alguns tipos de representações gráficas que devem ser utilizadas na apresentação do projeto arquitetônico São pontuados desenhos, textos, planilhas e tabelas, fluxogramas, cronogramas, fotografias, maquetes e outros meios de representação (ASSOCIAÇÃO BRASILEIRA DE NORMAS TÉCNICAS, 2017)

Figura 07 - Informações técnicas mínimas constantes do projeto arquitetônico

Fonte: Autora, 2022.

2 8

Há também uma NBR específica para representação de projetos de arquitetura, a ABNT NBR 6492 A norma apresenta os tópicos exigidos para a representação de projetos arquitetônicos com objetivo de alcançar uma boa legibilidade São pontuados os objetos básicos que um projeto de arquitetura deve conter para possuir todas as informações necessárias para sua execução De forma geral, são citadas planta de situação, de implantação, planta de edificação, corte, fachada, elevações e outros pontos, conforme Figura 08 Entretanto, a NBR ainda se preocupa em dividir esses objetos em diferentes etapas de projeto como anteprojeto e executivo descrevendo o que cada um deve possuir e detalhar (ASSOCIAÇÃO BRASILEIRA DE NORMAS TÉCNICAS, 1994)

Figura 08 – Representação de Projetos de Arquitetura

NBR 6492 representação de proetos de arquitetura NBR 6492: de proetos arquitetura NBR 6492 representação de projetos de arqutetura

3 DEFIN ÇÕES

3 1 panta de s tuação

maçõe especfcas em função do po e por e do programa assm comoparaa nadadeaquesede tna

Vsta upe or do pano secante horzonta ocazado a apoxmadamene 150 m do pso em reerênca A atua dessepanopodese a áveparacadapoetodemaneraa repreenar odososeemenosconsdeadosnecesá os

Pantaquecomp eendeop oetocomo mtodo con endo aém do p oeto de arqute ura as nformações nece sáras do p oetoscompementa es tascomomovmen ode erra arruamen o redes hdráuca eétrca e de d enagem ent e outro

3 1 panta de mpantação

3 4 corte

3 3 panta de ed f cação Pano secane vetca que dvde a ed cação em duas pates sea no sen do ongtudna sea no ransvesa O corte oucore dee e dspostode ormaqueodeenho mosteomáxmopos vededetahe constutvo

3 5 fachada Repreentaçãográ cadepano exernosdaed cação O corte tansverase ong udnaspodem e marcadosna fachadas

3 6 eevaçõesRepreentaçãográfcadepanos ntenosoudeeementos daedfcação

3 7 detahes ou amp ações Repreentaçãográ cadetodoso pormenoe necesáros em escaa adequada paa um pereto entendmento do proetoeparapossb arsuacoretaexecução

3 8 escaa Reaçãodmensona enrea epesentaçãodeumobetono desenhoesuasdmensões eas

3 9 programa de necess dades Documento premnar do p oeto que caracterza o emp eendmentoouop oetoobetodeestudo quecontémo evantamen o da n ormações necessá as ncundo a reação dos etores que o compõem ua gações necessdades de área ca ac er tcas geras e equs o especas pos urasmuncpas códgosenormaspe tnen es

3 11 d scr m nação técn ca Documentoesc todoproeoquede ormaprec acompea e odenada desceve o maera de consrução a eem ut zados ndca os ocas onde etes materas devem se apcadosedeterm aas écncasexgda paaoseuempego

3 10 memor a ust f cat vo Texto que evdenca o aendmento às condções estabeecdasnoprogamadenecessdades Apresenao patdo arqu etônco adoado que é dendo no esudo premnar

3 12 espec f cação Tpodenomades nadaa xarascaacer tcas condções ou requsto exgves paa matéra -prmas produtos sem ab cado eementos de consrução maeras ou produtosndu trassem-acabados

3 13 sta de mater a s Levantamentoquanttatvode odoomate aespec cadono proetocomasnformaçõessu cenesparaasuaaqusção A aaçãodoscusto dosser ços materas mão-de-obrae taxas eatvasàoba 3 14 orçamento

Fonte: Autora, 2022.

2 9
Panta que compreende o par do a qute ônco como um todo em eu mú pos a pec os Pode conte n o

São também apresentados aspectos técnicos como formatos a serem utilizados nas pranchas, carimbo, escala e até técnicas de desenho para cada fase do projeto Nos anexos, são exemplificados modelos para representação seguindo a Norma de aspectos como linhas, cotas e simbologias gerais

Pode-se dizer que as normas técnicas guiam desenhos mais técnicos com uma linguagem menos lúdica aos olhos do receptor e muitas vezes até incompreensíveis para quem não conhece esses padrões e termos pré-definidos Com a ascensão das tecnologias, muitas outras formas representativas foram surgindo para facilitar a comunicação do arquiteto com o cliente e a compreensão da ideia proposta Os desenhos voltados para a execução do projeto em obra são técnicos e seguem o padrão proposto pelas NBRs, já os apresentados para os usuários são mais visuais e livres Renders, imagens ultra realistas, diagramas conceituais e até mesmo realidade virtual já são ferramentas utilizadas em grandes escritórios pelo mundo

Um ponto relevante para escolha desse escritório para essa análise, é a forma que os colaboradores organizam os projetos no site do escritório Uma identidade visual é criada para cada projeto e o usuário visualiza todos como se fossem uma grande vitrine Ainda há a opção de visualizar os projetos por ordem cronológica, localização no globo, status do projeto, ordem alfabética ou escala (Figura 09)

Figura 09 – Site BIG - Bjarke Ingels Group

2 . 2 . A n á l i s e d e R e p r e s e n t a ç õ e s G r á f i c a s

Em seguida, iremos avaliar e exemplificar métodos de representação arquitetônicas utilizadas por 4 grandes escritórios de arquitetura nacionais e estrangeiros que unem aspectos mais técnicos como os descritos nas normas e aspectos mais visuais propiciando maior legibilidade e entendimento de suas soluções arquitetônicas

2 . 2 . A n á l i s e d e R e p r e s e n t a ç õ e s G r á f i c a s d e E s c r i t ó r i o s d e A r q u i t e t u r a d e E s c r i t ó r i o s d e A r q u i t e t u r a 2 . 2 . 1 B I G - B j a r k e I n g e l s G r o u p 2 . 2 . 1 B I G - B j a r k e I n g e s G r o u p

O BIG é um escritório formado por inúmeros profissionais de arquitetura, urbanismo, paisagismo, design e outros Possuem sede em diversos países e cidades como Nova Iorque e Barcelona Seus projetos são pautados na ideia das mudanças contemporâneas e utópicas e possuem frentes em diversas áreas como urbanismo, arquitetura comercial, espaços públicos, espaços culturais, arquitetura residencial e hotelaria

Fonte: BIG | Bjarke Ingels Group Acesso em: 16 nov 2022

Todos esses aspectos funcionam como um fator de encantamento e são facilitadores para visualização das ideias conceituais dos projetos do escritório A preocupação com a qualidade da representação gráfica começa desde a montagem do site, o que é um grande diferencial visto a importância do mundo digital nos tempos atuais

3 0

Os projetos desse escritório foram escolhidos devido às representações gráficas utilizadas apostarem em diagramas, vistas isométricas, esquemas, cortes humanizados e outros detalhes exemplificativos aliados com as imagens ultra realistas que facilitam o entendimento de cada etapa das propostas As propostas analisadas fogem do convencional apresentado nos escritórios brasileiros, por exemplo, pois não apresentam as usuais plantas baixas Toda a linguagem visual criada para os projetos visa facilitar o seu entendimento por parte do visualizador, tendo ele algum conhecimento arquitetônico ou não

V a s t e r a s N e w T r a v e l c e n t e r V a s t e r a s N e w T r a v e c e n t e r

Esse é um projeto para o centro de infraestrutura de transportes da cidade de Västerås, na Suécia Une elementos arquitetônicos e urbanos com o objetivo de criar um marco urbano para a cidade A principal característica que guia o projeto é a cobertura ondulada que se transforma em elementos primordiais para o programa de necessidades da proposta Na Figura 10, pode-se observar esse elemento em ênfase

O escritório possui uma identidade projetual bem definida que se mostra no modo em que seus projetos são apresentados De forma inicial, nesse projeto, é apresentado um tipo de implantação em perspectiva para que o cliente compreenda a inserção da proposta no contexto urbano Os arquitetos utilizam de setas para indicar espaços de relevância dentro do centro de transporte para que a setorização seja observada de forma mais clara Esse modelo de representação isométrica, ilustrado na Figura 11, facilita a compreensão e visualização e faz com que o usuário tenha ideia da espacialidade da área

3 1
Figura 10 – Fotomontagem Vasteras New Travelcenter Fonte: BIG | Bjarke Ingels Group Acesso em: 01 jun 2022 Figura 11 – Implantação Isométrica Fonte: BIG | Bjarke Ingels Group. Acesso em: 01 jun. 2022

Foram utilizados diagramas esquemáticos em sequência, ilustrados na Figura 11 Esses diagramas demonstram a evolução da proposta seguindo os diferentes níveis da construção até a sua concepção final A utilização desse tipo de representação gráfica é didático e faz com que o cliente consiga visualizar de forma clara cada etapa projetual

Figura 12– Diagramas Sequenciais 01

jun 2022

O escritório ainda utiliza de vistas esquemáticas que demonstram a materialidade da construção de maneira mais simples, facilitando também o entendimento de etapas construtivas da proposta Um exemplo desses diagramas de materialidades está na Figura 13

Figura 13 – Diagrama de Materialidade 01

Na apresentação desse projeto, além de figuras e diagramas esquemáticos já expostos, os arquitetos também utilizaram de imagens 3D para que as ideias fossem compreendidas As imagens 3D apresentadas na Figura 14, são uma ferramenta que auxilia no entendimento da dinâmica da proposta pelo cliente, possibilitando uma visualização realista do projeto, fazendo com que o cliente se sinta no espaço proposto antes mesmo dele ser construído

3 2
Fonte: BIG | Bjarke Ingels Group Acesso em: 01 Fonte: BIG | Bjarke Ingels Group Acesso em: 01 jun 2022

Em uma contagem geral, nesse projeto são utilizados quatro diferentes tipos de representação gráfica: fotomontagens, vistas isométricas, diagramas sequenciais e de materialidade e imagens 3D

Localizado em Sevilha na Espanha, o projeto foi o vencedor de um concurso multidisciplinar para a nova sede do Centro de Pesquisa Comum da região O propósito central dessa proposta é conversar com o objetivo da cidade de se tornar referência em sustentabilidade promovendo espaços de uso público sombreados em terraços que se encaixam na construção além de possuir várias colunas cobertas com energia fotovoltaica que sustentam o edifício A relação do edifício com o entorno pode ser observada na Figura 15

3 3
Fonte: BIG | Bjarke Ingels Group. Acesso em: 01 jun. 2022 Figura 14 – Imagens 3D - Vasteras New Travelcenter J o n t R e s e a r c h C e n t r e J o i n t R e s e a r c h C e n t r e Figura 15 - Fotomontagem Joint Research Centre Fonte: BIG | Bjarke Ingels Group. Acesso em: 01 jun. 2022

A apresentação do projeto se inicia com diagramas que indicam para o cliente a pegada sustentável da proposta, além de explicar de forma direta e sucinta algumas das decisões projetuais (Figura 16) Os arquitetos se apropriam de ícones de fácil entendimento para ilustrar aspectos como insolação, utilizando de uma linguagem mais visual para que a ideia fosse captada de forma clara

Fonte: BIG | Bjarke Ingels Group Acesso em: 01 jun 2022

A setorização e divisão dos ambientes do edifício são representados por vistas isométricas (Figura 17) que se sobrepõem indicando a função e a localização de alguns espaços Esse método de representação auxilia na visualização tridimensional do projeto pelo usuário e pontua a materialidade e funcionalidade de alguns aspectos construtivos importantes para o conceito central da proposta dando ênfase na utilidade de cada parte do todo

BIG | Bjarke Ingels Group. Acesso em: 01 jun. 2022

3 4
Figura 16 – Diagramas Iniciais Figura 17 – Vistas Isométricas Fonte:

A sustentabilidade e os espaços verdes são de imensa relevância para o projeto sendo até um dos aspectos norteadores, por isso o grupo apresenta de forma parecida com o projeto anterior a implantação da proposta, destacando a vegetação para que o usuário compreenda a relação do edifício com o entorno Outro aspecto interessante da utilização desse recurso é que o terreno e o volume da proposta estão mais acentuados que os terrenos do entorno, chamando a atenção do visualizador para o centro da imagem (Figura 18)

A utilização de imagens 3D realistas nesse projeto mostra a intenção projetual de integrar o interior do edifício com o exterior pelo uso da vegetação em ambos espaços (Figura 19) A apresentação desses elementos serve também como um convencimento do cliente indicando que o escritório tirou partido do conceito sustentável que era a intenção central O uso de figuras humanas cria identificação e faz com que o cliente entenda a dinâmica dos espaços sendo mais um fator para a aceitação da ideia

Assim como no projeto anterior, os arquitetos também utilizaram fotomontagens, vistas isométricas, diagramas e imagens 3D para a representação gráfica dessa proposta

3 5
Fonte: BIG | Bjarke Ingels Group Acesso em: 01 jun 2022 Figura 18 – Implantação em Perspectiva Figura 19 - Imagens 3D - Joint Research Centre Fonte: BIG | Bjarke Ingels Group. Acesso em: 01 jun. 2022

O BIST é o projeto de um centro de inovação que possui em sua composição quatro instituições voltadas a pesquisas científicas na área da saúde Localizado na cidade de Barcelona, na Espanha, tem sua base na grade de estacionamento existente no terreno do edifício e tem como seu conceito guia a simbiose entre espaço natural e artificial utilizando da arquitetura vernacular da região como um dos seus partidos

Figura 20 – Evolução da Volumetria em Vista

Fonte: BIG | Bjarke Ingels Group. Acesso em: 01 jun. 2022

O escritório demonstra de forma inicial por meio de esquemas em vista, a evolução da volumetria do edifício para que o progresso da forma e sua definição final seja compreendida pelo cliente A utilização dessa representação é ótima para que os arquitetos expliquem as etapas do processo de criação projetual Na Figura 21, podemos visualizar ainda questões como o encaixe do edifício na topografia do terreno e como o fluxo continua resolvido mesmo com essa questão

Figura 21 – Evolução da Volumetria em Perspectiva

Fonte: BIG | Bjarke Ingels Group. Acesso em: 01 jun. 2022

3 6
B a r c e o n a I n s t t u t e o f S c e n c e a n d T e c h n o o g y B a r c e l o n a I n s t i t u t e o f S c i e n c e a n d T e c h n o o g y

A setorização interna do edifício é demonstrada através da tridimensionalidade, em perspectivas onde o ponto de interesse é marcado com uma cor mais forte em cada etapa (Figura 21) Outro ponto de interesse são as legendas explicativas que o escritório utiliza junto com essas perspectivas, explicando breve e claramente as características relevantes de cada imagem

Figura 22 – Esquemas Gráficos

Fonte: BIG | Bjarke Ingels Group. Acesso em: 01 jun. 2022

Com a forma já definida, incluem figuras com diretrizes de projeto com justificativas das decisões projetuais tomadas (Figura 22) A utilização desse tipo de representação auxilia na compreensão da setorização da construção e de sua espacialidade Ainda são mostrados esquemas estruturais e de paisagismo Nesses diagramas eles mantém as legendas explicativas que elucidam para os clientes as escolhas do escritório para as fases representadas

Figura 23 - Cortes Esquemáticos Humanizados

3 7
Fonte: BIG | Bjarke Ingels Group Acesso em: 01 jun 2022

Nesse projeto, os arquitetos incluíram cortes esquemáticos humanizados onde os níveis do edifício são representados, mostrando acessos e estacionamento Os ambientes foram indicados através de setas que auxiliam no entendimento da espacialização da construção e aspectos como sentido dos ventos dominantes e insolação foram demonstrados (Figura 23)

Foram usadas como ferramentas de representação gráfica nesse projeto, além dos esquemas já citados, fotomontagem do edifício na paisagem existente, maquetes e imagens 3D As maquetes, apresentadas na Figura 24, auxiliam no entendimento da plasticidade das fachadas do edifício e são uma escala reduzida da realidade, o que pode facilitar o entendimento da implantação do empreendimento

3 8
Figura 24 – Maquetes Fonte: BIG | Bjarke Ingels Group Acesso em: 01 jun 2022 Figura 25 – Imagens 3D – BIST Fonte: BIG | Bjarke Ingels Group. Acesso em: 01 jun. 2022

As imagens 3D (Figura 25) apresentam com mais clareza para o cliente aspectos como materialidade, iluminação e espacialidade Nesse projeto, as representações gráficas utilizadas pelo escritório para ilustrar as concepções projetuais foram diagramas, vistas isométricas, cortes humanizados, esquemas gráficos, maquetes e imagens 3D

2 . 2 . 1 . 1 A n á l i s e G e r a l d a s R e p r e s e n t a ç õ e s 2 . 2 . 1 . 1 A n á l i s e G e r a l d a s R e p r e s e n t a ç õ e s d o E s c r i t ó r i o d o E s c r i t ó r i o

Levando em consideração os projetos expostos, podemos concluir que o BIG é um escritório que possui um padrão de representação gráfica Esse padrão diz sobre a identidade visual criada pelo escritório, as representações são adaptadas ao desenvolvimento projetual de cada proposta, mas preservando um estilo gráfico que vai desde a modelagem de seus esquemas as fontes das letras usadas as disposições cores

Figura 26 – Esquema Síntese: Tipos de Representação Utilizadas 01

2 . 2 . 2 R I G I R u i j i D e s i g n 2 . 2 . 2 R I G I R u i j i D e s i g n

A RIGI Design é um escritório de jovens designers e arquitetos localizado em Xangai, na China Os projetos do escritório possuem uma identidade visual própria desenvolvida com o intuito de exaltar a multidimensionalidade e tecnologia Definem seus projetos como distintos e acolhedores e possuem projetos em diversas áreas do design e da arquitetura

A escolha desse escritório para análise se justifica quando levamos em consideração as diferenças culturais existentes entre o mundo ocidental e oriental Com a intenção de conhecer e comparar essas diferenças e também apresentar o modo de representação gráfica utilizado em diferentes locais do globo, o RIGI Design foi selecionado

Os projetos que serão apresentados a seguir representam a linguagem do escritório e a identidade construída para cada um A escolha das cores e o modo de representação se encaixam com a intenção projetual que pretende ser alcançada A seleção dos projetos em questão é justamente por esses contrastes e diferenças do que normalmente é apresentado no Brasil

W a r m C n i c W a r m C l n c

Diferente dos projetos apresentados pelo escritório anterior, que englobava uma escala mais urbana, esse projeto é o interior de uma clínica dentária, localizada em Tinjin na China A intenção dos designers era criar um ambiente que destoasse de ambientes médicos comuns, desejavam causar em seus usuários uma sensação de conforto e esperança

Fonte: Autora, 2022.

3 9

Figura 27 – Implantação Warm Clinic

Fonte: http://www.rigi-design.com/brandlist.asp?anid=213 Acesso em: 01 jun 2022

Para a representação gráfica da ideia, o escritório produziu uma planta de implantação em perspectiva utilizando de cores não tradicionais para criar a identidade visual do projeto (Figura 27) Como a intenção projetual era passar sensações de conforto e esperança, foram utilizadas cores claras e em tons pastéis que podem remeter a essas sensações Apesar da qualidade da representação gráfica, a escolha das cores e linguagem projetual pode restringir o entendimento das decisões de projeto, mas as sensações desejadas são alcançadas

Fonte: http://www.rigi-design.com/brandlist.asp?anid=213 Acesso em: 01 jun 2022

Procedendo para uma escala mais aproximada, apresentam uma perspectiva que permite visualizar as divisões internas da clínica e utilizam de pontos em destaque para criar um gancho para o detalhamento de cada ambiente O padrão de cores usados na implantação permanece e há uma previsão do layout e materialidade de cada ambiente nos detalhes apresentados (Figura 28) Para esse projeto em questão, as representações gráficas utilizadas foram plantas em perspectiva e detalhes arquitetônicos Não há imagens 3D disponíveis

4 0
Figura 28 – Planta em Perspectiva com Indicação de Detalhes

Essa proposta é um projeto para um escritório de cinema localizado na China Os desenvolvedores do projeto se apropriaram do conceito dos frames do cinema para projetar um espaço que englobasse os aspectos dramáticos e técnicos de uma produção cinematográfica

Apesar de utilizarem de representações mais comuns, como plantas e detalhes arquitetônicos, a forma que foi desenvolvida cria uma identidade e uma facilidade de legibilidade por possuir aspectos menos técnicos Eles criam planos de visualização que facilitam a compreensão por serem em escalas dimensionais diferentes, mas que se complementam Através da união desses planos, é possível entender a espacialização, distribuição e localização dos ambientes propostos dentro do espaço (Figura 29)

Figura 30 Esquemas Conceituais

Fonte p

4 1
s t
r s t c r
F i r
c r y F i l m O f f c e
y m O f f i c e
galeriadaarquitetura com br/slideshow/newslideshow as px?show=Plantas&idProject=4734&index=0. Acesso em: 01 jun. 2022
Figura 29 - Planos de Visualização: Planta Baixa e Vista em Perspectiva
Fonte:https://www

O conceito central do projeto, como já exposto, é trazer a dramaticidade das produções de cinema para o ambiente, por isso eles criam esquemas gráficos marcando os espaços que desejam marcar essa característica (Figura 30) Entretanto, apesar da qualidade da representação, pode parecer confuso e não transmitir a mensagem desejada para pessoas que não possuem visão espacial

2 . 2 . 2 . 1 A n á l i s e G e r a l d a s R e p r e s e n t a ç õ e s 2 . 2 . 2 . 1 A n á l i s e G e r a l d a s R e p r e s e n t a ç õ e s d o E s c r i t ó r i o d o E s c r i t ó r i o

A partir da exposição de alguns projetos da RIGI Design, podese concluir que o escritório possui uma linguagem de representação comum a todos os projetos, entretanto cria uma identidade visual diferente para cada um deles de acordo com seus conceitos norteadores

Fonte:https://www.galeriadaarquitetura.com.br/slideshow/newslideshow.as px?show=Plantas&idProject=4734&index=0 Acesso em: 01 jun 2022

A utilização das imagens 3D nesse projeto traz mais clareza para a proposta e revela detalhes e decisões não representadas nos esquemas anteriores Através das imagens (Figura 31), é possível captar o conceito e a marcação dos espaços dramáticos

Fonte: Autora, 2022.

Na figura 32, é possível ter um panorama geral das representações gráficas utilizadas pelo escritório nos projetos analisados Foram utilizadas vistas esquemáticas, plantas, detalhes e imagens 3D

4 2
Figura 32– Esquema Síntese: Tipos de Representação Utilizadas 02 Figura 31 – Imagens 3D - Firstcry Film Office

O METRO Arquitetos Associados é um escritório brasileiro de arquitetura que atua em projetos de várias escalas, sendo elas urbanas, temporárias ou de intervenção Os projetos do escritório buscam integrar o espaço construído ao ambiente que estão inseridos, trazendo o uso coletivo em ambientes privados ou públicos O METRO tem base em São Paulo, mas desenvolve projetos para todo o país

Os projetos escolhidos para a presente análise, diferente dos projetos dos escritórios anteriores, apresentam uma representação gráfica mais aproximada com os padrões de desenho técnico e normas técnicas brasileiras Além disso, os projetos exploram outros métodos representativos no lugar do clássico 3D A escolha se baseou nesses aspectos e em outros pontos de atenção como a utilização de cores mais sóbrias

R e f e t t o r i o G a s t r o m o t v a R e f e t t o r i o G a s t r o m o t i a

O projeto é uma parceria do escritório com outros renomeados arquitetos e é um restaurante popular localizado na Lapa, no Rio de Janeiro A proposta era criar um espaço agradável que conectasse o espaço público com a comunidade do local e proporcionar refeições de qualidade com alimentos que seriam descartados de forma acessível

Fonte: https://metroarquitetos com br/projeto/refettorio-metroarquitetos/#lg=1&slide=0. Acesso em: 02 jun. 2022

4 3
2 . 2 . 3 M E T R O A r q u i t e t o s A s s o c i a d o s 2 . 2 . 3 M E T R O A r q u i t e t o s A s s o c i a d o s
Figura 33 - Planta, Cortes e Elevações - Refettorio Gastromotiva

Os métodos de representação utilizados pelos arquitetos, nesse caso, seguiram o tradicional Mas é importante levar em consideração o objetivo do projeto e o cliente final, podendo ser esse um fator determinante pelo método escolhido Plantas, cortes e elevações foram apresentados de forma clássica, mas menos técnica e com a identidade do escritório (Figura 33)

Figura 34 – Croqui Inicial

Fonte: https://metroarquitetos.com.br/projeto/refettorio-metroarquitetos/#lg=1&slide=0. Acesso em: 02 jun. 2022

Também foram mostrados croquis utilizados para o desenvolvimento da ideia, o que pode ser interessante para que as pessoas entendam o processo de construção da proposta (Figura 34) O escritório não utiliza imagens 3D, no site possuem apenas imagens do projeto construído, deixando em aberto a forma como apresentam as ideias de forma tridimensional aos clientes antes da construção

P r o j e t o M i r i m P r o e t o M r m

Essa é uma proposta de intervenção do escritório para uma praça que, segundo a descrição dos arquitetos, é possível implantar em qualquer local e terreno por ser flexível e adaptável as mais diversas condições Os conceitos norteadores foram a continuidade e a flexibilidade dos espaços, o que é defendido no partido do projeto

Figura 35 – Diagramas Sequenciais 02

Fonte: https://metroarquitetos.com.br/projeto/refettorio-metroarquitetos/#lg=1&slide=0. Acesso em: 02 jun. 2022

4 4

Para ilustrar a ideia, foram utilizados diagramas sequenciais que exemplificam a aplicabilidade de todas as fases e componentes (Figura 35) Utilizam da sucessão de cada elemento, como caminhos, mobiliários e vegetação Essa forma de representação facilita a compreensão da espacialização do ambiente pelo observador quando todos os componentes são colocados juntos

Os arquitetos também utilizaram da fotomontagem para exemplificar a implantação da proposta em um local de São Paulo (Figura 36) Esse método de representação facilita a visualização e entendimento da ideia em um local existente e cria uma ambientação real sem precisar necessariamente de um render 2 . 2 . 3 . 1 A n á l i s e G e r a l d a s R e p r e s e n t a ç õ e s 2 . 2 . 3 . 1 A n á l i s e G e r a l d a s R e p r e s e n t a ç õ e s d o E s c r i t ó r i o d o E s c r i t ó r i o

O METRO é um escritório que atua em diversas escalas de projeto, por isso suas representações não seguem um padrão concreto, eles se adaptam a necessidade de cada proposta É possível observar, nos projetos expostos nesse trabalho, essas adaptações Diferente dos outros escritórios analisados, eles não apresentam imagens 3D em suas apresentações, utilizam de outras alternativas como fotomontagem

Figura 37 – Esquema Síntese: Tipos de Representação Utilizadas 03

Fonte: Autora, 2022.

Fonte: https://metroarquitetos.com.br/projeto/refettorio-metroarquitetos/#lg=1&slide=0 Acesso em: 02 jun 2022

4 5
Figura 36 – Fotomontagens – Projeto Mirim

As representações apesar de serem diversas, no primeiro projeto apresentado, por exemplo, possuem um caráter mais próximo das representações recomendadas pela ABNT, apesar de não serem tão técnicas De maneira geral, nos projetos analisados, os arquitetos utilizam de plantas, cortes, elevações, diagramas, vistas isométricas sequenciais e fotomontagem, conforme Figura 37

Figura 38 – Planta Baixa Sequencial

2 . 2 . 4 U N A B a r b a r a e V a l e n t i m A r q u i t e t o s

2 . 2 . 4 U N A B a r b a r a e V a l e n t i m A r q u i t e t o s

A s s o c i a d o s A s s o c i a d o s

O escritório UNA BV foi fundado em 2019 por parte dos arquitetos que formavam a UNA Arquitetos e hoje conta com colaboradores das mais diversas áreas Possuem projetos comerciais, residenciais e urbanos com foco em desenvolvimento de edifícios de uso misto e cultural Contam em sua extensa bagagem com diversos prêmios e reconhecimento da comunidade da arquitetura e ficam localizados em São Paulo

Os projetos selecionados desse escritório possuem uma escala diferente dos projetos analisados anteriormente São projetos arquitetônicos e urbanísticos, apresentados em escala macro Foram escolhidos pois trazem um viés do papel das representações gráficas em diferentes tipos de projeto e como outros elementos como mapas podem ser explorados para a representação de ideias sejam elas arquitetônicas ou urbanísticas

S e s c D o m P e d r o I S e s c D o m P e d r o I I

O projeto é a proposta da nova unidade do Sesc – Serviço Social do Comércio localizado no centro de São Paulo A implantação foi pensada com o objetivo de aumentar a integração entre os usos existentes consolidados na região e requalificar a área trazendo movimentação nos mais diversos horários do dia usando como partido a integração com a cidade, sem a utilização de muros para atrair as pessoas

Fonte: http://unabv.com.br/cultural/sesc-parque-dom-pedro-ii/. Acesso em: 02 jun 2022

4 6

Na representação gráfica do projeto foram utilizadas plantas baixas sequenciais que mostram a organização espacial de cada nível do edifício em relação ao terreno no entorno (Figura 38) Esse método de utilizar figuras em sequência auxilia na compreensão da construção da ideia como um todo

Figura 39 – Diagramas Sequenciais 03

Fonte: http://unabv.com.br/cultural/sesc-parque-dom-pedro-ii/. Acesso em: 02 jun.2022

Em seguida, eles utilizam dos diagramas sequenciais já vistos anteriormente em outros escritórios para demonstrar a forma tridimensional do que foi apresentado em planta (Figura 39) De novo representaram por níveis ajudando na percepção da espacialidade do projeto

Figura 40 - Cortes Humanizados

Fonte: http://unabv.com.br/cultural/sesc-parque-dom-pedro-ii/. Acesso em: 02 jun.2022

O escritório também utilizou de cortes humanizados para enfatizar a organização do edifício, mostrar a relação com a vegetação e o gabarito do edifício, conforme visualizado na Figura 39 Desde as plantas iniciais, os arquitetos adotaram uma linguagem de representação com cores claras em variações de cinza

4 7

Por meio de fotomontagens e imagens 3D, apresentadas na Figura 41, é possível observar a relação do edifício com seu entorno, aspecto que foi pouco explorado nas plantas, diagramas e cortes do projeto Ainda é possível visualizar alguns espaços internos e entender melhor a escolha de materiais e outros elementos não apresentados nas representações iniciais

Nesse projeto, utilizaram plantas humanizadas sequenciais, para visualização de cada nível da construção, diagramas sequenciais para visualização da tridimensionalidade, cortes humanizados, fotomontagens e imagens 3D

R

Esse projeto é a proposta do escritório para um concurso realizado pela prefeitura de São Paulo para renovação urbana e implantação de habitações de interesse social em áreas de assentamentos precários na cidade

Figura 42 - Vistas Isométricas Esquemáticas

Fonte: http://unabv.com.br/cultural/sesc-parque-dom-pedro-ii/. Acesso em: 02 jun.2022

4 8
Figura 41 – Fotomontagens e Imagens 3D – Sesc Dom Pedro II Fonte: http://unabv com br/cultural/sesc-parque-dom-pedro-ii/ Acesso em: 02 jun 2022
e n o v a S P R e n o v P

Os arquitetos mapearam toda a área e produziram vistas isométricas esquemáticas comparando a situação em que se encontrava o local e a proposta por eles elaborada (Figura 42) Esse contraponto apresentado auxilia no convencimento do cliente, nesse caso a prefeitura, da aplicabilidade da proposta visto o contraste gerado pela comparação Eles ainda acrescentam uma flexibilização da ideia, demonstrando que consideraram todas as opções viáveis para o local

Figura 43 – Vistas Isométricas Esquemáticas Setorizadas

Na sequência, é apresentado as mesmas vistas esquemáticas esquemas apontando pontos relevantes em cada uma das situações apresentadas anteriormente Dessa forma é possível entender a setorização dos espaços e a localização ou realocação de outros (Figura 43)

Figura 44 – Mapa Geral da Proposta de Intervenção

Fonte: http://unabv.com.br/cultural/sesc-parque-dom-pedro-ii/. Acesso em: 02 jun.2022

São apresentados mapas (Figura 44) com a explicação do contexto geral da proposta por conta da sua escala Em um projeto urbano, como é o caso desse, o uso de mapas facilita a compreensão do tamanho da área de intervenção e o contexto que está inserido Além disso, essa visão macro ainda contribuiu para o entendimento do entorno da proposta e o traçado urbano

Fonte: http://unabv.com.br/cultural/sesc-parque-dom-pedro-ii/. Acesso em: 02 jun.2022

4 9

Figura 45 – Cortes Comparativos

Fonte: http://unabv.com.br/cultural/sesc-parque-dom-pedro-ii/. Acesso em: 02 jun.2022

Na sequência, cortes ilustrando as mudanças propostas em alguns dos locais indicados no mapa são expostos (Figura 45) O corte, do modo que foi utilizado, auxilia na visualização da ideia, pois os arquitetos se apropriam da utilização de comparação, sempre indicando as diferenças da proposta com a situação existente no local

Ainda são apresentadas plantas baixas dos edifícios, fotos explicativas da realidade do local, fotomontagens das habitações implantadas no local e sua relação com o entorno e algumas imagens 3D que além de mostrarem a materialidade dos edifícios, auxiliam também na compreensão da proposta com seu entorno imediato Na Figura 46, é possível ver algumas dessas representações

5 0
Figura 46 - Fotomontagens e Imagens 3D – Renova SP Fonte: http://unabv.com.br/cultural/sesc-parque-dom-pedro-ii/. Acesso em: 02 jun.2022

Nesse projeto, a utilização de vários métodos representativos contribui para a legibilidade da proposta Foram utilizados vistas isométricas, mapas, cortes, fotomontagens e imagens 3D

2 . 3 S í n t e s e G e r a l 2 . 3 S í n t e s e G e r a l

2 . 2 . 4 . 1 A n á l i s e G e r a l d a s R e p r e s e n t a ç õ e s

2 . 2 . 4 . 1 A n á l i s e G e r a l d a s R e p r e s e n t a ç õ e s d o E s c r i t ó r i o d o E s c r i t ó r i o

Assim como o escritório anterior, a UNA BV projeta para várias escalas, desde o urbano ao residencial Sua forma de representação segue a mesma linha do primeiro escritório analisado, possuem um padrão de representação que se adapta para cada projeto A linguagem gráfica utilizada é semelhante nos projetos apresentados, mas cada proposta possui tipos de representação específicas para sua necessidade

Figura 47 – Esquema Síntese: Tipos de Representação Utilizadas 04

No Gráfico 01, são apontadas as representações utilizadas pelos escritórios apresentados de forma geral e a porcentagem de utilização de cada uma delas A representação gráfica que foi usada em todos os projetos de os escritórios analisados é a vista isométrica Esse método de representação pode variar de acordo com a identidade de cada arquiteto, mas segue o padrão de uma vista em perspectiva que inclui o terreno e inclui detalhes importantes do projeto Também auxilia na visualização da ideia de projeto de forma geral, dando noções de tridimensionalidade e espacialidade

Plantas baixas, imagens 3D e fotomontagens aparecem em 75% dos escritórios avaliados, ou seja, são métodos de representação arquitetônica utilizados por 3 dos 4 escritórios

As plantas baixas são um método de representação universal, mas dependendo da forma que são apresentadas podem ser de difícil entendimento por parte das pessoas Já as imagens 3D e fotomontagens possuem um nível de compreensibilidade maior, entretanto é importante ressaltar que cada pessoa é diferente e os métodos de representação deveriam ser escolhidos de maneira individual de acordo com as necessidades e desejos do cliente

Fonte: Autora, 2022

Também seguem a linha das representações pontuadas pela ABNT, mas sem informações técnicas Conforme Figura 46, de forma sintetizada utilizam de plantas sequenciais, diagramas, perspectivas isométricas esquemáticas, cortes humanizados e comparativos, mapas, fotos, fotomontagens e imagens 3D

5 1

Fonte: Autora, 2022.

N t s m n i d

Fonte: Autora, 2022.

5 2
Gráfico 01 – Tipos de Representação x Número de Escritórios Avaliados

Em síntese, podemos concluir, que os métodos de representação gráfica caminham junto com o padrão pré-estabelecido, mas também se adaptam e se inovam de acordo com as necessidades de cada projeto Porém, é importante para esse estudo levarmos em consideração questionamentos que norteiam a legibilidade dessas representações Será que as idéias projetuais, mesmo com tantos modos diferentes de representação, estão sendo compreendidas e lidas de maneira clara pelo público alvo, nesse caso, os clientes? Será que podemos usar de representações novas e mais tecnológicas para que a legibilidade dos projetos seja maior? No próximo capítulo, será explanado sobre o método de rastreamento ocular que pode ser grande aliado nessa discussão

5 3

r a s t r e a m e n t o o c u l a r

3 .

Conhecer o funcionamento do rastreamento ocular, seus equipamentos, representações geradas e sua aplicação na arquitetura é de grande valia para entendermos a metodologia explanada inicialmente O capítulo a seguir tem como objetivo apresentar o método de análise de dados através do rastreamento ocular, item relevante para os estudos arquitetônicos atuais

Para isso, além de ser explano sobre o processo do rastreamento ocular, também será abordado como forma de contextualização informações sobre o sistema visual e a visão e sua influência direta na evocação dos aspectos cognitivos da neurociência

Para finalizar o capitulo, serão apresentas as representações gráficas que podem surgir através de um rastreamento ocular e a forma que podem ser interpretadas Ademais, para exemplificar esse método de rastreamento ocular com o uso do dispositivo móvel, serão apresentados estudos de caso de uma grande pesquisadora da área, que aplicou essa metodologia em vários de seus projetos 3 . 1 E y e T r a c k i n g 3 . 1 E y e T r a c k i n g

O rastreamento ocular ou eye tracking é um método que permite rastrear, medir, registrar e analisar dados sobre o comportamento ocular Elementos relacionados ao posicionamento e o movimento dos globos oculares são considerados dentro de um intervalo de tempo pré-definido a fim de conhecer o trajeto do olho de um indivíduo Como o olhar das pessoas está diretamente ligado à sua atenção, as análises sucedidas de um rastreamento ocular podem ser usadas para compreender o processo cognitivo do usuário (LISIŃSKA-KUŚNIERZ; KRUPA,2018)

O uso do rastreamento ocular começou a ver uma aplicação metodológica mais ampla na segunda metade do século XX, juntamente com o desenvolvimento de disciplinas e especializações acadêmicas como psicologia ciência cognitiva ou interações humanocomputador No final do século XX, o período testemunhou o desenvolvimento tecnológico de ferramentas que permitem a fabricação de pequenos dispositivos móveis, juntamente com o desenvolvimento de aplicações para computação de dados obtendo resultados específicos e sua apresentação e interpretação Atualmente os estudos video-oculográficos são tipicamente baseados no uso de um sistema de câmeras de vídeo colocadas perto dos olhos do sujeito ou em uma proximidade próxima ao seu rosto Durante os testes, as câmeras rastreiam o movimento dos olhos do sujeito e sua alimentação de vídeo é gravada por um computador e analisada usando um software especializado Podemos extrair muitas informações úteis destes dados, incluindo quais elementos atraíram a atenção do sujeito e após que tempo; qual elemento atraiu a atenção do sujeito durante mais tempo e quais elementos foram observados repetidamente, qual é a direção da seqüência do espaço de varredura ou se o sujeito estava confuso ou mostrou interesse (LISIŃSKAKUŚNIERZ; KRUPA,2020 pg 6)

O funcionamento do eye tracking é baseado em um método conhecido como reflexão corneana Nesse método, uma câmera de alta resolução ilumina as pupilas com uma luz infravermelha invisível ao olho humano para rastrear sua posição Essa luz vermelha é espelhada nos olhos criando reflexos visíveis na pupila que tem a função de identificar o lugar que o indivíduo está observando em um período de tempo (LISIŃSKA-KUŚNIERZ; KRUPA,2018)

5 5 R A S T R E A M E N T O O C U L A
R

Presume-se que o processo cognitivo ocorre durante a fixação ou seja, a informação chega ao cérebro e é processada conscientemente Por outro lado, durante o estímulo da sacada que atinge o cérebro não são analisados e o processo cognitivo não ocorre LISIŃSKAKUŚNIERZ; KRUPA,2018, pg 7)

Os movimentos dos globos oculares são registrados através de dados quantitativos somados a medidas criadas que permitem interpretar os elementos apresentados na tela O aparelho eye tracker torna possível gerar visualização desses dados São considerados aspectos como identificação dos locais que o indivíduo olhou, o tempo gasto olhando tal local e o caminho que os olhos seguiram As formas utilizadas para representar esses dados são através de mapas de calor, caminho de varredura ou gaze plot e uma análise das áreas de maior interesse para os resultados

O rastreamento ocular é baseado no registro de duas principais informações: fixações e sacadas Fixações são os pontos que o indivíduo observou, o ponto onde a retina se estabilizou As fixações duram pouquíssimos milissegundos mas são de grande importância para identificar qual o ponto principal que foi notado As sacadas são o registro dos movimentos oculares de uma fixação para outra O cérebro não registra nenhuma informação visual durante a sacada, pois são ainda mais curtas que as fixações, elas são registradas através de uma linha que liga uma fixação à outra 3 . 2 S i s t e m a V i s u a l e V i s ã o 3 . 2 S i s t e m a V i s u a l e V i s ã o

A visão é um dos sentidos que compõem o nosso sistema sensorial A partir dela podemos receber informações do mundo exterior e interpretá-las com a ajuda dos outros elementos que constituem o sistema visual A interação entre o percurso que as luzes fazem até as estruturas coletoras presentes em nosso olho proporciona a formação de imagens que geram a visão

Para compreender a movimentação ocular que acontece no rastreamento é importante entendermos o funcionamento do nosso sistema visual Esse sistema é formado pelos olhos e suas estruturas secundárias e por nervos e depende do processamento dos sinais visuais por outros órgãos, como o cérebro

Figura 48 – Sistema Visual

Fonte: https://edisciplinas.usp.br/mod/resource/view.php?id=2697575. Acesso em: 04 jun.2022

Especificamente, o córtex cerebral é o responsável pelo processamento de tais sinais visuais que passam pelos olhos mas somente são de fato enxergados depois que essa parte do cérebro é estimulada por rastros presentes na retina De forma sucinta, os sinais visuais são processados e transmitidos para o córtex visual através dos nervos ópticos que constroem uma imagem primária do que está sendo captado pela retina (EBERHARD, 2008 )

5 6

Mesmo após esse processamento, Eberhard defende a ideia de que a percepção real de uma imagem ou objeto que está sendo visualizado por nosso sistema visual somente ocorre após a nossa mente resgatar memórias associadas ao que está sendo observado A memória tem a função de dar um significado ao que nós enxergamos Partindo dessa análise, quando observamos uma placa de trânsito, por exemplo, sabemos ou não o significado dos símbolos porque aprendemos e só resgatamos isso por conta de nossas memórias semânticas conforme explicado anteriormente

3 . 3 R e p r e s e n t a ç õ e s G r á f i c a s d o s R e s u l t a d o s 3 . 3 R e p r e s e n t a ç õ e s G r á f i c a s d o s R e s u l t a d o s d o R a s t r e a m e n t o O c u l a r d o R a s t r e a m e n t o O c u l a r 3 . 3 . 1 M a p a s d e C a l o r 3 . 3 . 1 M a p a s d e C a l o r

Seguindo para uma outra abordagem, os movimentos oculares que acontecem em nossa pupila quando percebemos a luz podem ser influenciados por nossas emoções A pupila é responsável por controlar o nível de luz que entra nos olhos aumentando ou diminuindo de acordo com a necessidade do momento Essa movimentação também pode ser desencadeada pelo nosso estado emocional Quando observamos alguém que amamos, por exemplo, a pupila dilata aumentando sua circunferência de forma involuntária (BRITO; KONDOLA, 2017)

Como foi explanado anteriormente, o rastreamento ocular é capaz de identificar parâmetros do padrão dos movimentos oculares Visto que os movimentos oculares podem ser influenciados pelas emoções, os resultados dos estudos de rastreamento podem ser distintos de acordo com o estado emocional do indivíduo no momento da testagem e o ambiente ou imagem a qual estão observando Sendo assim, o rastreamento ocular é capaz de promover levantamentos importantes sobre o padrão de movimento dos olhos de acordo com cada emoção, contribuindo para o processo de visão e reconhecimento de memórias

Os mapas de calor ou hotspot map permitem determinar qual ou quais elementos chamou a atenção do usuário São usadas cores diferentes para mostrar os pontos de interesse e fixação dos olhos durante o tempo de experimento As cores quentes e intensas são usadas para representar o foco da atenção do usuário por mais tempo em um ponto As cores frias indicam os lugares onde o usuário obteve um tempo de foco menor Por fim, os lugares sem coloração específica representam pontos que não foram observados pelo usuário

5 7
Figura 49 – Mapas de Calor Fonte: Lisińska-kuśnierz; Krupa, 2020.

Os mapas de calor possuem também a versão invertida, chamados de mapas de foco Nos mapas de foco são representados com cores apenas as áreas onde os usuários observaram com atenção e as outras áreas permanecem escurecidas (LISIŃSKA-KUŚNIERZ; KRUPA,2018)

3

. 3 . 2 C a m i n h o d e V a r r e d u r a / G a z e P l o t

3 . 3 . 2 C a m i n h o d e V a r r e d u r a / G a z e P l o t

O caminho de varredura ou gaze plot indica a ordem de observação dos pontos que foram notados pelo usuário enquanto olhavam uma imagem ou área específica

Os círculos indicam os pontos subsequentes nos quais o espectador focalizou sua atenção (fixações) Quanto maior o diâmetro do círculo, mais tempo o espectador mantinha seus olhos sobre um determinado objeto A numeração dentro do círculo mostra a ordem de visualização, e linhas simbolizam movimentos em forma de sacada indicando o caminho de varredura que o olho seguiu para o próximo ponto focal (LISIŃSKA-KUŚNIERZ; KRUPA,2018, pg 7)

3 . 3 . 3 Á r e a d e I n t e r e s s e ( A O I ) 3 . 3 . 3 Á r e a d e I n t e r e s s e ( A O I )

A área de interesse é um método que permite selecionar fixações específicas dentro de um grande número de visuais apresentados na tela As AOIs possuem vantagens sobre os mapas de calor pois possibilitam a obtenção de imagens concretas Isso permite uma análise quantitativa mais completa do foco do usuário e utilizar medidas paramétricas que variam de acordo com o objetivo do rastreamento A área de interesse pode ser gerada através de uma porcentagem da distribuição do foco durante o rastreamento ou ser projetada por uma forma geométrica (Figura 51)

5 8
Figura 50 – Caminho de Varredura / Gaze Plot Fonte: Lisińska-kuśnierz; Krupa, 2020

Fonte: Lisińska-kuśnierz; Krupa, 2020.

Na Figura 52, é possível observar os critérios utilizados para analisar as áreas de interesse Esses aspectos levam em consideração pontos como o número de fixações dentro de uma determinada área de interesse, o tempo que duram essas fixações, o tempo até a primeira fixação dentro da AOI, entre outros

Com esses dados expressos na figura acima, podemos determinar quais são os pontos mais atraentes para o espectador, por exemplo Esses dados são importantes ferramentas no caso da aplicação para área arquitetônica pois podemos manipular nossos projetos para alcançar determinado lugar, com base em pré testes e a aplicação desses aspectos

5 9
Figura 51 – AOI: Área de Interesse Figura 52 – Principais Medidas para Análise de Áreas de Interesse - AOI Fonte: Autora, 2022.

Figura 54 - Eye Tracker Móvel

Para realizar o rastreamento ocular utilizamos dispositivos de alta tecnologia que conseguem seguir e captar o movimento dos olhos O avanço da tecnologia permitiu registrar de forma não invasiva como as diferentes pessoas olham para determinados objetos ou ambientes O rastreamento ocular pode ser realizado por meio de dispositivos estacionários, móveis ou integrados com óculos de realidade virtual Todos eles realizam a leitura e captação do movimento ocular em processos distintos, mas que chegam aos mesmos resultados

Fonte:https://news cision com/tobii-ab/r/tobii-dynavox-launches-new-pceye---the-firststand-alone-eye-tracker-with-outdoor-capabilities,c3204374. Acesso em 16 mai. 2022

Os dispositivos estacionários, representados na Figura 53, são destinados ao estudo de fotos ou vídeos Dentro desse grupo se encontram os eye trackers que precisam estar conectados sempre a uma tela para visualização do rastreamento e outros que são adaptáveis a outros estímulos

Fonte:https://psychopy.org/api/iohub/device/eyetracker interface/PupilLabs Core Im plementation Notes.html. Acesso em 16 mai. 2022.

Os dispositivos móveis (Figura 54) são usados como óculos rastreadores ou na versão de faixa utilizada na testa Esse grupo permite realizar as análises em ambientes externos e internos e possibilitam que o rastreamento seja registrado por vídeo capturado por pequenas câmeras acopladas no dispositivo

6 0
3 . 4 D i s p o s i t i v o s 3 . 4 D i s p o s i t i v o s
Figura 53- Eye Tracker Estacionário

Fonte:https://www researchgate net/figure/System-setup-HTC-Vive-on-a-laptop-PCand-Pupil-Labs-eye-tracker-inside-HMD-ran-on-an fig2 315852071. Acesso em 16 mai. 2022.

O rastreamento através de dispositivos integrados a óculos de realidade virtual, representado na Figura 55, são capazes de fazer a análise ocular através de fotos, vídeos, jogos e até espaços virtuais utilizando estímulos esféricos A pessoa se sente dentro do espaço projetado e pode possuir um resultado diferente do que só observando a tela, por exemplo

3 . 5 A p l i c a ç ã o n a A r q u i t e t u r a 3 . 5 A p l i c a ç ã o n a A r q u i t e t u r a

A Arquitetura assim como acontece no processo de rastreamento ocular, se conecta com estímulos visuais a todo tempo Os arquitetos devem possuir a capacidade de desenvolver desenhos arquitetônicos, ler e analisar representações gráficas em todos os planos Consideram aspectos de percepções visuais e motoras de cada pessoa em sua particularidade e necessidades específicas ao projetarem um ambiente e levam em conta os mesmos aspectos quando precisam reformar ou restaurar um espaço Através do uso do Eye Tracking, é possível entender essas particularidades de maneira mais concreta Os mapas de calor gerados através de um rastreamento podem, por exemplo, indicar locais onde as pessoas fixam seus olhares por mais tempo, o que indica o que é ou não interessante dentro de um espaço

No processo de desenvolvimento de projetos, um arquiteto entrega ao seu cliente uma gama de informações representadas através de croquis, imagens, plantas e esquemas que servem como estímulos visuais das ideias arquitetônicas O uso do rastreamento ocular nesse caso, pode ajudar a garantir que essas ideias estão sendo percebidas da maneira esperada (RUSNAK; RABIEGA, 2021)

Há diversos estudos usando as tecnologias do eye tracking, como os da arquiteta e pesquisadora Ann Sussman, que comprovam que o modo que enxergamos e nos comportamos em edifícios pode inclusive ser um indicador da nossa saúde e nosso comportamento No ensaio How Biometrics Can Help Designers Build Better Places for People publicado em 2018 com co-autoria de Janice M Ward, Sussman apresenta maneiras de como o rastreamento pode mudar e melhorar os projetos arquitetônicos

Fonte:https://commonedge.org/how-biometrics-can-help-designers-build-better-placesfor-people. Acesso em: 20 maio 2022.

A arquiteta começa falando da reação inconsciente que possuímos de nos aproximar ou nos afastar de certas construções e como elementos como janelas e portas podem interferir nessas ações

6 1
Figura 55 - Rastreamento ocular com dispositivo integrado à VR Figura 56 - Teste de Aproximação e Afastamento

Quando somos colocados diante de uma construção apenas com uma porta e sem outros elementos, temos uma reação instintiva de evitar se aproximar e desfocar nossa atenção, já quando observamos outros elementos como as janelas, instintivamente observamos até mesmo os arredores do edifício Essa reação está apresentada na Figura 56

No segundo ponto do ensaio, a autora defende a ideia de como o rastreamento ocular pode auxiliar a arquitetura a reunir dados concretos para prever como projetos arquitetônicos afetam as pessoas antes de serem executados Os testes aconteceram inicialmente em um edifício que possuía uma longa face branca voltada para rua e logo após na mesma face do edifício foi feita uma montagem com um mural colorido Os resultados demonstraram que as pessoas concentram seu foco no mural e todas elas se sentiam mais confortáveis em permanecer em frente ao mural (Figura 57)

Conectados ao apego, nossos olhos constantemente examinam nossos arredores procurando lugares seguros para colar ou fixar; e os padrões do tipo fractal os fornecem, satisfazendo essa necessidade inata e, assim, reduzindo a ansiedade enquanto a fachada em branco não faz nada disso É surpreendente ver como um local de fixação seguro, neste caso um mural colorido que imita o concreto muda tão radicalmente o comportamento e a atitude humana no ambiente construído – sem palavras (SUSSMAN; WARD, 2018)

Ann Sussman deixa claro em seus ensaios o poder da arquitetura aliada aos estudos com o eye tracking em moldar os espaços para que sejam positivos para os usuários Outros pesquisadores também defendem essa ideia aplicada a áreas específicas da arquitetura, como planejamento urbano e espaços históricos

No artigo Suitability of Eye Tracking in Assessing the Visual Perception of Architecture dos autores Malgorzata LisińskaKuśnierz e Michal Krupa são citados diversos estudos de caso que comprovam o potencial positivo do uso do rastreamento na Arquitetura

Os estudos de caso pontuados no artigo, são experimentos utilizando todos os tipos de dispositivos e ainda unindo o eye tracker com outros métodos de pesquisa como como entrevistas e questionários, realizados por Universidades de Arquitetura pelo mundo Todos as experiências tinham o objetivo central de provar a eficiência do aparelho para estudos voltados a arquitetura Ao final, os autores defendem a importância dessa união quanto a percepção visual dos mais variados trabalhos de arquitetura e da configuração dos edifícios e seus entornos

6 2
Figura 57 – Fachadas Simpáticas Fonte:https://commonedge org/how-biometrics-can-help-designers-build-better-placesfor-people Acesso em: 20 maio 2022

A partir da avaliação dos estudos apontados, é possível concluir que o rastreamento ocular é uma ferramenta relevante e importante para os estudos em Arquitetura e Neurociência Com os resultados apresentados através de mapas de calor, gaze plots e AOIs podemos avançar na avaliação do comportamento humano em relação a ambientes construídos e até mesmo aplicar esses métodos na avaliação na legibilidade de projetos arquitetônicos e na compreensão de representações gráficas para a arquitetura

6 3
4 .
e s t u d o d e c a s o

Nesse capítulo, será exposto estudos de caso com dois escritórios de arquitetura do Espírito Santo Para esse estudo de caso, foi realizada uma entrevista com as arquitetas responsáveis pelos escritórios onde aspectos como tipos de representação gráfica, processos de construção dessas representações, o briefing, a legibilidade dos projetos apresentados para os clientes e o perfil desses clientes foram aspectos questionados durante a conversa

A escolha dos escritórios se justifica pela diferença de tempo de mercado entre eles O escritório 01 está a 14 anos no mercado e o escritório 02 somente a 4 anos e acredita-se que esse contraponto será um elemento positivo para comparação e levantamento de informações e dados

A partir disso, foram analisados um projeto de cada escritório levando em consideração os modelos de representações arquitetônicas utilizadas No final do capítulo, uma síntese será apresentada com considerações importantes das duas arquitetas sobre os pontos levantados na entrevista

4 . 1 E s c r i t ó r i o 0 1 4 . 1 E s c r i t ó r i o 0 1

O escritório Maria Augusta Bittencourt fica localizado em Vitória, no Espirito Santo e foi inaugurado em 2008 A arquiteta trabalha em sociedade com seu marido também arquiteto e acredita na importância do ambiente do escritório como auxiliar para identificação da linguagem projetual de seus projetos Através de elementos com materiais, cores e texturas exprime em seu ambiente de atendimento físico um pouco de seu estilo de projeto

“O cliente a partir do seu escritório ele identifica um pouco da sua identidade de projeto E desde o primeiro escritório, sempre tive a preocupação de trazer o meu tipo de projeto também na montagem do escritório Os materiais, as tecnologias, as cores, as texturas Tudo que remete ao meu projeto eu tento transferir um pouquinho dentro do estilo do escritório Acho que as duas coisas andam juntas” (BITTENCOURT, 2022)

A arquiteta trás o conceito de atemporalidade para os projetos realizados em seu escritório Trabalha com a tendência de tornar os ambientes mais amplos, com poucos elementos sempre trazendo uma montagem mais minimalista para os espaços projetados sendo eles comerciais, corporativos, residenciais ou projetos arquitetônicos

“A minha arquitetura assim de fachada, é uma fachada sempre mais limpa com menos elementos, menos rococó vamos dizer assim, e isso eu transito para todas as áreas Comercial residencial de planta, de ambientação Todo meu projeto é mais limpo E como inspiração eu busco como referência designers que trabalham com arquitetura de interiores, os mais atuais e os tradicionais também Gosto sempre de trazer um sentimento de atemporalidade para os meus projetos, que é muito importante pra mim ” (BITTENCOURT, 2022)

A entrevista com a arquiteta foi dividida em dois momentos que se aplicam para o segundo escritório também Primeiro foram feitas perguntas relacionadas a representação e legibilidade de projetos e depois perguntas direcionadas sobre o perfil do cliente Esses dois grupos de perguntas serão divididos em subtópicos para um melhor aprofundamento

6 5 E S T U D O D E C A S O

4 . 1 . 1 R e p r e s e n t a ç ã o e L e g i b i l i d a d e d e P r o j e t o s

4 . 1 . 1 R e p r e s e n t a ç ã o e L e g i b i l i d a d e d e P o j e t o s

Cada arquiteto trabalha com um tipo de representação e possui ou não um padrão e uma linguagem projetual, como visto no capitulo 2 O escritório da arquiteta Maria Augusta possui um padrão de representação que contempla alguns dos tipos de plantas indicadas pela NBR 6492, como plantas de edificação, elevações, memoriais descritivos e também imagens 3D A identidade visual segue uma linha mais técnica nas plantas e elevações e as imagens 3D são mais realistas A nível de estudo preliminar, são entregadas para o cliente plantas de layout e imagens 3D para aprovação da proposta

“Dependendo do cliente, eu apresento primeiro uma planta de layout Essa planta de layout vai nortear se vai ter alguma modificação para depois eu fazer toda uma apresentação para o cliente em 3D O meu cliente não discute muito meu projeto executivo, ele aprova o 3D e eu entrego direto para quem vai executar Então o meu 3D é real, 100% real Ele aprova o 3D e as equipes recebem o detalhamento E no final eu entrego um volume único de tudo, ou no final do projeto ou no final da obra depende do cliente Residencial eu entrego só depois que a obra acaba E comercial eu entrego antes Porque aí o cliente tem que ter por onde se embasar para cobrar dos fornecedores ” (BITTENCOURT 2022)

O padrão de representação, segundo a arquiteta, surgiu a partir do erro Ela afirma que errando e observando que aspectos como tamanho das pranchas era relevante para cada tipo de pessoa e profissional que recebia o projeto, criou um padrão para cada tipo de planta e apresentação O processo de criação gráfica dos projetos da arquiteta acontece com o auxílio dos softwares de arquitetura conhecidos Plantas e detalhamentos técnicos são produzidos no AutoCad e modelagem 3D e renderização no SketchUp e Lumion, respectivamente Ela afirmou que é um processo que gera muito “retrabalho” e por isso deseja migrar para outros softwares

“Hoje eu faço no SketchUp mas eu preciso migrar porque realmente dá muito retrabalho Então hoje eu faço a planta layout e levantamento no AutoCad, faço todo o 3D no SketchUp e renderizo no Lumion e depois eu volto pro AutoCad pra detalhar Isso já tá totalmente defasado e eu não tenho mais perna pra fazer isso Então eu preciso realmente pra ontem migrar pro Revit ou pro ArchiCad É um projeto ainda pra esse ano Meu volume de projeto é imenso, são mais de 50 páginas, então preciso otimizar essa produção ” (BITTENCOURT, 2022)

Quando questionada se os clientes compreendem o projeto que é apresentado ou se possuem certas dificuldades de legibilidade, Maria Augusta afirma que depende do cliente Defende que a percepção de espacialidade das pessoas é diferente, então cada pessoa compreende o projeto de uma forma

“Eu tenho cliente que não entende nem 3D e tem cliente que eu posso chegar com um rabisco que ele entende o que eu tô falando Então a percepção das pessoas com relação a espaço, espacialidade é completamente diferente Tem o cliente que por mais que você entregue uma foto real ele vai ter dificuldade até de se posicionar naquele espaço É impressionante Tem cliente por exemplo que eles se apegam tanto ao 3D, e o 3D distorce um pouco as medidas, e aí eles falam depois “Nossa! Mas ficou diferente” porque ele se apega demais aquilo ali, e aquilo ali é uma simulação Não deixa de ser Tem ângulo tem foco, então não é 100% real ” (BITTENCOURT, 2022)

Para solucionar essa dificuldade de compreensão de alguns clientes, a arquiteta opta por se reunir novamente com o cliente e explicar detalhadamente o que quis representar em sua ideia, só permitindo que ele aprove ou não a proposta, após essa compreensão Esse método foi desenvolvido através da experiência de mercado, pois seu escritório possui 14 anos de existência

6 6

A segunda parte da entrevista feita com a arquiteta Maria Augusta, explorou aspectos sobre o perfil do cliente e o processo de briefing do escritório O escritório em questão atende um perfil de cliente com a faixa etária de mais de 35 anos e normalmente são famílias ou casais com mais anos de casamento, no caso de projetos residenciais, e empresas corporativas no caso de projetos comerciais Sendo esses dois tipos de projetos, os mais atendidos pela equipe da arquiteta

Além desses aspectos mais direcionados a dinâmica social do ambiente projetado, o escritório sempre entra em questões mais projetuais O cliente é questionado sobre suas necessidades dentro do ambiente, o que gosta ou não gosta, o que deseja ou não, se possui referencias, estilos que mais gosta, cores que agradam ou desagradam para que, segundo a arquiteta, o projeto seja mais direcionado ao que o cliente espera

O processo de briefing do escritório considera aspectos como a expectativa do cliente para o ambiente ou construção, até aspectos como a rotina e dia a dia das pessoas Na primeira reunião a arquiteta define aspectos norteadores para o projeto e a partir daí consegue deixar claro para o cliente até onde o projeto pode chegar através da compreensão da dinâmica existente no espaço

“A partir do momento que o cliente fecha a gente faz uma primeira reunião de briefing Esse briefing ele tenta obviamente isso não é 100 exposto pelo cliente no primeiro contato pode acontecer de algumas coisas precisarem de uma segunda reunião, mas normalmente nessa primeira reunião eu tento entender como funciona, se for uma casa como funciona aquela casa Os horários os usos, as pessoas, e como que é a dinâmica do dia a dia daquela família Comercialmente falando, se eu for fazer uma clínica, entender como que a clínica funciona Então a gente fala que a gente passa a entender como que aquele mecanismo funciona pra gente trazer solução pra cada dinâmica do dia a dia E as vezes o cliente tem um problema que ele não identifica e o profissional com o projeto ele tenta corrigir aquilo Tanto no residencial, tanto comercial E isso a gente só consegue desenhar, projetar, se o briefing por muito bem feito ” (BITTENCOURT, 2022)

“Primeira coisa que eu pergunto é se a pessoa tem algum estilo que ela gosta, se tem referências que gosta, peço pra ela me mandar, porque isso também me norteia Estilos, cores, tendências Por exemplo, se eu for fazer um quarto de criança, faço pouco mas vamos supor que eu vá fazer Eu não posso achar o que é melhor pra pessoa, ela tem que me falar Se quer algo mais lúdico, mais sem gênero com mais ou menos marcenaria Daí depois vem aspectos mais técnicos No brifieng você já consegue mostrar pro cliente onde ele vai conseguir chegar no projeto ” (BITTENCOURT, 2022)

Para finalizar a entrevista, foi perguntado para a arquiteta se existe uma preocupação em entender o nível de compreensão do cliente em relação a representação e ao projeto arquitetônico em si, até mesmo como ferramenta para adaptação dos processos a esse cliente Nesse caso, a arquiteta Maria Augusta acredita que é uma resposta que já vem naturalmente pelo perfil do cliente e até pelo modo que ele se posiciona em relação ao projeto

6 7 4 . 1 . 2 P e r f i l d o C l i e n t e 4 . 1 . 2 P e r f i l d o C l i e n t e

“Isso já vem natural ele já fala A pessoa que já fez cinco, seis obras normalmente ela já tem um entendimento muito legal Mas a pessoa que é a primeira obra que ela tá fazendo ou sempre foi feito por outra pessoa e agora ela vai ter que assumir ou se ela não se interessa e nunca se interessou, então essa resposta vem sempre implícita nas respostas que vamos escutando Normalmente quem tem entendimento já chega com escalimetro e trena e já fica assim “Eu gosto que a mesa fique a 75 centímetros ” Ele gosta de demostrar que possui conhecimento técnico Quem não tem, é aquela pessoa que gosta muito de falar “Olha eu gosto muito de fulano como fulano projeta ” Ou te manda mil imagens do Pinterest pra você seguir de referência Ela gosta, mas ela não sabe qual é o estilo dela E aí você tem que meio que você perceber ” (BITTENCOURT 2022)

Em seguida, será apresentado um projeto realizado pelo escritório da arquiteta Maria Augusta Serão considerados e ilustrados seus métodos representativos e avaliados de acordo com um viés da legibilidade de projeto

4 . 1 . 3 M é t o d o s R e p r e s e n t a t i v o s E s c i t ó i o 0 1 R e f o r m a R e s d e n c i a l - E d C a s b a h – A p a r t a m e n t o 1 0 0 1 R e f o r m a R e s i d e n c a - d C a s b a h – A p a r t a m e n t o 0 0 1

4 . 1 . 3 M é t o d o s R e p r e s e n t a t i v o s E s c r i t ó r i o 0 1

Esse é um projeto de reforma residencial para um apartamento localizado em Vitória, no Espirito Santo O projeto foi dividido em duas etapas, primeiro os clientes fizeram metade do apartamento, depois a outra O escritório da arquiteta Maria Augusta, utiliza plantas técnicas que seguem os conceitos norteadores das normas da ABNT, como citado anteriormente Então, no primeiro momento, são apresentados ao cliente, uma planta baixa de ambientação e suas congruentes

Em um segundo momento, são apresentadas imagens 3D de todos os ambientes modificados para que o cliente tenha uma visualização da espacialidade da proposta de forma a compreender os elementos que estão sendo propostos Além de visualizar materialidade, cores e textura, aspectos não representados na planta de ambientação

6 8
Figura 58 - Planta Baixa de Ambientação – Apartamento 1001 Fonte: Maria Augusta Bittencourt, 2022

O escritório, a nível de estudo preliminar, entrega nas mãos do cliente plantas técnicas com um nível de informações grandes A representação utilizada para isso é o padrão técnico que nós, estudantes e arquitetos, costumamos aprender e reproduzir, um padrão seguindo as normas da ABNT Pontos como método de desenho, letras utilizadas, cores, muda de arquiteto para arquiteto, mas de uma forma geral, a arquiteta Maria Augusta segue esse padrão já descrito Esse padrão mais técnico pode ser de difícil entendimento para quem não consegue ter uma visão espacial e 2D de um ambiente Entretanto, o escritório também explora o lado visual tridimensional quando apresenta para os clientes imagens 3D renderizadas de todos ambientes do apartamento 4 . 2 . E s c r i t ó r i o 0 2 4 . 2 . E s c r i t ó r i o 0 2

O segundo escritório entrevistado para esse estudo, é o escritório da arquiteta Bruna Sardinha, que leva seu nome A arquiteta está há quatro anos no mercado de projetos arquitetônicos e é reconhecida por incluir conceitos de neuroarquitetura em seus projetos Segundo ela, a vontade de começar um escritório de forma autônoma veio a partir da necessidade de dedicar sua energia e aplicar sua forma de enxergar arquitetura em seus projetos

“Vão fazer 4 anos que eu tô no mercado Eu comecei de uma forma bem tímida a trabalhar com projeto porque eu já trabalhava em uma empresa então eu não conseguia focar na parte de projeto, na fase de desenvolvimento de projeto no escritório trabalhando na empresa, tipo assim dá uma atenção maior para o escritório O que me motivou mesmo a sair da empresa e trabalhar com o escritório de uma forma autônoma foi realmente a necessidade de exercer minha profissão de uma forma mais como eu posso dizer, com mais energia Porque eu tinha que dividir minha energia da empresa com o escritório e aí eu precisava me dedicar a só uma coisa Até mesmo pra trazer mais a forma que eu enxergo a arquitetura para meus projetos ” (SARDINHA, 2022)

6 9
Figuras 59 – Imagens 3D – Apartamento 1001 Fonte: Maria Augusta Bittencourt, 2022.

Assim com apresentado nas considerações teóricas desse trabalho, o escritório da arquiteta traz consigo o viés da neurociência aplicada a projetos arquitetônicos A arquiteta diz que a neuroarquiteura norteia seus projetos e é um estilo de vida Todas suas propostas partem de uma análise e aplicação de conceitos dessa área

“Em relação a conceito, eu não diria um conceito, mas um estilo de vida A neuroarquitetura ela interfere em tudo hoje em dia na minha vida Então assim eu comecei a estudar a neuroarquitetura antes mesmo de me formar, não tinha nem esse nome pra falar a verdade, era psicologia ambiental Então foi quando eu comecei a gostar do tema né, na época que eu comecei a direcionar meus estudos e eu encontrei o termo neuroarquitetura não tinha nem artigos em português, não tinha nada, é tudo muito novo, a academia brasileira de neuroarquitetura é de 2019, é tudo muito novo ainda Mas se tem algo que me dá um norte pra maneira que eu enxergo arquitetura é a neuroarquitetura ” (SARDINHA, 2022)

A influência da neuroarquitetura nos projetos do escritório vai desde o método desenvolvido para o briefing até a forma personalizada de entrega e apresentação de projetos Em seguida, assim como o primeiro escritório, serão apresentadas as respostas da arquiteta em relação a sua representação gráfica e legibilidade de seus projetos e o perfil de seus clientes 4 . 2 . 1 R e p r e s e n t a ç ã o e L e g i b i l i d a d e d e P r o j e t o s 4 . 2 . 1 R e p r e s e n t a ç ã o e L e g i b i l i d a d e d e P r o j e t o s

O escritório da arquiteta Bruna Sardinha trabalha de forma diferente do escritório anterior, não possuindo um padrão de representação A arquiteta apresenta produtos gráficos de acordo com a necessidade dos clientes A nível de estudo preliminar, pode ser apenas uma consultoria, uma planta baixa, uma imagem 3D, pasta de referências, tudo é personalizado de acordo com o perfil e a forma que o cliente visualiza o processo de concepção do projeto

“Consultoria, projeto, assim, a nível de estudo preliminar, seria consultoria, porque o projeto mesmo a gente não consegue desenvolver muita coisa A gente consegue entregar é porque depende muito da demanda, tudo muito individual As vezes o cliente precisa de uma visualização 3D, ou as vezes não, só precisa de um direcionamento tem clientes que o 2D ele não consegue entender nada então eu preciso dar um direcionamento através de um 3D, de um moodboard, de uma pasta de referência Então eu trabalho de uma forma muito individual Tem escritórios que trabalham assim com um modelo x, y, z Eu acredito muito nessa entrega individual Eu vou de acordo com o perfil de cada pessoa ” (SARDINHA 2022)

Mesmo não possuindo um padrão de representação gráfica, a arquiteta diz que pressa por um padrão de atendimento Mantendo sempre as mesmas perguntas, mesma atenção e direcionamento para todos seus clientes Sobre o processo de criação de suas representações gráficas, ela também produz de maneira personalizada para cada cliente De acordo com o perfil que é identificado em cada cliente, a arquiteta estrategicamente produz o método de representação que acredita ser mais adequado

“Nesse processo de criação gráfica eu vou muito pela demanda As vezes a pessoa precisa de um norte, as vezes ela tem tanta noção do mercado, de tudo Tem clientes e clientes Eu sempre dou um foco maior na questão visual Porque nós somos seres visuais Como uso muito essa questão da neuro, a gente precisa muito perceber como que seu cliente vai enxergar aquilo ali Tem o cliente que ele vai ter o perfil mais conservador, um perfil mais assim, tem cliente que me pergunta “Qual a distância desse móvel e aquele móvel?” Esse é o tipo de cliente que se eu entregar um 3D pra ele são questionamentos que o 3D não vai responder Então eu vou ter que entregar pra ele um 2D bem definido com cota com tudo e também um 3D pra ele visualizar A nível de estudo preliminar, é completamente individual A nível de projeto executivo eu sempre início tentando entender como o cliente visualiza aquela situação Ou eu vou dar foco em um 2D bem detalhado ou num 3D bem chamativo para pessoa entender a proposta ” (SARDINHA 2022)

7 0

Sobre a compreensão dos projetos apresentados para o cliente, mesmo com esse cuidado de individualizar a apresentação, a arquiteta afirma que no início muitos tinham dificuldade na legibilidade, mas que hoje em dia acontece com menos frequência, justamente por sempre priorizar a representação adequada para cada tipo de pessoa

“No início, muito Hoje em dia menos Hoje em dia eu tenho uma facilidade maior de conseguir conectar o cliente ao projeto deles desde a primeira entrega desde o estudo preliminar Por causa dessa metodologia que eu desenvolvi de trabalhar de acordo com o perfil comportamental da pessoa Mas no início já passei muito perrengue de visualização “ (SARDINHA, 2022)

O método desenvolvido pela arquiteta parte do seu entendimento dos padrões de visualização Todo o processo do escritório é baseado e personalizado ao perfil comportamental do cliente, fazendo com que, segundo a arquiteta, a compreensão em representações gráficas seja maior

“Existem pessoas que são mais metódicas que querem entender qual que a medida disso e daqui, já existem pessoas que são mais visuais que querem entender se isso vai combinar com aquilo Com o tempo eu fui desenvolvendo uma metodologia minha que é isso, de acordo com o perfil comportamental da pessoa ” (SARDINHA, 2022)

Em seguida, a entrevista partiu para um segundo grupo de perguntas relacionadas ao perfil do cliente onde questões de legibilidade e compressão serão levantados e apresentados

4 . 2 . 2 P e r f i l d o C l i e n t e 4 . 2 . 2 P e r f i l d o C l i e n t e

Nesse segundo momento da entrevista, foram realizadas perguntas sobre o perfil do cliente e o processo de briefing do escritório O escritório da arquiteta Bruna Sardinha, atende um público com a faixa etária dos 30 aos 60 anos e atualmente realiza projetos residenciais e comerciais, em sua grande maioria

O processo de briefing do escritório se diferencia dos demais, segundo a arquiteta, por ser dividido em dois momentos Em um primeiro momento, a arquiteta gosta de visitar o local do projeto para obter uma compreensão maior dos objetivos do projeto e da situação existente para que o orçamento seja feito de maneira coerente “Eu gosto muito de gastar esse tempo para ir até o local se posições, ver, visualizar pessoalmente o local, se possível óbvio se não a gente faz por foto, enfim, antes de passar o orçamento Tem arquiteto que não acha isso não é legal fala que eu tô trabalhando de graça eu já acho que isso faz parte do serviço, então a gente vai lá, dá uma atenção pessoalmente pro cliente, ver o tamanho do projeto, as vezes acha que é só um projeto de interiores a nível de reforma mesmo e no meio do caminho a gente percebe que tem ser mexido na estrutura, na fachada Então eu gosto muito de ir até o local Acho que isso é uma coisa que eu faço que é diferente de outras pessoas ” (SARDINHA, 2022)

Em um segundo momento, a arquiteta gosta de se reunir de uma forma mais informal com cliente, para que esse processo do briefing não seja levado como uma entrevista São feitas perguntas mais direcionadas ao comportamento do ambiente em relação ao cliente

7 1

Aspectos como o grau de importância, o motivo pelo qual ele procurou um arquiteto, o que ele espera, qual sensação ele quer ter ao adentrar ao ambiente Cores, texturas, cheiros que agradam ou desagradam também fazem parte dessas perguntas direcionadas ao cliente nesse momento, além de perguntas comuns como de funcionalidade, por exemplo

“Numa segunda conversa, aí é sentindo mesmo a energia do cliente fazendo umas perguntinhas específicas Eu gosto de ser uma coisa com mais afeto, não gosto de fazer uma entrevista As vezes a gente vai sentar pra tomar um café, ou fazer uma conversa no zoom, porque tem gente que acha que tomar café é perder tempo, aí a gente vai conversando ali As perguntas que eu normalmente costumo fazer é em questão de comportamento, como ele quer se sentir no ambiente, qual importância o ambiente tem pra ele, como ele quer que as outras pessoas se sintam nesse ambiente, o que motivou ele a procurar ele o projeto, o que motivou a fazer a reforma Além das perguntas usuais sobre funcionalidade do ambiente que a gente tem que fazer, existem essas perguntas mais profundas em questão da relação do relacionamento das pessoas com o ambiente ” (SARDINHA, 2022)

A arquiteta Bruna Sardinha, assim como a arquiteta do escritório anterior, acredita que o grau de entendimento do cliente para um projeto arquitetônico é reconhecido através de falas e comportamentos do mesmo Em seguida, será apresentado um projeto realizado pelo escritório da arquiteta em questão com o objetivo de ilustrar e sintetizar seus métodos representativos

4 . 2 . 3 M é t o d o s R e p r e s e n t a t i v o s E s c r i t ó r i o 0 2 4 . 2 . 3 M é t o d o s R e p r e s e n t a t i v o s E s c r i t ó r i o 0 2

P r o j e t o d e R e f o r m a : P i t s t o p P r o j e t o d e R e f o r m a : P i t s t o p

Esse é um projeto de reforma comercial para um lava jato que atende pessoas de classes mais elevadas e precisava de um ambiente mais adequado e agradável para receber os clientes O escritório enviou para o cliente do projeto em questão uma apresentação em PDF contendo planta baixa humanizada com pontos relevantes que eram necessidades do espaço e foram resolvidos a partir da proposta da arquiteta

Em seguida, são apresentadas imagens em 3D para facilitar a visualização das mudanças propostas Nesse projeto, foram utilizados aspectos da neurociência aplicada à arquitetura que influenciaram na escolha das cores e dos materiais considerando o objetivo central da proposta

7 2
Figura 60 - Planta Baixa Pitstop Fonte: Bruna Sardinha, 2022.

Segundo a arquiteta, a proposta foi compreendida de primeira após a apresentação das representações gráficas expostas e a explicação da ideia De forma geral, a título de estudo preliminar as representações gráficas da arquiteta seguem um estilo mais ilustrativo e menos técnico, diferente do escritório anterior que apresenta essas duas nuances

4 . 3 . A n á l i s e G e r a l 4 . 3 . A n á l i s e G e r a l

Para concluir o capítulo, será abordado um panorama geral sobre os métodos de representação gráfica utilizados por ambos escritórios e questões levantadas nas entrevistas As diferenças nas linguagens projetuais são claras, cada uma utiliza de artifícios diferentes e leva em consideração aspectos distintos para montagem dessa representação gráfica

Autora, 2022

7 3
Figura 61 – Imagens 3D Pitstop Fonte: Bruna Sardinha, 2022. Tabela 01 – Pontos Relevantes dos Escritórios Analisados Fonte:

Na Tabela 01, são apresentados aspectos de contraponto de um escritório para outro Enquanto o escritório 01 utiliza de uma padronização para a entrega de projetos aos seus clientes, o escritório 02 possui uma representação mais personalizada Mesmo possuindo o mesmo perfil de cliente e de projetos, as arquitetas seguem linhas distintas quanto ao conceito arquitetônico e as representações gráficas entregues, sendo apenas as imagens 3D um ponto comum entre os dois escritórios

Os tipos de representação gráfica são inúmeros e podem ter linguagens visuais distintas de acordo com o conceito do escritório Mas o ponto chave desse trabalho é avaliar como as pessoas ou/e potenciais clientes visualizam e entendem esses projetos E para além disso, como as representações gráficas evocam sensações distintas e influenciam no processo de compreensão dos ambientes propostos por arquitetos No próximo capítulo, serão apresentados os métodos utilizados para realizados testes com a utilização de rastreamento ocular para avaliar se os resultados vão na mesma direção que a intenção da representação gráfica

7 4

m é t o d o s , p r o p o s t a s e o b j e t i v o s

5 .

Com base nos projetos arquitetônicos disponibilizados pelas arquitetas e apresentados no capítulo anterior, neste capítulo serão explanados os métodos utilizados neste trabalho para o levantamento de dados sobre a percepção neurocientífica dos participantes quanto à representação gráfica apresentada através de testes específicos Ademais, será apresentado um novo método de representação gráfica dos projetos dos escritórios participantes, utilizando de novas tecnologias de visualização

Esses testes foram divididos em três etapas com métodos específicos Na primeira etapa, com a utilização do equipamento de rastreamento ocular Eye Tracker, os voluntários observaram por alguns segundos imagens dos projetos dos escritórios 01 e 02 Essa etapa tem como objetivo rastrear o movimento ocular fisiológico e inconsciente dos participantes, para gerar dados sobre foco e atenção

5 . 1 C a r a c t e r i z a ç ã o d o s P a r t i c i p a n t e s 5 . 1 C a r a c t e r i z a ç ã o d o s P a r t i c i p a n t e s

Os testes aconteceram na Universidade Vila Velha, em Vila Velha, no Espírito Santo, e ao total dez pessoas participaram voluntariamente de todas as etapas Os voluntários foram divididos em dois grupos A e B, de acordo com seu entendimento da área arquitetônica O grupo A foi composto por cinco voluntários entre eles estudantes de Arquitetura e pessoas com experiência na área No Gráfico 03 é possível visualizar a caracterização dos voluntários do grupo A

Gráfico 03 - Caracterização do Grupo A

Na segunda etapa, a autora propôs um novo método de visualização dos projetos dos escritórios e os voluntários realizaram um tour virtual 360º de forma totalmente livre e espontânea O passeio foi guiado pelo próprio voluntário e o rastreamento ocular foi utilizado para gravar e rastrear o percurso Na terceira e última etapa da testagem, houve entrevistas com tempo de duração livre, onde perguntas direcionadas a compreensão do projeto, representação gráfica e reação emocional foram respondidas com relação às duas fases anteriores

Fonte: Autora, 2022

O grupo B foi composto por outros cinco voluntários de diferentes áreas de conhecimento sem relação com a Arquitetura A caracterização dos voluntários do grupo B está apresentada no Gráfico 04

7 6
É T O D O S
P
O P
M
,
R
O S T A S E O B J E T I V O S

Gráfico 04 - Caracterização do Grupo B

Através da leitura dos gráficos, pode-se observar que todos os participantes possuem a faixa etária entre 18 a 39 anos e sete dos dez são mulheres Como forma de preservar a identidade dos participantes, seus nomes não serão divulgados Esses serão identificados durante o trabalho com a numeração de 01 a 10, sendo de 01 a 05 voluntários do grupo A e 06 a 10 voluntários do grupo B

5 . 2 A m b i e n t a ç ã o d o T e s t e 5 . 2 A m b i e n t a ç ã o d o T e s t e

Toda a atmosfera do ambiente da testagem foi pensada para garantir o conforto e estimular a concentração dos participantes Para isso, durante todo o processo inicial e durante a testagem, havia uma playlist com músicas tranquilas passando de fundo, para que houvesse relaxamento, alívio de tensão e estímulo da concentração O computador onde os voluntários visualizaram as imagens foi posicionado estrategicamente em uma mesa de frente para parede, para que nenhum outro elemento existente na sala pudesse distraí-los durante o teste A luz artificial foi apagada e apenas a luz natural advinda das janelas iluminava o ambiente

Cada participante foi testado de forma única e individual, não havendo outros voluntários na sala enquanto um participava da testagem Assim que cada participante chegava, havia um momento de conversa e explicação de como aconteceriam os testes e todas suas etapas, além da elucidação dos objetivos deste trabalho e outras recomendações Logo depois, foi feito um primeiro contato do voluntário com o Eye Tracker, onde era possível manusear e tirar dúvidas sobre o equipamento e seu funcionamento

7 7
Fonte: Autora, 2022

Outros aspectos como a altura do computador e o distanciamento entre a tela e os olhos do voluntário foram levados em consideração Conforme pode-se observar na Figura 62, o computador foi colocado sobre uma caixa de 10 centímetros e a uma distância de mais ou menos 70 centímetros da cadeira para garantir uma distância agradável para a visualização das imagens Os códigos QR s posicionados nas laterais do computador são responsáveis pela delimitação da área de leitura do equipamento e foram utilizadas para o rastreamento do tour virtual da segunda etapa dos testes que será explicada posteriormente

5 . 3 5 . 3 E t a p a 0 1 - R a s t r e a m e n t o O c u l a r c o m E y e E t a p a 0 1 - R a s t r e a m e n t o O c u l a r c o m E y e T r a c k e r T r a c k e r

A primeira etapa do teste consistia na observação por parte dos voluntários das imagens dos projetos das arquitetas com a utilização do equipamento de rastreamento ocular Eye Tracker, da marca Pupil Lab Conforme explicado no capítulo 03, esse equipamento é responsável por mapear os movimentos da glândula ocular durante o tempo que está ativado

Para dar início ao teste, após o voluntário colocar o equipamento nos olhos, como um óculos, iniciou-se um processo de calibração do Eye Tracker Essa calibração funciona para delimitar a área de leitura e garantir que o movimento ocular dos voluntários está saindo conforme o esperado, para evitar erros e garantir a eficiência do equipamento Em seguida, foi iniciada a gravação e o teste se iniciou Todo esse processo de calibração e gravação é feito no software específico desenvolvido pelos responsáveis pela comercialização do óculos e se chama Pupil Capture Alguns registros dos voluntários participando do teste estão na Figura 63

7 8
Figura 62 - Ambiente da Testagem Fonte: Autora 2022

A sequência de imagens do teste foi montada no Power Point e cada slide tinha a duração de 10 segundos, garantindo o mesmo tempo de fixação para todas as imagens apresentadas As imagens iniciais do teste possuem algumas orientações e imagens de descompressão com paisagens e animais, totalmente fora do contexto da pesquisa para estimular o foco e a atenção do voluntário antes da apresentação das imagens referentes aos projetos Essa sequência inicial pode ser visualizada na Figura 64

Conforme podemos visualizar na Figura 65, a apresentação dos projetos foi dividida em Projeto 01 e Projeto 02 para facilitar a compreensão dos participantes quanto às diferenças dos projetos O Projeto 01 contemplou o projeto residencial disponibilizado pela arquiteta Maria Augusta Bittencourt e o Projeto 02 o projeto comercial disponibilizado pela arquiteta Bruna Sardinha O nome das arquitetas foi ocultado para evitar exposição e desconforto

7 9
Figura 63 - Voluntários durante a primeira etapa do teste Fonte: Autora, 2022 Figura 64- Apresentação: Slides Iniciais Fonte: Autora, 2022

65 - Apresentação: Projetos 01 e 02

Foram apresentadas para os voluntários sete imagens referentes ao Projeto 01 entre planta baixa técnica padrão ABNT e imagens 3D renderizadas e seis imagens referentes ao Projeto 02 entre planta baixa humanizadas e imagens 3D não renderizadas No total, a apresentação das imagens durou 3 minutos e 20 segundos e os resultados serão apresentados e analisados no próximo capítulo Após a finalização da testagem com o equipamento Eye Tracker, os voluntários participaram da segunda etapa do teste que será explicada a seguir

5 . 4 . 5 . 4 . E t a p a 0 2 - T o u r V i r t u a l E t a p a 0 2 - T o u r V i r t u a l

Para a segunda etapa do teste, foi utilizada uma nova tecnologia para representação gráfica de projetos

O tour virtual simula a realidade virtual aumentada e pode ser utilizado em óculos de realidade virtual No presente trabalho, foi utilizado na sua versão para computador

Como a intenção da pesquisa é somente avaliar a compreensão das pessoas e legibilidade dos projetos arquitetônicos frente às diferentes representações gráficas, não houve alteração de nenhum aspecto projetual por parte da autora nessa nova proposta de visualização 5 . 4 . 1 P r o d u ç ã o d o T o u r V i r t u a l 5 . 4 . 1 P r o d u ç ã o d o T o u r V i r t u a l

O tour virtual funciona como um passeio virtual que dá a possibilidade das pessoas conhecerem determinado local sem estar presente presencialmente Normalmente são compostos por uma sequência de imagens 360º que permitem que o usuário vague pelos ambientes de forma espontânea

No caso dos projetos arquitetônicos, pode ser utilizado como ferramenta de imersão para que os clientes e pessoas interessadas possam de fato se sentir nos ambientes propostos antes que de fato sejam construídos

Atualmente existem vários sites que criam tour virtual para os mais diversos fins de forma gratuita ou paga As imagens 360º podem ser produzidas em softwares de renderização conhecidos pelos profissionais e estudantes de Arquitetura, como VRay e Lumion

As imagens foram produzidas a partir do arquivo 3D base disponibilizado pelas arquitetas de ambos os projetos Todas as características projetuais foram mantidas de forma a preservar a autenticidade das propostas

8 0
Figura Fonte: Autora, 2022

Os materiais, revestimentos, cores permaneceram de acordo com o projeto A iluminação foi mantida de forma a possuir maior verossimilhança possível com os projetos dos escritórios Para a produção das imagens 360º dessa proposta, foi utilizado o software Lumion na opção de render em Panorama É ilustrado na Figura 67 como as imagens saem após a renderização

Figura 66 - Imagens 360º: Projetos 01 e 02

imagens 360º - projeto 01 imagens 360º - projeto 02

Ao observar as imagens 360º, conforme Figura 66, notamos certa distorção e detalhes de teto e piso Quando as imagens são inseridas no site, ficam em sua orientação certa Através do passeio, é permitido que o usuário visualize todos os ângulos do ambiente, em 360º graus, aproximar detalhes através do botão de rolagem do mouse e caminhar pelos ambientes da maneira que preferirem

Após a produção das imagens 360º, foi utilizado o site Meu Passeio Virtual para criação do tour Nesse site, é permitido criar de forma gratuita um passeio virtual básico com setas para os usuários se guiarem pelos ambientes Há ainda planos pagos que permitem a inserção de plantas baixas, áudios e marcadores com texto

A interface do site é bem simples e intuitiva Ao selecionar a opção “Criar projeto”, o usuário é direcionado para uma área onde são selecionadas as imagens 360º para montar o passeio É possível alterar a ordem das imagens e adicionar uma descrição Além disso, pode-se adicionar setas de direção para os ambientes

8 1
Fonte: Autora 2022

2022

Depois de incluir as imagens no site, e definir as setas para as pessoas se guiarem pelos ambientes, o tour está pronto Um pouco do processo de montagem do tour está presente na sequência de imagens da Figura 67 Ainda se pode transformar as imagens 360º no tour virtual em vídeo, sendo essa mais uma forma de visualização oferecida pelo site Para essa etapa da nova proposta de representação gráfica do teste, a nomenclatura dos projetos no tour seguiu a mesma nomenclatura da primeira etapa, sendo Projeto 01 o projeto residencial e Projeto 02 o projeto comercial

5 . 4 . 2 T e s t e c o m T o u r V i r t u a l 5 . 4 . 2 T e s t e c o m T o u r V i r t u a l

A segunda etapa das testagens ocorreu no mesmo dia da primeira etapa, logo após a finalização da mesma A ambiência, iluminação, distâncias e inclusive a estratégia da utilização da música como fator de descompressão e estímulo de foco e atenção permaneceram os mesmos nesse segundo momento

Antes dos voluntários iniciarem o tour, os critérios utilizados pela autora para a produção da nova proposta de visualização foram passados para os mesmos Sempre enfatizando que não houveram alterações projetuais, somente uma nova perspectiva de representação gráfica para os projetos já apresentados Também foram passadas orientações de como manipular o tour virtual e a sobre a ordem de passeio pelos ambientes que foi livre e direcionada de acordo com a vontade e espontaneidade de cada voluntário

Um ponto importante dessa fase, é que aliado ao teste com o tour virtual, os voluntários ainda estavam com o equipamento de rastreamento ocular com objetivo de rastrear o percurso de cada usuário além de gerar mapas de calor dos pontos mais observados durante esse passeio Os resultados das duas fases de rastreamento aliadas a diferentes técnicas será explanado no próximo capítulo Após a finalização do tour, os voluntários partiram para última etapa de testes que será explicada a seguir

8 2
Figura 67 - Interface Site Tour Virtual Fonte: Autora,

A última etapa dos testes foi uma entrevista estruturada a partir de um questionário montado na plataforma Google Forms Essa tinha como objetivo coletar dados qualitativos referentes às duas etapas anteriores As perguntas foram feitas em clima de conversa informal para que os voluntários pudessem sentir mais liberdade ao falar e os resultados ficassem mais ricos A entrevista não teve tempo pré estabelecido, podendo o voluntário responder às questões no tempo que considerasse confortável Mesmo tendo como base um questionário montado no Forms, a autora ficou responsável pelo preenchimento das perguntas que se faziam necessário escolher alternativa Os voluntários só preencheram seus dados pessoais inicialmente Todas as perguntas com respostas abertas foram gravadas e transcritas pela autora após a finalização dos testes

Assim que os voluntários finalizaram as primeiras etapas do teste, retiraram o equipamento e tiveram acesso ao Termo de Consentimento Livre e Esclarecido (TCLE) que já tinha sido discorrido de forma verbal antes de iniciar os testes No TCLE todos os termos da pesquisa foram devidamente explicados, assim como os objetivos, benefícios e plataforma de apoio para caso os voluntários sentissem certo desconforto ou possuíssem reclamações Todos voluntários concordaram com os termos presentes no TCLE e uma cópia foi enviada posteriormente para cada um via email Todos os voluntários gastaram, em média, 20 minutos para finalização de todas as etapas de testagem, incluindo a entrevista No próximo tópico será explicado como foi a estruturação das perguntas e outras observações

5 . 5 . 1 E s t r u t u r a ç ã o d a s E n t r e v i s t a s 5 . 5 . 1 E s t r u t u r a ç ã o d a s E n t r e v i s t a s

A entrevista foi dividida em três grupos após a leitura inicial do TCLE: o primeiro focou na coleta de dados pessoais para caracterização dos voluntários, o segundo grupo possuía perguntas direcionadas aos projetos observados na apresentação no teste com rastreamento ocular da primeira etapa e o terceiro grupo perguntas direcionadas a percepção dos voluntários após o tour virtual, conforme panorama geral apresentado na Figura 68 Figura 68- Seções Entrevista

Fonte: Autora, 2022

8 3 5 . 5 5 . 5 E t a p a 0 3 - E n t r e v i s t a s E t a a 0 3 - E n t r e v i s t a s

Nos Apêndices, pode-se observar na totalidade todas as perguntas feitas aos entrevistados e inclusive o TCLE As perguntas do primeiro grupo foram respondidas pelos voluntários de forma individual e levantou dados como faixa etária, gênero, profissão e município de residência Alguns desses dados foram expostos no ponto 5 1 deste mesmo capítulo, na caracterização dos voluntários

As perguntas iniciais dessas seções, tinham como objetivo levantar respostas quanto a aspectos que mais se agradaram no projeto apresentado e três elementos que chamaram a sua atenção durante o teste com o rastreamento ocular na primeira etapa A aplicação dessas perguntas tem o propósito de fazer um levantamento geral sobre pontos que agradam e fazer uma ligação ao papel da representação gráfica nesse aspecto e compará-los com os mapas de calor gerados também a partir da primeira etapa da testagem

O segundo grupo de perguntas foi dividido em dois subgrupos de acordo com cada projeto exposto e as perguntas eram iguais para ambos os projetos De forma geral, os voluntários foram questionados sobre suas percepções pessoais acerca de cada projeto, além de questões que buscavam compreender a reação emocional ao observar as imagens, além de perguntas sobre a legibilidade dos projetos e sobre a melhor forma de representação gráfica utilizada

O terceiro e último grupo de perguntas, contém questões relacionadas à segunda etapa da testagem, o tour virtual As perguntas também seguiram a mesma lógica das perguntas do grupo anterior, mas de forma geral O objetivo das perguntas desta seção era comparar esse novo método de representação gráfica apresentado ao anterior e fazer um apanhado geral sobre qual método utilizado durante toda a testagem foi o mais eficiente, na opinião dos voluntários, para o entendimento e compressão do espaço proposto Essa validação é importante para comprovar a eficiência da nova proposta

Em seguida, foi apresentado novamente as plantas baixas enviadas pelas arquitetas e questionado aos participantes se através da visualização somente dessa planta baixa, seria possível compreender o espaço proposto A intenção dessa pergunta era fazer um levantamento quanto a facilidade de leitura de uma planta baixa - representação usual na maioria dos projetos arquitetônicos - por parte das pessoas testadas, sem o suporte das imagens 3D Esse levantamento também foi importante pois os projetos apresentados possuíam diferentes variações de plantas baixas O Projeto 01 possuía uma planta baixa mais técnica, seguindo padrões da ABNT Já a planta baixa do Projeto 02 seguia uma linha de planta baixa humanizada

5 . 5 . 2 S e g u n d a E t a p a d a s E n t r e v i s t a s

5 . 5 . 2 S e g u n d a E t a p a d a s E n t r e v i s t a s

Como explicado anteriormente, o segundo grupo de perguntas da entrevista contemplava questões relacionadas à primeira etapa do teste, rastreamento ocular com observação por parte dos voluntários da apresentação com imagens dos projetos Esse grupo se dividiu em duas seções iguais com perguntas idênticas quanto ao Projeto 01 e 02

8 4

69 - Perguntas

- Projeto 01 e 02 projeto 01 projeto 02

As últimas perguntas dessa seção são relacionadas a representação arquitetônica dos projetos São duas perguntas objetivas que serão avaliadas de forma quantitativa A primeira pergunta tinha como objetivo avaliar qual dos métodos de representação gráfica utilizados pelas arquitetas nos respectivos projetos, era mais eficiente para compressão da proposta, na concepção pessoal de cada entrevistado

Para finalizar, os entrevistados avaliaram a representação gráfica utilizada no projeto quanto o auxílio para a compressão das propostas Nesse ponto, foi deixado claro para os voluntários que não era uma avaliação quanto a qualidade do projeto ou o quanto o voluntário gostou ou não, o único aspecto considerado nessa avaliação foi a representação gráfica Após o término das perguntas dessa seção, a entrevista caminhava para o final com as perguntas relacionadas ao tour virtual que serão aprofundadas no tópico a seguir

5 . 5 . 3 T e r c e i r a E t a p a d a s E n t r e v i s t a s 5 . 5 . 3 T e r c e i r a E t a p a d a s E n t r e v i s t a s

O último grupo de perguntas da entrevista tinha relação com a segunda etapa dos testes, o tour virtual aliado ao rastreamento ocular Nessa seção, as perguntas foram feitas de forma geral para ambos os projetos Os voluntários foram questionados primeiramente sobre as sensações e gatilhos emocionais que foram gerados ou sentidos após a finalização do tour de ambos os projetos O objetivo desse questionamento é comparar as sensações evocadas pela primeira etapa do teste com as imagens estáticas e compreender as diferenças de sensações causadas por diferentes representações gráficas

Através da Figura 69, podemos observar perguntas feitas a partir da visualização de imagens específicas do projeto Assim como as perguntas iniciais, a intenção é comparar as respostas qualitativas dos entrevistados com os mapas de calor gerados a partir da observação das imagens com Eye Tracker e produzir dados sobre a reação emocional que cada imagem evoca nos entrevistados

Também foi perguntado aos voluntários o que mais gostaram da experiência de fazer um tour e se o entendimento dos projetos mudou após o passeio Essas perguntas tinham como objetivo entender como essa nova tecnologia de visualização de projetos pode auxiliar arquitetos e estudantes a melhorarem a compreensão de seus projetos

8 5
Figura Ilustradas Fonte: Autora 2022

Para finalizar a entrevista, havia uma última pergunta objetiva onde o voluntário precisava escolher entre todos os métodos de representação gráfica arquitetônica utilizados nos projetos apresentados em todas as etapas da testagem, qual era o mais eficiente na sua concepção pessoal (Figura 70)

Figura 70 - Pergunta Final

Fonte: Autora 2022

O resultado das três etapas do teste do presente trabalho, serão descritos, analisados, comparados e sintetizados no próximo capítulo

8 6

r e s u l t a d o s e a n á l i s e s

6 .

Nesse capítulo serão apresentados os resultados dos testes realizados e descritos no capítulo anterior Os resultados serão expostos de acordo com as três etapas da testagem, respeitando sua ordem e divididos entre grupo de voluntários A e grupo de voluntários B

Os voluntários foram caracterizados e divididos em grupos no ponto 5 1 do capítulo 5 e sua divisão é pautada no conhecimento da área de Arquitetura Os voluntários do grupo A são estudantes ou pessoas da área e o grupo B possui voluntários de áreas distintas

6 . 1 R e s u l t a d o s - E t a p a 0 1 : R a s t r e a m e n t o 6 . 1 R e s u l t a d o s - E t a p a 0 1 : R a s t r e a m e n t o

O c u l a r c o m E y e T r a c k e r O c u l a r c o m E y e T r a c k e r

Como resultado da observação com a utilização do equipamento Eye Tracker da apresentação com as representações gráficas dos projetos das arquitetas, foram gerados mapas de calor de cada imagem observada pelos voluntários Os mapas de calor permitem determinar as informações acerca do comportamento ocular de cada voluntário frente às imagens observadas Através de suas cores, consegue definir qual ou quais elementos chamou a atenção do usuário durante o período do teste

No final de cada etapa, será feita uma análise entre os resultados dos dois grupos considerando cada projeto E posteriormente, uma análise geral relacionando as três fases dos testes O objetivo é chegar em resultados que comprovem a influência das representações gráficas para o entendimento de projetos de arquitetura e como aspectos cognitivos que relacionam neurociência e arquitetura são importantes gatilhos para esse processo

Além disso, comprovar a eficiência de novos meios de representação, utilizando de novas tecnologias, pode melhorar consideravelmente a legibilidade de projetos arquitetônicos por parte das pessoas, sejam elas clientes ou não E como esse novo método pode influenciar no sucesso de nossas vendas, ou seja, no sucesso de nossos projetos

A representação dos mapas ocorre a partir de manchas com cores primárias e suas variedades As cores quentes, como o amarelo e o vermelho, indicam os pontos de maior tempo de fixação do olhar Já as cores frias, como o azul e suas cores intermediárias como o verde, indicam os pontos onde houve menor tempo de fixação Ao visualizar um mapa de calor, observamos os pontos de menor fixação ao maior de fixação nas áreas manchadas

Como a apresentação das imagens foram divididas de acordo com o projeto das arquitetas, os resultados vão seguir a mesma divisão Primeiro serão apresentados os resultados do Projeto 01 e na sequência do Projeto 02 As imagens que serão avaliadas nessa etapa são as imagens que foram avaliadas na entrevista, para a comparação dos resultados Os demais mapas de calor gerados a partir das outras imagens serão disponibilizados para a visualização nos Apêndices

8 8 R E S U L T A D O S E A
Á
N
L I S E S

O Projeto 01 é o projeto da arquiteta Maria Augusta, participante do Estudo de Caso do capítulo 04 É um projeto residencial unifamiliar de reforma Os voluntários tiveram acesso a sete imagens entre planta baixa e imagens 3D Para essa análise, serão expostos os resultados de três dessas imagens A seguir serão apresentados os mapas de calor das imagens observadas pelos voluntários do Grupo A e em seguida, os mapas do Grupo B

6 . 1 . 1 . 1 I m a g e m 0 1 6 . 1 . 1 . 1 I m a g e m 0 1

A primeira imagem que os voluntários observaram foi a planta baixa do projeto A Figura 71, mostra os mapas de calor dos voluntários do 01 ao 05, do Grupo A

8 9 6 . 1 . 1 6 . 1 . 1 P r o j e t o 0 1 P r o j e t o
0 1
voluntár o 01 vo untário 02 voluntár o 03 vo untário 04 voluntár o 05 Figura 71 - Projeto 01: Mapas de Calor - Imagem 01 - Grupo A Fonte: Autora 2022

Através da análise dos mapas de calor, vemos que apenas os voluntários 01 e 05 tiveram algum tempo de fixação na planta baixa apresentada Os outros focaram sua atenção em pontos cegos da imagem Se considerarmos o maior tempo de fixação, representado pela cor vermelha, somente o voluntário 05 focou sua atenção em algum detalhe da planta em questão Por se tratar de um grupo de pessoas que entendem e vivenciam a arquitetura no dia a dia, pode ser que a compressão do todo foi mais rápida e por isso acabaram focando sua atenção, mesmo que inconscientemente, em pontos cegos

9 0
Figura 72 - Projeto 01: Mapas de Calor - Imagem 01 - Grupo B voluntário 06 voluntário 07 voluntário 08 voluntár o 09 voluntário 10 Fonte: Autora 2022

No Grupo B, todos os voluntários tiveram o maior tempo de fixação em algum ponto da planta baixa, conforme observado na Figura 72 Os voluntários 06 e 08 apresentaram o mapa mais distribuído, com focos de atenção por toda planta em áreas distintas Por se tratarem de voluntários de áreas sem relação com a arquitetura, o resultado do mapa de calor nos revela que essas pessoas focaram mais sua atenção na planta, buscando entender sua distribuição

Em um panorama geral, podemos concluir que os voluntários do Grupo B apresentaram, em sua totalidade, maiores pontos de fixação na planta baixa apresentada do que os voluntários do Grupo A Isso pode ser justificado pela familiarização do Grupo A com esse tipo de representação, fazendo com que os voluntários desse grupo consigam ter uma compressão e identificação do espaço proposto com maior facilidade

6 . 1 . 1 . 2 I m a g e m 0 2 6 . 1 . 1 . 2 I m a g e m 0 2

Dando sequência a apresentação, a imagem visualizada pelos voluntários foi uma vista da sala de jantar e estar Na Figura 73, observamos os mapas de calor gerados através do rastreamento ocular dos voluntários do Grupo A Nessa imagem em questão, o ponto de atenção dos voluntários foi semelhante Enquanto os voluntários 01 e 04 possuíram o ponto de maior fixação no piso e na mesa de jantar, os voluntários 02, 03 e 05 possuíram a maior concentração de foco na região que inclui a divisória em madeira dos ambientes com a iluminação em led no teto e o móvel de apoio encostado na divisória

9 1
Figura 73 - Projeto 01: Mapas de Calor - Imagem 02 - Grupo A voluntário 01 voluntár o 02 voluntário 03 voluntário 04 voluntário 05 Fonte: Autora, 2022

No Grupo B, os voluntários tiveram seus pontos de fixação mais distribuídos pela imagem (Figura 74) Os voluntários 07 e 10 possuíram maior fixação na área da mesa de jantar e móvel auxiliar Já os voluntários 08 e 09 tiveram dois pontos de maior fixação cada com um ponto de congruência na luminária acima da mesa de jantar, ponto de relevância em ambos os mapas Além da luminária, o voluntário 08 teve sua segunda mancha de fixação no divisória em painel ripado de madeira O voluntário 09 por sua vez, focou no móvel auxiliar que fica abaixo da divisória O voluntário 01 não possui resultados analisáveis, já que seu maior ponto de fixação está no canto da imagem

9 2
Figura 74 - Projeto 01: Mapas de Calor - Imagem 02 - Grupo B voluntário 06 vo untário 07 vo untário 08 voluntário 09 voluntário 10 Fonte: Autora, 2022

Analisando de forma geral os dois grupos, os locais que mais apareceram nas áreas de maior fixação foram a divisória em painel ripado, a mesa de jantar e sua área próxima ao chão do ambiente, as luminárias acima da mesa de jantar e o móvel auxiliar encostado no painel ripado 6 . 1 . 1 . 3 I m a g e m 0 3 6 . 1 . 1 . 3 I m a g e m 0 3

A imagem 03 corresponde a quarta imagem passada para os voluntários durante a apresentação do projeto e é uma das vistas da cozinha do projeto representada por uma imagem 3D renderizada

Figura 75 -Projeto 01: Mapas de Calor - Imagem 03 - Grupo A voluntário 01 voluntário 02 vo untário 03 voluntár o 04 voluntário 05

Fonte: Autora, 2022

9 3

Os voluntários do grupo A possuíram pontos de maior fixação semelhantes nessa imagem em questão Observando os mapas de calor representados na Figura 75, pode-se concluir que enquanto os voluntários 01, 02 e 04 ficaram mais tempo observando a mesa de jantar da cozinha, os voluntários 03 e 05 focaram sua atenção nos quadros que aparecem na parede do ambiente O voluntário 05 foi o único que possuiu mais de um ponto de fixação na imagem, os outros voluntários só possuem uma mancha concentrada no local de maior foco

9 4
Figura 76 - Projeto 01: Mapas de Calor- Imagem 03 - Grupo B voluntário 06 voluntário 07 voluntário 08 voluntário 09 voluntário 10 Fonte: Autora 2022

Os voluntários do Grupo B, por sua vez, possuíram a área de maior fixação mais diversa Diferente dos voluntários do grupo A, nos mapas de calor desse grupo os voluntários observaram outros pontos da imagem, como os armários do fundo, o piso e o teto O voluntário 08 é o que possui o mapa de calor mais distribuído, tendo seu ponto de maior fixação nos quadros da parede De forma geral, os pontos dos ambientes que mais aparecem nos mapas de calor dos voluntários do grupo B são os armários, quadros da cozinha, mesa de jantar e teto

Fazendo uma análise dos dois grupos, os elementos que mais chamaram a atenção dos voluntários na Imagem 03 foram a mesa de jantar, os armários, os quadros e o teto

6 . 1 . 2 P r o j e t o 0 2 6 . 1 . 2 P r o j e t o 0 2

O Projeto 02 é o projeto da arquiteta Bruna Sardinha, participante do Estudo de Caso do capítulo 04 e se trata de um projeto comercial de reforma para uma borracharia Nesse projeto, os voluntários visualizaram seis imagens entre planta baixa e imagens 3D não renderizadas Assim como no Projeto 01, para a análise foram selecionadas três imagens que também aparecem em outras etapas do teste A seguir serão apresentados os mapas de calor das imagens observadas pelos voluntários de ambos os grupos, numeradas de 01 a 03

6 . 1 . 2 . 1 I m a g e m 0 1 6 . 1 . 2 . 1 I m a g e m 0 1

Assim como no Projeto 01, a primeira imagem analisada é uma planta baixa Entretanto, diferenciando-se da arquiteta do primeiro escritório, a arquiteta desse projeto utiliza da planta baixa humanizada onde é possível visualizar a materialidade dos ambientes

Figura 77 - Projeto 02: Mapas de Calor- Imagem 01 - Grupo A voluntário 01 voluntário 02 voluntário 03 voluntário 04 voluntário 05

9 5
Fonte: Autora, 2022

Os voluntários do grupo A, diferindo dos mapas de calor do projeto 01 para a planta baixa, tiveram seus pontos de maior fixação dentro da planta em lugares variados A grande maioria deles (4 dos 5 voluntários) tiveram manchas distribuídas pelos ambientes Na Figura 77, é possível visualizar essa variação Por se tratar de um espaço reduzido em relação ao primeiro projeto, a visualização de todos os elementos é mais rápida e clara

9 6
Figura 78 - Projeto 02: Mapas de Calor- Imagem 01 - Grupo B vo untário 06 voluntário 07 voluntário 08 voluntário 09 voluntário 10 Fonte: Autora, 2022

Seguindo a mesma linha do projeto 01, os voluntários do grupo B mantiveram as manchas de calor bem distribuídas pelo ambiente, com diversos pontos de fixação, com exceção do voluntário 06 que teve seu maior ponto de fixação na borda da imagem (Figura 78) Isso pode indicar desatenção ou algum erro de calibragem do equipamento para a imagem em questão Os voluntários 08 e 09 possuíram dois pontos com maior tempo de fixação respectivamente, o que é um ótimo indicador de foco e atenção

Em resumo, os voluntários de ambos os grupos focaram em algum elemento da representação arquitetônica Isso pode se explicar pela forma humanizada da planta, que trás aspectos de materialidade e certo realismo, aumentando sua legibilidade 6 . 1 . 2 . 2 6 . 1 . 2 . 2 I m a g e m 0 2 I m a g e m 0 2

A segunda imagem a ser analisada no projeto 02 é uma vista da fachada da proposta Essa imagem contém elementos internos e externos do projeto Os voluntários do grupo A apresentam certas semelhanças em seus respectivos mapas de calor representados na Figura 80 Os voluntários 01, 02 e 04 tem sua mancha de maior fixação concentrada no mesmo elemento em pontos diferentes Todos fixaram o olhar em alguma parte do ladrilho preto da parte inferior da fachada Além disso, os voluntários 02, 03 e 05 possuem uma mancha de fixação na vegetação do lado direito da fachada O voluntário 05 foi o único que teve suas fixações distribuídas por toda parte central da fachada, sendo seu maior ponto de fixação também as vegetações citadas anteriormente

Já os voluntários do Grupo B, variaram em seus locais de maior fixação (Figura 80) Somente os voluntários 06 e 10 possuíram o mesmo local de maior atenção, concentrado nos bancos da recepção e vidros da fachada Os outros voluntários têm seu maior ponto de fixação em lugares distintos como os ladrilhos superiores da fachada, a vegetação no canto esquerdo e a vegetação do canto direito Nessa imagem, saindo do padrão das anteriores, o grupo B não possui muita distribuição de fixações pelo mapa

9 7
Figura 79- Projeto 02: Mapas de Calor- Imagem 02 - Grupo A voluntário 01 voluntário 02 voluntário 03 voluntário 04 voluntário 05 Fonte: Autora, 2022

Figura 80 - Projeto 02: Mapas de Calor- Imagem 02 - Grupo B voluntário 06 vo untário 07

6 . 1 . 2 . 3 6 . 1 . 2 . 3 I m a g e m 0 3 I m a g e m 0 3

A última imagem a ser analisada nessa etapa, corresponde a quinta imagem vista pelos voluntários durante o rastreamento ocular do projeto 02 É uma vista interna do projeto que mostra parte da ambiência proposta para recepção, em uma imagem 3D não renderizada

Em síntese, para a Imagem 03, os elementos com maior número de fixações nos mapas de calores dos voluntários dos dois grupos foram as vegetações presentes na fachada, os vidros do centro juntamente com as cadeiras da recepção e os ladrilhos inferiores e superiores

9 8
voluntário 08 voluntário 09 voluntário 10 Fonte: Autora, 2022 Figura 81 - Projeto 02: Mapas de Calor- Imagem 03 - Grupo A voluntário 01 voluntár o 02 voluntário 03 voluntár o 04 voluntário 05 Fonte: Autora, 2022

A Figura 81 apresenta os mapas de calor do grupo A para a Imagem 03 Nessa imagem, a grande maioria dos voluntários do grupo A - 4 dos 5 voluntários - tiveram seu ponto de maior fixação em um elemento central da imagem Os voluntários 01 e 02 possuem sua mancha de atenção próxima, no pé da geladeira amarela A diferença entre os pontos de fixação dos dois usuários se dá pela direção de seus outros pontos, enquanto o 01 focou na parede verde ao fundo, o 02 focou na parte do piso em frente a geladeira Já os voluntários 03 e 05, tem como ponto em comum a prateleira acima da geladeira amarela O voluntário 04, no entanto, tem a área de maior interesse foi o único que teve a área de maior fixação concentrada no chão do ambiente e em parte da parede verde ao fundo do projeto

Os voluntários do Grupo B, por sua vez, possuem a área de maior fixação mais distribuídas pela imagem Entretanto, os voluntários 07, 09 e 10 tiveram sua mancha mais saturada, consequentemente, maior fixação, na geladeira amarela que fica no centro do ambiente O voluntário 08 apresenta um mapa de calor dividido em vários pontos, sendo os de maior fixação parte da parede de fundo e a parede verde e os vidros da fachada E o voluntário 06, tem sua única mancha concentrada nas calotas das paredes e na parede de fundo, sendo esse seu maior ponto de fixação, ou seja, o ponto para onde ele mais olhou durante a observação da imagem em questão

9 9
Fig ra 82 Projeto 02: Mapa d C l I 03 G B voluntário 06 voluntár o 07 voluntário 08 vo untário 09 voluntário 10 Fonte: Autora, 2022

Em suma, fazendo uma intercessão entre os mapas de calor de ambos os grupos, podemos concluir que os pontos de maior fixação foram a geladeira amarela e a parede verde

6 . 2 R e s u l t a d o s - E t a p a 0 2 : T o u r V i r t u a l 6 . 2 R e s u l t a d o s - E t a p a 0 2 : T o u r V i r t u a l

Os resultados da segunda etapa da testagem foram divididos em dois momentos No primeiro momento, buscou-se sintetizar o principal percurso percorrido por cada grupo de voluntários dentro do tour virtual de cada projeto O objetivo dessa síntese nos leva para o segundo momento de exposição de resultados dessa etapa, a apresentação dos mapas de calor dos ambientes onde os voluntários de cada grupo mais permaneceu, de forma geral

Um ponto importante a ser destacado, é que em ambos os projetos os voluntários não tiveram acesso amplo a todos os ambientes No Projeto 01, os voluntários tiveram acesso a sala integrada de jantar, estar e tv, cozinha, lavanderia, circulação principal, lavabo e a suíte do casal Já no Projeto 02, os voluntários só não tiveram acesso aos banheiros e estoque Isso se justifica pois os ambientes incluídos no tour tiveram como base arquivos 3D disponibilizados pelas respectivas arquitetas, não havendo nenhuma modelagem ou alteração de ambientes por parte da autora, como explicado no capítulo anterior

6 . 2 . 1 P e r c u r s o s P r e d o m i n a n t e s - P r o j e t o 0 1 6 . 2 . 1 P e r c u r s o s P r e d o m i n a n t e s - P r o j e t o 0 1

Como ponto inicial do tour virtual do Projeto 01, todos os voluntários partiram da porta de entrada do apartamento Após isso, através das setas no chão, o voluntário era livre para seguir o caminho que preferisse A partir de uma análise individual do trajeto percorrido por cada voluntário do grupo A, chegou-se em um percurso comum,ou seja, o que mais se repetiu dentro dos voluntários desse grupo, conforme apresentado na Figura 83

Figura 83 - Projeto 01: Percurso Síntese - Grupo A

Fonte: Autora, 2022

1 0 0

A ordem de visita nos ambientes do projeto pode ser observada na planta do percurso através de círculos numerados Os voluntários do grupo A, em geral, começaram o tour passando pelo ambiente da sala integrada - estar, jantar e tv - e seguiram em direção à cozinha, visitando logo em seguida a área de serviço/lavanderia Voltando a sala integrada, passaram imediatamente para a circulação privada, onde tiveram acesso ao lavabo e logo após à suíte do casal Finalizaram o tour voltando para um dos pontos da sala integrada No total, deram vinte e dois “passos” É importante ressaltar que dentro de ambientes como cozinha e suíte do casal, mesmo a imagem sendo 360º, os voluntários tiveram acesso a várias vistas, para terem ângulos de visualização diferentes do mesmo cômodo

Na planta do percurso síntese do grupo A, também é possível visualizar manchas vermelhas e azuis Seguindo a linguagem dos mapas de calor, o ponto em azul representa o ambiente onde os voluntários desse grupo permaneceram por menos tempo durante o tour virtual Já a mancha em vermelho, indica o ponto onde os voluntários permaneceram por mais tempo, de forma geral Essa representação indica, em outras linhas, os locais de maior e menor interesse, seja pelo tamanho ou nível de detalhes

No projeto 01, os voluntários do grupo A passaram mais tempo de visita na suíte de casal e menos tempo na lavanderia Os mapas de calor de cada ambiente, de maior e menor tempo, serão apresentados ainda neste capítulo

O mesmo método utilizado para o grupo de voluntários A, foi aplicado para o grupo B O percurso síntese foi gerado a partir de uma análise individual do percurso de cada voluntário, chegando em um denominador que representa o percurso que mais se repetiu dentro desse grupo

Na Figura 84, observamos que os voluntários do grupo B, assim como os voluntários do grupo anterior, começaram o tour passando pelos ambientes da sala integrada - estar, jantar e tv - Em seguida, foram em direção a circulação privada, onde primeiro visitaram o lavabo e depois a suíte do casal Voltando a circulação, continuaram o passeio na cozinha e lavanderia, finalizando o mesmo na sala integrada Ao todo, deram vinte e três passos

1 0 1
Figura 84 - Projeto 01: Percurso Sintese - Grupo B Fonte: Autora 2022

O ponto de maior permanência entre os voluntários do grupo B foi a sala de estar, no ambiente da sala integrada, indicado na planta anterior com a cor vermelha Em contraposição, o ponto de menor permanência foi o lavabo, representado na planta pela cor azul A seguir, serão apresentados os mapas de calor desses ambientes, a título de análise e comparação 6 . 2 . 2 P r o j e t o 0 1 : M a p a s d e C a l o r - P o n t o s d e 6 . 2 . 2 P r o j e t o 0 1 : M a p a s d e C a l o r - P o n t o s d e M a i o r e M e n o r P e r m a n ê n c i a M a i o r e M e n o r P e r m a n ê n c i a

Os mapas de calor que serão apresentados neste tópico estão relacionados aos pontos de maior e menor permanência representados nas plantas dos percursos sínteses de cada grupo de voluntários, referentes ao Projeto 01 Para essa análise, a autora utilizou um frame do ambiente mais e menos observado durante o tour e por se tratar de um imagem 360º, foi escolhido um ângulo predominante de cada espaço

Os mapas gerados a partir desses frames tem caráter apenas exemplificativo, visto que para uma análise mais aprofundada seria necessário utilizar do vídeo completo do tour de cada ambiente

O Grupo A, teve seu ambiente de maior permanência como a suíte do casal Na Figura 85, podemos observar que os voluntários 01, 02 e 04 voltaram sua atenção mais para os elementos do centro da imagem, como penteadeira, guarda roupa e parte da cama e os voluntários 03 e 05 em elementos como TV e travesseiros, respectivamente O tempo de maior permanência nesse ambiente por parte desse grupo de voluntários pode ser justificado se levarmos em consideração o grande número de detalhes dentro de um ambiente pequeno, o que pode ter prendido a atenção desses por mais tempo

ponto a ser considerado nesse panorama, é que a suíte do casal foi o último ambiente inédito adentrado pelos voluntários desse grupo, sendo assim, a falta de novos ambientes para visitar pode ter sido o causador do maior tempo de permanência

1 0 2
Outro Figura 85 - Projeto 01: Ambiente de Maior Permanência - Grupo A Fonte: Autora, 2022 voluntário 01 vo untário 02 voluntário 03 voluntário 04 voluntário 05

O ambiente em que os voluntários do grupo A menos permaneceram durante o tour, foi a lavanderia O pequeno número de elementos e a simplicidade do ambiente, sem muitos aspectos chamativos, podem ser os causadores desse tempo reduzido Além disso, de forma geral, a lavanderia foi um dos primeiros ambientes visitados pelos voluntários desse grupo, ainda restavam ambientes como lavabo e suíte de casal na visita Juntando esses dois aspectos, podemos concluir que a ausência de elementos chamativos e a ordem adentrada no ambiente pelo tour, fez com que os voluntários do grupo A permanecessem por menos tempo nesse ambiente

1 0 3
Figura 86 - Projeto 01: Ambiente de Menor Permanência - Grupo A voluntário 01 voluntário 02 voluntário 03 voluntário 04 voluntário 05 Fonte: Autora, 2022

Analisando a Figura 86, podemos concluir que os voluntários 01, 02 e 05 tiveram seu maior tempo de fixação nos armários, elemento central da imagem O voluntário teve seu ponto focal no chão e o 03 focou na seta de saída do ambiente Através da interpretação desses mapas de calor, é possível concluir que parte dos voluntários visualizaram o ambiente de forma rápida e focaram no elemento que mais se destacava na imagem e parte dos voluntários visualizou de forma rápida e voltaram seu foco para saída do ambiente

Diferentemente do grupo A, o grupo B teve seu ambiente de maior permanência durante o tour, uma parte da sala integrada, próximo a sala de estar Partindo da mesma análise feita anteriormente para o grupo anterior, isso pode ser justificado visto que a sala integrada foi o primeiro ambiente a ser visitado pelos voluntários desse grupo Por se tratar de uma novidade e uma experiência imersiva, aliando-se ao fato de ser uma integração de muitos ambientes, justifica-se o maior interesse dos voluntários

1 0 4
Figura 87 - Projeto 01: Ambiente de Maior Permanência - Grupo B voluntár o 06 voluntário 07 voluntário 08 voluntário 09 voluntário 10 Fonte: Autora, 2022

A partir da análise da Figura 87, vemos que os voluntários 07, 08 e 09 obtiveram maior tempo de fixação em pontos centrais da cena, como a mesa de centro, parte da mesa de jantar, tapetes e chão Esse foco pode ser justificado se levarmos em consideração a saturação desses elementos, podendo ter chamado a atenção em detrimento aos outros elementos O voluntário 06 manteve seu foco apenas em uma parte do chão do ambiente e o voluntário 10, teve sua área de maior fixação nas cortinas da lateral direita da cena

O ambiente de menor permanência dos voluntários do grupo B no Projeto 01, foi o lavabo Assim como a lavanderia, área de menor permanência do grupo A, trata-se de um ambiente pequeno e sem muitos elementos para visualização, o que pode justificar esse tempo Apesar de apresentar aspectos impactantes como o papel de parede e a iluminação, ainda assim possuiu o menor tempo em detrimento a outros ambientes Na Figura 88, podemos observar os mapas de calor gerados através da observação dos voluntários

1 0 5
Figura 88 - Projeto 01: Ambiente de Menor Permanência - Grupo B voluntário 06 voluntário 07 vo untário 08 voluntário 09 voluntário 10 Fonte: Autora, 2022

Assim como na análise dos mapas de calor do ambiente de maior permanência, nesses mapas podemos observar certa congruência dos voluntários 07,08 e 09 que mantiveram o olhar focado em elementos presentes no centro da imagem Esses voluntários focaram na pia e em partes do espelho Já os voluntários 06 e 10 tangenciam seus olhares para pontos laterais da imagem De maneira geral, temos o maior tempo de fixação na pia, elemento que primeiro se sobressai ao olhar, assim que o voluntário adentra o lavabo durante o tour virtual 6 . 2 . 3 A n á l i s e G e r a l - P r o j e t o 0 1 6 . 2 . 3 A n á l i s e G e r a l - P r o j e o 0 1

Em resumo, podemos concluir que a ordem de visita seguida pelos usuários no tour virtual, influenciou de forma direta nos ambientes que eles mais permaneceram e menos permaneceram Isso se comprova de duas maneiras distintas: enquanto os voluntários do grupo A permaneceram mais tempo no último ambiente visitado, os voluntários do grupo B permaneceram mais tempo no primeiro ambiente adentrado

Outra perspectiva, se trata do conhecimento e interesse na área de Arquitetura Os voluntários do grupo A, por se tratarem de pessoas da área experimentando uma nova ferramenta de representação, podem ter ficado interessadas em conhecer e em saber como funcionava na totalidade essa nova proposta de representação gráfica, permanecendo mais tempo no último ambiente visitado Em contrapartida, os voluntários do grupo B, como leigos podem ter iniciado o tour com grande foco e atenção, por isso a maior permanência nos primeiros ambientes visitados e durante o percurso perderam o foco ou e o interesse

Sintetizando, para esse projeto em questão, aspectos como tamanho do ambiente, quantidade de elementos presentes, ordem visitada durante o tour e até mesmo interesse na área podem ter sido fatores determinantes para que ambos os grupos permanecessem mais ou menos tempo nos ambientes apresentados no tour 6 . 2 . 4 P e r c u r s o s P r e d o m i n a n t e s - P r o j e t o 0 2 6 . 2 . 4 P e r c u r s o s P r e d o m i n a n t e s - P r o j e t o 0 2

Como ponto inicial do tour virtual do Projeto 02, diferentemente do Projeto 01, todos os voluntários partiram da fachada da borracharia Assim como no tour anterior, haviam setas no chão que permitiam a entrada nos ambientes e os voluntários seguiram espontaneamente o caminho Por se tratar de um tour de um ambiente reduzido em comparação ao anterior, o caminho percorrido pelos voluntários de ambos os grupos involuntariamente foi o mesmo O percurso síntese desse projeto está apresentado na Figura 89

1 0 6

Fonte: Autora, 2022

Assim como no Projeto 01, a ordem do percurso está representada através dos círculos numerados expressos na figura As setas representadas estão em conformidade com as presentes no tour Os voluntários começaram o tour visualizando a fachada da proposta, logo após seguiram para a recepção Dentro do ambiente da recepção, seguiram para a entrada do corredor dos banheiros e depois para o corredor dos banheiros Finalizaram o tour voltando para a vista principal da recepção

Outra similaridade entre os grupos de voluntários são os ambientes de maior e menor permanência Conforme observado na Figura 90, ambos os grupos tiveram seu ambiente de maior e menor permanência igual Isso pode ser justificado devido ao tamanho do projeto, que oposto ao Projeto 01, possui poucos ambientes No Projeto 02, os voluntários permaneceram por mais tempo na recepção - mancha vermelha - e menos tempo no corredor dos banheiros - mancha azul A seguir serão apresentados os mapas de calor de cada grupo referente a esses ambientes

6 . 2 . 5 P r o j e t o 0 2 : 6 . 2 . 5 P r o j e t o 0 2 : M a p a s d e C a l o r - P o n t o s d e M a p a s d e C a l o r - P o n t o s d e M a i o r e M e n o r P e r m a n ê n c i a M a i o e M e n o r P e m a n ê n c i a

Os mapas de calor que serão apresentados neste tópico estão relacionados aos pontos de maior e menor permanência representados na planta do percursos síntese do Projeto 02 Assim como para o Projeto 01, a autora utilizou um frame do ambiente mais e menos observado durante o tour No caso deste projeto onde os ambientes se repetem para os dois grupos de usuários, serão analisadas em sequência os mapas de calor do ambiente de maior permanência do Grupo A e Grupo B e logo após os mapas do ambiente de menor permanência, seguindo a mesma ordem

1 0 7
Figura 89 - Projeto 02: Percurso Síntese - Grupo A e B

Como exposto anteriormente, o ponto de maior permanência no Projeto 02 é o ambiente da recepção Observando os mapas de calor dos voluntários do grupo A na Figura 90, podemos visualizar que os voluntários 01,02 e 04 focaram sua atenção em elementos presentes no painel central da imagem

A geladeira amarela, assim como nos mapas de calor da Etapa 01, possui maior tempo de fixação por parte desses voluntários, se revelando um elemento que chama atenção do observador Os voluntários 03 e 05 por sua vez, focaram respectivamente na cadeira da recepção e nas calotas da parede

1 0 8
Figura 90 - Projeto 02: Ambiente de Maior Permanência - Grupo A voluntário 01 voluntário 02 voluntário 03 voluntário 04 voluntário 05 Fonte: Autora, 2022 Figura 91 - Projeto 02: Ambiente de Maior Permanência - Grupo B voluntário 06 voluntário 07 voluntário 08 voluntário 09 voluntário 10 Fonte: Autora 2022

Os voluntários 07, 08 e 09 do grupo B, assim como os voluntários 01, 02 e 04 do grupo anterior, voltaram sua atenção ao centro da imagem, com o ponto de maior fixação também na geladeira amarela, elemento central da cena (Figura 91) O voluntário 06, por outro lado, possui um mapa de calor com pontos focais bem distribuídos, voltando seu maior ponto de atenção para as mesas à esquerda da imagem O voluntário 10 teve seu maior tempo de fixação no vidro da fachada Em geral, a maioria dos voluntários de ambos os grupos fixaram sua atenção por mais tempo em algum elemento central da imagem, nesse caso, a geladeira amarela Isso pode ser justificado pelo uso forte da cor ou pela posição centralizada na imagem

O ambiente com menor tempo de permanência no Projeto 02 durante o percurso dos voluntários pelo tour virtual, foi o corredor dos banheiros O tamanho do ambiente pode ter sido fator determinante nesse caso

1 0 9
Figura 92 - Projeto 02: Ambiente de Maior Permanência - Grupo A voluntário 01 voluntár o 02
vo
untário 03 voluntário 04
vo untário 05
Fonte: Autora, 2022

Através da interpretação da Figura 92 que contém os mapas de calor do Grupo A, pode-se observar que no caso dessa imagem em específico o comportamento ocular dos voluntários foi parecido, variando apenas para direita ou esquerda da imagem Alguns voluntários, como o 02, 04 e 05 focaram sua atenção em elementos como a pia, a parede amarela da lateral e a porta amarela Já os voluntários 01 e 03, focaram respectivamente no chão e na porta amarela e na parede verde

10

Autora, 2022

Seguindo a mesma linha dos voluntários do grupo anterior, é possível observar na Figura 93, que os voluntários 07, 08, 10 tiveram o maior tempo de fixação para essa imagem em elementos centrais como pia e porta e parede amarela O voluntário 06, manteve seu foco, na parede preta do lado esquerdo e o voluntário 10, assim como o voluntário 03 do grupo anterior, fixou mais tempo na parede verde do lado direito da imagem

1 1 0
Figura 93 - Projeto 02: Ambiente de Menor Permanência - Grupo B voluntário 06 voluntário 07 vo untár o 08 vo untário 09 voluntário Fonte:

2

0 2

De forma geral, pode-se concluir que devido ao tamanho do espaço do projeto 02 ser reduzido em relação ao espaço do Projeto 01, os voluntários de ambos os grupos involuntariamente e instintivamente fizeram o mesmo percurso durante o tour Em relação aos pontos de maior e menor permanência ser o mesmo, isso se justifica novamente pelo tamanho dos ambientes

Como a recepção era o maior ambiente do projeto e com mais elementos e subdivisões internas, os voluntários precisaram de mais tempo para focalizar todos seus detalhes O ambiente de menor permanência era reduzido e não permitia que o usuário adentrasse, mesmo com elementos que chamavam atenção como as cores utilizadas na porta e a parede verde, sendo a única opção voltar para o ambiente da recepção, que se consolidou como ambiente principal da proposta

Nesse projeto, o único aspecto que influenciou tanto na ordem do percurso quanto no tempo de permanência foi a grandeza dos ambientes

6 . 2 . 7 S í n t e s e G e r a l d o s R e s u l t a d o s 6 . 2 . 7 S í n t e s e G e r a l d o s R e s u l t a d o s

Tanto no Projeto 01 quanto no Projeto 02, o ponto que ficou mais consolidado nas análises é a relação do tamanho do ambiente com o tempo de permanência no mesmo Isso se comprova quando em ambos os projetos os ambientes de menor permanência são ambientes de apoio como lavabo, lavanderia e circulação dos banheiros

Além disso, na análise do Projeto 01, ficou clara a diferença de comportamento entre os voluntários com conhecimento da área e os leigos, sendo o tempo de permanência inversamente proporcional Enquanto os voluntários do Grupo A permaneceram mais tempo no último ambiente visitado, os voluntários do Grupo B permaneceram mais tempo no primeiro ambiente visitado Nesse ponto, só estão sendo consideradas questões de interesse e foco e atenção

Outro fator para comparação, é o tempo de duração média de cada grupo em cada tour Fazendo uma análise macro do tempo gasto pelos usuários de ambos os grupos, chegou-se à média de 3 minutos e 09 segundos para o Projeto 01 e 1 minuto e 27 segundos no Projeto 02 É importante ressaltar que o tempo gasto para o tour virtual do Projeto 01 é maior por possuir mais ambientes em comparação ao Projeto 02 O tempo médio de cada grupo de voluntários para cada projeto e o tempo médio geral está representado na Tabela 02

Tabela 02 - Tempo Médio Tour

representação ut lizadas - escritório metro arquitetos associados representação utilizadas - escritório metro arqu tetos associados TABELA 02 - TEMPO MÉDIO TOUR TABELA 02 - TEMPO MÉDIO TOUR

P R O J E T O 0 1

MÉDIA GRUPO A MÉDIA GRUPO A

P R O J E T O 0 2

3min 16s 3min 16s

A GRUPO B MÉDI A GRUPO B

MÉDI

3min 3min

MÉDI A GERAL MÉDI A GERAL

3min 9s 3m n 9s

2min 2min 1min 17s 1min 17s 1min 27s 1min 27s

Fonte: Autora, 2022

1 1 1
6 . 2 . 6 6 . 2
. 6 A n á l i s e G e r a l - P r o j e t o
A n l i s e G e r a l - P r o j e t o 0

No geral, os voluntários dos dois grupos fizeram a mesma média de tempo no tour virtual do Projeto 01 Já no Projeto 02, os voluntários do Grupo A permaneceram 42 segundos a mais que os voluntários do Grupo B Considerando esse dado, pode-se afirmar que a junção do fator escala do projeto e interesse e atenção podem ter gerado essas pequenas diferenças

De forma geral, chegou-se a conclusão que aspectos como o tamanho dos ambientes, quantidade de ambientes, presença de mais ou menos elementos, são fatores determinantes para maior e menor permanência nos espaços propostos Essa ferramenta de representação gráfica pode ser moldável de acordo com os interesses projetuais e o alcance que cada arquiteto e desperta o interesse nos usuários por ser uma experiência imersiva e os resultados gerados nesta testagem podem funcionar como um guia para futuras experiências

Nessa etapa de entrevistas, será aprofundado mais sobre aspectos da representação gráfica utilizada e como essa influenciou nos resultados e na compressão da proposta por parte dos voluntários Como explicado no capítulo anterior, as perguntas para ambos os projetos seguiu a mesma ordem e foi igual, mudando somente as imagens

6 . 3 . 1 P r o j e t o 0 1 - E n t r e v i s t a s 6 . 3 . 1 P r o j e t o 0 1 - E n t r e v i s t a s

A primeira pergunta da entrevista buscava levantar dados sobre o que os voluntários de cada grupo gostaram mais no projeto apresentado No Gráfico 05, é possível visualizar que os aspectos que mais agradaram os voluntários do Grupo A foram as cores neutras utilizadas no projeto e a iluminação Os voluntários do Grupo B, por sua vez, citaram por mais vezes a amplitude dos ambientes como item que mais gostaram dentro do Projeto

6 . 3 R e s u l t a d o s - E t a p a 0 3 : E n t r e v i s t a s

6 . 3 R e s u l t a d o s - E t a p a 0 3 : E n t r e v i s t a s

Os resultados da entrevista serão divididos em três subgrupos, de acordo com as seções de perguntas utilizadas como base O primeiro momento são respostas relacionadas com o Projeto 01, o segundo momento com o Projeto 02 e o último momento com questões quanto ao Tour Virtual

Novamente os resultados serão avaliados respeitando a divisão dos usuários em Grupo A e B Como alternativa para apresentação de resultados, as respostas dos voluntários de ambos os grupos foi tabelada e transformada em gráficos, para a maior compreensão do todo As respostas transcritas na íntegra de todos os entrevistados estão disponíveis nos Apêndices

Os resultados dessa etapa serão comparados ao resultado das etapas anteriores como modo de análise, visto que as entrevistas complementam e podem apresentar contrapontos importantes quanto a percepção de cada voluntário

Gráfico 05 - O que mais gostou - Projeto 01

Fonte: Autora, 2022

1 1 2

Os dados levantados sobre o mais agradou foram tabulados com o objetivo de comparar com os elementos que mais chamaram a atenção dos voluntários durante os testes Essa comparação é importante para entendermos a relevância do modo como muitas vezes o foco de nossa atenção pode não se voltar instintivamente para os elementos que mais gostamos No Gráfico 06, estão expressos os elementos e/ou ambientes que mais chamaram a atenção dos voluntários dos grupos A e B no Projeto 01 Gráfico 06 - O que mais chamou atenção - Projeto 01

Durante a entrevista, foi pedido que cada voluntário citasse três elementos do Projeto 01 que mais chamou a sua atenção No gráfico acima, é possível visualizar os elementos citados por voluntários de ambos os grupos Os voluntários do Grupo A, de forma geral, citaram mais vezes a iluminação, as cores e os quadros da cozinha Para esse grupo de voluntários, houve igualdade nos elementos que mais gostaram e mais chamou atenção dos mesmos durante os testes do Projeto 01: a iluminação Se avaliarmos o papel da representação gráfica nesse aspecto, podemos constatar o papel importantíssimo de uma boa iluminação em imagens 3D Os voluntários do Grupo B,citaram diversos elementos como ponto de maior atenção, não tendo nenhuma convergência entre os voluntários desse grupo, todos citaram elementos distintos

Dando sequência a entrevista, foi apresentado aos voluntários duas imagens selecionadas (as mesmas apresentadas com os mapas de calor nos resultados do rastreamento ocular) do Projeto 01 e através da observação das imagens, os foi perguntado os elementos que mais chamaram a atenção nessa imagem em específico A Imagem 01 é uma vista da sala integrada do apartamento Abaixo, no Gráfico 07, podemos visualizar a imagem e os resultados do Grupo A e B

Fonte: Autora, 2022

1 1 3

O Grupo A citou apenas três elementos, sendo eles: mesa de jantar, iluminação e o piso de madeira Se cruzarmos essa informação com os mapas de calor apresentados no tópico 6 1, vemos que há compatibilidade entre as percepções dos voluntários e o movimento ocular deles durante a observação da imagem Conforme descrito na análise dos mapas de calor dessa imagem, os voluntários possuíam maior ponto de fixação no piso, mesa de jantar e na região que inclui a divisória em madeira dos ambientes com a iluminação em led no teto e o móvel de apoio encostado na divisória Isso significa que os elementos por eles citados foram realmente os elementos mais observados durante a testagem, visto que o tempo de fixação nesses locais foi maior Em resumo, o foco e atenção dos voluntários do grupo A está alinhado com suas percepções pessoais

O Grupo B, citou cinco elementos, sendo eles: painel ripado, divisão dos ambientes, piso, iluminação e luminárias Assim como no Grupo A, se voltarmos aos mapas de calor gerados, há conformidade entre as respostas e o mapa, provando que percepção e atenção também estavam alinhados durante o teste dos voluntários desse grupo

Na sequência, os voluntários foram questionados sobre as sensações que a imagem apresentava evocava neles Para facilitar a análise, o resultado está expresso no Gráfico 08 Dentre as explicações, as sensações mais citadas pelos voluntários do Grupo A foram conforto, tranquilidade e desconforto A sensação de desconforto foi citada por três dos cinco voluntários desse grupo e foi justificada pelo voluntário 03 como sendo consequência da saturação do piso

“Sei lá, eu sinto que o piso de madeira era pra trazer um certo conforto, mas não trouxe Porque parece que entra em conflito com o resto dos materiais que ela usou, o piso é muito forte tá muito saturado ” (VOLUNTÁRIO 03, 2022)

1 1 4
Gráfico 07 - Pontos de Maior Atenção - Imagem 01- Projeto 01 Fonte: Autora, 2022

Gráfico 08 - Sensações Evocadas - Imagem 01- Projeto 01

Fonte: Autora 2022

Em contrapartida, os voluntários do Grupo B, responderam em suma somente conforto e tranquilidade O voluntário 07 ainda relacionou o ambiente apresentado com a figura materna em sua vida ““Conforto, me lembra minha mãe Porque ela é organizada, e tá tudo muito clean ” Essa fala comprova os aspectos discutidos nos capítulos iniciais do presente trabalho, onde foi levantada a discussão que mesmo uma representação gráfica, produto que antecede o ambiente construído em si, pode evocar as mais diversas sensações e engatilhar emoções e sentimentos nos observadores

Na Imagem 02, foi apresentada uma vista da cozinha do apartamento No Gráfico 09, estão apresentados os resultados de ambos os grupos O Grupo A, citou majoritariamente os quadros da cozinha e a iluminação como elementos que mais despertam atenção na imagem

Gráfico 09 - Sensações Evocadas - Imagem 01- Projeto 01 9

Fonte: Autora, 2022

Por sua vez, os voluntários do Grupo B, citaram os quadros da cozinha e as cadeiras como os elementos que mais chamam a atenção

1 1 5

Há uma congruência entre os grupos quanto o elemento que mais chamou a atenção dos voluntários, sendo esse elemento os quadros da cozinha Isso pode ser justificado se considerarmos o ângulo e posicionamento dos quadros na imagem, que fica em primeiro plano Outro ponto, são os tons de cores presentes na imagem em geral, que se aproximam do branco em contrapartida com as cores fortes do quadro Todos esses elementos precisam ser considerados ao captar um ângulo para uma imagem renderizada, como a apresentada Tudo contribui e influencia para a compressão da imagem por parte do observador Novamente após a pergunta sobre os aspectos que mais chamam a atenção dos voluntários na Imagem 02, foi levantada a questão sobre quais sensações a imagem transmitia para eles No Gráfico 10, estão dispostos os resultados de ambos os grupos A maioria dos voluntários do Grupo A tiveram a sensação de desconforto ao observar a imagem O voluntário 02 justificou essa sensação pela iluminação do ambiente: “Eu acho que essa luz muito forte dá uma sensação de desconforto ”

Os voluntários do Grupo B, tiveram seus resultados equilibrados entre conforto e desconforto De forma geral, é possível concluir que as sensações provocadas em cada usuário partem de gatilhos individuais e são diferentes para cada pessoa Mas no caso da imagem em questão, a representação gráfica representa boa parte da influência para que os usuários tenham sentido desconforto ao observá-la Durante a renderização da imagem possivelmente a iluminação estourou, causando esse efeito na maioria dos observadores

Após o encerramento das perguntas relacionadas às imagens apresentadas, para finalizar as seção de perguntas referentes ao Projeto 01, buscou-se entender um pouco sobre a influência dos métodos de representação gráfica utilizados pela arquiteta para o entendimento da proposta e dos ambientes De forma inicial, foi apresentada novamente a planta baixa do Projeto 01 para os voluntários e feito o seguinte questionamento: “Através da apresentação somente da planta baixa, você consegue compreender o espaço proposto?” Ao fazer essa pergunta, a autora pediu para que os voluntários considerassem uma hipótese onde o arquiteto responsável pelo projeto só tivesse apresentado essa planta para eles Em seguida, no Gráfico 11, serão apresentados os resultados

1 1 6
Gráfico 10 - Sensações Evocadas - Imagem 02 - Projeto 01 Fonte: Autora, 2022 10

Gráfico 11 - Compreensão da Planta Baixa- Projeto 01

2022

Para essa pergunta, os voluntários tinham disponíveis como opção de resposta “Sim”, "Consideravelmente" e “Não” No Grupo A, quatro dos cinco voluntários responderam consideravelmente Já no Grupo B, essa mesma proporção foi seguida para a resposta “Sim” Curiosamente, o grupo formado por pessoas que são de áreas distintas a Arquitetura obteve esse resultado Esse dado pode ser justificado pela facilidade de leitura dos ambientes, devido a nomenclatura de cada ambiente O voluntário 07 justificou sua escolha dizendo que apesar de não conseguir visualizar tridimensionalmente os ambientes, conseguia entender a ordem e a disposição do layout pela planta baixa

“Eu acho que entenderia, sim É uma planta preta e branca né não tem muitos detalhes de como vão ser as cores e tal mas eu conseguiria entender a organização e a ordem do espaço pela planta sim Só não consigo pensar em como seria o 3D ” (VOLUNTÁRIO 07,2022)

Já o voluntário 04 do Grupo A, justificou sua escolha na opção “Consideravelmente” pois acredita que o ideal é ter acesso aos dois métodos representativos, imagem 3D e planta baixa, para uma compressão por completo do ambiente

“Consideravelmente Claro que a gente que faz Arquitetura consegue ter uma noção maior de espacialidade pela planta, mas é, eu acho que pra as ideias ficarem bem claras na minha mente prefiro dar uma olhada nos dois Eu entenderia sim o espaço mas acho que pelas imagens a gente consegue ter noção melhor do conceito do projeto, dos revestimentos, isso eu considero bem importante ” (VOLUNTÁRIO 04 2022)

As duas justificativas são válidas e reforçam que os métodos de representação gráfica devem ser usados como ferramenta para o auxílio na compreensão da ideia proposta, utilizando de artifícios que potencializam sua legibilidade frente a qualquer tipo de pessoa e cliente

Em seguida, os voluntários foram questionados sobre qual método de representação utilizado no Projeto 01 mais facilitou, em sua percepção pessoal, o entendimento da proposta No Gráfico 12, podemos visualizar o resultado

1 1 7
Fonte: Autora,

Gráfico 12 - Métodos de Representação - Projeto 01

Fonte: Autora, 2022

No caso do projeto em questão, foram utilizados dois métodos de representação gráfica: planta baixa padrão ABNT e imagens 3D renderizadas Os voluntários do Grupo A, mesmo sendo estudantes de Arquitetura, selecionaram unanimemente as imagens 3D como representação gráfica que mais auxilia no entendimento da proposta O voluntário 03, mesmo tendo escolhido as imagens, trouxe um panorama diferente para a questão, ele acredita que o conjunto das duas representações é o ideal para maior compressão de detalhes pois cada método desempenha um papel diferente dentro do contexto do projeto arquitetônico

“Conjunto dos dois Nas imagens você consegue ter uma noção maior do conceito do projeto, dos materiais Enquanto na planta você consegue ter uma noção maior da espacialidade do apartamento Mas ainda assim, eu acho que a imagem renderizada é muito estática, não se sabe pra onde vai se entrar numa porta e tal, mas considerando que ela não fez uma planta humanizada acho que as imagens ” (VOLUNTÁRIO 03, 2022)

Curiosamente, entre os voluntários do Grupo B, houve um voluntário que selecionou a planta baixa como o método que mais facilita a compreensão dos ambientes do Projeto 01 O voluntário afirmou que mesmo as imagens revelando a materialidade dos espaços, considera mais importante se localizar dentro do ambiente para compreendê-lo, e para esse fim, acredita que a planta baixa funciona como um mapa

Para finalizar essa sessão de perguntas, os voluntários tiveram que avaliar a representação gráfica do Projeto 01 sob o viés da compreensão e legibilidade da proposta Isso é, tinham que avaliar o grau que as representações gráficas utilizadas para o projeto ajudaram ou não no processo de entendimento do ambiente por parte deles Como opções disponíveis para resposta, os voluntários tinham como opções “Insuficiente” caso a representação não tivesse atingido sua função, “Regular”, “Bom” e “Ótimo” Os resultados dessa questão estão representados no Gráfico 13

1 1 8

Gráfico 13 - Legibilidade da Representação Gráfica - Projeto 01

6 . 3 . 2 P r o j e t o 0 2 - E n t r e v i s t a s 6 . 3 . 2 P r o j e t o 0 2 - E n t r e v i s t a s

As perguntas dessa seção da entrevista são iguais às do Projeto 01, só alterando a imagem do projeto em questão No Gráfico 14, são apresentados resultados quanto aos elementos que os voluntários mais gostaram no Projeto 02 Os voluntários do Grupo A citaram a parede verde, as aberturas, corredor de acesso aos banheiros, conceito do ambiente e a área de mesas Os voluntários do Grupo B, por sua vez, também citaram parede verde e corredor de acesso aos banheiros e fachada No geral, o que mais agradou os voluntários de ambos os grupos foi a parede verde e o corredor dos banheiros, aparecendo mais vezes entre as respostas do voluntário

Gráfico 14 - O que mais gostou - Projeto 02

Fonte: Autora, 2022

Pela análise dos gráficos apresentados anteriormente, podemos concluir que todos os voluntários, do Grupo A e B, consideraram a representação gráfica do Projeto 01 ótimas e boas como auxiliadoras para a compreensão e legibilidade da proposta Ou seja, todos conseguiram compreender todos os espaços e seus elementos apresentados em totalidade

6 . 3 . 1 . 1 A n á l i s e G e r a l - P r o j e t o 0 1

6 . 3 . 1 . 1 A n á l i s e G e r a l - P r o j e t o 0 1

Em síntese, através dos resultados das entrevistas dos voluntários em relação ao Projeto 01, pode-se concluir que a representação gráfica e o método selecionado são de suma importância e influenciam diretamente no entendimento e legibilidade do projeto por parte das pessoas Além disso, pode ser responsável por causar e desencadear várias sensações e sentimentos nos observadores através de aspectos presentes em sua composição Assim como em ambientes construídos, é possível fazer a representação gráfica pensando em desencadear algum tipo de reação e guiar a pessoa dentro da intenção projetual que deseja ser alcançada

Fonte: Autora, 2022

1 1 9

A segunda questão da entrevista é sobre os elementos que mais chamaram atenção dos voluntários no Projeto 02 O Gráfico XX apresenta os resultados das respostas dos voluntários do Grupo A e B Os voluntários do Grupo A citaram nove elementos como pontos de maior atenção no projeto: (1) contraste das cores, (2) amarelo, (3) parede verde, (4) mesas, (5) iluminação natural, (6) amplitude dos vãos,(7) calotas, (8) vegetação e (9) frigobar amarelo, sendo o mais citado o contraste das cores do projeto

Gráfico 15 - O que mais chamou atenção - Projeto 02

Já os voluntários do Grupo B, elencaram sete elementos como os pontos que mais chamaram a atenção durante a visualização das imagens do projeto, sendo eles: (1) fachada, (2) parede verde, (3) aberturas, (4) frigobar amarelo, (5) corredor dos banheiros, (6) iluminação e (7) mesas, sendo a fachada citada pelo maior número de voluntários Podemos deferir que os voluntários de ambos os grupos citaram os mesmos elementos como parede verde e o frigobar amarelo, entretanto as percepções foram múltiplas e cada voluntário obteve uma percepção individual e diferente, ao contrário do Projeto 01

Assim como no Projeto 01, dando sequência a entrevista, foi apresentado aos voluntários duas imagens selecionadas do Projeto 02 As imagens em questão correspondem às mesmas apresentadas com os mapas de calor nos resultados do rastreamento ocular, no ponto 6 1 Através da visualização das imagens por parte dos voluntários, foi perguntado os elementos que mais chamaram a atenção nessa imagem em específico em sua concepção individual O Gráfico 16 apresenta as respostas dos grupos de voluntários para essa questão

Fonte: Autora 2022

1 2 0

Conforme observado no gráfico acima, os voluntários do Grupo A citaram como elementos que mais chamaram atenção durante a observação da imagem da fachada do Projeto 02, a faixa amarela e preta na parte superior da imagem e a vegetação das laterais Quando comparamos essas afirmações com os mapas de calor gerados no subcapítulo de resultados do teste com rastreamento ocular, observamos que três dos cinco voluntários tiveram seu maior tempo de fixação na imagem na vegetação presente na lateral direita do projeto Entretanto, nenhum voluntário teve seu comportamento ocular rastreado na parte das faixas amarelas e pretas no topo da imagem Pode-se concluir, a partir dessa informação, que o caminho que nossos olhos fazem instintivamente pela imagem nem sempre corresponde aos elementos que mais chamam nossa atenção em uma segunda visualização

Os voluntários do Grupo B, por outro lado, já apresentam conformidade entre os resultados descritos e rastreados e representados nos mapas de calor Todos os elementos citados por eles e representados nos gráficos estão expressos também nos mapas de calor apresentados anteriormente

1 2 1
Gráfico 16 - Pontos de Maior Atenção - Imagem 01- Projeto 02 Fonte: Autora 2022

Dando sequência a entrevista, os voluntários foram perguntados sobre quais sensações foram evocadas enquanto observavam a imagem em questão Os resultados apresentados no Gráfico 17, mostram que parte dos voluntários do Grupo A apresentaram certo desconforto ao observar a Imagem 01 e parte se manteve neutro, ou seja, a imagem não evocou nenhum tipo de sensação ou sentimento Os voluntários que afirmaram sentir uma sensação de desconforto ao mirar a imagem, justificaram essa sensação pelo uso de cores fortes na fachada

“Certo desconforto Porque eu não gosto dessa combinação de cor, acho muito forte Por exemplo, ela usou vegetação, mas se eu tivesse passando em frente na rua e até mesmo olhando essa foto agora eu não consigo prestar atenção na vegetação porque ela fica muito em segundo plano Tipo, nessa imagem mesmo ela fica muito escura, o que mais chama atenção são as cores “ (VOLUNTÁRIO 03, 2022)

Mesmo se justificando baseando-se em um gosto pessoal, houve uma congruência com outros voluntários que também justificaram seu desconforto baseando-se nas cores utilizadas Os voluntários do Grupo B, apresentaram também as mesmas sensações descritas pelos voluntários do Grupo A, com exceção de um voluntário que afirmou que a sensação que ele sentia é de ser um local atraente por suas grandes aberturas

Passando para a Imagem 02 do Projeto 02 que é a representação de uma vista interna do projeto, o Gráfico 18 indica os elementos que mais chamaram a atenção dos voluntários nessa imagem Os voluntários do grupo A, apontaram quatro elementos como os que mais chamaram a atenção ao observar a imagem, sendo eles: (1) elementos amarelos, (2) frigobar amarelo, (3) parede verde e (4) a logo do estabelecimento, sendo os pontos mais apontados por esse grupo, de forma equivalente, os elementos em amarelo, o frigobar amarelo e a parede verde presentes na imagem Ao comparar os resultados deste gráfico com os resultados dos mapas de calor dos voluntários, notou-se que houve certa conformidade entre as respostas Três dos cinco voluntários tiveram seu maior tempo de fixação em algum elemento em amarelo, como o frigobar e os outros dois possuíam alguma fixação na parede verde

1 2 2
Gráfico 17 - Sensações Evocadas - Imagem 01 - Projeto 02 Fonte: Autora, 2022

Os voluntários do Grupo B, assim como os voluntários do Grupo A, citaram o frigobar amarelo e a parede verde como os elementos que mais chamaram atenção na observação da Imagem 02 Outros elementos como as mesas e a parede preta em metal, também foram incluídos por esse grupo de voluntários Seguindo ainda a mesma linha do grupo anterior, os voluntários do Grupo B também possuem mapas de calor em concordância com os resultados expostos no gráfico Os voluntários 06, 08 e 09 possuem o maior tempo de fixação no frigobar amarelo e os demais voluntários nos outros elementos citados como a parede preta ao fundo e a parede verde

Dando prosseguimento a entrevista, novamente após a pergunta sobre os aspectos que mais chamam a atenção dos voluntários na Imagem 02, foi levantada a questão sobre quais sensações a imagem transmitia para eles No Gráfico 19, estão dispostos os resultados de ambos os grupos Dentre as explicações, as sensações mais citadas pelos voluntários do Grupo A foram tranquilidade, desconforto, conforto e neutro, que corresponde aos voluntários que não possuíam nenhuma sensação específica ao observar a imagem, sendo esse o mais comum entre os voluntários

1 2 3
Gráfico 18 - Pontos de Maior Atenção - Imagem 02- Projeto 02 Fonte: Autora, 2022

19 - Sensações Evocadas - Imagem 02 - Projeto 02

Assim como os voluntários do Grupo A, os voluntários do Grupo B, em sua maioria, também não tiveram sensações ao observar a imagem Por se tratar de uma imagem 3D não renderizada, aspectos como ausência de pontos de iluminação artificial podem ter sido responsáveis por causar essa sensação de neutralidade nos voluntários E esse aspecto é apontado por um voluntário do Grupo B, quando questionado o que mais chama a atenção na imagem Ele afirma que a iluminação chama atenção, mas negativamente, pois não é possível entender como será disposta no ambiente

Seguindo a mesma ordem de perguntas já explicadas no Projeto 01, os resultados apresentados agora terão relação aos métodos de representação gráfica utilizados pela arquiteta para o entendimento da proposta e dos ambientes Os voluntários tiveram acesso novamente a planta baixa e foram questionados se recebessem somente a planta baixa conseguiriam compreender o espaço proposto No Gráfico 20, estão apresentados os resultados dos grupos de voluntários

Gráfico 20 - Compreensão da Planta Baixa- Projeto 02

Fonte: Autora 2022

O voluntário 03, do grupo A, explicou sua sensação neutra justificando que a ausência de iluminação e o excesso de elementos em amarelo não causou ou evocou nenhum tipo de sentimento nele, de forma pessoal

“Absolutamente nada, sinceramente Porque por mais que eu ache que a paleta de cores e os materiais que foram utilizados no interior do projeto combinem com os da fachada e o amarelo serve como um ponto de foco que dirige sua atenção até onde ele estiver eu sinto que o ambiente é um pouco morto Não tem aspectos que te prendam que te causem sensações, sentimentos e evoquem algum tipo de emoção quando você tá olhando, eu acho que só foram combinados qualquer tipo de materiais e ficou muito nisso de se prender, deixar toda responsabilidade nos elementos que ela coloca em amarelo “ (VOLUNTÁRIO 03, 2022)

Fonte: Autora, 2022

1 2 4
Gráfico

Os voluntários do Grupo A, em sua maioria, responderam que sim, conseguiriam compreender o espaço proposto através da visualização somente da planta baixa Durante a entrevista, alguns desses voluntários disseram que a planta baixa do Projeto 02, por ser humanizada, consegue indicar materialidade, o que a planta apresentada pelo Projeto 01 não alcança por se tratar de uma planta técnica no padrão ABNT Esses voluntários acreditam que as plantas humanizadas facilitam o entendimento da proposta

Os voluntários do Grupo B, por sua vez, responderam em maioria (quatro dos cinco voluntários) que compreenderiam consideravelmente o projeto através da apresentação da planta do Projeto 02 Esses voluntários justificaram dizendo que por não ter a identificação dos ambientes com o nome, fica subjetivo a interpretação do espaço

Em seguida, os voluntários foram questionados sobre qual método de representação utilizado no Projeto 02 mais facilitou, em sua percepção pessoal, o entendimento da proposta No Gráfico 21, podemos visualizar os resultados dos dois grupos de voluntários

No Projeto 02, foram utilizados dois métodos de representação gráfica: planta baixa humanizada e imagens 3D não renderizadas Os voluntários do Grupo A, selecionaram, em sua maioria (quatro de cinco voluntários) as imagens 3D como representação gráfica que mais auxilia no entendimento da proposta Apenas um voluntário do Grupo A escolheu a opção da planta baixa humanizada Esse voluntário afirmou que a escolha se baseou na leitura da planta, pois nela foi possível compreender todos os ambientes de forma geral

1 2 5
Gráfico 21 - Métodos de Representação - Projeto
02
Fonte: Autora, 2022

Os voluntários do Grupo B, assim como os voluntários do grupo anterior, em sua maioria selecionaram as imagens 3D como o método de representação gráfica que mais auxilia no entendimento da proposta O mesmo voluntário que selecionou a opção da planta baixa no projeto anterior, também selecionou no Projeto 02 com a mesma justificativa, de achar mais importante se localizar no ambiente através da planta baixa do que ter acesso a imagens 3D que ilustram a tridimensionalidade da proposta

A última pergunta dessa seção de perguntas sobre o Projeto 02, assim como no projeto anterior, pedia ao voluntário para avaliar a representação gráfica do projeto em questão como auxiliar no processo de compressão do espaço proposto Nos dois projetos foi deixado claro para o voluntário durante as entrevistas que não era uma pergunta com intuito de avaliar a representação baseado no gosto pessoal de cada um e que a pergunta tinha com objetivo único e exclusivo entender e avaliar como a representação auxiliou no processo de compreensão e legibilidade do projeto proposto Os resultados estão apresentados no Gráfico 22

Os voluntários do Grupo A, avaliaram em sua maioria como bom para o entendimento da proposta e um dos cinco voluntários avaliou como regular Já os voluntários do Grupo B, 60% avaliou como ótimo e 20% como bom Os voluntários do Grupo B que avaliaram a representação gráfica do Projeto 02 como “Bom” em termos de auxílio para compressão do projeto, justificaram sua escolha dizendo que acharam a planta baixa apresentada confusa Já o voluntário do Grupo A que avaliou como “Regular”, justificou sua escolha argumentando que a ausência da proposta de iluminação do ambiente nas imagens 3D tornava mais difícil a compressão do projeto como um todo

1 2 6
Gráfico 22 - Legibilidade da Representação Gráfica - Projeto 02 Fonte: Autora, 2022

Em geral, através da análise dos resultados das entrevistas do Projeto 02, assim como do projeto anterior, pode-se concluir a influência direta da representação gráfica no entendimento da proposta E como fatores como a iluminação, ausente nas imagens desse projeto, fazem diferença quando se diz respeito a evocação de sensações aos voluntários

Cada vez mais, as pessoas buscam por mais realismo nas representações, justamente porque esse fator aproxima as pessoas da realidade, fazendo com que elas realmente compreendam a totalidade dos conceitos projetuais presentes nos projetos No próximo tópico, serão expostos os resultados da última parte das entrevistas, que trará um panorama sobre o uso dessas novas tecnologias 6 . 4 . T o u r V i r t u a l - E n t r e v i s t a 6 . 4 . T o u r V i r t u a l - E n t r e v i s t a

Nessa último subtópico, serão apresentados os resultados das questões direcionadas aos voluntários durante as entrevistas com relação a ferramenta do tour virtual, proposta de nova representação gráfica para os projetos apresentados 01 e 02 As perguntas feitas aos voluntários nessa parte da entrevista, consideraram os projetos de forma geral, pois a intenção era levantar dados da mudança da compressão do entendimento dos espaços propostos após o passeio virtual realizado

De forma inicial, foi solicitado para os voluntários que eles descrevessem as sensações evocadas durante o tour virtual do Projeto 01 Os voluntários do Grupo A e B seguiram a mesma linha argumentativa, todos os voluntários exaltaram aspectos como a realidade que o tour transmite, fazendo com que eles se sintam realmente dentro dos ambientes, a possibilidade de ver detalhes e lugares não observados nas imagens estáticas e a caminhabilidade que essa ferramenta permite ao usuário

“É como se eu tivesse lá Essa foi a sensação Deu pra entender melhor assim O tour facilita até mais que ver as imagens, é como se a gente tivesse caminhando lá mesmo Eu achei legal Tanto que eu fiquei arrastando para olhar pra cima, acho que são as coisas que eu faria se eu tivesse no lugar real “ (VOLUNTÁRIO 01, 2022)

Além dos pontos já citados, os voluntários também descreveram que o tour desperta a sensação de curiosidade, pois faz com que a pessoa que está fazendo o passeio, sinta vontade de explorar os ambientes, o que não é possível fazer em imagens 3D comuns

“Acho que curiosidade Porque como o tour te dá maior liberdade para você circular e entender o espaço que foi proposto, vc fica curioso tipo o que tem num espaço que talvez não ficou muito claro ou não dá para ver nas imagens estáticas do 3D Com o tour você consegue dar o zoom andar, circular e compreender melhor a espacialidade Então você fica mais curioso para ver o que foi proposto em cada ambiente e os detalhes “ (VOLUNTÁRIO 03 2022)

Serão também expostos dados levantados sobre a preferência dos voluntários quanto aos métodos de representação gráfica utilizados durante todas as etapas da testagem com o objetivo de comprovar a eficácia da proposta do presente trabalho em relação à melhoria quanto à qualidade e legibilidade da representação gráfica na compressão do espaço proposto nos projetos

Outros voluntários por sua vez citaram a sensação de estar em um ambiente organizado e limpo e que transmitia certa segurança Sensações essas que não foram descritas anteriormente com a visualização somente da imagem 3D apresentada nas outras etapas

1 2 7 6 .
3 . 2 . 1 A n á l i s e G e r a l - P r o j e t o 0 2 6 . 3 . 2 . 1 A n á l i s e G e r a l - P r o j e t o 0 2

“Eu senti realmente um ambiente pacifico, limpo assim confortável Você chega e tem vontade de morar confortável Me senti segura ” (VOLUNTÁRIO 06 2022)

Um ponto interessante nas respostas dos voluntários quanto as sensações evocadas a partir do tour virtual do Projeto 01, foi a facilidade que essa ferramenta traz para compressão do projeto, discussão essa tema do trabalho presente O voluntário descreve a sensação de fazer o tour como “bem leve” e “didático” para pessoas que não são da área, pois não apresenta informações muito técnicas que podem dificultar a compressão dos ambientes em outros métodos de representação, o tour é um método onde só é necessário olhar e caminhar pelos ambientes para o entendimento do espaço proposto

“Eu achei bem leve o tour, bem didático, inclusive pra quem não é da área, é bem tranquilo de entender, e me senti despreocupada fazendo o tour, porque eu não precisava entender nada técnico, só precisava olhar ” (VOLUNTÁRIO 05, 2022)

Após os voluntários responderem sobre as sensações evocadas pelo tour virtual do Projeto 01, a mesma pergunta foi feita em relação ao tour do Projeto 02 As respostas, de forma geral, também seguiram a mesma linha de raciocínio para todos os voluntários Alguns inclusive, disseram que aspectos que anteriormente tinham desagradado pela visualização apenas das imagens 3D não renderizadas, como as cores fortes, foram percebidos de outra forma durante o tour

“No tour a questão das cores que eu falei ficou bem melhor, as cores ficaram bem mais suaves Acho que quando for ver meu ‘trem do Eye tracker lá, eu acho que nem prestei atenção nas cores na fachada acho que no tour ficaram bem mais suavizadas porque nas imagens tá bem forte, realmente as cores do Sketh quando não tão renderizadas ficam mais fortes Então achei melhor no geral ” (VOLUNTÁRIO 03, 2022)

Os mesmos aspectos citados nas sensações evocadas no projeto anterior, também foram citadas a respeito do tour do Projeto 02 Os voluntários de forma geral se sentiram imersos no ambiente, compreenderam melhor a espacialidade e organização dos ambientes Após a descrição das sensações causadas pelo tour virtual de ambos os projetos, os voluntários foram perguntados sobre os aspectos que mais gostaram da experiência de fazer um tour virtual Todos os voluntários falaram abertamente que gostaram e acharam a experiência legal e destacaram a característica de se sentirem imersos no ambiente, como se realmente estivessem presentes nele

A grande maioria dos voluntários também apontou como aspecto que mais gostou do tour, a liberdade de poder visitar os ambientes que quiser, fazer seu próprio percurso, dar zoom em detalhes que interessam e a possibilidade de possuir uma visão 360º do ambiente proposto

“Acho que a parte de poder caminhar ambiente por ambiente Conseguir ver tudo ao mesmo tempo sabe?! Conseguir ver o teto, ver o chão ver as paredes, tudo ao mesmo tempo Se fosse imagens 3D você veria só aquele frame, sem outras perspectivas ” (VOLUNTÁRIO 01, 2022)

A espacialidade é um aspecto importante quando projetamos nossos ambientes e muitas vezes a percepção das pessoas no geral pode ser reduzida pelos métodos de representação que utilizamos Um ponto citado nas respostas dessa pergunta, foi justamente a possibilidade de compreender a espacialidade dos ambientes de forma concreta a partir da visualização expandida durante o tour virtual

1 2 8

“Com o 3D (tour) você consegue ter mais entendimento de como vai ser os espaços, da iluminação, de como você vai poder posicionar os móveis naquele lugar, aonde você pode acomodar as pessoas ” ((VOLUNTÁRIO 09 2022)

Em síntese, a proposta de representação gráfica atualizada dos Projetos 01 e 02 através da utilização da ferramenta do tour virtual, foi bem aceita e elogiada por todos os voluntários do presente trabalho Todos, sem exceção, consideraram que o tour aumentou a compressão e legibilidade dos projetos apresentados, pelos aspectos apontados anteriormente No Gráfico 23, podemos visualizar a tabulação do questionamento feito aos voluntários quanto ao entendimento dos espaços propostos após o passeio feito

Gráfico 23 - Compreensão dos Projetos - Tour Virtual

Como todos os voluntários responderam “Sim” para o questionamento anterior, foi perguntado quais elementos presentes no tour fizeram com que o entendimento deles melhorasse ou/e mudasse Aspectos citados nas respostas anteriores foram repetidos Os voluntários acreditam que a liberdade de passear pelos ambientes, aproximar detalhes, ter essa vivência do ambiente mesmo de maneira virtual faz com que a compreensão dos projetos melhore

“Como eu falei, fazer o tour virtual te dá mais liberdade para circular e tal para entender o espaço proposto e realmente parece que você tá dentro do projeto e aí você consegue dar o zoom e olhar cada detalhe que você olharia se tivesse presencialmente Isso muda bastante o entendimento do espaço ” (VOLUNTÁRIO 03, 2022)

A noção de espacialidade é importante para o entendimento de qualquer ambiente, com isso, outro aspecto que foi citado, por voluntários do Grupo B, foi a noção de espacialidade e a compreensão do tamanho real de cada coisa

“Acho que o posicionamento das coisas, me fizeram ter noção do espaço Ah uma cadeira daquele tamanho vai caber aqui, então eu consigo circular de tal forma, eu consigo acomodar tal e tal canto ” (VOLUNTÁRIO 03, 2022)

Fonte: Autora, 2022.

Para finalizar a entrevista, foi mostrado aos voluntários todos os métodos de representação gráfica utilizados durante as etapas da testagem, os disponibilizados pelas arquitetas responsáveis por cada projeto e nova proposta de representação gráfica, sendo eles: (1) planta baixa padrão ABNT, (2) planta baixa humanizada, (3) Imagens 3D e (4) Tour Virtual Em seguida, foi perguntado quais dos métodos utilizados durante todas as etapas do teste, os voluntários consideravam mais eficiente para o entendimento da ideia e outros aspectos das propostas A partir do Gráfico 24 abaixo é apresentado os resultados

1 2 9

Fonte: Autora, 2022.

Os voluntários do Grupo A, estudantes e pessoas da área da Arquitetura, em sua totalidade selecionaram Tour Virtual como método de representação mais eficiente para a compreensão dos projetos analisados Os voluntários do Grupo B, com exceção do voluntário 06, também responderam o tour virtual

Apesar do voluntário 06 ter respondido à planta baixa padrão ABNT como método de representação mais eficiente para o seu entendimento, quando questionada se o entendimento e a compressão dos projetos haviam mudado pós tour, respondeu que sim, conforme visto no Gráfico 24 Questionado dos motivos que haviam contribuído para seu entendimento ter melhorado, disse: “A visão que eu tenho de todas as partes Na planta assim é mais quadradinho você tem que localizar o que é o que, no tour tem mais noção de espaço, onde que tá cada parte ” Essa resposta aponta uma discordância entre os pontos de vista apresentado Mesmo assim, o voluntário reconheceu os benefícios do tour para compreensão dos ambientes propostos

De forma geral, podemos concluir que o tour virtual é uma ferramenta tecnológica, inovadora, com grau de realismo que permite com que os usuários experimentem uma imersão de 360º graus no ambiente proposto antes dele ser de fato construído Além disso, permite que os usuários circulem livremente, observando cada detalhe, aproximando os detalhes que mais chamam a atenção e permanecendo pelo tempo que preferirem em cada ambiente, assim como um passeio na vida real

O aspecto mais relevante do tour, além dos citados anteriormente, é sua eficiência, comprovada pelos relatos dos voluntários, quanto ao papel de auxiliar a compreensão e legibilidade de projetos arquitetônicos Essa importância será aprofundada na síntese geral dos resultados no próximo tópico

1 3 0
Gráfico 24 - Representação Gráfica Mais Eficiente - Tour Virtual

Os resultados expostos e analisados neste capítulo, nos levam a algumas diretrizes que podem ser consideradas na hora de pensar na representação gráfica a ser utilizada em nossos projetos arquitetônicos

Levando em consideração a Etapa 01, onde os voluntários assistiram a uma apresentação dos Projetos 01 e 02 com a representação de cada projeto da forma que foi apresentada para os clientes das arquitetas participantes, podemos concluir que o método de representação influencia diretamente no comportamento ocular das pessoas Analisando os mapas de calor, chegamos a conclusão que questões como realismo da imagem, linguagem, cores, tamanho, ângulo e principalmente iluminação influenciam quanto o maior ou menor tempo de fixação, ou seja, tempo de atenção e foco, durante a observação dos métodos de representação gráfica apresentados nesse experimento Ademais, esses mesmos elementos podem ser causadores de gatilhos que causam reação emocional distinta de pessoa para pessoa As sensações evocadas pelas imagens e descritas pelos voluntários nas entrevistas, comprovou esse aspecto

Como arquitetos e urbanistas, devemos considerar que até mesmo as representações utilizadas em nossos projetos causam algum sentimento ou sensação nos observadores, até mesmo neutralidade Quando projetamos um ambiente e representamos graficamente, esperamos que todas as nossas idéias projetuais estejam bem alinhadas dentro daquela representação Mas nem sempre conseguimos de fato alcançar esse local

A consideração de aspectos cognitivos da neurociência aplicada à arquitetura são grande aliados nesses momentos, pois como vimos, o modo que utilizamos das representações gráficas, pode evocar sensações negativas nos observadores, como desconforto, pelo excesso ou falta de elementos primordiais no método utilizado

Como exemplo dessa afirmação, podemos citar as representações utilizadas durante a testagem As imagens renderizadas utilizadas pela arquiteta do escritório 01, mesmo apresentando certo grau de realismo, causaram desconforto em alguns voluntários, pelo excesso de iluminação na imagem Os fatores que podem ter corroborado para que isso acontecesse são o ângulo da imagem, a configuração da iluminação e até mesmo efeitos colocados na imagem na pósprodução do render Se queremos passar a sensação para o cliente final de um ambiente confortável, por exemplo, devemos considerar o caminho que trilharemos até esse resultado Por isso, é importante considerar esses aspectos na hora de produzir qualquer método de representação gráfica

Outro aspecto importante dentro dessa discussão, é a influência que os métodos de representação gráfica tem sobre o entendimento de projeto e legibilidade do mesmo por parte das pessoas No caso da planta baixa padrão ABNT apresentada pela arquiteta do escritório 01, por exemplo, através delas não conseguimos visualizar aspectos como materialidade que são de grande importância para a compressão da proposta de forma geral, fazendo com que o receptor muitas vezes não compreenda os espaços da proposta de maneira integral

Em contrapartida, utilizando o método de representação gráfica de planta humanizada, como a apresentada pela arquiteta do escritório 02, não conseguimos distinguir com clareza o início ou o fim dos ambientes, por que mesmo que a representação da materialidade esteja ali presente, a identificação dos ambientes por setor não está representada, causando novamente certo prejuízo para a compreensão dos espaços propostos E isso se prova através das respostas dos voluntários as entrevistas Com isso, pode-se concluir que nesses casos, o equilíbrio é a solução ideal

1 3 1
6 . 5 S í n t e s e G e r a l d o s R e s u l t a d o s 6 . 5 S í n t e s e G e r a l d o s R e s u l t a d o s

O uso de plantas baixas de qualquer tipo alinhado à representação de imagens 3D é difundido como método principal em vários escritórios brasileiros e funciona Mas considerar os aspectos levantados anteriormente pode ser de grande valia para o aumento da compreensão e legibilidade de projetos arquitetônicos

Para finalizar, o uso do tour virtual como ferramenta de representação gráfica pode ser um grande diferencial no futuro da arquitetura Como resultado dessa pesquisa, chegamos a conclusão que os métodos tradicionais de representação cumprem o seu papel de passar as informações desejadas para os clientes, mas essas informações podem chegar de forma mais clara até o receptor final, fazendo uso do tour virtual

Por se tratar de uma experiência imersiva, faz com que as pessoas acabem se sentindo parte daquele ambiente proposto antes mesmo dele existir Isso pode fazer com que de alguma forma, as pessoas se conectem com esse ambiente, fazendo com que já se imaginem ali vivenciando diversas situações da vida

Além disso, a possibilidade de manipular o tour virtual para que as pessoas permaneçam mais ou menos tempos nos ambientes de um projeto é uma grande ferramenta para conseguir chegar a resultados positivos com os projetos arquitetônicos Em síntese, conclui-se que o tour virtual é uma ferramenta que aumenta e democratiza a compreensão e legibilidade de projetos, pois por ter a intenção de ser uma realidade virtual, é de fácil entendimento e manipulação, por qualquer tipo de pessoa, seja da área da arquitetura ou não

1 3 2

c o n s i d e r a ç õ e s f i n a i s

A arquitetura possui várias definições e sua aplicação permeia por várias competências Essas competências se encontram em um denominador comum: a representação A representação gráfica é a forma que o arquiteto tem de se comunicar com as pessoas através de desenhos, esquemas gráficos e outras aplicações tecnológicas Para além disso, a representação gráfica ocupa um papel importante na comercialização de projetos Funciona como um produto e por isso deve ser de qualidade, legível, claro e que desperte o interesse das pessoas Existem várias formas de se vender um produto, logo, há vários modos de representação arquitetônica Isso foi mostrado através da análise de projetos de escritórios pelo mundo, onde foi pontuado os principais tipos de representação gráfica que os arquitetos utilizam para se comunicar com seus clientes atualmente

O estudo da neurociência aplicada à arquitetura nos permite visualizar o outro lado da moeda, levando em consideração aspectos que influenciam no comportamento humano e gatilhos que podem causar efeitos positivos e negativos dentro de um ambiente

No caso do trabalho em questão, esses aspectos são aplicados para a compreensão dos estímulos causadores de emoções, desencadeadores de sentimentos e presentes na formação de memórias Através de nossos projetos arquitetônicos, podemos gerar estímulos positivos e ligados a memórias afetivas que façam com que nosso produto, nesse caso, nossos projetos sejam atraentes e com uma linguagem adequada para cada tipo de usuário

Para entendermos como ocorre o processo de produção de projetos arquitetônicos e consequentemente de suas representações gráficas, utilizamos dois escritórios de arquitetura como estudo de caso Nesse estudo, foram realizadas perguntas que revelaram o modo e a linguagem projetual de cada arquiteto Como um balanço geral, concluímos que todo o caminho até de fato o nosso produto estar pronto é importante Entender as necessidades, os gostos, as expectativas de cada cliente é um fator determinante para o sucesso de nossas vendas O termo venda é utilizado para se referir ao desenvolvimento e conclusão de uma proposta arquitetônica

Para compreendermos melhor a influência das representações gráficas e a forma como essa influência e desencadeia as mais diversas reações emocionais nas pessoas, foi feito um teste divido em três etapas Sendo a primeira etapa o rastreamento ocular de imagens estáticas dos projetos das arquitetas, a segunda etapa o rastreamento do tour virtual, ferramenta utilizada como a proposta da autora para uma nova forma de representação e a terceira etapa entrevistas Após a apresentação e análise dos resultados, podemos concluir que todos os aspectos existentes dentro da representação gráfica de nossos projetos arquitetônicos são relevantes para que alcancemos a clareza e compressão por parte de clientes e pessoas em geral

Nível de realismo dos métodos utilizados, linguagem, cores, tamanho dos ambientes comprovadamente influenciam na percepção e entendimento diante a uma proposta arquitetônica Como proposta de ferramenta democrática para a legibilidade de projetos, a autora desenvolveu um tour virtual com imagens 360º que permitiram aos voluntários uma experiência imersiva nos projetos Através da análise e intepretação dos resultados dos testes, ficou comprovado a eficiência dessa ferramenta para a compreensão dos espaços propostos

1 3 4
C O N S I D E R A Ç Õ E S F I N A I S

Através do uso de uma nova ferramenta tecnológica, ficou claro a importância de representações e métodos de linguagem fácil e clara Além disso, conclui-se que até mesmo as representações gráficas são capazes de provocar mudanças de caráter psicológico, como a evocação de sensações e sentimentos, através do modo que é feita Para mais, ficou comprovado que é essencial considerar aspectos cognitivos da neurociência aplicada a arquitetura nesses processos, pois através deles podemos chegar a representações mais claras e legíveis que permitam que todo tipo de pessoa consiga receber e compreender a mensagem projetual passada através das mais diversas representações

Em síntese, o presente Trabalho de Conclusão de Curso provou a importância e a influência das representações gráficas para a compreensão e legibilidade de projetos arquitetônicos e mostrouse de grande relevância para as discussões acerta do tema proposto

1 3 5

r e f e r ê n c i a s b i b l i o g r á f i c a s

ASSOCIAÇÃO BRASILEIRA DE NORMAS TÉCNICAS (ABNT) ABNT NBR 16636-2:2017 Elaboração e desenvolvimento de serviços técnicos especializados de projetos arquitetônicos e urbanísticos : Parte 2: Projeto arquitetônico, [S l ], p 1-17, 19 dez 2017

ASSOCIAÇÃO BRASILEIRA DE NORMAS TÉCNICAS (ABNT) ABNT NBR 6462-1994 Representação de projetos de arquitetura p 1 – 27, 30 mai 1994

DAMASIO, Antônio R O mistério da consciência: Do corpo e das emoções ao conhecimento de si São Paulo: EDITORA SCHWARCZ LTDA , 2000 690 p

DAMASIO, Antônio R O erro de Descartes: Emoção, razão e o cérebro humano São Paulo: EDITORA SCHWARCZ LTDA , 1994 303 p

DAMASIO, Antônio R E o cérebro criou o homem São Paulo: EDITORA SCHWARCZ LTDA , 2011 287 p

DAMASIO, Antônio R EM BUSCA DE ESPINOSA: Prazer e dor na ciência dos sentimentos. São Paulo: EDITORA SCHWARCZ LTDA , 2009 250 p

EBERHARD, John P Brain Landscape The Coexistence of Neuroscience and Architecture Oxford, EUA : Oxford University, 2008 280 p

IZQUIERDO, Iván Memórias Porto Alegre: Artmed Editora S A , 2011 145 p

KUŸNIERZ, M L ; KRUPA, M. Suitability of Eye Tracking in Assessing the Visual Perception of Architecture A Case Study Concerning Selected Projects Located in Cologne Buildings, Polônia 10, 20; 01/2020

KOWALTOWSKI, Doris Catharine Cornelie Knatz; CELANI , Maria Gabriela Caffarena; MOREIRA, Daniel de Carvalho; PINA, Silvia Aparecida Mikami G ; RUSCHEL, Regina Coeli; DA SILVA, Vanessa Gomes; LABAKI, Lucila Chebel; PETRECHE, João Roberto D Reflexão sobre metodologias de projeto arquitetônico. Processo de projeto, Porto Alegre, v 6, n 2, p 7-19, 19 abr 2006 Disponível em: https://www seer ufrgs br/index php/ambienteconstruido/article/vi ew/3683/2049 Acesso em: 25 maio 2022

MALLGRAVE, Harry Francis The Architect's Brain: Neuroscience, Creativity and Architecture. Oxford: Editorial Offices, 2010 284 p

PALLASMAA, Juhani; MALLGRAVE, Harry Francis; ARBIB, Michael ARCHITECTURE AND NEUROSCIENCE [S l ]: Tapio Wirkkala-Rut Bryk Foundation, 2013 79 p

PAIVA, Andréa NeuroArquitetura e Percepção: criando experiências mais completas para os ambientes [S l ], 29 set 2020 Disponível em: https://www neuroau com/post/neuroarquitetura-epercep%C3%A7%C3%A3o-criando-experi%C3%AAncias-maiscompletas-para-os-ambientes Acesso em: 20 abr 2022

PAIVA, Andréa NeuroArquitetura e o papel das Emoções [S l ], 20 nov 2018 Disponível em: https://www neuroau com/post/neuroarquitetura-eo-papel-das-emo%C3%A7%C3%B5es Acesso em: 28 abr 2022

RUSNAK, Marta Alina; RABIEGA, Mateusz The Potential of Using an Eye Tracker in Architectural Education: Three Perspectives for Ordinary Users, Students and Lecturers. Buildings, v 11, n 6, p 245, 2021

SPERLING, D M ; Arquiteturas contínuas e topologia: similaridades em processo. São Carlos: 2003 Dissertação de Mestrado Escola de Engenharia de São Carlos, Universidade de São Paulo, São Carlos, 2003

1 3 7
R E F E R Ê N C I A S B I B L I O G R Á F I C A S

SUSSMAN, Ann; WARD, Janice M How Biometrics Can Help Designers

Build Better Places for People. Commedge, [S l ], p 1-3, 4 jun 2018 Disponível em: https://commonedge org/how-biometrics-can-helpdesigners-build-better-places-for-people/ Acesso em: 19 maio 2022

1 3 8

a p ê n d i c e s

APÊNDICE 02 - TERMO DE CONSENTIMENTO LIVRE E ESCLARECIDO

APÊNDICE 01 - Roteiro – Estudo de Caso

Fonte: Autora, 2022.

1 3 9
1 4 0
1 4 1
Acesso a Entrevistas Tabuladas e Mapas de Calor Extras

N E U R O C I Ê N C I A

A P L I C A D A À A R Q U I T E T U R A :

a influência na representação de projetos arquitetôn cos ana.clara.muniz@hotmail.com

ANA CLARA MUNIZ PEREIRA

Turn static files into dynamic content formats.

Create a flipbook
Issuu converts static files into: digital portfolios, online yearbooks, online catalogs, digital photo albums and more. Sign up and create your flipbook.