Ana Beatriz Queiroz Portfólio de Arquitetura

Page 1

portfólio de arquitetura

ANA BEATRIZ QUEIROZ

Ana Beatriz Queiroz

abqueiroz03@gmail.com

+55 (21) 98887-2343

www.linkedin.com/in/ana-beatriz-queiroz-60495a248

Formação acadêmica

Arquitetura e Urbanismo - Pontifícia Universidade Católica do Rio de Janeiro (2021 - 2025)

Ensino médio: Escola Parque Gávea (2018 - 2020)

Experiência Profissional

Monitora da disciplina Desenho de Arquitetura I (março de 2022 - julho de 2023)

Habilidades

Proficiência em AutoCAD, conhecimento intermediário em SketchUp, Vray, Affinity Photo e Pacote Office.

Fluente na língua inglesa, iniciante em frânces e espanhol.

Sumário

Escola de Arquitetura

Colagens

Casa Rio Bonito

Centro Comunitário Love's House

Detalhamento de banheiro

Detalhamento de cozinha

Escola de Arquitetura

Exercício de representação realizado na disciplina Técnicas Avançadas em Representação.

Feito no SketchUp e renderizado com VRay.

Colagens

Exercício de representação realizado na disciplina Técnicas Avançadas em Representação.

Feito no Affinity Photo.

Colagens

Exercício de representação realizado na disciplina Técnicas Avançadas em Representação.

Feito no Affinity Photo.

Colagens

Exercício de representação realizado na disciplina Técnicas Avançadas em Representação.

Feito no Affinity Photo.

Casa Rio Bonito

Exercício de representação realizado na disciplina Técnicas Avançadas em Representação a partir da casa projetada pela arquiteta Carla Juaçaba.

Feito no SketchUp e renderizado com VRay. pós produção no Affinity Photo.

Centro comunitário Love's House

Projeto de revitalização em um antigo hotel na Rua Joaquim Silva, na Lapa.

Realizado na disciplina Projeto de Revitalização e Reutilização, com os alunos João Bressane e Isabela Lopez.

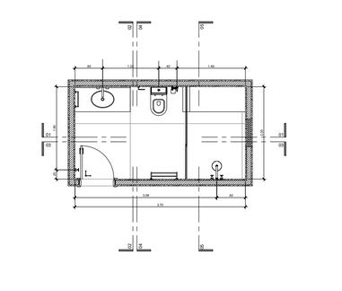
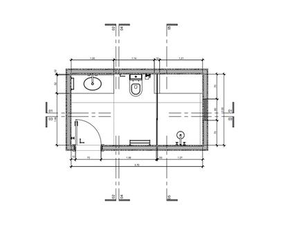
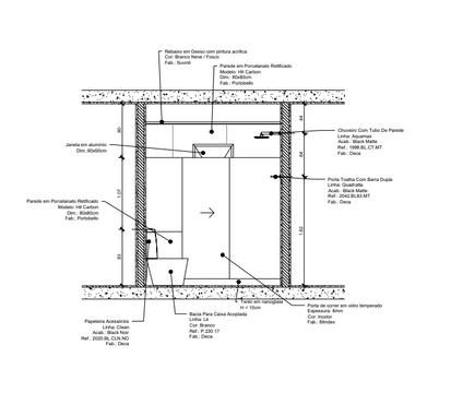
Detalhamento de banheiro

Realizado na disciplina Desenho de Arquitetura III.

Feito no AutoCAD.

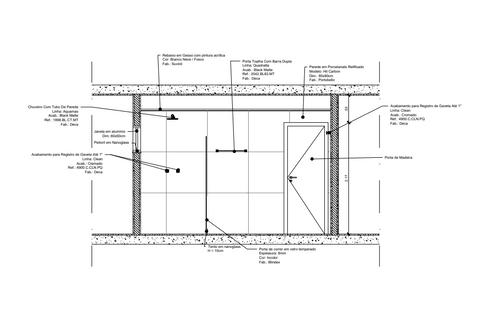
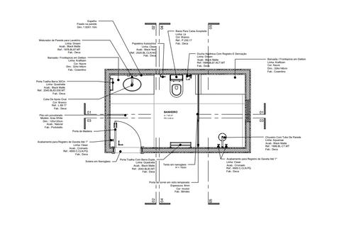
Detalhamento de banheiro

Realizado na disciplina Desenho de Arquitetura III.

Feito no AutoCAD.

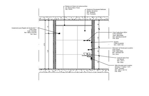
Detalhamento de cozinha

Realizado na disciplina Desenho de Arquitetura III.

Feito no AutoCAD.

ANA BEATRIZ QUEIROZ

Turn static files into dynamic content formats.

Create a flipbook
Issuu converts static files into: digital portfolios, online yearbooks, online catalogs, digital photo albums and more. Sign up and create your flipbook.
Ana Beatriz Queiroz Portfólio de Arquitetura by ana queiroz - Issuu