Caderno de Equipamento público

Page 1

RiodeJaneiro,Dezembrode 2022

1 - Análise do Entorno - 5 à 12. 1.1 - Estudos de Caso - Referências Projetuais13 à 20.

2 - Estudos de Massa e volumetria - 23 2.1 - Setorização e volumetria explodida - 24 2.2 - Programa de necessidades - 25 e 26.

01
02
do Projeto Estudos Preliminares
Apresentação

Anteprojeto

3 - Implantação - 29 e 30.

3.1 - Planta Baixa dos Pavimentos - 31 à 33.

3.2 - Planta Estrutural - 34 à 36.

3.3 - Cortes - 37.

3.4 - Perspectivas - 38. 3.5 - Fachadas - 39 e 40.

03
01
APRESENTAÇÃO
TERRENO ÁNALISE DO ENTORNO
GRUPO
GRUPO Imagem01 ÁREADEPROTEÇÃODOAMBIENTE CULTURALDESÃOCRISTÓVÃO RJ 5
LEGENDA: ÁREAS DA LC N° 24/93 SUB ÁREA DA LC N° 24/93 BENS TOMBADOS ESTADUAL BENS TOMBADOS - MUNICIPAL BENS TOMBADOS FEDERAL BENS TOMBADOS APAC PRESERVADOS PELA APAC
BENS TUTELADOS PELA APAC PRESERVADOS PELA APAC

O terreno, localizado em uma área de proteção do ambiente cultural de São Cristóvão RJ, fica situado ao lado da Casa da Marquesa de Santos e possui uma área total de 11.000m², sendo a área de intervenção do Projeto do Centro Cultural de

O 1 2 CASADAMARQUESA DESANTOS AVENIDAPEDROII ÁREADO TERRENO 3.000m² 50m 60m
PARÂMETROSURBANÍSTICOS Obs:Parâmetrosreferentesaolocaldaintervenção Áreadoterreno-3.000m²(50x60m) TaxadeOcupação-60% IAT-1,5 ATE-4.500m² Gabarito-12m
6 Imagem 02
Vista 1- Fachada Casa da Marquesa de Santos Avenida Pedro II São Cristóvão - Rio de Janeiro R. São Cristóvão Av. Pedro II Vista 5 - Rotatória Quinta da Boa Vista Vista 2 - Vista frontal a rua) 7 Imagem 03 Imagem 04 Imagem 06
8
Imagem 07
Av.PedroII TERRENO ao terreno (outro lado da Vista 3 - Elevado ao fundo Av.PedroII
Imagem 05
Edificações Área verde permeável Terreno Casa da Marquesa de Santos LEGENDA 9

FIGURA E FUNDO

A Avenida Pedro II se destaca no recorte do tecido urbano apresentado por conta de suas largura. Acredita-se que a avenida em questão demonstra o passado luxuoso de São Cristóvão por meio de suas dimensões, afinal era caminho da residência do império. Além da estética, os membros da família real se locomoviam com grandes comitivas, por isso faz sentido que a rua por onde passavam, saída e entrada do paço, seja larga.

A Avenida Pedro II, aparentemente, resguarda um modelo urbano que enaltece a estética e a imponência como elementos cruciais para a constituição do seu tecido urbano.

Os vazios urbanos também são muito presentes no entorno das construções históricas, em comparação com quarteirões de estabelecimentos comerciais/industriais. Isso provavelmente acontece por conta das leis e métodos de proteção ao patrimônio.

10
Legenda - alturas Até5m Até10m Até15m Até20m Acimade20m VistadosedifíciosemfrenteaCasadaMarquesa(edifíciosdooutroladodarua).(Linhasempassode3m) Tipogra Vistafrontalterreno/CasadaMarquesa(dooutroladodarua).(linhasempassode3m) 11 Imagem 08 Imagem 09 Imagem 10

Tempoatéoterreno

Praçadabandeira:13min

SãoCristovão:11min

QuintadaBoaVista:6min Imagem 12 Imagem 13

TerrenodeIntervenção
ViaSecundária(coletora) ViaLocal
SãoCristovão:12min 12

Referências projetuais

Setorização: Cada volume recebe um programa diferente, enquanto no primeiro pavimento se encontra a área pública, no segundo temos a área de treinamento e área privada.

13
14
Imagem

Imagem 16

Fluxograma: Nos dois ambientes podemos observar que se encontram áreas de acesso ao público, tanto para exposições como para convivência.

14
Imagem 15

Elevação frontal superior

Elevação lateral direita

Elevação posterior

Elevação lateral direita Cortes

Estrutura: A importância estrutural é definida por cada volume, o volume do térreo tem a estrutura de concreto armada coberto de pedras, o volume suspenso é formado é uma ponte formada por estrutura metálica treliçada e laje pós tencionada, além de possuir pilares de sustentação para o térreo.

15 Imagem 17

Imagem 18

Terraço jardim Área de

Imagem 19

Implantação: Com abertura para rua e em direção a praça vizinha, criando a ideia de lugar público, enquanto o volume suspenso é realizado em um coletivo de pilares, o que além de dar estrutura em ao edifício, ainda cria uma estética inovada e moderna. o Centro do edifício se torna um vão, vazio, destinado a convivência e exposições externas.

16

Conforto ambiental: Com instalações de brizes horizontais na janelas das fachadas nortes e oeste (onde há maior incidência solar). O terraço jardim, é uma estratégia que auxilia no retardo de escoamento de água pluvial pluvial para o meio urbano.

17 Imagem 20

Imagem 21

Imagem 22

Forma: Com linhas retas e ambientes de espaços compactos, o centro cultural tem uma forma bastante utilizada e simples.

18 0
19 Imagem 23 Imagem 24

Imagem 26

Imagem 25

Destaque do projeto: O pátio ao ar livre é o destaque desse projeto, além de apresentar uma cobertura verde (regulando ao microclima do local), atua como mirante, espaço para oficinas e estende o entorno para dentro do edifício.

20
02
ESTUDO PRELIMINAR

Estudo de Massas e volumetria

23
Imagem 27 Imagem 28 Imagem 29 Imagem 30

Setorização e Perspectiva explodida

Legenda Auditório

Setor cultural Administração Setor de serviços Vivência
24 Imagem
31
25
26
***Nem todos os ambientes foram usados no projeto final.
03
ANTE PROJETO
29
30

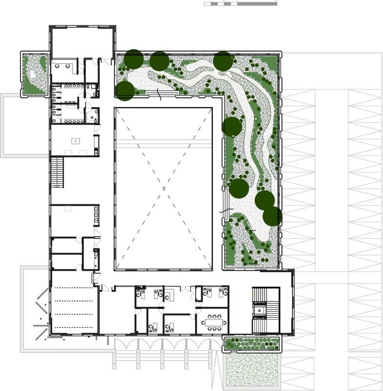
Planta Baixa Pav. Térreo

31
Planta Baixa 1° Pavimento 32
Planta Baixa 2° Pavimento 33

Planta Estrutural Pav. Térreo

34

Estrutural Pav. Térreo

35
Planta

Planta Estrutural Pav. Térreo

36
37

Perspectivas

38
39

Fachada Lateral Direita Fachada Lateral Esquera

40

Referências de imagens

Acervo pessoal

Capa

Figuras 1 e 2 Páginas 05 e 06 Figuras 3 a 7. Páginas 7 e 8. Figuras 8 a 13. Páginas 11 e 12. Figuras. 14 a 16. Páginas 13 e 14. Figuras 17 a 19. Páginas 15 e 16. Figuras 20 a 22. Páginas 17 e 18. Figuras 23 a 26. Páginas 19 e 20. Figuras 27 a 31. Páginas 23 a 24.

Fundo de páginas canva.

Página 3 Página 4. Página 21. Página 22. Página 27. Página 28.

41
42

Ana Beatriz Penha Arquitetura e Urbanismo.

Turn static files into dynamic content formats.

Create a flipbook
Issuu converts static files into: digital portfolios, online yearbooks, online catalogs, digital photo albums and more. Sign up and create your flipbook.