ARQ E MADEIRA

Page 1

HouseofWould

“Aarquiteturaéumplayground.Habitaré desdobrarpeças.”

Dengochocolates

TemoobjetivodesermaisumacededaDengo

Chocolatesnosolopaulista,sendooprimeiro doBrasilautilizarcomponentesdemadeira engenheiradaemsuaestrutura.

LivrariaHenrikIbsen

Umahomenagemaorenomadodramaturgo

HenrikIbsencomopropósitodetornarsua

literaturaacessíveisatodos,alémdecriaruma ligaçãoentreosequipamentosdotecido urbanonoqualseinsere

a r c h i e t b o i s

Concepção EstruturalArquitetura em Madeira

JoãoMarceloDanzaGandini

Autores

Ana Laura Maia Lixandrão

Bruna Lopes Moreira

Gabriel Henrique Oliveira Mendes

Luiz Soares Costa Junior

Vitória Valeiro Barbosa

SUMÁRIO

04. Introdução: localizadanaEspanhaeconstruídaem7módulosdemadeira

usodamadeira

08. HouseofWould: construídaemSãoPaulocommadeiraengenheirada

14.Dengochocolates: localizadanaEspanhaeconstruídaem7módulosdemadeira.

32. Conclusão

24. LivrariaHenrikIbsen: sobreasobraseomaterial.

33. ReferênciasBibliográficas fontesesites

Introd

Usodamadeira

A madeira foi um dos primeiros materiais utilizados pelo homem, mas após a Revolução Industrial foi desprezada para o estudo de novos materiais como o aço e o concreto. Apesar da tecnologia apresentada por esses materiais, a madeira ainda supera pelo desempenho diante das grandes questões do século: sustentabilidade. Mostrando-se protagonista nesse cenário por ser um material natural, renovável e de fácil trabalhabilidade, além de que o uso racional da madeira nas construções proporciona melhor aproveitamento energético se comparado a outros materiais como aço, concreto

Por conta da evolução tecnológica industrial desenvolvida, surge a madeira engenheirada que garante o aproveitamento de todas as potencialidades do material nas suas diversas aplicações. Este tipo de material tem como característica sua alta resistência mecânica e a agentes químico-biológicos, além de possuir uma grande flexibilidade na concepção estrutural

archi et bois 4

Os principais tipos de madeira engenheirada

MLC(MadeiraLaminadaColada):

tipo mais conhecido de madeira engenheirada caracterizado por lamelas de madeira unidas por adesivos estruturais e uniões do tipo finger joint Suas aplicações encontram-se no sistema estrutural de vigas e pilares, além de ser empregada para barroteamento e em treliças.

CLT(MadeiraLaminadaCruzadaouCross

LaminatedTimber):

esta solução diferencia-se do MLC por possuir as lamelas de madeira distribuídas em duas direções (possuindo uma direção de maior resistência principal) Suas aplicações estão em sistemas de painéis, podendo atuar como lajes, paredes, coberturas e vigas.

NLTeDLT(NailLaminatedTimbereDowel

LaminatedTimber):

nos dois tipos têm-se a união de lamelas de madeira em uma única direção, porém diferenciam-se no modo de união. O primeiro é unido por pregos ou parafusos, enquanto o segundo através de pinos de madeira de alta densidade. Ambos aplicam-se em sistemas de painéis

WoodFrame:

sistema estrutural em wood frame é como uma estrutura em madeira de montantes e travessas preenchidos por completo com isolantes termoacústicos e revestidos de maneira adequada ao ambiente

IBRAMEM

No Brasil existe o IBRAMEM (instituto brasileiro da madeira e das estruturas de madeira), é uma associação civil, de âmbito nacional, sem finalidades lucrativas e que tem por objetivo proporcionar aos engenheiros civis, agrônomos e florestais, aos arquitetos e outros interessados no estudo da madeira, os melhores e mais atualizados conhecimentos a respeito do assunto, através do incentivo a pesquisa científica e tecnológica, do entrosamento dos pesquisadores e profissionais, da divulgação e disseminação das notícias e dos trabalhos pertinentes ao assunto, e da prestação de serviços a coletividade na área

archi et bois 6
archi et bois 7

House of Would

"Aarquiteturaéumplayground.Habitarédesdobrarpeças.”

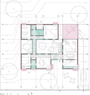
Localizada num terreno inclinado de 1.316 m², a House of Would é separada em sete módulos estruturais simétricos que envolvem um pátio central ajardinado irrigado por água pluvial captada através do telhado. Cada módulo de madeira é dedicado a uma situação doméstica diferente de acordo com suas necessidades funcionais. A estrutura modular funciona como suporte para possíveis layouts futuros, facilitando o processo de industrialização da mesma

archi et bois

Fichatécnica

Local:Pedresuela,Espanha

Arquitetos:Elii

Terreno:1.316m²

Área:210m²

Ano:2011

Fotografias:MigueldeGuzmán

8

A casa adapta-se ao terreno de forma escalonada em função dos diferentes graus de privacidade necessários: os quartos privados estão escondidos da rua e adaptam-se ao terreno dando a sensação de estar em contacto direto com o terreno. Os espaços mais públicos estão mais próximos da rua e vão ganhando altura gradualmente, até se erguerem sobre a paisagem e olharem para o horizonte sobre os restantes quartos Uma série de pequenas pontes servem como elementos de transição entre as diferentes áreas e acomodam os diferentes níveis de .

privacidade O conjunto é fechado por um envelope de madeira, gerando fachada e cobertura ventiladas O pátio central ocupa parte do jardim da casa. Inclui um telhado leve que dá luz à fachada, uma espécie de lanterna chinesa que envolve o pátio e permite que os membros da família desfrutem desta sala externa As coberturas de madeira são dispostas de acordo com uma lei de variação espacial que, além de atender às normas locais, coleta a água da chuva e a direciona para o pátio para regar o jardim.

archi et bois 9
archi et bois 10

A declaração do cliente, "muitas das minhas memórias mais felizes estão associadas com espaços diferentes, como um container no meio de uma floresta, um chalé de madeira, ou morar em um espaço rodeado por cavalos e outros animais." ,fez com que o grupo de arquitetos se visse no desafio de transferir essas memórias em um novo espaço. A ala privativa da casa fica na parte inferior do terreno e a social ao topo, mais próxima da rua, estas ligadas por escadas de circulação.

Os espaços foram entregues com revestimento primário simples para que posteriormente haja a finalização

A casa possui kits referentes a cada módulo, em que parte da estrutura chega na obra montada, transferindo etapas do processo para a oficina, que monta à seco os painéis estruturais de madeira e reduz o tempo de execução A organização da casa permite fragmentar a casa em uma menor sem ter que usar a casa na íntegra.

“Oconstrutor torna-seum produtor.”
archi et bois 11
“Acarcaçaéo hardware.As práticascotidianas sãosoftware.”
Bonecas russas Aorganizaçãodacasa permitequeacasaseja fragmentadaemuma menorsemusartodoo edifício.

Uma casa em 21.600 minutos

corte
planta maquete archi et bois 12
fachada
corte

O sistema construtivo industrializado e a montagem dos painéis estruturais de madeira dry-mount encurtam os prazos de execução. Hoje existe um terreno vazio, mas, em menos de duas .

semanas, uma casa terá aparecido.

O Projeto inclui a construção de um suporte feito de acabamentos elementares compostos por poucos elementos.

implantação archi et bois 13

Dengo chocolates

AedificaçãopossuioobjetivodesermaisumacededaDengoChocolates nosolopaulista Oprédiodeusocomercial possuíquatropavimentose 1,5milmetrosquadradosdeáreaconstruída,sendooprimeirodoBrasila utilizarcomponentesdemadeiraengenheiradaemsuaestrutura.

archi et bois 14

A madeira engenheirada refere-se a produtos fabricados a partir de pinus ou eucalipto obtidos exclusivamente de florestas plantadas e que, após a extração, são submetidos a tratamentos e processos que agregam qualidade e homogeneidade. No projeto em questão, são utilizadas a madeira laminada colada (MLC), utilizada em vigas e pilares, e a madeira laminada cruzada (CLT, do termo em inglês Cross Laminated Timber), destinada à confecção de lajes e paredes estruturais.

archi et bois 15

Fichatécnica

Local:Pinheiros,SãoPaulo,Brasil

Arquitetos:MatheusFaraheManoelMaia

Arquitetura

Área:1500m²

Ano:2020

Fotografias:Fran

Fabricantes:Amata,Rewood

Instalações:Greenwatt

Fundações:Apoio

Impermeabilização:Omnitrade

Sobre os arquitetos

Os arquitetos Matheus Farah e Manoel Maia criaram seu escritório em 2017, movidos pela ideia de uma prática plural. Essa pluralidade revela-se na escolha dos trabalhos, na composição da equipe, sendo essa composta por profissionais de diferentes formações e experiências, mas principalmente na busca por uma atuação diversa, para além da arquitetura em si. Seus projetos são sempre fruto de um trabalho interno

.

coletivo e colaborativo, que conta ainda com o suporte técnico de engenheiros, consultores e muitas vezes da indústria diretamente, como quando do desenvolvimento de elementos construtivos específicos, por exemplo.

archi et bois 16

De acordo com a UN Environment, o uso da madeira na obra é uma importante alternativa para a construção civil, responsável por 39% do total global de emissões. Dessa maneira, as construções em madeira contribuem significamente para o sequestro do carbono emitido na atmosfera É óbvio que não possuem a mesma eficácia que uma árvore in natura, pois a madeira para estar apta para construção passa por diversos processos industriais, entretanto é uma alternativa que já corrobora para uma diminuição desse índice de poluição na atmosfera, sendo assim uma alternativa mais sustentável para o meio ambiente. Foi uma escolha do ponto de vista estético e ecológico, muito bem pensada e executada. Outras características do projeto incluem:

a simplicidade da estrutura –modular e aparente, composta de pilares, vigas e lajes em peças inteiriças de madeira laminada cruzada, produzidas em fábrica e apenas montadas no local em um trabalho de execução rápida, precisa e de pouquíssimo resíduo; nas instalações elétricas, hidráulicas e de ar-condicionado, que correm igualmente à vista; na total integração e fluidez dos espaços, que se fizeram possíveis graças à ausência de paredes e à criação de vazios de variados pés-direitos; e na existência ainda de uma réplica das instalações de uma fábrica de chocolates à antiga, com torrefadoras e dutos que transportam os nibs de cacau até uma enorme mélanger no centro da loja

.
archi et bois 17

Conceito e Partido arquitetônico

Pode-se dizer que, ainda que em dimensão subjetiva e talvez até subliminar, o cacau foi a inspiração para tudo, sendo essa fruta o conceito norte para o projeto Isso é observado nas cores, nas texturas, na paleta de materiais e até na iluminação de tom rebaixado, que remete à sombra da cabruca onde crescem os cacaueiros. Dessa maneira, o partido arquitetônico para aplicabilidade do conceito se deu através da utilização de lajes em madeira CLT produzidas pela Amata e pilares e vigas em madeira MLC produzidas pela Rewood A madeira é a grande protagonista do projeto, seja usada na estrutura ou como elemento decorativo, tudo com o propósito de remeter uma subjetiva árvore de cacau, havendo assim um mimetismo

archi et bois 18

O sistema construtivo empregado consiste na combinação entre o chamado CLT (Cross Laminated Timber) e o MLC (Madeira Lamelada Colada / Glulam).

O MLC consiste basicamente na colagem de lamelas paralelas entre si, que proporciona ao material alta resistência e uma infinidade de tamanhos, seções e formas Isso permite que o MLC, como sistema construtivo em madeira, seja utilizado em projetos estruturais para os sistemas de pilares e vigas, como foi aplicado, por exemplo, no esqueleto estrutural da loja de chocolates Por fim, o sistema construtivo em madeira CLT, um painel estrutural produzido a partir da colagem entre lamelas orientadas perpendicularmente à anterior, resultando ao produto alta rigidez estrutural, estabilidade, durabilidade, leveza e maior alcance de placas com grandes dimensões. É um produto altamente competitivo no mercado em relação aos produtos convencionais devido à sua versatilidade em aplicar grandes dimensões de placas. Seu uso em projetos compõe estruturalmente paredes e lajes, com a diferença de oferecer superfícies lisas.

CLT MLC archi et bois 19
archi et bois 20
archi et bois 21
archi et bois 22
archi et bois 23

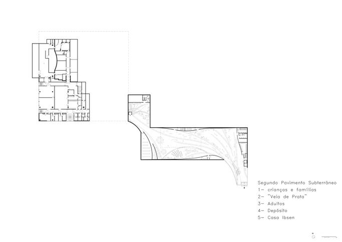
Livraria Henrik Ibsen

Aequipedesenvolveuoprojetocomoumahomenagemaorenomado dramaturgoHenrikIbsen,consistindoemumnovocentrocultural.

Fichatécnica

Local:Skien,Noruega

Arquiteto:KengoKuma

Área:7.000m²

Ano:2020

SócioResponsável:YukiIkeguchi

Profissionaisenvolvidos:BuroHappold

Engineering

ArquitetosAssociados:MadArkitekter

Tipologia:Livraria,cultura/leitura

archi et bois 24

Sobre o arquiteto

Nascido em 1954, o arquiteto Kengo Kuma fundou seu escritório na década de 1990 e atualmente concilia esta atividade com a atuação como professor na Universidade de Tóquio A marca registrada presente em suas obras contempla a proposição de uma nova relação estabelecida entre natureza, homem e tecnologia.

archi et bois 25
archi et bois 26

A nova biblioteca contará com um amplo programa composto por café, área infantil, guichê de informações turísticas e um centro nacional dedicado a pesquisas sobre o escritor Henrik Ibsen, acolhido por uma cobertura em madeira de geometria curva, envolvida por uma fachada envidraçada que oferece vista panorâmica para o parque. O propósito da biblioteca é tornar o drama e a literatura de Ibsen acessíveis a todos, além de criar uma ligação entre os equipamentos do tecido urbano no qual se insere. Em uma alusão à “Veia de Prata” nos escritos de Ibsen, a edificação busca, acima de tudo, propor encontros inesperados pelo caminho até a biblioteca.

As curvas não se fazem presentes apenas no volume da edificação, como também na geometria do telhado, ligeiramente escalonado, composto por telhas de madeira, projetadas para ecoar as formas e a escala das folhas das árvores ao redor. Ao longo da cobertura serão aplicadas aberturas nas telhas a fim de criar clarabóias com efeitos de luz.

archi et bois 27
Autilizaçãodamadeira, sobretudoseuprotagonismono projeto,confereaesteum mistodesobriedade,suavidade eintegração.

Partido arquitetônico

A fim de propor tais encontros com um fluxo ativo de pessoas, o projeto conta com múltiplos acessos de todas as direções em todos os níveis, ademais seu formato curvilíneo contorna as árvores, configurando espaços internos e externos contínuos.

A utilização da madeira, sobretudo seu protagonismo no projeto, confere a este um misto de sobriedade, suavidade e integração. As curvas não se fa presentes apenas no volume da edifica como também na geometria do telha ligeiramente escalonado, composto telhas de madeira, projetadas para ecoa formas e a escala das folhas das árvore redor. Ao longo da cobertura se aplicadas aberturas nas telhas a fim de c clarabóias com efeitos de luz.

No que se refere ao aspecto construt privilegiou-se a aplicação de materiais origem sustentável A madeira se presente no acabamento dos paviment das paredes, a fachada é feita de vi conferindo ao projeto a sensação amplitude e levitação.

archi et bois 28
archi et bois 29
archi et bois 30
archi et bois 31

House of Would

Conclusão

Conclusãodogrupossobrecadaobraesobreouso damadeiranasconstruções

No projeto podemos observar como a materialidade foi um fator primordial para o desenvolvimento e a execução do projeto Neste vimos que a madeira que constrói é a mesma que acolhe os desejos primordiais de afeto e lembrança exigidos pelo cliente, é também a que proporciona a praticidade, racionalidade e rapidez, uma vez que com o projeto finalizado a produção e o encaixe das peças não se demoram em comparação à uma construção de alvenaria

A obra possui uma excelência em sua estrutura, pois se trata de um modelo estrutural de fácil instalação e execução. Tal simplicidade causou um grande impacto em solo brasileiro, haja vista que se trata da primeira construção com tal sistema em solo brasileiro, quebrando assim aquele tradicional paradigma do uso da alvenaria em quase que toda totalidade dos projetos brasileiros

Livraria Henrik Ibsen

Dengo chocolates

É possível apreender a relevância da madeira enquanto escolha projetual, no que se refere ao âmbito estrutural, bem como ao arquitetônico, haja vista seu desempenho e aspecto estético O material cumpre muito bem sua função construtiva, levando em consideração sua resistência e trabalhabilidade, paralelamente, seu acabamento confere ao projeto a sobriedade e a suavidade que tornam a obra tão característica.

Dessa maneira, é importante ressaltar que o uso da madeira na construção civil promove diversos benefícios, dentre eles: a diminuição do tempo do canteiro de obras, possui grande diversidade de espécies com diferentes características naturais, possui baixa massa volumétrica e elevada resistência mecânica. Ademais resiste tanto a esforços de compressão quanto de tração, sendo mais resistente até mesmo que o concreto, possuindo coeficiente de resistência bem maior que o Fck utilizado no concreto. Além disso, uma construção em madeira, mesmo sem ter os devidos cuidados necessários, como impermeabilização e fora da umidade padrão, possui boa durabilidade, entretanto quando bem cuidada e com a devida manutenção, esse tempo dobra, assim sendo um método construtivo eficaz e de alta qualidade, além da eximia beleza estética.

MADEIRA

archi et bois 32

Referências Bibliográficas

House of Would

Fonte de todas as imagens: ELLI OFICINA DE ARQUITECTURA House of would [S l]: Elli oficina de arquitectura

Disponível em: http://elii.es/portfolio/house-of-would/#prettyphoto[gal]/5/. Acesso em: 17 fev 2023

Bibliografia: HOUSE of would. [S. l.]: Elli oficina de arquitectura, 1 fev. 2023. Disponível em: ELLI OFICINA DE ARQUITECTURA. House of would. [S. l.]: Elli oficina de arquitectura. Disponível em: http://eliies/portfolio/house-of-would/#prettyphoto[gal]/5/ Acesso em: 17 fev 2023

Acesso em: 17 fev. 2023.

HOUSE of Would / Elii [S l], 4 fev 2013 Disponível em: https://wwwarchdaily.combr/br/0195215/house-of-would-slash-elii. Acesso em: 17 fev. 2023.

Dengo chocolates

https://wwwarchdailycombr/br/960042/loja-conceito-da-dengo-chocolates-matheusfarah-plus-manoel-maia-arquitetura

https://wwwmfmmcombr/projetos/dengo-faria-lima/

https://www.griclub.org/news/real-estate/de-olho-em-esg-primeiro-predio-do-brasilconstruido-com-clt-e-inaugurado-em-sp 1371

https://rewoodcombr/artigo/sistemas-construtivos-em-madeira

https://www.galeriadaarquitetura.com.br/projeto/mfmm-arquitetura /dengochocolates/6432

https://www.mfmm.com.br/quem-somos/

Livraria Henrik Ibsen

Fonte das imagens:

https://kkaa.co.jp/en/project/ibsen-library-trekrone-tree-crown/

Bibliografia:

https://biblio.campusananindeua.ufpa.br/index.php/ultimas-noticias/601-kengo-kumaprojeta-biblioteca-de-madeira-na-noruega

https://kkaa.co.jp/en/project/ibsen-library-trekrone-tree-crown/

https://wwwdezeencom/2021/03/22/ibsen-library-kengo-kuma-and-associates-henrikibsen-norway/

https://wwwarchdailycombr/br/950814/kengo-kuma-projeta-biblioteca-de-madeira-nanoruega

archi et bois 33
archietbois 01 DE MARÇO DE 2023

Turn static files into dynamic content formats.

Create a flipbook
Issuu converts static files into: digital portfolios, online yearbooks, online catalogs, digital photo albums and more. Sign up and create your flipbook.