Ana Cruz

Page 1


Portfolio

Ana Cruz

I consider myself a creative, organized, and responsible person, with knowledge in architecturally sustainable projects and landscaping. I am driven by my desire to improve environmental conditions, enhance quality of life, and human comfort through design. I firmly believe in the ability of landscaping to transform spaces, harmoniously integrating nature with architecture to create places that are not only aesthetically pleasing but also functional and sustainable.

EDUCATION

Bachelor’s degree in architecture

University La Salle Cancún 2016-2021

LANGUAGES

Spanish

English

Mother tongue.

Cambridge English Scale. FCE (high-intermediate) completed.

SOFTWARE

AutoCAD

Revit

Photoshop InDesing Sketch Up

Enscape Lumion

Word

Power Point

INFORMATION

Encore Event Technologies

Architect Proyect Developer January 2019 - April 2019

Smooth Architecture

Architect Proyect Developer October 2019 - February 2020

Babel Architecture

Architect Proyect Developer January 2021 - July 2021

TAFF Architecture

Architect Proyect Developer July 2021 - July 2022

Maat Handasa

Landscape Proyect Developer July 2022 - Today

Sustainable Neighborhood

Sustainable Neighborhood

The project is an urban intervention in the ejido Alfredo Bonfil, aimed at providing greater comfort to the local residents. The main objective is to offer users as many services as possible, thereby improving the quality of life for all residents of the ejido.

he project features a sustainable design that protects the facades through volumetric play and takes advantage of the benefits of cross-ventilation.

Urban Image for a historic Center for the City of Cancun

Urban Image for a historic Center for the City of Cancun

The proposal consists of a set of urban image guidelines aimed at generating a positive impact on the city’s perception and creating a distinct visual identity. This document is divided into two parts: the first is a preliminary investigation on the proposed topic, and the second is a design manual accompanied by an urban-architectural proposal.

In the first part, a guiding reference is presented, rather than a regulatory criterion, with the goal of improving the quality of life in urban spaces, especially for users of the central superblocks. It proposes a guide for the urban design of public spaces with environmental quality that facilitates the design process, aiming to enhance the quality of life in these areas.

The importance of this urban improvement lies in attracting more residents and tourists to the city center. The aim is to create spaces that promote cultural, economic, and social diffusion, reflecting the influence of Mexican culture through places that offer a variety of experiences.

In the second part, the urban-architectural proposal is developed by applying the design manual to the first quadrant of the city of Cancun, with the objective of revitalizing the city’s urban core to attract both tourists and residents, creating a culturally enriching environment.

Laguna

in Puerto

in distinguished by its architectural design, where the interplay of simple and embellished volumes creates comfotable and functional living spaces.

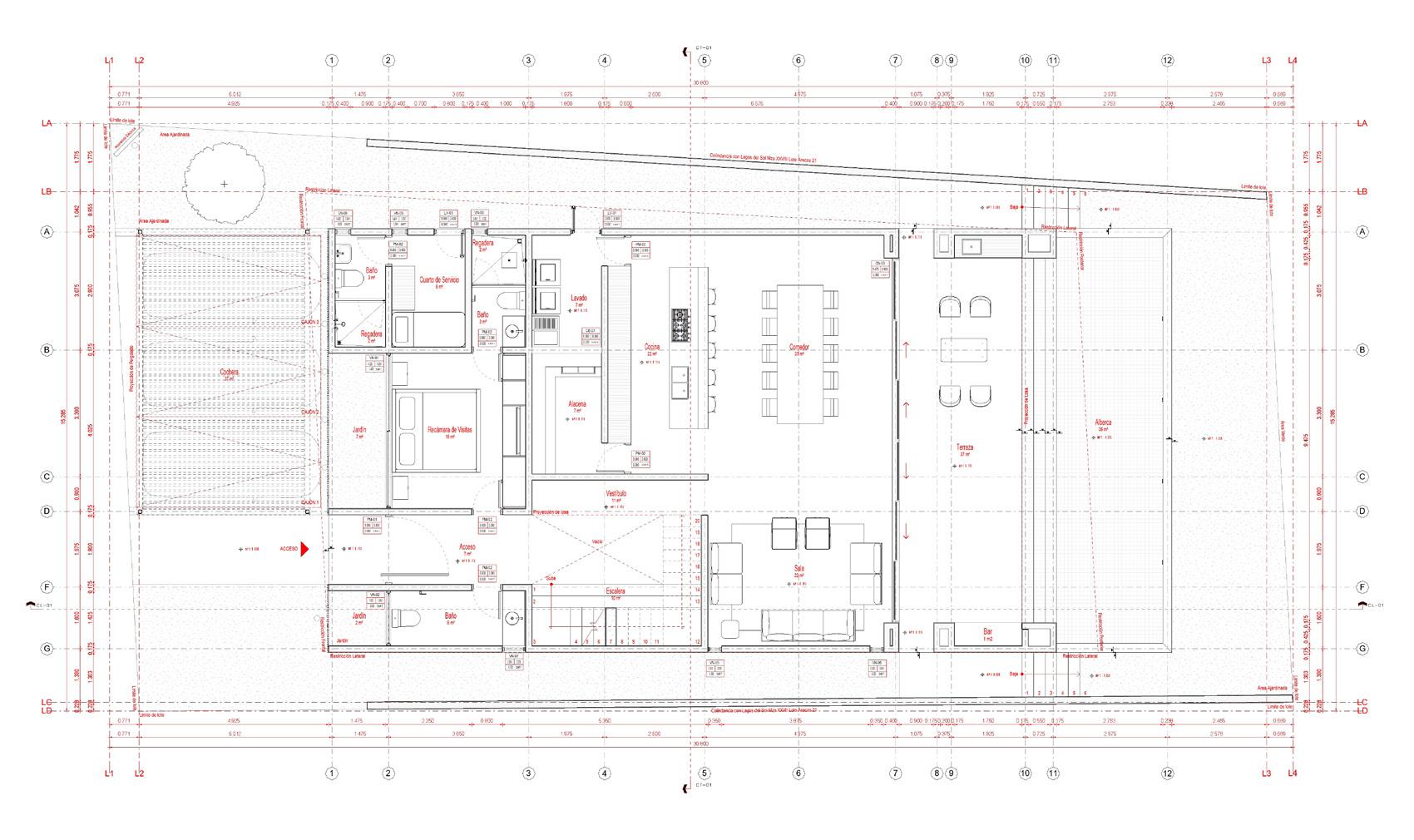
Laguna 54
Located
Cancun,

Arecas 22

Every detail in this design was carefukky considered to provide a unique experience of comfort and funcionality. Each space has been designed to offer a maimum well-being, allowing its users to enjoy the spaciousness and harmony of their surroundings.

Arecas 22
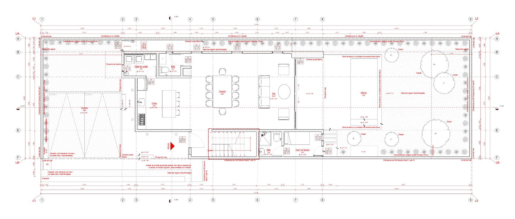
Danubio

The design was inspired by the idea of creating an intimate and cozy space for a family, where privacy is balanced with openness to the outdoor areas, generating harmonious views and internal spaces.

Danubio 19

Turn static files into dynamic content formats.

Create a flipbook
Issuu converts static files into: digital portfolios, online yearbooks, online catalogs, digital photo albums and more. Sign up and create your flipbook.