Portfolio

Page 1


Portfolio As

AmyaSims

Undergraduate InteriorDesign

2021-2024

OBJECTIVE

Creative and enthusiastic graduate

striving to work in commercial and sustainabledesign.

Seeking to work in a creative and productiveenvironmentasaninterior designer, and apply my skills to advancedchallenges

Mydesignisdescribedasabstract, functional,organic,andcompelling

Bonham677,Lavon,TX,75166 213WElmAve,Apt101,Stillwater,OK,74074

PACECenter
AthertonHotelRenovation
Ginnys//Retail
BarcelonaPavillion//ModernArchitecture
Capstone:TheHall

Capstone: The Hall

Totransformtheexpansivefloorsof 4040NCXintoaversatile,socialamenity space,weaimtocreateanenvironment thatseamlesslyintegratesvigor, practicality,andcompellingdesign.This space,knownasTheHall,catersto guestswithadiverserangeofactivities, fromleisurelypursuitstomomentsof comfort,allinfusedwithartisticflairand vibrantcolorschemesinspiredbythe eclecticcityofDallas,TX.

ProjectBackground

CurrentBuildingUse

NewRenovation

BuildingName

Location (R)SQFT

CurrentUse

Rentableofficespaces, fitnesscenter,aGrab-n-Gofoodservice, TenetLounge,andagolfsimulator

TheHall

4040NCX,NCentralExpressway,Dallas,TX,753204

146,864SF

Rentable office spaces, providing a fitness center, a Grab-n-Go foodservice,atenetlounge,andagolfsimulator

CONCEPT

Designed as a hub for social interaction and collaboration, The Hall embodiestheenergeticspiritofitssurroundings.Ourrenovationstrategy revolves around the implementation of serene yet vibrant palettes, complemented by a variety of tile designs and sleek oak wood flooring. Each area within The Hall is meticulously crafted to enhance user experience, incorporating biophilic elements and sustainable design practices.

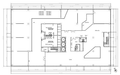
LEVEL 1 | DINING

Thefirstlevelisarrangedinanaxiallayout,inhabitingthelobbyand loungewithaconnectedcafe,diningthatbranchestotheEastof thebuilding,andacentered,two-storylibrary.

TheHall’sdiningfacesadjacenttothereceptionarea,holdingtwoentryways tothedining,andseparateexitstooutdoorseating.Theexteriorwallsare designedwithacousticalpropertiestomitigatenoisefromthenearby expressway,providingaquieterenvironmentfordiners.

Thetileselectedforthisspaceservesasawayfindingtoolforusers,guiding thembetweenentriesandexits.Additionally,thespaceintegratesbiophilic elementstoestablishaseamlessconnectionwiththeoutdoors

Level1RCP
Level1FurniturePlan

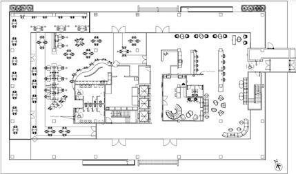
LEVEL 2 | GYM

Thesecondlevelisarrangedinanaxiallayoutwithapublicgymandlocker room,neighboringacoffee-on-tapcafeforuserstograbafresh,hot expresso.

Level2RCP

Level2FurniturePlan

TheHall’sCoreStrengthrecreationalspace layoutprovidesamplespaceforusersto performtheirexerciseswhilealsooffering clearvisibilityoftheequipmentthroughoutthe entirefloor.Thisdesignconsiderationensures accessibilityforuserswhoidentifywithADA requirements.

PACE Center

Intheprocessofcreatingaprojectthatcaterstothe diverseneedsofthePaceFacilityCenter,we researcheddifferenttopicstohelpuswiththedesign project.Thetopicsweareresearchingare wayfinding,sustainability,lightingforelderlycare, universaldesign,colorpsychology,andcultural implications.Thisapproachensuresthatourfacilityis notjustaplaceforpeopletovisitbutaspacewhere theycancomfortablynavigate,connectwiththeir surroundings,andexperienceasenseofbelonging, regardlessoftheirage,background,orabilities.

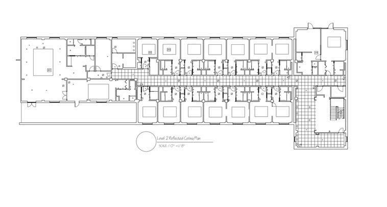
LEVEL 2

CHANGING/SH OWER HYDROPTHERAPY STAIRS PRIVATE

REHAB

CONFERENCE ROOM#1

MEDICAL DIRECTOR PHYSICAN medical Records

TheconceptforourPACE(ProgramofAll-InclusiveCarefortheElderly)facilityisinspiredbythebeautyandqualitiesofthe botanicgardenlocatedinStillwater,Oklahoma.Weaimedtocreateafunctionalenvironmentthatseamlesslyblends healthcarewithnature,providinganurturingandhealingspaceforelderlyindividualstothrive,whilecreatingasenseof communityandkeepingprivacy.WeincorporatedelementsfromStillwaterintoourinteriorstomaketheirfacilityfeellike home.

Inspiration

Floorplans

ExamRoom Perspective

Color Psychology

The mixture of the warm tones of yellow and cool tones of blue creates a trusting and familiar atmosphere

Biophilia:

An alternative for a biophilia aspect was a floral wallcovering that ties in with the inspiration of Stillwater’s botanical garden

NursesStationPerspective

Universal/Bariatric Design:

Clyde booth arrangement from Steelcase that allows clinic workers to have a an area to reside in for relaxation and private conversation, as well as an opening seating for easy and comfortable acces

Wayfinding:

Each space within the floor are given, clear and readable signage to indicate the location within an area. This guidance will assist users in finding their desired destination.

Atherton Hotel Renovation

TotransformtheOklahomaState University’sAthertonHotelintoaspace thatcelebratesthespiritofStillwater’s Cowboysandwelcomesgueststothe collegetownlifestyle.

Thisrenovationprojectheavilyfocuseson theuseoflightingtechniqueswith precedentstudiesandresearch applicationsregardingtoagingeyesof adults.Theinformationisusedtofurther enhancethespacesthroughoutthehotel.

Sustainability

Tofacilitatetheoverallenergyconsumption,LED lightingfixtureswithlong-lastinghours,suchas wallwashers,willbeinstalledinhallways, corridors/stairs,andthegiftshop.Afixedlighting patternwillhelpguestsadjusttolightingquicker, especiallyoldereyes,asitsimplifiestheorientation.

AdherencetotheTargetMarket

Providehospitalityservicesandcowboyspiritto visitingathleticteams,familymembersofOSU students,OSUsupporters,andtravelers.Theagesof thesegroupsrangebelowandabove65.Guestwillbe giventheexperienceofStillwater'sfootball celebrationsatOSU'scampus,andembracethe orangepowerwhenstayingatAtherton.

Manifestations:

Anatmospherethatwelcomesgueststothelifestyle ofStillwateranditsrenownedUniversityspirit. Theintegrationofbrightcolors,carpet,marble,oak hardwoodwood,andavisuallycomfortableand creativelightschemethatincludesstructurallighting andlightasart,willenhancethespacesandthe experienceguestswillhaveunderthecareof OklahomaState’shospitality. Theuseofvariousshadesoftetradiccolors associatedwithorangetomaintainthe"orange power"atOSU,whichincludesblue,green,andpurple

LoungePerspectives

ManningtonCommercial
ChateauHardwoodflooring
WallsRepublic
MarbleMetallicPale
Beige
Pinkmarble

Bar&DiningPerspective

Pendantandmountedlightingfixturesfrom Remingtonareusedabovethebarandalong thecolumnsofthediningarea.

Structurallightingisdisplayedinthe barandgiftshop,aswellasthe lobby, gym,andlibrary.

GiftShopPerspective

BarPerspective

ioSurfaceMounted

Mannington
Commercial BlackTones
StructuralLighting

LEVEL 2

HotelRoomSuiteSketch

Innovation

Photosensorsandoccupancysensorswillbeinstalledin hotelguestrooms.Wheneverthespaceisnotoccupied, lightswillturnoff,andadjustitssettingsoitcorrelates withtheamountofdaylightemittingintothespace.

Natural Ginneys

NATURAL GINNEYS

Thegoalforthisretaildesignwasto createaspacethatispresentedasa comfortableandattractive environmentforbuyerswithlightand color.Thehistoryofcottonwillbe displayedthroughouttheshopto demonstrateitsimportanceand appreciation.Thebuildingwilltieinto theStillwatermainstreetculture andcharactertodrawbuyerswitha warmwelcome.

Bubble Diagram

Bathroom
ColorSelection
Diagram

PROBLEMSTATEMENT

Provide the necessities for customers and employees to use the space for work, and shopping, and display the history of the plantation of cotton. Long-time partners Lily Hayes and Rose Smith developed the idea to build and design a retail store that demonstrates the sustainable use of cotton. The pair have known each other since college and have planned this business idea for some time.Thisretailstoreaimstoattractshoppers wanting sustainable products that are high quality,comfortable,andeasytocarefor.This cotton-based store is located on Main street of Stillwater, Oklahoma, and is designed to complimenttherusticandvintagesetting.

RenderedFloorplans
Elevation
ScaledFloorplan

Barcelona Pavillion

TheBarcelonaPavillionisDesigned LugwigMiesVanRoheandLillyReich in1928,andthebuildinglateropened in1929inBarcelona,Spain.The Pavilionwasconstructedto accommodatethereceptionforthe KingofSpainandGermanAuthorities

AtlasMountainGoldenOnyx
GreenAlpineMarble
RomanTavertine
AncientGreekMarble
Elevation
Floorplan

Perspectives

Turn static files into dynamic content formats.

Create a flipbook
Issuu converts static files into: digital portfolios, online yearbooks, online catalogs, digital photo albums and more. Sign up and create your flipbook.