Portafolio Arquitecto-Adriana Monroy

Page 1

D
A M O N R O Y P O R T A F O L I O A R Q U I T E C T A
A
R I A N
SOBRE MI 01 ESTUDIOS 02 ULTIMOS TRABAJOS 03 DISEÑO DE INTERIORES 04 CONTACTO 05
ÍNDICE

SOBRE ADRIANA MONROY

VIDA Y CARRERA

Arquitecta con experiencia en proyectos de diseño vertical residencial, diseño de interiores, en proyectos bioclimáticos y en diseño urbano de escala media Además de tener interés en las áreas de construcción.

Adriana Monroy, Arquitecta

Arquitecta | Diseño y Construcción

CONTACTO

Teléfono: 8118009403

E-mail: amonroym02@gmail.com

LinkedIn: adriana-monroy2000

Ciudad: Monterrey, Nuevo León

IDIOMAS

HABILIDADES EJECUTIVAS

RESOLUCIÓN DE PROBLEMAS

CREATIVO

TRABAJO EN EQUIPO

INICIATIVA

HERRAMIENTAS

SKETCHUP

REVIT

ENSCAPE

PHOTOSHOP

MICROSOFT

Español NATIVO Inglés Francés Japonés C1 B1 N4
AUTOCAD

2021

LA LUCIA

Adriana Monroy

Alexandra García

Mariana Morales

Diseño de un edificio de usos mixtos colindante a Barri Antigüo Se trabajó proyecto arquitectónico, costos (estudio de mercado) y documentación legal. El proyecto fue retroalimentado finalmente por Nest desarrollo inmobiliario

DAY LIFE

RESTAURANTES BAZARES MALLS

CAMINATAS

PARQUES

MUSEOS

TIENDAS

NIGHT LIFE

RESTAURANTES BARES

RESTAURANTE BAR

USUARIOS

FAMILIAS JÓVENES JÓVENES

ESTUDIANTES

El proyecto, gracias a su cercanía con Barrio Antigüo, fue diseñado para un usuario joven, entre estudiantes o familias jovenes que puedan disfrutar del equipamiento urbano que hay presente en la zona.

EMPRESARIOS

El edificio cuenta con 4 plantas iguales de 4 tipologías de departamentos, una planta de amenidades, el lobby y dos plantas de estacionamiento

45 Mt2 65 Mt2
Planta de 1 recamara Loft 2 plantas de 1 recamara
165
150 Mt2
Mt2 Planta de 2 recamara
Planta de 3 recamara + Flex

COMERCIO PARQUE

GIMNASIO

SALON EVENTOS

Algunas de las amenidades presentes son el gimnasio, un salón de eventos y 2 salas multiusos que estan en la planta superior del edificio. En planta baja, se encuentra el área de comercios y el parque.

Costos de venta

$2,374,312

$3,429,562

$7,914,374.57

$8,705,812

A L C
D

Se hace una rehabilitación al parque La Luz ubicada en el centro de Monterrey. Se agregan zonas de esparcimiento: cancha polivalente, zona de niños, zona de mercado (los viernes, el parque tiene eventos), entre otros.

2006 2009 2020
FUTURO

Para la supermanzana, se hace la reestructuración a 5 fases de tiempo, donde se empieza juntando los tres parques de la zona, para después, cerrar calles, redistribuir circulaciones, agregar ciclovias, etc.

ANDADOR 1 2 3 4 5 6 7 NODOS MUSEODELGOLFO ARENAMONTERREY CINTERMEX TEARODELAANDA COLEGIOCIVIL MUSEODEHISTORIA MARCO 1 2 3 4 5 6 7 SIMBOLOGIA BARRIOBUS RETORNOS SUPERMANZANA FINAL SUPERMANZANAOG SUPERMANZANAF3 SUPERMANZANAF2 FASEFINAL
FASE 1 FASE 2 FASE3
4
FASE4

MODULOCOMERCIO

MODULODESCANSO

MODULOBUS

CALZADA/CICLOVÍA VEHICULAR
6m 3m3m 6m 2m2m 8m 4m 3m 3m 4m CALZADA/CICLOVÍA
CALZADA MADERO
MODULOVERDE

Conjunto La Luz, edificio de vivienda colectiva con planta activa, recordando la vivienda Norestense formando parte del plan de desarrollo urbano, reimaginando lo que significa revitalizar, pero a escala de ciudad

Kalmekak, un edificio que además de ser un punto conector para la cultura de la zona gracias a su anfiteatro y salones, brinda un espacio de vivienda como estrategía de creación de comunidad

Andador de Barrio La Luz, conecta con tres espacios representativos del centro de Monterrey, empezando por Plaza La Luz, Plaza del Chorro y Plaza de los Enamorados, pasando por puntos culturales, comerciales arquitectura que recorre la historia Norestense

Parque situado en Plaza la Luz, punto de reunión del Centro de Monterrey, siendo un importante elemento de cohesión social

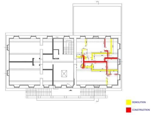
Plano Aire acondicionado (HVAC)

Plano de estructuras
Plano Drenaje
Plano Suministro de Agua

2023 DISTRITO ATENEA

Adriana Monroy

Daniela Rodarte

Debanhi Limón

Mariana Morales

Proyecto conceptual de edificio usos mixtos con percepción de género. Realizado junto alumnos de Mercadotecnía, reconocido por la empresa Collective Real Estate.

%55 sin acceso a trabajo formal

DE MUJERES 9 10

Se sienten inseguras caminando por la calle a cualquier hora del día.

DE MUJERES 7 10

Han sido victimas de ACOSO en las calles

El proyecto al ser para y por mujeres en la zona Centro de Monterrey, el analisis y las entrevistas son para ver cómo ellas se sienten estando en el sitio, el cual no es apto para caminar, ni esperar el transporte público haciendolo inseguro para las usuarios.

Zonificación D9: Densidad Media

Densidad Alta

Densidad Media Alta

Densidad Media

Densidad Baja

N/A o Sin Habitantes

El socio formador (Collective) buscaba que el proyecto, aún siendo completamente conceptual, siguiera las normativas del Municipio

"LO TENEMOS TAN NORMALIZADO QUE NI NOS DAMOS CUENTA DE LO FRECUENTE QUE PASA."
CORREDOR URBANO DE MEDIANO IMPACTO DENSIDAD VIV/HA COS CUS CAS 95 075 35 015 MARCO NORMATIVO

1ER PASO: INTERVANCIÓN DE CALLE

Vegetación y sombra natural

Parada formal de autobus

Extensión de banqueta

Parada de emergencia

2NDO PASO: CREACIÓN DE CERTIFICADO DE MEDICIÓN DE IMPACTOS LLAMADO ECOS, CON REFERENCIA EN YA EXISTENTES COMO LEED O WELL

Distrito Atenea es una propuesta con enfoque a la seguridad con perspectiva de genero y bienestar de las mujeres Cuenta con infra estructura vial adecuada, espacios para generar empleos y brindar servicios a los mismos residentes, 2 tipos de viviendas con diferentes tipologías, espacios de recreación para grandes y pequeños como y un green roof.

670 M2 ESCUELA COCINA ÓN COMERCIO N 3 P BN 2 2,122 M2 N S 12 EST SUBT 6,400 M2 N 4 5 N 6 1 0 T 2N 3 PLANTA DE ACCESOS MIGUEL HIDALGO Y COSTILLA C 20 D E N O V I E M B R E ESTACIONAMIENTO COMERCIO DEPARTAMENTOS ALEJANDRODEHUMBOLT C 2 0 D E N O V I E M B R E PLANTA DE CONJUNTO

Corte Transversal

Corte Longitudinal

C E R T I F I C A C I Ó N

D E I N T E R I O R E S

2022

DESIGN FOR LIVING SPACES

Desarrollo de dibujos técnicos interiores de una vivienda unifamiliar concepto libre propio

PLANTA BAJA TÉCNICA PLANTA BAJA AMUEBLADA PLANTA ALTA TÉCNICA PLANTA ALTA AMUEBLADA

CORTE A

CORTE D

CORTE B

CORTE E

CORTE C

CORTE F

El uso de photoshop para renderizar plantas y cortes según la selección de texturas y muebles

PLANTA BAJA PLANTA ALTA

2022

FURNITURE DESIGN PT1

Diseñar un mueble que sea de materiales reciclados. En este caso un mesa de café con base de plastico reciclado y cristal de playa.

ELEVACIÓN FRONTAL Y LATERAL

VISTA DE PLANTA Y CORTE HORIZONTAL CORTE TRANSVERSAL Y LONGITUDINAL

FURNITURE DESIGN PT2

DISEÑAR UNA SERIE DE MUEBLES QUE SEAN A PARTIR DE MODULOS.

MESITA

ELEVACIONES

Y CORTE

VISTA DE PLANTA Y CORTE HORIZONTAL
OTTOMANO
PLANTA, ELEVACIÓN Y CORTE
MESITA
ESTANTERIA
2022

INTERIOR DESIGN II

DISEÑAR EL INTERIOR DE UN CUARTO B&B Y LA SALA DE DESAYUNO. ELABORACIÓN DE PLANOS Y RENDERS

Cortes renderizados de baño

Cortes renderizados de recámara

Planta base de habitación B&B

Plano iluminación

Planta de cielorraso

2022

DIS DE LA S ELA

PLANOS Y RENDERS DE IGUAL MANERA SE DISEÑO UNA BARRA TIPO BAR PARA EL DESAYUNADOR.

Planos iluminación

Plano del desayunador

B&B

Planos c demolic

B&B

202
INT

SOBRE ADRIANA MONROY

Teléfono: 8118009403

E-mail: amonroym02@gmail.com

LinkedIn: adriana-monroy2000

Ciudad: Monterrey, Nuevo León

Adriana Monroy, Arquitecta

CONTACTO

Turn static files into dynamic content formats.

Create a flipbook
Issuu converts static files into: digital portfolios, online yearbooks, online catalogs, digital photo albums and more. Sign up and create your flipbook.