Amna AL Mousa Architectural Portfolio

Page 1

Architectural Designer

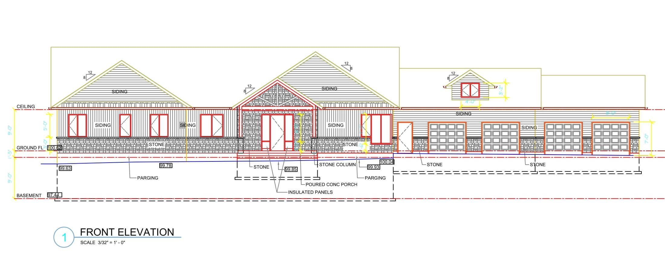
Residential Project ,Ontario

• Location: Toronto, Ontario

• Property type: Single-family residential home

• Size: 2,500 sq. ft.

• Architectural style :Contemporary

• Building material: Rivet/AUTO CAD

TOTAL SITE AREA 19,450M2

• The provision of residential apartments, a residential apartment between (125 m2 to 276 m2)

• Comfortable interior spaces and engineering standards that match taste Saudi

• sustainable design conceptsFour apartments on each floor, taking into account privacy per apartment.

• Services adjacent to housing) mosques - schools - spaces Green - and commercial centers (not shoes with maintenance. Car parking for each apartment

GENERAL SITE ANALYSIS

LAND USES

PEDESTRIAN WALKWAY

Mid rise residential complex project, Saudi Arabia

Building 3-3

Building Types
Duplex 3-4 Building 4-4 Building 3-4

APARTMENT TYPE 3-3

AREA 215M2

APARTMENT DELUXE

AREA=275M2

Main Elevation

Sections

Healthcare Project , Istanbul, Turkey

MATERNITY DEPARTMENT

VIP PATIENT ROOM

PAITIENT ROOM

Turn static files into dynamic content formats.

Create a flipbook
Issuu converts static files into: digital portfolios, online yearbooks, online catalogs, digital photo albums and more. Sign up and create your flipbook.